QUY CHUẨN KỸ THUẬT QUỐC GIA
QCVN 01:2011/BCT
VỀ AN TOÀN TRONG KHAI THÁC THAN HẦM LÒ
(Ban hành kèm theo Thông tư số 03/2011/TT-BCT ngày 15 tháng 02 năm 2011 của Bộ trưởng Bộ Công Thương)
QUY ĐỊNH CHUNG
Điều 1. Phạm vi điều chỉnh
Quy chuẩn này quy định các biện pháp bảo đảm an toàn trong khai thác than hầm lò.
Điều 2. Đối tượng áp dụng
Quy chuẩn này áp dụng bắt buộc đối với những tổ chức, cá nhân có hoạt động liên quan đến khai thác than hầm lò trên lãnh thổ Việt Nam.
Điều 3. Thuật ngữ, định nghĩa
Các từ ngữ trong Quy chuẩn này được hiểu như sau:
1. Khoáng sàng than: Là sự tích tụ tự nhiên của khoáng vật than ở thể rắn với khối lượng lớn trong lòng đất dưới dạng vỉa hoặc ổ và có sự khác biệt về tính chất và không gian so với đất đá xung quanh;
2. Mỏ hầm lò: Là khu vực của khoáng sàng than được khai thác than bằng phương pháp hầm lò.
Mỏ hầm lò bao gồm các bộ phận khai thác, đào chống lò, thông gió, cơ điện, vận tải và các bộ phận phục vụ khai thác khác;
3. Giám đốc điều hành mỏ: Là người do tổ chức, cá nhân được phép khai thác than cử, bổ nhiệm hoặc ký hợp đồng thuê để trực tiếp điều hành các hoạt động khai thác, chịu trách nhiệm về những nhiệm vụ được giao theo quy định của pháp luật Việt Nam.
4. Công tác mỏ: Là công tác liên quan đến hoạt động khai thác hầm lò. Công tác mỏ được chia thành các công tác chính sau:
a) Công tác mở vỉa than: Là công việc đào các đường lò từ mặt đất tới khoáng sàng than. Các đường lò được đào phục vụ cho mục đích mở vỉa than gọi là các đường lò mở vỉa;
b) Công tác đào lò chuẩn bị: Là công việc đào các đường lò từ các đường lò mở vỉa để phân chia khoáng sàng than thành các khu khai thác, lò chợ và gương khai thác. Các đường lò này được gọi là các đường lò chuẩn bị;
c) Công tác khai thác: Là những công việc liên quan trực tiếp đến khai thác, bao gồm khấu, vận chuyển, chống giữ khoảng không gian đã khai thác.
5. Giếng mỏ: Là đường lò đào theo phương thẳng đứng hoặc theo chiều nghiêng từ mặt đất tới khoáng sàng than phục vụ cho công tác mở vỉa; Một mỏ hầm lò thường có giếng chính, giếng phụ.
a) Giếng chính: Là giếng phục vụ cho công tác thoát nước, thông gió, vận tải than khai thác từ hầm lò lên mặt đất.
b) Giếng phụ: Là giếng phục vụ cho công tác thông gió, thoát nước, cung cấp năng lượng, vận chuyển người, vật liệu, thiết bị ra vào hầm lò.
6. Sân ga giếng: Là hệ thống các đường lò bằng tiếp giáp xung quanh giếng, phục vụ cho công tác nâng hạ người, vật tư, vật liệu, thiết bị, than qua giếng.
7. Ruộng mỏ: Là toàn bộ hoặc một phần khoáng sàng than dành cho một mỏ hầm lò;
8. Điều khiển đá vách: Là tổ hợp các công việc thực hiện nhằm cân bằng áp lực mỏ xuất hiện trong những khoảng rỗng do khai thác tạo ra, để đảm bảo khai thác an toàn và chống sụt lún bề mặt địa hình. Căn cứ vào tính chất cơ lý đất đá bao quanh vỉa hoặc ổ than và điều kiện sản xuất, có các phương pháp điều khiển đá vách:
a) Phương pháp phá sập toàn bộ đá vách (hay còn gọi là phương pháp điều khiển đá vách bằng phá hoả toàn phần): Khoảng rỗng trong lòng đất ngay sau khi khai thác được lấp đầy bằng cách phá sập đá vách;
b) Phương pháp điều khiển hạ từ từ đá vách: Khoảng rỗng trong lòng đất sau một thời gian khai thác nhất định được lấp đầy do đá vách có tính chất uốn võng hạ từ từ dưới tác động của áp lực mỏ;
c) Phương pháp điều khiển đá vách bằng chèn lò: Khoảng rỗng trong lòng đất ngay sau khi khai thác được lấp đầy bằng vật liệu đưa từ ngoài mặt đất vào trong hầm lò.
9. Áp lực mỏ: Là lực hình thành trong địa khối do khai thác tạo ra những khoảng rỗng, gây nên sự biến dạng đất đá xung quang những khoảng rỗng đó.
10. Độ kiên cố của đất đá: Là khả năng chịu nén, kéo, uốn tức thời trên một đơn vị diện tích của đất đá. Theo thang phân chia của Giáo sư Viện sỹ Viện hàn lâm khoa học Nga, đất đá được phân chia thành 10 cấp kiên cố, được xác định bằng công thức:
f = б/100, KG/cm2
Trong đó: f là độ kiên cố của đất đá; б là khả năng chịu nén, kéo, uốn tức thời trên một đơn vị diện tích của đất đá
11. Cú đấm mỏ: Là hiện tượng động lực học được hình thành có liên quan đến khoảng không gian khai thác, tạo ra bởi khối lượng lớn đất đá sập đổ đột ngột xuống khu vực đang hoạt động khai thác, gây thiệt hại cho người, thiết bị và công trình mỏ.
12. Công trình mỏ: Là toàn bộ hệ thống đường lò, hệ thống cung cấp năng lượng, hệ thống cấp thoát nước, hệ thống vận tải, hệ thống thông gió và các công trình khác ngoài mặt bằng mỏ phục vụ cho công tác khai thác.
13. Hệ thống khai thác: Là tổng thể các đường lò chuẩn bị, gương khấu trong giới hạn ruộng mỏ, liên quan mật thiết với nhau về không gian và thời gian.
14. Gương lò: Là nơi tiến hành trực tiếp công tác chuẩn bị hay khai thác; tại vị trí khấu than gọi là gương lò chợ, còn tại vị trí đào lò chuẩn bị gọi là gương lò chuẩn bị.
15. Thùng trục: Là cơ cấu dùng để nâng hạ người hoặc vật liệu trong giếng đứng.
16. Thùng cũi: Là cơ cấu dùng để nâng hạ người, vật liệu hoặc goòng chất tải trong giếng đứng.
17. Skip: Là cơ cấu tự dỡ tải dùng để nâng hạ than, đá, vật liệu rời trong lò nghiêng hoặc lò đứng.
18. Phanh dù: Là cơ cấu tự động phanh hãm thùng trục, thùng cũi, giếng mỏ trong trường hợp cáp nâng thùng trục, thùng cũi trùng hoặc đứt.
19. Cáp điện phòng nổ: Là cáp điện có vỏ bọc không cháy khi cáp bị sự cố ngắn mạch, quá tải và có màn dẫn dòng điện rò bao quanh vỏ bọc cách điện của các lõi dẫn điện.
20. Thiết bị điện phòng nổ: Là thiết bị khi hoạt động không làm cháy nổ bầu không khí bên ngoài.
21. Các ký hiệu dưới đây được hiểu như sau:
ExI - Thiết bị điện mỏ thông thường.
ExdI - Thiết bị điện có cấu tạo vỏ không xuyên nổ.
ExeI - Thiết bị điện có cấu tạo tằng cường độ tin cậy phòng nổ .
ExdsI - Thiết bị điện có cấu tạo bảo vệ phòng nổ đặc biệt.
22. Cơ quan quản lý mỏ có thẩm quyền: Là cơ quan quản lý mỏ cấp trên trực tiếp.
Điều 4. Các yêu cầu chung
1. Quy định về hồ sơ mỏ hầm lò
a) Mỗi mỏ hầm lò phải có hồ sơ theo quy định của pháp luật Việt Nam về quản lý đầu tư và xây dựng, các tài liệu trắc địa, địa chất, kế hoạch phát triển mỏ được cơ quan quản lý mỏ có thẩm quyền phê duyệt.
b) Định kỳ theo quy định, mỏ hầm lò phải thực hiện chế độ cập nhật kịp thời các hồ sơ sau đây:
- Bản đồ địa chất thuỷ văn;
- Sơ đồ bố trí các đường lò trong mỏ;
- Sơ đồ cập nhật các gương lò chuẩn bị, gương lò khai thác;
- Sơ đồ hệ thống thông gió trong hầm lò;
- Sơ đồ hệ thống vận tải trong hầm lò và ngoài mặt bằng mỏ;
- Sơ đồ bố trí thiết bị trạm kiểm soát khí tự động;
- Sơ đồ hệ thống thoát nước;
- Sơ đồ hệ thống thông tin liên lạc trong hầm lò và ngoài mặt bằng mỏ;
- Sơ đồ hệ thống cung cấp điện, thuỷ lực, khí nén ngoài mặt bằng mỏ và trong hầm lò;
- Kế hoạch Ứng cứu sự cố - Tìm kiếm cứu nạn (ƯCSC-TKCN), phương án phòng chống cháy nổ;
- Số liệu quan trắc môi trường.
2. Việc mở vỉa chuẩn bị các khu vực khai thác, mức khai thác, sửa chữa lớn giếng đứng, giếng nghiêng, lò ngầm, lò thượng trung tâm và việc lắp đặt thiết bị cố định phải thực hiện theo thiết kế được cơ quan quản lý mỏ có thẩm quyền phê duyệt.
3. Việc khấu than, đào chống lò, vận tải than và đất đá, điều khiển đá vách, thông gió, đào và sửa chữa lớn các đường lò phải thực hiện theo hộ chiếu. Việc lắp đặt thiết bị phải theo sơ đồ bố trí thiết bị. Các hộ chiếu và sơ đồ nói trên do Giám đốc điều hành mỏ duyệt, không trái với các quy định của Quy chuẩn này.
Hướng dẫn chi tiết việc lập hộ chiếu đào chống lò, khai thác thực hiện theo Phụ lục I của Quy chuẩn này.
4. Phải bố trí khám chờ đợi ở các sân ga giếng đứng, giếng nghiêng dùng để vận chuyển người lên - xuống. Các khám chờ đợi phải được thông gió, chiếu sáng và có ghế ngồi.
5. Cấm đưa các máy, thiết bị, hoá chất độc hại có yêu cầu an toàn đặc thù chuyên ngành công nghiệp; Các máy, thiết bị, vật tư và các chất có yêu cầu nghiêm ngặt về an toàn lao động vào hầm lò sử dụng khi chưa được kiểm tra, kiểm định các điều kiện an toàn theo quy định.
6. Mỏ hầm lò chỉ được sử dụng các máy mỏ, thiết bị cơ giới, trang thiết bị điện, khí cụ, vật liệu chuyên dùng trong hầm lò. Việc lắp đặt, sửa chữa, vận hành phải tuân theo các Tiêu chuẩn Việt Nam hiện hành.
7. Phải thành lập Hội đồng nghiệm thu do Giám đốc điều hành mỏ hoặc người được uỷ quyền chủ trì trước khi đưa mỏ mới, mỏ cải tạo hoặc một mức khai thác mới vào sản xuất; Trong thành phần Hội đồng nghiệm thu phải có sự tham gia của cán bộ về kỹ thuật an toàn và môi trường công nghiệp.
8. Cấm đưa vào sản xuất những mỏ mới, mỏ cải tạo, khu khai thác, mức khai thác, gương khấu, đường lò và các hạng mục công trình khác khi chưa được nghiệm thu theo quy định và không đảm bảo các điều kiện an toàn theo Quy chuẩn này.
9. Phải che chắn các bộ phận chuyển động của máy móc, thiết bị có thể gây nguy hiểm cho người, trừ các bộ phận nếu che chắn sẽ ảnh hưởng đến chức năng hoạt động của bộ phận đó như các đầu khấu than, các hệ thống truyền động của các máy làm việc ở gương lò, băng tải, ru lô, xích, cáp kéo v.v. Các bộ phận này phải được trang bị các tín hiệu cảnh báo trước khi khởi động. Các tín hiệu này phải là tín hiệu âm thanh, có thể kết hợp với ánh sáng được phát liên tục ít nhất trong 5 giây, đảm bảo nghe được trong phạm vi vùng nguy hiểm.
Điều 5. Quy định về sức khoẻ người lao động
Người lao động phải được kiểm tra và đảm bảo sức khoẻ theo đúng các quy định của Bộ Y tế trước khi được nhận vào làm việc tại mỏ hầm lò.
Điều 6. Quy định nghề làm việc trong hầm lò
Người lao động làm việc trong hầm lò phải được đào tạo nghề mỏ theo chương trình được Bộ Giáo dục và Đào tạo hoặc cơ quan quản lý mỏ có thẩm quyền phê duyệt trước khi được nhận vào làm việc lần đầu hay chuyển từ nghề này sang nghề khác.
Điều 7. Quy định về đào tạo, huấn luyện an toàn vệ sinh lao động
1. Việc thực hiện công tác huấn luyện an toàn, vệ sinh lao động (AT-VSLĐ) cho người sử dụng lao động, người lao động, người làm công tác AT-VSLĐ; hướng dẫn cho các đối tượng tham quan, nghiên cứu, thực tập; thống kê, theo dõi, báo cáo công tác AT-VSLĐ phải được thực hiện theo quy định của pháp luật. Chỉ những người đã được huấn luyện, hướng dẫn, phổ biến và kiểm tra về AT-VSLĐ đạt yêu cầu mới được phép làm việc tại mỏ hầm lò.
Sổ theo dõi huấn luyện AT-VSLĐ quy định tại mẫu sổ 14, Phụ lục VII của Quy chuẩn này.
2. Mỗi năm một lần, mỏ hầm lò phải tổ chức huấn luyện và kiểm tra kiến thức về kỹ thuật an toàn (KTAT) cho cán bộ kỹ thuật các phòng, ban, phân xưởng liên quan đến những công việc sau đây:
a) Thông gió và kiểm soát khí mỏ;
b) Phòng chống cháy nổ mỏ;
c) Thoát nước và phòng chống bục nước;
d) Công tác kiểm định cột chống thuỷ lực sử dụng trong hầm lò;
e) Công tác khấu, chống gương khai thác và đào lò chuẩn bị;
g) Công tác Cơ điện - Vận tải mỏ.
3. Hai năm một lần, Lãnh đạo mỏ, cán bộ quản lý phòng, ban, phân xưởng đều phải được huấn luyện, kiểm tra về những quy định tại Quy chuẩn này phù hợp với nhiệm vụ, công việc được giao.
4. Bộ Công Thương (Cục Kỹ thuật an toàn và Môi trường công nghiệp) xây dựng chương trình, nội dung huấn luyện, tổ chức thực hiện và kiểm tra sát hạch. Chỉ những Lãnh đạo mỏ, cán bộ quản lý phòng, ban, phân xưởng đã được huấn luyện và kiểm tra đạt yêu cầu mới được tiếp tục thực hiện những công việc quy định tại khoản 2 Điều này
Điều 8. Quy định về Ứng cứu sự cố - Tìm kiếm cứu nạn
1. Hàng quý, mỏ hầm lò phải lập phương án Ứng cứu sự cố - Tìm kiếm cứu nạn (sau đây gọi tắt là phương án ƯCSC - TKCN) theo quy định và thoả thuận với đơn vị Cứu hộ - Cứu nạn (CH - CN) chuyên trách.
2. Trong thời gian xây dựng, cải tạo hoặc khai thác, mỏ hầm lò phải lập đội CH - CN bán chuyên trách và phải được một đơn vị CH - CN chuyên trách phụ trách, ứng cứu kịp thời khi có sự cố.
3. Mỗi quý một lần, Giám đốc điều hành mỏ phải tổ chức phổ biến cho người lao động Phương án ƯCSC - TKCN và làm quen với các lối thoát hiểm khi có sự cố. Khi thay đổi lối thoát hiểm hoặc người được chuyển sang làm việc ở khu vực khác, chậm nhất sau một ngày - đêm phải tổ chức cho họ làm quen với lối thoát hiểm mới. Việc làm quen với các lối thoát hiểm được thực hiện bằng cách dẫn những người này đi từ vị trí làm việc đến các lối thoát hiểm đó. Mỗi lần phổ biến phương án ƯCSC - TKCN và làm quen với lối thoát hiểm khi có sự cố phải được ghi vào sổ theo dõi.
Điều 9. Quy định về kiểm tra, kiểm soát người lao động
1. Giám đốc điều hành mỏ phải tổ chức kiểm tra, kiểm soát, ghi chép và theo dõi để bất kỳ lúc nào cũng nắm được vị trí và số người đang làm việc trong hầm lò.
2. Cấm ngủ, uống rượu, bia hay sử dụng các chất kích thích, ma tuý đối với tất cả những người làm việc trong dây chuyền sản xuất của mỏ (trong hầm lò cũng như ngoài mặt bằng mỏ).
3. Khi vào làm việc trong hầm lò, cấm mang theo vật sinh lửa, chất dễ cháy, chất nổ và phụ kiện nổ (trừ những người được giao nhiệm vụ thực hiện công tác nổ mìn trong hầm lò).
Điều 10. Quy định về sử dụng ngọn lửa trần
1. Cấm hút thuốc và sử dụng ngọn lửa trần trong các khu vực sau:
a) Trong hầm lò;
b) Trong các nhà xung quanh miệng giếng, nhà đèn ắc quy, nhà phân loại than;
c) Ở ngoài mặt băng mỏ trong phạm vi 30m đối với các cửa lò có gió thải ra mặt đất hay các công trình thoát, tháo khí, các ống thải gió của trạm quạt thông gió.
2. Trường hợp bắt buộc phải thực hiện các công việc có sử dụng ngọn lửa trần trong các khu vực thuộc phạm vi quy định tại khoản 1 Điều này, phải có các biện pháp đảm bảo an toàn do Giám đốc điều hành mỏ phê duyệt.
Điều 11. Quy định về trang bị bảo hộ lao động
1. Người lao động phải được trang bị bảo hộ lao động (BHLĐ) theo quy định đảm bảo các tiêu chuẩn kỹ thuật an toàn hiện hành và phù hợp với điều kiện làm việc, như: mũ lò, đèn ắc quy chiếu sáng cá nhân, bình tự cứu cá nhân, quần áo BHLĐ, ủng BHLĐ. Quần áo BHLĐ phải có dải phản quang để dễ nhận biết khi ở trong hầm lò.
2. Mỗi mỏ hầm lò phải có số bình tự cứu cá nhân nhiều hơn 10% so với số lao động theo danh sách làm việc trong hầm lò; Giám đốc điều hành mỏ phải tổ chức huấn luyện cho người lao động cách sử dụng và kiểm tra chất lượng bình tự cứu cá nhân theo quy định sau:
a) Khi hành trình rút lui đến vị trí an toàn mất trên 90% thời gian bảo vệ của bình tự cứu cá nhân, 6 tháng một lần trước khi thoả thuận phương án ƯCSC - TKCN, Giám đốc điều hành mỏ phải tổ chức một nhóm nhân viên kỹ thuật đeo bình tự cứu cá nhân đi theo hành trình này để kiểm tra.
b) Khi vị trí làm việc ở xa so với thời gian bảo vệ của bình tự cứu cá nhân không đủ đảm bảo cho người lao động rút lui đến nơi an toàn, trên đường rút lui phải đặt các trạm đổi bình tự cứu cá nhân. Việc đặt các trạm này phải thỏa thuận theo quy định tại khoản 1 Điều 8 Quy chuẩn này.
c) Quản đốc công trường, phân xưởng có trách nhiệm kiểm tra, tổ chức huấn luyện lại cách sử dụng bình tự cứu cá nhân cho người lao động thuộc bộ phận mình.
d) Việc định kỳ kiểm tra chất lượng của các bình tự cứu cá nhân do đơn vị CH - CN chuyên trách hoặc tổ chức có đủ năng lực và thẩm quyền thực hiện theo quy định của nhà chế tạo, nhưng ít nhất một lần trong năm.
Công tác huấn luyện phải được theo dõi, ghi chép theo mẫu sổ 14, Phụ lục VII của Quy chuẩn này.
Điều 12. Quy định về biển báo, tín hiệu
Phải lắp đặt các biển báo, tín hiệu theo quy định tại nơi làm việc và trên đường đi lại trong hầm lò, cũng như ngoài mặt bằng mỏ. Mọi người làm việc trong hầm lò và ngoài mặt bằng mỏ phải nắm vững hệ thống biển báo và tín hiệu đó.
Điều 13. Quy định về tiêu chuẩn, trình độ và năng lực Lãnh đạo mỏ
Tiêu chuẩn, trình độ, năng lực của Giám đốc điều hành mỏ phải đáp ứng đủ các điều kiện quy định tại Thông tư số 15/2009/TT-BCT ngày 25 tháng 6 năm 2009 quy định tiêu chuẩn, trình độ, năng lực của Giám đốc điều hành mỏ; Các Phó giám đốc phụ trách kỹ thuật sản xuất, an toàn, cơ điện phải có trình độ từ Đại học trở lên hoặc Cao đẳng kỹ thuật mỏ, có trình độ và năng lực quản lý về khai thác mỏ.
Điều 14. Quy định về xếp loại mỏ theo khí Mêtan
1. Tất cả các mỏ hầm lò phải được đánh giá, xếp loại mỏ theo khí Mêtan theo quy định.
2. Trên cơ sở đề nghị của cơ quan quản lý mỏ có thẩm quyền hoặc tổ chức, cá nhân có hoạt động khai thác than hầm lò, hàng năm Bộ Công Thương quyết định xếp loại loại mỏ theo khí Mêtan trên cơ sở kết quả đo đạc, tính toán theo quy định tại Phụ lục III của Quy chuẩn này
Điều 15. Quy định về tổ chức sản xuất trong hầm lò
1. Phải phân công tối thiểu 2 người có kinh nghiệm trong nghề thực hiện công tác đo khí trong những ngày nghỉ sản xuất. Chỉ được vào hầm lò làm việc sau khi đã kiểm soát khí và thông gió an toàn.
2. Việc phục hồi các đoạn lò sập đổ phải do Quản đốc phân xưởng hoặc người được uỷ quyền trực tiếp chỉ huy theo biện pháp đã được Giám đốc điều hành mỏ duyệt. Người được phân công nhiệm vụ phục hồi các đoạn lò sập đổ phải có kinh nghiệm làm việc trong nghề ít nhất một năm.
3. Ít nhất một lần trong ca, Trưởng ca hoặc người được uỷ quyền phải kiểm tra vị trí làm việc của những người ở xa và khó liên lạc.
4. Cấm vào hay làm việc ở những vị trí lò có nguy cơ mất an toàn đối với người, trừ những người được phân công nhiệm vụ xử lý các nguy cơ mất an toàn đó; Phải đặt rào kín và biển báo “cấm vào” trước các lối vào những vị trí đó.
5. Bất cứ ai làm việc trong hầm lò hay ngoài mặt bằng mỏ đều phải có trách nhiệm áp dụng mọi biện pháp có thể để loại trừ nguy cơ mất an toàn đối với người, công trình mỏ khi phát hiện và báo ngay cho Trưởng ca hoặc bộ phận điều hành chỉ huy sản xuất mỏ.
6. Cấm thực hiện mọi công việc ở bên trong, bên trên các phễu, bunke chứa than, giếng miệng hở không có song chắn đảm bảo an toàn, bên cạnh những vị trí dễ sụt lở hoặc có nguy cơ bị ngã từ trên cao xuống khi không sử dụng dây an toàn.
Điều 16. Quy định về công tác kiểm tra, giám sát kỹ thuật an toàn
1. Trách nhiệm kiểm tra, giám sát kỹ thuật an toàn được quy định như sau:
a) Giám đốc điều hành mỏ một lần trong tháng; Phó Giám đốc an toàn mỏ, Phó Giám đốc Cơ điện mỏ hai lần trong tháng, Trưởng phòng an toàn một lần trong tuần phải kiểm tra kỹ thuật an toàn, đặc biệt đối với các thiết bị, dụng cụ có liên quan đến thùng cũi, skip, giếng mỏ và các công trình xây dựng thuộc miệng giếng.
b) Quản đốc hoặc người được uỷ quyền phải kiểm tra kỹ thuật an toàn ít nhất một lần trong ca ở các khu vực mình quản lý.
c) Trưởng ca phải kiểm tra kỹ thuật an toàn ít nhất 2 lần trong ca.
2. Người chỉ huy sản xuất phải ra lệnh cho mọi người rút lui đến nơi an toàn theo phương án ƯCSC - TKCN và báo cáo ngay cho Phó giám đốc an toàn mỏ và bộ phận điều hành chỉ huy sản xuất khi phát hiện mỏ hay khu vực có nguy cơ mất an toàn đối với người và công trình mỏ. Người chỉ huy sản xuất của mỏ tại thời điểm đó phải nhanh chóng cử đội CH - CN bán chuyên trách của mỏ đến kiểm tra xem xét, xử lý hiện trường, đồng thời thông báo đơn vị CH - CN chuyên trách gần mỏ nhất và báo cáo cho cơ quan quản lý mỏ có thẩm quyền. Trong mọi trường hợp, trước tiên phải thực hiện biện pháp loại trừ các nguy cơ mất an toàn đối với người và ghi chép chính xác về tình trạng mỏ.
3. Chỉ được sản xuất trở lại sau khi sự cố đã được khắc phục và có lệnh của Giám đốc điều hành mỏ.
Điều 17. Quy định về nhật lệnh, giao - nhận ca
1. Trước khi bắt đầu làm việc, Quản đốc hoặc người được uỷ quyền ghi sổ nhật lệnh; Phó quản đốc ghi vào sổ ca lệnh, sổ giao - nhận ca về: Tình trạng vì chống so với hộ chiếu được duyệt, tình trạng chống giữ các gương khấu, đường lò, tình trạng thông gió cũng như các trang thiết bị, các phương tiện kiểm tra khí, chống bụi, chống cháy, các thiết bị bảo vệ, mạng điện, phương tiện thông tin liên lạc, tín hiệu trong phạm vi mình quản lý.
Các mẫu sổ thực hiện theo mẫu số 08, phụ lục VII của Quy chuẩn này.
2. Quản đốc hoặc người được uỷ quyền phải áp dụng ngay các biện pháp khắc phục các nguy cơ mất an toàn được phát hiện trước khi bắt đầu làm việc và trong thời gian làm việc. Nếu không thể khắc phục được các nguy cơ mất an toàn đó, người chỉ huy sản xuất phải tạm đình chỉ công việc, cho người rút lui đến nơi an toàn và thông báo ngay bộ phận điều hành và chỉ huy sản xuất mỏ. Phải đặt rào kín và biển báo “nguy hiểm cấm vào” ở vị trí gần đó.
Điều 18. Quy định về báo cáo sự cố, tai nạn lao động
1. Các trường hợp sự cố, tai nạn lao động có liên quan đến sản xuất của mỏ phải được ghi chép, khai báo, điều tra, đánh giá, thống kê, khắc phục tai nạn, sự cố, tổn thương về người hoặc hư hại tài sản, lưu giữ và báo cáo với cơ quản lý cấp trên theo quy định. Trên cơ sở điều tra, phân tích, phải xác định nguyên nhân tai nạn, sự cố, đưa ra các biện pháp khắc phục và phòng ngừa để tránh xảy ra các tai nạn tương tự.
2. Định kỳ 6 tháng và một năm, các tổ chức, cá nhân có hoạt động khai thác than hầm lò phải lập báo cáo Bộ Công Thương (Cục Kỹ thuật an toàn và Môi trường công nghiệp) về việc thực hiện chương trình, biện pháp quản lý kỹ thuật an toàn đã được thực hiện, tình hình tai nạn, sự cố. Trong báo cáo, phải đánh giá hiệu quả công tác quản lý kỹ thuật an toàn và các biện pháp phòng ngừa để tránh xảy ra sự cố, tai nạn lao động.
CÔNG TÁC MỎ
Điều 19. Quy định chung về lối thoát trong hầm lò
1. Mỏ hầm lò đang sản xuất phải có ít nhất hai lối thoát riêng biệt thông ra mặt đất để đi lại hoặc vận chuyển người; Mỗi mức khai thác phải có ít nhất hai lối thoát thông lên mức trên để đi lại hoặc vận chuyển người; Các lối lên mặt đất phải làm cách nhau ít nhất là 30m. Trên các đường lò đi tới lối thoát dự phòng ra khỏi mỏ, cũng như ở các điểm giao nhau của các đường lò phải có biển chỉ dẫn hướng đi tới lò thoát ra mặt đất. Các biển chỉ dẫn phải được phủ chất phản quang để dễ nhận biết và đặt cách nhau tối đa là 200m.
2. Đối với các giếng đào gần nhau khi đào sâu đến tầng thiết kế thì phải đào các lò nối các giếng với nhau, sau đó lắp đặt thiết bị nâng, thùng cũi cố định theo quy định. Việc đào các lò khác phải theo trình tự của thiết kế.
3. Đối với các giếng đào xa nhau (các giếng thông gió đặt ở xa giếng chính), phải lắp đặt thùng cũi cố định hoặc tạm thời có kèm theo cơ cấu phanh dù và lắp đặt thiết bị thoát nước trước khi đào lò tạo lối thoát thứ hai.
4. Khi mở mức khai thác mới bằng một giếng hoặc bằng những lò ngầm, trước tiên phải đào các lò để đảm bảo mức khai thác mới có hai lối thoát ra mặt đất hoặc thông với mức trên và được thông gió theo hạ áp chung của mỏ.
5. Các giếng đứng dùng làm lối thoát lên mặt đất phải được trang bị các thiết bị nâng (một trong các thiết bị đó phải là thùng cũi) và có ngăn đặt thang trèo bộ. Đối với giếng có hệ thống thiết bị nâng được cấp điện từ nguồn độc lập, đảm bảo cho người ở các mức, các khu khai thác có thể theo giếng ra ngoài mặt đất thì không phải bố trí ngăn thang trèo bộ. Đối với giếng có chiều sâu đến 70m nếu có thang trèo bộ có thể không cần thiết bị nâng ở giếng đó.
6. Ngoài hai lối thoát theo quy định tại khoản 1 Điều này, các lối thoát khác không thường xuyên sử dụng phải có tay vịn, bậc đi lại (nếu là lò nghiêng), thang trèo bộ hoặc thiết bị nâng (nếu là lò đứng).
7. Các lò đều phải được trang bị tín hiệu bảo vệ nối với trung tâm điều khiển hoặc được bảo vệ bằng cửa có khóa đảm bảo mở dễ dàng từ bên trong.
8. Khi đào lò ngầm hay lò thượng trung tâm phải đào lò dùng cho người đi lại song song với lò ngầm hay lò thượng đó trừ trường hợp lò ngầm hay lò thượng trung tâm tiếp giáp với lò thượng của gương khấu theo hướng dốc từ trên xuống hoặc từ dưới lên.
9. Phải có kết cấu rót than, đất đá (bun ke, máng rót ...) vào thiết bị vận tải và lối ngăn đảm bảo an toàn cho người đi lại tại các sàn nhận than phía dưới và trung gian của các giếng nghiêng, lò ngầm, lò thượng vận chuyển. Phải có cầu vượt hoặc lò vòng để người đi qua những vị trí giao nhau giữa giếng nghiêng, lò ngầm, lò thượng vận chuyển với các lò trung gian.
10. Lò ngầm và lò thượng vận chuyển bằng máng cào, băng tải, đường ống hoặc máng trượt phải có lối riêng cho người đi lại theo quy định tại Điều 20 của Quy chuẩn này. Khi các đường lò trên có một hay nhiều lối thoát ra tầng, mức khác, không bắt buộc phải có lò vòng cho người đi lại.
Điều 20. Quy định về kích thước lối người đi lại
1. Lối dùng cho người đi lại trong các đường lò nghiêng phải có bậc và tay vịn đấu vào vì chống thành lò, có kích thước tối thiểu trong khung chống với chiều rộng là 0,7m và chiều cao là 1,8m.
2. Trong giếng đứng hoặc lò nghiêng có góc dốc từ 45o đến 90o phải bố trí ngăn đặt thang trèo bộ. Thang trèo bộ được đặt với góc nghiêng tối đa là 80o và nhô qua sàn ngang 1m. Các sàn ngang được gắn chặt vào vì chống giếng đứng hoặc lò nghiêng và bố trí cách nhau tối đa là 8m.
2. Kích thước tối thiểu lỗ chui thang trèo bộ qua sàn ngang là 0,7m x 0,6m. Lỗ chui ở sàn ngang trên cùng phải được đóng bằng cửa kín chắc chắn.
3. Kích thước của thang trèo bộ được quy định như sau: Chiều rộng tối thiểu là 0,6m, khoảng cách giữa các bậc thang tối đa là 0,4m. Khoảng cách giữa vì chống và chân thang tối thiểu là 0,6m.
4. Khi hai lối thoát từ trong hầm lò là các giếng nghiêng, thì một trong hai giếng nghiêng đó phải được trang bị cơ giới hoá vận chuyển người và có lối cho người đi bộ với kích thước tối thiểu trong khung chống: Chiều rộng là 0,7m và chiều cao là 1,8m. Yêu cầu trên cũng được áp dụng với các lò nghiêng khác được trang bị phương tiện cơ giới chở người bằng goòng chuyên dùng.
Điều 21. Lối thoát khi mở mức khai thác mới
Đối với mỏ đang sản xuất, khi mở thêm một mức mới bằng một giếng đứng và một hoặc hai lò nghiêng nối thông mức mới với mức đang khai thác, phải thực hiện theo quy định tại Điều 20 của Quy chuẩn này.
Điều 22. Lối thoát từ gương lò chợ
1. Mỗi gương lò chợ phải có hai lối thoát thông suốt: Một lối lên lò thông gió và một lối xuống lò vận chuyển. Khi gương lò chợ không thể bố trí được hai lối thoát, thiết kế phải được cơ quan quản lý mỏ có thẩm quyền phê duyệt.
2. Khi khai thác các vỉa dốc nghiêng, dốc đứng, than từ gương lò chợ tự chảy xuống lò vận chuyển, phải có ít nhất một lối thoát lên lò thông gió và hai lối thoát xuống lò vận chuyển không dùng để vận chuyển than xuống. Lối thoát này phải bố trí ở phía trước theo tiến độ dịch chuyển của gương lò chợ.
3. Bố trí lối thoát dự phòng xuống lò vận chuyển về phía không gian đã khai thác khi khấu than bằng combai ở các vỉa dốc nghiêng, dốc đứng không để lại chân khay lưu than.
4. Mỗi gương khấu được thông gió nối tiếp phải có lối thoát qua lò trung gian dẫn vào lò, người đi lại được đào suốt chiều cao tầng khai thác.
5. Mỗi gương khấu theo hướng dốc (từ trên xuống hoặc từ dưới lên) ở khu vực vỉa có nguy cơ bục nước hoặc bùn sét phải có lối thoát lên mức khai thác trên.
Điều 23. Quy định chung về đào chống lò
1. Các lò phải được chống kịp thời phù hợp với thiết kế và hộ chiếu được duyệt. Cấm tiến hành các công việc mỏ khi không có hộ chiếu được duyệt cũng như làm sai hộ chiếu.
2. Trong thời gian một ngày - đêm phải xem xét, điều chỉnh hộ chiếu khai thác, hộ chiếu đào chống các lò cho phù hợp với điều kiện địa chất mỏ và sản xuất thay đổi; Khi xem xét điều chỉnh hộ chiếu, phải thực hiện các biện pháp bổ sung về kỹ thuật an toàn và ghi vào sổ nhật lệnh sản xuất.
3. Trước khi bắt đầu công việc, Quản đốc phải hướng dẫn cho người lao động về nội dung hộ chiếu và những thay đổi được ghi trong đó. Người lao động sau khi được hướng dẫn, phải ký nhận vào sổ nhật lệnh sản xuất.
4. Khi lò đào trong đá cứng và bền vững (độ kiên cố f lớn hơn hoặc bằng 7), liền khối không bị ảnh hưởng của việc khai thác (trừ những vị trí lò giao nhau), có thể không cần chống, nhưng phải được thể hiện trong hộ chiếu.
5. Các đường lò đào trong than nhất thiết phải được chống giữ, trừ các thượng tháo than đào bằng máy khoan và không có người đi lại.
Chi tiết việc lập hộ chiếu thực hiện theo Phụ lục I của Quy chuẩn này.
6. Việc nối thông các lò với nhau (hoặc thông ra mặt đất) phải được thực hiện theo thiết kế riêng do Giám đốc điều hành mỏ duyệt.
Điều 24. Kích thước, tiết diện các đường lò
1. Tiết diện của các lò bằng, lò nghiêng phải được xác định bằng tính toán theo các yếu tố: Tốc độ gió cho phép, kích thước thiết bị vận chuyển với khoảng hở nhỏ nhất cho phép, độ lún của vì chống do tác dụng của áp lực mỏ trong quá trình sử dụng.
2. Tiết diện tối thiểu trong khung chống của các đường lò
a) Lò vận tải và thông gió chính cũng như lò dùng để cơ giới vận chuyển người: Là 9m2 và chiều cao là 1,8m tính từ đỉnh ray đến vì chống hoặc thiết bị đặt ở nóc lò;
b) Lò thông gió khu vực, lò trung gian, lò đặt băng tải (hoặc máng cào) lò vận chuyển bằng tàu điện ắc quy, lò thượng và lò ngầm của khu vực: Là 6m2 và chiều cao là 1,8m;
c) Các lò nối, họng sáo và các cúp khác là 1,5m2;
d) Các lò chịu ảnh hưởng của khai thác và lò đi lại không cơ giới: Là 4,5m2 và chiều cao là 1,8m.
Điều 25. Quy định về lối người đi lại trong các đường lò
1. Chiều rộng lối người đi lại trong các đường lò, khoảng cách giữa các thiết bị vận tải và vì chống cũng như giữa các thiết bị vận tải với nhau được quy định ở Bảng II.1.
2. Kích thước tối thiểu lối người đi lại trong khung chống phải được duy trì dọc theo đường lò: Chiều rộng là 0,7m và chiều cao là 1,8m tính từ nền lò. Lối người đi lại phải được đặt ở một bên dọc theo chiều dài hông lò. Trường hợp đặc biệt, nếu có các biện pháp an toàn bổ sung được Giám đốc điều hành mỏ duyệt có thể bố trí lối người đi lại ở hai phía hông lò khác nhau.
3. Cấm bố trí lối người đi lại ở giữa hai đường xe tại những đoạn lò sau:
a) Lò hai đường xe thuộc sân ga giếng của mức vận tải và thông gió của mỏ đang xây dựng và cải tạo;
b) Vị trí dồn dịch, bốc dỡ thiết bị, vật liệu từ phương tiện vận chuyển này sang phương tiện vận chuyển khác của lò hai đường xe;
c) Vị trí móc và tháo móc goòng, ở vị trí bốc dỡ có công suất từ 1000T/ngày - đêm trở lên.
4. Đối với lò một đường xe thuộc sân giếng có sử dụng thùng cũi, phải để lối người đi lại rộng tối thiểu là 0,7m ở cả hai bên hông lò.
5. Cho phép trang bị hệ thống monoray truyền động bằng đầu tàu diezel, lắp đặt trên nóc các đường lò dốc thoải để vận chuyển người, thiết bị nhưng phải bảo đảm các khoảng cách cần thiết ghi ở Bảng II.1 và phải có biện pháp an toàn bổ sung được cơ quan quản lý mỏ có thẩm quyền phê duyệt.
Bảng II.1 Khoảng cách quy định tối thiểu giữa các thiết bị vận tải và vì chống, giữa các thiết bị vận tải với nhau trong đường lò
|
Đường Lò |
Hình thức vận tải |
Sắp đặt khoảng cách |
Kích thước nhỏ nhất (m) |
Ghi chú |
|
|
Lối người đi lại |
Khoảng hở |
||||
|
1. Lò bằng |
Đường ray |
Khoảng cách giữa vì chống hoặc thiết bị và đường ống đặt trong lò với mép ngoài cùng đoàn tàu di động |
0,7 |
0,25
0,20 |
Khung chống bằng gỗ, kim loại, bê tông cốt thép và bê tông. Bê tông, bê tông cốt thép liền khối và xây đá |
|
2. Lò bằng |
Băng tải và đường ray |
- Khoảng cách giữa vì chống và đoàn tàu di động. - Giữa vì chống và băng tải. - Giữa băng tải và đoàn tàu di động. |
0,7 |
-
0.4
0.4 |
|
|
3. Lò bằng, lò nghiêng |
Đường ray |
Ở vị trí người xuống khỏi toa xe chở người |
1,0 |
|
Từ toa xe chở người xuống về cả 2 phía để lối đi rộng 1m |
|
4. Lò bằng, lò nghiêng |
Băng tải |
- Giữa vì chống và băng tải |
0,7 |
0,4 |
Khoảng cách từ phần trên băng tải đến xà vì chống không nhỏ hơn 0,5m và ở các đầu tăng và dẫn động không nhỏ hơn 0,6m. |
|
5. Lò bằng, lò nghiêng |
mono-ray |
- Giữa vì chống và mép ngoài cùng đoàn tàu di động hoặc hàng vận chuyển với tốc độ của monoray đến 1m/s. - Giữa đáy thùng hoặc mép dưới của hàng di chuyển và nền lò hoặc thiết bị đặt ở nền lò. |
0,7
- |
0,2
0,4
|
Với tốc độ lớn hơn 1m/s chiều rộng lối người đi và khoảng hở phải được tăng lên tương ứng là 0,85 và 0,3m. |
|
6. Lò bằng, lò nghiêng |
Băng tải và mono-ray |
- Giữa vì chống và đoàn tàu di động - Giữa vì chống và băng tải - Giữa băng và đoàn tàu di động |
0,7 |
-
0,4
0,4 |
|
|
7. Lò Nghiêng |
Băng tải và đường ray |
- Giữa vì chống và băng - Giữa băng tải và đoàn tầu di động - Giữa đoàn tàu di động và vì chống |
0,7 |
-
0,4
0,2 ¸ 0,25 |
- Khi đào các đường lò này, lối người đi lại đặt về phía đoàn tàu di động. - Tuỳ theo loại vì chống. |
|
8. Lò Nghiêng |
Đường cáp có ghế ngồi. |
Giữa vì chống hoặc phần nhô ra của thiết bị và đường cáp có ghế. |
|
0,6 |
Khoảng cách phải được đảm bảo ở chiều cao kẹp treo. |
|
9. Lò Nghiêng |
Đường cáp có ghế ngồi và băng tải |
Giữa đường cáp có ghế ngồi và băng tải. |
|
1,0 |
|
Điều 26. Đào, chống các đường lò bằng và lò nghiêng
1. Khoảng cách giữa vì chống cố định cuối cùng đến gương lò chuẩn bị tối đa là 3m và phải được quy định trong hộ chiếu. Khi đất đá nóc lò không bền vững, có thể giảm khoảng cách này nhưng phải được quy định trong hộ chiếu. Ba hoặc bốn vì chống cố định cuối cùng gần gương phải được giằng, liên kết văng với nhau và được chèn chắc chắn bằng các tấm chèn.
2. Khoảng không gian từ vì chống cố định cuối cùng đến gương lò phải được chống vì tạm. Việc thay thế vì chống tạm bằng vì chống cố định được thực hiện theo hộ chiếu. Các công việc bốc xúc đất đá, than sau khi nổ mìn, dựng vì chống cố định phải được thực hiện dưới vì chống tạm có kết cấu đảm bảo an toàn.
3. Trước khi bắt đầu chu kỳ đào lò mới, khoảng cách từ vì chống cố định cuối cùng đến gương lò không được lớn hơn một bước chống. Trường hợp đào trong đất đá bền vững (độ kiên cố f ≥7), cho phép lớn hơn một bước chống nhưng không lớn hơn hai bước chống.
4. Trong điều kiện đất đá ổn định, cho phép sử dụng vì neo chống cố định theo thiết kế được cơ quan quản lý mỏ có thẩm quyền phê duyệt.
5. Phải lấp đầy các khoảng rỗng sau vì chống bằng đá hoặc vật liệu chèn chống cháy.
6. Trường hợp dừng đào lò trong thời gian lâu hơn một ngày - đêm, phải có biện pháp đề phòng tụt lở gương lò và tích tụ khí trong lò.
7. Đối với lò đào trong than và đá có cắt đá hông, cho phép mặt gương than tiến trước gương đá với khoảng cách tối đa là 5m.
8. Trường hợp lò đào trong than bằng phương pháp gương rộng, khi chiều rộng của phần gương mở thêm lớn hơn 5m, phải tạo ra một lò thông với lò dọc vỉa (lò đầu hoặc lò chân của lò chợ) dùng làm lối thoát dự phòng và thông gió.
9. Khi gương lò chuẩn bị tiến sau gương lò chợ, tốc độ tiến gương lò chuẩn bị không được chậm sau gương lò chợ quá 5m nếu gương lò chợ chống bằng cột chống đơn chiếc; 8m khi sử dụng vì chống cơ giới; 11m khi khấu than bằng máy bào.
10. Phải sử dụng vì chống bảo vệ đi trước hoặc các phương pháp đặc biệt khi lò đào trong vùng đất đá kém bền vững (bùng nền, cát chảy, sụt lở), .
11. Các lò sử dụng để vận chuyển than, đá hoặc vật liệu chèn bằng phương pháp tự chảy xuống mức vận tải phải được chia ra làm hai ngăn: Một ngăn để vận chuyển, một ngăn dành cho lối người đi lại phải đảm bảo kích thước quy định tại khoản 1 Điều 25 của Quy chuẩn này. Kích thước ngăn vận chuyển do hộ chiếu quy định.
12. Người làm việc trong những lò nghiêng khi đào mới, đào sâu thêm hoặc sửa chữa phải được bảo vệ an toàn đề phòng goòng hoặc những dụng cụ khác rơi từ trên xuống ít nhất bằng hai lần barie chắn bảo vệ. Kết cấu và vị trí đặt barie chắn bảo vệ do Giám đốc điều hành mỏ phê duyệt.
1. Việc đào và chống giếng đứng phải được thực hiện theo thiết kế.
2. Khoảng cách từ vì chống hoặc mép dưới của cốp pha đến gương giếng và đất đá sau nổ mìn được quy định theo thiết kế; Đối với đất đá mềm yếu, kém bền vững, khoảng cách đó tối đa là 1,5m và thiết kế phải đề cập các biện pháp an toàn bổ sung ngăn ngừa đất đá tụt lở.
3. Khi đồng thời có nhiều đơn vị thi công đào và trang bị giếng, đơn vị nhận thầu chính phải cùng với các đơn vị nhận thầu khác xây dựng lịch biểu thi công, các biện pháp kỹ thuật an toàn và vệ sinh lao động trình cơ quan quản lý mỏ có thẩm quyền phê duyệt. Chủ thầu chính có trách nhiệm kiểm tra thực hiện các biện pháp nêu trên, các đơn vị khác chịu trách nhiệm thực hiện an toàn các công việc do đơn vị đó đảm nhiệm.
4. Những người thực hiện công tác đào, chống và lắp đặt các trang bị giếng phải hiểu và biết phát các tín hiệu quy định.
5. Phải chỉ định người chịu trách nhiệm phát tín hiệu và theo dõi việc nhận, bốc dỡ, di chuyển thùng ở gương trong thời gian thùng chở đá và các vật liệu di chuyển lên - xuống qua lỗ sàn công tác.
6. Cấm tiến hành các công việc trang bị giếng và di chuyển sàn công tác khi không có dây bảo hiểm.
7. Trước khi lắp đặt cổ giếng tại cốt ± 0, miệng giếng phải được bảo vệ bằng hàng rào lưới thép cao 2,5m, có cửa để người qua lại. Sau khi xây dựng xong cổ giếng, đề phòng vật rơi từ trên xuống gương, nơi mọi người làm việc, tại cốt ± 0, miệng giếng phải được che chắn bằng tấm đậy kết cấu vững chắc, chống cháy có cửa mở ra về hai phía phục vụ thi công. Sàn cốt ± 0 bố trí thiết bị công nghệ phải được chiếu sáng theo tiêu chuẩn quy định.
8. Chỉ được phép mở vị trí thùng đi qua và chỉ mở vào lúc cho thùng qua khi đưa đá lên bằng thùng chở đá.
9. Những lỗ trên sàn bố trí thiết bị công nghệ thuộc tháp giếng phải có ống loe với kích thước chiều cao phía trên sàn tối thiểu là 1600mm và ở phía dưới sàn tối thiểu là 300mm.
10. Trong thời gian đào giếng, phải có sàn bảo vệ ở phía trên đề phòng các vật rơi từ trên xuống người làm việc ở gương.
11. Giếng đào sâu thêm phải được cách ly với phần giếng đang hoạt động ở mức đang khai thác bằng cơ cấu bảo vệ (sàn giếng hoặc trụ bảo vệ) được tính cho các trường hợp sau:
a) Khi máy nâng thùng cũi nhiều cáp với số lượng đầu cáp lớn hơn hoặc bằng 4, phải đề phòng rơi goòng với số lượng goòng phụ thuộc với số tầng của thùng cũi và mỗi goòng được tính tăng thêm 1/2 trọng lượng hàng;
b) Khi máy nâng thùng skip nhiều cáp và số lượng đầu cáp lớn hơn hoặc bằng 4, phải đề phòng rơi khối lượng than (đá) bằng 1/2 trọng lượng hàng trong thùng skip;
c) Đối với các trường hợp còn lại, phải đề phòng rơi thùng nâng có hàng. Trước khi bắt đầu đặt móng khung tháp giếng, phải dùng sàn che giếng. Sàn này được lắp đặt theo thiết kế do cơ quan quản lý mỏ có thẩm quyền phê duyệt.
13. Cấm người có mặt ở gương giếng khi đào sâu thêm trong trường hợp thay, kẹp lại cáp hoặc thay thùng nâng.
14. Khi tiến hành đồng thời các công việc đào giếng và dựng vì chống cố định, từ trên sàn công tác phải thực hiện các quy định sau:
a) Cấm vận hành sàn công tác khi không có quy trình vận hành;
b) Sàn công tác phải có tầng trên để bảo vệ người làm việc trên sàn tránh những vật rơi từ trên xuống và phải được trang bị phương tiện phát tín hiệu âm thanh khi cho thùng xuống gương;
c) Khe hở giữa sàn công tác và vì chống giếng, giữa sàn công tác với cốp pha hoặc tấm chắn bảo vệ tối đa là 120mm tính từ gờ ngoài của thanh cong và trong khi làm việc khe hở phải được che kín. Khi đào giếng theo sơ đồ hỗn hợp, khe hở giữa sàn công tác và vì chống giếng tối đa là 400mm và trên tất cả các tầng của sàn phải có tấm lưới bảo vệ có chiều cao ít nhất là 1400mm bao quanh chu vi sàn. Phần bảo vệ dưới sàn công tác phải được che kín bằng lớp tôn chiều cao ít nhất 300mm;
d) Sàn công tác dùng để đào giếng phải có khe hở để người chịu trách nhiệm cho thùng và hàng qua ống loe nhìn thấy tình hình ở gương và thiết bị bố trí ở bên dưới sàn. Lỗ đặt ống loe giữa các tầng của sàn công tác phải được che bằng lưới kim loại 40mm x 40mm. Bên dưới ống loe ở vị trí tiếp giáp lưới với sàn công tác phải được che kín với chiều cao ít nhất 300mm. Chiều cao ống loe bên trên tầng trên của sàn công tác tối thiểu là 1600mm;
e) Các công việc di chuyển sàn công tác, sàn bảo vệ, cốp pha kim loại, ống dẫn, cáp điện phải được tiến hành theo các biện pháp quy định trong hộ chiếu đào chống giếng được duyệt và phải do Trưởng ca chỉ đạo thực hiện.
Để thực hiện các công việc trên phải điều khiển bằng tín hiệu theo sơ đồ sau: Sàn công tác - mặt bằng cốt ± 0 - trạm điều khiển tời trung tâm.
15. Khi di chuyển sàn công tác, tấm chắn bảo vệ, cốp pha kim loại, đường ống, cáp điện, cấm các hành vi sau:
a) Đồng thời phát tín hiệu máy nâng và tời;
b) Tiến hành các công việc khác ở gương giếng và trên sàn công tác;
c) Di chuyển thiết bị đào giếng, khi nó bị lệch so với vị trí bình thường;
d) Người đứng trên cốp pha khi cốp pha di chuyển.
16. Chỉ được phép tiếp tục các công việc đào giếng hoặc đào sâu thêm giếng sau khi di chuyển sàn công tác, tấm chắn bảo vệ, cốp-pha kim loại và cáp điện trong những điều kiện sau:
a) Tại đồng hồ chỉ dẫn chiều sâu và ở mép tang máy nâng đã được đánh dấu vị trí mới của sàn công tác;
b) Kiểm tra đảm bảo chắc chắn hệ thống đường ống và cáp điện trong giếng cũng như quan sát các khe hở theo quy định của Quy chuẩn này;
c) Các tời đã được hãm phanh, các cơ cấu dừng bánh cóc được đưa về vị trí làm việc, các tời được cắt nguồn điện, cắt nguồn khí nén và đóng khoá nhà tời.
17. Phải sử dụng các dụng cụ nâng cáp (dây cáp, dầm ngang, quai treo) đã được kiểm định đạt yêu cầu.
18. Cấm các máy nâng và các tời đào giếng hoạt động khi đưa lên hoặc hạ xuống bằng cáp các vật có chiều dài hoặc kích thước phi tiêu chuẩn (đường ống, thiết bị).
19. Cấm vận chuyển vật liệu bằng thùng chở đá treo vào dây cáp cũng như móc các vật vào dây cáp khi cửa gió tháp giếng mở. Cấm giao nhiệm vụ cho một người vừa thao tác thùng chở đá và vật liệu đi qua ống loe của sàn công tác vừa nhận thùng có tải trên sàn.
20. Phải chèn đá và phun bê tông lấp đầy khe hở giữa vì chống và đất đá thành giếng khi tiến hành dựng vì chống cố định. Cấm chèn các khe hở đó bằng gỗ và vật liệu dễ cháy khác.
21. Cấm thực hiện mọi công việc ở gương giếng trong thời gian tháo hoặc móc các ống mềm dẫn bê tông. Phải định vị các ống mềm dẫn bê tông bằng cáp thép liền dọc theo suốt chiều dài đường ống.
22. Việc lắp đặt khung giếng phải được thực hiện bằng các sàn công tác đặc biệt cũng như các trang bị khác có kết cấu đảm bảo an toàn cho người làm việc trong giếng. Phải có biện pháp che chắn giếng,đặc biệt khi thực hiện các công việc lắp đặt khung giếng đồng thời với lắp đặt tháp giếng hoặc thiết bị trong giếng.
23. Khi lắp đặt khung giếng, cấm sử dụng thùng chở người để vận chuyển đất đá, vật liệu và cấu kiện của khung giếng từ trên xuống mà thùng này không có cơ cấu treo chuyên dùng đã được kiểm định.
24. Khi tiến hành công việc xây dựng vỏ chống giếng, cấm các hành vi sau:
a) Để ngập nước cục bộ giếng nếu không có sự đồng ý của cơ quan quản lý mỏ có thẩm quyền;
b) Sử dụng sàn nhỏ treo làm thùng nâng.
25. Việc tháo dỡ sàn ở giếng đào sâu thêm phải tiến hành theo thiết kế đặc biệt và phải dùng vì chống tạm thời. Thiết kế này phải được Cơ quan quản lý mỏ có thẩm quyền duyệt.
Điều 28. Quy định chung
1. Cho phép thử nghiệm các hệ thống khai thác mới hoặc cải tiến hệ thống khai thác cũ, nhưng phải tuân theo thiết kế được cơ quan quản lý mỏ có thẩm quyền phê duyệt.
2. Cấm tiến hành khai thác đồng thời quá hai tầng kế tiếp nhau. Khi cần thiết phải khai thác quá hai tầng kế tiếp nhau hoặc khấu buồng, thiết kế phải có các biện pháp đảm bảo an toàn bổ sung được cơ quan quản lý mỏ có thẩm quyền phê duyệt.
3. Cấm sử dụng phương pháp khấu buồng tận thu các trụ bảo vệ cũng như khai thác cục bộ ở tầng trên.
4. Đối với mỏ hầm lò có khí và bụi nổ, phải khai thác theo trình tự từ trên xuống. Sau khi kết thúc khai thác, những tầng khai thác có khả năng gây ra nguy hiểm về khí và bụi nổ phải được cách ly với các khu vực đang hoạt động hoặc phải được thông gió. Trong trường hợp này, luồng gió phải được tách ra khỏi các lò chợ và các lò có người qua lại.
5. Trường hợp dừng gương khấu lâu hơn một ngày - đêm, phải có biện pháp phòng ngừa các hiện tượng tích tụ khí, ngập nước hoặc đá vách tụt đổ vào không gian gương khấu. Giám đốc điều hành mỏ cho phép gương khấu hoạt động trở lại sau khi đã có kết quả kiểm tra đảm bảo an toàn.
6. Trong quá trình khai thác, phải tiến hành kiểm tra tình trạng của đá vách và gương khấu bằng cách quan sát và gõ; Khi có hiện tượng tụt lở đá vách, lở gương hoặc trượt trụ vỉa dốc, phải dọn bỏ lớp đá bở rời và chống tăng cường.
7. Các công việc khấu than và chống giữ gương khấu kể từ lò thượng cắt đến bước sập đổ đầu tiên của đá vách phải được thực hiện theo các biện pháp quy định trong hộ chiếu khấu - chống và điều khiển đá vách. Quản đốc phân xưởng phải chỉ huy trực tiếp việc phá hoả ban đầu đá vách dưới sự chỉ đạo của Giám đốc điều hành mỏ.
8. Cấm người đứng phía dưới máy khi khấu than bằng máy combai trong các trường hợp sau:
a) Combai luồng rộng đang di chuyển từ trên xuống ở vỉa có góc dốc lớn hơn 20o;
b) Combai luồng hẹp đang khắu gương hoặc di chuyển dọc gương theo hướng từ trên xuống ở các vỉa có góc dốc lớn hơn 35o, trừ trường hợp vì chống cơ giới có bộ phận ngăn đá và than rơi vào vị trí người làm việc.
9. Đối với các sơ đồ công nghệ khai thác để lại trụ bảo vệ lò vận chuyển chính, chỉ được phép đưa than từ gương khấu đến lò nối hoặc lò rót than ở phía trước. Khi gương khấu tiến gần đến giới hạn kỹ thuật, cho phép vận chuyển than từ gương khấu đến lò rót than ở phía sau nhưng phải tuân theo các biện pháp do Giám đốc điều hành mỏ duyệt.
10. Chỉ được phép khấu các trụ than bảo vệ lò thông gió đồng thời với khấu than lò chợ tầng dưới trong trường hợp vỉa than có góc dốc nhỏ hơn 30o và có các lò bao quanh lò chợ. Đối với mỏ không nguy hiểm về khí và bụi nổ, góc dốc vỉa khai thác nhỏ hơn 10o, cho phép khấu các trụ than bảo vệ đồng thời với khấu gương lò chợ không có lò bao quanh.
11. Cấm người di chuyển khi máy bào đang hoạt động ở những vị trí sau đây:
a) Giữa các cột của hàng cột đầu tiên với máng cào hoặc gương lò chợ;
b) Trên khoảng cách nhỏ hơn 1m theo hướng dốc đối với dầm dẫn hướng hoặc các cơ cấu cố định đầu dẫn động;
c) Ở các khám khấu than với khoảng cách nhỏ hơn 1,5m đối với xích kéo của máy bào hoặc cầu máng cào.
1. Phải sử dụng các loại vì chống có đặc tính phù hợp với các điều kiện địa chất mỏ để chống giữ các gương khấu.
2. Trong điều kiện địa chất mỏ phức tạp, cho phép dùng vì chống kim loại đơn chiếc hoặc vì chống gỗ. Các cột chống kim loại đơn chiếc phải cùng một kiểu và cùng đường đặc tính.
3. Đối với lò chợ khai thác bằng cơ giới hoá đồng bộ, chỉ cho phép sử dụng vì chống kim loại đơn chiếc trong khoảng không gian đoạn đầu và cuối của lò chợ và cột chống gỗ ở vị trí có dải đá chèn.
4. Chiều rộng lối người đi trong lò chợ chống bằng vì chống đơn chiếc tối thiểu là 0,7m. Đối với lò chợ cơ giới hoá đồng bộ, kích thước lối người đi phụ thuộc vào kích thước chế tạo của vì chống cơ giới.
5. Khi khai thác theo phương các vỉa than có góc dốc lớn hơn 300 bằng các chân khay có chiều dài lớn hơn 10m và gương thẳng, bắt buộc phải sử dụng tấm chắn bảo vệ gương chân khay. Nếu vận chuyển than bằng phương pháp tự chảy phải đặt cơ cấu giảm tốc, còn ở những vị trí uốn của lò chợ thì đặt tấm chắn. Trưởng ca phải có mặt tại vị trí để xử lý than kẹt ở phỗng, họng sáo, lỗ khoan đường kính lớn khi vận chuyển than bằng tự chảy.
6. Phải dùng xà kiểu công son để chống giữ gương khấu bằng vì chống kim loại đơn chiếc sử dụng combai luồng hẹp hay máy bào. Cho phép sử dụng các loại vì chống khác đảm bảo chống đỡ vách chắc chắn ở khoảng không gian gần gương, đặc biệt là phía sau máy combai ở vị trí uốn của máng cào.
7. Vị trí giao nhau giữa lò chợ với lò vận chuyển và thông gió phải được chống giữ bằng vì chống cơ giới di động hoặc vì chống đặc biệt khác được Giám đốc điều hành mỏ phê duyệt.
8. Đối với các lò chợ cơ giới hoá đồng bộ, phải trang bị tuyến liên lạc đàm thoại với các thiết bị nhận truyền tin bố trí cách nhau không quá 20m dọc theo máng cào cũng như ở các lò đầu và lò chân.
9. Phải bố trí ở gần gương một khối lượng gỗ dự trữ ít nhất cho 1 ca sản xuất khi lò chợ được chống giữ bằng vì chống gỗ.
10. Lò chợ chống bằng vì kim loại đơn chiếc phải đảm bảo các yêu cầu sau:
a) Vì chống phải cùng một loại, có sức chịu tải không đổi và cùng đường đặc tính;
b) Số lượng vì chống dự trữ ở khu khai thác ít nhất là 5%.
11. Đối với gương lò chợ chống bằng vì kim loại, cho phép sử dụng xà gỗ với cột chống kim loại và những cột gỗ dùng để kiểm tra. Trong trường hợp này hộ chiếu khu vực khai thác, hộ chiếu đào và chống lò phải được Giám đốc điều hành mỏ duyệt. Cho phép chống vì gỗ xen lẫn ở vị trí đất đá bị phay phá và ở phần đầu, phần cuối lò chợ có dải đá chèn.
13. Cấm vận chuyển gỗ và vì chống kim loại bằng máng cào, máng trượt.
14. Khi khai thác lò chợ vỉa dốc đứng, phải đảm bảo các yêu cầu sau:
a) Chèn kín nóc lò chợ;
b) Đặt dầm nền dưới chân các cột chống;
c) Trường hợp tuyến gương lò chợ khấu theo phương pháp chân khay, bắt buộc phải chống và chèn ở góc chân khay. Trong một chân khay, cấm khấu than từ dưới lên, làm việc ở chân khay khi không có bộ phận che chắn bảo vệ.
15. Các cột chống thuỷ lực, dàn chống thuỷ lực phải được kiểm định các đặc tính kỹ thuật và độ tin cậy làm việc của chúng theo quy định sau:
a) Khi nhập mới: Kiểm định xác suất không nhỏ hơn 5% số lượng cột của lô nhập;
b) Sau khi sửa chữa: Kiểm định 100%;
c) Ít nhất một lần trong 6 tháng đối với các cột chống thủy lực sử dụng liên tục trong hầm lò. Đối với các cột chống thuỷ lực đến thời hạn kiểm định nhưng đang làm việc không thể thực hiện kiểm định, ngay sau khi kết thúc chu kỳ chống phải được kiểm định;
d) Phải mở sổ theo dõi, quản lý kỹ thuật an toàn cột chống thuỷ lực;
e) Trong quá trình sử dụng, phải kiểm tra áp lực đầu cột chống thuỷ lực;
g) Các cột chống hư hỏng phải được khắc phục, kiểm định trước khi đưa vào sử dụng.
Điều 30. Quy định về phá hoả thường kỳ
1. Trình tự và biện pháp đảm bảo an toàn khi di chuyển vì chống phá hoả đá vách phải được thể hiện trong hộ chiếu khai thác.
2. Việc phá hoả thường kỳ phải được thực hiện dưới sự chỉ huy của Quản đốc phân xưởng hoặc người được uỷ quyền.
3. Khi góc dốc vỉa lớn hơn 150, công tác tháo cột chống phá hoả trong lò chợ chống bằng vì đơn chiếc phải được thực hiện trình tự trong từng đoạn theo hướng từ dưới lên trên. Cấm tiến hành các công việc khác ở dưới vị trí di chuyển vì chống phá hoả ở các vỉa nghiêng, dốc nghiêng và dốc đứng.
4. Người thực hiện công việc phá hoả thường kỳ phải đứng ở vị trí được chống đỡ chắc chắn. Ở hàng cột chống luồng phá hoả, cách 5m để lại một cửa sổ có chiều rộng tối thiểu là 0,7m.
5. Đối với lò chợ chống gỗ có góc dốc nhỏ hơn 150, cùng với việc phá hoả thường kỳ, cho phép đồng thời làm các việc khác với điều kiện người phải đứng xa vị trí phá hoả ít nhất 30m.
6. Số lượng đoạn lò chợ phá hoả thường kỳ phải là ít nhất khi phá hoả thường kỳ không cùng một lúc trên toàn bộ chiều dài lò chợ. Việc tháo bỏ vì chống phá hoả thường kỳ phải được tiến hành tuần tự theo một hướng. Trình tự phá hoả thường kỳ theo từng đoạn hay trên toàn bộ chiều dài lò chợ cũng như thực hiện các công việc an toàn khác được xác định cụ thể theo hộ chiếu khai thác lò chợ.
7. Khi sử dụng vì chống kim loại đơn chiếc và vì chống đặc biệt ở vỉa có độ dốc nhỏ hơn 250, cho phép phá hoả thường kỳ đồng thời với việc khấu gương và làm một số việc khác trong lò chợ ở vị trí cách vị trí phá hoả thường kỳ một khoảng cách do hộ chiếu quy định.
8. Việc thu hồi hoặc phá huỷ các vì chống phá hoả thường kỳ được thực hiện bằng phương pháp cơ giới hoặc nổ mìn.
9. Phải thực hiện phá hoả thường kỳ bằng phương pháp cưỡng bức khi đá vách bị treo quá bước phá hoả thường kỳ theo hộ chiếu quy định; Phương pháp cưỡng bức phải có biện pháp kỹ thuật an toàn bổ sung do Giám đốc điều hành mỏ phê duyệt; Cấm tiến gương khấu khi đá vách chưa sập đổ hoàn toàn.
10. Cấm kết hợp công việc khấu gương với việc phá hoả thường kỳ ở những lò chợ có chiều dài nhỏ hơn 100m chống bằng vì đơn chiếc và vách khó điều khiển.
MỤC 4. QUY ĐỊNH BỔ SUNG KHI KHAI THÁC VỈA DÀY
Điều 31. Quy định chung
1. Đối với những khu vực khai thác vỉa dày, điều khiển đá vách bằng phương pháp phá hỏa toàn phần, trước khi khấu than phải xác định vùng nguy hiểm trên mặt đất, ở đó được rào chắn và treo biển báo đề phòng nguy hiểm. Cấm sử dụng những eo đất giữa hai hố sụt lún gần nhau để làm lối đi. Các vị trí sụt cần phải được đắp bờ bảo vệ và san lấp. Chiều rộng vành đai bảo vệ trong trường hợp trên phải rộng ít nhất 3m và bờ phải thoải.
2. Khi không tìm được hệ thống khai thác an toàn và hiệu quả hơn cho các khu vực vỉa dày có nhiều phay, có thể áp dụng hệ thống khai thác lò phân tầng, buồng cào than và phải được cơ quan quản lý mỏ có thẩm quyền phê duyệt.
3. Đối với các vỉa có góc dốc lớn hơn 30o, áp dụng hệ thống khai thác phân tầng, điều khiển đá vách bằng phương pháp phá hoả toàn phần chỉ được thực hiện theo trình tự từ trên xuống và chỉ ở dưới khoảng đã khai thác của phân tầng trên. Trong trường hợp này, khoảng cách từ gương lò chợ phân tầng dưới đến giới hạn phá hoả của phân tầng trên ít nhất là 15m. Trường hợp đặc biệt phải thể hiện trong hộ chiếu được cơ quan quản lý mỏ có thẩm quyền phê duyệt.
4. Việc phá hoả thường kỳ đá vách hay chèn lò đều phải có lớp ngăn cách khi khai thác các vỉa dày bằng phương pháp chia lớp theo tuần tự từ lớp trên xuống lớp dưới. Trường hợp trong vỉa có lớp đá ngăn cách bền vững, đất đá phá hoả hoặc vật liệu chèn dính kết tốt, có thể không cần làm lớp ngăn cách, nhưng phải được cơ quan quản lý mỏ có thẩm quyền phê duyệt. Gương lò chợ của lớp dưới phải tiến sau và cách giới hạn phá hoả hoặc không gian đã chèn lấp đầy của lò chợ lớp trên ít nhất là 20m. Trường hợp đặc biệt, phải thể hiện trong hộ chiếu được cơ quan quản lý mỏ có thẩm quyền phê duyệt.
Điều 32. Quy định về hệ thống khai thác hỗn hợp dàn dẻo
1. Đối với hệ thống khai thác hỗn hợp dàn dẻo, gương lò chợ lắp dàn lớp trên phải vượt trước gương lò chợ lớp dưới một khoảng cách ít nhất là 20m theo phương, cũng như theo hướng dốc khi khai thác đồng thời. Cấm tiến hành khấu than dưới dàn dẻo khi đá vách trên dàn dẻo chưa sập đổ.
2. Khi khấu than theo lớp dưới dàn dẻo, phải quy định trong hộ chiếu khoảng cách vượt trước của gương lò chợ lớp trên so với gương lò chợ lớp dưới. Hộ chiếu này do Giám đốc điều hành mỏ duyệt.
3. Khoảng cách lộ dàn dẻo trong gương khai thác không được vượt quá 6m. Các lỗ hổng trong dàn dẻo phải được khắc phục kịp thời.
4. Cấm người ở trong các đường lò khai thác dưới dàn dẻo khi tiến hành nổ mìn ở một trong các đường lò khai thác đó.
Điều 33. Quy định về hệ thống khai thác cột dài theo phương
1. Cấm sử dụng hệ thống khai thác cột dài theo phương phá hoả toàn phần sử dụng vì chống cột đơn chiếc với chiều dày khấu của vỉa lớn hơn 3,5m và góc dốc lớn hơn 45o.
2. Đối với vỉa có góc dốc nhỏ hơn 45o và chiều dày đến 4,5m, cho phép khấu toàn bộ chiều dày vỉa, nhưng phải theo thiết kế được cơ quan quản lý mỏ có thẩm quyền phê duyệt.
3. Đối với vỉa có góc dốc nhỏ hơn 45o và chiều dày lớn hơn 4,5m mà áp dụng giá thuỷ lực di động hay dàn chống tự hành có trải lưới thép hạ trần, có thể khấu hết chiều dày vỉa phù hợp với tính năng kỹ thuật của dàn chống theo thiết kế được cơ quan quản lý mỏ có thẩm quyền phê duyệt.
4. Khi khai thác các vỉa dày, điều khiển đá vách bằng phương pháp chèn lò, khoảng không gian gần gương phải được ngăn chắc chắn. Trường hợp góc nghiêng của lò chợ nhỏ hơn góc trượt tự nhiên của vật liệu chèn, cho phép không cần ngăn chắn. Phương pháp điều khiển đá vách bằng chèn lò phải tuân thủ các quy định sau:
a) Cấm người đi lại trong phạm vi không gian lò được chèn ở các vỉa dốc khi đưa vật liệu chèn vào lò;
b) Các họng sáo ở dưới không gian đã khai thác phải được che chắn kín chắc chắn trước khi chèn. Vật liệu chèn nhất thiết phải được tưới nước trước khi dẫn qua đường ống để phun vào không gian đã khai thác;
c) Phải có các biện pháp hạn chế nước trong khối vật liệu chèn tràn vào lối người đi và lối tải than luông lò chợ;
d) Chỉ cho phép chèn lò khi đã có hệ thống tín hiệu hai chiều hoặc điện thoại liên lạc giữa nơi chèn và trạm trộn cung cấp vật liệu chèn.
Điều 34. Quy định về hệ thống khai thác dàn chống cứng
1. Đối với hệ thống khai thác bằng dàn chống cứng, phải đào lò thượng thông gió bám vách vỉa than và được nối với thượng tháo than đầu tiên và thứ hai bằng lò nối (tính từ phía đã khai thác). Để phòng ngừa lò nối bị lấp do tắc than trong thượng tháo than, phải làm các bunke chứa than ở cuối các thượng này. Chiều cao của bunke được chọn sao cho có thể chứa được khối lượng than sau một lần nổ mìn khai thác hạ dàn.
2. Cốt cao của lò thượng thông gió phải cao hơn cốt cao của bunke ít nhất 3m. Lò thượng thông gió phải được chống giữ và đặt thang.
3. Đối với các vỉa có chiều dày đến 5m, cho phép khoan lỗ khoan đường kính lớn thay cho đào lò thượng thông gió.
4. Phải có thang bằng cáp kim loại để cho người vào và ra khỏi dàn chống. Thang được treo vào dàn chống và được thả theo lò thượng tháo than đến lò nối gần nhất nối với lò thượng người đi lại.
5. Lối ra dự phòng dưới dàn chống được bố trí ở lò thượng xuống than gần khu vực đã khai thác. Ở lò này phải trang bị thang treo bằng cáp kim loại treo vào dàn. Thang phải có chiều dài tới được lò trung gian hoặc lò vận chuyển chính. Các phân mảng ở hai đầu của dàn chống phải được giằng bằng hai dây cáp dùng để móc dây đai bảo vệ cho người làm việc dưới dàn.
6. Đối với các vỉa dày và dốc, khai thác bằng hệ thống dàn chống cứng phân mảng hoặc không phân mảng, khi hạ dàn chống phải trang bị các phương tiện đảm bảo an toàn (cáp, thang, lưới). Sau khi lắp xong ít nhất một phân mảng của dàn chống tiếp theo, phải đánh sập nóc trên dàn chống trước đó để tạo ra lớp đệm an toàn có chiều cao không nhỏ hơn chiều dày vỉa.
7. Trường hợp đá vách trên dàn chống chậm sập đổ hoặc bị treo, cần phải đình chỉ hạ dàn và áp dụng các biện pháp chủ động đánh sập đá vách trực tiếp. Trước khi phá hoả đá vách, người dưới dàn phải rút ra vị trí an toàn.
8. Các lò thượng xuống than trong hệ thống dàn chống cứng đều phải được chống giữ (các vỉa than bền vững cho phép không cần chống thượng xuống than). Việc xác định độ bền vững của vỉa than phải theo quy định và phải được xác định khi lập hộ chiếu đào lò thượng.
9. Các điểm giao nhau giữa các lò thượng với lò vận chuyển và lò thông gió cũng như ở các vị trí lắp đặt dàn đều phải được che chắn. Các vị trí lò nối của các lò thượng người đi lại phải có cửa ngăn cách.
10. Miệng các lò thượng xuống than đều phải được che bằng sàn lưới song sắt chắc chắn treo dưới dàn chống. Vị trí tiếp giáp giữa lò thượng xuống than sát với trụ bảo vệ và lò nối cũng phải che bằng lưới sắt sát đến nền. Các lò nối còn lại giữa thượng người đi lại và thượng xuống than đều phải được cách ly.
11. Ở những vị trí giao nhau giữa lò bằng và lò thượng phải có lối người đi lại. Cửa thượng phải được che chắn cẩn thận và ở các cửa thượng không sử dụng phải có sàn che chắc chắn.
12. Việc phục hồi lò thượng xuống than phải tiến hành theo thiết kế với các biện pháp đảm bảo an toàn kèm theo được Giám đốc điều hành mỏ duyệt.
13. Cấm người đi lại trong những lò thượng tháo than khi bị tắc.
Điều 35. Quy định chung
1. Các đường lò đang hoạt động trong thời gian sử dụng phải được kiểm tra, duy trì, sữa chữa đảm bảo ở trạng thái làm việc tốt, phù hợp với các tiêu chuẩn, hộ chiếu và các yêu cầu khác của Quy chuẩn này.
2. Các đường lò bằng, lò nghiêng đang hoạt động phải được kiểm tra xem xét, hàng ca do Trưởng ca, hàng ngày do Quản đốc phân xưởng khai thác và Quản đốc các phân xưởng theo chuyên môn khác thực hiện (việc kiểm tra tình trạng không khí mỏ do Quản đốc Phân xưởng Thông gió thực hiện).
3. Ít nhất một lần trong tháng, Phó giám đốc kỹ thuật an toàn mỏ phải trực tiếp kiểm tra tình trạng vì chống, tình trạng hoạt động thiết bị giếng đứng và giếng nghiêng. Phó giám đốc cơ điện mỏ và Quản đốc phụ trách khu vực hoặc người được uỷ quyền phải kiểm tra vì chống và thiết bị giếng đứng, giếng nghiêng ít nhất một lần trong tuần.
4. Kết quả kiểm tra và những biện pháp khắc phục phải được ghi vào sổ theo dõi kiểm tra giếng.
Chi tiết nội dung thực hiện theo mẫu sổ 13, Phụ lục VII của Quy chuẩn này.
5. Khi phát hiện những hư hỏng ở vì chống hoặc ở đường ray, phải cho dừng ngay việc vận chuyển ở lò đó và chỉ cho phép hoạt động trở lại sau khi đã sửa chữa an toàn.
6. Trưởng ca phải có biện pháp phục hồi ngay vì chống bị hư hỏng hoặc bị nén bật ra. Đối với lò không chống hoặc chống vì neo, phải cậy bỏ những cục đá, than ở hông và nóc lò có thể rơi.
Điều 36. Quy định về sửa chữa các đường lò bằng
1. Nghiêm cấm cùng một lúc tháo quá hai vì chống cũ khi chống xén lại mở rộng tiết diện hoặc thay vì chống cũ. Các vì ở phía trước và phía sau vì chống cũ đều phải được củng cố tạm thời bằng cột bích. Việc chống lại lò phải thực hiện theo hộ chiếu do Giám đốc điều hành mỏ hoặc người được uỷ quyền duyệt. Những người thực hiện công việc này phải được hướng dẫn hộ chiếu.
2. Khi sửa chữa các lò bằng vận chuyển bằng đầu tàu, phải có tín hiệu ánh sáng và biển báo “lò đang sửa chữa” đặt ở cả 2 phía trên chiều dài đường hãm đến vị trí làm việc tối thiểu là 80m. Cấm bỏ tín hiệu và biển báo khi công việc sửa chữa lò chưa xong.
3. Việc sửa chữa sự cố đổ lò trong gương khấu và gương lò chuẩn bị (không phụ thuộc kích thước vị trí đổ) phải được thực hiện theo những biện pháp do Giám đốc điều hành mỏ duyệt.
Điều 37. Quy định về sửa chữa các đường lò nghiêng
1. Cấm người không có nhiệm vụ đi lại trong giếng, lò ngầm, lò thượng trong thời gian sửa chữa các đường lò này.
2. Cấm sửa chữa đồng thời hai vị trí cùng lúc ở những lò có độ dốc trên 180.
3. Phải có trang bị tín hiệu điều khiển giữa người nhận hàng và người điều khiển tời trục khi nâng - hạ vật liệu để sửa chữa giếng, lò ngầm, lò thượng.
4. Chỉ được phép sửa chữa ở những lò nghiêng vận chuyển bằng cáp liên tục khi không có goòng ở cáp. Cho phép sử dụng goòng phục vụ công việc sửa chữa với điều kiện goòng phải móc vào cáp chắc chắn. Trường hợp lò nghiêng vận chuyển bằng cáp không liên tục, phải móc goòng chắc chắn vào sợi cáp kéo.
Điều 38. Quy định về sửa chữa giếng
1. Trong thiết kế sửa chữa giếng phải có các biện pháp sau đây:
a) Có sàn bảo vệ cho giếng ở bên dưới vị trí sửa chữa đề phòng đất đá, vì chống và các dụng cụ có thể rơi xuống giếng;
b) Có sàn che chắn giếng ở phía trên vị trí làm việc với chiều cao không lớn hơn 5m đề phòng các dụng cụ rơi từ trên xuống;
c) Tiến hành các công việc trên sàn cố định hoặc sàn treo phải có thang treo để nối sàn này với sàn của ngăn cầu thang;
d) Những người sửa chữa ở giếng phải đeo dây an toàn.
2. Trưởng ca phải chỉ đạo những người có kinh nghiệm thực hiện các công việc sửa chữa giếng. Trước khi tiến hành công việc sửa chữa giếng, Trưởng ca phải huấn luyện cho mọi người làm quen với điều kiện và phương pháp tiến hành công việc.
3. Chỉ được phép đưa người xuống giếng để thực hiện các công việc sửa chữa giếng sau khi đã thông gió và kiểm tra thành phần không khí phù hợp với các tiêu chuẩn quy định.
MỤC 6. HUỶ BỎ ĐƯỜNG LÒ
Điều 39. Quy định chung.
1. Việc huỷ bỏ đường lò phải tuân thủ về trình tự tạm dừng hoặc đóng cửa mỏ theo quy định.
2. Các đường lò huỷ bỏ có lối thông ra mặt đất (giếng đứng, lỗ khoan đường kính 200mm trở lên) phải được lấp bằng vật liệu không cháy và sau đó phải được phủ bằng bê tông cốt thép.
3. Công việc huỷ bỏ các đường phải thực hiện theo thiết kế do Giám đốc điều hành mỏ duyệt, có tính đến biện pháp cơ giới để thu hồi vì chống.
4. Khi huỷ bỏ các đường lò thông ra mặt đất phải tuân thủ các quy định sau đây:
a) Cửa lò thông ra mặt đất phải xây bịt bằng gạch, đá hoặc bê tông;
b) Phải xây hai tường chắn cách ly bằng gạch, đá hoặc bê tông. Một trong hai tường chắn được bố trí ở chiều sâu không nhỏ hơn 10 lần chiều cao lò, tường chắn thứ 2 xây cách cửa lò 10m;
c) Đoạn lò giữa hai tường chắn và đoạn còn lại đến cửa lò phải được lấp bằng vật liệu không cháy;
d) Tại các cửa lò huỷ bỏ phải có các rãnh thoát nước bao quanh và khi cần thiết phải có biện pháp bổ sung đề phòng các đường lò đang hoạt động bị ngập nước.
e) Các lò huỷ bỏ phải được cập nhật vào bản đồ;
g) Ít nhất 01 lần trong năm, Giám đốc điều hành mỏ phải kiểm tra tình trạng thoát nước tại các cửa lò huỷ bỏ.
4. Đối với các đường lò tạm dừng, phải thực hiện các việc sau:
a) Thông báo cho toàn bộ người lao động khu lò tạm dừng, cấm người không có nhiệm vụ qua lại;
b) Có biện pháp chống giữ, bảo quản đường lò tạm dừng, quy định chế độ thông gió, chế độ kiểm soát khí (cách ly, kiểm tra các loại khí);
c) Trước khi sử dụng lại các đường lò tạm dừng, phải có các biện pháp kỹ thuật an toàn để đưa đường lò vào trạng thái an toàn (về khí, thông gió, thoát nước, tình trạng các vì chống, hệ thống thiết bị điện);
d) Các cửa lò tạm dừng phải được rào kín và biển báo “nguy hiểm cấm vào”.
5. Việc huỷ bỏ các giếng đứng và cách ly với những lò đang hoạt động phải tiến hành theo thiết kế được cơ quan quản lý mỏ có thẩm quyền phê duyệt; việc huỷ bỏ các phỗng, lỗ khoan đường kính lớn do Giám đốc điều hành mỏ duyệt.
6. Quy định về công tác thu hồi vì chống trong các đường lò huỷ bỏ:
a) Cấm thu hồi vì chống ở giếng đứng và các lò nghiêng có góc dốc lớn hơn 30o, trường hợp đặc biệt phải có thiết kế được cơ quan quản lý mỏ có thẩm quyền phê duyệt;
b) Chỉ cho phép những người có bậc thợ 5/6 trở lên, đã được hướng dẫn các biện pháp kỹ thuật an toàn thực hiện công việc thu hồi các vì chống tại những lò bằng và lò nghiêng đến 150 theo hướng lối thoát ra của lò;
c) Chỉ cho phép thu hồi vì chống ở những lò nghiêng từ 150 đến 300 theo hướng từ dưới lên trên dưới sự chỉ đạo trực tiếp của Trưởng ca;
d) Cấm thu hồi vì chống ở những đoạn lò được lấp đầy bằng vật liệu chèn.
Điều 40. Quy định chung
1. Ở xung quanh miệng giếng, giếng gió cũng như các lò đứng và lò nghiêng khác có đặt thiết bị nâng phải được rào chắn cố định về phía không làm việc bằng tường chắn hoặc lưới kim loại cao ít nhất 2,5m. Còn về phía làm việc phải có cửa hoặc cửa song sắt phù hợp với quy định tại khoản 11, Điều 82 của Quy chuẩn này.
2. Vì chống ở miệng giếng, giếng gió và các lò đứng, lò nghiêng không được trang bị thiết bị nâng phải cao hơn mặt đất ít nhất là 1m.
3. Miệng các cửa lò nói trên phải được che bằng cửa kín hoặc cửa song sắt gắn chặt với vì chống và có bản lề chắc chắn.
4. Rốn giếng phải được che chắn đề phòng người rơi xuống. Ở vị trí các lò đứng cắt qua lò bằng phải đào lò vòng để người đi.
5. Cho phép đặt lối đi lại dưới ngăn cầu thang.
6. Để tránh người rơi xuống giếng mù, thượng tháo than và lỗ khoan đường kính lớn có góc nghiêng lớn hơn 25o, vị trí giao nhau giữa các lò trên với lò bằng phải được che chắn cẩn thận.
7. Phía trước cửa ra vào giếng khi nâng thùng chở hàng, ở sân nhận hàng phía trên cũng như phía dưới phải đặt các hàng rào ngăn chắc chắn làm vị trí dựa cho người điều khiển tay gạt và người sử dụng thùng chở hàng. Trường hợp cửa không mở bằng truyền động cơ khí, người vận hành phải đeo dây an toàn.
8. Các ngăn cầu thang của giếng phải được cách ly với các ngăn khác bằng gỗ ván hoặc tấm kim loại về phía bên trong giếng trên suốt chiều dài. Các tấm chắn được ghép liền nhau hoặc so le với khoảng cách không lớn hơn 0,1m.
THÔNG GIÓ HẦM LÒ VÀ CHẾ ĐỘ BỤI, KHÍ
Điều 41. Thành phần và nhiệt độ không khí mỏ
1. Nhiệt độ không khí trong gương khấu, cũng như trong các gương lò khác có người đang làm việc tối đa là 30oC.
2. Hàm lượng ôxy trong không khí mỏ ở các lò có người tối thiểu là 20% (theo thể tích). Hàm lượng khí cacbonic trong không khí mỏ cho phép tối đa được quy định như sau:
a) 0,5% ở những nơi làm việc, ở luồng gió thải của khu khai thác và ở các lò cụt;
b) 0,75% ở luồng gió thải của một cánh, của mức khai thác và của toàn mỏ;
c) 1% khi đào và phục hồi đường lò qua vị trí sụp đổ.
3. Hàm lượng khí hydrô trong các buồng nạp ắc quy tối đa là 0,5%. Không khí trong các lò đang hoạt động không được chứa các khí độc với hàm lượng giới hạn cho phép quy định tại Bảng III.1.
Bảng III.1 Hàm lượng giới hạn cho phép về khí độc trong lò đang hoạt động
Khí độc |
Hàm lượng giới hạn cho phép về khí độc trong lò đang hoạt động |
|
|
% theo thể tích |
mg/m3 |
|
|
Oxit Cácbon (CO) |
0,00170 |
20 |
|
Các Oxit Nitơ (qui đổi theo NO2) |
0,00025 |
5 |
|
Đioxit Nitơ (NO2) |
0,00010 |
2 |
|
Anhidrit Sunfurơ (SO2) |
0,00038 |
10 |
|
Sunfua hydrô (H2S) |
0,00070 |
10 |
4. Hàm lượng khí Mêtan trong không khí mỏ, mức độ nguy hiểm về cháy nổ được quy định tại Điều 51 của Quy chuẩn này.
5. Sau khi nổ mìn và trước khi người lao động vào gương lò làm việc, tổng số hàm lượng các khí độc quy định tại Bảng III.1 qui đổi theo Oxit Cácbon không được vượt quá 0,008% theo thể tích. Việc thông gió làm loãng các khí độc, khí Mêtan đảm bảo hàm lượng không khí mỏ đạt đến giới hạn cho phép thực hiện tối đa 30 phút sau khi nổ mìn.
Ghi chú: Khi tính chuyển đổi một lít Oxitnitơ bằng 6,5 lít Oxitcac bon.
6. Khi thành phần không khí trong lò không đảm bảo quy định tại Điều 41 của Quy chuẩn này, phải dừng các công việc ở lò đó và mọi người phải đến vị trí có luồng gió sạch và phải báo ngay cho bộ phận điều hành và chỉ huy sản xuất mỏ, đồng thời phải có biện pháp để cải thiện chất lượng không khí ở lò đó theo quy định.
7. Phải nhanh chóng dừng mọi hoạt động trong lò, đưa người đến nơi có luồng gió sạch và cắt điện đối với các thiết bị điện khi thiết bị thông gió trung tâm dừng hoạt động hoặc chế độ thông gió bị phá vỡ
8. Khi thiết bị thông gió trung tâm dừng hoạt động trong thời gian lâu hơn 30 phút, Chỉ huy sản xuất phải tổ chức thực hiện đưa mọi người thoát khỏi hầm lò và nhanh chóng khắc phục sự cố. Chỉ được phép tiếp tục trở lại làm việc sau khi đã thông gió và đo khí, đo gió, kiểm tra gương khấu và gương lò cụt đảm bảo an toàn.
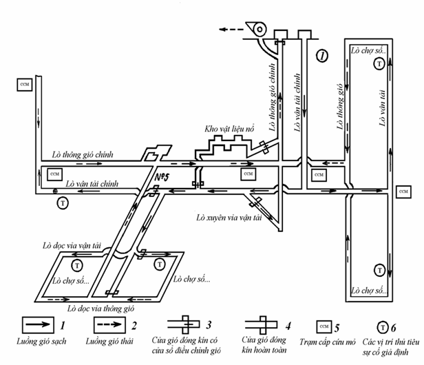
Điều 42. Quy định chung về thông gió mỏ hầm lò
1. Lưu lượng gió cần thiết để thông gió mỏ hầm lò được xác định theo hướng dẫn tại Phụ lục II của Quy chuẩn này về công tác thông gió.
2. Lưu lượng gió thực tế đưa vào hầm lò phải phù hợp với tính toán:
a) Theo yếu tố về số lượng người làm việc đồng thời đông nhất phải đảm bảo tối thiểu là 4m3/phút-người;
b) Theo yếu tố về độ thoát khí Mêtan quy định tại Bảng III.3;
c) Theo yếu tố nổ mìn đảm bảo hàm lượng khí độc sinh ra đạt tiêu chuẩn cho phép quy định tại Bảng III.1;
d) Theo yếu tố bụi sinh ra trong quá trình khấu than và đào lò theo tiêu chuẩn vệ sinh lao động do Bộ Y tế ban hành;
e) Đối với các khu vực, khoáng sàng có sử dụng phương thức vận tải truyền động bằng đầu tàu diezel, phải xác định lưu lượng gió yêu cầu để thông gió cho các khu khai thác theo điều kiện làm việc của đầu tàu diezel.
3. Ngoài tốc độ gió quy định tại Bảng III.2, ở các khu vực khác được quy định như sau:
a) Tốc độ gió trung bình trong luồng gương khấu và ở các gương lò cụt có khí nổ tối thiểu là 0,25m/s;
b) Đối với các mỏ xếp loại III và siêu hạng theo khí Mêtan, tốc độ gió trung bình tối thiểu là 0,5m/s ở các vị trí sau:
- Ở các gương lò cụt đào trong vỉa dày thoải, hoặc vỉa dốc có chiều dày lớn hơn hoặc bằng 2m;
- Ở các gương lò cụt có chiều dài 100m và lớn hơn trong phạm vi cách nóc 10m có vỉa than chứa khí;
c) Tốc độ gió trung bình khi đào, đào sâu thêm giếng đứng, giếng gió, lò cụt không nguy hiểm về khí bụi nổ và ở các gương lò còn lại được thông gió bằng hạ áp chung (trừ các loại buồng, hầm) tối thiểu là 0,15m/s;
d) Tốc độ gió khi tiến hành sửa chữa ở giếng và khi có người đi lại trong ngăn giếng có đặt thang trèo bộ tối đa là 8m/s
Bảng III.2 Tốc độ gió tối đa cho phép trong các đường lò
|
Vị trí trong lò |
Tốc độ gió tối đa cho phép m/s |
|
- Các lỗ khoan thông gió. |
Không hạn chế |
|
- Các giếng và các lỗ khoan thông gió có thiết bị nâng dùng để đưa người lên khi có sự cố, các rãnh gió. |
15 |
|
- Các giếng đưa hàng lên-xuống. |
12 |
|
- Các cầu gió dạng ống và cầu đổi chiều. |
10 |
|
- Các giếng chở người và hàng, lò xuyên vỉa, lò dọc vỉa vận tải và thông gió chính, lò thượng và lò ngầm trung tâm. |
8 |
|
- Các lò khác đào trong than và đá. |
6 |
|
- Luồng gương lò khấu than và lò cụt. |
4 |
Ghi chú:
- Đối với gương khấu sử dụng tổ hợp cơ giới, cho phép tốc độ gió đến 6m/s khi không có người ở khu vực có luồng bụi do combai làm việc gây ra và ở các vỉa có độ ẩm tự nhiên của than cao hơn 8%.
- Khi nhiệt độ không khí mỏ thấp hơn 16oC, tốc độ gió trong các gương khấu than và lò cụt đang hoạt động tối đa là 0,75m/s.
- Trường hợp đặc biệt, cho phép thực hiện sửa chữa giếng với tốc độ gió lớn hơn 8m/s, nhưng phải có các biện pháp an toàn do cơ quan quản lý mỏ có thẩm quyền phê duyệt.
4. Chỉ được phép thực hiện kết hợp thông gió các mỏ độc lập thành một hệ thống thông gió chung theo thiết kế của cơ quan thiết kế mỏ chuyên ngành. Đối với các mỏ đã kết hợp thành một hệ thống thông gió chung, phải theo một kế hoạch thông gió chung do một Phân xưởng thông gió chỉ đạo. Trong các lò nối liền hai mỏ có hệ thống thông gió độc lập nhau phải đặt các tường chắn dầy và chịu lửa.
5. Quy định về chế độ thông gió đối với khu khai thác, đường lò tạm dừng hoạt động:
a) Các khu khai thác và các đường lò tạm dừng hoạt động hoặc tạm thời chưa sử dụng đến đều phải được thông gió. Phải được phép của Giám đốc điều hành mỏ mới thực hiện cách ly các lò nêu trên và trước khi cách ly phải thu hồi hết các thiết bị và cáp điện;
b) Các khu đã khai thác xong phải được cách ly. Việc cách ly các khu khai thác phải thực hiện theo phương án được Giám đốc điều hành mỏ phê duyệt;
c) Việc mở các tường chắn và tháo khí các lò cách ly phải do đơn vị CH-CN chuyên trách thực hiện, phù hợp với những biện pháp được cơ quan quản lý mỏ có thẩm quyền phê duyệt
6. Mọi công việc đang tiến gần đến các đường lò có thể tích tụ khí cháy và độc hại, phải được thực hiện theo thiết kế riêng có các biện pháp phòng ngừa phụt khí do cơ quan quản lý mỏ có thẩm quyền phê duyệt.
7. Sơ đồ thông gió mỏ phải được lập nhằm loại trừ khả năng luồng gió thải tự đảo chiều và nhập vào luồng gió sạch, đồng thời phải đảm bảo các luồng gió không giao nhau, ít cửa và cầu gió.
8. Cấm sử dụng cùng một giếng mỏ hoặc lò khai thông để đồng thời nhận luồng gió sạch vào và đưa luồng gió thải ra, trừ trường hợp trong thời gian đào giếng hoặc đào các đường lò mở vỉa và các lò ở sân ga giếng khi chưa nối thông với giếng khác hoặc nối với lò thông gió.
9. Cấm đưa luồng gió sạch qua vùng sụp đổ cũng như dẫn luồng gió thải từ vị trí sụp đổ vào các hầm trạm đang hoạt động, các lò cụt và gương khấu; trừ trường hợp xử lý sự cố, huỷ bỏ đường lò, cũng như áp dụng các phương pháp tháo khí từ các khu vực đã khai thác bằng các phương tiện thông gió tuân theo các quy định hiện hành.
10. Phải sử dụng quạt cục bộ khi không thể đưa gió sạch vào bằng hạ áp chung của mỏ, .
11. Đối với các mỏ xếp loại III và lớn hơn theo khí Mêtan cũng như đối với các vỉa nguy hiểm về bụi nổ, khi xuất hiện khí độc với hàm lượng bất kỳ đều phải đưa người lao động đến vị trí có luồng gió sạch;
Điều 43. Thông gió gương khấu
1. Mỗi gương khấu phải được thông gió bằng luồng gió sạch riêng biệt.
2. Cho phép thông gió nối tiếp các gương lò chợ (tối đa hai lò chợ) trong cùng một vỉa, một tầng thuộc các vỉa than không nguy hiểm về phụt than và khí bất ngờ. Đối với các mỏ xếp loại III và lớn hơn theo khí Mêtan, phải được phép của cơ quan quản lý mỏ có thẩm quyền mới được thực hiện thông gió nối tiếp.
3. Khi thông gió nối tiếp các gương lò chợ phải tuân theo các điều kiện sau:
a) Tổng chiều dài các gương lò chợ tối đa là 400m;
b) Khoảng cách giữa các lò chợ gần kề nhau tối đa là 300m;
c) Phải bổ sung gió sạch từ lò dọc vỉa trung gian trước khi vào lò chợ được thông gió nối tiếp. Lưu lượng gió bổ sung phải không nhỏ hơn số liệu tính toán với tốc độ gió ở lò trung gian tối thiểu là 0,15m/s. Đối với mỏ có khí Mêtan, lưu lượng gió bổ sung phải đủ để đảm bảo hàm lượng khí Mêtan trong không khí đi vào lò chợ trên tối đa là 0,5%;
4. Phải đưa người lao động đến vị trí có luồng gió sạch khi thực hiện nổ mìn ở lò chợ dưới mà hàm lượng khí độc trong không khí mỏ đi vào lò chợ trên vượt quá 0,008% theo thể tích quy đổi ra Oxit cacbon (CO),
Điều 44. Thông gió các đường lò cụt
1. Thông gió các đường lò cụt phải thực hiện bằng hạ áp chung của mỏ hoặc dùng quạt cục bộ. Phải thực hiện đào các lò song song dùng cho gió đi ra khi đào lò dọc vỉa bằng phương pháp gương hẹp, thông gió bằng hạ áp chung của mỏ. Lò song song được nối với lò chính bằng những cúp nối cách nhau 30m. Khi đào thông cúp nối mới, phải bịt những cúp nối cũ bằng các tường chắn cố định được phủ bên ngoài bằng vật liệu không để không khí lọt qua. Cho phép lắp đặt các tường chắn tạm thời ở cúp nối bằng ván gỗ, chét đất sét. Khi lò chợ đã đi qua, phải thay tường chắn tạm thời bằng tường chắn cố định.
2. Việc thông gió các lò cụt bằng hạ áp chung của mỏ phải được thực hiện nhờ các tường ngăn hoặc đường ống thông gió có chiều dài tối đa là 60m tính từ cúp nối cuối cùng đến gương lò cụt.
3. Khoảng cách từ đầu tường ngăn hoặc đầu ống gió đến gương lò cụt tối đa là 8m đối với mỏ có khí nổ và 12m đối với mỏ không có khí nổ. Ở cuối đường ống gió mềm phải treo một đoạn ống bằng vật liệu cứng chiều dài ít nhất 2m hoặc phải có ít nhất 2 vòng đỡ để đảm bảo tiết diện ống gió ra. Các ống gió phải nối với quạt cục bộ bằng ống kim loại có chiều dài ít nhất là 1m.
4. Cấm đào thêm gương lò cụt mới từ đường lò cụt đang đào khi không đủ điều kiện an toàn. Trường hợp đặc biệt phải được cơ quan quản lý mỏ có thẩm quyền phê duyệt.
5. Các quạt phải làm việc liên tục khi thông gió các đường lò cụt bằng quạt cục bộ; Quạt gió phải do người đã được đào tạo vận hành sử dụng.
6. Trường hợp quạt gió cục bộ dừng hoặc chế độ bị vi phạm, phải dừng mọi công việc ở đoạn lò cụt, cắt điện vào thiết bị, nhanh chóng đưa người ra vị trí có luồng gió sạch và phải đặt biển “cấm vào” ở trước lối vào lò cụt; đối với mỏ không nguy hiểm về khí bụi nổ, cho phép không phải cắt điện vào hệ thống điều khiển máy bơm.
7. Đối với các mỏ xếp loại III và lớn hơn theo khí Mêtan, khi đào các gương lò cụt trong than dài hơn 100m phải trang bị quạt gió cục bộ dự phòng và nguồn điện dự phòng. Các điều kiện cần thiết cho yêu cầu dự phòng đối với từng mỏ do cơ quan quản lý mỏ có thẩm quyền quy định.
8. Việc lắp đặt quạt gió cục bộ phải theo hộ chiếu do Giám đốc điều hành mỏ duyệt theo quy định sau:
a) Quạt gió cục bộ phải đặt ở lò có luồng gió sạch và cách luồng gió thải ít nhất là 10m.
b) Lưu lượng của quạt gió cục bộ không được vượt quá 70% lưu lượng gió qua lò tại vị trí đặt quạt.
c) Cấm đặt quạt gió cục bộ trong lò chợ, trừ trường hợp phải đào lò vòng tránh phay khi lò chợ đã có lối thoát.
d) Khi đặt nhiều quạt trên cùng một lò cách nhau khoảng cách nhỏ hơn 10m, mỗi quạt làm việc với đường ống riêng thì tổng lưu lượng của các quạt phải nhỏ hơn hoặc bằng 70% lưu lượng gió đi qua lò tại vị trí đặt quạt đầu tiên tính theo chiều gió.
e) Khoảng cách giữa các quạt lớn hơn 10m, lưu lượng gió mỗi quạt không lớn hơn 70% lưu lượng gió đi qua lò tại vị trí đặt quạt.
g) Đối với mỏ nguy hiểm về khí nổ, cấm thông gió cho hai và nhiều gương lò cụt bằng một đường ống chia ra các nhánh.
h) Việc đặt quạt gió cục bộ ở lò gió thải được thông gió bằng hạ áp chung phải được phép của Giám đốc điều hành mỏ với điều kiện hàm lượng khí Mêtan nhỏ hơn 0,5% và thành phần không khí tại vị trí đặt quạt phù hợp với quy định tại Điều 41 Quy chuẩn này.
i) Đối với mỏ xếp loại III và lớn hơn theo khí Mêtan, phải kiểm tra hàm lượng khí Mêtan phía trước quạt gió bằng thiết bị đo tự động cố định.
9. Cấm đặt quạt gió cục bộ có động cơ điện ở những đường lò luồng gió thải thuộc các vỉa nguy hiểm phụt than, khí bất ngờ.
10. Tại mỗi vị trí đặt quạt cục bộ phải có bảng ghi:
a) Lưu lượng gió thực tế của lò tại vị trí đặt quạt;
b) Lưu lượng gió thực tế của quạt;
c) Lưu lượng gió thực tế tại gương lò cụt;
d) Chiều dài tối đa cho phép quạt thông gió đoạn lò cụt;
e) Thời gian thông gió sau khi nổ mìn;
g) Ngày và chữ ký của người ghi.
11. Cho phép đặt quạt gió cục bộ chạy bằng năng lượng khí nén khi đào hoặc đánh sập các lò thông gió liền với các gương khấu, nhưng phải tuân thủ các điều kiện sau:
a) Khoảng cách từ vị trí đặt quạt cục bộ đến gương khấu tối đa là 15m tính theo chiều gió;
b) Chiều dài đoạn lò cụt tối đa là 30m;
c) Thành phần không khí mỏ đảm bảo yêu cầu theo Điều 41 của Quy chuẩn này và hàm lượng khí Mêtan ở luồng gió từ đoạn lò cụt đi ra nhỏ hơn 1%;
d) Quạt cục bộ không có khả năng gây cháy khí Mêtan khi cánh va đập với thân quạt.
12. Cấm thông gió các gương lò cụt ở các mỏ có khí nổ bằng phương pháp khuếch tán, trừ các cúp nối có chiều dài nhỏ hơn 6m. cho phép sử dụng thông gió khuếch tán cho các cúp nối có chiều dài đến 10m ở những mỏ không có khí nổ,
Điều 45. Thông gió các buồng nạp ắc quy và kho vật liệu nổ trong hầm lò.
1. Các buồng nạp ắc quy và kho vật liệu nổ trong hầm lò phải được thông gió bằng luồng gió sạch riêng. Cho phép không phải thông gió riêng với điều kiện trong buồng nạp đồng thời nạp nhiều nhất 3 bộ ắc quy tàu điện loại có trọng lượng bám dính dưới 5 tấn hoặc một bộ ắc quy cho tầu điện có trọng lượng bám dính lớn hơn 5 tấn. Các hầm máy ở mỏ nguy hiểm về khí và bụi nổ đều phải được thông gió bằng luồng gió sạch. Hầm sâu đến 6m được phép thông gió bằng khuếch tán. Lối vào hầm phải có kích thước tối thiểu: chiều rộng là 1,5m, chiều cao là 1,8m và đóng bằng cửa lưới thép.
2. Cho phép xây dựng các buồng, hầm đó trong các đường lò có luồng gió thải với hàm lượng khí Mêtan tối đa là 0,5%, nhưng thiết kế phải được cơ quan quản lý mỏ có thẩm quyền phê duyệt,
Điều 46. Thông gió giếng mỏ
1. Các giếng mỏ (giếng gió) phải được thông gió trên toàn bộ chiều sâu trong suốt thời gian xây dựng. Trạm quạt thông gió phải đặt trên mặt đất, cách giếng ít nhất 20m và phải làm việc liên tục.
2. Để thông gió các giếng mỏ, phải dùng đường ống gió bằng vật liệu cứng và ở gương cho phép dùng ống mềm. Khoảng cách từ cuối đường ống gió đến gương giếng được xác định qua tính toán nhưng tối đa là 15m và lúc gầu ngoạm hoạt động tối đa là 20m. Các đường ống gió phải được móc vào cáp hoặc được gắn chặt vào thành giếng.
Bảng III.3 Lưu lượng gió cần thiết theo yếu tố độ thoát khí Mêtan
|
Độ thoát khí Mêtan (m3/T. ngày-đêm) |
Lưu lượng gió cần thiết cho 1T than khai thác trong ngày-đêm (m3/phút) |
|
Dưới 5 Từ 5 đến 10 Từ 10 đến 15 Từ 15 trở lên |
1,00 1,25 1,50 Lưu lượng gió phải tính để đảm bảo hàm lượng khí Mêtan trong luồng gió thải chung của mỏ tối đa là 0,75%, nhưng không được nhỏ hơn 1,5m3/phút cho 1T than khai thác trong ngày-đêm. |
1. Để ngăn ngừa hiện tượng luồng gió đi tắt và đảm bảo đổi chiều gió, phải đặt các cổng gió, cầu gió và tường chắn dầy. Cổng gió phải có kết cấu không cùng một lúc mở cả hai cửa và làm bằng vật liệu không cháy.
2. Các cổng gió đặt trong lò nối các giếng với nhau phải có kết cấu ngăn ngừa sự đi tắt của các luồng gió vào các cánh khai thác, khu khai thác.
3. Các giếng, giếng gió, lò có đặt các thiết bị thông gió và lò dùng để vận chuyển người, vật liệu đều phải có các cổng gió. Mỗi cửa gió trong cổng đều phải có cửa chính và cửa đảo chiều tự mở theo chiều ngược lại.
4. Đối với các cầu gió bằng ống, phải sử dụng các ống có tiết diện tối thiểu là 0,5m2. Các công trình thông gió đều phải được thực hiện theo thiết kế đã được cơ quan quản lý mỏ có thẩm quyền phê duyệt.
5. Quy định về cửa gió
a) Khi lắp đặt các cửa gió, khoảng cách từ vị trí ngoài cùng nhô ra trên đoàn tàu chuyển động đến dầm ngang của cửa tối thiểu là 0,5m (trừ trường hợp lò dùng monoray và đường cáp treo) và đến thanh đứng của cửa tối thiểu là 0,25m.
b) Các cửa chắn có cửa sổ điều chỉnh gió có thể làm bằng gỗ ván. Khi dựng cửa chắn dùng để cách ly luồng gió phải dọn sạch các lớp đất đá lở ra.
c) Khi lắp đặt cửa chắn gió một cánh ở đường lò vận chuyển, phải để lại ở cửa chắn gió một cửa cho người đi lại chiều rộng tối thiểu là 0,7m. Đối với cửa gió đặt trong lò một đường xe mà không có lối đi riêng cho người, khoảng hở giữa thanh đứng và phần nhô ra của đoàn tàu chuyển động phải là 0,7m.
d) Cửa gió phải có cơ cấu đóng mở nhẹ nhàng khi có sự chênh áp suất ở cửa gió từ 50dpa trở lên. Tất cả các cửa gió đều phải tự động đóng và thường xuyên đóng. Ở những lò mật độ vận chuyển lớn hơn 6 chuyến/ca, cửa gió phải tự động đóng mở.
e) Cấm đặt cửa gió ở những khu vực lò nghiêng vận chuyển bằng đường ray, monoray và cáp treo.
g) Trường hợp cửa gió đặt ở khu vực vận chuyển bên dưới, phải có các barie bảo vệ.
h) Các cửa gió và tường chắn khi không cần dùng phải được dỡ bỏ.
I) Trưởng ca thông gió hoặc những người được chỉ định đặc trách về công tác thông gió phải kiểm tra hàng ngày hoạt động của các cửa gió tự động.
6. Chỉ Quản đốc Phân xưởng thông gió hoặc người được uỷ quyền mới được phép thực hiện điều chỉnh các công trình thông gió trong hầm lò theo phương án đã được Giám đốc điều hành mỏ duyệt.
Điều 48. Thiết bị thông gió.
1. Thông gió hầm lò phải được thực hiện bằng các trạm quạt thông gió chính hoạt động liên tục đặt trên mặt đất và quạt cục bộ đặt trong hầm lò.
2. Trường hợp đặc biệt ở những mỏ đang hoạt động, cho phép đặt trạm quạt thông gió phụ trong hầm lò, nhưng phải đảm bảo khả năng đảo chiều luồng gió đi vào mỏ khi cần thiết và phải được cơ quan quản lý mỏ có thẩm quyền cho phép.
3. Trạm quạt thông gió chính phải có ít nhất hai tổ hợp quạt, một trong hai tổ hợp quạt đó dùng để dự phòng. Quạt gió mới hoặc cải tạo lại đều phải cùng kiểu và cùng kích thước. Trường hợp đặc biệt, có thể cho phép khác loại nhưng phải bảo đảm đủ lưu lượng và hạ áp theo yêu cầu thông gió và phải được cơ quan quản lý mỏ có thẩm quyền cho phép theo quy định sau:
a) Đối với những mỏ không nguy hiểm về khí và bụi nổ, cho phép có một tổ hợp thiết bị thông gió chính hoạt động với một động cơ dự phòng.
b) Đối với mỏ xếp loại II và lớn hơn theo Mêtan cũng như khi khai thác các vỉa nguy hiểm phụt khí bất ngờ, trạm quạt thông gió chính phải được cung cấp điện theo hộ loại I có nguồn cấp điện dự phòng 100%.
4. Việc chuyển thiết bị quạt gió sang làm việc theo chế độ đảo chiều gió phải được thực hiện trong khoảng thời gian tối đa là 10 phút. Lưu lượng gió đi vào các lò ở chế độ làm việc đảo chiều phải đảm bảo ít nhất 60% lưu lượng bình thường. Trường hợp lưu lượng gió không đảm bảo 60% phải được cơ quan quản lý mỏ có thẩm quyền cho phép với điều kiện hàm lượng Mêtan ở luồng gió thải chung của mỏ và ở các khu khai thác không vượt quá 1,5% sau khi thông gió theo chế độ đảo chiều liên tục ít nhất hai giờ.
5. Phải có biện pháp đặc biệt phòng ngừa cáu bẩn ở bộ phận tạo dòng của quạt gió, ở rãnh gió và ở cơ cấu đảo chiều gió cũng như phải có biện pháp phòng ngừa đất đá rơi và nước chảy vào bộ phận tạo dòng của quạt gió. Trong rãnh gió không được có các dị vật và phải được dọn sạch bụi. Rãnh gió phải có cổng gió thông ra mặt đất.
6. Trong rãnh gió ở vị trí nối với giếng, giếng gió và phía trước cánh của quạt cần phải đặt lưới bảo vệ cao ít nhất 1,5m. Trường hợp quạt dự phòng không đủ lưu lượng so với quạt chính, Giám đốc điều hành mỏ phải quy định chế độ làm việc của mỏ phù hợp với quạt dự phòng.
Điều 49. Quy định về kiểm tra công tác thông gió
1. Ít nhất một lần trong tháng, Phó giám đốc cơ điện mỏ và Quản đốc Phân xưởng thông gió phải kiểm tra tình trạng làm việc của các cơ cấu đảo chiều và cơ cấu khác của trạm quạt gió. Kết quả kiểm tra phải được ghi vào sổ kiểm tra các thiết bị thông gió và thiết bị đảo chiều gió.
2. Ít nhất hai lần trong một năm vào mùa Hè và mùa Đông hoặc khi thay đổi sơ đồ thông gió và thay quạt gió chính, mỏ hầm lò phải thực hiện đảo chiều gió trong các đường lò theo kế hoạch ƯCSC-TKCN thực hiện theo mục II, Phụ lục II của Quy chuẩn này. Khi đó, trong hầm lò cấm thực hiện các công việc không liên quan đến việc đảo chiều gió. Trong thời gian đảo chiều gió, hàm lượng khí Mêtan ở những vị trí có thể phát sinh cháy không được vượt quá 2%. Việc kiểm tra các cơ cấu đảo chiều và lưu lượng gió phải tiến hành theo lịch và thực hiện theo mẫu sổ 10, Phụ lục VII của Quy chuẩn này.
3. Các thiết bị thông gió phải được kiểm tra, hiệu chỉnh theo các quy định sau:
a) Ít nhất một lần trong một ngày - đêm đối với nhân viên kỹ thuật;
b) Ít nhất một lần một tuần đối với bộ phận chuyên trách thông gió;
c) Ít nhất hai lần trong một tháng đối với Phó giám đốc cơ điện mỏ.
2. Kết quả kiểm tra được ghi vào sổ kiểm tra thiết bị thông gió và thiết bị đảo chiều gió.
Nội dung kiểm tra thực hiện theo mẫu số 10, Phụ lục VII của Quy chuẩn này.
Điều 50. Quy định về điều khiển thiết bị thông gió.
1. Thiết bị thông gió phải được trang bị các thiết bị điều khiển từ xa theo thiết kế. Các thiết bị này phải được đặt ở phòng của bộ phận điều hành và chỉ huy sản xuất mỏ hoặc đặt ở một trong những trạm máy cố định khác có điện thoại liên lạc liên tục. Người trực trạm phải ghi chép tất cả các thông tin đến vào trong sổ nhật ký thông gió.
2. Đối với các thiết bị thông gió không được trang bị các thiết bị điều khiển từ xa phải có người trực vận hành.
3. Trong nhà đặt thiết bị thông gió phải có điện thoại với cabin cách âm liên lạc trực tiếp với tổng đài của mỏ đặt trên mặt đất. Người trực thiết bị thông gió hoặc người trực ở bàn điều khiển có nhiệm vụ ghi vào sổ thống kê hoạt động của thiết bị thông gió.
Chi tiết nội dung thực hiện theo mẫu sổ 11, Phụ lục VII của Quy chuẩn này.
4. Phải có lệnh của Giám đốc điều hành mỏ mới được dừng thiết bị thông gió hoặc thay đổi chế độ làm việc của trạm quạt, trừ những trường hợp có sự cố. Những trường hợp trên, phải thông báo cho Quản đốc Phân xưởng thông gió.
5. Khi trạm quạt gió dừng bất ngờ do hư hỏng hoặc mất điện, người trực trạm quạt gió phải thông báo ngay cho bộ phận điều hành và chỉ huy sản xuất mỏ và bộ phận này phải báo ngay cho Phó giám đốc kỹ thuật an toàn mỏ, Phó giám đốc cơ điện mỏ và Quản đốc Phân xưởng thông gió.
6. Trường hợp tổ hợp quạt gió chính đang làm việc bị dừng mà không thể khởi động tổ hợp quạt dự phòng, phải mở ngay cửa cổng gió bên trên giếng hoặc mở cổng gió ở lò thông gió đặt quạt.
7. Bộ phận điều hành và chỉ huy sản xuất mỏ phải có ngay các biện pháp đảm bảo an toàn cho người ở trong hầm lò khi nhận được thông báo về cắt điện hoặc dừng quạt,
MỤC 2. THÔNG GIÓ MỎ NGUY HIỂM VỀ KHÍ VÀ BỤI NỔ
1. Mỏ hầm lò có khí Mêtan phải được xếp loại theo khí Mêtan quy định tại khoản 2 Điều này.
2. Căn cứ hàm lượng và hình thức khí Mêtan thoát ra trong quá trình khai thác (độ thoát khí Mêtan tương đối), các mỏ hầm lò được xếp thành 5 loại theo quy định tại Bảng III
Bảng III.4 Xếp loại mỏ theo độ thoát khí Mêtan tương đối trong quá trình khai thác
|
Loại mỏ theo khí Mêtan |
Độ thoát khí Mêtan tương đối của mỏ, m3/T- ngày - đêm |
|
I II III Siêu hạng Nguy hiểm phụt khí bất ngờ |
< 5 Từ 5 đến < 10 Từ 10 đến < 15 ≥ 15, những mỏ nguy hiểm xì khí Mỏ hầm lò khai thác các vỉa nguy hiểm phụt than và khí bất ngờ |
3. Đối với mỏ có các khu vực cùng mức đang khai thác và ở mức sâu hơn đang đào lò để chuẩn bị khai thác trong năm, ngoài việc xác định hàm lượng khí Mêtan thoát ra trong quá trình khai thác, phải xác định thêm độ chứa khí Mêtan tự nhiên của vỉa than trong năm đó để so sánh xếp loại mỏ theo mức độ nguy hiểm nhất.
4. Đối với những mỏ, khu vực mới đang chuẩn bị, việc xếp loại mỏ theo khí Mêtan được thực hiện cho từng vỉa căn cứ vào vào độ chứa khí Mêtan tự nhiên được xác định của từng vỉa đó để xếp loại mỏ theo độ chứa khí Mêtan tự nhiên quy định tại Bảng III.5
Bảng III.5 Xếp loại mỏ theo độ chứa khí Mêtan tự nhiên của vỉa than
|
Loại mỏ theo khí Mêtan |
Hàm lượng khí Mêtan trong lỗ khoan lấy mẫu vỉa than % |
Độ chứa khí Mêtan của vỉa than, m3/tấn-khối cháy |
|
I |
1 - 60 |
< 2,5 |
|
II |
60 - 80 |
Từ 2,5 đến < 4,5 |
|
III |
>8,0 |
Từ 4,5 đến < 8 |
|
Siêu hạng |
>8,0 |
>8 |
5. Khi đào giếng, giếng gió hoặc những đường lò mở vỉa, chuẩn bị mà phát hiện khí Mêtan hoặc dự đoán khí Mêtan sẽ thoát ra, phải áp dụng chế độ có khí nổ ở các lò đó.
6. Tính chất nguy hiểm về cháy nổ của mỏ hầm lò được xác định bằng hàm lượng khí Mêtan theo thể tích không khí mỏ và giới hạn nguy hiểm không cho phép được quy định tại Bảng III.6.
Bảng III.6 Hàm lượng khí Mêtan không cho phép theo thể tích không khí mỏ
|
Luồng gió |
Hàm lượng khí Mêtan % không cho phép theo thể tích không khí mỏ |
|
- Luồng gió thải đi ra từ gương khấu hoặc lò cụt, hầm, trạm, khu khai thác. |
Lớn hơn 1 |
|
- Luồng gió thải đi ra từ một cánh, hoặc toàn mỏ. |
Lớn hơn 0,75 |
|
- Luồng gió đi vào khu khai thác, gương khấu, gương lò cụt và hầm, trạm. |
Lớn hơn 0,5 |
|
- Tích tụ khí Mêtan cục bộ ở gương khấu, lò cụt và các lò khác. |
Lớn hơn hoặc bằng 2 |
7. Mọi người phải nhanh chóng ra vị trí có luồng gió sạch khi phát hiện hàm lượng khí Mêtan trong các lò (không kể đến tích tụ cục bộ ở máy khoan, máy combai, máy đánh rạch) lớn hơn quy định tại khoản 6 Điều này. Người chỉ huy phải đặt biển "cấm vào" và cắt điện vào các thiết bị điện, thông báo ngay cho bộ phận điều hành chỉ huy sản xuất mỏ và người Phụ trách thông gió mỏ để có biện pháp giảm hàm lượng khí Mêtan xuống dưới mức qui định. Việc giảm hàm lượng khí Mêtan, phòng ngừa tích tụ khí Mêtan trong đường lò thực hiện theo mục III, Phụ lục III của Quy chuẩn này.
8. Trường hợp hàm lượng khí Mêtan ở gần máy khoan, combai và máy đánh rạch lên đến 2%, phải dừng ngay máy và cắt điện. Trường hợp sau 15 phút tính từ thời điểm phát hiện, hàm lượng khí Mêtan vẫn tăng, phải đưa người ra vị trí có luồng gió sạch. Chỉ cho phép các thiết bị hoạt động trở lại sau khi giảm hàm lượng khí Mêtan xuống dưới 1%.
9. Các thiết bị điện ở trong đường lò có luồng gió thải của lò chợ và các khu khai thác phải đặt chế độ tự động cắt điện ở mức hàm lượng khí Mêtan 1,3%.
10. Đối với những lò dọc vỉa thông gió lò chợ mà phía dưới lò này có xếp dải đá chèn, luồng gió thải từ lò chợ đi lên phải đi qua họng sáo bố trí ở phía trước cách gương lò chợ từ 10m đến 30m. Phải làm tường chắn cách ly các họng sáo này khi không sử dụng.
11. Đối với mỏ nguy hiểm về khí nổ, việc thông gió các lò cụt (trừ các gương lò cụt nối liền với gương khấu), phải đảm bảo không để luồng gió thải từ các gương lò cụt đó đi vào gương khấu hoặc các gương lò cụt khác; Chỉ cho phép thông gió nối tiếp tối đa hai gương lò cụt.
12. Đối với các mỏ hầm lò xếp loại I và loại II theo khí Mêtan, gió thải từ những gương lò cụt không nối liền với gương khấu có thể được đi vào gương khấu hoặc gương lò cụt khác nhưng phải được Giám đốc điều hành mỏ cho phép. Đối với những mỏ xếp loại III và lớn hơn theo khí Mêtan phải được cơ quan quản lý mỏ có thẩm quyền phê duyệt.
13. Khi chuẩn bị mức khai thác mới, có thể đưa luồng gió thải nhập vào luồng gió sạch của mức khai thác đang hoạt động với điều kiện luồng gió thải đó có hàm lượng khí Mêtan tối đa là 0,5% và thành phần không khí mỏ phù hợp với quy định tại Bảng III.1 Điều 41 của Quy chuẩn này và phải được cơ quan quản lý mỏ có thẩm quyền phê duyệt. Khi thực hiện biện pháp giảm khí Mêtan trong các lò ở mức mới, trước đó phải dừng các công việc ở mức đang khai thác, đưa người đến vị trí có luồng gió sạch và cắt điện vào thiết bị điện.
14. Cấm đưa luồng gió thải nhập vào luồng gió sạch của mức khai thác đang hoạt động khi đào lò dọc vỉa than ở mức khai thác mới nguy hiểm về phụt than, khí bất ngờ.
15. Sau mỗi lần quạt gió chính, quạt gió phụ hoặc quạt cục bộ dừng hoạt động, cũng như hệ thống thông gió bị vi phạm, chỉ được phép đóng điện vào thiết bị điện và trở lại làm việc sau khi đã phục hồi chế độ thông gió bình thường; Phải đo khí, đo gió đảm bảo các quy định an toàn tại các vị trí làm việc, các máy điện, các thiết bị, các vị trí cách nơi đặt thiết bị ít nhất 20m và trên toàn bộ các lò gần đấy.
Các yêu cầu nêu trên cũng được áp dụng cho trường hợp sau khi dừng một ca sản xuất, cũng như trường hợp thực hiện các biện pháp làm giảm khí Mêtan ở trong lò.
16. Trường hợp xuất hiện xì khí từ các khe nứt hay lỗ khoan, Giám đốc điều hành mỏ phải báo cáo cho cơ quan quản lý mỏ có thẩm quyền, đồng thời phải lập các biện pháp loại trừ nguy hiểm do hiện tượng xì khí gây ra. Mỗi lần xì khí cần phải được ghi chép vào sổ theo dõi.
Chi tiết nội dung thực hiện theo mẫu sổ 12, Phụ lục VII của Quy chuẩn này.
17. Phải thực hiện tháo khí khi các thiết bị thông gió không đảm bảo làm giảm hàm lượng khí Mêtan trong không khí mỏ xuống giới hạn cho phép. Việc tháo khí phải được dự kiến trong thiết kế xây dựng, cải tạo mỏ, mở vỉa chuẩn bị mức, khu khai thác, hộ chiếu khai thác và hộ chiếu đào chống lò.
Điều 52. Quy định về hướng chuyển động của luồng gió.
1. Đối với mỏ nguy hiểm về khí nổ, hướng chuyển động của luồng gió sạch trong đường lò có góc nghiêng lớn hơn 10o nối liền với gương lò chợ và hành trình tiếp theo của nó phải đi từ dưới lên trên (trừ trường hợp các lò ngắn hơn 30m).
2. Thông gió các đường lò có góc nghiêng lớn hơn 10o nối liền với gương lò chợ theo hướng từ trên xuống phải được phép của cơ quan quản lý mỏ có thẩm quyền. Trong trường hợp này phải bổ sung gió sạch đi theo các lò nối liền với gương lò chợ với các điều kiện sau:
a) Phụ thuộc vào góc dốc và độ chứa khí của vỉa khai thác, tốc độ gió trong gương khấu phải được xác định theo quy định, nhưng tối thiểu là 1m/s;
b) Vật liệu chống lò phải không cháy hoặc khó cháy, trừ vì chống ở các lò nối liền với gương khấu;
c) Trong lò luồng gió thải không có thiết bị điện và cáp điện.
Giá trị góc nghiêng đường lò 100 là giá trị trung bình theo chiều dài đường lò.
3. Khi khai thác các vỉa không nguy hiểm về phụt than và khí bất ngờ bằng gương lò chợ theo hướng từ trên xuống hoặc từ dưới lên, cho phép đặt thiết bị điện và cáp điện trong những đường lò nối liền với gương lò chợ có luồng gió thải đi từ trên xuống với các điều kiện sau:
a) Góc nghiêng lò không vượt quá 15o;
b) Chiều dài nghiêng cột khai thác (chiều cao nghiêng tầng khai thác) tối đa là 1000m và lưu lượng khí Mêtan thoát ra trong khu khai thác tối đa là 5m3/phút;
c) Luồng gió thải ra từ gương lò cụt không nhập vào luồng gió sạch của khu khai thác;
d) Vì chống ở những lò có luồng gió thải chuyển động theo hướng từ trên xuống phải là vật liệu không cháy hoặc khó cháy. Trong các lò nối luồng gió thải với luồng gió sạch phải có ít nhất hai tường chắn chống cháy có cửa bằng kim loại mở được về cả hai phía.
Giá trị góc nghiêng đường lò 150 là giá trị trung bình theo chiều dài đường lò.
Điều 53. Quy định chung
1. Mỗi mỏ hầm lò phải thực hiện các biện pháp tổng hợp để khử bụi trong không khí mỏ. Các biện pháp chống bụi được thể hiện trong bản thiết kế do Giám đốc điều hành mỏ duyệt và phải phù hợp với các quy định của Quy chuẩn này.
2. Trong thiết kế xây dựng mỏ mới, mỏ cải tạo, xây dựng các mức khai thác mới của mỏ đang hoạt động; trong thiết kế mở vỉa chuẩn bị các khu, khoảnh khai thác cũng như các hộ chiếu khai thác, hộ chiếu đào chống các đường lò chuẩn bị đều phải có các biện pháp dập bụi.
3. Các thiết bị mỏ trong quá trình làm việc sinh ra bụi phải có phương tiện dập bụi.
4. Cấm đưa luồng gió sạch vào các giếng mỏ có trang bị trục tải, skip hoặc thùng cũi lật, các giếng nghiêng, lò ngầm, lò thượng đặt băng tải (hoặc máng cào) khi không có phương tiện dập bụi để đảm bảo giảm bụi trong không khí đến giới hạn cho phép theo các quy định của pháp luật và các quy định tại Quy chuẩn này.
5. Mỗi mỏ đều phải đặt đường ống dẫn nước bảo đảm cung cấp nước cho mục đích dập bụi theo đúng quy định hiện hành.
Điều 54. Những yêu cầu bổ sung đối với vỉa nguy hiểm về bụi nổ
1. Mỏ hầm lò được coi là nguy hiểm về nổ bụi khi chất bốc của than trong các vỉa than từ 15% trở lên, cũng như các vỉa than có chất bốc thấp hơn 15% nhưng tính chất nổ bụi đã được các phòng thí nghiệm chuyên ngành khẳng định.
2. Khi khai thác các vỉa nguy hiểm về nổ bụi, phải có các biện pháp phòng ngừa và hạn chế nổ bụi trên cơ sở sử dụng bụi trơ, nước hoặc nước kết hợp bụi trơ.
3. Đối với các mỏ đang xây dựng, cải tạo xếp loại III trở lên theo khí Mêtan và nguy hiểm về phụt khí bất ngờ, phải xây dựng các tường chắn chịu nổ trong những lò nối giữa các giếng nghiêng, lò nghiêng và giữa các lò dọc vỉa chính có các luồng gió khác nhau. Giám đốc điều hành mỏ quyết định thời hạn xây dựng và đưa vào sử dụng các tường chắn chịu nổ. Khi tiến hành công việc nổ mìn phải có biện pháp phòng ngừa nổ bụi.
4. Các vị trí sau đây phải được cách ly bằng các dàn bụi trơ:
a) Các gương khấu;
b) Các gương lò chuẩn bị đào trong than hoặc đào trong than lẫn đá;
c) Các cánh khai thác của mỏ ở mỗi vỉa;
d) Các lò đặt băng tải hoặc máng cào;
e) Các khu vực cháy;
5. Các dàn bụi trơ đặt ở trong lò cách ly có luồng gió vào và ra.
6. Quy định về lắp đặt dàn nước và dàn bụi trơ
a) Để cách ly các cánh khai thác, các dàn bụi trơ được đặt ở các đường lò dọc vỉa vận chuyển và thông gió bên cạnh các lò thượng, lò ngầm, lò xuyên vỉa và các lò khác nối liền với chúng. Để bảo vệ các lò băng tải vận chuyển than dài trên 200m, phải đặt các dàn nước hoặc dàn bụi trơ dọc theo chiều dài lò. Để cách ly các khu vực cháy, các dàn bụi trơ được đặt ở tất cả các lò nối liền với các khu cháy như sau:
- Dàn bụi trơ đặt trong các lò bằng và lò nghiêng có góc dốc đến 18o. Khi góc dốc lớn hơn 18o, phải đặt dàn bụi trơ ở lò bên cạnh trên khoảng cách cho phép ngắn nhất từ vị trí giao nhau của lò này với lò được cách ly.
- Đối với các vỉa than có chất bốc nhỏ hơn 15% không cần phải đặt dàn cách ly các cánh ruộng mỏ ở mỗi vỉa và các lò đặt băng tải hoặc máng cào.
b) Cự ly đặt các dàn bụi trơ và dàn nước tính từ gương khấu, gương lò chuẩn bị và từ vị trí giao nhau giữa lò dọc vỉa thông gió vận tải với lò xuyên vỉa hoặc lò ngầm, lò thượng cũng như từ vị trí có tường chắn cách ly được quy định như sau:
- Từ 60m đến 300m đối với dàn bụi trơ;
- Từ 75m đến 250m đối với dàn nước;
- Khi các dàn bụi trơ và dàn nước đã được đặt cách gương khấu và gương lò chuẩn bị (300m đối với dàn bụi trơ, 250m đối với dàn nước), không cần phải đặt dàn bụi trơ ở lò dọc vỉa thông gió vận tải gần vị trí giao nhau với lò thượng, lò ngầm và xuyên vỉa;
- Tại các lò đặt băng tải, các dàn bụi trơ được đặt cách nhau tối đa là 300m và các dàn nước là 250m.
c) Các lò chuẩn bị có chiều dài lớn hơn 40m đều phải được bảo vệ bằng các dàn bụi trơ tự động lật. Trong khi chưa có dàn bụi trơ tự động lật, cho phép sử dụng các dàn nước phân tán trên chiều dài lò. Khi đó ở đoạn lò độc đạo đặt ít nhất bốn hàng bình chứa nước. Hàng thứ nhất phải đặt cách gương gần nhất 25m và xa nhất 40m.
d) Các đường lò chuẩn bị có chiều dài nhỏ hơn 40m phải được cách ly bằng các dàn bụi trơ đặt ở lò bên cạnh với khoảng cách cho phép ngắn nhất đến vị trí giao nhau 60m đối với dàn bụi trơ và 75m đối với dàn nước.
e) Cấu tạo dàn bụi trơ, cũng như trình tự đặt các dàn bụi trơ trong mạng đường lò phải phù hợp với quy định về thông gió mỏ hầm lò.
7. Khi trong một mỏ đồng thời khai thác các vỉa nguy hiểm và không nguy hiểm về bụi nổ, trên các lò nối liền các vỉa nguy hiểm và không nguy hiểm phải áp dụng biện pháp phòng ngừa nổ bụi than theo các khoản từ 1 đến 6 Điều này.
8. Quản đốc Phân xưởng thông gió hàng quí phải lập lịch biểu thực hiện các biện pháp phòng ngừa nổ bụi than để trình Giám đốc điều hành mỏ phê duyệt. Đơn vị CH - CN chuyên trách phải nhận được lịch biểu này. Căn cứ vào mức độ lắng đọng bụi và kết quả kiểm tra an toàn nổ bụi ở các đường lò để xác định chu kỳ áp dụng các biện pháp phòng ngừa nổ bụi trong các lò.
9. Quy định về công tác kiểm tra an toàn nổ bụi
a) Ít nhất một lần trong ca, Trưởng ca khai thác và thông gió phải kiểm tra an toàn nổ bụi ở các lò.
b) Kết quả kiểm tra phải được ghi vào sổ theo dõi tình trạng chế độ bụi.
c) Kiểm tra an toàn nổ bụi bằng các máy đo và phân tích mẫu trong phòng thí nghiệm.
d) Ít nhất một lần trong quí, đơn vị CH-CN chuyên trách phải thực hiện kiểm tra an toàn nổ bụi ở các mỏ hầm lò.
Điều 55. Kế hoạch thông gió mỏ
1. Phải xây dựng kế hoạch thông gió cùng với kỳ lập kế hoạch sản xuất và thường xuyên điều chỉnh kế hoạch thông gió cho phù hợp với sự biến động của mỏ.
2. Kế hoạch thông gió phải được bổ sung có hệ thống và hàng quý phải điều chỉnh để phù hợp với kế hoạch sản xuất. Quản đốc và cán bộ Phụ trách thông gió của mỏ phải cập nhật kịp thời vào sơ đồ thông gió những thay đổi đã xảy ra trong việc bố trí các công trình thông gió (cửa gió, tường chắn gió, cầu gió...), quạt cục bộ, những thay đổi về hướng các luồng gió, lưu lượng gió cũng như những lò mới đào.
3. Kết quả đo lưu lượng gió trong các đường lò và ở rãnh gió trạm quạt đều phải kịp thời ghi vào sơ đồ thông gió lưu ở Phân xưởng thông gió cũng như ở phòng làm việc của Phó giám đốc kỹ thuật an toàn mỏ và bộ phận điều hành và chỉ huy sản xuất mỏ. Mỗi khi thay đổi mạng thông gió, phải chỉnh lại sơ đồ nối mạng thông gió. Bản đồ thông gió mỏ và kế hoạch ƯCSC-TKCN phải có ở phòng Quản đốc Phân xưởng thông gió và ở phòng làm việc của Phó giám đốc kỹ thuật an toàn mỏ.
4. Trong mỗi lần xây dựng kế hoạt phát triển mỏ, phải tiến hành xác định lại đường đặc tính công tác thực tế của quạt trung tâm, đo hạ áp đường lò và phân tích khí để sử dụng vào tính toán thông gió và lập các biện pháp đảm bảo thông gió mỏ phù hợp.
Hướng dẫn chi tiết việc lập kế hoạch thông gió thực hiện theo Phụ lục II của Quy chuẩn này
Điều 56. Quy định về đo gió, đo khí
1. Để đánh giá chất lượng, sự phân phối không khí trong các lò và để xác định độ thoát khí của mỏ, phải thực hiện kiểm tra định kỳ thành phần không khí mỏ, đo lưu lượng gió ở các luồng gió thải của các gương khấu, lò cụt, khu khai thác và toàn mỏ. Công việc này phải thực hiện ở luồng gió vào khi thông gió nối tiếp các gương lò gần khu vực quạt cục bộ, trong hầm nạp ắc-quy và ở các gương lò cụt. Việc kiểm tra thành phần không khí mỏ, đo lưu lượng gió thực hiện theo Phụ lục III của Quy chuẩn này.
2. Ngoài những vị trí nêu tại khoản 1 Điều này, phải đo lưu lượng gió ở luồng gió chính đi vào mỏ, các nhánh của luồng gió sạch, các gương lò cụt và ở vị trí đặt quạt cục bộ.
3. Công việc kiểm tra và định lượng thành phần không khí phải được thực hiện định kỳ như sau:
a) Một lần trong tháng ở các mỏ không nguy hiểm về khí nổ và mỏ xếp loại I, II theo khí Mêtan;
b) Hai lần trong tháng ở các mỏ xếp loại III theo khí Mêtan, các mỏ có than tự cháy;
c) Ba lần trong tháng ở các mỏ siêu hạng và mỏ nguy hiểm về phụt than và phụt khí bất ngờ.
Các điểm kiểm tra thành phần không khí phải được đo tốc độ gió và nhiệt độ không khí.
4. Lưu lượng gió của quạt cục bộ phải được xác định một lần trong tháng.
5. Ít nhất một lần trong tháng phải kiểm tra thành phần không khí mỏ trong các giếng và ở các gương lò cụt có chiều dài 300m trở lên và kiểm tra sau khi nổ mìn. Kết quả đo phải được ghi vào sổ nhật ký thông gió. Việc kiểm tra thành phần không khí mỏ khi đào giếng theo chế độ có khí nổ phải được thực hiện hai lần trong tháng, còn đối với các giếng khác mỗi tháng một lần. Vị trí cần được kiểm tra cách gương và cách miệng giếng 20m.
6. Đơn vị CH - CN chuyên trách và Quản đốc Phân xưởng thông gió mỏ có trách nhiệm thực hiện việc kiểm tra thành phần không khí, sự phân phối gió trong các đường lò và xác định độ thoát khí Mêtan của mỏ theo các quy định về kiểm tra, đo đạc thành phần không khí mỏ.
7. Việc kiểm tra thành phần không khí mỏ ở vị trí đặt cảm biến của thiết bị đo khí Mêtan tự động phải được tiến hành ít nhất một lần trong tháng.
8. Việc kiểm tra hàm lượng khí Mêtan trong mỏ có khí nổ phải được thực hiện ở tất cả các đường lò có thể thoát hoặc tích tụ khí Mêtan. Vị trí và chu kỳ đo do Quản đốc Phân xưởng thông gió quy định và được Giám đốc điều hành mỏ phê duyệt.
Sổ theo dõi kết quả kiểm tra thông gió thực hiện theo mẫu sổ 9 Phụ lục VII của Quy chuẩn này.
9. Quy định về đo khí
a) Đối với các gương lò cụt, các gương giếng đang hoạt động, các luồng gió thải từ gương lò cụt, gương khấu và khu khai thác của mỏ xếp loại I và II theo khí Mêtan nếu không có máy kiểm tra khí Mêtan tự động, phải đo khí Mêtan ít nhất 2 lần trong ca; Đối với mỏ xếp loại III trở lên, ít nhất 3 lần trong ca và trong đó 1 lần phải đo ở đầu ca. Việc đo hàm lượng khí Mêtan do Trưởng ca tổ chức thực hiện. Đội chuyên trách thông gió mỏ phải tổ chức đo kiểm tra ít nhất một lần trong ca;
b) Trưởng ca thông gió phải tổ chức đo khí Mêtan ít nhất một lần trong ngày - đêm ở luồng gió đi vào gương lò cụt, gương khấu không hoạt động và luồng gió thải từ các gương lò đó đi ra nhập vào luồng gió thải của cánh khai thác hoặc của toàn mỏ;
c) Trong các hầm trạm đặt máy, việc đo khí Mêtan phải thực hiện ít nhất một lần trong ca, việc đo do Trưởng ca tổ chức thực hiện. Đội chuyên trách thông gió mỏ phải tổ chức đo kiểm tra ít nhất một lần trong ngày - đêm;
d) Tại các gương lò cụt, các giếng và khu khai thác có trang bị máy đo khí Mêtan tự động cố định, Phân xưởng thông gió phải tiến hành đo kiểm tra ít nhất một lần trong ngày - đêm. Khi phát hiện sự sai lệch giữa các chỉ số ở các máy đo tự động cố định và xách tay, phải báo ngay cho bộ phận điều hành và chỉ huy sản xuất mỏ giải quyết. Nếu chưa khắc phục được sự sai lệch đó trong ca, phải thực hiện đo khí theo chu kỳ quy định cho những đường lò không được trang bị máy đo tự động;
Việc đo khí Mêtan bằng máy đo tự động thực hiện theo mục II, Phụ lục III của Quy chuẩn này.
10. Việc kiểm tra hàm lượng khí Mêtan khi tiến hành nổ mìn phải được thực hiện theo các quy định của “Quy chuẩn Kỹ thuật quốc gia về an toàn trong bảo quản, vận chuyển, sử dụng và tiểu huỷ vật liệu nổ công nghiệp - QCVN 02/2008/BCT”.
11. Phải đặt trạm đo lưu lượng gió trong các đường lò luồng gió chính. Trong các đường lò khác, phải đo ở những đoạn lò thẳng, sát với thành lò và không có vật chướng ngại. Tại các điểm đo phải có bảng ghi rõ ngày đo, tiết diện đường lò (trạm đo), lượng gió thực tế, lưu lượng gió tính toán và tốc độ luồng gió.
12. Mỗi vị trí làm việc ở gương lò cụt đang hoạt động phải có các máy đo và dụng cụ quy định tại Bảng III.7.
Bảng III.7 Quy định về trang bi máy đo khí Mêtan và khí Cácbonic
|
Loại mỏ |
Loại máy đo và dụng cụ đo |
|||
|
Xách tay - hoạt động thường xuyên |
Xách tay tự động |
Cố định tự động |
||
|
CH4 |
CO2 |
CH4 |
CH4 |
|
|
- Không có khí nổ |
|
+ |
|
|
|
- Loại I |
+ |
+ |
|
|
|
- Loại II |
+* |
+ |
+ |
|
|
- Loại III trở lên |
|
+ |
+ |
+ ** |
Ghi chú: * Khi không có khí Mêtan trong lò.
** Lò có sử dụng năng lượng điện.
13. Đối với các mỏ xếp loại III và siêu hạng theo khí Mêtan cũng như ở các vỉa nguy hiểm về phụt khí bất ngờ, xì khí Mêtan từ các lỗ khoan, khe nứt, việc kiểm tra hàm lượng khí Mêtan ở gần các máy đào lò, máy khấu than, máy đánh rạch được thực hiện bằng các máy đo tự động.
14. Người làm việc ở các gương lò cụt, các gương khấu và đường lò gió thải đều phải được trang bị máy đo khí Mêtan xách tay. Khi điều khiển từ xa combai, máy đánh rạch bằng đường ống khí nén, cho phép kiểm tra hàm lượng khí Mêtan bằng thiết bị tự động cố định hoặc máy đo tự động xách tay. Thiết bị đo khí Mêtan cố định tự động phải tự động cắt nguồn cung cấp điện khi hàm lượng khí Mêtan vượt quá giới hạn cho phép. Các thiết bị này phải được đặt ở vị trí thích hợp theo thiết kế, phù hợp với tính năng hoạt động của nó. Thời hạn mỏ trang bị các máy đo tự động kiểm tra hàm lượng khí Mêtan, máy đo khí Mêtan xách tay và sử dụng máy đo tự động kiểm tra hàm lượng khí Mêtan phải thực hiện theo hướng dẫn tại mục II, Phụ lục III của Quy chuẩn này.
15. Trưởng ca Phân xưởng khai thác và người đo khí của Phân xưởng thông gió phải ghi lên bảng kết quả đo hàm lượng khí Mêtan trong ca sản xuất theo quy định. Ngoài ra, người đo khí cũng phải ghi kết quả đo vào sổ nhật lệnh của Phân xưởng thông gió, sổ đo khí Mêtan và ghi chép về tích tụ khí có chữ ký của Quản đốc Phân xưởng thông gió. Sổ nhật lệnh phải được lưu giữ ít nhất 6 tháng. Trước khi bắt đầu ca tiếp theo, người đo khí Phân xưởng thông gió phải báo cáo kết quả đo cho Quản đốc Phân xưởng thông gió hoặc người được uỷ quyền. Quản đốc Phân xưởng thông gió phải được thông báo về kết quả đo, các chỉ số của các máy đo tự động cố định hàm lượng khí Mêtan đã được xác nhận của Quản đốc khu vực. Các thông tin về khí Mêtan trên phải kịp thời chuyển đến bộ phận điều hành chỉ huy sản xuất mỏ.
16. Các trường hợp sự cố tích tụ khí khi được phát hiện ở các lò đều phải được điều tra. Kết quả điều tra phải được ghi chép vào sổ đo khí Mêtan và tích tụ khí.
17. Các trường hợp bốc cháy khí Mêtan và bụi than phải được điều tra và lập biên bản theo quy định.
Sổ đo khí Mêtan và theo dõi tích tụ khí thực hiện theo mẫu sổ 12, Phụ lục VII của Quy chuẩn này.
18. Ít nhất một lần trong quý phải lập bảng liệt kê các khu vực hầm lò nguy hiểm về tích tụ khí Mêtan thành lớp (chiều dài lớp khí tích tụ lớn hơn 5 lần chiều dày). Việc kiểm tra hiện tượng tích tụ khí Mêtan thành lớp và tích tụ khí Mêtan cục bộ thực hiện theo hướng dẫn tại mục II, Phụ lục III của Quy chuẩn này.
19. Khi khai thác các vỉa than có khả năng tự cháy và đào lò trong khu vực sụp đổ, Trưởng ca phải tổ chức đo hàm lượng khí cacbonic (CO2) ít nhất một lần trong ca. Kết quả đo phải ghi trên bảng. Trường hợp hàm lượng khí CO2 tăng quá mức quy định, phải điều tra nguyên nhân, đề ra các biện pháp xử lý và ghi vào sổ theo dõi khí.
Chi tiết nội dung thực hiện theo mẫu sổ 12, Phụ lục VII của Quy chuẩn này.
20. Tất cả những người làm việc trong hầm lò phải được học cách đo hàm lượng khí Mêtan, khí CO2. Trưởng ca phải tổ chức đo khí Mêtan (CH4) và khí CO2 trước khi tổ chức đưa người vào hầm lò làm việc. Trường hợp phát hiện hàm lượng khí CH4 hoặc CO2 khí vượt quá giới hạn cho phép, phải có biện pháp xử lý để đảm bảo an toàn.
21. Phải sử dụng thiết bị kiểm tra tự động lưu lượng gió khi đào các gương lò cụt sử dụng điện và sử dụng quạt cục bộ (trừ đào các giếng đứng và giếng gió). Đối với các mỏ xếp loại III trở lên theo khí Mêtan, phải có thiết bị tự động kiểm tra sự hoạt động và thiết bị điều khiển từ xa của quạt.
22. Đối với các mỏ nguy hiểm về phụt than, phụt khí bất ngờ, phải kiểm tra từ xa lưu lượng gió thải của các khu vực khai thác bằng trạm đo trung tâm. Thời hạn đưa trạm vào hoạt động do cơ quan quản lý mỏ có thẩm quyền quy định.
Điều 57. Quy định về tổ chức công tác thông gió
1. Tại mỗi mỏ hầm lò phải có Phân xưởng và Phòng chuyên môn làm công tác thông gió.
2. Quản đốc Phân xưởng thông gió và Trưởng phòng chuyên môn làm công tác thông gió phải là kỹ sư mỏ hoặc trung cấp kỹ thuật mỏ đã làm việc ở mỏ hầm lò ít nhất 2 năm. Đối với các mỏ xếp loại III trở lên theo khí CH4, Quản đốc Phân xưởng thông gió và Trưởng phòng chuyên môn phải là kỹ sư ngành khai thác mỏ đã làm việc ở mỏ hầm lò từ 3 năm trở lên.
VẬN TẢI MỎ
Điều 58. Quy định chung về vận chuyển người
1. Để vận chuyển người trong các lò bằng, lò nghiêng phải sử dụng những phương tiện chở người chuyên dùng, phù hợp với thiết kế và chỉ dẫn trong quy trình vận hành của nhà máy chế tạo.
2. Để vận chuyển người trong đoàn tàu chở vật liệu và thiết bị ở lò bằng, cho phép móc vào đoàn tàu một toa xe chở người được bố trí ngay sau đầu tàu và có thiết bị tín hiệu đảm bảo truyền được tín hiệu cho lái tàu. Cấm móc vào toa xe chở người toa sàn có vật liệu và thiết bị cũng như các goòng chở hàng nhô ra ngoài kích thước của goòng.
3. Khi xây dựng và vận hành các đường cáp treo, monoray và đường ray đặt trên nền không rải đá balat, cũng như khi dùng băng tải để vận chuyển người phải tuân theo những quy định hiện hành về an toàn.
4. Cấm các hành vi sau đây:
a) Dùng goòng chở than và đất đá (sau đây gọi tắt là goòng chở hàng) để vận chuyển người trong lò;
b) Vận chuyển trong đoàn tàu có người cùng với các dụng cụ, phụ tùng nhô ra khỏi thành goòng, vật liệu nổ, chất dễ cháy và hoá chất nguy hiểm;
c) Móc các goòng chở hàng vào đoàn tàu vận chuyển người, trừ 1 đến 2 goòng ở cuối đoàn tàu để chở dụng cụ đồ nghề trong lò bằng;
d) Mang các vật cồng kềnh và dài trên đường trong thời gian vận chuyển người;
e) Chở người trên đầu tàu, trong các goòng không được trang bị để chở người, trên toa sàn, trừ trường hợp có vị trí ngồi thứ hai - cho phép người làm công tác thanh tra hoặc tập sự lái tàu được ngồi trên đầu tàu.
5. Cho phép sử dụng cùng một trục tải để vận chuyển người và hàng lên - xuống trong trường hợp phải thay móc nối và thùng trục với điều kiện: móc nối, chốt, khoá không tự tháo rời được trong quá trình vận hành và do nhà máy chế tạo theo thiết kế được cơ quan quản lý mỏ có thẩm quyền phê duyệt.
6. Trong quá trình sử dụng, móc nối, chốt, khoá phải được kiểm định, kiểm tra để đảm bảo an toàn.
7. Móc goòng và cơ cấu móc nối để vận tải bằng cáp vô tận và cáp đầu mút cũng như móc của đầu tàu phải phù hợp với Tiêu chuẩn TCVN 4244 - 2005 - Thiết kế, chế tạo và kiểm tra thiết bị nâng.
8. Hàng ca, trước khi vận chuyển người, thợ lái tàu phải tiến hành kiểm tra các toa xe, đặc biệt phải chú ý đến những cơ cấu nối móc, kẹp cáp, thiết bị tín hiệu, hệ trục bánh goòng và phanh. Kết quả kiểm tra phải được báo cáo cho Trưởng ca để ký cho phép vận chuyển người vào phiếu hành trình của người lái tàu.
9. Hàng tuần, các toa xe chở người phải được Phụ trách cơ điện phân xưởng xem xét, kiểm tra.
10. Kết quả kiểm tra phải ghi vào sổ kiểm tra thiết bị trục tải.
Mẫu sổ và các nội dung kiểm tra, được thực hiện theo mẫu số 1, Phụ lục VII của Quy chuẩn này.
11. Trong lò nghiêng được trang bị trục tải chở người và hàng - người, Giám đốc điều hành mỏ phải quyết định người có trách nhiệm hàng ngày kiểm tra các vì chống và đường ray, đồng thời trước ca chở người lên - xuống phải chạy toa xe không tải một lần dọc theo đường lò. Kết quả kiểm tra phải được ghi vào sổ kiểm tra thiết bị trục tải.
Việc kiểm tra thực hiện theo mẫu sổ 2, Phụ lục VII của Quy chuẩn này.
Điều 59. Vận chuyển người bằng toa xe trong lò bằng
1. Tốc độ vận chuyển người bằng toa xe được quy định như sau:
a) 20km/h - Khi vận chuyển người bằng toa xe chở người;
b) 12km/h - Khi vận chuyển người bằng goòng chở hàng được trang bị để chở người.
2. Phải trình Cơ quan quản lý an toàn Bộ Công Thương thẩm định thiết kế toa xe chở người khi tốc độ vận chuyển vượt quá tốc độ quy định tại khoản 1 Điều này.
Điều 60. Vận chuyển người trong lò nghiêng
1. Đoàn toa xe vận chuyển người phải có người phụ trách ngồi ở toa đầu tiên theo hướng chuyển động, tại vị trí đó phải được trang bị cơ cấu tác động phanh hãm truyền động bằng tay; Các toa xe còn lại phải được trang bị phanh hãm tin cậy tác động tự động ở từng toa xe và tác động bằng tay dừng được đoàn toa xe không xô, giật mạnh khi: tốc độ vận chuyển vượt quá quy định 25%, đứt, tuột cáp hoặc tuột cơ cấu móc nối.
2. Việc vận chuyển người bằng toa xe ở lò nghiêng có góc dốc trên 450, phải áp dụng theo quy định về vận chuyển người trong giếng đứng.
3. Cấm sử dụng đồng thời trong cùng một lò nghiêng các phương tiện khác nhau để chở người lên - xuống và phương tiện vận tải đường sắt để nâng - hạ hàng (đất đá, than, thiết bị, vật liệu).
4. Loại ray, cách lót rải đường ray toa xe chở người phải phù hợp với loại cơ cấu phanh hãm. Đối với các toa xe chở người trong lò hai đường xe, chỉ cho phép người ra vào một bên, các cửa toa xe giữa hai đường xe và phía không sử dụng phải được đóng khoá lại.
5. Cho phép vận chuyển người lên - xuống trong thùng cũi hoặc toa xe chuyên dùng không có phanh dù trong quá trình đào lò, đào sâu và sửa chữa lớn trong lò nghiêng có trang bị vận tải bằng cáp đầu mút. Kết cấu của toa xe chuyên dùng và sơ đồ công nghệ vận chuyển người trong trường hợp này phải được cơ quan quản lý mỏ có thẩm quyền phê duyệt.
6. Trong thời gian sửa chữa các lò vận chuyển người bằng toa xe, cho phép nối móc một goòng hàng vào đoàn toa xe chở người để đưa vật liệu đến và chở đất đá thải đi, với các điều kiện sau đây:
a) Không chở người trong thời gian sửa chữa. Yêu cầu này không áp dụng đối với những người có nhiệm vụ sửa chữa lò đó.
b) Tốc độ của đoàn tàu không được vượt quá 3m/s;
c) Cơ cấu nối móc goòng hàng phải được chế tạo hoặc sửa chữa theo tài liệu kỹ thuật của nhà máy được phép chế tạo toa xe chở người;
d) Tải trọng trên cơ cấu nối móc của toa xe chở người đầu tiên và trên trục tải không được vượt quá giá trị tính toán.
7. Phải thử nghiệm phanh dù theo hướng dẫn vận hành của nhà máy chế tạo trong các trường hợp sau:
a) Lần đầu đưa vào vận hành các toa xe chở người;
b) Ít nhất một lần trong 6 tháng sử dụng.
8. Mỗi đoàn toa xe chở người phải có tín hiệu ánh sáng ở toa xe đầu tiên theo hướng chuyển động của đoàn tàu.
9. Đối với các mỏ đang sản xuất và xây dựng, Giám đốc điều hành mỏ phải quyết định người chịu trách nhiệm việc tổ chức vận chuyển người trong lò nghiêng.
10. Các toa xe chở người phải được nối với nhau bằng các móc kép.
Điều 61. Quy định chung về vận chuyển hàng bằng goòng
1. Cấm đưa vào làm việc các goòng chở hàng trong các trường hợp sau đây:
a) Hệ trục bánh goòng bị trục trặc (bi rơ rão, các bulông và chốt bắt giữ bị thiếu, trục bánh cong, có vết nứt trên trục, bánh goòng bị sứt mẻ sâu);
b) Các móc nối, quai treo và những phần kéo khác bị hư hỏng cũng như nối móc bị mòn bề mặt quá giới hạn cho phép;
c) Đầu đấm và phanh bị trục trặc;
d) Bộ phận khoá đáy goòng bị hỏng và đáy của goòng đóng không khít;
e) Khung (xát xi) goòng bị biến dạng hoặc hư hỏng;
g) Thùng goòng bị hỏng hoặc lồi ra lớn hơn 50mm so với thành goòng;
2. Cấm các hành vi sau đây:
a) Đẩy các thành phần của đoàn tàu khi goòng chưa được móc nối. Móc trực tiếp vào đầu tàu toa sàn hoặc goòng chở vật liệu kích thước dài, toa sàn và goòng chở gỗ hoặc thiết bị nhô ra khỏi thành goòng (Khi vận chuyển thiết bị và vật liệu có kích thước dài phải sử dụng goòng hoặc toa sàn chuyên dùng được nối với nhau bằng những móc nối cứng có chiều dài tối thiểu là 300mm sao cho những vật liệu dài hoặc thiết bị trên các toa sàn không cản trở đoàn tàu thông qua được những vị trí đường vòng);
b) Móc nối và tháo goòng bằng tay khi tàu chạy (Việc nối và tháo móc goòng có móc khoá phải được thực hiện bằng dụng cụ chuyên dùng);
c) Dùng đầu tàu đẩy đoàn goòng bằng các cột chống, tấm ván gỗ xẻ;
d) Móc và tháo móc goòng ở khoảng cách nhỏ hơn 5m đến cửa gió, quang lật hoặc những chướng ngại khác;
e) Sử dụng các phương tiện cầm tay để hãm hoặc khống chế chuyển động của đoàn tàu.
2. Phải sử dụng các cơ cấu móc nối không tự tháo được khi kéo các goòng, toa sàn bằng cáp vô tận và cáp đầu mút; Trường hợp kéo bằng cáp vô tận trong lò nghiêng có góc dốc lớn hơn 180, phải sử dụng thêm cáp, xích kiểm tra.
3. Móc goòng và cơ cấu móc nối để vận tải bằng cáp vô tận hoặc cáp đầu mút cũng như móc của đầu tàu phải phù hợp với “Thiết kế, chế tạo và kiểm tra thiết bị nâng TCVN 4244 - 2005” và tài liệu kỹ thuật của nhà máy chế tạo.
Điều 62. Vận tải vật liệu trong lò bằng
1. Tại đường dẫn vào quang lật của trạm chất tải cố định, phải sử dụng máy đẩy goòng hoặc tời có khoá liên động để ngăn cản hoạt động đồng thời quang lật và máy đẩy goòng hoặc tời. Việc điều khiển các thiết bị này phải thực hiện từ bảng điều khiển đặt trong các cúp hoặc ở những vị trí đảm bảo an toàn cho người vận hành.
2. Yêu cầu an toàn khi đẩy goòng bằng tay trong hầm lò:
a) Phải treo đèn sáng ở thành ngoài phía trước của goòng hoặc các loại tín hiệu nhận biết khác được Giám đốc điều hành mỏ duyệt;
b) Khoảng cách giữa các goòng khi bốc xếp bằng tay tối thiểu là 10m trên đường có độ dốc đến 0,005 và 30m trên đường có độ dốc lớn hơn 0,005. Cấm đẩy goòng bằng tay trên đường có độ dốc từ 0,01 trở lên;
c) Người đẩy goòng phải liên tục bám sát goòng. Cấm để goòng tự chạy khi không có người theo sát. Mỗi goòng phải có một cây chèn tốt để hãm goòng khi cần thiết;
d) Cấm đứng phía trước để kéo hoặc hãm goòng;
e) Cấm trèo lên goòng hay đứng trên đầu đấm kể cả lúc goòng dừng;
g) Khi goòng bị cặm, phải báo ngay cho người đẩy goòng phía sau biết để hãm goòng lại, đồng thời rời goòng và tránh về phía hông lò (phía dành cho người đi lại);
h) Đường ray trong lò phải đặt đúng kỹ thuật, các đầu nối đường ray, tà vẹt không được cập kênh, sứt mẻ, mối nối đường ray phải có đủ bulông. Lò phải được dọn sạch, không được để đất đá, đầu gỗ và các vật cản khác làm vướng lối tránh goòng và lối người đi lại.
Điều 63. Vận tải vật liệu trong lò nghiêng
1. Phải lắp đặt bộ chặn (barie) để bảo vệ người làm việc ở gương lò khi goòng tuột cơ cấu móc nối hoặc đứt cáp kéo.
2. Khi vận chuyển bằng cáp đầu mút:
a) Tại sàn tiếp nhận trên (đầu trục) phải có đoạn đường bằng cho goòng vào và lắp đặt bộ chặn để dừng chuyển động của goòng;
b) Phía trên sàn tiếp nhận dưới (chân trục), phải đặt bộ chặn goòng có cơ cấu giảm chấn.
Cho phép sử dụng bộ chặn loại cứng (không có cơ cấu giảm chấn) trong các lò nghiêng có góc dốc nhỏ hơn 100, thời hạn sử dụng dưới 1,5 năm và số goòng chuyển động tối đa là 2.
c) Cho phép đặt bộ chặn loại cứng ở phía dưới sàn tiếp nhận trên cũng như trong đoạn đường nhánh rẽ vào lò trung gian; Độ bền của bộ chặn phải được xác định qua tính toán.
3. Khi vận tải bằng cáp vô tận, trên đường của các nhánh có tải và không tải, phía dưới sàn tiếp nhận trên và phía trên sàn tiếp nhận dưới cũng như trên và dưới của tất cả các sàn tiếp nhận trung gian phải đặt mỗi nơi hai cóc hãm bảo hiểm: Bộ thứ nhất cách sàn tiếp nhận 5m và bộ thứ hai - cách bộ thứ nhất 5m.
4. Ở sàn tiếp nhận dưới và trung gian, trên những đoạn bằng của lò nghiêng phải làm các cúp tránh để bảo vệ người và đặt các bảng điều khiển và thông tin liên lạc.
5. Trên mỗi đầu tàu cũng như ở khu sân giếng và mặt bằng giao nhận của các lò nghiêng phải có kích hoặc dụng cụ nâng ray, cũng như các dụng cụ để móc, tháo goòng.
6. Cấm người đi lại ở lò nghiêng trong thời gian vận chuyển hàng.
7. Phải đặt bộ chặn bảo hiểm, bảng tín hiệu ánh sáng và những dấu hiệu phòng ngừa trong các lò dọc vỉa trung gian trước các lối vào lò thượng, lò ngầm và giếng nghiêng.
8. Trong thời gian thiết bị trục tải làm việc, cấm người không có trách nhiệm vào nơi tháo, móc goòng và phải treo dấu hiệu phòng ngừa.
Điều 64. Vận chuyển người, vật liệu bằng thùng cũi
1. Việc vận chuyển người lên - xuống trong giếng đứng phải bằng thùng cũi.
2. Cho phép chở người lên - xuống trong thùng cũi lật khi có các phương tiện đảm bảo không thể lật người vào bunke, cũng như lật thùng cũi khi chuyển động trong giếng.
3. Thùng cũi dùng để chở người lên - xuống, ở những mặt ngắn (mặt đầu) phải có cửa hoặc cơ cấu ngăn chắn khác, không cho người rơi ra khỏi thùng cũi.
4. Cửa thùng cũi phải được mở về phía trong và được khoá chắc chắn bằng then bên ngoài. Chiều cao thành trên của cửa hoặc cơ cấu ngăn chắn khác so với nền thùng cũi tối thiểu là 1,2m và của thành dưới tối đa là 0,15m.
5. Dọc hai bên sườn phía trong thùng cũi phải có tay vịn.
6. Các thùng cũi dùng để vận chuyển người lên - xuống, các đối trọng của trục tải chở người, hàng - người phải được trang bị cơ cấu phanh dù để hãm êm và dừng thùng cũi hoặc khi cáp nâng bị đứt. Lò xo truyền động của phanh dù thùng cũi phải được che chắn bằng chụp bảo hiểm.
7. Cho phép không cần phanh dù trong những trường hợp sau
a) Thùng cũi và đối trọng của trục tải với số cáp ≥ 4;
b) Thùng cũi và đối trọng trục tải hai cáp với điều kiện lựa chọn cáp nâng phù hợp với quy định tại Điều 88 và khoản 6 Điều 90 của Quy chuẩn này;
c) Thùng cũi và đối trọng của trục tải sự cố, sửa chữa;
d) Thùng cũi và đối trọng của trục tải các giếng khác không sử dụng để vận chuyển người lên - xuống thường xuyên;
e) Đối trọng của trục tải giếng nghiêng đang vận hành;
g) Đối trọng của trục tải giếng đứng đang vận hành trong điều kiện khoang của thùng cũi và đối trọng được ngăn cách với nhau bằng ray hoặc cáp. Cho phép không có ngăn cách nếu chiều cao của khung đỡ đối trọng lớn hơn hai bước đặt cốt chống khi thanh định hướng đặt cả hai bên và lớn hơn một bước đặt cốt chống khi thanh định hướng đặt một bên. Đối trọng trong trường hợp này phải được trang bị các đế guốc bảo hiểm dài hơn 0,4m với khe hở tăng lên;
h) Chở người lên - xuống trong thùng cũi trong quá trình hoàn thiện các công việc đào, đào sâu thêm và đào lò nối thông gió (trừ khi đào các lò đảm bảo lối ra thứ hai và các giếng khác) hoặc khi sửa chữa lớn giếng đứng.
8. Gia tốc khi hãm thùng cũi không tải bằng phanh dù tối đa là 50m/s2 và tối thiểu là 6m/s2.
9. Việc thử phanh dù phải được thực hiện ít nhất một lần trong 6 tháng, phù hợp với quy trình của từng loại phanh dù.
10. Phanh dù phải được thay mới cùng với thùng cũi, trừ trường hợp phanh dù có cáp hãm phải được thay thế trong thời gian 5 năm kể từ ngày sử dụng.
11. Cho phép kéo dài thời hạn sử dụng của phanh dù có cáp hãm thêm 2 năm. Gia hạn sử dụng phanh dù do cơ quan quản lý mỏ có thẩm quyền quyết định trên cơ sở kết quả thử nghiệm, kiểm tra của máy dò khuyết tật, sự mài mòn của các khớp bản lề không vượt quá tiêu chuẩn của các tiêu chuẩn Việt Nam hiện hành và các thông số của nhà máy chế tạo.
12. Số người chuyên chở đồng thời trong một tầng của thùng cũi được quy định là 5 người/1m2 sàn, trong các thùng trục là 4 người/1m2 sàn và phải được ghi vào bản nội quy vận hành.
Điều 65. Vận chuyển người và hàng bằng thùng trục
1. Thùng trục phải được di chuyển theo các đường dẫn hướng. Cho phép các thùng trục di chuyển không có các đường dẫn hướng ở khoảng cách không quá 20m đến mặt gương đào khi thi công các giếng đứng bằng các tổ hợp thiết bị (máy bốc xúc, gầu ngoạm).
2. Cho phép chở người lên - xuống bằng thùng trục trong thời gian đào giếng, cũng như khi đặt khung giếng với điều kiện trục tải phải được trang bị các cơ cấu khoá liên động.
3. Trong trường hợp khắc phục sự cố hoặc tiến hành công tác sửa chữa giếng, cho phép chở người lên - xuống bằng thùng trục không có các khung dẫn hướng, với điều kiện:
a) Tốc độ chuyển động của thùng trục không được vượt quá 0,3m/s;
b) Khe hở giữa các thành của thùng trục với các kết cấu kim loại trong thành giếng nhô ra phải đảm bảo tối thiểu là 400mm;
c) Trên thùng trục nhất thiết phải có chụp bảo hiểm;
d) Người ra vào thùng trục ở sàn tiếp nhận dưới phải bằng cầu thang gấp chuyên dùng hoặc bậc của thùng trục và chỉ khi cơ cấu dỡ tải đóng kín, thùng trục đã dừng;
e) Người ra vào thùng trục ở các lò và hầm trạm trung gian phải bằng cầu thang kiểu gấp bản lề, còn ra vào ở trên sàn cứng và trên thùng trục chỉ khi mép thùng trục đã dừng ở ngang mức miệng loa hoặc ở ngang mức sàn tầng khi có cửa trong miệng loa.
Điều 66. Cấm
1. Chở người lên - xuống trong thùng skip và trong thùng cũi chuyên dùng chở hàng, trừ khi xem xét, kiểm tra, sửa chữa giếng, đo đạc và các trường hợp sự cố.
2. Chở người lên - xuống trong các thùng cũi đã chất đầy hoặc chất một phần hàng.
3. Sử dụng trục tải chở hàng để chở người lên - xuống, trừ khi đưa người lên khi đào, đào sâu thêm giếng hoặc khi lưu lượng nước chảy vào đe doạ ngập giếng khi dừng máy trục.
4. Chở người lên - xuống trong các thùng trục không có khung dẫn hướng, không có chụp bảo hiểm ở trên để đề phòng vật lạ rơi xuống gây tai nạn.
5. Ngồi hoặc đứng lên mép thùng trục khi lên - xuống.
6. Chất tải đến mức cách mép thành trên của thùng trục 100mm.
7. Sử dụng thùng trục đào giếng không có cơ cấu giữ quang treo ở trạng thái thõng xuống. Chiều cao của các cơ cấu giữ quang treo tối thiểu là 40mm.
8. Thùng trục chở người đi qua miệng loa xuống ngăn dưới, khi dưới miệng loa có thiết bị xúc bốc.
Điều 67. Quy định về công tác quản lý, kiểm tra, sửa chữa giếng
1. Giám đốc điều hành mỏ phải quyết định người có trách nhiệm thực hiện các công việc xem xét, kiểm tra, sửa chữa giếng.
2. Chỉ được phép thực hiện việc xem xét, kiểm tra, sửa chữa giếng ở trên nóc của thùng cũi và thùng skip không tải hoặc của đối trọng đã được trang bị sàn kiểm tra chuyên dùng. Mặt bằng sàn kiểm tra phải có diện tích tối thiểu là 0,6m2 (một trong các kích thước mặt bằng sàn tối thiểu là 0,4m) và hàng rào không thấp hơn 1,2m. Người kiểm tra phải đeo dây an toàn (được thử nghiệm về độ bền 6 tháng một lần) móc cố định vào cáp nâng hoặc các bộ phận của cơ cấu treo thùng trục và phải có chụp bảo vệ cố định tránh các vật rơi ngẫu nhiên.
3. Cho phép sử dụng sàn kiểm tra kiểu bản lề (tháo được) được định vị chắc chắn vào thùng cũi hoặc thùng skip để phục vụ công tác xem xét, kiểm tra, sửa chữa các phần của khung chống và của cốt giếng ở vị trí cách xa thùng trục. Kết cấu của sàn kiểm tra phải được cơ quan quản lý mỏ có thẩm quyền phê duyệt.
4. Đối với những trục tải có đối trọng, cho phép sử dụng tải trọng cân bằng để xem xét, kiểm tra và sửa chữa giếng.
5. Mỗi mỏ phải có người chuyên trách quản lý về kỹ thuật an toàn, tổ chức vận chuyển người và hàng trong giếng do Giám đốc điều hành mỏ bổ nhiệm.
Điều 68. Quy định chung
1. Thiết kế chế tạo phương tiện, thiết bị vận tải mỏ cũng như các phương tiện, thiết bị vận tải mới, nhập ngoại lần đầu được đưa vào sử dụng trong hầm lò phải được Cơ quan quản lý an toàn Bộ Công Thương thẩm định, kiểm tra về kỹ thuật an toàn.
2. Việc sử dụng thiết bị vận tải có truyền động bằng động cơ diezel trong hầm lò phải được cơ quan quản lý an toàn Bộ Công Thương chấp thuận lần đầu đưa vào áp dụng và cơ quan quản lý mỏ có thẩm quyền phê duyệt. Động cơ diezen sử dụng trong hầm lò phải đảm bảo các yêu cầu sau:
a) Được trang bị thiết bị đo, báo hàm lượng khí CH4 và đo nhiệt độ tự động, có cấu tạo phòng nổ phù hợp khi chạy trong các đường lò có khí, bụi nổ;
b) Khí thải của động cơ diezen không làm thay đổi thành phần không khí trong hầm lò được quy định tại Điều 41 của Quy chuẩn này.
3. Trên đường ray nối gara đầu tàu với giếng, phải đặt barie (rào chắn) thường xuyên đóng.
4. Chỉ được phép lắp đặt gara tạm thời trên đoạn đường ray cụt chuyên dùng để sửa chữa đầu tàu ngoài mặt bằng mỏ cách miệng giếng tối thiểu là 30m.
5. Cho phép sử dụng tời có tốc độ 1m/s để dồn dịch và kéo goòng trong lò bằng có độ dốc đến 0,05.
6. Để vận chuyển thiết bị, vật liệu, đất đá thải từ nơi sửa chữa và chống xén trong lò có góc dốc đến 300, có thể sử dụng tời với các điều kiện sau:
a) Đường kính của cáp không được nhỏ hơn 20 lần đường kính của tang, cho phép quấn nhiều lớp cáp trên tang;
b) Tốc độ chuyển dịch trung bình của cáp ở tang quấn không được vượt quá 1,8m/s;
c) Tời phải có hai phanh hãm, một trong hai phanh phải tác động lên tang. Từng phanh phải đảm bảo khi ở trạng thái hãm của bộ truyền động, mômen hãm không nhỏ hơn 2 lần mô men cản tĩnh.
Đối với những tời mới chế tạo cho mục đích sử dụng trên, phanh hãm phải đóng tự động khi mất điện.
7. Tất cả các phương tiện vận chuyển người trong hầm lò, những thiết bị bảo vệ và an toàn (phanh hãm, phanh dù, rào chắn, hãm bảo hiểm) cũng như các cơ cấu nối móc và móc khi chế tạo mới phải theo thiết kế do đơn vị được phép chế tạo lập.
Điều 69. Trang bị đường ray
1. Khổ rộng của đường ray không được lớn hơn 4mm và nhỏ hơn 2mm so với cương cự quy định.
2. Cấm sử dụng đường ray trong trường hợp:
a) Độ mòn của đỉnh ray theo phương thẳng đứng (lớn hơn 12mm đối với ray mã hiệu P24; 16mm đối với ray P33 và 20mm đối với ray P38 hoặc các mã hiệu tương đương) vượt quá giới hạn an toàn cho phép theo quy định hiện hành, cũng như khi mép ngoài bánh xe chạm vào mũ các đinh ốc, khi có những vết nứt dọc và ngang trong ray, tróc vỡ đỉnh ray, bong đế chân ray và các khuyết tật khác có thể làm đoàn tàu trật bánh;
b) Độ lệch của ray so với tim đường tại những vị trí nối lớn hơn 50mm trên chiều dài đường đến 8m.
3. Cấm sử dụng ghi trong trường hợp:
a) Lưỡi ghi định hướng bị chệch, sứt mẻ, cong theo chiều ngang và dọc;
b) Tay ghi bị tách ra;
c) Ghi khi đóng có khe hở lớn hơn 4mm giữa lưỡi ghi và ray khung;
d) Không có định vị các vị trí chuyển dịch ghi bằng chốt định vị hoặc cơ cấu khác;
e) Rãnh để kéo bộ truyền động chuyển ghi để hở.
4. Các bộ truyền động chuyển ghi trên đường ray phải đặt về phía người đi lại đảm bảo khoảng cách tối thiểu là 0,7m từ phần nhô ra nhiều nhất của bộ truyền động đến cạnh của đoàn tàu.
5. Khoảng cách từ bộ truyền động đến vì chống lò phải đảm bảo thuận tiện cho việc lắp đặt, xem xét, kiểm tra và sửa chữa.
6. Khi chiều rộng của lò không đủ, các bộ truyền động chuyển ghi phải đặt trong cúp.
7. Đường ray và trang bị của đường, rãnh, máng thoát nước, các bộ chuyển ghi, tín hiệu và dấu hiệu chỉ đường, các khoảng trống và lối người đi trong lò bằng và lò nghiêng vận tải bằng goòng, cũng như lưới tiếp xúc vận tải bằng đầu tàu điện phải được Quản đốc hoặc người được thay thế (Phụ trách cơ điện phân xưởng) kiểm tra ít nhất một lần trong tháng và Tổ trưởng đường sắt ít nhất hai lần trong tháng. Khi xem xét, kiểm tra phải đo cương cự đường và chênh lệch độ cao giữa các ray.
8. Ít nhất 1 lần trong năm, phải kiểm tra độ mòn của các ray và tiến hành đo trắc dọc các đường ray. Thời gian kiểm tra do Giám đốc điều hành mỏ quyết định. Các kết quả đo trắc dọc phải được Phòng Trắc địa mỏ ghi chép.
9. Phải có sơ đồ vận tải bằng goòng được Giám đốc điều hành mỏ phê duyệt. Trên sơ đồ này phải chỉ rõ: Chiều dài của đường vận tải và các nhánh, sức chứa của các nhánh, các bộ chuyển ghi và những hình thức vận tải bằng goòng trên tất cả các lò.
10. Người lao động và cán bộ kỹ thuật của phân xưởng vận tải hầm lò phải được phổ biến và hiểu biết sơ đồ vận tải trên.
Điều 70. Vận tải bằng tàu điện
1. Các lò bằng vận tải bằng đầu tàu điện phải có độ dốc tối đa là 0,005; Trường hợp điều kiện địa chất mỏ không cho phép, có thể tăng độ dốc đến 0,05, nhưng việc vận tải kéo phải thực hiện theo thiết kế kèm theo những giải pháp đảm bảo vận chuyển người và hàng an toàn do cơ quan quản lý mỏ có thẩm quyền phê duyệt.
2. Khoảng cách hãm an toàn trên đường ray của đoàn tàu ở độ dốc lớn nhất (bất lợi nhất) tối đa là 40m khi vận tải hàng, và 20m khi vận chuyển người; Trong các đường lò thẳng, tiết diện ổn định và không có người đi lại, cho phép tăng khoảng cách hãm an toàn khi vận chuyển hàng theo thiết kế được cơ quan quản lý mỏ có thẩm quyền phê duyệt.
3. Trong thời gian vận chuyển, đầu tàu phải ở phía trước đoàn tàu. Cho phép đầu tàu ở phía cuối đoàn tàu để thực hiện các thao tác dồn dịch trong phạm vi chiều dài tối đa là 300m với tốc độ chuyển động 2m/s.
4. Cho phép đẩy đoàn goòng vào gương khi đào lò chuẩn bị một đường xe ở khoảng cách tối đa là 400m.
5. Goòng cuối cùng phải treo đèn đỏ khi đoàn tàu chạy. Trường hợp đầu tàu chạy độc lập, đèn đỏ phải treo ở phía sau theo hướng chuyển động của đầu tàu.
6. Cấm chạy các tàu điện ắc quy không có nắp trên buồng lái cũng như kéo các tàu đó khi có người trong buồng lái trên những đoạn đường dưới dây tiếp xúc có điện.
7. Khoảng cách theo chiều cao giữa thiết bị rót tải và đầu tàu không có nắp che buồng lái tối thiểu là 0,4m. Trường hợp đầu tàu có nắp che buồng lái hoặc chạy dưới thiết bị rót tải không có thợ lái trong buồng lái (điều khiển từ xa hoặc điều khiển tự động đầu tàu) hoặc đầu tàu không chạy qua dưới cửa rót tải, khoảng cách giữa thiết bị rót tải và đoàn tàu được quy định theo lý lịch máy.
8. Cấm vận hành đầu tàu trong các trường hợp sau:
a) Đầu đấm trục trặc;
b) Các cơ cấu nối móc trục trặc;
c) Phanh trục trặc hoặc không được điều chỉnh trước;
d) Cơ cấu rải cát bị trục trặc, không có cát trong thùng (trừ các đầu tàu có trọng lượng bám dính đến 20KN);
e) Các đèn pha không sáng hoặc bị trục trặc;
g) Thiết bị báo tín hiệu bị trục trặc;
h) Vi phạm tính an toàn nổ của các thiết bị trên đầu tàu;
i) Chiều dày guốc phanh bị mòn hơn 2/3 và đai vành bánh bị cán dẹt hơn 10mm;
k) Thùng ắc quy của đầu tàu điện không được đậy nắp kín hoặc cơ cấu khoá liên động bị trục trặc;
l) Trục trặc thiết bị điện, cơ cấu khoá liên động và phương tiện bảo vệ.
9. Chỉ được phép điều khiển đầu tàu từ trong buồng lái, thợ lái không được ra khỏi buồng lái khi tàu đang chạy, không được giao cho người khác điều khiển tàu và tháo móc đầu tàu với đoàn goòng bằng tay từ buồng lái.
10. Đối với đầu tàu được trang bị điều khiển từ xa, cho phép điều khiển từ xa chất tải vào goòng ở điểm chất tải và dỡ tải ở sân giếng khi đảm bảo có tín hiệu phòng ngừa bằng ánh sáng kết hợp với âm thanh.
11. Mỗi đầu tàu hoạt động phải được xem xét, kiểm tra thường xuyên theo lịch sau:
a) Hàng ca, do người lái tàu thực hiện khi nhận tàu;
b) Hàng ngày, do người trực sửa chữa cơ điện thực hiện;
c) Hàng tuần, do Quản đốc phân xưởng vận tải thực hiện;
d) Hàng quý, do Phó giám đốc cơ điện mỏ hoặc người được uỷ quyền thực hiện.
Kết quả xem xét, kiểm tra phải ghi vào sổ theo dõi riêng.
12. Hàng năm, đầu tầu phải được Hội đồng được thành lập theo quyết định của Giám đốc điều hành mỏ kiểm tra, xem xét, đánh giá. Kết quả kiểm tra kỹ thuật phải lập thành văn bản, trình Giám đốc điều hành mỏ phê duyệt.
1. Để vận tải bằng đầu tàu điện cần vẹt, cho phép sử dụng điện áp một chiều tối đa là 600V. Mạng dây tiếp xúc một chiều trong hầm lò phải được xây dựng và vận hành theo quy định hiện hành.
2. Trong các trạm chỉnh lưu và thiết bị nạp ắc quy tàu điện phải có bảo vệ ngắn mạch cho chỉnh lưu, biến áp và khởi hành cung cấp cho lưới tiếp xúc.
3. Khi vận tải bằng tàu điện cần vẹt, để giảm điện trở trên đường ray phải làm những "cầu nối điện” giữa các thanh ray.
4. Ở những khu vực nổ mìn điện trong hầm lò, các đường ray không dùng cho vận tải bằng đầu tàu điện cần vẹt phải được cách ly điện với ray dẫn điện ở hai điểm, cách nhau một khoảng bằng chiều dài lớn nhất của đoàn tàu.
5. Khoảng cách dây tiếp xúc đến ray
a) Chiều cao treo dây tiếp xúc tối thiểu là 2m tính từ đỉnh ray;
b) Trường hợp trong lò có luồng ngăn riêng dành cho người đi lại, chiều cao treo dây tiếp xúc tối thiểu là 1,8m;
c) Ở các khu vực ga người lên - xuống, chất dỡ tải, cũng như tại những nơi đường lò giao nhau có người đi lại, chiều cao treo dây tiếp xúc tối thiểu là 2m;
d) Trong sân giếng, ở khu vực người đi đến ga (trạm) chở người, chiều cao treo dây tiếp xúc tối thiểu là 2,2m, còn trong những phần lò còn lại của sân giếng tối thiểu là 2m từ đỉnh ray;
e) Trong phạm vi mặt bằng sân công nghiệp, phải treo dây tiếp xúc ở chiều cao tối thiểu là 2,2m từ đỉnh ray với điều kiện đường vận tải không cắt các đường xe cơ giới và người đi bộ.
6. Khoảng cách dây tiếp xúc đến vì chống
a) Tại những vị trí treo, khoảng cách từ dây tiếp xúc đến xà ngang vì chống tối thiểu là 0,2m;
b) Khoảng cách từ cần vẹt của đầu tàu điện đến vì chống tối thiểu là 0,2m.
7. Dây tiếp xúc trong ga và các vị trí giao nhau
a) Trong thời gian người lao động lên - xuống trong ca, dây tiếp xúc phải được cắt điện trên đoạn từ giếng đến ga chở người trong sân giếng;
b) Tại những vị trí giao nhau với các đường kể trên phải có các giải pháp treo dây tiếp xúc phù hợp để đảm bảo an toàn, được Giám đốc điều hành mỏ duyệt.
8. Phân đoạn dây tiếp xúc
a) Mạng dây tiếp xúc phải được phân đoạn bằng máy cắt ở khoảng cách tối đa là 500m. Các máy cắt phân đoạn cũng phải được đặt ở tất cả các nhánh của mạng dây tiếp xúc;
b) Trong mạng dây tiếp xúc hai và nhiều đường xe, cho phép nối song song các dây dẫn bằng máy cắt;
c) Cho phép sử dụng các cầu dao cách ly phân đoạn và máy cắt xoay chiều trong trường hợp chưa có máy cắt phân đoạn;
d) Trường hợp sử dụng một số trạm chỉnh lưu để cấp điện cho mạng dây tiếp xúc, mỗi phần của mạng dây tiếp xúc phải được cấp điện riêng biệt từ mỗi trạm và phải được cách ly với nhau;
e) Dây tiếp xúc phải được cắt điện tại những nơi tiến hành các công việc sửa chữa lò, chất, dỡ vật liệu có kích thước dài và thiết bị cũng như sân ga khi người lên - xuống (ra, vào);
g) Tại các điểm chất tải, sân ga người lên - xuống, mặt bằng chất - dỡ tải và các đường lò giao nhau có người đi lại cũng như tại những nơi người đi ra từ lò chợ, phỗng và các lò khác phải có thiết bị cắt điện phần đoạn dây tiếp xúc đó;
h) Ở những vị trí giao nhau, phải có biện pháp loại trừ khả năng dây tiếp xúc chạm vào các dây cáp thép, cáp điện và các đường ống dẫn;
i) Các sơ đồ giao - cắt nói trên phải được Giám đốc điều hành mỏ duyệt.
9. Nạp bình ắc quy
a) Bình ắc quy phải nạp trên giá nạp đặt trong phòng nạp;
b) Cho phép nạp bình ắc quy trên khung giá đầu tàu điện trong phòng tạm thời khi chuẩn bị những mức khai thác mới;
c) Phải mở nắp thùng, bình ắc quy trong thời gian nạp;
d) Bình và thùng ắc quy chỉ được phép đóng nắp sau khi kết thúc bốc hơi từ ắc quy, nhưng không sớm hơn 1 giờ sau khi dừng nạp;
e) Thùng ắc quy trong thời gian nạp phải được tiếp đất;
g) Cấm nạp và sử dụng bình ắc quy bị hỏng hoặc có tạp chất;
h) Giá trị điện trở cách điện tối thiểu cho phép của thiết bị điện, cáp điện trên đầu tàu điện và chu kỳ kiểm tra phải phù hợp với tiêu chuẩn trong quy trình được cơ quan quản lý mỏ có thẩm quyền quy định;
i) Trước khi đưa đầu tàu điện ắc quy an toàn nổ vào làm việc phải đo hàm lượng khí hydrô (H2) trong thùng ắc quy, hàm lượng này không được vượt quá 2,5%;
k) Trong phòng nạp của mỏ hầm lò được phép sử dụng thiết bị thử ắc quy thông dụng. Riêng trường hợp đo điện áp chỉ được thực hiện không sớm hơn 10 phút sau khi mở nắp thùng ắc quy;
l) Trong mỏ nguy hiểm về khí và bụi, việc sửa chữa đầu tàu ắc quy khi cần phải mở các thiết bị điện chỉ được phép làm trong gara;
m) Cấm đưa vào trong phòng nạp ắc quy các loại đèn có ngọn lửa trần kể cả đèn xăng an toàn;
n) Để bảo vệ khỏi bỏng do chất điện phân, trong phòng nạp ắc quy phải có các dung dịch hoặc bột trung hoà, chống tác hại ăn da.
Điều 72. Vận tải bằng băng tải
1. Phân loại băng tải theo công dụng
a) Băng tải chở vật liệu;
b) Băng tải chở người;
c) Băng tải chở người và vật liệu.
2. Phân loại băng tải theo kết cấu và lắp đặt
a) Băng tải cố định, các bộ phận truyền động, đuôi băng đặt trên nền móng bê tông;
b) Băng tải bán cố định các bộ phận truyền động, đuôi băng có thể không cần đặt trên nền móng bê tông. Thân băng có thể đặt trên nền lò hoặc treo trên các vì chống nhưng phải theo hướng dẫn của nhà chế tạo.
3. Băng tải phải đảm bảo các yêu cầu kỹ thuật an toàn sau đây:
a) Có khả năng chống cháy và độ bền kéo dây băng bằng hoặc lớn hơn độ bền kéo theo thiết kế;
b) Được thiết kế, lắp đặt phù hợp với loại vật liệu vận chuyển và điều kiện vận hành;
c) Phải kiểm tra mối tương quan giữa dây băng thay thế và đường kính tăm bua theo Bảng IV.1 khi thay dây băng cao su lõi thép bằng dây băng cao su lõi vải hoặc có chiều dày lớn hơn;
d) Lựa chọn băng để chở vật liệu và người phải dựa trên tải trọng tối đa của người và vật liệu; Trường hợp để chở người, phải tính trọng lượng của 1 người là 70kg, khoảng cách giữa hai người là 5m;
e) Khi chở người phải dùng dây băng cao su lõi thép;
Bảng IV.1. Mối tương quan giữa dây băng và tăm bua truyền động
|
Loại băng |
Độ bền của băng theo chiều ngang KG/cm |
Số lượng lớp trong băng |
Đường kính (mm) của tăm bua dẫn động không có lớp lót khi chiều rộng của băng (mm) |
||||
|
800 |
1000 |
1200 |
1600 |
2000 |
|||
|
Băng cao su lõi vải |
55 100-150
250-300
|
4-6 3-4 5-6 7-9 4-5 6-8 |
315 400 500 630 630 - |
- 500 630 630 630 800 |
- - - 800 800 800 |
- - - - - - |
- - - - - - |
|
Băng cao su lõi thép |
Dưới 400 500 1000 1500 2500 3000-3500 |
- - - - - - |
315 500 630 - - - |
- 630 630 800 800 1250 |
- - - 800 800 1250 |
- - - - 1250 1250 |
- - - - 1400 1400 |
g) Băng tải phải phù hợp với đường lò; Trắc địa mỏ phải kiểm tra độ dốc và độ thẳng của lò;
h) Bán kính cong theo trắc dọc của tuyến băng phải đảm bảo theo quy định tại Bảng IV.2;
i) Tại những điểm rót than vào dây băng, chiều cao rơi của than tối đa là 300mm, nếu chiều cao rơi tự do lớn hơn 300mm phải có biện pháp hạn chế sự va đập của than vào dây băng;
k) Để giữ than không rơi vãi ra khỏi dây băng, tại điểm rót than phải có hai tấm chắn hướng dòng chảy của vật liệu vào giữa lòng dây băng. Khoảng cách giữa hai tấm chắn bằng 2/3 chiều rộng của dây băng. Chiều dài của tấm chắn ở hai bên mép bằng 100 + B (B là chiều rộng dây băng);
l) Tại điểm chuyển tải, phải đặt tấm định hướng giữa tăm bua rót than và mặt dây băng. Mép trên của tấm định hướng thấp hơn trục tăm bua rót từ 1/3 đến 1/4 đường kính tăm bua.
Bảng IV.2. Bán kính cong theo trắc dọc tuyến băng tải
|
Chiều rộng băng (mm) |
Bán kính đoạn cong (m) |
|||
|
Đoạn lõm |
Đoạn lồi |
|||
|
Trên đoạn băng có sức kéo tối thiểu |
Trên đoạn băng có sức kéo tối đa khi chiều dài băng(m) |
|||
|
Dưới 500 |
Trên 500 |
|||
|
800 900 1000 1200 1600 2000 |
100 110 115 130 700 200 |
15 16 17 19 22 25 |
70 72 75 80 90 100 |
100 100 115 130 170 200 |
4. Các thông số kỹ thuật an toàn khi lắp đặt băng tải:
a) Băng tải để chở người phải theo thiết kế được duyệt và tuân theo những quy định về chở người;
b) Vị trí cho người lên - xuống băng phải có chiều dài tối thiểu là 5m. Đoạn lò làm ga cho người lên xuống tối thiểu là 10m;
c) Tại ga phải có thang chắc chắn để cho người lên - xuống băng;
d) Tốc độ chở người của băng tải không quá 1,6m/s;
e) Đề phòng trường hợp người không kịp xuống khỏi dây băng, phải đặt thiết bị tự động dừng dây băng tại điểm cách vị trí người xuống không quá 2m (theo hướng chuyển động của dây băng). Phải bố trí tín hiệu đèn, chuông tại điểm cách vị trí người xuống từ 8m đến 10m để báo trước cho người chuẩn bị xuống.
5. Hệ thống băng tải phải được trang bị:
a) Cơ cấu giữ được nhánh tải khi bị đứt;
b) Thiết bị kiểm tra sự nguyên vẹn của băng trong lò có góc dốc lớn hơn 100;
c) Phương tiện khử bụi ở nơi chuyển tải khi nồng độ bụi của không khí tại đó vượt quá giới hạn cho phép;
d) Cơ cấu làm sạch dây băng và tang băng tải;
e) Kiểm tra độ căng, trượt của dây băng;
g) Cảm biến lệch dây băng, cắt bộ truyền động băng tải khi dây băng bị lệch về một phía lớn hơn 10% chiều rộng dây băng;
h) Các phương tiện bảo vệ đảm bảo cắt bộ truyền động băng tải quá tải tại những điểm chuyển tải khi tốc độ dây băng giảm đến 92% định mức (trượt băng) và vượt quá 8% định mức trong các lò thượng đặt băng tải;
i) Các cơ cấu để cắt bộ truyền động băng tải từ một điểm bất kỳ dọc theo suốt chiều dài băng;
k) Dừng sự cố bằng tay tại điểm bất kỳ dọc theo chiều dài tuyến băng tải;
l) Tự động dừng hệ thống băng tải khi:
- Dây băng tải trượt trên tăm bua dẫn động;
- Độ căng của dây băng không đảm bảo (độ võng giữa hai điểm tựa của dây băng quá mức cho phép - hiện tượng trùng dây băng);
- Dây băng bị lệch, trượt ra ngoài con lăn tựa, trượt ra ngoài tăm bua và chạm vào các bộ phận không chuyển động khác;
- Lớp lót của tăm bua dẫn động và tăm bua căng dây băng bị hỏng;
m) Bảo vệ an toàn điện khỏi sự cố ngắn mạch, quá tải, mất pha.
6. Công tác kiểm tra, chạy thử, hiệu chỉnh, tín hiệu
a) Trước khi lắp đặt sử dụng, phải kiểm tra hiệu chỉnh những phương tiện, thiết bị tự động dùng cho băng tải (không phụ thuộc vào công dụng, chủng loại, vị trí đặt) ở trên mặt bằng;
b) Trước khi vận hành đầu ca, phải kiểm tra tình trạng kỹ thuật an toàn và thử các thiết bị bảo vệ, tín hiệu của toàn hệ thống băng tải.
Điều 73. Vận tải bằng máng cào
1. Máng cào phải được trang bị
a) Hệ thống chống bụi;
b) Bảo vệ chống quá tải, quá áp, đoản mạch, mất pha;
c) Hệ thống tín hiệu vận hành và sự cố;
d) Dừng sự cố máng cào bằng tay tại điểm bất kỳ dọc theo chiều dài tuyến máng cào;
e) Tự động dừng hệ thống máng cào khi: Xích bị kẹt, bị đứt; Thanh gạt bị lệch quá giới hạn thiết kế; Nhánh không tải máng cào bị bùng do vật liệu bị cuốn vào quá nhiều.
2. Việc trang bị các cơ cấu bảo vệ cho máng cào được quy định tại Điều này phụ thuộc yêu cầu bảo vệ của máng cào cụ thể và do Giám đốc điều hành mỏ quyết định.
Điều 74. Trang bị điều khiển tự động băng tải, máng cào
Các thiết bị điều khiển tự động hoặc điều khiển từ xa tuyến băng tải, máng cào phải đảm bảo:
1. Đóng từng băng tải, máng cào tiếp theo trong tuyến, chỉ sau khi bộ phận kéo của băng tải trước đó đạt được tốc độ chuyển động định mức;
2. Tự động dừng tất cả các băng tải, máng cào khi dừng chất tải;
3. Không cho phép đóng điện lặp lại băng tải khi bộ phận bảo vệ điện của động cơ bị trục trặc, phần cơ khí của băng tải bị hư hỏng, tác động bảo vệ do khởi động băng tải bị kéo dài, giảm tốc độ dây băng đến 92% (trượt) và vượt quá 8% tốc độ định mức của dây băng;
4. Có khoá liên động tại chỗ, ngăn ngừa khởi động băng tải, máng cào từ bảng điều khiển;
5. Cắt truyền động điện khi quá trình khởi động bị kéo dài;
6. Có liên hệ hai chiều bằng điện thoại hoặc loa phóng thanh giữa những điểm đặt bộ truyền động băng tải, máng cào và bảng điều khiển.
Điều 75. Cầu vượt và rào chắn an toàn
1. Phải có cầu vượt chắc chắn và đảm bảo độ cao an toàn tại những vị trí người qua lại băng tải, máng cào.
2. Để phòng ngừa người bị cuốn vào rulô băng tải đang hoạt động, phải thiết kế, lắp đặt rào chắn bảo vệ ở khu vực có khả năng người bị cuốn vào rulô. Khi mở rào chắn để làm vệ sinh công nghiệp hoặc các công việc khác, băng tải sẽ tự động cắt điện và dừng hoạt động.
Điều 76. Khởi động, dừng máng cào, băng tải
1. Chỉ khi băng tải, máng cào chạy không tải đạt tốc độ định mức mới được chất tải.
2. Khi khởi động: Khởi động băng tải, máng cào cuối cùng trong tuyến trước.
3. Khi dừng: Dừng băng tải, máng cào đầu tiên trong tuyến trước.
4. Khi dừng lâu, băng tải, máng cào phải được rót hết tải.
Điều 77. Tín hiệu, chiếu sáng, phòng chống cháy băng tải
Dọc tuyến băng tải, máng cào phải được trang bị:
1. Tín hiệu vận hành chở người, chở vật liệu, tín hiệu sự cố;
2. Đèn chiếu sáng;
3. Phương tiện phòng cháy, chữa cháy.
Điều 78. Lắp đặt băng tải với các phương tiện vận tải khác trong lò
1. Trong các lò đặt băng tải, cho phép đặt đường ray hoặc tời dùng để vận chuyển thiết bị và sửa chữa lò.
2. Tời dây (đường cáp có ghế ngồi) để chở người với điều kiện phải đặt vách ngăn cách. Giữa đường cáp có ghế ngồi với vách ngăn hoặc phần nhô ra của thiết bị và vì chống lò theo quy định tại Bảng II.1 Điều 25 Quy chuẩn này.
3. Cho phép lắp đặt và vận hành đồng thời tời hỗ trợ người đi bộ với băng tải hoặc đường ray vận chuyển goòng bằng tời với điều kiện giữa chúng phải đặt vách ngăn cách. Vách ngăn phải đảm bảo an toàn cho người đi bộ khi goòng bị trật bánh hoặc rơi tự do khi bị sự cố. Khoảng cách giữa tời hỗ trợ đi bộ với vách ngăn và vì chống lò tối thiểu là 0,7m.
4. Thiết kế kỹ thuật thi công lắp đặt băng tải với các phương tiện quy định tại khoản 2 và 3 Điều này do Giám đốc điều hành mỏ duyệt.
Điều 79. Cố định, lắp đặt, sửa chữa máng cào trong lò
1. Các bộ truyền động đầu kéo và đuôi máng cào phải được cố định chắc chắn để chống trôi, dịch chuyển khi làm việc.
2. Di chuyển cơ giới hoá máng cào trong lò chợ, điều chỉnh xích máng cào khi tháo lắp, cũng như để gỡ kẹt máng cào cần phải sử dụng trang bị chuyên dụng.
Điều 80. Cấm
1. Dùng băng tải, máng cào chở vật liệu để chở người.
2. Sửa chữa, tra dầu mỡ và làm sạch các chi tiết băng tải, máng cào đang chuyển động.
3. Vận hành khi băng tải bị bám dính than và các con lăn bị trục trặc hoặc thiếu, cũng như khi dây băng chạm phải phần cố định của khung băng hoặc vì chống.
4. Vận chuyển người hoặc thiết bị, vật liệu vượt quá kích thước quy định trên các băng tải.
5. Vận hành băng tải, máng cào khi bị hỏng.
Điều 81. Kiểm tra, xem xét máng cào, băng tải
1. Hàng ca, Trưởng ca hoặc người được chỉ định phải thực hiện việc kiểm tra, xem xét các băng tải, thiết bị điều khiển, con lăn, các cơ cấu căng dây băng và dây băng, thiết bị chất tải, vị trí nối dây băng cũng như các cơ cấu đảm bảo an toàn vận hành (phanh hãm, phương tiện giữ dây băng).
2. Hàng ca, Quản đốc phân xưởng hoặc người được chỉ định thực hiện việc kiểm tra, xem xét và kiểm nghiệm sự làm việc của các thiết bị điều khiển và bảo vệ (các bộ cảm biến lệch và trượt dây băng, mức chất tải, ngừng bất thường), các cơ cấu đảm bảo an toàn vận hành băng tải (phanh hãm, phương tiện giữ băng khi đứt).
3. Hàng tháng, Phó Giám đốc cơ điện mỏ hoặc người được chỉ định phải thực hiện việc xem xét, kiểm tra thay thế các băng tải, máng cào.
Điều 82. Quy định chung
1. Tốc độ tối đa chở người lên - xuống trong giếng đứng được xác định theo thiết kế, nhưng không được vượt quá 12m/s; Trong giếng nghiêng không được vượt quá 5m/s. Khi chở người lên - xuống trong thùng trục đào giếng có đường dẫn hướng, tốc độ lớn nhất không được lớn hơn 8m/s và 1m/s khi không có đường dẫn hướng.
2. Tốc độ tối đa khi chở hàng lên - xuống trong giếng đứng được xác định theo thiết kế, trong giếng nghiêng không được vượt quá 7m/s khi chở hàng lên trong thùng skip và 5m/s khi chở hàng lên trong các goòng.
3. Việc đưa hàng (đối trọng) xuống bằng trục tải thùng skip nhiều cáp phải thực hiện theo chế độ “kiểm tra”.
4. Khi chở hàng lên - xuống trong thùng trục đào lò có đường dẫn hướng, tốc độ chuyển động của thùng trục không được vượt quá 12m/s, ở những nơi không có đường dẫn hướng không quá 2m/s.
5. Tốc độ thùng trục chở hàng treo ở phía dưới thùng trục khi lên - xuống không được vượt quá 1/3 tốc độ định mức của trục tải đó.
6. Trước khi nhập khẩu, thiết kế, lắp đặt trục tải mỏ có tốc độ lớn hơn quy định tại Điều này, chủ đầu tư phải trình Cơ quan quản lý an toàn Bộ Công Thương thẩm định, chấp thuận.
7. Giá trị gia tốc trung bình khi hãm
a) Giá trị gia tốc trung bình của trục tải khi hãm bảo hiểm cũng như khi hãm ở chế độ làm việc trong những trường hợp bất thường không được vượt quá những giá trị ghi trong Bảng IV.3.
Bảng IV.3 Giá trị gia tốc trung bình phụ thuộc vào góc dốc của đường lò
|
Góc dốc của đường lò, (độ) |
5 |
10 |
15 |
20 |
25 |
30 |
40 |
50 và lớn hơn |
|
Giá trị gia tốc hãm trung bình (m/s2) |
0,8 |
1,2 |
1,8 |
2,5 |
3,0 |
3,5 |
4,0 |
5,0 |
b) Giá trị gia tốc trung bình của thiết bị nâng khi hãm bảo hiểm không được nhỏ hơn 0,75m/s2 đối với góc dốc của lò đến 300 và không được nhỏ hơn 1,5m/s2 đối với góc dốc của lò trên 300;
c) Đối với thiết bị nâng ở lò dốc đến 300 cho phép gia tốc hãm nhỏ hơn 0,75m/s2 nếu như đảm bảo dừng được thùng trục khi trở lên trong giới hạn của đường quá nâng, còn khi trở xuống đảm bảo dừng được trên phần đoạn tự do của đường nằm ở dưới sân ga người lên - xuống;
d) Giá trị gia tốc hãm trung bình là tỷ số giữa tốc độ tối đa với khoảng thời gian tính từ thời điểm bắt đầu phanh đến khi dừng hoàn toàn trục tải;
e) Trong đường lò có góc dốc thay đổi, giá trị gia tốc hãm của thiết bị nâng đối với mỗi đoạn đường có góc dốc như nhau không được vượt quá giá trị tương ứng ghi trong Bảng IV.3;
g) Giá trị gia tốc hãm đối với các góc dốc trung gian của lò nghiêng không được chỉ dẫn trong Bảng IV.3, được xác định theo phép nội suy tuyến tính;
h) Đối với các thiết bị có tang ma sát, gia tốc hãm khi làm việc cũng như khi hãm bảo hiểm không được vượt quá những giá trị được xác định bởi khả năng trượt cáp trên tang;
i) Trong những trường hợp riêng biệt, đối với thiết bị nâng thùng skip loại 1 cáp và nhiều cáp có tang ma sát, theo điều kiện không trượt cáp cho phép khống chế giới hạn dưới của gia tốc hãm là 1,2m/s2 với điều kiện được trang bị các bộ khoá liên động để loại trừ được khả năng hạ hàng với tốc độ lớn hơn 1m/s;
k) Các yêu cầu tại khoản 7 Điều này không áp dụng đối với tời đào lò (khi tốc độ chuyển động của cáp không lớn hơn 0,2m/s) và tời treo khoang cấp cứu (khi tốc độ không lớn hơn 0,35m/s).
8. Bảo vệ quá nâng
a) Mỗi thùng trục (đối trọng) phải có khoá cắt giới hạn đặt trong giếng hoặc trên tháp giếng dùng để đóng phanh an toàn khi nâng thùng trục cao hơn mức sàn tiếp nhận trên (vị trí bình thường của thùng trục khi tháo, dỡ tải) là 0,5m và các khoá ngắt giới hạn dự phòng đặt trên bộ chỉ báo độ sâu (hoặc trong thiết bị kiểm tra hành trình);
b) Trong lò nghiêng, các khoá ngắt giới hạn phải đặt ở sàn tiếp nhận trên cao hơn vị trí làm việc bình thường 0,5m;
c) Các trục tải với thùng cũi lật phải có những khoá cắt giới hạn bổ sung đặt trên tháp giếng cao hơn mức sân ga người ra, vào thùng cũi 0,5m. Sự làm việc của các khoá ngắt giới hạn này cũng phải được dự phòng bởi các khoá ngắt giới hạn đặt trên bộ chỉ báo độ sâu (trong thiết bị hành trình và kiểm tra). Yêu cầu này không áp dụng đối với thiết bị nâng thùng trục đào lò tự lật khi đào giếng đứng;
d) Cho phép đặt các khoá ngắt giới hạn dự phòng trên tháp giếng ở cùng một mức với các khoá ngắt giới hạn chính khi nguồn cấp điện cho 2 loại đó bằng những cáp điện riêng biệt và đặt trên bảng điều khiển máy trục những nút bấm riêng cho mỗi loại khoá ngắt (không có định vị) dùng để kiểm tra sự làm việc của các khoá ngắt. Các khoá ngắt giới hạn bổ sung (cho khoá ngắt chính và dự phòng) ở những trục tải có thùng cũi lật phải được lắp vào trong mạch bảo vệ phụ thuộc vào chế độ làm việc cho trước “chở hàng” và “chở người”.
9. Bảo vệ quá tốc độ
Các bộ hạn chế tốc độ làm tác động lên phanh an toàn trong những trường hợp sau đây:
a) Vượt quá tốc độ trong thời gian giảm tốc của bộ phận bảo vệ tốc độ khi giá trị tốc độ tại mỗi điểm của hành trình giảm tốc được xác định từ điều kiện ngăn ngừa sự cố quá nâng thùng skip và dừng thùng cũi không êm (tốc độ lớn hơn 1m/s);
b) Vượt quá tốc độ chạy đều 15%;
c) Đưa thùng trục đến sàn tiếp nhận trên và dưới cũng như đi vào cơ cấu dẫn hướng cứng trong trường hợp đặt cốt giếng bằng cáp với tốc độ lớn hơn 1m/s khi chở người lên - xuống và 1,5m/s khi nâng, hạ hàng;
d) Các yêu cầu của khoản này áp dụng đối với trục tải đang hoạt động có tốc độ chuyển động trên 3m/s và thiết kế mới trên 2m/s;
10. Các bộ phận giảm chấn được đặt trên tháp giếng và dưới rốn giếng có trục tải nhiều cáp.
11. Trục tải mỏ phải được trang bị những thiết bị bảo vệ và khoá liên động sau đây
a) Khoá liên động tác động khi khe hở giữa vành tang và guốc phanh lớn hơn 2mm;
b) Bảo vệ cực đại và bảo vệ “không”;
c) Các bảo vệ tránh cáp bị vặn và võng quá làm va vào giếng (trang bị bảo vệ tránh cáp bị võng quá được thực hiện tuỳ theo kết cấu và việc chế tạo cáp);
d) Khi cửa chắn song bảo hiểm của các sàn tiếp nhận bị mở, khoá liên động phải đóng tín hiệu “dừng” cho thợ máy;
e) Khoá liên động cho phép đóng điện động cơ sau khi thùng trục bị quá nâng đã được loại trừ sự quá nâng đó;
g) Khoá liên động không cho phép nhả phanh an toàn nếu như tay điều khiển của phanh công tác không ở vị trí “hãm”, đồng thời tay gạt của bộ khống chế không ở vị trí “không”;
h) Khoá liên động đảm bảo dừng thùng trục đào lò khi đến mặt bằng có cửa che ở cốt không; khoá liên động đảm bảo dừng được thùng trục cách sàn công tác 5m và khi đến gần gương giếng;
i) Các thiết bị truyền được tín hiệu cho thợ điều khiển trục tải hoặc thợ tín hiệu sân giếng khi cáp hãm trong rốn giếng bị bật ra;
k) Các thiết bị truyền được tín hiệu cho thợ điều khiển trục tải khi nâng nhánh cáp cân bằng quá mức cho phép;
l) Các bộ hạn chế tốc độ dự phòng tác động kép nếu như các bộ hạn chế tốc độ chính không có khả năng tự kiểm tra. Yêu cầu này chỉ đối với trục tải chở người và hàng - người;
m) Khoá liên động của các bệ trượt đầu cầu giếng và các tay đấm dừng của sàn tiếp nhận đóng tín hiệu “dừng” cho thợ điều khiển máy khi các bệ trượt chưa được nâng lên hoặc khi các tay đấm dừng chưa được gạt;
n) Tín hiệu âm thanh tự động báo tín hiệu bắt đầu chu kỳ giảm tốc.
12. Puli (ròng rọc)
a) Các puli có vành đúc hoặc dập không có lớp lót phải được thay thế mới khi mép hoặc vành bị mòn 50% bề dày ban đầu và trong tất cả các trường hợp khi bị lòi đầu nan hoa;
b) Cho phép hàn đắp rãnh puli khi mức mòn theo chiều sâu không lớn hơn 50% bề dày ban đầu.
13. Trang bị trục tải sự cố, sửa chữa
a) Để đề phòng trường hợp hư hỏng trục tải hoặc kẹt thùng cũi trong giếng cần phải trang bị trục tải sự cố, sửa chữa, theo quy định của “Quy chuẩn kỹ thuật quốc gia về khai thác than hầm lò”;
b) Khi trong cùng một giếng có 2 trục tải hoặc một trục tải và khoang thang cấp cứu, cũng như trong các giếng được trang bị một trục tải để sử dụng trong những trường hợp sự cố và sửa chữa thì không cần trục tải sửa chữa sự cố bổ sung;
c) Cho phép không có trục tải sự cố - sửa chữa cố định khi lực lượng CH – CN chuyên trách được trang bị trục tải di động;
d) Đối với các giếng có độ sâu đến 100m cho phép sử dụng vào mục đích trên các tời quay tay có phanh hãm và cơ cấu chặn (dừng) kiểu bánh cóc;
e) Khi đào giếng, đề phòng sự cố thiết bị nâng, phải có thang treo cấp cứu - sự cố với chiều dài đảm bảo đứng được trên đó tất cả người lao động trong ca đông nhất. Thang này phải được bắt chặt vào cáp tời, được trang bị các phanh và có bộ truyền động kết hợp (bằng cơ khí và bằng tay), bộ truyền động bằng tay của tời phải đảm bảo nâng được thang này khi mất điện sự cố;
g) Tại tầng dưới của sàn công tác phải có sẵn thang sự cố kiểu cáp với chiều dài cần thiết để đưa người từ gương giếng lên mặt sàn công tác;
h) Khi đào giếng có độ sâu đến 100m, các tời để treo thang cấp cứu có thể chỉ có bộ truyền động bằng tay và phải được trang bị phanh và cơ cấu chặn kiểu bánh cóc.
14. Yêu cầu an toàn đi lại và làm việc tại giếng
a) Cấm người đi qua các khoang nâng của giếng;
b) Ở tất cả các mức, trước giếng phải có cửa chắn song bảo hiểm để phòng ngừa người đi qua các khoang nâng;
c) Phải cắt điện các cơ cấu trao đổi goòng tại các sàn tiếp nhận của giếng trong thời gian chở người lên - xuống, cũng như khi trục tải làm việc ở chế độ “kiểm tra”;
d) Cho phép sử dụng ở sàn tiếp nhận trên các loại cửa nâng, hạ khi có hàng rào bổ sung ngăn cản người tiếp cận với giếng trong lúc thùng cũi chưa dừng hẳn;
e) Yêu cầu tín hiệu “dừng” ở điểm d khoản 11 Điều này không áp dụng đối với các trục tải được trang bị loại cửa nâng - hạ;
g) Trong các giếng mỏ không dùng để chở người, chỉ những người làm nhiệm vụ kiểm tra, xem xét và sửa chữa các giếng đó mới được phép sử dụng các thùng trục để đi lại;
h) Khi đào giếng, trong lúc chở thiết bị lên - xuống bằng tời đào giếng, trục tải chỉ được phép chở người có trách nhiệm theo dõi, thực hiện các công việc này.
15. Tại các sàn tiếp nhận trung gian, dưới và trên của giếng đứng chở hàng lên - xuống bằng goòng, cũng như các sàn trước quang lật goòng phải trang bị cơ cấu chặn để phòng ngừa các goòng tự lăn.
16. Những ứng dụng mới về phương tiện thiết bị bảo vệ và phòng ngừa (phanh an toàn, phanh dù, cơ cấu treo, khoá cắt giới hạn, bộ hạn chế tốc độ, bộ điều chỉnh áp lực) và các biện pháp điều khiển trục tải trước khi áp dụng phải được cơ quan quản lý an toàn Bộ Công Thương phê duyệt.
17. Thiết bị trục tải, thiết bị nâng, thang máy sử dụng trong mỏ hầm lò ngoài việc phải thực hiện theo các quy định của Quy chuẩn này phải thực hiện đúng các quy định của Tiêu chuẩn Việt Nam về thiết bị nâng, thang máy hiện hành.
Điều 83. Đặt khung giếng
1. Khe hở tổng cộng giữa tấm đệm lót bạc dẫn hướng của thùng trục, đối trọng và các đường dẫn hướng khi lắp đặt phải là:
a) Ở mốc cơ sở
- Đối với các đường dẫn hướng bằng ray: 10mm;
- Đối với các đường dẫn hướng bằng gỗ: 20mm.
b) Theo chiều sâu của giếng
- Đối với các đường dẫn hướng bằng ray: 10 ± 8 mm;
- Đối với các đường dẫn hướng bằng gỗ: 20 ± 10mm.
Ghi chú: Mốc cơ sở là phần đoạn của các đường dẫn hướng từ vị trí dỡ tải thùng trục đến vị trí đặt khoá cắt giới hạn trên tháp giếng dùng để đóng phanh an toàn khi nâng thùng trục cao hơn 0,5m mức mặt bằng nhận trên (vị trí bình thường khi dỡ tải). Trên đoạn mốc cơ sở phải duy trì kích thước định mức của các đường dẫn hướng.
Khi thùng trục làm việc có tính đàn hồi rung lắc, bắt buộc phải có bạc bảo hiểm đặt trực tiếp trên kết cấu chịu lực của thùng trục và không có liên quan về kết cấu với các cơ cấu định hướng làm việc.
2. Ở mốc cơ sở, khe hở tổng cộng giữa các bề mặt tiếp xúc của bạc dẫn hướng và đường dẫn hướng khi lắp đặt phải là: 20mm đối với các đường dẫn hướng bằng ray; 30mm đối với các đường dẫn hướng tiết diện chữ nhật.
3. Bạc dẫn hướng hoặc những tấm đệm lót có thể thay thế được của nó phải được thay thế khi các bề mặt tiếp xúc về một bên mòn trên 8mm.
4. Mức độ mòn tổng cộng của các đường dẫn hướng và bạc dẫn hướng về một bên không được quá 10mm khi các đường dẫn hướng bằng ray; 18mm khi các đường dẫn hướng bằng gỗ.
Khi đó cho phép mức độ mòn cạnh tổng cộng của các bề mặt sườn của bạc dẫn hướng và đường dẫn hướng bằng ray phân bổ về hai phía đến 20mm.
5. Chiều sâu miệng mở của bạc dẫn hướng làm việc loại hở khi lắp đặt phải là: 60mm đối với các đường dẫn hướng bằng ray; 80mm đối với các đường dẫn hướng bằng gỗ.
6. Chiều sâu miệng mở của bạc dẫn hướng khi lắp đặt phải là: 65mm đối với các đường dẫn hướng bằng ray; 110mm đối với các đường dẫn hướng dạng hộp chữ nhật.
7. Đường kính trong của bạc dẫn hướng mới của cơ cấu định hướng làm việc kiểu trượt đối với đường dẫn hướng bằng cáp khi lắp đặt phải lớn hơn đường kính cáp dẫn là 10mm, chiều sâu rãnh của các con lăn (puly) khi sử dụng gối lăn định hướng phải không nhỏ hơn 1/3 đường kính cáp dẫn. Đối với các cơ cấu định hướng bảo hiểm khi sử dụng đường dẫn hướng bằng cáp, đường kính của bạc mới phải lớn hơn đường kính cáp dẫn là 20mm, đồng thời mức độ mòn cho phép của bạc dẫn hướng là 15mm theo đường kính.
8. Các đường dẫn hướng phải được thay thế khi mức độ mòn về một bên lớn hơn kích thước sau
a) Đối với loại bằng ray: 8mm;
b) Đối với loại bằng gỗ: 15mm;
c) Đối với loại hình hộp: Một nửa bề dầy của thành hộp.
Khi đó cho phép mức độ mòn cạnh tổng cộng của các đường dẫn hướng bằng ray khi ray được lắp ở hai phía thùng trục đến 16mm.
9. Mức độ mòn của thân ray làm đường dẫn hướng không được phép lớn hơn 25% chiều dầy định mức của nó.
10. Dưới tác động bào mòn của phanh dù, các đường dẫn hướng bằng gỗ trong giếng phải được thay thế khi mức độ mòn tổng cộng lớn hơn 20mm.
11. Phó Giám đốc cơ điện mỏ phải chỉ đạo thực hiện việc tổng kiểm tra bằng dụng cụ mức độ mòn của các đường dẫn hướng tại mỗi thành bậc của cốt giếng theo lịch sau:
a) Đối với các đường dẫn hướng kim loại: Một năm/lần;
b) Đối với các đường dẫn hướng bằng gỗ: 6 tháng/lần.
12. Khe hở giữa thùng trục và các phần trong giếng
a) Các khe hở vận hành giữa những phần nhô ra tối đa của thùng trục, khung chống và xà ngang trong giếng đứng của trục tải cố định phải phù hợp với những giá trị ghi trong Bảng IV.4;
b) Với trục tải đào giếng, giá trị khoảng cách của những cáp dẫn hướng ở giữa các thùng trục không được nhỏ hơn 300mm. Khi chiều sâu của giếng lớn hơn 400m buộc phải đặt các cơ cấu ngăn ngừa khả năng va chạm của các thùng trục đào giếng. Các cơ cấu này không cần thiết nếu khe hở giữa những cáp dẫn hướng ở giữa bằng (250 + H/3000)mm, trong đó H là chiều sâu của giếng, tính bằng milimét;
c) Khe hở giữa thùng trục đào lò đang chuyển động và khung chống giếng hoặc những phần nhô ra của trang thiết bị đặt trong giếng (đường ống dẫn, xà chống...) không nhỏ hơn 400mm;
d) Khe hở giữa các thành (cạnh) của miệng loa sàn đào lò và các phần chuyển động nhô ra của khung định hướng thùng trục đào lò không được nhỏ hơn 100mm;
e) Trường hợp đặt cốt giếng cùng với thời gian đào giếng, khe hở tối thiểu giữa các phần nhô ra lớn nhất của thùng trục đào lò hoặc của khung dẫn hướng và các xà ngang được quy định như sau:
- 350mm đối với đường dẫn hướng bằng cáp đặt trong mặt phẳng thẳng góc với các xà ngang;
- 400mm đối với đường dẫn hướng bằng cáp đặt trong mặt phẳng song song với các xà ngang;
- 30mm đối với đường dẫn hướng cứng (ray, thép chữ nhật ...).
Phải tiến hành kiểm tra các khe hở trên trước khi cho thùng trục chuyển động
g) Khe hở giữa hai thùng trục trong giếng nghiêng với góc dốc bất kỳ không được nhỏ hơn 200mm. Khe hở giữa vì chống giếng và phần nhô ra lớn nhất của thùng trục không được nhỏ hơn 250mm khi vì chống bằng gỗ, kim loại và vì chống bê tông cốt thép, không được nhỏ hơn 200mm khi bằng bê tông và xây đá.
Bảng IV.4 Khoảng hở quy định cho phép trong giếng
|
Loại khung chống giếng |
Loại và cách bố trí khung giếng |
Tên gọi của khe hở |
Giá trị tối thiểu của khe hở (mm) |
Ghi chú |
|
1 |
2 |
3 |
4 |
5 |
|
1- Bằng gỗ |
Bằng gỗ và kim loại với cách bố trí các đường dẫn hướng về một phía và hai phía |
Giữa thùng trục và cốt giếng |
200 |
Đối với các mỏ đang sản xuất trong trường hợp chật hẹp bố trí các thùng trục trong giếng chống bằng gỗ cho phép khe hở không nhỏ hơn 150mm khi bố trí các đường dẫn về một phía cũng như hai phía nếu phần nhô ra lớn nhất của thùng trục cách tâm các đường dẫn không lớn hơn 1m. |
|
2- Bằng bê tông, gạch, bê tông đúc sẵn |
Bằng kim loại với cách bố trí các đường dẫn hướng về một và hai phía |
Như trên |
150 |
|
|
3- Bằng bê tông, gạch, bê tông đúc sẵn |
Bằng gỗ, như trên |
Như trên |
200 |
|
|
4- Bằng gỗ, bê tông, gạch, vì chiubin |
Các xà ngang bằng kim loại, gỗ không giữ các đường dẫn hướng. |
Giữa các thùng trục và xà ngang |
150 |
Khi bố trí các thùng trục trong giếng đặc biệt chật hẹp, khe hở này có thể giảm nhỏ đến 100mm |
|
5- Bằng gỗ, bê tông, gạch, vì chiubin |
Không có xà ngăn giữa các thùng trục |
Giữa 2 thùng trục chuyển động |
200 |
Khi các thanh dẫn hướng cứng |
|
6- Bằng gỗ, bê tông, gạch, bê tông đúc sẵn, vì chiubin |
Bố trí các đường dẫn hướng về một bên, hai bên sườn (cạnh) và ở mặt trước. |
Giữa thùng cũi và các bộ phận của cơ cấu hạ thùng. |
60 |
Đối với các giếng đưa vào sản xuất trước năm 1973, khe hở này có thể không nhỏ hơn 40 mm. |
|
7- Bằng gỗ, bê tông, gạch, bê tông đúc sẵn, vì chiubin |
Như trên |
Giữa xà ngang và những phần nhô ra của thùng trục, cách tâm của các đường dẫn hướng một khoảng đến 750 mm |
40 |
Khi trên thùng trục có các con lăn dỡ tải nhô ra, khe hở giữa con lăn và xà ngang cần phải tăng thêm 25mm. |
|
8- Bằng gỗ, bê tông, gạch, bê tông đúc sẵn, vì chiubin |
Bằng gỗ có bố trí các đường dẫn hướng ở mặt trước. |
Giữa những xà ngang không giữ đường dẫn hướng và thùng cũi. |
50 |
|
|
9- Bằng gỗ, bê tông, gạch, bê tông đúc sẵn, vì chiubin |
Bằng kim loại và gỗ, không phụ thuộc vào sự bố trí của các đường dẫn hướng |
Giữa mép ngoài của bạc dẫn hướng thùng trục và cơ cấu để bắt các đường dẫn hướng vào xà ngang. |
15 |
|
|
10- Bằng gỗ, bê tông, gạch, bê tông đúc sẵn, vì chiubin |
Bố trí các đường dẫn hướng về một bên, hai bên và mặt trước. |
Giữa những phần nhô ra nhiều nhất và xa nhất so với tâm của thùng trục và xà ngang có tính đến sự mòn của đường dẫn hướng, bạc dẫn hướng và khả năng có thể quay của thùng trục. |
25 |
Đối với mỏ thiết kế mới. |
|
11- Bằng gỗ, gạch, bê tông, vì chu bin. |
Bằng kim loại và gỗ, không phụ thuộc vào sự bố trí của các đường dẫn hướng. |
Giữa những ray của mặt bằng nhận và thùng cũi. |
30 |
|
|
12- Tất cả các loại vì chống. |
Có các đường dẫn hướng bằng cáp của trục tải nhiều cáp |
-Giữa các thùng trục và vì chống xà ngang hoặc thanh giằng trong giếng. -Giữa những thùng trục chuyển động của một trục tải. -Giữa những thùng trục tải lân cận. |
225
265
300
350 |
-Khi giếng sâu đến 800 m. -Khi giếng sâu hơn 800m -Trong tất cả các trường hợp, các khe hở vận hành không được nhỏ hơn 0, 75 các khe hở thiết kế. |
|
13- Tất cả các loại vì chống. |
Có các đường dẫn hướng bằng cáp của trục tải một cáp. |
-Giữa những thùng trục chuyển động của một trục tải. -Giữa những thùng trục chuyển động của các trục tải kề nhau. -Giữa những thùng trục và vì chống, xà ngang hoặc thanh giằng trong giếng. |
300
350
240 |
Khe hở theo thiết kế. |
Điều 84. Trục tải và tời đào lò
1. Các trục tải chở người và hàng - người phải có truyền động điện được trang bị hệ thống hãm động năng.
2. Các tời dùng để chở người lên - xuống trong thùng cũi và trong các toa goòng dọc theo lò nghiêng có góc dốc trên 180 và lò đứng phải đáp ứng tất cả những yêu cầu như đối với trục tải.
3. Trang bị bộ chỉ báo độ sâu
a) Trục tải và tời phải được trang bị thiết bị chỉ báo độ sâu cho thợ máy nhận biết được vị trí của thùng trục trong giếng;
b) Trong mọi trường hợp đào giếng, trên vành mép tang phải đánh dấu vị trí mặt cắt trên của miệng loa sàn treo đào lò khi trục tải làm việc;
c) Đối với tời dùng để treo các thiết bị khi đào giếng đứng, không cần có bộ chỉ báo chiều sâu.
4. Mỗi trục tải phải có các đồng hồ làm việc tốt sau đây:
a) Tốc độ kế tự ghi (đối với máy có tốc độ trên 3m/s, đặt trên mặt bằng);
b) Vôn kế và ampe kế;
c) Áp kế chỉ báo áp lực khí nén hoặc dầu trong hệ thống phanh.
5. Trang bị phanh
a) Mỗi trục tải và tời phải có các phanh công tác và phanh an toàn làm việc không phụ thuộc vào nhau;
b) Đối với các tời đào lò và tời treo thang cấp cứu khi tốc độ chuyển động của cáp không lớn hơn tương ứng 0,2m/s và 0,35m/s phải có: phanh công tác động lên trục động cơ hoặc trục trung gian, phanh an toàn, cơ cấu chặn kiểu bánh cóc trên tang và khoá liên động để loại trừ việc khởi động động cơ điện theo chiều hạ tải khi tác động phanh an toàn và cơ cấu chặn.
6. Mô men hãm
a) Trong trạng thái hãm (đứng yên) của trục tải, tời tỷ số mô men hãm Mh được tạo ra bởi phanh an toàn với mô men tĩnh Mt không được nhỏ hơn giá trị cho trong Bảng IV.5
Bảng IV.5 Mối tương quan giữa mômen hãm và mômen tĩnh của trục tải
|
Góc nghiêng của lò, (độ) |
Đến 15 |
20 |
25 |
30 và lớn hơn |
|
K = Mh/Mt
|
1,8 |
2,0 |
2,6 |
3,0 |
Giá trị hệ số K đối với các góc dốc trung gian không có trong Bảng IV.5, được xác định theo phép nội suy tuyến tính.
b) Đối với lò có góc dốc thay đổi, mô men hãm phải được tính cho một trong các đoạn có góc dốc không đổi và lấy giá trị lớn nhất;
c) Phanh công tác phải đảm bảo mô men hãm không nhỏ hơn mô men do phanh an toàn tạo ra khi trục tải ở trạng thái đứng yên;
d) Khi hoán vị tang quay ở trạng thái không tải, cơ cấu phanh phải tạo ra trên tang mô men hãm không nhỏ hơn 1,2 lần mô men tĩnh tạo ra bởi trọng lượng thùng rỗng, trọng lượng của cáp treo tải và cáp cân bằng. Khi hoán vị tang quay và chuyển dịch thùng trục, cấm người ở trong thùng trục và giếng;
e) Đối với các tời đào lò và tời treo thang cấp cứu có tốc độ chuyển động của cáp đến tương ứng 0,29m/s và 0,35m/s, các mô men hãm được tạo ra riêng biệt bởi phanh công tác cũng như phanh an toàn không được nhỏ hơn 2 lần mô men tĩnh lớn nhất của tải trọng, đồng thời việc đóng phanh an toàn phải kéo theo tác động tự động phanh công tác.
7. Thời gian chạy không tải của phanh an toàn máy nâng đang hoạt động không được vượt quá:
a) 0,5s - đối với truyền động khí nén;
b) 0,6s - đối với truyền động thuỷ lực;
c) 0,3s - đối với truyền động khí nén - lò xo và thuỷ lực - lò xo, cũng như đối với tất cả cơ cấu phanh theo thiết kế mới;
Hành trình không tải là khoảng thời gian từ thời điểm cắt mạch bảo vệ đến thời điểm phát sinh lực trong cơ cấu thừa hành của phanh.
d) Thời gian tác động của phanh không phụ thuộc vào bất kỳ loại truyền động nào và không được vượt quá 0,8s. Thời gian tác động của phanh là khoảng thời gian từ thời điểm cắt mạch bảo vệ đến thời điểm sản sinh lực hãm bằng giá trị tải trọng tĩnh;
e) Đối với các tời đào giếng, khoảng thời gian chạy không tải không được vượt quá 1,5s;
g) Ở trường hợp các trục tải cáp một đầu mút trong lò nghiêng, khi phanh an toàn không loại trừ được sự không đồng tốc giữa goòng và cáp, phải trang bị bộ phận điều khiển bằng phanh an toàn đảm bảo loại trừ sự không đồng tốc đó khi phanh tác động. Trong thời gian dừng, mô men hãm trên tang có giá trị không nhỏ hơn các giá trị đã cho trong khoản 6 Điều này. Thời gian tác động phanh an toàn khi đó có thể vượt quá 0,8s.
8. Sau khi thay thế các chi tiết (guốc phanh, thanh kéo, xi lanh) cần phải tiến hành thử nghiệm hệ thống phanh. Các kết quả thử nghiệm phải được lập thành biên bản.
9. Các lớp cáp quấn trên tang
a) Đối với trục tải chở người và hàng - người ở giếng đứng và lò nghiêng trên 600 chỉ được phép quấn 1 lớp cáp trên tang máy;
b) Đối với trục tải giếng đứng chở hàng đặt trên mặt đất và của trục tải chở người và hàng - người trong lò có góc dốc từ 300 đến 600 cho phép quấn 2 lớp cáp trên tang máy;
c) Việc quấn 3 lớp cáp trên tang được phép đối với các trục tải còn lại đang vận hành khi đào giếng đứng và nghiêng;
d) Lớp lót của tang phải có rãnh cáp, không phụ thuộc vào số các lớp cáp quấn;
e) Đối với trục tải sự cố, sửa chữa và trục tải phụ trợ chở hàng (thải đất đá, nâng, hạ hàng và các vật liệu phụ trợ trong giếng và lò nghiêng khu vực) cũng như đối với tời đào lò và treo thang cấp cứu (có tốc độ tương ứng không lớn hơn 0,2m/s và 0,35m/s) cho phép quấn nhiều lớp cáp;
g) Tang quấn nhiều lớp cáp (từ 02 lớp cáp trở lên) phải đảm bảo các điều kiện sau đây:
- Vành mép tang phải cao hơn lớp cáp quấn trên cùng bằng 2,5 lần đường kính cáp;
- Đối với phần nguy hiểm của cáp (1/4 chiều dài vòng cuối của lớp dưới chuyển tiếp lên lớp trên) phải được tăng cường quan sát (tính các sợi bị rách, đứt ở vị trí này) và cứ 2 tháng một lần phải chuyển dịch cáp lên 1/4 vòng;
h) Tang của tời đào lò phải có vành mép về 2 phía, cao hơn lớp cáp quấn trên cùng không nhỏ hơn 2,5 lần đường kính cáp;
i) Đối với trục tải giếng nghiêng đang hoạt động, khi tiến hành đào tiếp các mức tầng cho phép tăng số lớp cáp đã nêu trên lên một lớp với điều kiện thực hiện những yêu cầu của điểm a và điểm b khoản 9 Điều này và khi có cơ cấu để chuyển tiếp trơn tru cáp từ lớp này sang lớp khác. Đối với tang quấn 4 lớp, ngoài quy định trên, phải có bảo vệ loại trừ khả năng làm việc của máy trục khi cáp cuốn lên lớp thứ 5;
k) Đối với tời đào lò, có tốc độ không lớn hơn 0,2m/s, cho phép vành tang cao hơn lớp quấn trên cùng không nhỏ hơn 1,5 lần đường kính cáp;
l) Không bắt buộc có lớp lót và rãnh cáp trên tang của tời đào lò có tốc độ không lớn hơn 0,2 m/s và tời treo thang cấp cứu có tốc độ đến 0,35m/s;
m) Cho phép tang của trục tải chở hàng - người quấn 2 hoặc 3 lớp trong thời kỳ đào các lò bằng và nghiêng, cũng như khi cần phải đào các lò của sân ga giếng sử dụng giếng thùng skip với điều kiện: Ngoài việc tuân theo chỉ dẫn ở trên, phải lập biện pháp bổ sung đảm bảo an toàn chở người lên - xuống được cơ quan quản lý mỏ có thẩm quyền phê duyệt.
10. Giảm lực căng cáp tại vị trí bắt cáp vào tang
a) Để giảm lực căng cáp tại vị trí bắt chặt cáp vào tang, trên bề mặt của tang phải còn lại không ít hơn 3 vòng ma sát với lớp lót bằng gỗ hoặc vật liệu ép, và không ít hơn 5 vòng khi tang không được lót bằng vật liệu ma sát;
b) Các tời đào lò dùng để treo sàn, lan can bảo hiểm, ván khuôn, đường ống dẫn, cáp dẫn hướng phải được trang bị những phương tiện bảo vệ lực căng của cáp do cơ quan quản lý mỏ có thẩm quyền quyết định.
Điều 85. Trang bị tín hiệu và thông tin liên lạc
1. Mỗi trục tải phải được trang bị thiết bị truyền tín hiệu từ các vị trí theo sơ đồ sau:
a) Tín hiệu một chiều từ miệng giếng (sàn tiếp nhận trên) tới vị trí điều khiển tời, trục tải;
b) Tín hiệu hai chiều từ miệng giếng tới các sàn tiếp nhận dưới (sân giếng) và ngược lại từ các sàn tiếp nhận dưới tới miệng giếng.
2. Mỗi tời, trục phải được trang bị tín hiệu kiểm tra, sửa chữa và chỉ được phép sử dụng trong thời gian xem xét, kiểm tra, sửa chữa giếng.
3. Đối với trục tải chở người và hàng - người (ở các lò có góc dốc lớn hơn 500), ngoài tín hiệu làm việc và sửa chữa ra phải có tín hiệu dự phòng được cấp điện từ nguồn riêng biệt bằng cáp điện riêng, trừ trường hợp tồn tại 2 trục tải trong cùng một giếng và mỗi trục tải đó đảm bảo chở người lên - xuống từ tất cả các mức tầng khai thác. Chức năng hệ thống tín hiệu dự phòng không được khác với hệ thống tín hiệu làm việc;
4. Khi chở người từ dưới mỏ lên bằng thùng skip trong các trường hợp sự cố được dự tính trước trong phương án ƯCSC - TKCN, phải đảm bảo khả năng truyền được tín hiệu từ các mặt bằng sân ga đến sàn tiếp nhận trên và từ sàn tiếp nhận trên đến người vận hành trục tải.
5. Trục tải phục vụ cho một số mức, tầng phải có thiết bị chỉ rõ được mức tầng nào đã phát ra tín hiệu, cũng như phải có thiết bị không cho phép chuyển đến đồng thời các tín hiệu từ những điểm hay tầng khác nhau.
6. Trang bị thiết bị tín hiệu từ thùng cũi
a) Thùng cũi phải được trang bị tín hiệu và chỉ có người điều khiển thùng cũi đã qua đào tạo chuyên nghiệp, được Giám đốc điều hành mỏ quyết định bổ nhiệm mới được phát tín hiệu từ thùng cũi cho người vận hành máy;
b) Đối với trục tải một cáp chở hàng - người được trang bị thiết bị tín hiệu ở thùng cũi, phải có tín hiệu ở các sàn tiếp nhận hàng, cũng như thiết bị không cho phép phát đồng thời tín hiệu từ thùng cũi và từ các sàn tiếp nhận hàng khác nhau đến cùng một lúc.
7. Trang bị thiết bị tín hiệu tại các toa xe chở người
a) Các toa xe goòng chở người trong lò bằng phải được trang bị thiết bị để phát tín hiệu cho người lái tàu;
b) Đối với trục tải chở người bằng các toa xe chở người trong lò có góc dốc đến 500, phải có hệ thống tín hiệu đảm bảo cho người phụ trách đoàn xe phát được tín hiệu từ đoàn xe đến thợ trực tín miệng giếng và thợ máy trục tải. Hệ thống tín hiệu này có thể được sử dụng khi xem xét, kiểm tra, sửa chữa lò và đường ray cũng như để phát tín hiệu “dừng” trong các trường hợp sự cố;
c) Nếu đoàn xe chở người có nhiều hơn 3 toa xe, phải có hệ thống tín hiệu cho phép tất cả những người trong các toa phát được tín hiệu cho người phụ trách đoàn tàu;
d) Tại các sàn tiếp nhận hàng của lò nghiêng nói trên phải được đảm bảo thông tin liên lạc bằng điện thoại hoặc loa phóng thanh đến với thợ máy trục.
8. Trang bị thiết bị tín hiệu ở trục tải đào giếng
a) Mỗi trục tải được sử dụng để đào giếng và đào sâu thêm giếng phải có không ít hơn 2 thiết bị tín hiệu độc lập, một trong các thiết bị đó thực hiện chức năng tín hiệu làm việc, còn thiết bị thứ hai thực hiện chức năng tín hiệu dự phòng và sửa chữa;
b) Thiết bị tín hiệu làm việc phải đảm bảo được khả năng phát tín hiệu từ gương giếng lên sàn đào giếng, từ sàn đào giếng đến thợ trực tín hiệu ở miệng giếng và từ thợ trực tín hiệu ở miệng giếng đến người vận hành máy;
c) Trong trường hợp thực hiện chức năng sửa chữa phải phát được tín hiệu từ điểm bất kỳ của giếng;
d) Khi tồn tại trong một giếng 2 trục tải tương đương, các chức năng tín hiệu dự trữ và sửa chữa có thể được thực hiện bằng một thiết bị tín hiệu có khả năng tiếp nhận từ các thùng trục của cả 2 trục tải;
e) Nếu giếng được trang bị nhiều hơn một trục tải, chỉ người trực tín hiệu ở miệng giếng của mỗi trục tải mới được phát tín hiệu vận hành.
9. Sơ đồ hệ thống tín hiệu giếng của tất cả trục tải phải dự tính khả năng phát tín hiệu “dừng” trực tiếp cho người vận hành máy từ bất kỳ mức tầng nào. Mỗi một tín hiệu không hiểu phải được người trực tín hiệu miệng giếng, người trực tín hiệu tại sàn tiếp nhận dưới và người vận hành máy coi như là tín hiệu “dừng”. Người vận hành máy chỉ cho phép trục tải tiếp tục làm việc sau khi xác định nguyên nhân phát tín hiệu không rõ.
10. Cấm phát tín hiệu từ sàn tiếp nhận dưới trực tiếp cho thợ máy không qua người trực tín hiệu miệng giếng, trừ các trường hợp sau:
a) Đối với các thiết bị tín hiệu có khoá liên động không cho khởi động máy cho đến khi nhận được tín hiệu cho phép từ người trực tín hiệu miệng giếng;
b) Đối với trục tải một thùng cũi có truyền tín hiệu từ thùng cũi;
c) Đối với trục tải thùng skip;
d) Đối với trục tải có thùng cũi lật khi chỉ nâng hàng;
e) Đối với tín hiệu sửa chữa.
11. Trang bị điện thoại, đàm thoại
a) Giữa người vận hành máy trục và người trực tín hiệu miệng giếng cũng như giữa người trực tín hiệu miệng giếng và người trực tín hiệu sàn tiếp nhận dưới phải có liên lạc điện thoại trực tiếp. Yêu cầu này áp dụng cả đối với trục tải thùng skip, giữa người vận hành máy và những người thao tác công việc chất - dỡ tải;
b) Đối với mỏ xây dựng mới trước khi bàn giao vào sản xuất, ngoài quy định tại khoản 1 Điều này, phải đặt liên lạc sản xuất bằng loa đàm thoại (phóng thanh) 2 chiều;
c) Khi đào và đào sâu thêm giếng phải trang bị liên lạc điện thoại trực tiếp 2 chiều từ mặt đất với sàn công tác đào giếng.
Điều 86. Những quy định về sử dụng trục tải
1. Quy định về kiểm tra kỹ thuật an toàn
a) Các thùng trục, phanh dù, cơ cấu hãm, cơ cấu treo, bạc dẫn hướng, cơ cấu ra, vào phương tiện vận tải, thiết bị chất dỡ tải, các puli dẫn hướng, đổi hướng cùng với tấm lót tang và ổ bi, hệ thống phanh và các linh kiện khác của máy trục, thiết bị bảo vệ và hệ thống điều khiển phải được kiểm tra hàng ngày bởi Phó quản đốc Phân xưởng trục tải hoặc người chuyên trách được bổ nhiệm bằng quyết định của Giám đốc điều hành mỏ. Hàng ngày khung giếng được kiểm tra với tốc độ di chuyển của thùng trục đến 1m/s và ít nhất một lần trong tuần với tốc độ 0,3m/s. Các phần của giếng đang nằm trong chương trình sửa chữa phải được kiểm tra hàng ngày với tốc độ 0,3m/s;
b) Cho phép tiến hành đồng thời việc kiểm tra khung giếng trong các khoang giáp nhau của giếng từ các thùng trục khi chênh lệch độ cao giữa các thùng trục này không lớn hơn 5m;
c) Trước thời điểm treo cáp mới và sau đó ít nhất một lần trong quý, Trưởng phòng cơ điện hoặc kỹ sư cơ điện chuyên trách phải kiểm tra các puli về tiết diện và chiều dày rãnh;
d) Ít nhất 1 lần trong 1 tuần, Quản đốc phân xưởng trục tải hoặc kỹ sư cơ điện chuyên trách phải tiến hành kiểm tra độ chính xác làm việc của các bộ phận còn lại của trục tải. Kết quả kiểm tra phải được ghi vào trong sổ kiểm tra trục tải;
e) Việc xem xét, kiểm tra các tháp giếng kim loại và bê tông cốt thép phải được tiến hành một lần trong năm, còn tháp giếng bằng gỗ và tháp tời đào lò hai lần trong năm. Kết quả kiểm tra phải được Giám đốc điều hành mỏ hoặc người được uỷ quyền ký duyệt.
Việc kiểm tra thực hiện theo mẫu số 02, Phụ lục VII của Quy chuẩn này.
2. Quy định đối với người vận hành
a) Người vận hành máy trục phải là người có thời gian làm việc ở mỏ ít nhất một năm, qua lớp đào tạo chuyên ngành và có giấy chứng nhận đã qua 2 tháng thực hành tại máy trục đó, được Giám đốc điều hành mỏ quyết định bổ nhiệm;
b) Người vận hành trục tải chở người và hàng - người, cũng như trục tải nhiều cáp phải là người đã làm việc từ một năm trở lên tại các máy trục đó, được Giám đốc điều hành mỏ quyết định bổ nhiệm;
c) Người vận hành máy trục đào giếng phải là người đã qua đào tạo chuyên ngành, có giấy chứng nhận, qua 3 tháng thực tập đạt yêu cầu được Giám đốc điều hành mỏ quyết định bổ nhiệm;
d) Khi chuyển công việc vận hành từ trục tải này sang trục tải khác, cũng như khi nghỉ làm việc hơn một tháng, bắt buộc người vận hành trục tải phải thực tập điều khiển lại. Thời hạn thực tập do Giám đốc điều hành mỏ quy định;
e) Trong thời gian chở người lên - xuống trong ca, ngoài người vận hành máy chính còn phải có người vận hành thứ hai có quyền điều khiển trục tải, có trách nhiệm quan sát suốt quá trình vận hành và sử dụng những biện pháp cần thiết trong trường hợp xuất hiện dấu hiệu làm việc không bình thường của trục tải và thao tác không đúng của người vận hành máy chính trong ca;
g) Người vận hành máy trục khi nhận ca, trước khi bắt đầu làm việc phải kiểm tra sự hoàn hảo của máy phù hợp với Quy trình vận hành trục tải. Chỉ được phép chở người lên - xuống sau khi đã chạy thử thùng trục không tải lên - xuống. Kết quả kiểm tra bắt buộc người vận hành máy phải ghi vào sổ giao - nhận ca;
h) Người vận hành máy trục bắt buộc phải báo cáo cho Quản đốc Phân xưởng trục tải về tất cả các hư hỏng phát hiện được. Phân xưởng trục tải phải ghi nguyên nhân hư hỏng và biện pháp khắc phục vào sổ giao - nhận ca.
Việc kiểm tra theo quy định tại điểm d và e khoản này thực hiện theo mẫu sổ 3, Phụ lục VII của Quy chuẩn này.
3. Quy định đối với thợ trực tín hiệu
a) Trong thời gian trục tải thùng cũi làm việc, tại sàn tiếp nhận trên và sàn tiếp nhận của các mức tầng đang hoạt động phải có thợ trực tín hiệu, thợ tháo móc goòng. Khi người ra - vào thùng cũi ở cả 2 phía, phải có người phụ giúp về an toàn ở hai bên thùng cũi;
b) Nếu đưa người ra - vào đồng thời trong một số tầng của thùng cũi nhiều tầng, mỗi sàn tiếp nhận phải có một người trực tín hiệu miệng giếng và một người trực tín hiệu sân giếng. Người trực tín hiệu miệng giếng và người trực tín hiệu sân giếng phải phát những tín hiệu tương ứng cho người trực tín hiệu miệng giếng chính và người trực tín hiệu sân giếng chính;
c) Đối với các mức tầng trung gian không thực hiện giao - nhận hàng và có trang bị tín hiệu làm việc để phát tín hiệu cho người vận hành máy và người trực tín hiệu miệng giếng, cũng như có liên lạc điện thoại trực tiếp với họ, cho phép chở người lên - xuống không có mặt người trực tín hiệu sân giếng với những điều kiện sau đây:
- Trong thùng cũi có người phụ trách thùng cũi (thợ sân giếng);
- Trong thùng cũi có thiết bị để truyền tín hiệu trực tiếp đến người tín hiệu miệng giếng và người vận hành máy, cũng như có liên lạc điện thoại;
d) Khi trục tải vận hành có người phụ trách thùng cũi điều khiển không bắt buộc có mặt người trực tín hiệu miệng giếng và người trực tín hiệu sân giếng.
4. Quy định về bảng chỉ dẫn
Tại tất cả các điểm chở người lên - xuống (sân ga giếng) và trong buồng máy phải treo các bảng với những chỉ dẫn sau đây:
a) Họ và tên người có trách nhiệm tổ chức chở người lên - xuống an toàn;
b) Bảng giờ người lên xuống;
c) Các tín hiệu được sử dụng;
d) Số người được chở lên - xuống cùng một lúc trong mỗi tầng của thùng cũi, thùng đào lò hoặc trong mỗi toa goòng;
e) Những điều cấm hoặc hạn chế sử dụng trục tải chở người lên - xuống trong các ga giếng và hướng dẫn cho người vận hành máy, người làm việc ở giếng và người trực tín hiệu miệng giếng, có giải thích nguyên nhân của các điều cấm và hạn chế đó;
g) Chỉ dẫn mức tải cho phép của thùng cũi và hướng dẫn về quy tắc và định mức chất tải; Đối với trục tải có tang ma sát phải có chỉ dẫn mức tải đồng thời của cả 2 thùng cũi để ngăn ngừa nguy hiểm bị trượt.
5. Thí nghiệm, hiệu chỉnh và kiểm định
a) Trước khi đưa trục tải vào vận hành và sau đó định kỳ mỗi năm 1 lần bộ phận hiệu chỉnh chuyên ngành phải tiến hành kiểm tra và hiệu chỉnh trục tải theo quy định với sự tham gia của Phó Giám đốc cơ điện mỏ hoặc người được uỷ quyền. Yêu cầu này không áp dụng đối với tời chở thiết bị và vật liệu lên - xuống;
b) Các trang thiết bị của trục tải tự động phải được kiểm tra và hiệu chỉnh 6 tháng 1 lần;
c) Ít nhất 1 lần trong năm, Trắc địa trưởng mỏ phải tiến hành kiểm tra toàn bộ các mối liên kết hình học của trục tải mỏ và tháp giếng. Kết quả kiểm tra phải được lập hồ sơ trình Giám đốc điều hành mỏ duyệt. Một bản của hồ sơ này chuyển cho Phó Giám đốc cơ điện mỏ;
d) Sau khi kiểm tra và hiệu chỉnh trục tải, Phó Giám đốc cơ điện mỏ và đại diện Đội hiệu chỉnh chuyên ngành tiến hành kiểm tra, thử nghiệm trục tải. Biên bản kiểm tra thử nghiệm phải được cơ quan quản lý mỏ có thẩm quyền duyệt;
e) Định kỳ sau 6 tháng vận hành, mỗi trục tải trong sản xuất và đào lò phải được kiểm tra kỹ thuật và thử nghiệm bởi Hội đồng do Phó Giám đốc cơ điện làm chủ tịch;
g) Khối lượng kiểm tra kỹ thuật và thử nghiệm trục tải được thực hiện theo các quy định hiện hành;
Việc kiểm tra kỹ thuật và thử nghiệm phải được lập thành văn bản theo nội dung tại các mẫu sổ 1, 2 và 3, Phụ lục VII của Quy chuẩn này;
h) Khối lượng công việc, nội dung kiểm định thực hiện theo Tiêu chuẩn Việt Nam về Thiết bị nâng TCVN 4244-2005.
6. Quy định về hồ sơ kỹ thuật trục tải
Ở mỗi trục tải phải có các hồ sơ kỹ thuật sau:
a) Biểu đồ làm việc của máy trục được Giám đốc điều hành mỏ duyệt, có chỉ dẫn thời gian thực hiện việc kiểm tra hàng ngày các bộ phận của trục tải;
b) Hộ chiếu máy nâng và hộp số;
c) Sơ đồ chi tiết của hệ thống phanh có chỉ dẫn các kích thước cơ bản;
d) Các sơ đồ nguyên lý và lắp ráp về điện;
e) Sơ đồ cơ cấu phanh dù với các kích thước phải được kiểm tra;
g) Quy trình vận hành trục tải;
h) Sổ kiểm tra trục tải, sổ kiểm tra và theo dõi mức tiêu hao cáp, sổ giao, nhận ca.
i) Các sơ đồ cơ cấu phanh, sơ đồ điện, thiết bị phanh dù và quy trình vận hành phải được treo tại trạm trục tải.
Việc kiểm tra thực hiện theo mẫu số 02, Phụ lục VII của Quy chuẩn này.
Điều 87. Quy định chung
1. Cáp thép được sử dụng cho thiết bi vận tải mỏ hầm lò phải phù hợp với hộ chiếu máy hoặc những chỉ dẫn kỹ thuật.
2. Chỉ được phép sử dụng các loại cáp thép khác có cấu tạo và đặc tính kỹ thuật tương đương với cáp thép đã được phép sử dụng.
3. Các cáp nâng và kéo của thiết bị vận tải chở người và hàng - người phải nằm trong các nhóm có mã hiệu riêng biệt.
Điều 88. Dự trữ độ bền cáp thép
1. Cáp thép dùng cho thùng trục và đối trọng của thiết bị vận tải mỏ phải có dự trữ độ bền khi treo không thấp hơn:
a) 9 lần đối với trục tải chở người và trục tải sự cố, sửa chữa, trục tải 2 cáp có tang ma sát không có trang bị phanh dù để chở người và hàng người (khi tính theo số người);
b) 8 lần đối với trục tải có tang ma sát bao gồm trục tải một cáp chở người, hàng - người, hàng và trục tải nhiều cáp chở người;
c) 7,5 lần đối với trục tải chở hàng - người, đối với giá treo các máy xúc bốc cơ khí (máy xúc gầu ngoạm) trong giếng và cửa khoang sàn đào lò;
d) 7 lần đối với trục tải nhiều cáp chở hàng;
e) 6,5 lần đối với trục tải chở hàng;
g) 6 lần đối với trục tải sự cố di động, treo thang cấp cứu, các đường dẫn bằng cáp đang vận hành, các cáp để treo giàn đào lò, treo bơm, treo đường ống thoát nước và treo các tổ hợp đào lò;
h) 5,5 lần đối với các cáp cân bằng có lõi bằng cao su;
i) 5 lần đối với cáp của thiết bị dùng để khấu, đường dẫn hướng bằng cáp của trục tải đào lò, cáp treo thiết bị đào lò trừ những chỉ dẫn trong điểm c và g khoản 1 Điều này, đối với các cáp trục tải mới khi hạ 1 lần các tải trọng quá khổ (quá định mức) ở dưới thùng trục và khi treo hoặc thay thùng trục cho trục tải nhiều cáp;
k) 3 lần so với tải trọng động đối với các cáp hãm và cáp giảm chấn của phanh dù;
l) 10 lần đối với cáp buộc được sử dụng nhiều lần khi hạ các tải trọng quá cỡ và cồng kềnh dưới các thùng trục và đối với cáp thép dùng trong hệ thống tín hiệu của trục tải chở hàng - người và người.
2. Mối nối của cáp cân bằng có lõi cao su phải có dự trữ độ bền phù hợp với những quy định về treo và vận hành an toàn cáp cân bằng có lõi cao su chịu lửa cho trục tải thùng skíp của mỏ hầm lò.
3. Các cáp trục tải giếng đứng với chiều dài cực đại theo dây dọi lớn hơn 600m, được treo theo tỷ lệ lực kéo đứt tổng cộng của tất cả các sợi cáp so với tải trọng đầu cáp (không kể khối lượng cáp nâng), tỷ lệ này (dự trữ độ bền) không nhỏ hơn:
a) 13 lần đối với trục tải chở người;
b) 10 lần đối với trục tải chở hàng - người;
c) 8,5 lần đối với trục tải chở hàng;
d) 11,5 lần đối với trục tải có tang ma sát, trục tải một cáp chở người, hàng - người, hàng và trục tải nhiều cáp chở người và hàng - người, trừ trục tải 2 cáp không được trang bị phanh dù;
e) 9,5 lần đối với trục tải nhiều cáp chở hàng;
g) Dự trữ độ bền của cáp có tính đến khối lượng cáp không được thấp hơn 4,5 lần đối với trục tải chở hàng và 5 lần đối với trục tải chở người và hàng - người.
4. Đối với trục tải một cáp có đường dẫn hướng bằng cáp cho cả 2 thùng trục, các cáp treo tải cùng một đường kính, cùng loại kết cấu và chiều bện.
5. Đối với trục tải nhiều cáp, không phụ thuộc vào mục đích sử dụng, phải có ít nhất 2 cáp cân bằng.
6. Các cáp kéo của đường vận tải phụ trợ phải có dự trữ độ bền khi treo không thấp hơn:
a) 6 lần đối với đường chở người bằng cáp trong hầm lò, các monoray và ray đặt trên nền khi tính theo số người;
b) 5 lần đối với monoray và ray đặt trên nền khi tính theo hàng, các tời phụ trợ trong lò nghiêng;
c) 4 lần đối với các tời cào than, dồn dịch và phụ trợ (theo các lò bằng).
7. Dự trữ độ bền của cáp kéo các đường chở người bằng cáp treo trong hầm lò không thấp hơn 6 lần.
8. Khi vận tải bằng cáp vô tận theo lò nghiêng phải sử dụng cáp có dự trữ độ bền khi treo không thấp hơn:
a) 5,5 lần khi chiều dài vận tải đến dưới 300m;
b) 5 lần khi chiều dài vận tải từ 300 đến dưới 600m;
c) 4,5 lần khi chiều dài vận tải từ 600 đến dưới 900m;
d) 4 lần khi chiều dài vận tải từ 900 đến 1200m;
e) 3,5 lần khi chiều dài vận tải lớn hơn 1200m;
g) Các cáp để dịch chuyển các thiết bị trong gương phải có dự trữ độ bền không thấp hơn 3 lần so với lực kéo định mức trên các tang làm việc;
h) Cáp bảo hiểm của các máy trong gương phải có dự trữ độ bền không thấp hơn 6 lần so với khối lượng của máy có tính đến góc dốc của vỉa.
Điều 89. Thử nghiệm cáp
1. Các cáp mỏ phải được thử nghiệm theo đúng thời gian và quy định hiện hành về thử nghiệm cáp trục tải.
2. Cáp dự trữ trước khi treo có thể không phải thử nghiệm lần thứ hai, nếu như thời hạn bảo quản không quá 12 tháng.
3. Cáp nâng của trục tải mỏ giếng đứng và giếng nghiêng (trừ cáp của trục tải hàng có góc dốc dưới 300), cáp treo sàn công tác, thang cấp cứu và khoang sàn đào lò phải được thử nghiệm trước khi treo.
4. Cáp cân bằng có lõi cao su chịu lửa phải được thử nghiệm phù hợp quy định về treo và vận hành an toàn hiện hành cho trục tải thùng skip của mỏ hầm lò.
6. Các cáp đã thử nghiệm trước khi treo, phải được thử nghiệm lặp lại (trừ cáp nâng bện 6 dảnh có lõi bằng vật liệu hữu cơ trong giếng đứng và cáp của trục tải thùng cũi chở người và hàng - người trong giếng nghiêng có góc dốc lớn hơn 600 đã được kiểm nghiệm bằng thiết bị dò khuyết tật, cáp trục tải có tang ma sát loại một cáp và nhiều cáp, cáp treo sàn công tác) trong các thời hạn sau đây:
a) 6 tháng đối với trục tải chở người và hàng - người, cũng như đối với cáp treo khoang sàn đào lò;
b) 12 tháng sau khi treo và sau đó cứ 6 tháng một lần đối với trục tải chở hàng, trục tải sửa chữa - sự cố và di động, cũng như treo thang cấp cứu;
c) 6 tháng sau khi treo và sau đó cứ 3 tháng một lần - đối với cáp nâng bện nhiều dảnh không mạ kẽm bước xoắn dài của trục tải chở hàng - người và hàng.
7. Thời hạn các lần thử nghiệm lặp lại cáp được tính từ thời điểm treo.
8. Các cáp được sử dụng để treo thang cấp cứu và treo khoang sàn đào lò có thể không phải thử lặp lại nếu như được kiểm nghiệm bằng thiết bị dò khuyết tật phù hợp với các yêu cầu quy dịnh tại Bảng IV.6, Điều 90 của Quy chuẩn này.
9. Cáp nâng bện 6 dảnh của trục tải tang trống chở người và hàng - người có cơ cấu hạ thùng cứng phải được kẹp chặt lại cơ cấu móc nối không ít hơn 1 lần trong 6 tháng.
10. Cáp phải được loại bỏ và thay mới sợi khác nếu như khi thử nghiệm lặp lại có:
a) Dự trữ độ bền thấp hơn 7 lần đối với trục tải chở người và trục tải sự cố, sửa chữa; 6 lần đối với trục tải chở hàng - người và treo khoang sàn đào lò; 5 lần đối với trục tải chở hàng, trục tải di động và treo thang cấp cứu;
b) Tiết diện tổng cộng của các sợi nhỏ không chịu được thử nghiệm về đứt và uốn chiếm đến 25% tiết diện tổng cộng theo mặt cắt của tất cả các sợi của cáp;
c) Đối với cáp có chiều dài cực đại theo dây dọi lớn hơn 600m trong giếng đứng đã được tính theo dự trữ độ bền thay đổi áp dụng theo quy định tại khoản 1 Điều này.
10. Các cáp kéo, cáp căng của đường vận tải bằng cáp chở người trong hầm lò, cáp kéo của các đường vận tải monoray và đường sắt đặt trên nền phải được thử nghiệm trước khi treo.
11. Các cáp kéo của đường monoray và đường sắt đặt trên nền được thử nghiệm trước khi treo và phải được thử nghiệm lặp lại sau 6 tháng sử dụng. Nếu như khi thử nghiệm lặp lại diện tích tổng cộng các sợi nhỏ không chịu được thử nghiệm về đứt và uốn chiếm đến 25% tổng tiết diện theo mặt cắt của tất cả các sợi của cáp, cáp phải được thay.
12. Các cáp kéo của đường vận tải bằng cáp chở người (vận tải tời dây) trong hầm lò không phải thử nghiệm lặp lại.
Điều 90. Kiểm tra cáp
1. Cấm treo hoặc cho cáp thép tiếp tục làm việc khi có các dảnh bị rách, lồi hoặc lõm, có nút và những hư hỏng khác cũng như có độ mòn lớn hơn 10% đường kính định mức.
2. Việc sử dụng các cáp nối chỉ được phép để kéo hàng trong lò bằng, lò nghiêng có góc dốc đến 300 khi vận tải bằng cáp vô tận cũng như các đường vận tải trong hầm lò bằng cáp treo chở người, monoray và đường sắt đặt trên nền.
3. Khi đào giếng, trong trường hợp để treo thiết bị mà cáp có chiều dài lớn hơn 1000m, cho phép nối các cáp bằng vòng cốt ghép đôi có đầu trấu kẹp chặt trên mỗi nhánh cáp.
4. Cáp trục tải mỏ phải được những người chuyên trách do Giám đốc điều hành mỏ chỉ định tổ chức kiểm tra theo những thời hạn sau đây:
a) Hàng ngày đối với cáp nâng thùng trục và đối trọng của trục tải giếng đứng và nghiêng, cáp cân bằng của trục tải có tang ma sát, cáp treo máy xúc bốc cơ khí (máy xúc gầu ngoạm) khi đào giếng;
Đối với trục tải nhiều cáp, khi số các sợi bị rách, đứt không vượt quá 2% tổng số sợi của cáp trên chiều dài một bước bện, cho phép một người tiến hành kiểm tra đồng thời không nhiều hơn 4 cáp treo tải. Khi trên một cơ cấu treo có 2 cáp cân bằng có lõi cao su thì một người có thể xem xét, kiểm tra các cáp đó;
b) Hàng tuần, đối với cáp cân bằng của trục tải kiểu tang trống, cáp hãm và dẫn hướng, cáp treo sàn, cáp treo cáp điện và thiết bị đào lò, cũng như cáp nâng và cáp cân bằng có lõi cao su phải có sự tham gia của kỹ sư cơ điện chuyên trách trục tải của mỏ;
c) Hàng tháng đối với cáp giảm chấn và cáp của thiết bị dùng để khấu, cáp nâng và cân bằng, kể cả những phần của các cơ cấu bắt chặt có sự tham gia của Phó Giám đốc cơ điện hoặc kỹ sư cơ điện chuyên trách trục tải của mỏ; các cáp thường xuyên ở trong giếng có sự tham gia của Phụ trách cơ điện đào giếng mỏ đang xây dựng hoặc của kỹ sư cơ điện chuyên trách trục tải của mỏ.
5. Cáp phải được kiểm tra trên suốt chiều dài với tốc độ không quá 0,3m/s. Các đoạn cáp bị hư hỏng cũng như các vị trí nối cáp có lõi cao su phải được kiểm tra ở trạng thái tĩnh. Các đoạn cáp có số sợi hư hỏng trên mỗi bước bện không quá 2% cho phép tiến hành kiểm tra với tốc độ không quá 1m/s. Trong trường hợp này một người tiến hành kiểm tra đồng thời không quá 2 cáp của trục tải nhiều cáp.
6. Cấm vận hành các cáp thép bện dảnh khi trên phần nào đó có các điểm đứt với số sợi bị đứt trên một bước bện so với tổng số sợi của cáp đó đến
a) 5% đối với cáp nâng thùng trục và đối trọng, cáp treo giàn và máy xúc bốc cơ khí (máy xúc gầu ngoạm);
b) 10% đối với cáp vận tải đầu mút chở hàng trong lò nghiêng có góc dốc đến 300; các cáp cân bằng, hãm, giảm chấn, dẫn hướng và các thiết bị khấu;
7. Nếu đoạn cáp bị hỏng ở gần vị trí bắt chặt cáp vào cơ cấu móc nối, cho phép cắt bỏ và kẹp chặt lại cáp trong vòng cốt.
8. Trong sổ kiểm tra và theo dõi mức tiêu hao cáp phải ghi rõ đoạn (bước bện) bị hư hỏng nhiều nhất, trên đó số sợi bị rách, đứt vượt quá 2% tổng số sợi của cáp.
Nội dung kiểm tra quy định tại khoản 6, 7, 8 Điều này thực hiện theo mẫu sổ 04, Phụ lục VII của Quy chuẩn này.
9. Cấm vận hành các cáp nâng có kết cấu kín trong các trường hợp sau:
a) Các sợi của lớp ngoài bị mòn lớn hơn một nửa đường kính của nó;
b) Hỏng khoá móc nối định hình của các sợi bên ngoài (các sợi bị bong ra);
c) Có một sợi bị tuột ra khỏi khoá móc nối mà không thể nhét vào trong cáp hoặc không hàn lại được;
d) Có 3 sợi bị rách, đứt (kể cả các sợi đã hàn) ở tiết diện định hình của lớp ngoài trên đoạn dài bằng 5 bước bện hoặc 12 sợi bị rách, đứt trên cả chiều dài làm việc của cáp.
10. Cho phép sử dụng cáp có các đoạn bị cong, uốn mà không bị hỏng khoá móc nối các sợi ngoài và giữ được bề mặt nhẵn cho đến khi bị hỏng rõ rệt khoá (làm phân lớp) của các sợi ngoài hoặc một sợi bị tuột ra khỏi khoá trên đoạn đó.
11. Các cáp dẫn hướng phải thay trong trường hợp sau:
a) Mòn 15% đường kính định mức, nhưng không lớn hơn một nửa chiều cao hoặc đường kính của các sợi lớp ngoài;
b) Trên 100m chiều dài của cáp kết cấu kín phát hiện 2 vị trí bị đứt của các sợi bên ngoài;
c) Các sợi ngoài của cáp kết cấu kín bị đứt, bung ra khỏi khoá.
12. Việc thay thế cáp theo thời gian sử dụng tới hạn phải phù hợp với Bảng IV.6.
Bảng IV.6 Thời hạn sử dụng và thay thế cáp thép trong hầm lò
|
Tên gọi và kết cấu của cáp |
Thời hạn sử dụng tới hạn (năm) |
Trình tự và điều kiện kéo dài thời hạn sử dụng |
|
1 |
2 |
3 |
|
1. Cáp nâng trục tải có tang ma sát 1.1. Cáp bện 6 dảnh có lõi hữu cơ: |
|
|
|
+ Mạ kẽm |
2 |
Theo kết quả kiểm tra độ mòn tiết diện kim loại bằng dụng cụ 6 tháng một lần, có thể kéo dài đến 4 năm. |
|
+ Không mạ kẽm |
1 |
Như trên, nhưng chỉ đến 2 năm |
|
1.2. Cáp bện 6 dảnh có lõi bằng kim loại và cáp bện nhiều dảnh |
1 |
Như trên, nhưng chỉ đến 2 năm |
|
2. Cáp cân bằng của trục tải: |
|
|
|
2.1. Cáp bện 6 dảnh có lõi hữu cơ
|
2 |
Theo kết quả kiểm tra tổn hao tiết diện kim loại bằng dụng cụ 6 tháng một lần, có thể kéo dài đến 4 năm. |
|
2.2. Cáp thép dẹt: + Máy loại tang trống |
4 |
Không kéo dài |
|
+ Máy loại tang ma sát |
2 |
Theo kết quả kiểm tra 6 tháng một lần, có thể kéo dài đến 4 năm đối với cáp mạ kẽm. |
|
2.3. Cáp nhiều dảnh bện tròn, xoắn nhẹ |
2 |
Theo kết quả kiểm tra tổn hao tiết diện kim loại bằng dụng cụ 12 tháng một lần, có thể kéo dài đến 4 năm đối với cáp mạ kẽm. |
|
2.4. Cáp có lõi cao su, từ vị trí nối này đến vị trí nối khác (hoặc đến cơ cấu bắt chặt) |
5 |
Theo kết quả kiểm tra xác định vị trí đứt của các cáp bằng dụng cụ 2 năm 1 lần, có thể kéo dài đến 10 năm |
|
3. Cáp hãm của phanh dù |
4 |
Theo kết quả kiểm tra tổn hao tiết diện kim loại bằng dụng cụ 12 tháng một lần, có thể kéo dài đến 7 năm. |
|
4. Cáp giảm chấn của phanh dù thùng cũi |
5 |
Theo kết quả kiểm tra qua 12 tháng một lần, có thể kéo dài đến 7 năm. |
|
5. Cáp dẫn hướng và cáp của thiết bị dùng để khấu. - Đối với các mỏ trong thời kỳ sản xuất: |
|
|
|
+ Cáp chịu lực kết cấu kín |
15 |
Không kéo dài |
|
+ Cáp bện dảnh |
4 |
Theo kết quả kiểm tra tổn hao tiết diện kim loại bằng dụng cụ 6 tháng một lần, có thể kéo dài đến 7 năm. |
|
- Đối với các mỏ trong thời kỳ xây dựng |
3 |
Như trên, có thể kéo dài đến 5 năm |
|
6. Cáp để treo các sàn và thiết bị đào lò (treo các ống, cáp điện ….) |
|
|
|
6.1. Cáp bện có thể kiểm tra tổn hao tiết diện |
3 |
Như trên, có thể kéo dài đến 7 năm |
|
6.2. Cáp bện không thể kiểm tra tổn hao tiết diện kim loại (thí dụ do điều kiện chật hẹp). |
3 |
Không kéo dài |
|
6.3. Cáp nâng có kết cấu kín |
3 |
Theo kết quả kiểm tra hàng năm độ tổn hao tiết diện kim loại dọc theo chiều dài cáp tới 10 năm, theo kết quả cắt cáp kiểm tra tiết diện tại điểm cuối của cáp tới 7 năm. |
|
7. Để treo máy xúc bốc cơ khí (máy xúc gầu ngoạm) khi đào giếng. |
2 tháng |
Không kéo dài |
13. Thời kỳ sử dụng của cáp được kéo dài theo kết quả kiểm tra, thử nghiệm phải được cơ quan quản lý mỏ có thẩm quyền phê duyệt.
14. Nếu mức quá tải tương đối của một trong các cáp trục tải nhiều cáp khi các thùng trục ở vị trí dưới quá 15% hoặc ở vị trí trên quá 25%, phải dừng trục tải để điều chỉnh sự phân phối tải trọng trên cáp.
15. Các cáp vận tải phụ trợ phải được kiểm tra trong những thời hạn sau:
a) Hàng ngày bởi người chuyên trách đối với cáp treo chở người, chở hàng - người bằng monoray và đường ray đặt trên nền, cáp tời phụ trợ trong lò nghiêng;
b) Hàng tuần bởi Phụ trách cơ điện (khu vực, phân xưởng) đối với các cáp chở người bằng thùng cáp treo, vận tải bằng cáp vô tận, monoray và đường ray đặt trên nền, cáp của tời cào than, tời điện và phụ trợ;
c) 6 tháng 1 lần có sự tham gia của kỹ sư cơ điện chuyên trách trục tải mỏ đối với cáp chở người bằng cáp treo, monoray và đường ray đặt trên nền.
16. Các cáp của những đường vận tải bằng cáp và của tời trong lò bằng và lò nghiêng phải được kiểm tra trên suốt chiều dài với tốc độ chuyển động tối đa là 0,3m/s. Đối với các đường có chiều dài lớn hơn 500m cho phép tiến hành kiểm tra cáp theo từng giai đoạn trong một số ca nhưng không quá chu kỳ kiểm tra quy định.
17. Đối với những đường vận tải bằng cáp đang hoạt động trong lò có góc dốc nhỏ hơn 100, cáp của các tời không điều chỉnh được tốc độ, cho phép tiến hành đi dọc tuyến kiểm tra khi cáp dừng.
18. Cấm vận hành cáp thép bện dảnh trong vận tải phụ trợ khi số lượng các vị trí bị đứt của các sợi trên một bước bện so với tổng số sợi của cáp đến ngưỡng sau đây:
a) 5% đối với cáp của những đường vận tải trong hầm lò chở người bằng cáp treo, mono-ray và ray đặt trên nền;
b) 15% đối với cáp tời chở hàng trong lò nghiêng;
c) 25% đối với cáp của vận tải bằng cáp vô tận trong lò nghiêng, các cáp của tời cào than, dồn dịch và phụ trợ trong lò bằng.
19. Cáp để chuyển dịch và giữ những thiết bị khai thác (trong gương) phải được kiểm tra hàng ca trước khi bắt đầu làm việc.
20. Hàng tuần các Trưởng ca, Phó Quản đốc cơ điện phân xưởng phải tiến hành kiểm tra các cáp đó, xác định số sợi bị đứt tối đa của các sợi trên một bước bện.
21. Cáp phải được thay thế khi trên một bước bện số vị trí bị đứt của các sợi đến 10% tổng số sợi của cáp.
Điều 91. Kiểm tra bằng dụng cụ
1. Cáp nâng bện dảnh vận hành trong giếng đứng và ở trục tải thùng cũi chở người và hàng - người trong giếng nghiêng có góc dốc trên 600, phải được kiểm tra bằng dụng cụ để xác định độ mòn tiết diện kim loại trên toàn bộ chiều dài. Thời hạn tiến hành kiểm tra theo quy định tại Bảng IV.7.
2. Cáp cân bằng, hãm, giảm chấn của phanh dù thùng cũi, cáp dẫn hướng, cáp để treo sàn công tác và thiết bị đào lò phải được kiểm tra khi cần kéo dài thời hạn sử dụng theo quy định tại Bảng IV.7.
Bảng IV.7 Thời hạn kiểm tra cáp thép trong hầm lò
|
Công dụng của cáp |
Góc nghiêng đường lò (độ) |
Chu kỳ (tháng) |
|||
|
Đến lần kiểm tra đầu tiên |
Giữa những lần kiểm tra tiếp sau khi mòn tiết diện kim loại, % |
||||
|
Đến 12 |
Đến 15 |
Trên 15 |
|||
|
Cáp nâng: - Tráng kẽm |
90 |
12 |
6 |
1 |
0,5 |
|
-Không có lớp phủ |
90 |
6 |
2 |
1 |
0,5 |
|
Cáp nâng |
Lớn hơn 60 |
6 |
2 |
1 |
0,5 |
|
Cáp treo thang cấp cứu và khoang sàn đào lò |
90 |
6 |
2 |
1 |
0,5 |
3. Cáp phải được thay thế khi mòn tiết diện đến ngưỡng sau:
a) 10% đối với cáp nâng trong giếng đứng có chiều dài treo lớn hơn 900m và được treo tải trọng phù hợp với khoản 3 Điều 88 Quy chuẩn này về tỷ số giữa lực kéo đứt tổng cộng của tất cả các sợi với tải trọng cáp treo tải; đối với cáp nâng của trục tải hai cáp chở người và hàng - người không có trang bị phanh dù, cũng như đối với cáp hãm của phanh dù;
b) 15% đối với cáp nâng có lõi bằng kim loại, cáp bện 3 cạnh có những dảnh tròn được ép dẻo và được treo với dự trữ độ bền theo khoản 1, 2 Điều 88 Quy chuẩn này, cũng như đối với các cáp có kết cấu bất kỳ trong giếng đứng có chiều dài treo nhỏ hơn 900m phù hợp với khoản 3 Điều 88 Quy chuẩn này;
c) 18% đối với cáp bện dảnh tròn có lõi hữu cơ của trục tải giếng đứng và nghiêng chở người và hàng - người, cũng như cáp bện dảnh tròn có đường kính 45mm và nhỏ hơn của trục tải chở hàng được treo với dự trữ độ bền theo khoản 1, 2 Điều 88 của Quy chuẩn này, cũng như đối với cáp định hướng khi mỏ đang xây dựng và sản xuất và cáp treo thiết bị đào lò;
d) 20% đối với cáp bện dảnh tròn đường kính lớn hơn 45mm có lõi hữu cơ của trục tải chở hàng giếng đứng, được treo với dự trữ độ bền không thấp hơn 6,5 lần đối với cáp thiết bị khấu và cáp để treo giàn đào lò;
e) 24% đối với cáp cân bằng;
g) Cáp cân bằng có lõi cao su phải được kiểm tra bằng dụng cụ và thay thế theo quy định hiện hành về treo và vận hành an toàn cáp cân bằng có lõi cao su chịu lửa cho trục tải thùng skip.
4. Kết quả kiểm tra cáp phải được ghi trong cùng ngày vào sổ kiểm tra và theo dõi mức tiêu hao cáp. Trong sổ này cũng phải ghi tất cả, không loại trừ những trường hợp hư hỏng cáp và bộ phận kẹp cáp.
5. Kết quả thử nghiệm phải được ghi vào sổ kiểm tra trục tải.
6. Trong quá trình vận hành, các cáp chịu những tải trọng bất thường lớn hơn định mức thì cần phải nhanh chóng dừng trục tải để xem xét, kiểm tra cáp. Kết quả xem xét, kiểm tra phải được ghi vào trong sổ kiểm tra và theo dõi mức tiêu hao cáp. Trong trường hợp cáp không phù hợp với các yêu cầu quy định trong Quy chuẩn này, phải được thay ngay.
Nội dung kiểm tra quy định tại khoản 4,5 và 6 Điều này thực hiện theo mẫu sổ 04, Phụ lục VII Quy chuẩn này.
Điều 92. Cơ cấu treo và móc nối
1. Thùng cũi của trục tải chở người và hàng - người phải có 2 cơ cấu treo độc lập, một làm việc và một dự phòng.
2. Cho phép không có cơ cấu treo phòng ngừa đối với trục tải nhiều cáp và không phụ thuộc vào công dụng, với điều kiện là các thùng trục và đối trọng được bắt chặt vào cáp tối thiểu 2 điểm. Đối trọng của trục tải 1 cáp không cần trang bị cơ cấu treo bảo hiểm.
3. Cáp cân bằng bện tròn phải được bắt chặt vào thùng trục bằng cơ cấu khớp khuyên.
4. Cơ cấu treo và móc nối khi treo, độ bền dự trữ (so với tải trọng tĩnh tính toán) không được nhỏ hơn
a) 13 lần đối với các cơ cấu treo và móc nối của trục tải chở người cũng như đối với cơ cấu móc nối và quai treo của thùng trục đào lò;
b) 10 lần đối với các cơ cấu treo và móc nối thùng trục của trục tải giếng đứng và của trục tải giếng nghiêng có cáp vô tận không phụ thuộc vào công dụng; đối với các đường monoray và ray đặt trên nền, các cơ cấu móc nối của trang thiết bị đào giếng (giàn, ván khuôn….) và cáp cân bằng của trục tải. Dự trữ độ bền của cơ cấu móc nối cáp cân bằng phải được xác định theo tỷ lệ với trọng lượng của chúng. Các cơ cấu treo và móc nối của trục tải chở hàng - người phải đảm bảo dự trữ độ bền 13 lần, tính theo khối lượng của số người chở xuống đông nhất;
c) 6 lần đối với cơ cấu móc nối của các cáp dẫn hướng và cáp thiết bị khấu, cơ cấu nối móc goòng và cơ cấu móc nối khi vận tải bằng cáp vô tận;
d) 4 lần với giới hạn chảy của vật liệu (đối với cơ cấu móc nối dạng “móc sừng dê” khi vận tải bằng cáp vô tận).
5. Mỗi loại cơ cấu móc nối bắt chặt cáp phải đảm bảo độ bền không nhỏ hơn 85% độ bền của cáp.
6. Đối với các thiết bị nâng - vận tải trong sản xuất, thời hạn sử dụng của các cơ cấu treo và móc nối không được quá 5 năm còn của cơ cấu móc nối và quai treo thùng trục đào lò - không quá 2 năm. Qua biên bản của Hội đồng chuyên ngành, dưới sự chủ trì của Phó Giám đốc cơ điện mỏ, trên cơ sở những kết quả kiểm tra bằng dụng cụ theo phương pháp kiểm tra không phá huỷ, thời hạn sử dụng các cơ cấu treo và móc nối có thể kéo dài, đối với thiết bị nâng - vận tải trong sản xuất là 2 năm và quai treo thùng trục đào lò là 1 năm. Kết quả biên bản của Hội đồng phải được cơ quan quản lý mỏ có thẩm quyền phê duyệt.
7. Quai treo thùng trục đào lò phải được thay hoặc sửa chữa khi lỗ tai quai hoặc ống lót thay thế bên trong tai quai mòn hơn 5% đường kính trục.
8. Độ mòn tổng cộng của lỗ tai quai hoặc ống lót của quai và trục, liên kết quai với thùng trục đào lò không được vượt quá 10% đường kính trục.
9. Cơ cấu móc nối của thùng trục đào lò phải có bộ phận đóng được chắc chắn miệng của móc trong thời gian thùng trục đào lò chuyển động và loại trừ khả năng tự tháo móc.
10. Cơ cấu treo và móc nối phải có nhãn hiệu, các thông số kỹ thuật.
11. Cấm chế tạo các xích sử dụng làm giá treo phòng ngừa bằng phương pháp hàn rèn và hàn điện thủ công.
12. Khi đào các lò nghiêng hoặc đứng có trang bị chở người và hàng lên xuống, các cơ cấu treo trước khi treo phải được thử nghiệm với tải trọng bằng 2 lần tải trọng đầu mút, cũng như phải thử lặp lại ít nhất 1 lần trong 6 tháng, trừ cơ cấu treo của các thiết bị đào lò.
13. Cơ cấu kẹp chặt cáp có vỏ bọc che chắn khi vận tải bằng cáp vô tận trong lò nghiêng phải được thử nghiệm sau mỗi lần kẹp chặt lại bằng cách nâng, hạ tải trọng cực đại.
14. Kết quả thử nghiệm phải được ghi vào sổ kiểm tra trục tải theo mẫu sổ 02, Phụ lục VII của Quy chuẩn này.
TRANG BỊ KỸ THUẬT ĐIỆN
Điều 93. Quy định chung
1. Trang bị kỹ thuật điện mỏ hầm lò phải tuân theo các quy định hiện hành của Nhà nước tại các văn bản sau:
a) Luật điện lực;
b) Quy phạm trang bị điện;
c) Quy chuẩn kỹ thuật quốc gia về an toàn điện;
d) Các Nghị định của Chính Phủ, Thông tư của các Bộ quy định về kỹ thuật và an toàn điện.
2. Ngoài các yêu cầu tại khoản 1 Điều này, trang bị kỹ thuật điện mỏ hầm lò phải tuân theo các quy định về an toàn tại Quy chuẩn này.
3. Cấp điện cho mỏ xây dựng mới và cải tạo
a) Việc cấp điện cho các mỏ xây dựng mới và cải tạo phải được thực hiện theo sơ đồ riêng biệt cho các hộ tiêu thụ điện hầm lò;
b) Trường hợp ngoại lệ phải được phép của cơ quan quản lý mỏ có thẩm quyền.
4. Trung tính máy biến áp mạng cung cấp điện trong hầm lò
a) Cấm sử dụng trong hầm lò lưới điện có tiếp đất trung tính máy biến áp, trừ những máy biến áp dùng để cấp cho các bộ biến đổi của lưới tiếp xúc vận tải bằng đầu tàu điện;
b) Cấm đấu các hộ tiêu thụ và thiết bị điện khác vào lưới điện của máy biến áp phục vụ cấp điện cho mỏ, trừ những trường hợp được quy định trong Quy chuẩn này.
5. Ngoài tiếp đất an toàn phải có rơle rò điện cắt tự động khi lưới điện bị hư hỏng để bảo vệ cho người khỏi bị điện giật từ các thiết bị điện hầm lò có điện áp đến 6000V;
6. Tổng thời gian cắt lưới điện bị hư hỏng có điện áp 380V, 660V và lưới tiếp xúc không được vượt quá 0,2s; với điện áp 1140V là 0,12s. Đối với các lưới có điện áp 127V và 220V cũng như lưới điện nạp ắc quy thời gian tác động của rơle rò điện được quy định trong hướng dẫn của nhà máy chế tạo.
7. Tại các máy biến áp đặt trên mặt bằng và cung cấp cho lưới điện hầm lò phải được trang bị rơle rò điện.
8. Việc điều khiển từ xa và tự động các phụ tải có điện áp trên 1140V, chỉ được phép khi có khoá liên động không cho phép đóng đường dây và các phụ tải có điện trở cách điện với đất thấp hơn mức điện trở cách điện quy định. Yêu cầu này không áp dụng đối với các đường dây cung cấp cho những trạm biến áp trung tâm và phân phối trong hầm lò.
9. Mỗi mỏ hầm lò phải có các sơ đồ cung cấp điện sau:
a) Sơ đồ nguyên lý chung cung cấp điện của mỏ;
b) Sơ đồ cung cấp điện của mỗi khu khai thác, vẽ trên bản đồ lò tương ứng;
c) Sơ đồ cung cấp mạng điện kéo và lưới tiếp xúc của mỏ, vẽ trên bản đồ kế hoạch khai thác của mỗi vỉa (mỗi khu) hoặc trên bản đồ hệ thống các lò của mỏ;
d) Sơ đồ tiếp đất chung cho toàn mỏ;
e) Tất cả các sơ đồ cung cấp điện trên phải được thiết lập phù hợp với thiết kế mẫu các sơ đồ cung cấp điện của mỏ hầm lò;
g) Sơ đồ cung cấp điện cho các thiết bị điện hầm lò thuộc phạm vi quản lý của các tổ chức nhận thầu, phải được duyệt theo quy định của mỏ.
10. Phải tiến hành kiểm tra liên tục hàm lượng của khí Mêtan tại nơi tiến hành công việc khi lắp đặt và sửa chữa các thiết bị điện trong mỏ hầm lò nguy hiểm về khí nổ.
11. Mỗi thiết bị chuyển mạch, thiết bị phân phối trọn bộ, đầu ra của các trạm điều khiển phải được đánh dấu bằng chữ rõ ràng địa chỉ hộ tiêu thụ điện của từng thiết bị hoặc từng khu vực cũng như trị số đặt tác động của bảo vệ dòng cực đại.
12. Các hộp trong đó có đặt các thiết bị bảo vệ điện, cơ cấu khoá liên động và điều chỉnh, phải được kẹp chì có tên người đặt dấu.
13. Cấm các hành vi sau:
a) Thao tác (đóng, cắt) thiết bị điện có điện áp lớn hơn 1140V không có các phương tiện bảo hiểm (găng tay cách điện, ủng hoặc giá được cách ly);
b) Thao tác và điều khiển thiết bị điện có điện áp đến 1140V, không được bảo vệ bằng rơle rò điện mà không có găng tay cách điện, trừ trường hợp thiết bị có điện áp 42V trở xuống cũng như thiết bị điện có mạch an toàn tia lửa và thiết bị thông tin - liên lạc;
c) Sửa chữa khi không cắt điện các bộ phận của thiết bị điện và cáp điện, nối và tháo thiết bị không an toàn tia lửa và đồng hồ đo điện, trừ trường hợp thiết bị có điện áp đến 42V, thiết bị có các mạch an toàn tia lửa trong mỏ không nguy hiểm về khí và bụi nổ;
d) Sử dụng thiết bị điện khi các phương tiện bảo vệ đã bị sự cố; khoá liên động, tiếp đất, các thiết bị bảo vệ vi phạm sơ đồ điều khiển, cáp bị hư hỏng;
e) Đóng điện vào lưới điện không sử dụng, trừ trường hợp lưới điện có chức năng dự phòng;
g) Mở nắp của thiết bị điện an toàn nổ trong mỏ có khí Mêtan mà không cắt điện trước khi mở và đo trước hàm lượng khí Mêtan;
h) Thay đổi cấu tạo và sơ đồ đấu nối của thiết bị điện, các sơ đồ điều khiển, bảo vệ và kiểm tra, cũng như khắc lại vạch chia độ các thiết bị bảo vệ tại mỏ, trừ trường hợp khi những thay đổi này được nhà máy chế tạo đồng ý hoặc cơ quan quản lý có thẩm quyền cho phép;
i) Những người không có nhiệm vụ tháo gỡ khỏi thiết bị các ký hiệu, chữ ghi và kẹp chì.
Điều 94. Phạm vi và điều kiện sử dụng các thiết bị điện
1. Trong các hầm lò (lò, hầm trạm), giếng có luồng gió thải, các công trình trên mặt bằng được nối với giếng của mỏ có nguy hiểm về khí hoặc bụi nổ, giếng có luồng gió sạch và trong các công trình trên mặt bằng được nối thông với các giếng của mỏ có nguy hiểm về phụt than, đất đá và khí bất ngờ, nếu như không có biện pháp loại trừ không khí mỏ thâm nhập vào các công trình này, phải sử dụng:
a) Thiết bị điện có cấu tạo ExdI hoặc mức bảo vệ không xuyên nổ có tiêu chuẩn cao hơn;
b) Hệ thống tín hiệu giếng và đèn ắc quy cá nhân có cấu tạo ExeI hoặc mức bảo vệ an toàn nổ có độ tin cậy tăng cường với tiêu chuẩn cao hơn.
2. Ký hiệu của các thiết bị điện mỏ có mức bảo vệ nổ các cấp theo tiêu chuẩn quốc tế và một số nước quy định tại Phụ lục VIII của Quy chuẩn này.
3. Trong các lò khai thác và chuẩn bị các vỉa dốc đứng có nguy hiểm về phụt than, đất đá và khí bất ngờ; Trong đường lò có luồng gió thải từ các vỉa đó phải sử dụng:
a) Thiết bị điện có cấu tạo ExdsI hoặc thiết bị có mức bảo vệ nổ đặc biệt cao hơn;
b) Thiết bị điện có ký hiệu nếu có hệ thống tự động cắt nhanh, đồng thời làm ngắn mạch các nguồn điện trong tổng thời gian không lớn hơn 2,5microgiây và khi có ngắn mạch trong mạch lực giữa các pha với nhau và với đất hoặc pha nào đó với đất;
c) Đèn ắc quy cá nhân có mức độ cao hơn mức an toàn nổ có cấu tạo ExeI.
Nội dung chi tiết thực hiện theo mục I, Phụ lục IV của Quy chuẩn này.
4. Phạm vi và điều kiện sử dụng các thiết bị điện có cấu tạo ExdI thực hiện theo quy định về cung cấp và sử dụng các thiết bị điện ở mỏ nguy hiểm về phụt khí bất ngờ, khai thác các vỉa dốc đứng. Thiết kế cung cấp điện cho các mỏ có vỉa dốc đứng phải được cơ quan quản lý có thẩm quyền phê duyệt. Phải dự tính việc tự động cắt điện bằng các thiết bị cố định kiểm tra tự động hàm lượng Mêtan. Số lượng và nơi đặt các bộ cảm biến kiểm tra hàm lượng Mêtan được xác định phù hợp với quy định về đo hàm lượng các khí trong mỏ và sử dụng các thiết bị kiểm tra tự động hàm lượng Mêtan.
Nội dung chi tiết thực hiện theo mục I, Phụ lục IV của Quy chuẩn này.
5. Đối với vỉa thoải và dốc nguy hiểm về phụt than, đất đá và khí bất ngờ, trong sơ đồ cung cấp điện cho các máy khai thác và các tổ hợp phải được dự tính việc cắt sự cố từ xa cho các hộ nhận điện và cáp điện lò chợ từ bảng điều khiển các máy, tổ hợp đó. Thiết bị điện trong lò có luồng gió thải phải được cắt bởi các thiết bị cố định kiểm tra tự động hàm lượng Mêtan.
Nội dung chi tiết thực hiện theo mục II, Phụ lục IV của Quy chuẩn này.
6. Đối với mỏ nguy hiểm về khí, khi sử dụng thiết bị điện trong các lò cụt được thông gió cục bộ, phải thực hiện những yêu cầu bổ sung về an toàn phù hợp với quy định về cung cấp và sử dụng thiết bị điện trong các lò cụt được thông gió cục bộ.
Nội dung chi tiết thực hiện theo mục II, Phụ lục IV của Quy chuẩn này.
7. Trong tất cả các lò của mỏ có nguy hiểm về khí hoặc bụi nổ, phải sử dụng đầu tàu điện có cấu tạo ExdI. Trên các đầu tàu điện trong lò có gió thải và lò cụt được thông gió cục bộ của mỏ xếp loại III, siêu hạng theo khí Mêtan và nguy hiểm về phụt khí bất ngờ phải có thiết bị kiểm tra tự động hàm lượng Mêtan loại xách tay.
8. Cho phép sử dụng các đầu tàu ắc quy có cấu tạo ExeI trong các trường hợp sau:
a) Trong các lò vận tải của mỏ xếp loại I và II theo khí Mêtan hoặc nguy hiểm về bụi; Lò vận tải có luồng gió sạch của mỏ xếp loại III, siêu hạng theo khí Mêtan và ở các vỉa, mỏ về phụt khí bất ngờ;
b) Trong các lò có luồng gió thải và lò cụt được thông gió cục bộ của các mỏ xếp loại III và siêu hạng, trong trường hợp có giấy phép của cơ quan quản lý mỏ có thẩm quyền và trên các đầu tàu điện có thiết bị kiểm tra tự động hàm lượng Mêtan xách tay và hàm lượng Mêtan trong luồng gió thải không lớn hơn 0,75%;
c) Trong các lò có luồng gió sạch ở mỏ có nguy hiểm về phụt than và khí bất ngờ, thoát khí dưới dạng xì khí, trong điều kiện các đầu tàu đến cách lò chợ không gần hơn 50m.
9. Được phép vận tải bằng các tầu điện cần vẹt và ắc quy có cấu tạo ExI trong tất cả các lò của mỏ không nguy hiểm về khí hoặc bụi nổ; trong các lò có luồng gió sạch của mỏ xếp loại I và II theo khí Mêtan hoặc nguy hiểm về bụi nổ.
10. Trong các công trình hầm lò của mỏ nguy hiểm xếp loại theo khí Mêtan hoặc bụi, cho phép sử dụng các thiết bị đo điện xách tay có cấu tạo ExeI, cũng như cấu tạo ExI hoặc thông dụng công nghiệp, nếu như các thiết bị này bình thường không có các phần phát sinh tia lửa và không chế tạo chuyên dùng cho mỏ. Khi đấu các thiết bị trên vào lưới hoặc tháo ra phải đo trước hàm lượng Mêtan tại nơi đấu (tháo). Trên suốt chiều dài đường lò khi tiến hành đo các tham số phải được thông gió bình thường. Chỉ được phép sử dụng các bộ chuyển mạch của thiết bị đo trước khi đấu vào lưới.
11. Được phép sử dụng thiết bị điện an toàn phòng nổ có cấu tạo ExeI trong các lò vận tải có luồng gió sạch của mỏ xếp loại I, II, III và siêu hạng theo khí Mêtan hoặc nguy hiểm về bụi, trừ các lò có xì khí Mêtan.
12. Được phép sử dụng thiết bị điện mỏ cấu tạo ExI trong các lò theo khoản 1 điều này đối với mỏ xếp loại I và II theo khí Mêtan hoặc nguy hiểm về bụi khi có giấy phép của cơ quan quản lý có thẩm quyền.
13. Phải sử dụng thiết bị điện có mức độ bảo vệ nổ không thấp hơn mức ExeI trong buồng nạp ắc quy được thông gió riêng biệt của các mỏ nguy hiểm về khí Mêtan hoặc bụi nổ, bao gồm cả mỏ có nguy hiểm về phụt than, đất đá và khí bất ngờ.
14. Được phép sử dụng thiết bị điện có cấu tạo ExI và tạm thời sử dụng thiết bị điện thông dụng công nghiệp trong giếng, các lò sân giếng có luồng gió sạch và hầm trạm (buồng đặt thiết bị cố định) được thông gió bằng gió sạch do hạ áp chung của mỏ có nguy hiểm về khí hoặc bụi nổ, trừ những trường hợp trong đó và các lò nối với chúng để đưa gió sạch vào có xì khí hoặc khi mỏ được xếp vào nguy hiểm về phụt than, đất đá và khí bất ngờ.
15. Phải sử dụng thiết bị điện có mức độ bảo vệ nổ không thấp hơn mức ExeI trong tất cả các lò của mỏ không nguy hiểm về khí, nhưng nguy hiểm về nổ bụi than hoặc bụi của diệp thạch cháy.
16. Được phép sử dụng thiết bị điện mỏ cấu tạo ExI và tạm thời sử dụng thiết bị điện thông dụng công nghiệp trong các lò được thông gió bằng luồng gió sạch do hạ áp chung của mỏ, nếu được phép của cơ quan quản lý có thẩm quyền.
17. Sử dụng các thiết bị điện có cấu tạo ExI và thông dụng công nghiệp trong mỏ có nguy hiểm về khí hoặc bụi nổ, được quy định bởi Quy trình sử dụng thiết bị điện mỏ thông thường và thiết bị điện thông dụng công nghiệp trong mỏ nguy hiểm về khí hoặc bụi nổ.
Nội dung chi tiết thực hiện theo mục III, Phụ lục IV của Quy chuẩn này
18. Khi đào giếng đứng của mỏ có nguy hiểm về khí hoặc bụi nổ, trong trường hợp có giấy phép của cơ quan quản lý có thẩm quyền phê duyệt tạm thời, cho phép sử dụng:
a) Các động cơ điện thông dụng công nghiệp cho bơm treo và các đèn chiếu sáng đào lò có cấu tạo ExeI với điều kiện hàm lượng Mêtan tại nơi đặt không lớn hơn 1%;
b) Thiết bị điện thông dụng công nghiệp cho máy trộn bê tông, được đặt trong khoang sát với giếng và được cắt điện bởi thiết bị tự động kiểm tra Mêtan khi hàm lượng 1%.
19. Cho phép sử dụng thiết bị điện thông dụng công nghiệp trong buồng trạm quạt ở các mỏ có nguy hiểm về khí hoặc bụi nổ nếu trong các buồng trạm này không khí mỏ và bụi than không lọt vào.
20. Cho phép sử dụng thiết bị điện thông dụng công nghiệp trong phòng máy điện của trục tải đặt trên tháp giếng có luồng gió thải của mỏ có nguy hiểm về khí hoặc bụi nổ trong trường hợp không khí mỏ và bụi than không lọt vào.
Điều 95. Cáp điện
1. Cáp dẫn điện trước khi vào hầm lò phải qua hệ thống chống sét.
2. Cáp điện sử dụng trong hầm lò phải là cáp điện phòng nổ, được lắp đặt theo thiết kế được duyệt, phù hợp với từng vị trí được quy định cụ thể như sau:
a) Cáp điện lắp đặt trong giếng có độ dốc trên 45o phải là cáp chuyên dụng được kẹp chặt để chống trôi, chống dãn dài do tự trọng của cáp;
b) Phải dùng cáp điện mềm để cấp điện cho máy di động và cầm tay;
c) Cáp cấp điện cho khoan điện cầm tay phải là cáp 3 pha 5 dây (ba dây mạch lực và 2 dây điều khiển);
d). Để cấp điện cho máy khấu than ở vỉa dốc đứng, phải sử dụng cáp điện mềm với kết cấu đặc biệt tăng cường độ bền và sử dụng cơ cấu cuốn và rải cáp điện trong luồng gương khấu;
e) Cho phép dùng cáp bọc thép trong có vỏ chì hoặc vật liệu dẻo, cáp mềm có hoặc không có màn dẫn dòng điện rò đối với lưới chiếu sáng cố định;
g) Cho phép sử dụng dây dẫn trần trên sứ cách điện đối với lưới chiếu sáng các gương khấu của mỏ không nguy hiểm về khí, bụi nổ với điện áp dây không lớn hơn 24V. Trong trường hợp này, để đưa điện áp 24V từ máy biến áp lên lưới phải sử dụng cáp mềm, đồng thời các cuộn dây sơ cấp và thứ cấp của biến áp chiếu sáng phải được ngăn cách bằng màn chắn kim loại có tiếp đất.
3. Cáp tín hiệu, điều khiển và kiểm tra
a) Cáp kiểm tra, cáp tín hiệu phải bọc lớp chống nhiễu;
b) Phải sử dụng cáp mềm hoặc các lõi phụ của cáp mềm cho mạch điều khiển, kiểm tra đối với máy di động và cầm tay;
c) Phải sử dụng cáp điện thoại mỏ đối với các mạng liên lạc điện thoại toàn mỏ; mạng điều hành và sự cố, cũng như mạng liên lạc cục bộ của thiết bị trục tải;
d) Cho phép sử dụng cáp kiểm tra mềm, cũng như các lõi phụ của cáp lực mềm có màn chắn làm dây liên lạc cục bộ trong gương khấu;
e) Cho phép sử dụng cáp điện thoại mỏ riêng biệt và những lõi tự do trong đường cáp thông tin đối với các mạch an toàn tia lửa của mạch điều khiển, tín hiệu hoá, kiểm tra từ xa và điều độ hoá;
g) Cho phép sử dụng các dây trần (trừ các dây nhôm) đối với các tuyến tín hiệu hoá và dừng sự cố của thiết bị điện khi điện áp không lớn hơn 24V. Trong các mỏ có nguy hiểm về khí hoặc bụi nổ, chỉ được phép sử dụng dây trần khi đảm bảo an toàn tia lửa;
h) Những lõi phụ trong các cáp lực được phép sử dụng cho các mạch điều khiển, thông tin, tín hiệu và chiếu sáng cục bộ;
i) Việc sử dụng những lõi phụ của cáp lực cho các mạch an toàn tia lửa chỉ được phép trong những cáp có màn chắn;
k) Cấm sử dụng những lõi phụ trong cùng một cáp cho mạch không an toàn tia lửa và mạch an toàn tia lửa nếu như những lõi này không được ngăn cách bằng những màn chắn;
l) Cấm sử dụng cáp (cáp điện lực, kiểm tra) có lõi bằng nhôm hoặc trong vỏ nhôm ở trong hầm lò, giếng mỏ và trong các gian phòng nguy hiểm nổ trên mặt bằng mỏ.
4. Khi sử dụng cáp bọc thép có lớp dây đay dễ cháy bọc ngoài, phải bóc bỏ lớp dây đay khỏi phần của cáp, đồng thời phải sơn chống rỉ vỏ sắt bọc. Việc sơn phủ tiếp theo tuỳ theo mức độ cần thiết.
5. Nối cáp
a) Cho phép tối đa 4 mối nối chín (đã lưu hoá) trên mỗi 100m chiều dài cáp mềm;
b) Khi chiều dài của mỗi đoạn nối cáp tối thiểu là 100m, cho phép nối cáp bằng múp nối an toàn nổ. Không phụ thuộc vào chiều dài của đoạn nối cáp, cho phép nối tạm thời bằng múp nối trên trong thời gian không quá 1 ngày khi cáp bị hỏng. Cáp có đoạn nối trên không được sử dụng cho các máy di động;
c) Cho phép nối bằng múp nối đường dây kiểu phích cắm các đoạn cáp mềm khi có nhu cầu tách ra trong quá trình làm việc, với điều kiện sử dụng các mạch an toàn tia lửa có bảo vệ ngắn mạch điều khiển từ xa;
d) Các phích nối điện khi cắt mạch phải không có điện, trừ các mạch an toàn tia lửa có điện áp tối đa là 42V. Các phích nối điện đó phải được lắp trên cáp về phía phụ tải điện (động cơ điện);
e) Cho phép tạo vỏ bọc mối nối cáp cao su mềm bằng vật liệu cách điện tổng hợp tự liên kết theo quy trình nối cáp cao su mềm bằng vật liệu tổng hợp tự liên kết do Giám đốc điều hành mỏ ban hành.
6. Đối với đường cáp có điện áp đến 1140V mang dòng tổng cộng của các phụ tải, phải sử dụng các cáp có cùng tiết diện. Cho phép sử dụng các cáp có tiết diện lõi khác nhau với điều kiện có bảo vệ dòng ngắn mạch cho tất cả các phần của tuyến.
7. Tại vị trí phân nhánh từ đường cung cấp trục chính, nơi tiết diện lõi cáp nhỏ đi phải đặt thiết bị bảo vệ dòng ngắn mạch của nhánh. Cho phép không cần đặt thiết bị bảo vệ này cho các nhánh có chiều dài đến 20m nếu như đảm bảo được bảo vệ dòng ngắn mạch bằng thiết bị của đường trục chính.
8. Chỉ được phép sử dụng hộp phân phối cấp điện cho nhiều động cơ mà không đặt thiết bị bảo vệ trên các nhánh đến từng động cơ điện trong trường hợp cáp của mỗi nhánh được bảo vệ dòng ngắn mạch bằng thiết bị bảo vệ nhóm.
9. Cáp đặt trong lò chợ phải được bảo vệ khỏi bị hư hỏng do va đập bởi các bộ phận nằm trong thành phần của tổ hợp khai thác. Cho phép có những phương tiện bảo vệ chống va đập khác cho cáp, được dự tính thiết kế cung cấp điện khu vực của mỏ.
10. Cáp mềm cung cấp cho các máy di động có thể đặt trên nền lò không quá 30m đến máy.
11. Đối với các máy có bộ phận cuốn (rải) cáp điện hoặc cơ cấu tương tự, cho phép đặt cáp mềm dọc trên nền lò.
12. Cho phép đặt cáp mềm trên nền lò chợ, khi làm việc với máy liên hợp hoặc máy đánh rạch ở mỏ có chiều dầy vỉa đến 1,5m, nếu như kết cấu của các máy không có bộ phận cuốn (rải) cáp.
13. Cáp mềm có mang điện phải được trải dài và treo. Cấm để cáp mềm có điện dưới dạng cuốn và nút “hình số 8”.
14. Quy định trên không áp dụng đối với cáp mềm có màn chắn với vỏ bọc không cháy, mà theo điều kiện vận hành phải ở trong tình trạng cuộn hoặc trên tang. Trong trường hợp này, phụ tải trên cáp phải giảm 30% so với định mức.
15. Cáp thông tin liên lạc và tín hiệu, cũng như dây trần dọc theo lò phải đặt cách cáp lực tối thiểu là 0,2m. Các dây trần phải đặt trên sứ cách điện.
16. Cấm đặt chung cáp điện và ống gió cùng một bên lò .
Điều 96. Máy điện và thiết bị điện
1. Cấp điện áp của máy điện và thiết bị điện
a) Đối với các thiết bị điện cố định, trạm biến áp di động, máy biến áp và thiết bị khi đào giếng - không lớn hơn 6000V. Trường hợp riêng biệt, khi sử dụng điện áp 10.000V phải được phép của cơ quan quản lý an toàn Bộ Công Thương;
b) Đối với các thiết bị điện di động - điện áp không lớn hơn 1140V. Trường hợp riêng biệt, khi sử dụng điện áp đến 6000V phải được phép của Bộ Công Thương;
c) Đối với các máy và dụng cụ cầm tay - không lớn hơn 220V;
d) Đối với các mạch điều khiển từ xa và tín hiệu của thiết bị phân phối trọn bộ - không lớn hơn 60V nếu như một trong những dây dẫn của mạch này không được nối với đất;
e) Đối với các mạch điều khiển từ xa (trên các phần tử của mạch điều khiển) các máy, cơ cấu di động và cố định - không lớn hơn 42V.
2. Công suất ngắn mạch của lưới điện
a) Công suất ngắn mạch trong lưới điện hầm lò phải được giới hạn bởi giá trị phù hợp với các đặc tính định mức của thiết bị điện đặt trong mỏ và tiết diện cáp, nhưng không được vượt quá 50MVA;
b) Đối với các mỏ xây dựng mới và cải tạo, công suất ngắn mạch có thể nâng cao đến 100MVA nếu như phù hợp với những đặc tính của thiết bị điện và tiết diện cáp;
c) Công suất cắt của máy cắt trong thiết bị phân phối trọn bộ thông dụng công nghiệp khi đặt trong hầm lò phải lớn hơn 2 lần công suất ngắn mạch của lưới.
3. Đấu cáp điện
a) Các đầu cáp vào của thiết bị điện phải được đấu nối chắc chắn, đúng kỹ thuật. Các đầu cáp vào không sử dụng phải có nắp (nút, bích) phù hợp với mức độ bảo vệ nổ của thiết bị điện;
b) Việc đấu cáp vào cọc đấu dây của thiết bị điện phải bằng đầu cáp, vòng đệm đặc biệt hoặc các phương tiện kẹp chặt tương đương khác ngăn ngừa các lõi bị bẹp toè ra;
c) Cấm đấu một số lõi cáp vào cùng một cọc đấu dây, nếu như không được dự tính trước trong kết cấu của cọc đấu.
Điều 97. Buồng máy điện và trạm biến áp
1. Cấm sử dụng trong hầm lò thiết bị chuyển mạch, khởi động và biến áp lực có dầu hoặc chất lỏng dễ cháy khác, trừ trường hợp các thiết bị phân phối trọn bộ đặt trong hầm trạm chống bằng vật liệu có tính chịu lửa cao.
2. Cấm xây dựng hầm trạm đặt thiết bị phân phối trọn bộ có dầu giữa các lò song song.
3. Các hầm trạm đặt thiết bị điện ngoài những cửa phòng cháy dầy, kín hoàn toàn, phải có các cửa chấn song có khoá. Cửa hầm trạm không có người vận hành thường xuyên phải khoá. Trước lối vào hầm trạm phải treo bảng hiệu “Không có nhiệm vụ, cấm vào”. Trong hầm trạm ở vị trí dễ trông thấy phải treo, gắn vào tường những bảng vẽ phòng ngừa phù hợp.
4. Đối với hầm trạm đặt thiết bị điện không có dầu có thể không cần các cửa phòng chống cháy dầy, kín.
5. Trong các hầm trạm biến áp và máy điện có chiều dài lớn hơn 10m phải có 2 đường ra (lối thoát hiểm), được bố trí cách nhau ở những vị trí xa nhau nhất của hầm trạm.
6. Phải để lối đi giữa các máy và thiết bị trong hầm trạm đủ để vận chuyển máy và thiết bị khi sửa chữa và thay thế nhưng không nhỏ hơn 0,8m.
7. Phải để lối đi dùng cho lắp ráp về phía tường buồng trạm với chiều rộng tối thiểu là 0,5m.
8. Nếu không cần phải đưa đến các máy và thiết bị từ phía sau và phía bên hông để bảo quản, lắp ráp và sửa chữa, có thể đặt chúng gần nhau và gần tường hầm trạm.
9. Các trạm biến áp di động, các thiết bị phân phối trọn bộ phải đặt ở những nơi được gia cố tốt và thuận tiện cho công việc bảo dưỡng, không bị dột nước và hư hỏng do va đập, không cản trở hoạt động của phương tiện vận tải và đi lại của người. Khoảng cách từ các thiết bị điện đến đoàn tàu chuyển động hoặc băng tải tối thiểu là 0,8m. Trong trường hợp đặt thiết bị điện ở những đường rẽ, phải đặt rào chắn (barie) loại trừ khả năng đoàn tàu đi vào vị trí đặt thiết bị.
10. Trường hợp đặc biệt, khi được phép của cơ quan quản lý mỏ có thẩm quyền, cho phép đặt trạm biến áp và trạm phân phối khu vực ở phía trên các máng cào lò chợ cơ giới hoá đồng bộ; Trong trường hợp này, khe hở giữa các thiết bị điện với nóc lò phải đủ rộng cho công việc bảo dưỡng, nhưng tối thiểu là 0,5m; giữa mép của máng cào và giàn đặt thiết bị điện tối thiểu là 0,4m.
Điều 98. Các trạm nén khí và ống dẫn khí nén
1. Việc xây dựng, lắp đặt và vận hành trạm nén khí và đường ống dẫn khí trên mặt bằng và trong hầm lò phải tuân theo những yêu cầu của Quy chuẩn này và các quy định về xây lắp và vận hành an toàn các thiết bị nén khí cố định, các đường ống dẫn khí nén và dẫn hơi.
2. Lắp đặt trạm nén khí di động trong hầm lò phải có thiết kế, trong đó phải có các biện pháp an toàn chung và phòng chống cháy, được Giám đốc điều hành mỏ duyệt.
3. Các máy nén khí di động trong hầm lò phải có bảo vệ nhiệt để cắt máy nén khí khi nhiệt độ của không khí nén cao hơn 1820C đối với máy nén khí khô và 1250C đối với máy nén khí có dầu.
3. Đối với các mỏ than có tính tự cháy, bụi nổ nhiệt độ phát nóng bề mặt của máy nén khí không vượt quá 150oC.
4. Áp suất làm việc của khí nén của các máy nén khí không vượt quá 0,8 MPa. Các van an toàn phải được chỉnh định ở mức Ptđ = 1,1Plv, (trong đó Ptđ áp suất tác động; Plv suất làm việc) và có kẹp chì. Trường hợp riêng biệt phải được phép của cơ quan quản lý có thẩm quyền.
5. Máy nén khí có dầu phải có bảo vệ để phòng ngừa khả năng bốc cháy dầu.
6. Quy định vị trí đặt trạm nén khí di động trong hầm lò
a) Nơi bằng phẳng, các cặp bánh xe của trạm phải được chặn;
b) Trong lò có luồng gió sạch, được chống bằng vật liệu không cháy; khoảng cách từ vị trí đặt trạm về cả hai phía đường lò tối thiểu là 10m;
c) Khoảng cách từ vị trí đặt trạm khí nén đến vị trí chất tải (rót) than tối thiểu là 30m.
d) Về cả 2 phía của trạm phải có các thùng cát hoặc bụi trơ với dung tích tối thiểu là 0,4m3, có xẻng và từ 2 đến 5 bình chống cháy, đảm bảo đủ điều kiện chữa cháy ban đầu. Điện thoại phải đặt ở khoảng cách cho phép đàm thoại khi máy nén khí làm việc.
7. Trạm nén khí di động hầm lò phải do người có chuyên môn về máy nén khí vận hành, phù hợp với quy trình vận hành.
8. Cấm đóng điện và cho trạm nén khí di động hầm lò làm việc trong các trường hợp sau:
a) Hàm lượng khí Mêtan tại nơi đặt thiết bị ở luồng gió sạch lớn hơn 0,5%;
b) Không có hoặc bảo vệ nhiệt bị trục trặc;
c) Trục trặc bộ điều chỉnh năng suất, các van an toàn, các đồng hồ đo áp suất và nhiệt độ;
d) Chảy dầu;
e) Quay ngược trục vít (đối với máy nén khí trục vít).
9. Cho phép sử dụng các máy nén khí lắp trên đầu tàu và trên các máy khác để cung cấp năng lượng khí nén cho các phanh, thiết bị tín hiệu phòng ngừa và những cơ cấu phụ trợ khác khi được phép của cơ quan quản lý mỏ có thẩm quyền.
10. Để làm kín khít các mối nối mặt bích của ống dẫn khí nén phải sử dụng paronit (cao su amiăng), amiăng hay cao su chịu nhiệt có nhiệt độ cháy âm ỉ không dưới 3500C. Trường hợp sử dụng các vật liệu khác để làm kín khít các mối nối, mặt bích của ống dẫn khí do giám đốc điều hành mỏ quyết định.
Điều 99. Bảo vệ cáp điện, động cơ điện và máy biến áp
1. Trong lưới điện hầm lò điện áp trên 1140V phải có bảo vệ ngắn mạch và bảo vệ rò điện (chạm đất) cho các tuyến, máy biến áp và động cơ điện.
2. Ở mỏ xây dựng mới và cải tạo, việc bảo vệ rò điện phải đặt trên các tuyến cung cấp điện cho trạm biến áp ngầm trung tâm.
3. Trên khởi hành của trạm biến áp ngầm trung tâm và trạm phân phối ngầm 6kV, bảo vệ dòng ngắn mạch và bảo vệ rò điện (chạm đất) phải tác động tức thời (không trễ thời gian).
4. Trên các tuyến cung cấp cho trạm biến áp ngầm trung tâm, cho phép sử dụng bảo vệ dòng cực đại có hạn chế thời gian trễ và tác động cắt tức thời, phạm vi tác động của bảo vệ cực đại bao gồm cả thanh cái của trạm biến áp ngầm trung tâm cho phép bảo vệ chạm đất có thời gian trễ đến 0,7s.
5. Đối với các động cơ điện phải được dự tính bảo vệ dòng quá tải và bảo vệ “không”.
6. Trong tất cả các trường hợp, việc cắt lưới do các bảo vệ, được phép sử dụng thiết bị tự động đóng lặp lại tác động 1 lần, cũng như sử dụng thiết bị đóng tự động dự phòng với điều kiện sử dụng thiết bị có khoá liên động và không cho đóng điện vào lưới và thiết bị điện khi hỏng cách điện với đất và ngắn mạch.
7. Việc lựa chọn các thiết bị cắt, các rơle bảo vệ, thiết bị tự động đóng lặp lại và tự động đóng dự phòng, tính và kiểm nghiệm các tham số tác động của những thiết bị đó phải phù hợp với quy định hiện hành về lựa chọn và kiểm nghiệm các thiết bị điện có điện áp 3kV và 6kV.
8. Thời hạn trang bị cho lưới điện hầm lò điện áp lớn hơn 1140V các dạng bảo vệ rơle liệt kê chưa đầy đủ trong mục này do cơ quan quản lý có thẩm quyền quyết định.
9. Đối với điện áp đến 1140V, việc bảo vệ các thiết bị thực hiện như sau:
a) Các máy biến áp và mỗi khởi hành được bảo vệ khỏi dòng ngắn mạch bằng máy cắt tự động có bảo vệ dòng cực đại;
b) Các động cơ điện và cáp cung cấp điện phải được bảo vệ để loại trừ
- Dòng ngắn mạch (thiết bị bảo vệ phải tác động tức thời hoặc chọn lọc trong giới hạn đến 0,2s);
- Dòng quá tải hoặc quá nhiệt;
- Bảo vệ “không”;
- Không cho đóng điện khi giảm điện trở cách điện với đất so với định mức;
- Bảo vệ mất pha.
10. Các mạch không an toàn tia lửa, đi ra từ các cuộn dây thứ cấp của máy biến áp (biến áp điều khiển) lắp trong thiết bị được bảo vệ khỏi dòng ngắn mạch.
11. Lưới được bảo vệ khỏi dòng rò nguy hiểm ra đất bằng các máy cắt tự động trọn bộ với một rơle rò điện cho tất cả lưới có liên quan về điện (được đấu vào một hoặc nhóm các máy làm việc song song). Khi tác động rơle rò điện phải cắt tất cả lưới được đấu vào máy biến áp nói trên, trừ đoạn cáp có chiều dài tối đa là 10m nối máy biến áp với máy cắt tự động chung của lưới.
12. Chiều dài tổng cộng của các cáp đấu vào một hoặc các biến áp làm việc song song, phải được giới hạn bởi giá trị điện dung với đất tối đa là 1mF trên pha.
13. Khi cung cấp điện cho phụ tải điện hầm lò từ trên mặt đất qua giếng khoan, cho phép đặt máy cắt tự động với rơle rò điện dưới đáy giếng khoan ở khoảng cách không lớn hơn 10m. Trong trường hợp này, khi rơle rò điện tác động các phụ tải điện trên mặt bằng và cáp trong giếng khoan có thể không bị cắt điện nếu như trên mặt bằng có thiết bị kiểm tra cách điện của lưới đảm bảo không làm ảnh hưởng đến sự làm việc của rơle rò điện cũng như các phụ tải điện có liên quan trực tiếp đến hoạt động của mỏ (quạt gió, tời) được đấu vào bằng cáp.
14. Việc bảo vệ rò có thể không áp dụng đối với mạch có điện áp tối đa là 42V, các mạch điều khiển từ xa và khoá liên động của thiết bị phân phối trọn bộ, cũng như đối với mạch chiếu sáng cục bộ của các trạm di động được cung cấp từ máy biến áp chiếu sáng lắp bên trong, với điều kiện biến áp chiếu sáng nối cứng về kim loại hoặc mềm bên ngoài với thân của trạm, có máy cắt trong mạch chiếu sáng và viết trên các đèn “Khi mở phải cắt khỏi lưới!”.
Yêu cầu bảo vệ rò điện không áp dụng đối với các hệ thống an toàn tia lửa.
15. Trong tất cả các trường hợp cắt bảo vệ, cho phép tự động đóng lặp lại một lần với điều kiện sử dụng thiết bị có khoá liên động không cho đóng điện vào lưới và thiết bị điện có điện trở cách điện so với đất thấp và sau khi bảo vệ dòng cực đại tác động.
16. Giá trị đặt dòng tác động của rơle dòng cực đại trong các máy cắt tự động, khởi động từ và trạm điều khiển, cũng như dòng định mức của dây chảy cầu chì phải được lựa chọn phù hợp với quy định hiện hành về xác định các dòng ngắn mạch, lựa chọn và kiểm nghiệm trị số đặt của bảo vệ dòng cực đại trong lưới điện có điện áp đến 1140V.
Nội dung chi tiết thực hiện khoản 16 Điều này theo mục IV, Phụ lục IV của Quy chuẩn này.
17. Cấm sử dụng các cầu chì không có vỏ và đặt dây chảy không định cỡ.
Điều 100. Cung cấp điện cho các khu vực và điều khiển máy
1. Để cấp điện cho các khu vực phải sử dụng các trạm biến áp di động được đấu vào lưới phân phối bằng thiết bị phân phối trọn bộ. Trong những trường hợp riêng biệt, để cấp điện cho khu vực có thể sử dụng các trạm biến áp khu vực cố định. Cho phép cấp điện cho khu vực từ trên mặt đất qua giếng khoan. Trong trường hợp này nếu đặt các trạm biến áp di động hầm lò trên mặt đất phải có các biện pháp bảo vệ chống sét.
2. Phải cấp điện từ mạng riêng biệt có bảo vệ rò điện cho các trạm biến áp di động đặt trong lò có luồng gió thải nối liền kề với gương khấu của các vỉa dốc thoải và nghiêng có nguy hiểm về phụt than và khí bất ngờ.
3. Phải sử dụng tủ phân phối trọn bộ có khoá liên động với rơle rò điện và điều khiển từ xa bằng các mạch an toàn tia lửa để đấu vào lưới trạm biến áp di động và máy biến áp, đặt trong lò có luồng gió thải của mỏ xếp loại III và siêu hạng theo khí Mêtan. Các tủ phân phối trọn bộ phải được đặt trong hầm trạm có luồng gió sạch.
4. Cho phép đấu vào một tủ phân phối trọn bộ một số biến áp di động hoặc biến áp để cung cấp điện cho các máy trong dây chuyền công nghệ của khu vực.
5. Để đóng điện cho trạm phân phối ngầm của khu vực và các thiết bị điện khác đặt ở trong lò có luồng gió thải, phải sử dụng các thiết bị chuyển mạch (đóng, cắt) có khoá liên động với rơle rò điện, đảm bảo cắt bảo vệ và kiểm tra tự động giá trị an toàn của điện trở mạng tiếp đất.
6. Tất cả các máy trong gương phải được đấu vào lưới điện bằng khởi động từ hoặc trạm điều khiển.
7. Việc điều khiển các khởi động từ hoặc trong trạm điều khiển phải được thực hiện từ xa bằng các bảng điều khiển đặt trên chính các máy hoặc gần các máy.
8. Đối với các máy có truyền động nhiều động cơ, để điều khiển các động cơ riêng biệt phải lắp các trạm từ hoặc bộ đóng cắt bằng tay trên các máy đó và phải đấu vào lưới bằng khởi động từ có điều khiển từ xa.
9. Để đóng điện cho các máy trong gương của mỏ có nguy hiểm về khí hoặc bụi nổ, phải sử dụng khởi động từ (trạm từ) có sơ đồ điều khiển an toàn tia lửa.
10. Yêu cầu đối với sơ đồ điều khiển các máy trong gương và các cơ cấu
a) Bảo vệ “không”;
b) Kiểm tra liên tục giá trị điện trở cách điện của máy;
c) Bảo vệ không cho thiết bị tự đóng khi ngắn mạch trong các mạch điều khiển ngoài.
11. Cấm sử dụng các hộp điều khiển có một nút bấm để điều khiển khởi động từ, trừ trường hợp khi các hộp điều khiển này chỉ được sử dụng để cắt.
12. Cấm sử dụng các hộp điều khiển cho phép khởi động hoặc đóng điện cho máy đồng thời từ hai bảng điều khiển trở lên, trừ trường hợp điều khiển quạt gió cục bộ.
13. Trước khi thực hiện công việc sửa chữa, công việc phụ trợ trên các phần chuyển động của máy phải cắt điện và phải có biện pháp loại trừ khởi động máy bất ngờ.
14. Trong lò chợ phải dự tính khả năng dừng được máng cào từ bảng điều khiển trên máy khấu than và từ các bảng chuyên dùng đặt trong lò chợ.
15. Các múp nối thuỷ lực trên máy chỉ được phép vận hành khi có bảo vệ hoàn hảo, được thực hiện bằng các rơle nhiệt hoặc các nút định cỡ nóng chảy bảo hiểm chuyên dụng, các rơle nhiệt phải được kẹp chì.
Điều 101. Liên lạc điện thoại, tín hiệu hoá
1. Mỗi mỏ đều phải được trang bị hệ thống liên lạc điện thoại theo thiết kế.
2. Các máy điện thoại phải được đặt ở những nơi cần thiết để đảm bảo thông tin liên lạc nhanh chóng, kịp thời trong mọi tình huống.
3. Cung cấp điện cho điện thoại hầm lò phải dùng cáp có hai lõi dẫn điện.
4. Điện áp cung cấp cho các thiết bị liên lạc điện thoại hầm lò tối đa là 127V từ lưới của các bình ắc quy hoặc thiết bị chỉnh lưu.
5. Điện áp cung cấp cho thiết bị tín hiệu tối đa là 220V khi có bảo vệ rò điện.
6. Điện áp cung cấp cho các thiết bị tín hiệu vận tải sử dụng từ lưới tiếp xúc có điện áp tối đa là 275V với điều kiện các thiết bị tín hiệu phù hợp về điện áp và được đấu vào dây tiếp xúc bằng cáp (trong những trường hợp cần thiết sử dụng cả các cơ cấu đấu nối chuyên dụng) và có bảo vệ dòng bằng cầu chì.
7. Lưới tiếp xúc có thể được sử dụng để liên lạc cao tần (thông tin cao tần) nếu như thiết bị thông tin không làm ảnh hưởng đến sự hoạt động của các thiết bị bảo vệ lưới và không làm hỏng các điểm cách ly giữa các phần của lưới.
8 Để cung cấp cho các mạch loa phóng thanh và tín hiệu hoá phòng ngừa trong hầm lò phải sử dụng các nguồn an toàn tia lửa có điện áp tối đa là 60V.
Điều 102. Tiếp đất
1. Phải tiếp đất những phần kim loại của thiết bị điện, đường ống, dây cáp thép tín hiệu đặt trong đường lò của thiết bị và dây dẫn điện.
2. Trong các mỏ có nguy hiểm về khí hoặc bụi nổ, để bảo vệ khỏi sự tích tụ điện tích cần phải tiếp đất các chi tiết kim loại, các chi tiết được chế tạo từ vật liệu nhiễm điện của ống gió, cũng như ống dẫn khí nén kim loại.
3. Các quy định tại khoản 1 và khoản 2 Điều này không áp dụng đối với vì chống kim loại, các đường ray cũng như vỏ cáp, nối ray trong mạng điện kéo, các cơ cấu kim loại để treo cáp điện.
4. Trong các công trình hầm lò của mỏ phải thiết lập lưới tiếp đất chung, trong đó phải nối tất cả những đối tượng cần được tiếp đất vào lưới này.
5. Việc tiếp đất cần phải thực hiện phù hợp với quy định về thiết lập, kiểm tra và đo điện trở tiếp đất mỏ.
Nội dung chi tiết thực hiện theo mục V, Phụ lục IV của Quy chuẩn này
6. Lưới tiếp đất chung phải được tạo nên bằng cách nối liên tục về điện với nhau giữa tất cả các vỏ bọc kim loại của cáp và giữa tất cả các lõi tiếp đất của cáp không phụ thuộc vào giá trị điện áp và sau đó nối cả vào các vật tiếp đất chính (trung tâm) và cục bộ.
7. Ở gần trạm chỉnh lưu của vận tải bằng đầu tàu điện cần vẹt, các ray được sử dụng như là dây dẫn trở về của dây tiếp xúc phải được đấu vào lưới tiếp đất chung.
8. Khi trong mỏ có một số mức tầng, phải nối lưới tiếp đất chung của mỗi tầng vào các vật tiếp đất chính. Để làm việc này, cho phép sử dụng vỏ bọc thép của các cáp lực đặt giữa các mức tầng. Khi không có các cáp đó để nối lưới tiếp đất chung của tầng với các vật tiếp đất chính phải thực hiện bằng dây tiếp đất riêng.
9. Các vật tiếp đất chính trong mỏ phải được đặt trong rốn giếng hoặc các bể thu nước của trạm bơm thoát nước. Trong trường hợp không có bể thu nước của trạm bơm thì đặt tiếp đất tại các hố chuyên dùng.
10. Trong trường hợp cấp điện cho hầm lò bằng cáp đặt theo lỗ giếng khoan, các vật tiếp đất chính có thể bố trí trên mặt đất hoặc trong các bể thu nước của mỏ. Khi đó có thể sử dụng ống kim loại chống lót giếng khoan làm một trong các vật tiếp đất chính.
11. Trong tất cả các trường hợp, phải xây dựng tối thiểu 2 vật tiếp đất chính đặt ở các vị trí khác nhau để dự phòng cho nhau trong thời gian kiểm tra làm sạch hoặc sửa chữa chúng.
12. Khi cung cấp điện riêng biệt cho các khu khai thác và không có trạm bơm thoát nước trung tâm, các vật tiếp đất chính phải đặt trong rốn giếng hoặc trong giếng chuyên dụng (giếng đào nhỏ, bể nước) được đổ đầy nước.
13. Để tiếp đất cục bộ phải làm các vật tiếp đất nhân tạo trong các máng (rãnh) thoát nước lò dọc vỉa hoặc trong những vị trí khác thích hợp.
14. Ở mỏ khai thác bằng sức nước, cho phép sử dụng các máng kim loại vận tải thuỷ lực để làm các vật tiếp đất cục bộ.
15. Mỗi múp nối cáp, trừ nối các cáp mềm cung cấp cho các máy di động, phải có tiếp đất cục bộ và được nối với lưới tiếp đất chung của mỏ.
16. Cho phép lưới chiếu sáng cố định không tiếp đất cục bộ đối với mỗi múp hoặc mỗi đèn, chỉ tiếp đất sau mỗi khoảng cách lưới cáp lớn nhất 100m.
17. Đối với các thiết bị và các múp nối cáp của điện thoại liên lạc dùng các cáp không có vỏ bọc thép, cho phép tiếp đất cục bộ không cần đấu vào lưới tiếp đất chung.
18. Khi vận tải bằng đầu tàu điện cần vẹt, việc tiếp đất cho các thiết bị điện một chiều ở sát gần đường phải thực hiện bằng cách nối tiếp đất vào các ray sử dụng làm dây dẫn trở về của dây tiếp xúc.
19. Việc tiếp đất của thân các máy di động, máng cào trong gương, các thiết bị đặt ở vùng gương lò, các đèn chiếu sáng, được đấu vào lưới tiếp đất bằng lõi tiếp đất của cáp mềm, cũng như các thiết bị đặt trên sàn di chuyển theo đường ray (trừ các trạm di động) phải được thực hiện bằng cách nối chúng với lưới tiếp đất chung qua lõi tiếp đất của các cáp cung cấp.
20. Khi đấu cáp vào cơ cấu đầu vào của thiết bị phải đấu lõi tiếp đất của cáp vào cọc tiếp đất bên trong của cơ cấu đầu vào đó, đầu kia của lõi tiếp đất được đấu vào cọc tiếp đất của vỏ thiết bị phân phối.
21. Đối với các máy di động và máng cào trong gương phải dự tính việc kiểm tra liên tục tiếp đất.
22. Tổng điện trở của lưới tiếp đất đo ở bất kỳ vật tiếp đất nào tối đa là 2W.
Điều 103. Chiếu sáng bằng các đèn dùng điện lưới
1. Phải lắp đặt chiếu sáng mặt bằng mỏ theo thiết kế được phê duyệt. Tại tất cả các nơi có người làm việc, các lối quy định cho người đi trên mặt bằng mỏ phải lắp đèn chiếu sáng.
2. Trong phòng máy nâng, quạt gió chính, máy nén khí, các gian phòng trên mặt giếng, buồng tời thải đất đá, đường dây cáp trục, buồng thiết bị nồi hơi, các buồng phòng của máng ga than, tổ hợp nhà hành chính - sinh hoạt phải được dự tính đến việc chiếu sáng sự cố từ nguồn cung cấp độc lập.
3. Trong tất cả các buồng phòng đã nêu ở trên, trừ phòng máy nâng, cho phép sử dụng để chiếu sáng sự cố bằng các đèn ắc quy cá nhân.
4. Trong hầm lò, các đèn được cung cấp từ lưới điện, phải chiếu sáng cho các khu vực sau:
a) Các buồng phòng máy điện, tời và điều độ, trạm điện ngầm trung tâm, ga ra đầu tầu, ga tàu điện chở người, trạm y tế, phòng cấp phát vật liệu nổ, xưởng sửa chữa ngầm;
b) Các lò vận tải trong phạm vi sân giếng;
c) Mặt bằng nhận của các lò thượng và lò ngầm, những vị trí giao nhau của các đường lò vận tải, sân giếng và khu vực, phần của lò thực hiện chuyển tải than, các điểm người ra vào trong những phương tiện vận tải và đường đi vào những nơi đó;
d) Vùng gương giếng, buồng liền kề khi đào giếng và các sàn công tác đào giếng;
e) Lò khai thác ở các vỉa thoải và nghiêng, được trang bị các tổ hợp cơ giới hoá và máy bào bằng các đèn nằm trong thành phần của tổ hợp hoặc máy bào;
g) Các trạm máy điện, trạm biến áp di động và các điểm phân phối điện thường xuyên và các lối vào;
h) Các lò đặt băng tải để vận chuyển người;
i) Các lò được trang bị vận chuyển người cơ giới hoá.
5. Vùng gương lò của các lò chuẩn bị có sử dụng các tổ hợp hoặc máy liên hợp đào lò phải được chiếu sáng bằng các đèn chiếu lắp trong tổ hợp hoặc máy liên hợp đó.
6. Để cung cấp điện cho chiếu sáng hầm lò phải sử dụng điện áp tối đa là 220V.
7. Đối với các đèn chiếu sáng cầm tay được cung cấp từ lưới, cho phép sử dụng điện áp tối đa là 36 V.
8. Khoảng cách đèn chiếu sáng trong hầm lò được thực hiện theo thiết kế.
Điều 104. Chiếu sáng bằng đèn ắc quy cá nhân
1. Ở mỗi hầm lò, số lượng đèn ắc quy tốt, kể cả các đèn kết hợp với các bộ truyền báo tín hiệu khí Mêtan, phải lớn hơn 10% số lao động trong danh sách biên chế làm việc trong hầm lò.
2. Các đèn ắc quy vào làm việc trong hầm lò phải ở tình trạng tốt và đảm bảo tính năng phòng nổ, được kẹp chì với dây có đường kính tối thiểu là 1mm và phải đảm bảo sáng bình thường liên tục trong khoảng thời gian tối thiểu là 10 tiếng. Trường hợp không có cơ cấu kẹp chì, phải có biện pháp niêm phong, đảm bảo không tuỳ tiện mở đèn ra được.
3. Cấm mở đèn trong hầm lò.
4. Ít nhất 1 lần trong tháng, Trưởng phòng cơ điện hoặc người được chỉ định thực hiện phải kiểm tra các đèn ắc quy.
5. Mỗi đèn ắc quy phải được giao cố định cho người lao động và được đánh số thẻ trên đèn.
Điều 105. Nhà đèn ắc quy
1. Trên mặt bằng công nghiệp của mỗi mỏ hoặc nhóm mỏ phải xây dựng nhà đèn dùng để nạp, sửa chữa, phát đèn ắc quy cá nhân cho người lao động mỗi khi vào mỏ và thu lại mỗi khi ra khỏi mỏ. Nhà đèn phải xây dựng bằng vật liệu chống cháy và đặt ở vị trí phù hợp với điều kiện đi lại và làm việc của người lao động.
2. Nhà đèn ắc quy phải gồm những phòng sau đây:
a) Phòng chuẩn bị chất điện phân và rót dung dịch vào ắc quy;
b) Phòng bảo dưỡng và sửa chữa đèn ắc quy;
c) Phòng đặt giá nạp đèn, phát và nhận đèn ắc quy.
3. Trong cùng một phòng không được đặt các giá nạp cho các loại đèn ắc quy có chất điện phân khác nhau và không được pha chế các chất điện phân khác nhau.
Điều 106. Vận hành, kiểm tra, bảo dưỡng, sửa chữa thiết bị điện, mạng cung cấp điện
1. Chỉ được phép vận hành, kiểm tra, bảo dưỡng, sửa chữa thiết bị điện bởi những người có trình độ chuyên môn, trình độ kỹ thuật an toàn điện và phòng chống cháy nổ mỏ trong công tác cơ điện vận tải mỏ tương ứng với công việc được phân công.
2. Để thực hiện khoản 1 Điều này, hàng năm, Giám đốc điều hành mỏ phải tổ chức huấn luyện về kỹ thuật an toàn điện, phòng chống cháy nổ mỏ trong công tác cơ điện vận tải mỏ cho tất cả cán bộ, công nhân làm việc với thiết bị điện, mạng cung cấp điện trong hầm lò.
3. Khi kiểm tra, sát hạch nâng bậc cho công nhân vận hành, kiểm tra, bảo dưỡng, sửa chữa thiết bị điện, ngoài bài kiểm tra sát hạch trình độ chuyên môn phải có bài kiểm tra, sát hạch lý thuyết và thực hành về an toàn điện và phòng chống cháy nổ mỏ trong công tác cơ điện vận tải.
4. Chỉ được phép vận hành, kiểm tra, bảo dưỡng, sửa chữa thiết bị điện trong lò khi đã được thông gió, hàm lượng khí CH4 trong giới hạn an toàn cho phép.
5. Tất cả các thiết bị điện, máy biến áp và trang bị điện khác, các vỏ thiết bị điện an toàn phòng nổ, cáp điện, tiếp đất phải được những người có trách nhiệm sau đây kiểm tra định kỳ:
a) Người vận hành các máy và thiết bị cũng như thợ điện thường trực phân xưởng tiến hành hàng ca;
b) Phó Quản đốc cơ điện phân xưởng hoặc người được uỷ quyền tiến hành hàng tuần;
c) Phó Giám đốc cơ điện hoặc những người được chỉ định tiến hành không ít hơn một lần trong tháng;
6. Theo lịch được Giám đốc điều hành mỏ duyệt cũng như trước khi đưa vào trong hầm lò, thiết bị điện phải được kiểm tra và kiểm định theo quy định về tính an toàn nổ và phải phù hợp với quy định về cung cấp điện trong các hầm lò than và diệp thạch do nhóm thợ điện chuyên trách thực hiện dưới sự kiểm tra của Trưởng phòng Cơ điện hoặc người được chỉ định.
7. Việc lắp ráp, điều chỉnh, thí nghiệm, sửa chữa, kiểm tra và tháo thiết bị điện đang hoạt động phải tuân theo các quy định về cung cấp và sử dụng điện,
Nội dung chi tiết thực hiện các khoản 5, 6, 7 Điều này theo mục VI và mục VII Phụ lục IV và mẫu sổ 05 Phụ lục VII của Quy chuẩn này.
8. Việc chuyển mạch linh hoạt khi làm các công việc sửa chữa và điều chỉnh ở lưới cung cấp và các tủ phân phối trọn bộ của trạm biến áp ngầm trung tâm và các tủ phân phối có điện áp lớn hơn 1140V phải được thực hiện dưới sự chỉ đạo của Phó Giám đốc cơ điện mỏ hoặc người được uỷ quyền.
9. Các công việc hiệu chỉnh và chuyên môn đặc biệt khác như: Thực hiện công việc không cắt điện, sát gần và trên những phần mang điện phải được Giám đốc điều hành mỏ cho phép với điều kiện
a) Có phiếu công tác ghi đủ các biện pháp kỹ thuật an toàn cụ thể, trong đó có biện pháp loại trừ tiếp xúc trực tiếp với phần dẫn điện của các mạch nguy hiểm về tia lửa điện áp lớn hơn 42V. Phiếu phải làm thành hai bản, người viết phiếu giữ một bản, người thực hiện giữ một bản để tiến hành công việc;
b) Chỉ những người có giấy chứng nhận đủ trình độ chuyên môn và có trình độ kỹ thuật an toàn điện phù hợp mới được thực hiện những công việc đặc biệt trên;
c) Trong mỏ nguy hiểm về khí, bụi nổ chỉ được phép thực hiện trong lò có luồng gió sạch, được thông gió bằng hạ áp chung của mỏ. Khi đó, cần phải đảm bảo kiểm tra hàm lượng khí Mêtan bằng thiết bị tự động xách tay hoạt động liên tục và được thoả thuận bằng lệnh viết với người Phụ trách an toàn thông gió khu vực (phân xưởng).
10. Trong các công trình hầm lò ở các vỉa có nguy hiểm về phụt than và khí bất ngờ, trừ trạm biến áp ngầm trung tâm và các đường lò sân giếng, khi tiến hành những công việc nêu ở trên phải thực hiện những yêu cầu bổ sung sau đây:
a) Nơi tiến hành công việc phải cách các gương khấu than của vỉa có nguy hiểm về phụt than và khí bất ngờ một khoảng lớn hơn 600m;
b) Công việc phải được thực hiện trong các ca khi không khấu than và đào lò, cũng như không tiến hành những biện pháp chống phụt và không trước 4 giờ sau khi nổ mìn;
c) Việc kiểm tra liên tục hàm lượng khí Mêtan phải do người chuyên trách về kỹ thuật an toàn thông gió khu vực (phân xưởng) thực hiện. Khi hàm lượng khí Mêtan lớn hơn 0,5%, phải dừng công việc và cắt điện.
11. Người phụ trách các công việc hiệu chỉnh và đặc biệt khác phải có trình độ chuyên môn bậc 5, còn những nhân viên của Đội phải có trình độ chuyên môn không thấp hơn bậc 4.
12. Bảo vệ dòng cực đại trong tất cả các thiết bị, trước khi đấu vào lưới và trong vận hành, phải được kiểm nghiệm theo quy định về kiểm nghiệm bảo vệ dòng cực đại của các thiết bị mỏ hầm lò.
Nội dung chi tiết thực hiện theo mục VIII, Phụ lục IV của Quy chuẩn này.
13. Rơle rò điện phải được thử tác động trước khi bắt đầu mỗi ca bởi cán bộ kỹ thuật khu vực (phân xưởng) hoặc các thợ điện được cán bộ đó chỉ định. Rơle rò điện có bộ phận tự kiểm tra hoàn hảo có thể chỉ phải thử một lần trong ngày vào ca sửa chữa.
14. Kết quả kiểm tra phải ghi vào bảng (tấm, biển) riêng, để ở nơi đặt rơle rò điện.
15. Tổng thời gian cắt lưới có điện áp 380V, 660V và 1140V, do tác động của rơle rò điện, phải được kiểm nghiệm ít nhất 1 lần trong 6 tháng. Kết quả kiểm nghiệm rơle rò điện phải được ghi vào trong sổ ghi tình trạng thiết bị điện và tiếp đất.
16. Điện trở cách điện với đất của thiết bị điện và cáp ở các điện áp định mức xoay chiều làm việc trong hầm lò, không được thấp hơn tiêu chuẩn sau:
a) Động cơ điện của máy khai thác (khấu than), đào lò điện áp tới 400V tối thiểu là 0,5 MW;
b) Động cơ điện của thiết bị hầm lò khác, biến áp chiếu sáng, tổ hợp biến áp khoan và khoan điện cầm tay tối thiểu là 1 MW;
c) Động cơ điện của máy khai thác (khấu than), máy đào lò điện áp tới 1140V tối thiểu là 3 MW;
d) Thiết bị khởi động và phân phối, các cáp bọc thép và cáp mềm điện áp tới 660V có chiều dài bất kỳ tối thiểu là 1 MW trên pha;
e) Thiết bị khởi động và phân phối, cáp điện có điện áp tới 1140 V có chiều dài bất kỳ tối thiểu là 3 MW trên pha
g) Thiết bị điện, cáp điện có điện áp 6000V có cách điện tối thiểu là 6 MW trên pha.
Nội dung kiểm tra thực hiện theo mẫu số 05, Phụ lục VII của Quy chuẩn này.
17. Việc đo điện trở cách điện của thiết bị điện và cáp điện trước khi đóng điện phải được thực hiện sau khi vận chuyển đến và sau khi lắp ráp; sau khi cắt bảo vệ có sự cố; sau thời gian ngừng hoạt động lâu; rơle rò điện không cho phép đóng điện.
18. Đối với các thiết bị điện cố định phải thực hiện theo quy định tại khoản 1 Điều này và tiến hành định kỳ ít nhất 1 lần trong năm.
19. Thiết bị điện, cáp điện có điện trở cách điện không đảm bảo tiêu chuẩn và gây tác động rơle rò điện phải tháo ra khỏi lưới để tiến hành các biện pháp nâng cao điện trở cách điện hoặc sửa chữa.
20. Để đảm bảo an toàn phòng nổ, chỉ được phép thực hiện sửa chữa lớn thiết bị điện mỏ có liên quan đến thay thế các chi tiết hoặc thành phần của sơ đồ ở xí nghiệp có chức năng thực hiện các công việc đó. Việc sửa chữa thiết bị điện phòng nổ phải tuân theo quy định về cung cấp và sử dụng điện trong hầm lò than quy định trong Quy chuẩn này và Tiêu chuẩn Việt Nam 7079 -19: 2003.
21. Khi sửa chữa nhỏ và bảo dưỡng định kỳ được làm ở mỏ, trừ số các chi tiết đảm bảo tính an toàn nổ, được phép thay thế cọc đấu dây và sứ xuyên, tiếp điểm lực, bảng đấu dây cách điện, vòng đệm khít chặt, cơ cấu ép và nút của đầu cáp vào, múp đầu cáp trọn bộ, cũng như các bulông bắt chặt vỏ thiết bị điện.
22. Ít nhất mỗi quý một lần, phải đo toàn bộ điện trở tiếp đất của hệ thống theo quy định về cung cấp và sử dụng điện trong hầm lò than quy định trong Quy chuẩn này
23. Điện trở tiếp đất phải đo sau khi đưa các thiết bị mới vào lắp đặt hoặc chuyển đến trước khi đưa vào vận hành.
24. Các kết quả xem xét và đo tiếp đất phải được ghi vào sổ ghi tình trạng thiết bị điện và tiếp đất.
Nội dung kiểm tra quy định tại khoản 22, 23 và 24 Điều này thực hiện theo mẫu số 05, Phụ lục VII của Quy chuẩn này.
PHÒNG CHỐNG CHÁY NỔ
Điều 107. Quy định chung
1. Số lượng và vị trí đặt các phương tiện, thiết bị, dụng cụ phòng chống cháy, các bể chứa nước, các vật liệu chống lò phải tuân theo các quy định hiện hành.
2. Việc thiết kế hệ thống đường ống dẫn nước trong mỏ hầm lò phải thực hiện theo quy định pháp luật.
3. Thiết kế phòng chống cháy mỏ phải bao gồm các nội dung sau:
a) Phương pháp mở vỉa và chuẩn bị khai trường, hệ thống khai thác các vỉa than có tính tự cháy đảm bảo an toàn và cách ly chắc chắn các khu vực đã khai thác xong cũng như nhanh chóng cách ly hoặc dập cháy khi sự cố cháy xảy ra;
b) Sơ đồ và phương pháp thông gió đảm bảo ngăn chặn sự hình thành môi trường cháy nổ và điều khiển được các luồng gió khi có sự cố nhằm đảm bảo an toàn cho người rút lui ra khỏi mỏ hoặc đến vị trí có luồng gió sạch;
c) Các loại thiết bị, sơ đồ cung cấp điện an toàn về cháy;
d) Sử dụng hệ thống thuỷ lực có chất lỏng không cháy hoặc khó cháy. Yêu cầu này không bắt buộc đối với các hệ thống thuỷ lực của phanh, bộ phận truyền lực của các máy tự hành, monoray, vận chuyển bằng cáp, truyền động diesel, thiết bị trao đổi goòng trong thùng cũi, quang lật ở các trạm bốc rót và các trường hợp khác đã được quy định trong tiêu chuẩn an toàn đối với thiết bị đó;
e) Công nghệ khấu than và đào lò chuẩn bị hạn chế tối đa công việc khoan nổ mìn trong hầm lò;
g) Ưu tiên sử dụng các vật liệu không cháy làm vật liệu chống lò;
h) Các phương pháp và phương tiện nhằm giảm hoạt tính hoá học của than, giảm rò gió vào khoảng trống đã khai thác, nâng cao độ kín các công trình cách ly, đảm bảo kiểm tra các dấu hiệu cháy khi khai thác các vỉa than có tính tự cháy.
Chi tiết thực hiện theo mục I, Phụ lục V của Quy chuẩn này.
4. Mọi người vào mỏ làm việc phải được huấn luyện cách sử dụng các phương tiện dập cháy và thực tập dập cháy; Phải biết rõ nơi đặt các phương tiện phòng chống cháy ở phạm vi làm việc của mình. Việc huấn luyện và huấn luyện lại cho tất cả cán bộ, người lao động của mỏ về công tác phòng chống cháy phải thực hiện theo quy định hiện hành. Kết quả huấn luyện phải ghi vào sổ huấn luyện an toàn theo mẫu sổ 14, Phụ lục VII của Quy chuẩn này.
5. Cấm sử dụng trong hầm lò các máy móc thiết bị, vật liệu mới khi chưa được kiểm định mức độ an toàn về cháy, nổ của các máy, thiết bị, vật liệu đó.
1. Đối với mỏ khai thác than có tính tự cháy, phải đảm bảo các yêu cầu sau:
a) Đảm bảo thông gió đúng quy định tại Chương III của Quy chuẩn này;
b) Có đường ống dẫn nước áp lực đặt tại tất cả các đường lò chính;
c) Có đầy đủ vật liệu cần thiết để kịp thời xây dựng tường chắn cách ly;
d) Có các dụng cụ, phương tiện hay thiết bị dùng cho các nhân viên kiểm tra;
e) Kiểm tra mỏ trước khi trở lại làm việc sau những ngày nghỉ, dừng sản xuất nhằm phát hiện kịp thời mọi hiện tượng phát sinh cháy bằng các phương tiện thiết bị chuyên dụng.
2. Trình tự, phương pháp thực hiện các biện pháp phòng cháy khi khai thác các vỉa than có tính tự cháy phải tuân theo các quy định của pháp luật về phòng cháy, chữa cháy; Biện pháp phải được cơ quan quản lý mỏ có thẩm quyền phê duyệt.
3. Cấm việc để lại trụ than và lớp than trong khoảng không gian đã khai thác ở những vỉa than có tính tự cháy. Trường hợp cần thiết phải để lại các trụ than ở những vị trí địa chất bị phá huỷ và ở những vị trí đã được đề cập trong thiết kế, các trụ than đó phải được xử lý bằng chất chống cháy hoặc phải được cách ly. Khi phải để lại lớp than vách hay trụ ở giữa các lớp khai thác theo thiết kế, phải dự kiến các biện pháp đề phòng than tự cháy được quy định cho từng vùng than cụ thể.
4. Việc thông gió các khu khai thác, phải được thực hiện bằng sơ đồ thông gió nghịch (sơ đồ khấu dật). Khi cần thiết phải bổ sung gió sạch vào luồng gió thải từ lò khấu than ra; Cho phép áp dụng sơ đồ thông gió thuận cho các khu vực khấu than nhưng phải đảm bảo cách ly tốt khoảng không gian đã khai thác.
5. Khi khai thác các vỉa than tự cháy, phải mở vỉa bằng các đường lò đào trong đá (lò dọc vỉa, xuyên vỉa, lò nghiêng) và áp dụng hệ thống khai thác chia cột. Trường hợp cá biệt phải được thể hiện trong thiết kế được cơ quan quản lý mỏ có thẩm quyền phê duyệt.
6. Khi khai thác các vỉa than dày bằng phương pháp mở vỉa và chuẩn bị theo tầng, giữa lò dọc vỉa vận chuyển của mức trên và lò dọc vỉa thông gió của mức dưới, phải để lại trụ than hoặc xếp dải đá chèn bằng vật liệu chống cháy. Việc khai thác phải tiến hành bằng cách chia ra từng khu vực khấu riêng có để lại trụ than ngăn cách giữa các khu.
7. Cấm để lại than vỡ vụn trong khoảng không gian đã khai thác và ở trong các đường lò. Khi có than vỡ vụn không thể thu hồi được ở trong khoảng không gian đã khai thác, phải cách ly vị trí đó hoặc xử lý bằng các chất chống cháy.
8. Cấm sử dụng các loại vật liệu có khả năng tự cháy để chèn lấp lò.
9. Tại các vị trí lò xuyên vỉa chính cắt qua vỉa than có tính tự cháy, trong khoảng 5m về cả 2 phía của lò xuyên vỉa tiếp giáp với than phải chống bằng vật liệu không cháy. Đoạn lò vòng kể từ lò xuyên vỉa đến vỉa than phải được đào trong đá.
10. Khi khai thác các vỉa than có tính tự cháy, không phụ thuộc vào chiều dày và góc dốc vỉa, cũng như tính chất cơ - lý đá vách và trụ vỉa phải dùng phương pháp chèn lò toàn phần để điều khiển đá vách.
11. Trong các lò dọc vỉa vận tải, thông gió và các lò xuyên vỉa trung gian ở các vỉa than có tính tự cháy, cũng như trong các khu vực khai thác nằm dưới đám cháy đã được dập tắt, trước khi bắt đầu các công việc khấu than phải làm các cửa chắn cách ly bằng vật liệu chống cháy, đặt cách vị trí các đường lò cắt nhau tối thiểu là 5m. Dọc đường lò cách cửa chắn tối đa 30m, phải dự trù vật liệu (gạch, cát) với số lượng đủ để xây bịt cửa chắn khi cần thiết.
12. Khai thác các vỉa than có tính tự cháy, công tác kiểm tra được quy định như sau
a) Liên tục kiểm tra phát hiện sớm các dấu hiệu than tự nóng lên (tự cháy) bằng các máy đo chuyên dùng; Vị trí và thời gian kiểm tra do Giám đốc điều hành mỏ quy định có thoả thuận với đơn vị CH - CN chuyên trách;
b) Tại các vị trí kiểm tra, phải xác định khí Oxit các bon (CO), Hyđrô (H2) và theo dõi sự thay đổi của nó; Trường hợp kiểm tra phát hiện thấy có dấu hiệu khí CO, phải tiến hành phân tích không khí mỏ; Khi hàm lượng CO hoặc H2 tăng lên, phải dừng ngay các công việc ở khu vực có khả năng tích khí và mọi người phải rút ra nơi an toàn, đồng thời Giám đốc điều hành mỏ và đơn vị CH-CN chuyên trách phải thống nhất biện pháp ngăn chặn.
13. Các đường lò bị sập đổ hay tạm dừng hoạt động có lối thông lên mặt đất và tất cả các vị trí sụt lở ở trên mặt đất do khai thác hầm lò tạo nên đều phải được san lấp và cách ly bằng vật liệu không cháy. Ít nhất 01 lần trong tháng và một lần trong quý Quản đốc Phân xưởng thông gió mỏ phải kiểm tra những vị trí cách ly trong lò, bề mặt địa hình trên các khu vực khai thác hầm lò.
14. Cấm khấu than ở phía dưới các vị trí sụt lở mà không được san lấp.
Điều 109. Phòng cháy do nguyên nhân từ bên ngoài
1. Khi tiến hành các công việc có sử dụng ngọn lửa trần ở trong hầm lò và các công trình xây dựng trên miệng giếng, phải tuân theo quy định hiện hành về phòng chống cháy, sử dụng các ngọn lửa trần trong hầm lò.
2. Khi tiến hành các công việc có sử dụng ngọn lửa trần ở những công trình khác trên mặt mỏ, phải sử dụng các biện pháp an toàn về cháy theo quy định của pháp luật.
Nội dung chi tiết thực hiện theo mục II, Phụ lục V của Quy chuẩn này.
3. Các băng tải, ống gió, vỏ bọc cáp điện dùng trong hầm lò và các công trình xây dựng trên miệng giếng phải được chế tạo bằng vật liệu khó cháy, khó bắt lửa hay ngọn lửa không cháy lan trên mặt.
4. Trị số điện trở bề mặt của vật liệu làm ống gió và băng tải không được vượt quá 3.108W. Cấm dùng gỗ và các vật liệu có thể cháy được để lót các tang trống và các con lăn của băng tải, định vị đầu và đuôi băng, làm bộ phận định hướng băng, đệm lót ở phía dưới băng, làm cầu vượt qua băng.
5. Cho phép dùng gỗ đã được ngâm tẩm chất chống cháy để làm dầm đặt phía dưới băng tải và máng cào (trừ đầu truyền động), để làm sàn ở vị trí người lên xuống băng và kê kích các trang thiết bị.
6. Cấm rửa các máy móc, thiết bị và tàng trữ các vật liệu dễ cháy trong hầm lò.
7. Khi sử dụng các hệ thống thuỷ lực và các thiết bị có dầu phải có biện pháp tránh rò rỉ dầu.
8. Trong hầm lò và các công trình xây dựng trên miệng giếng, dầu mỡ, giẻ lau phải được đựng trong thùng có nắp đậy kín và chỉ được chứa số lượng mỗi loại không quá nhu cầu dùng trong một ngày - đêm. Khi bảo quản dầu mỡ với số lượng lớn, phải đựng trong các thùng đậy kín đặt trong buồng riêng xây dựng bằng vật liệu không cháy và có cửa chống cháy bằng kim loại.
9. Trong các lò đang hoạt động phải lắp đặt đường ống dẫn nước chống cháy có các điểm kiểm tra áp lực nước tự động do Phó Giám đốc cơ điện mỏ và đơn vị CH - CN chuyên trách xác định; Các đường ống chống cháy mỏ phải luôn đầy nước, đảm bảo cấp đủ lưu lượng, áp lực để dập tắt bất cứ điểm cháy nào ở trong mỏ; Đường kính ống dẫn nước được xác định theo tính toán nhưng tối thiểu là 100mm; Cấm sử dụng đường ống dẫn nước chống cháy vào mục đích khác trừ trường hợp dùng để chống bụi.
Điều 110. Quy định về công tác dập cháy
1. Cấm tiến hành các công việc dập cháy bằng phương pháp trực tiếp trong hầm lò có hàm lượng khí Mêtan từ 2% trở lên.
2. Tính từ thời điểm phát hiện cháy đến kết thúc việc dập cháy, phải kiểm tra thành phần không khí mỏ trong khu vực cháy, vùng bị ảnh hưởng và những vị trí tiến hành công tác CH - CN. Khi dập cháy nội sinh, những vị trí không thể tới để kiểm tra, phải đo thành phần không khí mỏ và đo nhiệt độ của than.
3. Vị trí và trình tự kiểm tra thành phần không khí mỏ và nhiệt độ trong quá trình dập cháy do người Chỉ huy công tác ƯCSC - TKCN của mỏ quy định. Việc kiểm tra thành phần không khí mỏ do lực lượng CH - CN thực hiện. Kết quả kiểm tra phải ghi vào sổ kiểm tra khu vực cháy và kiểm tra tình trạng của các tường chắn cách ly. Kết quả kiểm tra thành phần không khí phải được lưu giữ cho đến khi tổng kết công tác ƯCSC - TKCN.
Nội dung kiểm tra thực hiện theo mẫu số 06, Phụ lục VII của Quy chuẩn này.
4. Các tường chắn cố định phải được đánh số thứ tự và đánh dấu trên bản sơ đồ các đường lò ngay sau khi lập biên bản nghiệm thu các tường chắn này. Biên bản này được lưu giữ ở Phụ trách thông gió mỏ.
5. Kết quả kiểm tra tường chắn và danh mục các công việc dập cháy đã thực hiện phải được ghi vào sổ kiểm tra khu vực cháy và kiểm tra tình trạng của các tường chắn cách ly.
Nội dung kiểm tra thực hiện theo mẫu 06, Phụ lục VII của Quy chuẩn này.
6. Mỗi trường hợp xảy ra sự cố cháy, không phụ thuộc vào thời gian dập cháy dài hay ngắn và mức độ nghiêm trọng của sự cố, đều phải được điều tra theo quy định của pháp luật.
7. Vị trí nguồn cháy và giới hạn của khu vực cháy phải được ghi lên bản đồ các lò của mỏ. Phải đánh số thứ tự cho mỗi vụ cháy theo thứ tự phát hiện được.
8. Các đám cháy không thể dập tắt bằng phương pháp trực tiếp phải được cách ly bằng các tường chắn vật liệu không cháy. Đối với mỏ có khí nổ, tường chắn phải chịu được nổ.
9. Mỗi lần cách ly đám cháy, Giám đốc điều hành mỏ phải lập phương án dập cháy và biện pháp phòng ngừa đảm bảo hạn chế khối lượng lò phải cách ly và đám cháy nhanh chóng được dập tắt, bảo vệ được trữ lượng than. Phương án dập cháy phải được thoả thuận với đơn vị CH - CN chuyên trách và được cơ quan quản lý mỏ có thẩm quyền duyệt.
Điều 111. Xác định và mở các khu vực cháy đã được dập tắt
1. Chỉ được phép tiến hành các công tác phục hồi và khai thác trong các khu vực cháy đã được dập tắt sau khi đã tổng kết rút kinh nghiệm sự cố cháy.
2. Việc xác định đám cháy đã được dập tắt do Tổ công tác được thành lập theo quyết định của cơ quan quản lý mỏ có thẩm quyền. Thành phần Tổ công tác, danh mục các tài liệu cần thiết, thời gian và phương pháp kiểm tra tình trạng khu vực cháy phải thực hiện theo quy định của pháp luật.
3. Kế hoạch thăm dò và mở khu vực cháy đã được dập tắt do Giám đốc điều hành mỏ quyết định, có sự thoả thuận với đơn vị CH - CN chuyên trách và được cơ quan quản lý mỏ có thẩm quyền phê duyệt; Kế hoạch này phải bao gồm các nội dung sau:
a) Trình tự xem xét khu vực cháy đã được dập tắt trước lúc mở;
b) Các biện pháp phòng cháy khi mở tường chắn;
c) Phương pháp mở khu vực đã cách ly;
d) Chế độ thông gió cho khu vực được mở;
e) Hành trình di chuyển của lực lượng CH-CN trong hầm lò có kèm theo bản đồ trắc địa khu vực cháy của mỏ;
g) Vị trí kiểm tra thành phần không khí mỏ và đo nhiệt độ;
h) Các công việc mở, thăm dò và thông gió ở giai đoạn đầu do lực lượng CH-CN chuyên trách thực hiện.
4. Luồng gió thải từ khu vực cháy đã được dập tắt được mở có thể hoà trực tiếp vào luồng gió thải chung của mỏ. Mọi người ở trên đường gió thải dẫn từ khu vực cháy đã được dập tắt ra phải được rút đến vị trí có luồng gió sạch đảm bảo tiêu chuẩn cho phép. Trong thời gian phục hồi thông gió ở khu vực cháy đã được dập tắt, phải xác định hàm lượng khí CO và H2 ở luồng gió thải. Khi phát hiện thấy khí CO trong luồng gió thải không giảm, phải dừng ngay việc thông gió ở khu vực đó và đóng lại tường chắn.
Điều 112. Tiến hành các công việc trong phạm vi ảnh hưởng của khu vực cháy
1. Chỉ được phép tiến hành khấu than ở gần khu vực cháy, cũng như khu vực mà sản phẩm cháy hoặc những yếu tố nguy hiểm khác do cháy có thể xâm nhập với điều kiện
a) Phải để lại trụ than bảo vệ hoặc những dải vật liệu không cháy ngăn cách gió xâm nhập theo thiết kế được cơ quan quản lý mỏ có thẩm quyền phê duyệt;
b) Khu vực cháy phải được cách ly bằng tường chắn chịu nổ.
2. Cấm khai thác dưới các khu vực đang cháy ở các vỉa gần nhau, cũng như khấu than ở tầng dưới khu vực đang cháy của vỉa này.
3. Công tác mỏ trên cùng một vỉa ở phía dưới khu vực cháy đã được dập tắt, cũng như ở vỉa dưới trong cụm vỉa gần nhau phải được thực hiện theo thiết kế do cơ quan quản lý mỏ có thẩm quyền phê duyệt.
4. Cho phép đào các lò dọc vỉa vận tải chính ở tầng dưới khu vực đang cháy trên cùng một vỉa cũng như ở các tầng dưới của các vỉa khai thác lân cận.
5. Chỉ được phép đào lò dọc vỉa thông gió ở tầng dưới khu vực đang cháy trên cùng một vỉa cũng như ở tầng dưới của các vỉa khai thác lân cận khi được cơ quan quản lý mỏ có thẩm quyền phê duyệt.
NGĂN NGỪA BỤC NƯỚC VÀO CÁC ĐƯỜNG LÒ ĐANG HOẠT ĐỘNG
Điều 113. Quy định về các trạm bơm thoát nước
1. Không tính đến sự lắng đọng của bùn, dung tích tối thiểu hầm chứa nước của trạm bơm thoát nước phải đảm bảo quy định sau:
a) Đối với trạm bơm nước chính: 08 giờ lưu lượng nước bình thường;
b) Đối với trạm bơm nước khu vực: 04 giờ lưu lượng bình thường;
c) Hầm chứa nước phải luôn ở trạng thái làm việc với dung tích bùn lắng đọng không vượt quá 30%.
2. Hầm đặt bơm của trạm thoát nước chính phải được nối với:
a) Giếng mỏ bằng một lò nghiêng đi lại thông với giếng ở vị trí không thấp hơn 7m so với nền hầm đặt bơm;
b) Sân ga giếng bằng một lò đi lại có cửa đóng kín;
c) Hầm chứa nước có kết cấu cho phép điều chỉnh nước vào và đóng kín hầm bơm.
3. Khi lưu lượng nước thấp hơn 50m3/h, cho phép lắp đặt thiết bị bơm thoát nước khu vực không cần có các hầm riêng biệt;
4. Hầm bơm của trạm thoát nước chính phải được trang bị nâng cơ giới và nếu trọng lượng một thiết bị lớn hơn 3 tấn phải có dầm cẩu. Nền của trạm bơm phải đặt cao hơn 0,5m so với nền sân ga giếng.
5. Khi đào giếng, hầm bơm trung gian phải có lối thông ra giếng với kích thước tối thiểu trong khung chống: chiều rộng là 2,5m và chiều cao là 2,2m. Lối vào hầm bơm phải đóng bằng cửa có song sắt chắc chắn.
6. Lưu lượng nước và hệ thống ống đẩy của trạm bơm thoát nước chính và khu vực được quy định như sau:
a) Trạm bơm thoát nước chính và các trạm bơm có lưu lượng nước lớn hơn 50m3/h phải được trang bị ít nhất 3 tổ hợp máy bơm; Năng lực bơm của mỗi tổ hợp không kể dự phòng phải đảm bảo thoát hết lưu lượng nước cực đại một ngày - đêm trong thời gian 20 giờ bơm;
b) Khi đào hoặc đào sâu thêm giếng, không phụ thuộc vào lưu lượng nước, cho phép sử dụng một máy bơm treo nhưng bắt buộc phải có một máy bơm dự phòng;
c) Trạm bơm thoát nước chính phải được trang bị ít nhất hai đường ống đẩy trong đó có một dự phòng; Khi có ba đường ống làm việc, phải có một đường ống dự phòng; Khi có nhiều hơn 3 đường ống làm việc, phải có 2 đường ống dự phòng. Đối với trạm thoát nước khu vực, cho phép có một đường ống dự phòng;
d) Khi đấu nối các đường ống đẩy, phải đảm bảo thoát hết lưu lượng nước một ngày - đêm;
e) Cấm đặt ở trong giếng các đường ống đẩy có áp lực cao hơn 6,4MPa (64kG/cm2) đối diện với phía mặt thùng cũi; Chỉ được phép đặt đường ống dẫn áp lực cao hơn 6,4MPa đối diện với phía mặt thùng cũi với điều kiện đảm bảo các quy định sau đây:
- Che chắn các vị trí nối ống bằng những tấm kim loại;
- Ngăn mặt thùng cũi nói trên bằng cửa kín có chiều cao bằng chiều cao thùng cũi;
- Che kín đường ống tại những vị trí người ra vào thùng cũi.
Điều 114. Quy định về tổ chức kiểm tra công tác thoát nước
1. Tính từ thời điểm lắp đặt xong, định kỳ sau 5 năm vận hành đường ống áp lực của trạm bơm thoát nước chính phải được kiểm tra bằng 1,25 lần so với áp lực làm việc.
2. Tổ chức kiểm tra các trạm bơm thoát nước mỏ được thực hiện như sau
a) Hàng ngày do người trực bơm thực hiện;
b) Ít nhất 01 lần trong tuần do kỹ sư cơ điện chuyên trách và ít nhất 01 lần trong 02 tuần do Phó Giám đốc cơ điện mỏ hoặc người được uỷ quyền thực hiện.
Kết quả kiểm tra phải ghi vào sổ kiểm tra hoạt động của trạm bơm.
3. Ít nhất một lần trong năm, phải kiểm tra và hiệu chỉnh thiết bị trạm bơm chính. Biên bản kiểm tra và hiệu chỉnh phải do Giám đốc điều hành mỏ duyệt.
Nội dung kiểm tra thực hiện theo mẫu sổ 07 Phụ lục VII của Quy chuẩn này.
MỤC 2. NGĂN NGỪA BỤC NƯỚC TỪ CÁC ĐƯỜNG LÒ NGẬP NƯỚC VÀ CÁC ĐỐI TƯỢNG CHỨA NƯỚC KHÁC
Điều 115. Quy định chung
1. Để đề phòng nguy hiểm bục nước vào mỏ hầm lò đang hoạt động, phải đảm bảo các yêu cầu sau:
a) Trắc địa trưởng và Địa chất trưởng mỏ phải đưa lên bản đồ hiện trạng mỏ tất cả các lò ngập nước, các phay chứa nước, hồ ao, sông suối có liên quan và các đối tượng chứa nước khác cùng với vành đai nguy hiểm bục nước của nó;
b) Phải lập các biện pháp ngăn ngừa bục nước từ các hố sụt lún trên mặt đất vào hầm lò được Giám đốc điều hành mỏ phê duyệt. Các biện pháp ngăn ngừa bục nước được quy định tại Phụ lục IX “Xác định ranh giới trụ chắn nước và ranh giới an toàn khai thác gần vùng các lò ngập nước và lỗ khoan địa chất”;
c) Miệng giếng đứng, giếng nghiêng, lò nối, lò bằng và các lỗ khoan đường kính lớn phải được xây dựng sao cho nước mặt không chảy vào mỏ;
d) Tính toán xác định và cập nhật lên bản đồ công tác mỏ các trụ chắn nước bao quanh ngăn chặn vùng có các lò ngập nước theo công thức sau đây:
D = 5M + 0,05H + 0,002L; m
Trong đó:
D - Chiều rộng trụ chắn nước,m
M - Chiều cao khấu của vỉa, m
H - Khoảng cách thẳng đứng từ mặt đất đến trụ vỉa, m
L - Tổng chiều dài trắc địa đo đạc từ các giếng mỏ đến trụ chắn nước, m
Chiều rộng trụ chắn nước sau khi tính toán phải đảm bảo tối thiểu là 20m. Đối với các vỉa than có chiều dày lớn hơn 3,5m và góc dốc lớn hơn 300 không được để lại trụ chắn nước mà phải tiến hành tháo nước theo quy định tại khoản d Điều này;
e) Khi không thể xác định được chuẩn xác vành đai nguy hiểm bục nước, phải dừng tiến hành các công tác mỏ cách đối tượng chứa nước hoặc nghi ngờ chứa nước tối thiểu là 200m.
2. Việc xác định vành đai nguy hiểm bục nước từ các lò ngập nước cũng như thiết kế các trụ chắn nước; Công tác chuẩn bị đào lò; Công tác khoan trong các vùng đó phải được Giám đốc điều hành mỏ phê duyệt trước khi thực hiện.
Điều 116. Hoạt động công tác mỏ gần vùng có các lò ngập nước
1. Chỉ được phép khai thác dưới vùng các lò ngập nước khi khoảng cách giữa các vỉa than theo đường vuông góc tối thiểu bằng 40 lần chiều cao khấu.
2. Chỉ được phép khai thác vỉa trên nhưng nằm dưới mức các lò ngập nước của vỉa dưới khi khoảng cách giữa các vỉa than theo đường vuông góc tối thiểu bằng 40 lần chiều dày của vỉa dưới.
3. Chỉ được phép đào các đường lò chuẩn bị trong than hoặc trong đá bằng khoan nổ mìn dưới vùng có các lò ngập nước của vỉa trên hoặc vỉa dưới khi khoảng cách từ đường lò đang đào đến lò ngập nước theo đường vuông góc tối thiểu bằng 10 lần chiều cao đường lò đào.
4. Khi giữa hai vỉa than có lỗ khoan thăm dò địa chất hoặc phay phá kiến tạo, phải để lại trụ chắn nước theo điểm d khoản 1 Điều 115 Quy chuẩn này.
5. Ranh giới an toàn khai thác các vỉa trên hoặc dưới vùng có lò ngập nước thực hiện theo Phụ lục IX “Xác định ranh giới trụ chắn nước và ranh giới an toàn khai thác gần vùng các lò ngập nước và lỗ khoan địa chất”.
6. Không phụ thuộc trong hay ngoài biên giới khai trường mỏ, các công tác mỏ tiến hành ở khoảng cách đến vùng ngập nước nhỏ hơn 200m đều phải thực hiện theo thiết kế được cơ quan quản lý mỏ có thẩm quyền phê duyệt, trong đó phải có các biện pháp ngăn ngừa bục nước và khí độc vào các lò đang hoạt động.
7. Quy định về ranh giới hoạt động công tác mỏ gần vùng có các lò ngập nước
a) Ranh giới nguy hiểm gần vùng ngập nước phải được phê duyệt trước khi duyệt kế hoạch sản xuất hàng năm của mỏ;
b) Ranh giới vùng nguy hiểm đối với rốn giếng bị ngập nước, các hầm chứa nước, các điểm tụ nước khác có thể tích nhỏ hơn 200m3 và áp suất nước nhỏ hơn 0,1MPa cũng như ở nơi có phay phá cắt qua các lò ngập nước, vùng có các lỗ khoan thăm dò chưa lấp (hoặc lấp không tốt) do Giám đốc điều hành mỏ phê duyệt;
c) Ranh giới vùng nguy hiểm đối với các đối tượng chứa nước khác có thể tích lớn hơn 200m3 và áp suất nước lớn hơn 0,1MPa do cơ quan quản lý mỏ có thẩm quyền phê duyệt;
d) Thiết kế khai thác, đào lò trong ranh giới nguy hiểm gần vùng có các lò ngập nước phải do chính cơ quan đã duyệt thiết kế xác định ranh giới nguy hiểm cho vùng đó phê duyệt.
8. Đối với vùng ngập nước có đường biên rõ ràng, nguy cơ bục nước chính là vùng trụ chắn nước. Đối với vùng ngập nước không có đường biên rõ ràng, nguy cơ bục nước là vùng giữa đường biên đó và ranh giới an toàn khai thác mỏ.
9. Đối với các vỉa nằm dưới hoặc nằm trên vùng ngập nước, nguy cơ bục nước chính là vùng để lại trụ chắn nước.
10. Phải để lại các trụ ngăn cách giữa các mỏ khi đồng thời khai thác các vỉa ở các mỏ liền kề nhau. Kích thước trụ ngăn cách được xác định theo Phụ lục IX “Xác định ranh giới trụ chắn nước và ranh giới an toàn khai thác gần vùng ngập nước và các lỗ khoan địa chất”. Chỉ được phép khai thác toàn bộ hoặc từng phần các trụ ngăn cách giữa các mỏ và các trụ bảo vệ khác trong vùng ngập nước sau khi đã tháo nước từ các lò ngập nước vào các lò đang hoạt động.
11. Chỉ được phép khai thác gần vùng các lò ngập nước không có đường biên rõ ràng, sau khi đã khoanh sơ bộ được khu vực dự định khai thác bằng các lò chuẩn bị hay bằng các lỗ khoan. Trường hợp không thể khoanh được khu vực dự định khai thác theo cách trên, phải thường xuyên khoan các lỗ khoan vượt trước về phía vùng ngập nước với chiều sâu lỗ khoan tối thiểu bằng chiều rộng trụ chắn nước.
12. Việc đào các lò chuẩn bị trong ranh giới vùng trụ chắn nước giữa các mỏ, khai thác toàn bộ hoặc từng phần các trụ đó, chỉ được phép theo thiết kế do cơ quan quản lý mỏ có thẩm quyền phê duyệt.
13. Khi đào các lò chuẩn bị dọc vỉa hoặc trong đá để thoát nước ở khu vực giữa ranh giới an toàn khai thác mỏ và các lò ngập nước, phải tuân thủ các điều kiện sau:
a) Đào gương hẹp với hệ thống lỗ khoan vượt trước ở gương và hông lò với chiều dài không nhỏ hơn chiều rộng trụ chắn nước để kiểm tra có hay không lò ngập nước; Đường kính lỗ khoan vượt trước tối đa là 76mm; Miệng lỗ khoan phải được chống ống bảo vệ và có van điều chỉnh áp lực lưu lượng nước. Sau khi lắp đặt xong, các van và các bộ phận giảm áp phải được thử nghiệm dưới áp lực gấp 1,5 lần áp lực quy định trong thiết kế;
b) Đối với vỉa có góc dốc ≥ 250 cần phải đào lò đôi;
c) Để phòng ngừa bục nước bất ngờ vào các lò đang hoạt động, khi cần thiết, trong lò chuẩn bị phải đặt tường chắn cách xa gương có cánh cửa mở về phía sẽ có dòng nước chảy ra, hoặc tường chắn xây kín đặt sát gương có các lỗ khoan xuyên qua để thoát nước.
14. Việc tháo nước từ mức trên vào hệ thống thoát nước của các lò đang hoạt động phải được thực hiện theo thiết kế riêng do cơ quan quản lý mỏ có thẩm quyền phê duyệt.
15. Khi tiến hành các công tác mỏ đến gần vùng bán kính tính toán nguy hiểm bục nước đã được xác định bằng các lỗ khoan thăm dò, Trắc địa trưởng mỏ phải báo cáo bằng văn bản cho Giám đốc điều hành mỏ và Quản đốc khu vực đó.
16. Phải để lại trụ chắn nước cho các vỉa than có lỗ khoan địa chất thăm dò cắt qua cũng như ở các vỉa nằm cách đáy lỗ khoan theo Phụ lục IX “Xác định ranh giới trụ chắn nước và ranh giới an toàn khai thác gần vùng các lò ngập nước các lỗ khoan địa chất”.
17. Trắc địa trưởng mỏ nhất thiết phải đưa ranh giới vùng nguy hiểm bục nước đã được duyệt vào bản đồ cập nhật các lò, hàng tháng phải báo cáo bằng văn bản cho Giám đốc điều hành mỏ và Quản đốc khu vực biết sự tiến gần của công tác mỏ vào vùng nguy hiểm, điểm bắt đầu và điểm kết thúc công việc khai thác trong vùng đó.
18. Giám đốc điều hành mỏ phải hướng dẫn bản thiết kế đã được duyệt về việc tiến hành các công tác mỏ trong vùng nguy hiểm bục nước cho tất cả những người làm việc trong vùng đó và có trách nhiệm kiểm tra việc đảm bảo an toàn cho họ trong suốt quá trình thực hiện công việc.
19. Khi gương lò đang tiến gần đến vùng nguy hiểm bục nước mà xuất hiện các hiện tượng có thể bục nước (đọng giọt ở gương, nhỏ giọt tăng dần), lập tức phải đưa người ra khỏi gương đó và ra khỏi tất cả lò khác có nguy cơ ngập nước, sau đó báo cáo hiện tượng trên cho Quản đốc phân xưởng và Giám đốc điều hành mỏ để xử lý tiếp.
20. Việc bơm nước từ các lò ngập nước phải thực hiện theo thiết kế do Giám đốc điều hành mỏ duyệt. Đề phòng bục khí vào nơi có người và thiết bị điện, trước khi bơm nước Phân xưởng thông gió phải kiểm tra thành phần không khí ở trên mặt nước (khí CO, CO2, CH4, H2S và O2).
21. Phương án đánh ngập các lò chỉ được thực hiện trong những trường hợp đặc biệt và theo thiết kế do cơ quan quản lý mỏ có thẩm quyền phê duyệt. Khi đánh ngập các đường lò cách biên giới kỹ thuật với mỏ liền kề dưới 200m, Giám đốc điều hành mỏ phải chuyển cho mỏ liền kề một bản thiết kế đánh ngập được duyệt và thông báo bằng văn bản cho mỏ liền kề biết khi thực hiện phương án đánh ngập.
Điều 117. Quy định chung
1. Trước khi bắt đầu công việc khấu than ở khu vực nằm dưới vùng tích đọng bùn, nước trong cùng một vỉa, hoặc nằm dưới vùng tích đọng nước ở khoảng cách trung bình từ vị trí khấu đến nơi tích đọng nhỏ hơn 5 lần chiều dày vỉa, Giám đốc điều hành mỏ phải tổ chức thăm dò khu vực chứa bùn, nước bao gồm việc kiểm tra tường chắn cách ly khu vực, cũng như kiểm tra trên mặt đất để xác định độ chứa nước của khu vực và khối lượng nước trong các vị trí sụt do quá trình khai thác gây ra.
2. Thăm dò được thực hiện bằng các lỗ khoan đường kính 75mm đến 100mm hoặc đào lò từ các vỉa lân cận hoặc từ những lò thông gió của khu vực được khai thác. Kết quả thăm dò phải lập thành văn bản được Giám đốc điều hành mỏ phê duyệt.
3. Thăm dò khu vực khai thác để sau đó mở các tường chắn cách ly phải được thực hiện theo kế hoạch do Giám đốc điều hành mỏ duyệt và có sự thoả thuận của đơn vị CH - CN chuyên trách.
4. Trường hợp trong các lò ở mức khai thác trên có nước hoặc bùn sét phải có biện pháp làm khô bùn và tháo hết nước trước khi khai thác.
Điều 118. Nguy cơ bục bùn sét trong hoạt động công tác mỏ
1. Khi khai thác tầng đầu tiên, điều khiển đá vách bằng phương pháp phá hoả toàn phần, nguy cơ bục bùn sét thường xảy ra ở các khu vực vỉa dốc, dày trên 2,5m nằm dưới các hào, khe suối, vị trí trũng đầy nước hoặc nằm dưới các khu vực đã khai thác của mỏ lộ thiên và hầm lò khi độ ẩm của đất đá dạng sét vượt quá giới hạn dẻo (lớn hơn 3%).
2. Khi khai thác từ tầng thứ hai trở xuống, điều khiển đá vách bằng phương pháp phá hoả toàn phần của vỉa dày có góc dốc lớn hơn 55o và khi khấu cả chiều dày hoặc khấu chia lớp mà chiều dày lớn hơn 3,5m, phải tính đến nguy cơ bục bùn sét khi thấy một trong những hiện tượng sau đây:
a) Lớp đất đá đầu tiên dạng bột sét phủ trên bề mặt lộ vỉa có chiều dày từ 10m trở lên;
b) Khi chiều dầy lớp đất phủ 5m đến 10m và có các sụt lún bị phủ đầy sét do khai thác các tầng trên tạo ra;
c) Khối lượng đất sét đưa vào mỏ để trát, bịt hoặc để chữa cháy ở khoảng không gian đã khai thác tầng trên nằm trên khu vực đang chuẩn bị vượt quá 10% so với khối lượng than đã lấy ra.
3. Khi khai thác vỉa dày trung bình nằm dưới khu vực vỉa dày đã khai thác, điều khiển đá vách bằng phương pháp phá hoả toàn phần, phải tính tới nguy cơ bục bùn sét của vỉa trên xuống vỉa dưới nếu như khoảng cách giữa hai vỉa nhỏ hơn 5 lần chiều dày vỉa dưới.
4. Giám đốc điều hành mỏ phải xác định được nguy cơ bục bùn sét vào khu vực chuẩn bị khai thác dựa trên cơ sở các tài liệu địa chất, trắc địa, các số liệu thu thập được về chiều dày lớp đất phủ, khối lượng bùn sét dùng trong lò, độ ổn định đất đá vây quanh, độ ẩm đất sét nằm trong lớp đất phủ, trong đáy những vị trí sụt có chiều sâu tới 10m và những vị trí đất đá bị nhão ra do nước mặt hoặc nước ngầm trong không gian đã khai thác, cũng như những nơi đã bị phụt bùn sét ở mức trên.
5. Khi khai thác các khu vực có nguy cơ bục bùn sét và khai thác các vỉa dưới thuộc vùng nguy hiểm này, chỉ được phép thực hiện theo hộ chiếu riêng lập cho từng khu vực được cơ quan quản lý mỏ có thẩm quyền phê duyệt.
6. Khi xuất hiện trong gương lò chợ hoặc trong các lò nối với nó những hiện tượng báo hiệu khả năng bục bùn sét (nước thấm đọng thành giọt, tăng áp lực đột ngột, xuất hiện dung dịch đất sét khi thăm dò qua tường chắn) cũng như trong trường hợp có sét xâm nhập vào gương lò đang khai thác, Quản đốc phân xưởng phải đưa mọi người ra khỏi gương lò đến vị trí an toàn và báo ngay cho Giám đốc điều hành mỏ. Các công việc ở gương đó chỉ được hoạt động trở lại khi được phép của cơ quan quản lý mỏ có thẩm quyền.
7. Các biện pháp ngăn ngừa bục nước vào các đường lò đang hoạt động từ vùng sụt lún bề mặt địa hình:
a) Để ngăn ngừa tích tụ nước mặt vào các hố sụt lún bề mặt, biện pháp tốt nhất là lấp đầy các hố sụt lún và lắp các máng nước dể dẫn nứớc qua vùng sụt lún;
b) Khi xuất hiện các hố sụt lún bề mặt dưới đó là đất đá chứa nước, có thể tháo nước trong hố sụt lún bằng cách khoan các lỗ khoan vào các đường lò chính;
c) Không cho phép để tích tụ nước trong các hố sụt lún. Để tháo khô nước chảy cục bộ do mưa, lũ chảy vào các hố sụt lún phải bơm nước qua các đập chắn vào các mương thoát nước hoặc khe suối phụ thuộc vào địa hình;
d) Để ngăn chặn nước mưa, lũ chảy vào các hố sụt lún phải xây dựng các đập chắn, đào các hào thoát nước hoặc lắp các máng dẫn dọc sườn núi để dẫn nước ra ngoài. Phải xúc hết lớp đất phủ mới xây dựng đập chắn bên trên. Dọc theo đập chắn phải đào các hào thoát nước để bảo vệ đập;
e) Xây dựng các hố tiêu năng cho suối, khe có liên quan đến khả năng có chảy vào các hố sụt lún phải được thực hiên trong mùa khô;
g) Biện pháp ngăn ngừa hữu hiệu việc mở rộng diện sụt lún do khai thác phía dưới là khai thác các lớp, các khoảnh, các tầng, các vỉa theo phương pháp chèn lò toàn phần hoặc để lại trụ bảo vệ.
VỆ SINH CÔNG NGHIỆP VÀ MÔI TRƯỜNG SINH THÁI
Điều 119. Quy định chung
1. Mỗi mỏ hầm lò phải áp dụng tổng hợp các biện pháp về kỹ thuật, vệ sinh, y tế đảm bảo điều kiện lao động bình thường và ngăn ngừa bệnh nghề nghiệp.
2. Mỏ hầm lò phải có hồ sơ thuyết minh tình trạng điều kiện lao động về vệ sinh lao động, các giải pháp ngăn ngừa các yếu tố nguy hiểm độc hại trong các tài liệu thiết kế sản xuất, các hộ chiếu khai thác và đào chống lò. Phải sử dụng các phương tiện bảo vệ phòng hộ tập thể và cá nhân để tránh các nguy hiểm độc hại.
3.Tại mỗi công đoạn dây chuyền sản xuất chính và phụ trợ, phải sử dụng các phương tiện cơ giới và bán cơ giới để loại trừ hoặc giảm đến mức tối đa lao động thủ công nặng nhọc.
4. Những mỏ hầm lò đang hoạt động phải trang bị các phương tiện cơ giới chở người chuyên dùng trong các trường hợp sau:
a) Khoảng cách tới nơi làm việc lớn hơn 1km đối với lò bằng;
b) Độ cao chênh lệch giữa điểm đầu và điểm cuối của đường lò dành cho người đi lại lớn hơn 25m.
5. Bảo quản các lò, các vị trí làm việc phải tuân thủ các tiêu chuẩn và quy định về vệ sinh lao động.
6. Các lò ở sân giếng, lò vận tải, thông gió chính, trạm biến thế và trạm thiết bị phải được quét vôi trắng ít nhất 6 tháng 1 lần.
7. Trong giếng mỏ phải bố trí các điểm gom nước, trong các thùng cũi phải chống nước nhỏ giọt, tại những lối ra vào thùng cũi phải có biện pháp ngăn ngừa nước chảy vào người.
8. Các lò và những nơi làm việc phải thực hiện các biện pháp chống dột.
9. Tại các lò có nước dột, nước chảy thành dòng, người lao động phải được trang bị bảo hộ chống ướt.
10. Để phun nước chống bụi phải sử dụng nước có chất lượng theo tiêu chuẩn về nước công nghiệp do Bộ Y tế quy định.
11. Chỉ được sử dụng nước mỏ sau khi đã được xử lý đảm bảo tiêu chuẩn nước công nghiệp.
12. Khi đào các lò trong đá, thiết bị khoan đá bắt buộc phải có nước khử bụi.
13. Độ ồn tại nơi làm việc không được phép vượt quá giới hạn độ ồn cho phép theo quy định hiện hành của Nhà nước.
14. Các công việc liên quan đến chất phóng xạ và nguồn bức xạ, ion hoá, kể cả các dụng cụ đo dựa trên nguyên lý tác động bức xạ ion phải được thực hiện theo quy định của Bộ Y tế, Bộ Khoa học và Công nghệ.
Điều 120. Không khí mỏ
1. Không khí mỏ phải có thành phần, nhiệt độ và độ ẩm đảm bảo sự sống bình thường của con người trong suốt cả thời gian họ ở trong hầm lò và phải phù hợp với quy định của Bộ Y tế.
2. Khi nồng độ bụi trong không khí khu vực làm việc vượt quá giới hạn nồng độ cho phép ở Bảng VIII.1 phải áp dụng các biện pháp bổ sung loại trừ những tác động độc hại đến con người như: Đưa người ra khỏi khu vực bụi hoặc dùng phương tiện chống bụi cá nhân.
Bảng VIII.1 Nồng độ bụi giới hạn cho phép tại khu vực làm việc trong hầm lò
|
Đặc tính bụi |
Hàm lượng Đioxitsilíc tự do chứa trong bụi, % |
Giới hạn nồng độ bụi chung, mg/m3 |
|
Đá, đá kẹp |
Từ 10 đến 70 |
2 |
|
Than và than kẹp |
Từ 5 đến 10 |
4 |
|
Than Antraxit. |
Đến 5 |
6 |
|
Bụi than đá |
Đến 5 |
10 |
Điều 121. Các phương tiện bảo hộ lao động
1. Mỏ hầm lò phải có phòng để bảo quản, kiểm tra sửa chữa và làm sạch các phương tiện bảo hộ lao động (BHLĐ). Công việc bảo dưỡng các phương tiện BHLĐ phải làm theo đúng hướng dẫn của nhà máy sản xuất. Cấm bảo quản các phương tiện BHLĐ ở bên ngoài phạm vi mỏ.
2. Đèn lò cá nhân, mũ lò, bình tự cứu, các trang bị BHLĐ khác phải đáp ứng các tiêu chuẩn theo quy định của pháp luật và phải được cơ quan chức năng có thẩm quyền kiểm định.
3. Cấu tạo của đèn lò cá nhân phải đảm bảo quy định về phòng nổ và độ chiếu sáng trong suốt 10 giờ làm việc liên tục và không rò rỉ dung dịch điện phân ra quần áo người lao động.
4. Để bảo vệ mắt, phải sử dụng kính màu hoặc tấm chắn không bị hơi nước làm mờ.
5. Cấm vận hành máy khoan khí nén, điều khiển tời chạy bằng khí nén, vận hành máy nén khí mà không có phương tiện BHLĐ chống tiếng ồn.
Điều 122. Bảo đảm y tế, vệ sinh lao động
1. Giám đốc điều hành mỏ phải thực hiện các quy định về trang bị BHLĐ, chế độ chăm sóc sức khoẻ cho người làm trong mỏ hầm lò theo các tiêu chuẩn do Bộ Y tế và Bộ Lao động - Thương binh và Xã hội quy định; Tổ chức thực hiện chế độ kiểm tra sức khoẻ định kỳ và khám phát hiện bệnh nghề nghiệp cho người lao động theo định kỳ sau:
a) Sáu tháng 1 lần với những người khấu than và đào lò;
b) Một năm 1 lần đối với những người làm việc khác;
c) Đối với những người làm việc ở những vị trí tiếp xúc nhiều với bụi trong hầm lò bắt buộc chụp X quang phổi mỗi năm một lần;
d) Những người bị phát hiện có bệnh nghề nghiệp phải được điều trị theo kết luận của Hội đồng giám định y khoa, những người không qua kiểm tra y tế, không được làm việc.
2. Mỏ hầm lò phải có trạm y tế trên mặt đất và trong hầm lò.
3. Trạm y tế trong hầm lò phải được bố trí ở sân ga giếng trong khám riêng biệt có đủ gió sạch đi qua; Ở những lò dài, trạm y tế phải đặt ở nơi có nhiều người tập trung nhất.
4. Người lao động trong mỏ phải được huấn luyện những điều cần biết về sơ cứu ban đầu, phải được trang bị cuộn băng cấp cứu cá nhân bọc trong bao không thấm nước và mang theo người.
5. Tại các phân xưởng trên mặt mỏ, các phân xưởng khai thác và đào lò và tại các hầm trạm thiết bị máy móc phải có tủ thuốc cấp cứu ban đầu, cáng cứu thương kết cấu cứng. Cáng cứu thương phải thuận tiện để có thể đặt ngay lên phương tiện vận tải cấp cứu y tế.
6. Mỏ hầm lò bắt buộc phải có xe ô tô cấp cứu thường trực suốt ngày - đêm. Nghiêm cấm sử dụng xe cấp cứu vào việc khác.
7. Mỏ hầm lò phải đảm bảo chất lượng nước uống theo tiêu chuẩn do Bộ Y tế quy định. Trường hợp sử dụng nước mỏ đã được làm sạch, phải có sự kiểm tra và cho phép của cơ quan thanh tra y tế có thẩm quyền.
8. Quy định về nhà tắm nước nóng cho người lao động
a) Nhà tắm phải được xây dựng xong trước khi đưa mỏ vào hoạt động, có năng lực thông qua trong vòng 45 phút giải phóng hết số người tắm, có ống mềm dẫn nước rửa nền và nền phải lát vật liệu chống trơn, có phòng để quần áo sạch riêng;
b) Nước nóng dùng để tắm cho người làm trong mỏ phải được đun bằng thiết bị chuyên dùng. Đường ống dẫn nước nóng phải được bao bọc cách nhiệt, chống rỉ và được đặt ở chiều cao ít nhất 2m so với nền nhà tắm. Mỗi vòi tắm phải có van điều chỉnh nóng - lạnh. Các van điều chỉnh nóng - lạnh phải có ký hiệu riêng biệt. Nhiệt độ cho phép không được lớn hơn 650C và nhỏ hơn 370C.
9. Giám đốc điều hành mỏ phải tổ chức bảo quản, giặt sấy quần áo BHLĐ và thay thế hàng ngày cho người lao động.
10. Mỗi người làm việc trong hầm lò phải được cung cấp từ 0,5 đến 0,75 lít/ca nước uống đựng trong bình cá nhân có quai đeo. Những người làm công việc cấp nước uống phải được định kỳ kiểm tra sức khoẻ và không có bệnh truyền nhiễm.
11. Đối với những phân xưởng làm việc ngoài trời, ở mỗi khu vực làm việc phải có nhà hoặc mái che tạm thời tránh mưa nắng. Phải có biện pháp chống say nắng cho người lao động.
12. Tại khu vực làm việc đông người trên mặt bằng mỏ, phải xây dựng nhà xí, nhà vệ sinh phụ nữ đúng tiêu chuẩn vệ sinh, có đủ nước sạch, có bể tự hoại chứa nước thải, có người trông giữ dọn dẹp hàng ngày.
13. Trong hầm lò tại các sân ga giếng, những nơi chờ đợi đông người, tại các phân xưởng khai thác và đào lò phải có hố xí vệ sinh theo quy định hiện hành, đảm bảo đủ nhu cầu vệ sinh, tính theo số người thường xuyên làm việc tại khu vực đó. Các hố xí này phải được đưa lên mặt đất 3 lần một tuần đổ vào nơi được khử trùng.
Điều 123. Bảo vệ môi trường sinh thái
1. Trước khi tiến hành các công tác mỏ, mỏ hầm lò phải có báo cáo đánh giá tác động môi trường và phải có những giải pháp đặc biệt để bảo vệ nguồn nước và bảo vệ mặt đất. Các vùng đất bị sụt lở phải được phục hồi nguyên trạng.
2. Nước thải, rác thải và các chất gây ô nhiễm môi trường trong mỏ phải được quản lý tuân thủ các quy định của pháp luật về bảo vệ môi trường.
3. Nước thải từ mỏ thoát ra phải được kiểm tra thành phần hoá học và vi trùng ít nhất 2 lần trong 1 năm. Kết quả phân tích phải báo cáo cơ quan quản lý nhà nước về môi trường ở địa phương.
4. Trường hợp phát hiện nước mỏ thoát ra có chất độc hại, Giám đốc điều hành mỏ phải thực hiện các biện pháp khử độc và báo cáo với cơ quan quản lý nhà nước về môi trường tại địa phương.
5. Cấm để chảy các sản phẩm dầu lửa, dung dịch nhũ tương và những hoá chất, các chất ô nhiễm khác vào mỏ hầm lò cũng như trên mặt mỏ.
6. Để ngăn ngừa các chất thải xâm nhập vào không khí vượt quá giới hạn cho phép phải có các giải pháp đặc biệt, có sự đóng góp ý kiến của cơ quan quản lý nhà nước về môi trường địa phương.
7. Khi thiết kế mỏ hầm lò, phải tính tới phương án sử dụng công nghệ không thải bằng việc đổ đá thải ngay dưới hầm lò hoặc sử dụng nó cho các nhu cầu kinh tế, công nghiệp khác.
8. Quy định về bãi thải
a) Ở các bãi thải đang hoạt động phải có biện pháp ngăn ngừa hiện tượng tự cháy và xói mòn do gió và nước;
b) Cấm sử dụng bãi thải đang bị cháy. Đất đá thải bị nung nóng phải có biện pháp làm nguội trước khi thải;
c) Các bãi thải có chiều cao từ 10m trở lên phải xác lập vùng bảo vệ. Trong vùng này phải đặt biển báo "cấm vào". Cấm bố trí nhà ở và các công trình khác có người thường xuyên hay tạm thời ở trong vùng cấm đó, trừ các công trình phục vụ bãi thải;
d) Trong vùng bảo vệ chỉ cho phép bố trí các công trình giao thông kỹ thuật ngoài phạm vi 50m so với vành đai thiết kế bãi thải;
e) Chiều cao tối đa của bãi thải đá được xác định theo góc trượt tự nhiên của đất đá và khả năng chịu lực của nền bãi thải. Nếu bãi thải có chiều cao vượt quá 100m phải được phép của cơ quan quản lý mỏ có thẩm quyền;
g) Khi bố trí bãi thải, phải để một vành đai bảo vệ tính từ chân kết thúc bãi thải ra ngoài với chiều rộng tối thiểu là 500m; Việc xây dựng cơ sở chữa bệnh, công trình văn hoá, nhà ở .v.v.. phải nằm ngoài vành đai bảo vệ đó;
h) Khoảng cách từ bãi thải đá đến giếng mỏ không được nhỏ hơn 200m;
i) Bãi thải phải bố trí có hướng không làm ảnh hưởng đến khu nhà ở, các công trình công cộng và miệng giếng;
k) Trong thời gian dập cháy bãi thải, phải đo nồng độ khí ôxit cacbon, sunfua hyđrô ở vị trí làm việc vào đầu mỗi ca. Khi nồng độ các khí độc vượt quá tiêu chuẩn cho phép, phải áp dụng các biện pháp xử lý kịp thời để đảm bảo an toàn.
l) Các bãi thải dừng hoạt động phải được trồng cây phủ xanh.
9. Quy định về đổ thải
a) Cấm đổ thải lên các lộ vỉa than mà chiều dày lớp đất phủ nhỏ hơn 5m và ở những nơi mà dưới đó đã khai thác tạo ra sụt lún lên mặt đất. Cho phép đổ thải lên vùng có sụt lún nếu các sụt lún được lèn chặt một lớp sét không nhỏ hơn 5m.
b) Đổ thải tốt nhất là đổ vào các khe, những nơi trũng, các đáy mỏ lộ thiên đã khai thác nhưng phải giải quyết tốt thoát nước và không cho nước mưa xung quanh chảy vào.
c) Đổ thải không được chậm quá 1 tầng thải cũng như không được chậm quá 1 năm trước khi kết thúc đổ thải.
d) Nghiêm cấm các hành vi sau:
- Đổ vào bãi thải: Xỉ tro chưa nguội, các vật liệu dễ cháy (gỗ, giấy, mùn cưa, giẻ lau dầu mỡ);
- Đổ thải hình chóp nón khi không có thiết bị chuyên dùng;
- Đổ thải vào ban đêm khi không có chiếu sáng phù hợp với thiết kế quy định;
- Đổ thải trong thời gian có mưa to hoặc gió lớn;
- Đổ nước thải vào các kẽ nứt nẻ, lỗ hổng đang bị cháy trên bãi thải mà không có những biện pháp an toàn thích hợp;
- Thực hiện công việc dập cháy bãi thải chỉ có 1 người.
ĐIỀU KHOẢN THI HÀNH
Điều 124. Tổ chức thực hiện
1. Trong quá trình thực hiện Quy chuẩn này, nếu phát hiện những điều chưa phù hợp, những vấn đề chưa được quy định hoặc cần sửa đổi, bổ sung, yêu cầu tổ chức, cá nhân báo cáo, phản ảnh về Bộ Công Thương để xem xét, nghiên cứu sửa đổi, bổ sung.
2. Giao cho Cục Kỹ thuật an toàn và Môi trường công nghiệp, trong phạm vi chức năng quyền hạn của mình hướng dẫn, kiểm tra, giám sát việc thực hiện các quy định của Quy chuẩn.
Điều 125. Quy định về khen thưởng, xử phạt
1. Tổ chức, cá nhân có thành tích trong công tác an toàn hoặc có những đóng góp lớn vào việc cứu hộ cứu nạn, giảm thiểu những thiệt hại về người, tài sản và môi trường do sự cố, tai nạn hoặc thiên tai gây ra, sẽ được khen thưởng theo quy định của Nhà nước.
2. Các tổ chức, cá nhân vi phạm các quy định của Quy chuẩn này tùy theo tính chất, mức độ vi phạm sẽ bị xử lý kỷ luật, xử phạt hành chính hoặc bị truy cứu trách nhiệm hình sự, trường hợp gây thiệt hại phải bồi thường theo quy định của pháp luật./.
HƯỚNG DẪN LẬP HỘ CHIẾU ĐÀO, CHỐNG LÒ VÀ KHAI THÁC
I. Quy định chung
1. Hộ chiếu đào, chống lò và khai thác được lập trên cơ sở thiết kế kỹ thuật thi công, sơ đồ mở vỉa và chuẩn bị của cả mỏ hoặc từng tầng, mức, khu khai thác.
2. Hộ chiếu được lập cho từng gương khai thác, từng lò chuẩn bị, hầm trạm trong khu vực khai thác. Đối với những đường lò, hầm trạm nằm ngoài khu khai thác phải lập hộ chiếu riêng.
3. Hộ chiếu do phòng kỹ thuật mỏ lập, Giám đốc điều hành mỏ hoặc người được uỷ quyền duyệt theo các quy định và định mức hiện hành.
4. Trường hợp điều kiện địa chất mỏ hay điều kiện sản xuất thay đổi, hộ chiếu phải được kịp thời điều chỉnh cho phù hợp và được duyệt như điểm 3 mục I của Phụ lục này.
5. Hộ chiếu phải được cấp và lưu giữ tại phân xưởng, công trường, bộ phận quản lý kỹ thuật, địa chất, trắc địa, an toàn của mỏ. Quản đốc phân xưởng, công trường phải phổ biến hộ chiếu cho toàn bộ người lao động ở từng vị trí làm việc; Người được hướng dẫn phải ký xác nhận vào sổ theo dõi huấn luyện của phân xưởng.
II. Nội dung Hộ chiếu
Hộ chiếu gồm 2 phần: Phần bản vẽ và Phần thuyết minh.
1. Phần bản vẽ
1.1. Dự báo điều kiện địa chất mỏ
Trên sơ đồ các đường lò phải thể hiện các cột địa tầng mô tả điều kiện địa chất mỏ, tính chất cơ - lý của đất đá, vỉa than, chiều dày, độ cứng, độ ổn định, tình trạng phá huỷ và các tính chất khác có ảnh hưởng đến sự lựa chọn các thông số kỹ thuật công nghệ; Phải ghi rõ khu vực nguy hiểm: Sự gia tăng của áp lực mỏ, độ ngậm nước, các vách và trụ “giả”, các phá huỷ địa chất …. phần này phải có xác định của bộ phận quản lý địa chất và trắc địa mỏ.
1.2 Bản vẽ đào, chống và sửa chữa các lò chuẩn bị phải thể hiện
a) Mặt cắt dọc và ngang của lò với các tỷ lệ 1:100 hoặc 1:50, trên đó phải ghi rõ:
- Kích thước, tiết diện lò, vị trí của lò so với vỉa than và tình trạng đất đá;
- Kết cấu, kích thước vì chống cố định, tạm thời và vì chống tăng cường; khoảng cách nhỏ nhất và lớn nhất từ vì chống tới gương lò; Khoảng cách giữa các vì chống; Các loại chèn lò, văng, nêm và biện pháp chèn kích sau khung chống;
- Loại và vị trí các thiết bị đào lò, vận tải, thông gió; khoảng cách giữa vì chống và các thiết bị, vị trí tập kết vật liệu;
- Vị trí, kích thước các rãnh thoát nước và lối đi lại.
b) Tiết diện lò trước và sau khi chống. Chi tiết của vì chống với tỷ lệ 1:10 (cột, xà, gông, giằng ...). Khi lò được chống bằng vì bê tông hoặc bê tông cốt thép phải thể hiện rõ kích thước, kết cấu của cốp pha và thời gian tháo rỡ cốp pha; Bảng chi phí vật liệu cho vì chống;
c) Hộ chiếu khoan nổ mìn (nếu có) phải thể hiện rõ các thông số nổ mìn (kích thước, góc nghiêng, đường kính lỗ khoan, thứ tự nổ, loại và số lượng thuốc, phụ kiện nổ, chiều dài bua) và các chỉ tiêu kinh tế kỹ thuật khác;
d) Biểu đồ tổ chức công việc, bố trí nhân lực thể hiện các công việc không được làm đồng thời và bảng chỉ tiêu kinh tế kỹ thuật của gương lò.
1.3 Khấu than, chống giữ và điều khiển đá vách trong lò chợ, trên bản vẽ phải thể hiện:
a) Sơ đồ đường lò khai thác và các khu vực xung quanh, các tiết diện, trụ bảo vệ, khoảng cách đến các vỉa đã khai thác gần nhất và các khu vực nguy hiểm theo tỷ lệ 1:100; 1:50;
b) Loại phương tiện khấu và vận tải than, phương pháp điều khiển đá vách, bảo vệ và chống giữ các lò chuẩn bị trong vùng ảnh hưởng của khai thác;
c) Kết cấu và kích thước vì chống, khoảng cách giữa các thành phần của vì chống theo chiều dài và chiều rộng của lò chợ, khoảng cách từ gương lò chợ tới hàng cột chống đầu tiên và tới hàng cột chống cuối cùng, chiều dài công son của xà, thứ tự dịch chuyển các thành phần của vì chống (xà, cột, khung…) khoảng cách phần lưu không cho phép, chiều cao khấu trực tiếp, chiều cao tối đa khi thu hồi than nóc và kết cấu của các loại lưới.
1.4 Biện pháp phá hoả ban đầu phải thể hiện các nội dung sau:
a) Kích thước cũi lợn, kết cấu các cụm vì chống, kết cấu vì chống đặc biệt, bước phá hoả, phương pháp và trình tự điều khiển đá vách, biện pháp củng cố lò chợ trước khi phá hoả;
b) Biện pháp thu hồi than nóc (nếu có) phải thể hiện các nội dung sau:
- Chiều cao được phép thu hồi, vị trí, trình tự, phương pháp thu hồi và mối liên quan đến điều khiển đá vách;
- Biểu đồ tổ chức các công việc chủ yếu, thể hiện các loại công việc không được làm đồng thời và biểu đồ bố trí nhân lực.
Ghi chú:
- Khi đào, chống các lò chuẩn bị và khai thác theo sơ đồ công nghệ đã được phê duyệt cho phép sử dụng bản copy nhưng phải ghi rõ các kích thước và thông số cơ bản phù hợp với điều kiện địa chất mỏ của các lò đó và phải được duyệt như điểm 3 của Phụ lục này.
- Việc lắp đặt, tháo dỡ các tổ hợp cơ giới hóa, giá thuỷ lực di động và các loại dàn chống khác phải lập hộ chiếu riêng biệt.
1.5 Các biện pháp đảm bảo an toàn lao động
Trên bản vẽ công tác mỏ phải thể hiện:
a) Sơ đồ thông gió cho khu khai thác và riêng biệt cho các lò chuẩn bị; Hầm trạm phải chỉ rõ hướng gió và tính toán lưu lượng gió; Vị trí đặt các công trình thông gió, các thiết bị tháo khí, các quạt gió cục bộ làm việc và dự phòng kèm theo bảng chỉ dẫn các thông số của các thiết bị thông gió phù hợp theo chiều dài của lò;
b) Vị trí và thời gian đo độ tích tụ khí, các thông số của không khí, loại dụng cụ đo;
c) Sơ đồ bố trí và các thông số của các lỗ khoan tháo khí từ vỉa và từ khối đất đá bao quanh vỉa, các sơ đồ của hệ thống ống dẫn tháo khí;
d) Sơ đồ và các thông số của các biện pháp xử lý sự cố phụt than, đất đá và khí bất ngờ, các hiện tượng nguy hiểm về khí khác và các loại thiết bị để thực hiện các công việc đó;
e) Sơ đồ, vị trí các khối than, các khoảng không gian đã khai thác và các vùng phá huỷ địa chất ở các vỉa than dốc, tự cháy; sơ đồ lắp đặt các dụng cụ kiểm tra nhiệt độ và thành phần không khí mỏ; các biện pháp phòng ngừa các sự cố cháy nội sinh;
g) Mạng nước dập cháy ghi rõ: đường kính ống dẫn, vị trí đặt các van, các họng nước di động, thiết bị dập cháy tự động, các cửa chống cháy và sơ đồ đấu nối vào đường ống cấp nước dập cháy;
h) Sơ đồ, các thông số và vị trí đặt trang thiết bị chống bụi;
i) Bản kê thông số các biện pháp đặc biệt chống phụt khí, bục nước, bục sét và cát chảy; các biện pháp nhằm đưa người ra vị trí an toàn khi có sự cố xảy ra theo kế hoạch ƯCSC - TKCN.
1.6 Cung cấp năng lượng
Bản vẽ cung cấp năng lượng phải thể hiện:
a) Sơ đồ cung cấp điện và bố trí thiết bị phân phối, thiết bị bảo vệ, các loại cáp điện được sử dụng, phương tiện liên lạc, tín hiệu, điều khiển và cảnh báo khí…;
b) Sơ đồ cung cấp khí nén, đường ống cao áp, trong đó chỉ rõ vị trí lắp đặt và dụng cụ kiểm tra;
Những sơ đồ này phải được Phó Giám đốc cơ điện mỏ ký duyệt.
1.7 Vận tải than, đất đá, các loại vật liệu, các loại thiết bị và vận chuyển người.
Bản vẽ vận tải phải thể hiện:
a) Sơ đồ vận tải than, đất đá, các loại vật liệu, thiết bị cũng như vận chuyển người;
b) Dạng vận tải, các loại thiết bị, các điểm dỡ tải, dung lượng đoàn tàu, các loại thiết bị để dồn dịch và chất dỡ tải, vị trí lắp đặt động cơ, trang thiết bị tự động hoá và tín hiệu, chiều dài đường vận tải, vị trí các ga và dung lượng của ga, các ghi đường sắt, cửa chắn, bunke, các ký hiệu cấm và các chỉ dẫn.
2. Phần thuyết minh
Thuyết minh của hộ chiếu được mô tả theo từng phần kèm theo các bản vẽ, sơ đồ. Nội dung của thuyết minh của hộ chiếu phải thể hiện rõ những điểm cần lưu ý khi triển khai các công việc, đặc biệt là các yêu cầu về an toàn lao động bắt buộc phải thực hiện.
HƯỚNG DẪN THỰC HIỆN CÔNG TÁC THÔNG GIÓ MỎ
2. Sơ đồ thông gió phải được lập chung cho cả mỏ; Sơ đồ thông gió khu vực được tách ra từ sơ đồ thông gió chung.
3. Trên sơ đồ thông gió phải thể hiện bằng các ký hiệu được quy định trong Bảng PII.B1.
Bảng PII.B1 Các ký hiệu thông gió mỏ
|
Ký hiệu quy ước |
Tên ký hiệu |
|
|
Luồng gió sạch: Mũi tên nét liền mầu đỏ
Luồng gió thải: Mũi tên nét đứt mầu xanh |
|
Tên thiết bị
|
Trạm quạt gió chính |
|
Tên thiết bị
|
Trạm quạt gió phụ |
|
|
Quạt gió cục bộ |
|
|
Trạm hút bụi |
|
|
Quạt hút khí |
|
|
Trạm hoà gió |
|
|
Trạm thu gió |
|
|
Giếng mỏ, phỗng gió tiết diện tròn |
|
|
Giếng mỏ, phỗng gió tiết diện hình chữ nhật |
|
|
Cổ giếng nghiêng, cửa tunen |
|
|
Trạm đo lưu lượng gió |
|
|
Điện thoại |
|
|
Cửa gió bằng gỗ |
|
|
Cửa gió bằng sắt |
|
|
Cửa gió thường đóng |
|
|
Cửa gió thường mở, chỉ đóng khi sự cố |
|
|
Cửa gió tự động |
|
|
Cửa gió có cửa sổ điều chỉnh |
|
|
Tường chắn kín |
|
|
Vách ngăn gió dọc lò |
|
|
Cầu gió |
|
|
Vòi phun |
|
|
Ống gió để thông gió bằng hạ áp chung của mỏ |
|
|
Ống thông gió đẩy (mũi tên mầu đỏ) |
|
|
Ống thông gió hút (mũi tên mầu xanh) |
|
|
Ống dẫn khí, đường kính tính bằng mm (mũi tên mầu xanh) |
|
|
Ống tháo khí (mầu vàng) |
|
|
Trạm bơm chân không trong hầm lò |
|
|
Cảm biến kiểm tra không khí mỏ M: Mêtan CO2: Cácbôníc O2: Ôxy V: Tốc độ gió |
|
|
Dàn bụi trơ |
|
|
Dàn nước |
|
|
Dàn nước đặt phân tán |
|
|
Màn nước |
|
|
Màn sương mù |
|
|
Vách ngăn hút bụi |
|
|
Nơi để thiết bị phòng chống cháy |
|
|
Trạm cấp cứu mỏ dưới hầm lò |
|
|
Nơi trú ẩn khi nổ mìn hoặc khi có sự cố |
|
|
Lò chợ hoặc gương khấu than |
|
|
Cổng gió |
4. Trên sơ đồ thông gió phải ghi rõ:
a) Lưu lượng gió thực tế vào mỏ, các mức, khu vực khai thác và các gương khấu, gương lò cụt, buồng hầm cũng như các vị trí đặt quạt cục bộ; tốc độ gió thực tế trong các gương khấu và lò cụt;
b) Lưu lượng gió thực tế thải ra từ mỏ, các mức, khu vực khai thác và các gương khấu;
c) Lưu lượng gió thực tế ở đầu và cuối của các lò dọc vỉa và lò ngầm để xác định rò gió;
d) Lưu lượng gió theo tính toán cho các gương khấu và gương lò cụt, khu vực khai thác, các buồng hầm, vị trí đặt quạt cục bộ. Lưu lượng gió theo tính toán được ghi bằng màu đỏ còn lưu lượng gió thực tế đo đạc được ghi bằng màu đen.
5. Trên sơ đồ thông gió phải thể hiện:
a) Mỏ được xếp loại theo khí Mêtan;
b) Nguy hiểm về bụi nổ;
c) Độ thoát khí tương đối trong quá trình khai thác, m3/T. ngày-đêm;
d) Độ chứa khí tự nhiên của vỉa than m3/T. khối cháy;
e) Lưu lượng gió chung đi vào mỏ theo tính toán và đo đạc thực tế, m3/phút;
g) Rò gió: Ngoài lò tính bằng % so với công suất của quạt và trong lò tính bằng % so với lưu lượng gió đưa vào mỏ.
6. Phần thuyết minh kế hoạch thông gió phải thể hiện:
a) Liệt kê các vỉa than có tính tự cháy, bụi nổ; nguy hiểm về “cú đấm mỏ”, xì khí, phụt than, đất đá và khí bất ngờ;
b) Phương pháp và sơ đồ thông gió mỏ;
c) Các loại quạt làm việc và dự phòng, lưu lượng và hạ áp thực tế, lưu lượng gió tối đa cấp cho mạng thông gió, tốc độ vòng quay của cánh quạt, góc lắp cánh (đối với quạt hướng trục), tình trạng kỹ thuật và khả năng đảo chiều của quạt gió;
d) Các thiết bị tháo khí hiện có, kiểu bơm chân không, số lượng và lưu lương bơm, lượng khí Mêtan được hút ra;
e) Số lượng các gương khấu được thông gió nối tiếp (chỉ cần tính toán thông gió cho lò chợ thứ hai);
g) Số lần tích tụ khí trong năm ở các gương khấu và các đường lò cụt, phân tích nguyên nhân tích tụ khí và hiệu quả của các biện pháp làm giảm khí;
h) Bảng kê các máy đo hiện có và yêu cầu khi sử dụng.
7. Hàng năm, khi lập kế hoạch thông gió mỏ phải phân bổ theo từng quý, phù hợp với kế hoạch phát triển của mỏ.
Việc tính toán lưu lượng gió tiêu thụ phải được thực hiện ít nhất một lần trong năm, vào thời điểm đầu năm; Phải được điều chỉnh khi điều kiện địa chất và kỹ thuật mỏ thay đổi.
Khi lập kế hoạch 5 năm khai thác mỏ, kế hoạch thông gió mỏ phải được tính toán vào thời kỳ thông gió khó khăn nhất.
Trường hợp đặc biệt, kế hoạch thông gió phải ưu tiên các vấn đề sau:
a) Phân chia luồng gió sạch chính thành các luồng gió song song để thông gió riêng cho các gương khấu và gương lò cụt;
b) Rút ngắn khoảng cách các đường lò thông gió bằng cách đào các giếng, các lỗ khoan thông gió hoặc sử dụng sơ đồ thông gió sườn…;
c) Làm giảm sự rò gió;
d) Làm giảm sức cản khí động học của các đường lò;
e) Thay thế quạt gió công suất nhỏ bằng quạt có công suất lớn;
g) Sử dụng sơ đồ thông gió hiệu quả cho các khu vực khai thác.
1. Tất cả các mỏ, ít nhất mỗi năm hai lần (vào mùa Hè và mùa Đông) hoặc khi thay đổi sơ đồ thông gió chung, khu vực, mức khai thác hoặc khi thay đổi quạt gió phải cho luồng gió đảo chiều đi qua tất cả các đường lò theo sơ đồ quy định trong kế hoạch ƯCSC - TKCN. Khi tiến hành đảo chiều gió, phải kiểm tra hiệu chỉnh các bộ phận làm kín khít, các cơ cấu đóng cắt và các cơ cấu đảo chiều gió.
2. Thời gian và chế độ kiểm tra hàm lượng khí Mêtan khi đảo chiều gió:
a) Thời gian tiến hành đảo chiều gió phải bằng thời gian cần thiết để mọi người ở đường lò xa nhất đi đến được đường lò gió sạch hoặc ra mặt đất.
b) Phải tính toán khoảng thời gian cần thiết để hàm lượng khí Mêtan trong luồng gió đảo chiều ở khu vực có đám cháy giả định giảm đến 2% và khoảng thời gian này phải được tính toán khi lập kế hoạch ƯCSC - TKCN để mọi người từ vùng nguy hiểm ra tới mặt đất.
c) Việc kiểm tra hàm lượng khí Mêtan khi đảo chiều gió phải được thực hiện ở tất cả các đường lò đã được quy định trong kế hoạch ƯCSC - TKCN. Một lần sau 10 phút (tính từ thời điểm bắt đầu đảo chiều gió), phải đo hàm lượng khí Mêtan và lưu lượng gió ở tất cả các đường lò kể trên tính từ thời điểm luồng gió quay ngược trở lại đến khi hàm lượng khí Mêtan đạt 2%. Khi hàm lượng khí Mêtan đạt 1,7% trở lên phải tiến hành kiểm tra thành phần không khí mỏ đồng thời với việc đo khí Mêtan theo quy định.
3. Khi đảo chiều gió, phải quan sát tình trạng của động cơ điện quạt gió đề phòng động cơ bị quá tải .
Trong thời gian đảo chiều gió, phải dừng việc cấp điện vào hầm lò, nhà trên mặt bằng mỏ (trừ thiết bị trục tải, thiết bị quạt thông gió chính, thiết bị bơm nước) và cấm mọi hoạt động có ngọn lửa trần trên mặt bằng mỏ nơi bị ảnh hưởng của luồng gió thải.
4. Số lượng và vị trí làm việc trong hầm lò của những người thực hiện công tác đảo chiều gió phải do Giám đốc điều hành mỏ quy định phù hợp với kế hoạch đảo chiều gió.
5. Giám đốc điều hành mỏ kiểm tra và chỉ đạo trực tiếp Phó Giám đốc cơ điện mỏ, Quản đốc phân xưởng thông gió thực hiện việc đảo chiều gió có sự tham gia của cán bộ thuộc đơn vị CH - CN chuyên trách. Kết quả đảo chiều gió phải lập thành biên bản theo mẫu P.II của Phụ lục này.
6. Việc đo lưu lượng gió và hàm lượng khí Mêtan cũng như kiểm tra thành phần không khí mỏ do cán bộ của đơn vị CH - CN chuyên trách phối hợp với cán bộ của Phân xưởng thông gió thực hiện.
7. Khi khôi phục lại chiều gió bình thường, sau mỗi lần đảo chiều gió ít nhất là 30 phút, nhân viên kỹ thuật của Phân xưởng thông gió phải kiểm tra xác định hàm lượng khí Mêtan và thành phần không khí mỏ trong giới hạn cho phép ở tất cả các đường lò mới được phép đóng điện vào mỏ và tiến hành làm việc. Các trạm biến áp di động, trạm phân phối cấp điện cho các quạt cục bộ làm việc và tiến hành làm giảm tích tụ khí trong các lò cụt thực hiện theo “Quy định làm giảm sự tích tụ khí trong các lò; điều tra, thống kê và ngăn ngừa tích tụ khí”.
8. Kết quả kiểm tra đảo chiều gió phải được lập thành biên bản (có kèm theo sơ đồ) gửi Giám đốc điều hành mỏ và Giám đốc đơn vị CH - CN chuyên trách lưu trong thời hạn ít nhất một năm.
9. Việc kiểm tra hiệu chỉnh các bộ phận làm kín khít, các cơ cấu đóng ngắt và các cơ cấu đảo chiều gió của quạt chính và dự phòng chỉ được tiến hành khi quạt không làm việc.
10. Phó Giám đốc cơ điện mỏ chịu trách nhiệm về tình trạng của các bộ phận làm kín khít các cửa, các cơ cấu đóng ngắt và các cơ cấu đảo chiều gió.
Kiểm tra đảo chiều gió, hoạt động
của bộ phận làm kín khít,
cơ cấu đảo chiều, đóng cắt của các trạm quạt gió
Ngày tháng năm…..
Đơn vị (Công ty, mỏ):………………………………………………….
Thành phần hội đồng kiểm tra
Giám đốc điều hành mỏ:……………………………………………….
Phó giám đốc cơ điện mỏ:………………………………………
Quản đốc Phân xưởng thông gió:………………………………………
Giám đốc đơn vị CH - CN chuyên trách:………………
Cán bộ chỉ huy việc thực hiện đảo chiều:……………………………
Biên bản kiểm tra các bộ phận làm kín khít, các cơ cấu đóng cắt và các cơ cấu đảo chiều gió cũng như đưa các luồng gió đảo chiều qua tất cả các đường lò phải thể hiện các kết quả sau:
1. Đặc tính công tác của các quạt gió ở chế độ hoạt động bình thường và chế độ đảo chiều gió (Bảng P.II.B2)
Bảng P.II.B2 Đặc tính công tác của các quạt gió ở chế độ hoạt động bình thường và chế độ đảo chiều gió
|
Danh mục |
Quạt gió số |
Quạt gió số |
|
Vị trí đặt quạt (giếng, lò bằng ...): |
|
|
|
Kiểu quạt: Lưu lượng gió: - Trước khi đảo chiều, m3/s. - Sau khi đảo chiều, m3/s. |
|
|
|
Hạ áp của quạt: - Trước khi đảo chiều, daPa (mm cột H2O). - Sau khi đảo chiều, daPa (mm cột H2O). |
|
|
|
Hạ áp của mỏ: - Trước khi đảo chiều, daPa (mm cột H2O). - Sau khi đảo chiều, daPa (mm cột H2O). |
|
|
|
Phương pháp điều khiển các bộ phận đảo chiều |
|
|
2. Sự phân phối gió trong mỏ và hàm lượng khí Mêtan trong các lò đối với mỏ nguy hiểm về khí, bụi nổ theo chế độ đảo chiều (Bảng P.II.B3).
Bảng P.II.B3 Sự phân phối gió trong mỏ và hàm lượng khí Mêtan trong các lò đối với mỏ nguy hiểm về khí, bụi nổ theo chế độ đảo chiều
|
Tên lò, vị trí đo và số kí hiệu trạm đo |
Quạt gió làm việc ở chế độ bình thường |
Quạt gió làm việc ở chế độ đảo chiều |
|||||||
|
Lưu lượng gió, m3/s. |
Hàm lượng %. |
Lưu lượng gió, m3/s. |
Chiều luồng gió * |
Hàm lượng %. |
|||||
|
CO2 |
CH4 |
O2 |
CO2 |
CH4 |
O2 |
||||
|
1 |
2 |
3 |
4 |
5 |
6 |
7 |
8 |
9 |
10 |
|
1. Rãnh gió (Chung cho các khu vực). |
|
|
|
|
|
|
|
|
|
|
2. Trước quạt gió. |
|
|
|
|
|
|
|
|
|
|
3. Rãnh thoát nước. |
|
|
|
|
|
|
|
|
|
|
4. Rãnh quạt dự phòng. |
|
|
|
|
|
|
|
|
|
|
5. Dưới nhà mỏ. |
|
|
|
|
|
|
|
|
|
|
6.Sân ga (Luồng gió vào) |
|
|
|
|
|
|
|
|
|
|
7…. |
|
|
|
|
|
|
|
|
|
* Cột 7 ghi một trong các ký hiệu:
Kí hiệu “ĐC” biểu thị sự thay đổi chiều luồng gió trong các đường lò so với chế độ thông gió bình thường và “BT“ khi không có sự thay đổi chiều luồng gió.
3. Chế độ thông gió đảo chiều khi có sự cố (Bảng P.II.B4).
Bảng P.II.B4 Chế độ thông gió đảo chiều khi có sự cố
|
Vị trí đo, tên đường lò |
Lưu lượng gió, m3/s |
Chiều luồng gió. |
Hàm lượng, %. |
||
|
CO2 |
CH4 |
O2 |
|||
|
1 |
2 |
3 |
4 |
5 |
6 |
|
|
|
|
|
|
|
Vị trí đặt quạt thông gió chính phải có bảng chỉ dẫn chế độ làm việc và thời gian thực hiện chế độ thông gió đảo chiều.
a) Rãnh gió.
b) Giếng mỏ.
c) Các đường lò trong chế độ thông gió đảo chiều.
4. Rò gió.
4.1. Rò gió từ bên ngoài (Tên lò, vị trí đo)......m3/s......% so với công suất Q quạt:
a) ……………………………………………………………………….
b) ……………………………………………………………………….
4.2. Rò gió qua sân ga giếng .................................... m3/s.
a)…………………………………………………………………
b)…………………………………………………………………
5. Thời gian cần thiết để chuyển chế độ thông gió bình thường sang chế độ thông gió đảo chiều.......phút và từ chế độ thông gió đảo chiều sang chế độ thông gió bình thường......phút.
Số người thực hiện công tác đảo chiều gió.
5.1 Trong mỏ:…………………..
5.2 Ngoài mặt bằng:………………………………
6. Thời gian thông gió đảo chiều …..h ….phút
6.1 Thời gian ở chế độ thông gió đảo chiều để làm giảm hàm lượng khí Mêtan xuống đến 2% trong luồng gió thải của các lò.
a) Toàn mỏ........................h.........................phút.
b) Mức...............................h.........................phút.
c) Khu vực.........................h.........................phút.
6.2 Thời gian cần thiết để đảo chiều gió đối với các khu vực xa nhất của mỏ........phút (ghi tên đường lò) và thời gian đảo ngược lại về chế độ thông gió bình thường.......phút.
6.3 Thời gian cần thiết để đưa người từ khu vực mỏ xa nhất ra mặt đất......phút.
6.4 Kết luận và kiến nghị việc thực hiện công tác đảo chiều gió.
......................................................................................................................................................................................................................................................................................................................................
Các thành viên hội đồng ký ghi họ, tên
|
Phó giám đốc cơ điện mỏ:………………… Quản đốc Phân xưởng thông gió:………… Đại diện đơn vị CH-CN chuyên trách: |
Giám đốc điều hành mỏ (Ký tên và đóng dấu) |
HƯỚNG DẪN THỰC HIỆN CÔNG TÁC KIỂM SOÁT KHÍ MỎ
1. Cách thức kiểm tra thành phần không khí mỏ trong thời gian xảy ra sự cố và khắc phục sự cố do Chỉ huy trưởng ƯCSC - TKCN và Giám đốc đơn vị CH - CN chuyên trách quy định.
2. Trình tự thực hiện công tác kiểm tra thành phần không khí mỏ được quy định như sau:
a) Hàng quý, Phụ trách thông gió mỏ lập kế hoạch kiểm tra có sự thống nhất với đơn vị CH - CN chuyên trách, trình Giám đốc điều hành mỏ phê duyệt (Mẫu sổ P.III.1). Trên cơ sở kế hoạch kiểm tra được duyệt, Giám đốc đơn vị CH - CN chuyên trách thành lập lịch kiểm tra và thông báo cho mỏ về lịch kiểm tra này;
b) Căn cứ lịch kiểm tra đã được thống nhất, Giám đốc đơn vị CH - CN cử cán bộ kỹ thuật (có trình độ trung cấp kỹ thuật mỏ trở lên và kinh nghiệm làm việc trong mỏ hầm lò ít nhất một năm) của đơn vị mình phối hợp với bộ phận thông gió mỏ tiến hành đo gió, đo khí và và lấy mẫu kiểm tra thành phần không khí mỏ (Quản đốc Phân xưởng Thông gió mỏ chịu trách nhiệm chính về số lượng và vị trí lấy mẫu);
c) Những ngày lấy mẫu theo kế hoạch, người kiểm tra phải nhận Phiếu lấy mẫu ở phòng thí nghiệm của đơn vị CH - CN chuyên trách (Mẫu sổ PIII.2). Phụ thuộc vào tình hình khai thác, Quản đốc Phân xưởng thông gió có thể thay đổi số lượng và vị trí lấy mẫu và ký xác nhận vào Phiếu lấy mẫu về những thay đổi đó.
Trường hợp kiểm tra thành phần không khí mỏ sau nổ mìn, Quản đốc Phân xưởng thông gió mỏ phải viết lệnh và quy định cụ thể thời gian tiến hành lấy mẫu.
3. Công tác đo gió, đo khí và lấy mẫu kiểm tra thành phần không khí mỏ được thực hiện như sau:
a) Đo gió, đo khí bằng các dụng cụ xách tay của đơn vị CH - CN chuyên trách; Kết quả đo phải giao trực tiếp cho Quản đốc Phân xưởng thông gió mỏ ngay sau khi ra khỏi lò;
b) Trường hợp kết quả đo hàm lượng khí Mêtan và Cácbonic cao hơn quy định cho phép 1%, phải lấy mẫu không khí mỏ để phân tích trong phòng thí nghiệm của đơn vị CH - CN chuyên trách. Trường hợp khẩn cấp, Giám đốc đơn vị CH - CN chuyên trách có quyền huy động cán bộ của mỏ lấy mẫu không khí và mang ngay tới phòng thí nghiệm. Đối với các mẫu này, nhất thiết phải lập Biên bản - Phiếu kiểm tra ghi chép hàm lượng khí tại vị trí lấy mẫu. Các mẫu này phải được phân tích ngay trong vòng 3 giờ tính từ thời điểm mẫu được đưa đến phòng thí nghiệm;
c) Trường hợp kết quả phân tích mẫu cho thấy hàm lượng khí vượt quá quy định cho phép, Giám đốc đơn vị CH - CN chuyên trách phải thông báo bằng điện thoại cho Giám đốc điều hành mỏ.
4. Kết quả phân tích thành phần không khí mỏ trong phòng thí nghiệm phải được thông báo ngay cho Giám đốc điều hành mỏ trong vòng một ngày - đêm tính từ thời điểm mẫu được gửi vào phòng thí nghiệm (Mẫu sổ P.III.3). Các mẫu hỏng phải được loại bỏ và phải thông báo cho Quản đốc Phân xưởng thông gió để tiến hành lấy lại mẫu tại các vị trí đó.
5. Khi trong lò có hàm lượng khí độc vượt quá giới hạn cho phép, người lấy mẫu khí phải sử dụng máy cứu sinh để thực hiện kiểm tra thành phần không khí.
6. Khi kiểm tra thành phần không khí mỏ theo yêu cầu tại Điều 56 của Quy chuẩn này, ngoài việc xác định hàm lượng khí Mêtan, Cácbonic, Oxy phải xác định thêm hàm lượng các khí khác tại các vị trí sau:
a) Trong hầm nạp ắc quy: Khí Hydro;
b) Trong các khu vực khai thác vỉa than có tính tự cháy và các khu vực cháy: Khí Oxít Cacbon và Hyđro;
c) Kiểm tra sau khi nổ mìn: Oxítcacbon và OxítNitơ.
Ghi chú: Việc đo hàm lượng khí Mêtan và lưu lượng hỗn hợp khí hút từ các ống và các lỗ khoan tháo khí phải tiến hành theo kế hoạch.
7. Kết quả kiểm tra thành phần không khí mỏ, đo lưu lượng gió, nhiệt độ và độ ẩm tương đối của không khí trong các lò được ghi chép vào “Sổ thông gió”; kết quả kiểm tra vùng cách ly đám cháy vào “Sổ theo dõi sau khu vực cháy và kiểm tra tình trạng các tường chắn cách ly”; Kết quả đo trong đường ống và lỗ khoan tháo khí vào “Sổ thống kê công tác khoan tháo khí”.
8. Khi kiểm tra thành phần không khí mỏ để xác định độ thoát khí, nhất thiết phải đo nồng độ khí trung bình trong luồng gió.
Kiểm tra thành phần không khí phải
được tiến hành vào các ca khi gương khấu hoạt động bình thường, nhưng không
được sớm hơn 1 ngày - đêm nếu như trước đó gương khấu không làm việc.
Việc kiểm tra thành phần không khí mỏ được tiến hành đồng thời với việc đo lưu lượng gió, nhiệt độ và độ ẩm.
9. Ít nhất 1 lần trong tháng, phải tiến hành kiểm tra thành phần không khí mỏ sau nổ mìn ở các lò cụt có chiều dài từ 300m trở lên hoặc khi thay đổi hộ chiếu nổ mìn. Vị trí đo hoặc lấy mẫu cách điểm bắt đầu lò cụt (theo hướng gió vào) từ 20m đến 30m. Các mẫu đầu tiên được lấy trong khoảng thời gian T sau khi nổ mìn nhưng không trước 15 phút đối với việc nổ bình thường và 30 phút đối với việc nổ mìn om. Các mẫu tiếp theo được lấy cách nhau 5 phút trong thời gian từ 10 đến 15 phút.
Giá trị thời gian T được xác định theo công thức:
(1)
Trong đó:
Qtt - Lưu lượng gió thực tế ở gương lò cụt, m3/phút;
Vg - Thể tích khí độc sinh ra sau khi nổ mìn, lít;
S - Diện tích tiết diện sử dụng
trung bình lò cụt, m2;
Ln - Chiều dài lò cụt, m;
Knn - Hệ số tính đến sự ngậm nước của lò;
Ky - Hệ số tổn thất gió theo đường ống gió.
Đối với các lò có chiều dài lớn hơn
chiều dài tới hạn, thì chiều dài Ln được thay thế bằng chiều dài tới
hạn tương ứng với hệ số Ky. Kiểm tra thành phần không khí trong các
lò này được tiến hành ở vị trí cách gương bằng chiều dài tới hạn.
Đối với các lò bằng và nghiêng, chiều dài tới hạn lấy bằng 500m.
10. Việc phân bố vị trí kiểm tra trong khu vực khai thác được quy định theo các sơ đồ thông gió (từ hình PIII.H1 đến PIII.H8).

2, 3 - điểm đo; 1, 4 - trạm đo
Hình PIII.H4 Sơ đồ bố trí điểm đo trong hệ thống khai thác cột dài theo phương với sơ đồ thông gió nghịch
Các vị trí kiểm tra được bố trí cách nhau từ 15 đến 20m kể từ điểm bắt đầu luồng gió vào khu khai thác, gương khấu hoặc luồng gió thải ra khỏi khu khai thác, lò chợ, lò cụt cũng như cách vị trí nhập vào và tách ra cửa các luồng gió.
11. Khi đào giếng, mẫu khí được lấy ở vị trí cách miệng giếng 20m và trực tiếp ở gương giếng.
12. Lấy mẫu không khí ở các hầm nạp ắc quy ở luồng gió thải được tiến hành ở phía trên của tiết diện hầm trạm.
13. Khi lấy mẫu khí để xác định hàm luợng Mêtan, Cacbonic, Oxy, Oxít Cacbon, Hydro nhất thiết phải sử dụng các dụng cụ đảm bảo không thấm, lọt khí. Thời gian bảo quản các mẫu này tính từ thời điểm lấy không được lâu hơn 12 giờ. Nếu được chỉ huy lực lượng CH - CN chuyên trách chấp nhận, cho phép lấy mẫu bằng phương pháp “ướt” (bóng cao su được kiểm tra độ kín bằng cách cho vào nước).
Nếu lấy mẫu bằng bóng cao su, để làm sạch bột tan trong bóng cao su trước khi sử dụng, phải bơm đầy không khí sạch vào bóng cao su lấy mẫu từ 2 đến 3 lần, sau đó tháo sạch. Sau khi hoàn thành thao tác trên, tiến hành lấy mẫu khí bằng cách dùng bơm tay, bơm không khí mỏ vào bóng cao su và nút kín lại.


14. Lấy mẫu vào các chuột khí bằng cách dùng bơm tay, bơm vào đó không khí mỏ cho đầy bình với số lần bơm ít nhất 10 lần.
15. Việc kiểm tra nồng độ các chất khí độc như: (OxítNitơ, Sulfua Hydro khí Sulfurơ...) được tiến hành bằng các ống nghiệm chỉ thị màu. Trong trường hợp cần thiết, cho phép lấy mẫu bằng phương pháp hấp thụ hoá học.
16. Người lấy mẫu phải đứng đối
mặt với luồng gió, tay cầm dụng cụ lấy mẫu đưa ra xa và dịch chuyển theo đường
zích zắc từ nền đến nóc theo mặt phẳng tiết diện ngang lò. Số lần bơm khoảng 40
lần sao cho số lần về phía trên và phía dưới bằng nhau. Lượng không khí mẫu
phải có thể tích từ 0,5 lít đến 0,7 lít.
17. Khi lấy mẫu trong các hầm trạm nạp ắc quy, dụng cụ lấy mẫu được dịch chuyển theo đường zích zắc trên mặt phẳng ngang cách nền hầm trạm từ 1,5m đến 2m.
18. Lấy mẫu từ tường chắn, ở lỗ khoan, phía trong tường chắn cách ly hoặc ở những nơi khó khăn nguy hiểm được tiến hành từ xa bằng dụng cụ chuyên dùng.
Trước khi lấy mẫu, thể tích không khí được hút qua ống dẫn chuyên dùng phải đảm bảo không nhỏ hơn 2 lần thể tích của ống. Trước khi lấy mẫu phải đo nhiệt độ và áp suất. Nếu như áp suất phía trong tường chắn nhỏ hơn phía ngoài, thì công việc lấy mẫu phải dừng và sau đó phải ghi vào Phiếu lấy mẫu.
19. Lấy mẫu từ các đường ống tháo khí và từ các lỗ khoan cũng như đo lưu lượng khí hút ra được tiến hành theo phương pháp đã được thoả thuận với Đơn vị CH - CN chuyên trách.
20. Đo tốc độ gió ở các đoạn lò thẳng không có chướng ngại vật được tiến hành ở vị trí cách điểm luồng gió phân nhánh và rẽ đột ngột không nhỏ hơn 15m.
Khi đo gió, dịch chuyển đồng hồ đo theo đường chỉ dẫn (Hình PIII.H10). Người đo gió có thể đứng ở các vị trí:
a) Đứng trong tiết diện vị trí cần
đo tốc độ gió, được gọi là phương pháp đo “Trong tiết diện”;
b) Đứng xa tiết diện và với tay đến tiết diện cần đo, được gọi là phương pháp đo “trước mặt”;
c) Đứng xa tiết diện cần đo từ 1,5m đến 2m (đo tốc độ gió bằng đồng hồ đo gió gắn trên cần đo), được gọi là phương pháp đo cần dài.
Phương pháp đo “Trước mặt” có thể được thực hiện khi chiều cao tiết diện sử dụng của lò nhỏ hơn 2m. Để thu được kết quả tốc độ trung bình chính xác, cần tra trên đồ thị, nhân với hệ số điều chỉnh K:
K = 1,14 đối với phương pháp đo “trước mặt”;
K = (S - 0,4) / S đối với phương pháp đo “ trong tiết diện”.
Trong đó, S là diện tích tiết diện
sử dụng của lò, m2.
Đo tốc độ gió bằng phương pháp đo cần dài, thì kết quả đo không có hệ số điều chỉnh K. Để đo gió trong các lò có hình thù tiết diện phức tạp, phải phân chia tiết diện đó ra các dạng hình cơ bản. Thời gian tiến hành mỗi lần đo không ít hơn 100s. Tại mỗi vị trí đo, phải tiến hành đo tốc độ gió 3 lần bằng máy đo gió. Để xác định tốc độ gió ở khu vực gần gương lò cụt khi đào lò bằng phương pháp gương hẹp, sử dụng thông gió đẩy, bằng cách đo tốc độ luồng gió thải tại vị trí cách miệng ống gió từ 8m đến 10m; Kết quả đo nhân lên 3 lần.
21. Xác định nhiệt độ và độ ẩm tương đối của không khí bằng
máy hút ẩm. Khi đo nhiệt độ và độ ẩm tương đối của không khí, máy đo được đặt ở
vị trí trên tiết diện ngang của lò, cụ thể như sau:
a) Trong giếng: Vị trí đo cách một
đoạn bằng
kể từ thành giếng, ít nhất ở hai điểm
cách nhau bằng
theo chu vi của giếng;
Ở đây: R - Bán kính giếng.
b) Trong các lò bằng và lò nghiêng: Vị trí đo cách thành lò một đoạn bằng 0,3 lần chiều rộng lò, cách nền lò bằng 0,4 chiều cao lò;
c) Trong lò nhập các luồng gió với nhau: Tại 3 điểm với khoảng cách đều nhau, cách hông lò bằng 0,25 lần chiều rộng lò và cách nền lò bằng 0,4 lần chiều cao lò;
d) Trong không gian gần gương lò cụt: Tại vị trí cách 5m, cách miệng ống gió về phía cửa lò, tại 3 điểm cách đều nhau kể từ hông lò, bằng 0,25 chiều rộng lò và cách nền lò bằng 0,4 chiều cao lò.
Giá trị nhiệt độ không khí bằng giá trị trung bình của tất cả các điểm đo.
1. Việc xác định độ thoát khí tương đối và xếp loại mỏ theo khí Mêtan được thực hiện trên cơ sở kết quả xác định thành phần không khí mỏ và lưu lượng gió theo quy định Điều 59 của Quy chuẩn này và kết quả xác định hàm lượng khí Mêtan và lưu lượng gió của các trạm đo tự động cố định đặt ở các luồng gió thải của các khu vực khai thác theo quy định.
Ghi chú: Độ thoát khí mỏ được hiểu là độ thoát khí Mêtan (CH4) và khí Cácbonic (CO2).
2. Quản đốc phân xưởng thông gió phải chịu trách nhiệm về hệ thống số liệu và xử lý kết quả đo.
Tài liệu thống kê và xử lý kết quả đo phải được lưu giữ trong suốt thời gian tồn tại của mỏ.
3. Lưu lượng khí (CH4 và CO2) tại các điểm đo được tính theo công thức:
I = 0,01.Q.C (2)
Ở đây: Q - Lưu lượng gió tại điểm đo, m3/phút;
C - Hàm lượng khí tại điểm đo, %.
Giá trị Q và C lấy ở mẫu số 09, Phụ lục VII của Quy chuẩn này.
Khi sử dụng hệ thống kiểm tra khí tự động, lưu lượng khí CH4 trung bình trong luồng gió thải của khu vực khai thác đi qua điểm đó 1 tháng được tính theo công thức:

Ở đây:
QK - Lưu lượng gió thải của khu vực khai thác, m3/phút;
nt - Số lần đo lưu lượng gió trong tháng;
Ctdj - Hàm lượng khí Mêtan trong luồng gió thải của khu vực khai thác theo kết quả đo của trạm tự động, %;
CPi - Hàm lượng khí Mêtan trong luồng gió thải của khu vực khai thác theo kết quả phân tích trong phòng thí nghiệm, %;
ntd - Số lần xác định hàm lượng khí theo kết quả đo của trạm tự động;
nP - Số lần phân tích trong phòng thí nghiệm;
3 - Hệ số tính đến độ chính xác của kết quả phân tích trong phòng thí nghiệm so với kết quả đo của trạm tự động.
Các hệ số trên đây xác định khi thực hiện “công tác thông gió”, tại Phụ lục II của Quy chuẩn này.
Trong công thức (3) hàm lượng khí Mêtan Ctdj và lưu lượng gió QK lấy từ sổ kiểm tra của trạm đo khí tự động. Các trị số này được lấy một lần trong ngày, ngày hôm sau lấy muộn hơn ngày hôm trước 2 giờ. Thí dụ ngày thứ nhất vào lúc 0 giờ. Ngày thứ hai vào lúc 2 giờ, ngày thứ ba vào lúc 4 giờ...
4. Lưu lượng khí trung bình qua các điểm đo trong thời gian 1 năm (tháng) được tính theo công thức:
![]()
Ở đây:
åI - Tổng lưu lượng khí của tất cả các lần đo tại vị trí kiểm tra trong năm (tháng), m3/phút;
n - Số lần đo xác định I trong năm (tháng).
5. Lưu lượng khí Mêtan mỗi lần đo theo ống dẫn tháo khí được xác định theo công thức:
ITP = åICK (5)
Ở đây:
åICK - Tổng lưu lượng Mêtan được hút ra từ các lỗ khoan, m3/phút.
6. Lưu lượng Mêtan trung bình qua đường ống tháo khí trong năm được xác định theo công thức:
![]()
Ở đây: åITP - Tổng lưu lượng khí Mêtan đi qua ống thoát khí các lần đo riêng trong một năm, m3/phút;
nTP - Số lần đo lưu lượng khí Mêtan theo ống thoát khí trong năm.
7. Lưu lượng khí trung bình thoát ra theo mỗi đường lò hoặc một phần khu vực khai thác nằm giữa các điểm đo:
a) Khi không có sự tách và nhập các luồng gió giữa hai điểm đo.
![]()
Ở đây:
- Lưu lượng khí trung bình thoát ra từ mỗi đường lò nằm
giữa các điểm đo, m3/phút;
,
- Lưu lượng khí trung bình đi qua các điểm đo đầu và cuối lò
(hoặc một phần của lò) theo hướng đi của luồng gió, m3/phút.
Các đại lượng này được tính theo công thức (4);
b) Khi có sự tách và nhập các luồng gió giữa các điểm đo.
IB = IC - IĐ - åIn + åIt (8)
Ở đây: åIn ; åIt - Tổng lưu lượng khí trong các luồng gió được nhập hoặc tách ra khỏi lò nằm giữa các điểm đo đầu và cuối, m3/phút.
1. Sự cân bằng khí mỏ hình thành do các thành phần và lưu lượng khí vận động trong khu vực khai thác được xác định như sau:
a) Khí trong khu vực khai thác thoát vào các lò dọc vỉa vận chuyển và các lò cụt khác từ điểm đầu đến gương khấu;
b) Khí thoát vào phần cụt của lò dọc vỉa vận chuyển;
c) Khí thoát ra từ lò chợ (gương khấu) vào các lò dọc vỉa thông gió và thoát ra từ khoảng không do khai thác vào lò dọc vỉa thông gió.
2. Sự cân bằng các thành phần khí mỏ của vỉa than tương ứng với lưu lượng khí được xác định như sau:
a) Khí theo luồng gió sạch đi vào khu khai thác và vào các lò được thông gió cục bộ;
b) Khí thoát ra từ các khoảng không do khai thác vào các lò trong khu vực khai thác.
III.1 Xác định cân bằng khí khu vực khai thác
Hướng dẫn này đưa ra thí dụ cụ thể để xác định cân bằng các thành phần khí mỏ của khu khai thác theo hệ thống khấu đuổi với sơ đồ thông gió nghịch (Hình PIII.H10)
1. Lưu lượng khí trung bình của luồng gió sạch đi vào khu khai thác, IV = I1, được xác định theo công thức (4);
2. Lưu lượng khí trung bình thoát ra lò vận tải từ điểm bắt đầu đến lò chợ.
![]()
Ở đây: I1; I2 - Lưu lượng khí trung bình đi qua lò vận tải ở các điểm 1 và 2, m3/phút.
Khi xác định lưu lượng khí thoát ra các lò thông gió và vận tải, nếu thấy sự chênh lệch hàm lượng khí Mêtan trong luồng gió trước và sau khi “xì” khí thì phải trừ đi lưu lượng khí đã xì ra;
3. Lưu lượng khí trung bình thoát ra phần lò cụt từ lò vận tải.
![]()
Ở đây: C2 và C3 là nồng độ khí tương ứng được đo ở các điểm
4. Lưu lượng khí trung bình thoát ra trên toàn bộ lò vận tải
![]()
5. Lưu lượng khí trung bình thoát ra khoảng không khai thác lò chợ.
![]()
Ở đây: I4 Là lưu lượng khí trung bình đi qua lò thông gió gần lò chợ tại điểm 4, m3/phút;
6. Lưu lượng Mêtan trung bình Itkv rút ra từ thiết bị tháo khí của vỉa được xác định theo công thức (6)
7. Lưu lượng khí trung bình thoát ra lò thông gió.
![]()
Ở đây: I5 - Lưu lượng khí trung bình đi qua điểm 5, m3/phút;
8. Lưu lượng khí trung bình, thoát ra đường lò trong khu vực khai thác.
![]()
9. Độ thoát khí tuyệt đối trung bình của khu khai thác.
![]()
Ở đây: 0,835 - Hệ số tính đến sự tăng lượng khí Mêtan từ các mỏ lân cận do việc tháo khí.
- Lưu lượng khí Mêtan được hút ra bằng các
thiết bị tháo khí của các vỉa lân cận, khoảng không đã khai thác và các vỉa
đang khai thác, m3/phút được tính theo công thức (6).
III.2 Xác định cân bằng khí ở một vỉa của mỏ
1. Lưu lượng khí trung bình của luồng gió sạch đi vào khu khai thác trong phạm vi của vỉa.
![]()
2. Lưu lượng khí trung bình thoát ra từ các khu vực khai thác.
![]()
3. Độ thoát khí tuyệt đối trung bình của các khu khai thác.
![]()
4. Lưu lượng khí trung bình đi vào các lò cụt được thông gió cục bộ.
![]()
5. Lưu lượng khí thoát ra từ các lò cụt được thông gió cục bộ.
![]()
6. Lưu lượng khí trung bình thoát ra luồng gió thải từ các khoảng không đã khai thác của các khu vực trong phạm vi cánh mỏ.
![]()
Trong phạm vi của vỉa
![]()
7. Lưu lượng khí trung bình thoát ra các đường lò của vỉa.
![]()
8. Độ thoát khí tuyệt đối trung bình của các đường lò của vỉa.
![]()
9. Lưu lượng khí trung bình, thoát ra của toàn mỏ.
![]()
10. Độ thoát khí tuyệt đối trung bình của mỏ.
![]()
1. Hàng năm, mỏ hầm lò được xếp loại theo khí Mêtan trên cơ sở xác định độ thoát khí Mêtan tương đối trong quá trình khai thác.
Khi hai hay nhiều mỏ được nối với nhau bằng một hệ thống thông gió chung, các mỏ đó được xếp chung một loại theo khí Mêtan..
2. Loại mỏ theo khí Mêtan trong thời kỳ bắt đầu xây dựng lấy theo thiết kế đã được duyệt. Trong quá trình xây dựng, hàng năm các mỏ này phải thực hiện việc đo, kiểm tra thành phần khí mỏ và trình Bộ Công Thương xếp loại mỏ theo khí Mêtan như các mỏ đang sản xuất khác.
3. Độ thoát khí Mêtan, Cacbonic tương đối của các mỏ đang hoạt động được xác định hàng tháng trong năm theo kết quả xử lý số liệu đo đạc hàng tháng theo quy định tại Điều 56 của Quy chuẩn này.
Độ thoát khí tương đối của mỏ, mức, vỉa, cánh mỏ, khu khai thác được xác định theo công thức:
(27)
Ở đây:
ni - Số tháng làm việc trong năm của đối tượng cần phân loại.
Ii - Lưu lượng khí của đối tượng (khu khai thác, cánh mỏ, vỉa, toàn mỏ) trong tháng thứ i, m3/phút.
Đại lượng Ii xác định theo các công thức (15), (24), (26);
Ni- Số ngày khai thác than thực tế trong tháng.
Ai - Sản lượng than của các đối tượng theo mỗi tháng trong năm, T.
Kf - Hệ số tính đến độ tro của than khai thác ảnh hưởng đến độ thoát khí tương đối, được xác định theo công thức (28), các đối tượng khác lấy bằng 1.
Kf = AKkt /AKn (28)
Ở đây:
AKkt - Độ tro trung bình thực tế của than khai thác, %;
AKn - Độ tro trung bình của vỉa, %.
Các tính toán xác định độ thoát khí thực tế và xếp loại mỏ theo khí Mêtan được lưu giữ ở bộ phận thông gió mỏ trong toàn bộ thời gian hoạt động của mỏ.
4. Xếp loại mỏ đang hoạt động theo khí Mêtan được căn cứ vào độ thoát khí tương đối lớn nhất của khu vực khai thác.
5. Đối với mỏ đang hoạt động hoặc xây dựng, nếu xuất hiện xì khí Mêtan, phải được xếp loại theo khí Mêtan.
Khi xếp mỏ vào loại siêu hạng do nguyên nhân xì khí Mêtan, sự xì khí đó được xem như sự thoát khí từ các khe nứt lỗ khoan, hoặc từ khe nứt của đất đá với lưu lượng 1m3/phút hoặc lớn hơn trong đoạn lò không dài hơn 20m. Hiện tượng xì khí Mêtan khi đào các lò xuyên vỉa và các lò khác gần tới hoặc đào qua vỉa than không được tính để chuyển loại mỏ.
Trong phạm vi khai trường phải phân biệt các vỉa nguy hiểm hoặc không nguy hiểm về khí Mêtan.
Nguy hiểm về xì khí Mêtan ở các vỉa khi đang đào lò tương ứng với xì khí do nguồn gốc khai thác (sự thoát khí Mêtan từ các vỉa lân cận hoặc gần đến vỉa theo khe nứt do kết quả dịch chuyển của đất đá khi đào lò tạo ra).
Khi xuất hiện xì khí ở những nơi phá huỷ địa chất, các vỉa trong phạm vi ruộng mỏ được coi là nguy hiểm về xì khí.
6. Ngoài các tính toán nêu ở trên, hồ sơ tài liệu để xem xét phân loại mỏ theo khi Mêtan, mỏ phải trình các số liệu sau đây:
a) Loại mỏ theo khí Mêtan, độ thoát khí Mêtan (CH4) và Cacbonic (CO2) tương đối của năm trước;
b) Mức độ nguy hiểm do bụi than;
c) Kết quả theo dõi trong năm trước về các trường hợp xì khí ra các đường lò và kết quả đo đạc lưu lượng khí xì ra;
d) Kết quả theo dõi trong năm trước về sự phụt than, đất đá và khí bất ngờ ra các đường lò.
B. Hướng dẫn xác định độ chứa khí Mêtan tự nhiên của vỉa than
I. Công tác khảo sát, lấy mẫu than, mẫu khí
1. Phải khảo sát, lấy mẫu than, mẫu khí để xác định độ chứa khí Mêtan tự nhiên trong các vỉa than làm cơ sở xem xét xếp loại mỏ theo khí Mêtan.
2. Đối với gương các đường lò mở vỉa, chuẩn bị đào trong than, lò xuyên vỉa hoặc giếng gặp vỉa than và các gương khấu than của vỉa hiện đang khai thác hoặc đã tiếp cận phải lấy mẫu than, mẫu khí để xác định độ chứa khí Mêtan tự nhiên của vỉa than.
3. Đối với gương các lò xuyên vỉa, giếng nghiêng, lò cắt vỉa than phải tiến hành lấy mẫu than và mẫu khí ngay khi gặp vỉa than.
4. Đối với gương các lò chuẩn bị đào trong than và gương khấu than phải được lấy mẫu than, mẫu khí theo tiến độ đào lò, khai thác. Các đợt lấy mẫu được tiến hành sau mỗi lần tiến gương từ 30m ¸ 40m.
5. Khoan lấy mẫu phải sử dụng bộ choòng khoan chuyên dùng, có khả năng nối dài đến 4,5m; Sau khi nối dài phải đảm bảo choòng khoan thẳng, không bị lắc khi khoan.
6. Mẫu than lấy từ lỗ khoan phải được đưa vào bình đựng mẫu chuyên dùng, đảm bảo độ kín khít và bảo quản được mẫu theo quy định. Bên trong các bình lấy mẫu có chứa các viên bi bằng thép để nghiền nhỏ than trước khi đưa vào máy tách, hút khí.
7. Khi tiến hành lấy mẫu khí từ lỗ khoan hoặc lấy trong bầu không khí mỏ, phải sử dụng dụng cụ và túi lấy mẫu chuyên dùng có tính chống thẩm thấu khí. Ống lấy mẫu trong lỗ khoan phải có đường kính trong nhỏ hơn 10mm để đảm bảo mẫu được lấy chính xác.
8. Các mẫu than và mẫu khí lấy được phải bảo quản tốt và được phân tích trong vòng 03 ngày tính từ thời điểm lấy mẫu.
9. Các mẫu than và khí phải được gửi kèm với biên bản lấy mẫu (bản sao giấy đề nghị phân tích mẫu than xác định độ chứa khí, giấy đề nghị phân tích khí, bản đồ vỉa và sơ đồ xác định điểm lấy mẫu.
II. Quy trình lấy mẫu than và mẫu khí
1. Quy định chung
a) Việc lấy mẫu sẽ được tiến hành tại tất cả các vỉa than hiện đang khai thác hoặc tiếp cận;
b) Việc lựa chọn khu vực lấy mẫu được ưu tiên về thời gian và số lượng mẫu cho các khu vực có độ chứa khí cao theo các tài liệu đã có. Các khu vực khác cũng phải được xem xét lấy số lượng mẫu nhất định, đảm bảo xác định được mức độ nguy hiểm về khí Mêtan;
c) Các mẫu được lấy tại các gương lò đang hoạt động, trong vòng 24 giờ sau khi nổ mìn;
d) Các mẫu than được lấy tại các gương đường lò dọc vỉa hoặc lò chợ trong quá trình tiến gương.
2. Lựa chọn khu vực lấy mẫu
Trước khi lựa chọn khu vực lấy mẫu, phải xem xét các tài liệu cơ sở sau:
a) Tài liệu địa chất hiện có về độ chứa khí đã được xác định ở từng khu vực trong tài liệu thăm dò địa chất;
b) Số liệu về hàm lượng khí Mêtan trong luồng gió thải của mỏ;
c) Số liệu về độ chứa khí Mêtan trong quá trình khai thác (nếu có);
d) Phương pháp khai thác (khấu giật, khấu đuổi, chia lớp ...).
Khu vực lấy mẫu có độ chứa khí cao theo các tài liệu đã có được ưu tiên về thời gian và tăng số lượng mẫu. Đối với các khu vực khác, mẫu được lấy với số lượng đảm bảo đủ để xác định được mức độ nguy hiểm về khí Mêtan.
3. Lựa chọn vị trí lấy mẫu
a) Lấy mẫu tại các gương lò đang hoạt động trong vòng 24 giờ sau khi nổ mìn trong quá trình tiến gương; Việc lấy mẫu được tiến hành ít nhất sau mỗi lần tiến gương từ 30m đến 40m;
b) Đối với khu vực khai thác khấu đuổi, chủ yếu mẫu được lấy tại các gương lò dọc vỉa vận tải;
c) Đối với khu vực khai thác khấu giật, mẫu được lấy tại các gương lò chợ hoặc các gương lò song song.
4.Công tác khoan lấy mẫu than, mẫu khí
4.1 Công tác chuẩn bị
a) Xác định vị trí lấy mẫu trên bản đồ đường lò và bản đồ vỉa;
b) Chuẩn bị bộ choòng khoan nối dài, khoan tới độ sâu từ 3m đến 4,5 m;
c) Chuẩn bị máy đo nhanh khí Mêtan, bộ dụng cụ và túi lấy mẫu;
d) Chuẩn bị đủ số lượng bình bình chứa mẫu cần thiết, kiểm tra ống dẫn, vòng đệm đảm bảo kín, đủ bi thép (3 viên). .;
e) Chuẩn bị các dụng cụ tháo lắp choòng khoan;
g) Chuẩn bị đồng hồ bấm giây;
h) Chuẩn bị các biên bản lấy mẫu;
i) Chuẩn bị đất sét ướt để bịt lỗ khoan khi lấy mẫu than.
4.2 Công tác khoan
a) Trước khi khoan, phải kiểm tra tình trạng của thiết bị khoan (choòng khoan, múp nối choòng, mũi khoan) để bảo đảm an toàn mới đưa thiết bị khoan vào hoạt động và chuẩn bị vật liệu nút lỗ khoan để lấu mẫu khí. Chỉ khi kiểm tra xong mới tiến hành khoan lấy mẫu;
b) Công tác khoan lấy mẫu than
- Trong các đường lò mở vỉa chuẩn bị đào trong than, để lấy mẫu phải khoan các lỗ khoan ở các góc gương lò, khoảng cách giữa hai lỗ khoan liền kề tối thiểu là 1m. Các lỗ khoan phải cắt các phân lớp than của vỉa với số lượng nhiều nhất, do đó phải khoan nghiêng so với phân lớp của vỉa. Tại mỗi gương lò dọc vỉa phải khoan ít nhất 02 lỗ (Hình PIII.H11).
- Đối với các đường lò xuyên vỉa và các giếng nghiêng khi gặp vỉa than, phải khoan ít nhất hai lỗ khoan vuông góc với mặt phẳng của gương lò theo phương của vỉa, chiều sâu lỗ khoan như Hình 1. Khoảng cách giữa hai lỗ khoan liền kề tối thiểu là 1m .
- Đối với lò chợ phải khoan hai lỗ ở khoảng cách bằng 1/3 chiều dài lò chợ về phía chân và đầu lò chợ (Hình PIII.H12). Các lỗ khoan phải cắt các lớp than của vỉa với số lượng nhiều nhất. Khi khoan lấy mẫu trong lò chợ, phải lấy mẫu tại các khu vực gương mới lộ.
Khi khoan lấy mẫu ở các gương lò ẩm ướt, có thể khoan bên hông đường lò để lấy được mẫu than khô với điều kiện mặt lộ than không quá 24 giờ. Độ sâu lỗ khoan lấy mẫu từ 3,0m ¸ 4,5m.
4.3 Công tác lấy mẫu
a) Kiểm tra bình đựng mẫu
- Kiểm tra bình đựng mẫu than trước khi lấy mẫu: Kiểm tra kích thước và hình dáng bên ngoài, gioăng cao su, khoá bình sau khi lấy mẫu và độ kín khí ra của bình lấy mẫu, số lượng bi đưa vào bình.
Chỉ khi nào kiểm tra xong mới tiến hành lấy mẫu than. Kết quả kiểm tra được ghi vào sổ của người chỉ huy lấy mẫu.
b) Lấy mẫu than trong lỗ khoan
- Khi khoan tới độ sâu 2,5m thì dừng khoan, làm sạch lỗ khoan, đặt dụng cụ lấy mẫu ở miệng lỗ khoan và tiếp tục khoan đồng thời bấm đồng hồ đo thời gian.
- Lấy 02 mẫu từ những phoi than có được trong thời gian khoan: Mẫu thứ nhất lấy từ đoạn lỗ khoan ở độ sâu 2,5m ¸ 3,0m, mẫu thứ hai từ đoạn ở độ sâu 3,5m¸4,0 m.
- Khi đã đủ lượng mẫu (khoảng 100g) thì dừng khoan, đồng thời khẩn trương lấy phoi than thu được (lựa lấy phoi than có cỡ hạt từ 1m ¸ 2 mm). Dùng cốc đo có vạch chia đong 100 ml phoi than đổ vào bình.
- Sau khi đổ phoi than vào bình, lau sạch vòng đệm và đặt vào bình, sau đó đậy và vặn chặt nắp nén chặt vòng đệm. Sau thời gian 2 phút kể từ khi bấm đồng hồ lấy mẫu thì phải đóng kín đầu ống dẫn bằng nút.
- Trước khi khoan tiếp để lấy mẫu thứ 2 ở độ sâu 3,5m ¸ 4,0 m, lỗ khoan cần được làm sạch sau đó tiến hành lấy mẫu như khi lấy mẫu thứ nhất.
- Ngoài việc lấy mẫu than ở gương lò cần phải xác định hàm lượng khí Mêtan trong không khí mỏ bằng máy đo nhanh hoặc lấy mẫu khí để phân tích.
- Trường hợp không lấy được phoi than từ lỗ khoan do than bị ẩm ướt hoặc trong gương lò đang đào với tiến độ cao bằng máy combai, cho phép lấy mẫu than dưới dạng than cục cỡ hạt 10m ¸ 20mm, khối lượng 100g. Mẫu than cục cần lấy từ gương lò trong thời gian không quá 1 giờ kể từ khi lộ gương.
- Đánh dấu các điểm lấy mẫu trên bản đồ đường lò mỏ và xác định toạ độ các vị trí này. Ghi vào biên bản lấy mẫu: Ký hiệu mẫu, tên mỏ, ngày lấy mẫu, tên vỉa than, độ sâu đường lò, độ sâu lấy mẫu trong lỗ khoan, thời gian lấy mẫu, họ tên người lấy mẫu, số mẫu .
- Biên bản lấy mẫu than và khí được ghi theo mẫu sổ PIII.4
c) Lấy mẫu khí trong lỗ khoan
Kiểm tra túi lấy mấu khí và dụng cụ lấy mẫu khí, bao gồm:
- Tình trạng, mã hiệu, thời hạn sử dụng và thời hạn bảo quản mẫu cuả túi lấy mẫu khí.
- Khoá túi và độ kín khít của túi lấy mẫu.
- Đường kính và độ bền cơ học của ống lấy mẫu khí.
Chỉ khi nào kiểm tra xong mới tiến hành lấy mẫu khí. Kết quả kiểm tra được ghi vào sổ của người chỉ huy lấy mẫu.
Công tác lấy mẫu khí thường kết hợp với lấy mẫu than tức là sau khi lấy mẫu than trong lỗ khoan tiến hành lấy mẫu khí với các dụng cụ chính là ống lấy mẫu chuyên dùng luồn vào lỗ khoan và túi đựng mẫu khí theo sơ đồ hình 3. Trường hợp không có túi lấy mẫu chuyên dùng, có thể lấy mẫu khí bằng chai hoặc túi cao su. Trước khi lấy mẫu, phải kiểm tra ống lấy mẫu đảm bảo thông suốt, bình lấy mẫu và các van phải kín, tiếp theo phải “rửa” và ép hết khí từ trong các túi đựng mẫu.
Việc lấy mẫu khí trong lỗ khoan nhằm mục đích chính là kiểm chứng và thu thập số liệu cho công tác xác định nhanh độ chứa khí Mêtan sau này.
Mẫu khí được lấy từ các lỗ khoan trong các gương lò chuẩn bị trong than, gương lò chợ mới lộ (sau khi nổ mìn), trong các gương đường lò xuyên vỉa đào qua các vỉa than.
Sau khi khoan và làm sạch phôi tiến hành luồn ống lấy mẫu chuyên dùng vào lỗ khoan, dùng đất sét trét bịt kín miệng lỗ khoan, kẹp chặt ống cao su với thân ống thép. Sau 60 phút kể từ khi bịt kín miệng lỗ khoan, tiến hành tháo kẹp và lấy mẫu thứ nhất, mẫu thứ hai lấy sau mẫu thứ nhất 15 phút. Ghi ký hiệu vị trí lấy mẫu, số hiệu mẫu và đưa các mẫu trên về phòng thí nghiệm để phân tích.
Cùng với việc lấy mẫu khí từ lỗ khoan, để xác định độ thoát khí từ khu vực, phải lấy mẫu khí trong không gian trước gương lò, luồng gió thải của gương lò và đo lưu lượng gió thải từ gương lò theo sơ đồ Hình PIII.H14.
Hình PIII.H11. Sơ đồ vị trí lỗ khoan lấy mẫu than trong
lò chuẩn bị.

Hình PIII.H12. Sơ đồ vị trí lỗ khoan lấy mẫu than trong lò chợ.


Hình PIII.H14. Sơ đồ lấy mẫu khí trong đường lò chuẩn bị.
5. Công tác xử lý mẫu
a) Mẫu than lấy từ hiện trường về được đưa vào máy lắc rung để nghiền. Mẫu than được nghiền bởi những viên bi trong bình khi chuyển động tịnh tiến lên xuống. Thời gian nghiền tối đa là 5 giờ, tối thiểu là 2 giờ. Trong thời gian từ lúc lấy mẫu đến khi nghiền xong, nút đậy cao su được đóng kín;
b) Quá trình tách khí được thực hiện trên thiết bị tách khí MOD-1. Nguyên lý hoạt động của thiết bị này là dùng một bơm chân không dạng màng hút toàn bộ lượng khí có trong bình chứa mẫu than, kể cả lượng khí thoát ra từ mẫu than vào một bình trung gian. Thiết bị này có thể xác định được chính xác thể tích và áp suất khí có trong bình;
c) Mẫu khí sau khi được tách qua thiết bị MOD-1 được đưa vào máy sắc ký khí phân tích xác định tỷ lệ phần trăm khí mê tan có trong mẫu khí;
d) Mẫu than trong bình được đem đi cân xác định chính xác khối lượng, sau đó được đưa vào các thiết bị phân tích để xác định các thành phần độ tro, độ ẩm, chất bốc, từ đó xác định được khối lượng than nguyên chất (than sạch) của mẫu.
6. Tính toán kết quả
a) Kết quả hàm lượng khí Mêtan xác định trên máy sắc ký khí bao gồm khí thoát ra từ mẫu than và khí Mêtan có sẵn trong bầu không khí mỏ tại thời điểm và vị trí lấy mẫu. Tính toán, xác định lượng khí thoát ra từ mẫu than được thực hiện như sau:
- Hàm lượng khí Mêtan thu được trong mẫu khí từ than đưa vào phân tích xác định được hàm lượng tương đối của Mêtan là C1 (%), với thể tích của bình chứa mẫu than là V tính được thể tích Mêtan tương ứng là v1 (cm3);
- Không khí mỏ tại thời điểm và vị trí lấy mẫu đưa vào phân tích xác định được hàm lượng tương đối của Mêtan là C2 (%);
- Với thể tích của bình là V, tính thể tích v2 (cm3) của Mêtan trong không khí mỏ có sẵn trong bình là:
(cm3)
Từ đó tính được thể tích khí Mêtan v (cm3) thoát ra từ mẫu than là:
v = v1 – v2 , (cm3)
- Khối lượng mẫu than là G1 (gam), độ tro của mẫu là A(%), độ ẩm là W (%), chất bốc là V (%) như vậy khối lượng than sạch G trong mẫu là:
G = G1 – ( A . G1 + W . G1 + V.G1), g
- Độ chứa khí tự nhiên của vỉa thể hiện qua mẫu tính được là:
M1 = v/G ,(m3 / tấn than sạch).
- Độ chứa khí tự nhiên thực tế của vỉa thể hiện qua mẫu là:
M = 1,33 . M1
(1,33 - Hệ số thực nghiệm có tính đến lượng khí đã thoát ra trong quá trình đào lò, lượng khí thoát qua các khe nứt ở vách và trụ vỉa).
7. Xếp loại mỏ theo độ chứa khí Mêtan tự nhiên trong vỉa than
a) Độ chứa khí đối với từng vị trí lấy mẫu: Mỗi vị trí khoan 02 lỗ khoan, mỗi lỗ khoan lấy 02 mẫu và lựa chọn giá trị cao nhất làm giá trị độ chứa khí tại điểm lấy mẫu;
b) Độ chứa khí đối với từng khu vực vỉa: Mỗi khu vực vỉa có nhiều vị trí lấy mẫu theo thời gian, lựa chọn điểm lấy mẫu có giá trị cao nhất làm giá trị độ chứa khí của vỉa để đưa vào phân loại cho khu vực vỉa đó;
c) Độ chứa khí đối với toàn mỏ: Khi các khu vực vỉa có nối với nhau bằng một hệ thống thông gió chung thì hạng mỏ được lấy theo hạng mỏ cao nhất của các khu vực vỉa.
Toàn bộ các tài liệu tổng hợp kết quả theo dõi, tính toán xác định độ thoát khí, xì khí, phụt khí của các mỏ, các khu vực, các cánh, tầng, mức khai thác, Giám đốc điều hành mỏ phải lập hồ sơ trình cơ quan quản lý mỏ có thẩm quyền.
Trên cơ sở các báo cáo của các mỏ, cơ quan quản lý mỏ có thẩm quyền, tổng hợp và trình Bộ Công Thương trước ngày 15 tháng 01 hàng năm để xem xét, thẩm định và Quyết định xếp loại mỏ theo khí Mêtan theo quy định tại Điều 14 của Quy chuẩn này.
Mẫu số PIII.1
KẾ HOẠCH KIỂM TRA THÀNH PHẦN KHÔNG KHÍ MỎ
Cơ quan quản lý mỏ có thẩm quyền………………....................
Đơn vị (mỏ):................................ đã thoả thuận với đơn vị CH-CN chuyên trách về kế hoạch ƯCSC-TKCN vào Quý........năm 20.....
Mỏ xếp loại.............theo khí Mêtan
Các vỉa than có tính tự cháy.........................................................
|
Số TT |
Tên các lò và vị trí kiểm tra thành phần không khí mỏ |
Đội |
Phân đội |
Số lượng mẫu đo kiểm tra (lấy mẫu) trong tháng |
Các loại khí được xác định |
Ghi chú |
||
|
I |
II |
III |
||||||
|
1 |
2 |
3 |
4 |
5 |
6 |
7 |
8 |
9 |
|
|
|
|
|
|
|
|
|
|
|
|
|
|
|
|
|
|
|
|
|
Quản đốc Phân xưởng thông gió (Ký và ghi họ tên )
|
|
|
Giám đốc đơn vị CH-CN chuyên trách (Ký tên, đóng dấu) |
Ngày tháng năm…. Giám đốc điều hành mỏ (Ký tên, đóng dấu) |
Mẫu số PIII.2
Số:.............
Cơ quan quản lý mỏ có thẩm quyền:.......................................................
Đơn vị lấy mẫu khí (Đơn vị CH - CN chuyên trách)......................................
Họ tên, chức vụ người lấy mẫu khí:........................................................
................................................................................................................
Mẫu khí được lấy tại mỏ:........................................................................
Thời gian lấy mẫu khí:...........................................................................
Vị trí lấy mẫu khí:……………………………………………………..
|
TT |
Tên các lò và vị trí kiểm tra thành phần không khí |
Số hiệu mẫu |
Kết quả đo hàm lượng khí bằng dụng cụ đo xách tay,% |
Nhiệt độ không khí, oC |
Độ ẩm không khí, % |
Ghi chú |
||||||
|
CH4 |
CO2 |
NO |
NO2 |
CO |
|
|
||||||
|
1 |
2 |
3 |
4 |
5 |
6 |
7 |
8 |
9 |
10 |
11 |
12 |
13 |
|
|
|
|
|
|
|
|
|
|
|
|
|
|
|
|
|
|
|
|
|
|
|
|
|
|
|
|
Ghi chú: Trong thời gian sự cố, việc lấy mẫu khí do Cán bộ đơn vị CH-CN chuyên trách thực hiện.
Quản đốc Phân xưởng thông gió - đo khí (Ký, ghi họ tên)....................
Cán bộ của đơn vị CH-CN chuyên trách (Ký, ghi họ tên)...............
Số lượng mẫu gồm ...............mẫu đã được giao cho phòng thí nghiệm vào hồi.....phút.... giờ....ngày....tháng .....năm 20...
Người giao mẫu (Ký, ghi họ tên, chức vụ)............................................
Người nhận mẫu (Ký, ghi họ tên, chức vụ)............................................
Mẫu số PIII.3
KẾT QUẢ PHÂN TÍCH KHÍ
Phòng thí nghiệm phân tích khí:............................................................
Thuộc đơn vị CH-CN chuyên trách:................................................
Theo Biên bản-Phiếu lấy mẫu số:.........về kết quả xác định thành phần không khí mỏ tại: ...(Tên đơn vị nơi tiến hành lấy mẫu).....
Việc xác định thành phần không khí các mẫu lấy vào ca...ngày....tháng....năm 20.....có kết quả như sau:
|
Số TT |
Tên các lò và vị trí lấy mẫu không khí |
Hàm lượng khí,% |
Nhiệt độ không khí, oC |
Độ ẩm không khí, % |
Ghi chú |
|||||||
|
CH4 |
CO2 |
O2 |
CO |
NO |
NO2 |
H2 |
|
|||||
|
1 |
2 |
3 |
4 |
5 |
6 |
7 |
8 |
9 |
10 |
11 |
12 |
13 |
|
|
|
|
|
|
|
|
|
|
|
|
|
|
|
|
|
|
|
|
|
|
|
|
|
|
|
|
Người chịu trách nhiệm phân tích ( Ký,ghi rõ họ tên):…
Cán bộ phụ trách phòng thí nghiệm (Ký,ghi rõ họ tên):…
Ngày .....tháng ......năm 20…
Giám đốc đơn vị CH-CN chuyên trách
(Ký tên, đóng dấu)
Mẫu số PIII.4
BIÊN BẢN KHẢO SÁT VÀ GIAO NHẬN MẪU THAN
Số:..........................
Mẫu than được lấy tại (mỏ): ............................................................................................
Ca: ................ Ngày: ............./ ............/ ............
Người lấy mẫu: ..................................................................................................
|
TT |
Vị trí khảo sát |
Thời gian |
Chiều dài lỗ khoan |
Ký hiệu mẫu |
Hàm lượng khí CH4 trong lỗ khoan |
Hàm lượng khí CH4 trong không khí mỏ |
Ghi chú |
|
1 |
2 |
3 |
4 |
5 |
6 |
7 |
8 |
|
|
|
|
|
|
|
|
|
|
|
|
|
|
|
|
|
|
|
|
|
|
|
|
|
|
|
|
|
|
|
|
|
|
|
|
|
Người lấy mẫu (ký, ghi rõ họ và tên) |
Người nhận mẫu (ký, ghi rõ họ và tên) |
|
|
Giám đốc điều hành mỏ (ký tên, đóng dấu) |
1. Đo hàm lượng khí Mêtan theo Điều 56 của Quy chuẩn này được thực hiện bằng thiết bị đo tự động đặt cố định, dụng cụ xách tay tự động và dụng cụ xách tay tác động đo theo chu kỳ.
2. Theo Điều 51 của Quy chuẩn này, hàm lượng trung bình khí Mêtan cho phép trong luồng gió đi qua tiết diện sử dụng của lò, tuỳ theo công dụng của từng loại lò lần lượt là: 0,5%, 0,75% và 1%. Khi hàm lượng trung bình khí Mêtan đạt tới 2% ở bất kỳ điểm nào trong tiết diện của lò thì gọi là sự tích tụ khí Mêtan (xem Phụ lục III của Quy chuẩn này).
3. Kết quả đo khí bằng dụng cụ tự động tác động trong khoảng thời gian nhất định phải ghi vào bảng thông báo (Mẫu sổ PIII.5 của Phụ lục này) và phiếu lệnh công tác. Việc này do cán bộ của Phân xưởng thông gió thực hiện. Hàm lượng khí đo trong luồng gió thải của các lò chợ, lò chuẩn bị, khu khai thác phải có 2 giá trị: Giá trị trung bình và giá trị lớn nhất.
Bảng ghi kết quả đo hàm lượng khí Cacbonic và Mêtan phải treo ở gần gương lò cụt, tại các vị trí đo trong luồng gió thải của các lò chợ, lò chuẩn bị, khu khai thác, cánh mỏ và các luồng gió vào ra các khu vực khai thác.
4. Đo hàm lượng khí Mêtan để phát hiện sự tích tụ khí Mêtan thành lớp phải tiến hành bằng dụng cụ xách tay tự động đo theo chu kỳ.
5. Đo hàm lượng khí Mêtan trong các hầm đặt máy và thiết bị điện ở mỏ có khí cháy và bụi nổ phải sử dụng dụng cụ xách tay kiểm tra hàm lượng khí Mêtan tự động.
1. Ở các mỏ xếp loại II theo khí Mêtan, việc kiểm tra hàm lượng khí Mêtan bằng dụng cụ xách tay tự động phải tiến hành tại các điểm:
a) Ở không gian gần gương lò cụt, nơi phát hiện có khí Mêtan gần máy khấu than ở khu vực có độ thoát khí tuyệt đối 3m3 /phút trở lên;
b) Ở gần gương các lò cụt về phía trên tiết diện lò, cách gương lò từ 3m đến 5m đối diện với phía treo ống gió;
c) Tại vị trí người làm việc trong các lò có gió thải đi qua;
d) Tại lò chợ có vỉa dốc thoải và nghiêng đặt máy khoan hoặc máy combai về phía luồng gió thải;
e) Tại lò chợ vỉa dốc đứng phải đặt tại vị trí người vận hành máy của trạm điều khiển từ xa ở trước lò thông gió;
g) Tại các thiết bị khoan cách gương khoan 1m theo hướng chuyển dịch của luồng gió, về phía nóc lò.
2. Các mỏ xếp loại III, siêu hạng theo khí Mêtan, dụng cụ đo xách tay tự động phải đặt vào các vị trí sau:
a) Ở không gian gần gương của lò cụt;
b) Ở các vị trí có người làm việc trong các lò có luồng gió thải đi qua;
c) Cạnh máy khấu than nếu máy không được trang bị dụng cụ đo tự động khi độ thoát khí tuyệt đối từ 3m3/phút trở lên (đối với các vỉa có nguy hiểm về phụt khí và xì khí thì không phụ thuộc vào độ thoát khí tuyệt đối);
d) Trên các đầu tầu điện;
e) Ở các thiết bị khoan đang làm việc.
3. Dụng cụ xách tay tự động đo hàm lượng khí Mêtan phải treo hướng bề mặt máy theo chiều đối diện với chiều luồng gió thải.
1. Trong tất cả các trường hợp đo hàm lượng khí Mêtan (CH4) và Cacbonic (CO2) bằng dụng cụ xách tay tác động theo chu kỳ, ống hút khí của dụng cụ đo phải được cố định ở một điểm.
Khi đo hàm lượng khí CH4 trên nóc lò, hoặc các điểm khó đo khác, dụng cụ đo phải được trang bị các ống hút chuyên dùng.
2. Để xác định hàm lượng khí CH4 và CO2 trong luồng gió đi vào và luồng gió thải từ các lò, khu vực khai thác, cánh mỏ và toàn mỏ, người đo đứng giữa lò đối diện với luồng gió, tiến hành đo từ nóc đến trung tâm và nền lò.
Hàm lượng khí là giá trị trung bình cộng kết quả đo tại ba điểm.
3. Để đo được hàm lượng khí CH4, CO2 ở trong khoảng không gần gương lò chợ và lò chuẩn bị có giá trị lớn nhất, ống hút dụng cụ đo phải để vào các vị trí sau:
a) Trong các mỏ có khí nổ: Ở gần sát nóc lò;
b) Trong các mỏ không có khí nổ: Ở nền lò;
c) Trong các hầm trạm: Ở lưng chừng, nóc và nền hầm trạm.
4. Việc đo hàm lượng khí CH4 bằng dụng cụ xách tay tác động đo theo chu kỳ trong các luồng gió ra khỏi lò chợ phải được tiến hành ở lò thông gió cách lò chợ từ 10m đến 20m theo hướng chuyển dịch của luồng gió. Việc xác định hàm lượng khí CH4 trong luồng gió thải của khu khai thác được tiến hành ở đầu lò nơi có luồng gió thải đi qua cách các thượng đi lại, lò ngầm, lò thượng, lò xuyên vỉa trung gian và các lò khác từ 10m đến 20m. Việc đo hàm lượng khí CH4 của các luồng gió đi vào gương khấu được tiến hành ở đoạn bắt đầu của gương khấu đó.
1. Đối với mỏ xếp loại III, siêu hạng theo khí CH4 và nguy hiểm về phụt khí, việc đo hàm lượng khí CH4 bằng dụng cụ đo tự động cố định, bộ cảm biến phải đặt ở các vị trí sau:
a) Trong khoảng không sát gương lò cụt, khi chiều dài lò cụt lớn hơn 10m và trong lò dài hơn 50m có luồng gió thải khi, có thoát khí CH4 và sử dụng năng lượng điện;
b) Trên máy biến áp di động đặt trong các lò cụt và trong lò có nổ mìn;
c) Tại quạt cục bộ chạy bằng động cơ điện trong lò có gió thải từ lò chợ và lò cụt đi ra;
d) Trong lò có luồng gió thải của khu vực khai thác sử dụng năng lượng điện;
e) Trong lò có luồng gió thải của khu vực khai thác vỉa dốc nguy hiểm về phụt khí bất ngờ;
g) Trong hầm trạm đặt máy và thiết bị điện được thông gió bằng luồng gió thải;
h) Trong lò có luồng gió thải, đặt thiết bị điện và dây cáp điện thuộc phạm vi khu vực khai thác.
2. Ở các mỏ có nguy hiểm về phụt khí bất ngờ, khi khai thác các vỉa dốc có sử dụng năng lượng điện, ngoài việc thực hiện các quy định trên, phải lắp đặt bổ sung cảm biến tại các vị trí sau:
a) Trong lò có luồng gió vào khu khai thác;
b) Trong lò có luồng gió thải của một cánh và của mỏ;
c) Trước trạm điện ngầm trung tâm.
3. Khi đào hoặc đào sâu thêm giếng ở mỏ có khí nổ, phải đặt cảm biến tại các sàn thao tác và hầm trung gian có luồng gió thải.
4. Để phát hiện tích tụ khí CH4 thành lớp cũng như trong các lò cụt đã huỷ bỏ, phải đặt thiết bị đo kiểm tra hàm lượng khí CH4 tự động với các bộ cảm biến di động, thời hạn lắp đặt do cơ quan quản lý mỏ có thẩm quyền phê duyệt.
5. Các bộ cảm biến của thiết bị tự động cố định để kiểm tra hàm lượng khí CH4 phải lắp đặt tại các vị trí:
a) Trong khoảng không gần gương lò cụt: Dưới nóc lò và cách gương 3m ÷ 5m về phía đối diện với ống gió;
b) Trong luồng gió thải của lò cụt: Cách cửa lò từ 10m ÷ 20m, dưới nóc lò về phía đối diện với ống gió;
c) Tại các trạm biến áp di động cách từ 10m ÷ 15m về phía gương lò dưới nóc lò phía đối diện với ống gió;
d) Tại các vị trí đặt quạt cục bộ có động cơ điện ở khoảng cách nhỏ hơn 10m từ quạt gió về phía gương lò cụt khi khai thác các vỉa có nguy hiểm về phụt khí bất ngờ và từ 3m÷ 5m trước quạt cục bộ theo hướng luồng gió sẽ nhập vào luồng gió thải chung từ các lò cụt khác;
e) Ở vị trí nóc lò thông gió, cách đầu lò chợ tối đa là 5m về phía đối diện với luồng gió thải;
g) Trong các luồng gió thải của lò chợ, tại các vị trí dưới nóc lò cách các lò nối, thượng khai thác và lò xuyên vỉa trung gian từ 10m ÷ 20m;
h) Trong các luồng gió thải của các khu vực khai thác ở vị trí đầu lò thông gió cách lò thượng người đi lại, lò ngầm, lò thượng từ 10m ÷ 20m;
i) Để kiểm tra tích tụ khí CH4 thành lớp, các bộ cảm biến đặt ở nóc lò phía đối diện với ống gió, cách gương từ 20m ÷ 30m.
Khi kiểm tra sự tích tụ khí cục bộ tại các lò thông gió đã được huỷ bỏ, bộ cảm biến đặt ở dưới nóc lò gần vị trí đất đá sụp đổ hoặc ở gần tường chắn cách ly phần lò đã huỷ bỏ về phía đối diện với lối ra từ lò chợ;
k) Trong các luồng gió đi vào khu vực khai thác: Cách vị trí gió vào khu vực từ 10m ÷ 20m;
l) Trong lò có luồng gió thải sau khu vực khai thác: Cách vị trí giao nhau của lò này với lò thông gió khu vực từ 10m ÷ 20m và cách vị trí giao nhau của chúng với lò thông gió khu vực gần nhất tối đa là 50m tới trạm biến áp ngầm trung tâm theo chiều đi của luồng gió.
m) Trong các hầm trạm đặt máy và thiết bị điện được thông gió bằng luồng gió thải ở nóc lò lối vào hầm trạm theo hướng luồng gió đi vào.
6. Thiết bị kiểm tra hàm lượng khí CH4 tự động cố định phải phát tín hiệu ra lệnh cắt điện các thiết bị điện ở các vị trí khi hàm lượng khí CH4 ở mức:
a) 2% trong các khoảng không gần gương lò cụt;
b) 1% trong luồng gió thải của lò cụt;
c) 1,3% trong luồng gió thải của gương khấu và khu vực khai thác;
d) 0,5% trong luồng gió đi vào khu khai thác và gương khấu, cũng như trước quạt cục bộ dùng năng lượng điện.
Để ngăn ngừa tích tụ khí CH4 cho phép điều chỉnh cảm biến cắt điện quạt cục bộ khi hàm lượng khí CH4 ở mức 1% với điều kiện các trang thiết bị điện đặt trong lò cụt cũng như trong gương khấu đặt ở luồng gió vào tự động cắt điện khi hàm lượng khí CH4 vượt quá 0,5%;
e) 1% trong các lò có luồng gió thải sau khu vực khai thác, tại các điểm giao nhau với các lò thông gió khác;
g) 1% trong các lò có luồng gió thải sau khu vực khai thác, trước trạm biến áp ngầm trung tâm;
h) 1% trong các hầm, trạm đặt máy và thiết bị điện được thông gió bằng luồng gió thải, dưới 1%;
i) 2% trong trường hợp khí CH4 tích tụ thành lớp ở các lò và tích tụ cục bộ ở các lò thông gió cụt đã huỷ bỏ.
1. Khí CH4 tích tụ ở các vị trí riêng biệt trong lò với hàm lượng 2% hoặc lớn hơn được coi là tích tụ cục bộ.
2. Khí CH4 tích tụ (hàm lượng 2% hoặc lớn hơn) kéo dài trên đoạn lò dài hơn 2m được coi là tích tụ thành lớp.
Khí CH4 tích tụ với hàm lượng vượt quá giới hạn cho phép trong toàn bộ tiết diện lò được coi là tích tụ toàn phần.
Danh sách các đoạn lò nguy hiểm về tích tụ khí CH4 thành lớp do Quản đốc Phân xưởng thông gió và Trưởng phòng địa chất mỏ xác định theo Mẫu sổ PIII.2 và phải được Giám đốc điều hành mỏ phê duyệt.
Khi có sự thay đổi về địa chất, kỹ thuật của các đoạn lò dẫn đến nguy hiểm về tích tụ khí, trong vòng 1 ngày - đêm phải sửa đổi, cập nhật vào danh sách các đoạn lò nguy hiểm về tích tụ khí CH4 thành lớp
3. Việc xác định độ nguy hiểm của các lò về sự tích tụ khí CH4 cục bộ và thành lớp được thực hiện theo Bảng PIII.B1 Phụ lục này.
4. Trong các lò của mỏ nguy hiểm về khí CH4 có khả năng tích tụ cục bộ hoặc thành lớp, phải kiểm tra hàm lượng khí CH4.
5. Ít nhất 1 lần trong 1 ngày - đêm, Phân xưởng thông gió phải tiến hành kiểm tra sự tích tụ khí CH4 thành lớp.
6. Các vị trí phải đo hàm lượng khí CH4 để xác định Danh sách các đoạn lò nguy hiểm về tích tụ khí CH4 thành lớp được quy định tại Bảng PIII.B2 của Phụ lục này.
Trong mọi trường hợp, việc đo khí CH4 phải tiến hành ở vị trí cách nóc lò về phía dưới 5cm.
7. Để phát hiện tích tụ khí CH4 cục bộ, phải đo ở các vị trí sau:
a) Trong khoảng không gần gương lò: Đặt máy đo cách nóc lò về phía dưới 5cm và cách gương 20m;
b) Tại các vị trí lở cục bộ sau vì chống trên đoạn lò dài 200m kể từ điểm gặp nhau giữa lò chợ và lò chuẩn bị, các lò đào trong than đối với mỏ xếp loại III theo khí Mêtan trở lên cũng như ở các lò khu vực có nguy hiểm về tích tụ khí CH4 thành lớp hoặc toàn mỏ có nguy hiểm về khí nổ. Việc kiểm tra hàm lượng khí CH4 tại vị trí lở sau vì chống phải được Trực ca Phân xưởng thông gió thực hiện ít nhất 1 lần trong 1 ngày - đêm. Nếu các vị trí lở có chiều cao hơn 1m, cho phép đo ở khoảng cách 1m trên tấm chèn lò;
c) Trong các lò cụt đã huỷ bỏ sau gương khấu, tại phía dưới nóc lò gần nơi đất đá sập đổ hoặc gần tường chắn cách ly phần lò bị huỷ bỏ và tại lối vào lò cụt. Ngoài các vị trí trên, phải đo tại lò thông gió ở điểm cách gương lò chợ 20m và cách nóc lò 5cm theo hướng của luồng gió;
d) Tại các tường chắn cách ly các lò cũ về phía trên tường chắn và cách tường 5cm;
Việc định kỳ đo đạc khí mỏ tại các tường chắn cách ly các lò cũ do Giám đốc điều hành mỏ qui định;
e) Tại các dải đá chèn bảo vệ các lò thông gió trong khoảng không khai thác trên đoạn lò cách gương khấu từ 10m ÷ 20m, tiến hành đo khí tại các điểm cách nhau từ 10m ÷ 20m, mỗi điểm cách hông lò 5cm về phía nóc lò. Đối với vỉa dốc, đo tại nền lò trên dải đá chèn.
Tại các dải đá chèn trong các khu vực khai thác khi độ thoát khí vượt 3m3/phút và tốc độ gió trung bình dọc lò cách lò chợ 10m, nhỏ hơn 1m/giây;
g) Tại các lỗ khoan thông gió cách miệng lỗ phía dưới 5cm tính theo chiều gió và phía trên miệng lỗ khoan 5cm;
h) Tại các khu vực có độ thoát khí 3m3/phút trở lên khi khai thác các vỉa dốc thoải và dốc nghiêng, việc kiểm tra hàm lượng khí CH4 phải được Trực ca Phân xưởng thông gió thực hiện ít nhất 1 lần trong một ngày - đêm bằng máy đo xách tay tác động tức thời. Việc đo hàm lượng khí CH4 phải được tiến hành 5 phút một lần kể từ khi máy khấu than bắt đầu làm việc trong khoảng cách giữa máy và gương khấu tại vị trí cách bộ phận cắt than tới cửa sổ quan sát từ 30m ÷ 40m;
i) Tại khám phía trên lò chợ;
k) Tại lò có dải đá chèn, cách nóc lò 5cm ở gương lò;
l) Trong khoảng không gian lò chợ, tại phía dưới các lỗ trống của dải đá chèn dưới các lò thông gió cách tường đá 5cm.
8. Trong các lò đào trong than hoặc đá bằng phương pháp khoan nổ mìn, ở khoảng cách 20m kể từ gương có những điểm lở cục bộ sau vì chống không được chèn kín bằng đá hoặc các vật liệu không cháy khác, trước khi tiến hành nạp mìn phải kiểm tra hàm lượng khí CH4 ở các điểm lở cục bộ đó, với khoảng cách 5cm kể từ vị trí lở.
9. Khi đào lò trong vùng đã bị sập đổ bằng phương pháp khoan nổ mìn, trước khi nạp và nổ mìn phải kiểm tra hàm lượng khí CH4 ở các khoảng trống sau các tấm chèn của các lò cách gương trong vòng 20m. Việc đo hàm lượng khí CH4 ở các khoảng trống phía sau các tấm chèn của các vì chống phải thực hiện theo khoảng cách từ 0,5m ÷ 1m phía trên các tấm chèn và cứ từ 2m ÷ 2,5m kể từ gương khấu phải đo một lần.
Mẫu sổ PIII.5
BẢNG ĐO KHÍ MÊTAN VÀ KHÍ CACBONIC TRÊN ĐƯỜNG LÒ
Tên lò................................................................
|
Họ tên người đo |
Chức vụ |
Ca |
Ngày và thời gian đo |
CH4 % |
CO2% |
Ký tên |
|
|
|
I |
|
|
|
|
|
|
|
II |
|
|
|
|
|
|
|
III |
|
|
|
|
|
|
|
IV |
|
|
|
|
Mẫu sổ PIII.6
DANH SÁCH CÁC ĐOẠN LÒ NGUY HIỂM
VỀ TÍCH TỤ KHÍ MÊTAN THÀNH LỚP
Đơn vị quản lý cấp trên.......................................
Mỏ:.........................................................................
|
STT |
Tên lò |
Đoạn lò khí Mêtan thành lớp |
|
|
|
|
|
|
|
|
|
|
|
|
Quản đốc Phân xưởng thông gió: (ký, họ tên):…………….
Địa chất trưởng mỏ: (Ký, họ tên)……………………………………………
Giám đốc điều hành mỏ
(ký, ghi rõ họ và tên, đóng dấu)
Bảng PIII.B1
XÁC ĐỊNH ĐỘ NGUY HIỂM CÁC LÒ DO TÍCH TỤ KHÍ MÊTAN THÀNH LỚP
|
Loại lò |
Các đoạn lò |
Các điều kiện dẫn đến nguy hiểm của các đoạn lò |
|
|
|
Các mỏ xếp loại I và loại II theo khí Mêtan; các khu vực khai thác của mỏ xếp loại III, siêu hạng có độ thoát khí tuyệt đối nhỏ hơn 3m3/ph. |
Các khu vực khai thác mỏ xếp loại III với độ thoát khí tuyệt đối lớn hơn 3m3/ph. |
|
||
|
1 |
2 |
3 |
4 |
|
|
Các lò đào trong than |
Các lò cụt tính theo toàn bộ chiều dài lò |
Có phá huỷ địa chất khi tốc độ gió trung bình cách gương 10m nhỏ hơn 1m/s. |
Khi có một trong những điều kiện sau: 1.Tốc độ gió trung bình cách gương 10m nhỏ hơn 1m/s; 2. Khi trên nóc của khu vực khai thác trong khoảng cách nhỏ hơn 10m có vỉa than hoặc vỉa kẹp; 3. Có phá huỷ địa chất. |
|
|
Các lò gió thải dài 200m nối với lò chợ. |
Khi có một trong các điều kiện sau: 1. Có phá huỷ địa chất khi tốc độ gió trung bình cách gương 10m nhỏ hơn 1m/s; 2. Khi khu khai thác có độ thoát khí tuyệt đối lớn hơn 1m3/ph trở lên mà phía trong nó, trong khoảng cách nhỏ hơn 10m có các vỉa than hoặc vỉa kẹp. |
Khi có một trong những điều kiện sau: 1.Tốc độ gió trung bình cách gương 10m nhỏ hơn 1m/s; 2. Khi trên nóc của khu vực khai thác trong khoảng cách nhỏ hơn 10m có vỉa than hoặc vỉa kẹp; 3. Có phá huỷ địa chất. |
||
|
Các lò gió vào dài 200m nối với lò chợ. |
Như trên |
Khi có một trong các điều kiện sau: 1. Có phá huỷ địa chất 2. Khi trên nóc của khu vực khai thác trong khoảng cách nhỏ hơn 10m có vỉa than hoặc vỉa kẹp
|
|
|
|
Đoạn lò cụt theo toàn bộ chiều dài của các lò đã huỷ bỏ |
Tốc độ gió trung bình cách nơi sập đổ hoặc tường chắn cách li lò đã huỷ bỏ 10m, nhỏ hơn 1 m/s. |
Tốc độ gió trung bình tại nơi sập đổ hoặc tường chắn cách li lò đã huỷ bỏ nhỏ hơn 1m/s. |
||
|
Những đoạn lò dài 20m kể từ điểm xì khí theo hướng đi của luồng gió. |
Nguy hiểm |
Nguy hiểm |
||
|
Các lò đá và lò xuyên vỉa |
Các đoạn lò dài 200m nối với lò chợ. |
Nguy hiểm |
Khi có một trong các điều kiện sau: 1. Có phá huỷ địa chất; 2. Có lò cắt qua vỉa chứa khí mà tốc độ gió trung bình tại điểm giao nhau nhỏ hơn 1m/s; 3. Khi phía trên nóc lò, trong khoảng cách nhỏ hơn 10m có vỉa than hoặc vỉa kẹp. |
|
|
Các đoạn lò kể từ điểm xì khí theo hướng đi của luồng gió. |
Nguy hiểm |
Nguy hiểm |
|
|
Bảng PIII.B2
VỊ TRÍ ĐO ĐỂ XÁC ĐỊNH LÒ NGUY HIỂM VỀ SỰ TÍCH TỤ KHÍ MÊTAN THÀNH LỚP
|
Loại lò |
Các đoạn lò nguy hiểm về tích tụ khí Mêtan thành lớp. |
Vị trí kiểm tra tích khí Mêtan thành lớp trong các lò phụ thuộc vào điều kiện dẫn đến nguy hiểm. |
|
|
Tốc độ gió trung bình nhỏ hơn 1m/s; phía trên nóc lò trong khoảng cách nhỏ hơn 10m có các vỉa than hoặc vỉa kẹp . |
Có sự phá huỷ địa chất. |
||
|
Các lò đào trong than. |
Đoạn lò cụt |
Bắt đầu cách gương khấu 10m, sau đó cứ 15 đến 25m theo chiều của luồng gió trên đoạn lò dài 200m. |
Tại vị trí sập đổ trên bất cứ phần lò cụt nào với khoảng cách 20m kể từ vị trí sập đổ theo hướng đi của luồng gió. |
|
Đoạn lò gió thải từ lò chợ dài 200m (tính từ lò chợ). |
Bắt đầu cách gương khấu 10m, sau đó cứ 15 đến 25m theo chiều của luồng gió trên đoạn lò dài 200m. |
Tại vị trí sập đổ nằm trên lò dài 200m và cách 20m kể từ vị trí sập đổ theo hướng đi của luồng gió |
|
|
Đoạn lò gió vào lò chợ dài 200m (tính từ lò chợ). |
Bắt đầu cách gương khấu 10m, sau đó cứ từ 15 đến 25m theo chiều của luồng gió trên đoạn lò dài 200m. |
Tại vị trí sập đổ nằm trên lò dài 200m và cách 20m kể từ vị trí sập đổ theo hướng đi của luồng gió. |
|
|
Trên toàn bộ chiều dài đoạn lò cụt đã hủy bỏ |
Dưới nóc các lò tại vị trí sập đổ hoặc tường cách li đoạn lò đã huỷ bỏ và lối vào lò cụt cứ từ 15m đến 20m theo toàn bộ chiều dài lò. |
Tại vị trí sập đổ nằm trên lò dài 200m và cách 20m kể từ vị trí sập đổ theo hướng đi của luồng gió. |
|
|
Các lò đá và xuyên vỉa. |
Đoạn lò dài 200m (tính từ lò chợ) |
Bắt đầu cách gương lò chợ 10m, sau đó cứ 15 đến 25m theo chiều của luồng gió trên đoạn lò dài 200m. |
Tại vị trí sụp đổ nằm trên đoạn lò dài 200m và cách 20m kể từ vị trí sập đổ theo hướng đi của luồng gió. |
D. Hướng dẫn công tác điều tra, thống kê, phòng ngừa và các biện pháp giảm tích tụ khí Mêtan trong các lò (Theo 51 của Quy chuẩn này)
1. Khí CH4 vượt quá giới hạn 2% trong tiết diện sử dụng, tiết diện đào, các khoảng rỗng của lò không được lấp bằng vật liệu chèn hoặc đất đá gọi là sự tích tụ khí.
2. Khi không có số đo thực tế hàm lượng khí CH4, những trường hợp sau đây được xem như tích tụ khí CH4: Các lò cụt có thoát khí CH4 sau khi dừng thông gió sau 30 phút trở lên đối với mỏ xếp loại I và loại II; Sau 5 phút trở lên đối với mỏ xếp loại III và siêu hạng.
3. Nguyên nhân dẫn đến tích tụ khí CH4:
a) Tích tụ khí CH4 do sự cố: Do chế độ thông gió bị phá vỡ (dừng quạt gió chính, hư hỏng quạt cục bộ, ống gió đặt quá xa gương hoặc bị rách, thông gió không đảm bảo theo thiết kế, lò bị nén bẹp, than lấp tiết diện lò, hỏng phương tiện tháo khí, xì khí, phụt than và khí bất ngờ...);
b) Tích tụ khí CH4 do công nghệ: Nổ mìn tạo ra chấn động làm phụt than (đá), khí làm tăng đáng kể mức độ thoát khí CH4.
a) Tăng tốc độ gió từ hệ thống thông gió chung hoặc quạt cục bộ ở gần nguồn thoát khí;
b) Làm giảm và khuếch tán khí thoát ra trong các lò bằng cách thay đổi sơ đồ, phương pháp thông gió;
c) Tháo khí các vỉa than và đất đá vây quanh.
2. Tốc độ gió trung bình trong các lò có khả năng hình thành tích tụ khí thành lớp không được nhỏ hơn 0,5m/s. Khi đã tăng tốc độ gió mà vẫn không đảm bảo loại trừ khí CH4 tích tụ thành lớp, phải sử dụng phương pháp tăng tốc độ gió cục bộ bằng vòi phun tuần hoàn, làm tường ngăn, cược ngăn hoặc đường ống làm tăng sự khuếch tán.
3. Những thiết bị dùng để chống tích tụ khí Mêtan cục bộ và thành lớp phải được cơ quan quản lý mỏ có thẩm quyền cho phép.
4. Để ngăn ngừa sự hình thành tích tụ khí CH4 cục bộ khi đào lò bằng combai, phải sử dụng vòi phun tuần hoàn (không khí hoặc nước không khí), quạt gió có kích thước nhỏ chạy bằng khí nén được lắp đặt trên thân combai và không khí hướng tới bộ phận cắt của máy combai ở gần gương lò.
5. Để phòng ngừa sự hình thành tích tụ khí CH4 trong các gương khác gần combai phải tăng tốc độ gió nhờ hệ thống thông gió chung hoặc nhờ luồng gió làm khuếch tán cục bộ của thiết bị đặt trên máy combai đã được đề cập tại khoản 3 nêu trên.
6. Để ngăn ngừa và loại trừ tích tụ khí CH4 cục bộ ở các vị trí giao nhau giữa các lò chợ và các lò thông gió, phải sử dụng một trong các biện pháp sau đây:
a) Thay đổi sơ đồ thông gió khu vực khai thác, thí dụ: Những trụ bảo vệ thuộc sơ đồ khấu dật được giữ lại dùng cho sơ đồ thông gió thuận để đưa gió thải vào vùng đã khai thác và thông gió khu vực này bằng hạ áp chung của mỏ;
b) Tháo khí: Dẫn khí CH4 thoát ra từ khoảng không đã khai thác, từ các lò dẫn khí, từ những lò không chống giữ thoát ra ngoài;
c) Dẫn khí CH4 đã cách ly từ khoảng không gian đã khai thác thoát ra theo đường ống dẫn cứng, theo lò không chống bằng quạt gió và vòi phun nước.
7. Để ngăn ngừa cháy khí CH4 do tĩnh điện phát ra tia lửa từ đường ống dẫn gió, khí; các ống dẫn gió, khí phải được tiếp đất theo mục V, Phụ lục IV về lập, kiểm tra và đo điện trở tiếp đất trong Quy chuẩn này.
1. Mọi người làm việc trong mỏ, khi phát hiện thấy tích tụ khí CH4 hay chế độ thông gió bị vi phạm phải báo ngay cho Trưởng ca hoặc bộ phận điều hành chỉ huy sản xuất mỏ biết để đưa mọi người ra nơi có luồng gió sạch. Cắt điện các thiết bị trong lò có tích tụ khí và dừng mọi công tác mỏ.
Bộ phận điều hành chỉ huy sản xuất mỏ phải ghi vào sổ thông báo về tích tụ khí hoặc chế độ thông gió bị vi phạm và phải báo ngay cho Trưởng ca, Quản đốc Phân xưởng thông gió cũng như Giám đốc điều hành mỏ.
Tất cả các trường hợp tích tụ khí trong lò, Quản đốc Phân xưởng thông gió hoặc người được uỷ quyền trong vòng một ngày - đêm phải ghi vào "Sổ đo khí Mêtan và thống kê sự tích tụ khí”.
2. Giám đốc điều hành mỏ hoặc Bộ phận điều hành chỉ huy sản xuất mỏ phải ghi vào nhật lệnh sản xuất nhiệm vụ cho những người thực hiện việc làm giảm khí bảo đảm an toàn và điều tra nguyên nhân tích tụ khí.
3. Mọi trường hợp làm giảm tích tụ khí đều phải thực hiện theo đúng biện pháp đã đặt ra và các biện pháp bảo đảm an toàn công việc đó, cụ thể:
a) Cắt nguồn điện vào các thiết bị và cáp điện trong lò sẽ có gió thải đi qua do việc làm giảm tích tụ khí, trong các đoạn lò nối lò trên với lò gió thải và đưa người ra khỏi các lò này;
b) Đưa người ra vị trí có luồng gió sạch, đặt biển “cấm vào” những đường sẽ có luồng gió thải đi ra do việc làm giảm tích tụ khí;
c) Phải đo kiểm tra liên tục hàm lượng khí CH4 ở luồng gió thải ra từ các lò tích tụ khí bằng các dụng cụ đo tự động xách tay;
d) Trước khi bắt đầu đào lò và khấu than khu vực khai thác, Quản đốc phân xưởng khai thác phải lập và thoả thuận với Quản đốc Phân xưởng thông gió biện pháp làm giảm tích tụ khí và Giám đốc điều hành mỏ phải xem xét phê duyệt các biện pháp này;
e) Biện pháp làm giảm tích tụ khí phải được trích từ hộ chiếu khu vực khai thác, hộ chiếu đào chống lò và được điều chỉnh phù hợp với điều kiện tích tụ khí;
g) Quản đốc, Trưởng ca, người lao động ở các Phân xưởng khai thác hoặc đào lò; Quản đốc, Phó quản đốc Phân xưởng thông gió, Phó giám đốc sản xuất, Phó giám đốc kỹ thuật mỏ phải nắm vững các biện pháp làm giảm khí. Một bản tài liệu về biện pháp làm giảm khí phải lưu giữ ở Bộ phận điều hành chỉ huy sản xuất mỏ.
Trong biện pháp làm giảm tích tụ khí được duyệt nếu có sự thay đổi sơ đồ thông gió, sơ đồ cung cấp năng lượng so với thiết kế, Quản đốc Phân xưởng khai thác hoặc đào lò, Quản đốc phân xưởng thông gió trong thời hạn một ngày - đêm phải thực hiện theo đúng biện pháp đó.
4. Việc làm giảm tích tụ khí các gương khấu và các lò cụt biệt lập cũng như nằm trong các khu vực khai thác sau khi ngừng thông gió trong thời gian một ca trở lên phải được tiến hành dưới sự chỉ đạo của Quản đốc Phân xưởng thông gió với sự tham gia của Quản đốc Phân xưởng khai thác hoặc đào lò.
5. Việc làm giảm tích tụ khí các lò cụt biệt lập sau khi ngừng thông gió ít hơn một ca được phép tiến hành dưới sự chỉ đạo của Trưởng ca phân xưởng khai thác hoặc đào lò.
6. Việc làm giảm tích tụ khí của một nhóm các gương khấu, các lò cụt, các cánh mỏ cũng như loại trừ hậu quả của sự xì và phụt khí Mêtan phải được tiến hành dưới sự chỉ đạo của Giám đốc điều hành mỏ.
7. Việc làm giảm tích tụ khí các khu vực đã được cách ly và các lò cụt biệt lập phải do lực lượng Cấp cứu mỏ chuyên trách tiến hành vào ca nghỉ sản xuất theo biện pháp làm giảm tích tụ khí đã được Giám đốc điều hành mỏ phê duyệt và có sự thoả thuận của Giám đốc đơn vị CH - CN chuyên trách.

8. Phương pháp thực nghiệm hay tính toán thông gió lò chuẩn bị bằng quạt cục bộ, phải xác định được thời gian kiểm tra tích tụ khí (là thời gian dừng quạt gió cục bộ, hàm lượng khí CH4 trong gương đào tiến đến 2%).
Khi quạt cục bộ bị dừng lâu hơn thời gian kiểm tra tích tụ khí đã được xác định, cấm khởi động quạt cục bộ. Đường lò phải được làm giảm tích tụ khí phù hợp với biện pháp đặt ra.
9. Thiết bị làm giảm tích tụ khí các lò cụt phải được đặt trong lò cụt đó, tại vị trí cách điểm bắt đầu của lò cụt (theo hướng gió vào lò) từ 5 đến 10m.
Thiết bị làm giảm tích tụ khí (Hình PIII.H15) bao gồm đường dẫn (1) hình chữ nhật hoặc hình thang có van đóng mở chắc chắn làm bằng cao su xốp. Lưu lượng gió ở gương được điều chỉnh bằng van 2 nhờ dây thừng 4 điều khiển bằng tay hoặc động cơ.
10. Nếu trong lò đặt hai đường ống thông gió trở lên, thì một đường ống phải đặt thiết bị làm giảm tích tụ khí.
Các lò được làm giảm tích tụ khí theo trình tự:
Van 2 đóng toàn bộ tiết diện đường ống 1, sau đó từ từ điều khiển van 2 để đảm bảo lưu lượng gió vào gương nhằm duy trì hàm lượng khí CH4 tại cửa lò cụt được đo liên tục bằng máy đo tự động xách tay không được vượt quá 2%;
Khi kéo van 2 về vị trí tới hạn phía trên, hàm lượng khí CH4 trong luồng gió thải từ lò được làm giảm tích tụ khí không vượt quá 2%, đóng điện cho các quạt cục bộ của các đường ống còn lại hoạt động liên tục.
11. Người chỉ huy làm giảm tích tụ khí tại nơi làm việc có nhiệm vụ:
a) Thông báo cho bộ phận điều hành chỉ huy sản xuất mỏ về việc chấp hành biện pháp và bắt đầu thực hiện công việc làm giảm tích tụ khí;
b) Sử dụng máy đo khí Mêtan tự động xách tay đo kiểm tra hàm lượng khí CH4 trong các lò sau khi đã làm giảm tích tụ khí và thông báo cho bộ phận điều hành chỉ huy sản xuất mỏ về kết quả làm giảm tích tụ khí;
c) Cho phép quạt cục bộ làm việc khi hàm lượng khí CH4 đo được ở những nơi đặt quạt cục bộ đã xuống dưới mức 1%.
12. Các công việc trong lò chỉ được tiến hành trở lại sau khi đã làm giảm khí, đã thực hiện đầy đủ các biện pháp nhằm loại trừ nguyên nhân dẫn đến tích tụ khí.
13. Trong các khu vực khai thác và trong các lò cụt được trang bị thiết bị đo khí CH4 tự động cố định, khi cắt điện vào thiết bị tự động đo khí CH4, nhân viên đo khí của khu vực khai thác phải đo, kiểm tra hàm lượng khí CH4 bằng máy đo xách tay tại vị trí lắp đặt cảm biến của máy đo kiểm tra tự động và thông báo kết quả cho bộ phận điều hành chỉ huy sản xuất mỏ biết. Nếu khi đo phát hiện thấy hàm lượng CH4 vượt quá giới hạn 2% cho phép không kể thời gian xuất hiện, khu vực khai thác phải được coi như đã tích tụ khí.
14. Tất cả các trường hợp xảy ra sự cố tích tụ khí đều phải được điều tra ngay trong vòng một ngày - đêm.
Việc điều tra nguyên nhân sự cố tích tụ khí trong vòng một ca phải được thực hiện dưới sự chỉ đạo của Quản đốc phân xưởng thông gió, nếu lâu hơn một ca phải dưới sự chỉ đạo của Giám đốc điều hành mỏ.
15. Dựa vào cơ sở dữ liệu của "Sổ đo khí Mêtan và thống kê sự tích tụ khí", sáu tháng một lần Quản đốc phân xưởng thông gió phải tiến hành phân tích nguyên nhân dẫn đến tích tụ khí trong các lò.
Kết quả phân tích phải báo cáo Giám đốc điều hành mỏ và được sử dụng làm cơ sở để tìm các biện pháp ngăn ngừa tích tụ khí trong các lò.
16. Khi phân tích các trường hợp tích tụ khí phải xác định:
a) Tổng số các trường hợp tích tụ khí đã xảy ra trong kỳ của các khu vực khai thác, các lò đặt băng tải, các vị trí giao nhau giữa lò chợ và lò thông gió phân theo nguyên nhân công nghệ và sự cố;
b) Thời gian tích tụ khí trung bình theo đối tượng (khu vực khai thác, các lò cụt);
c) Số lượng các sự cố tích tụ khí theo hình thái: Cục bộ, thành lớp, toàn phần;
d) Tần suất tích tụ khí của các khu vực khai thác và các lò cụt do nguyên nhân công nghệ và sự cố được xác định bằng thương số giữa số lần xảy ra tích tụ khí và số lượng các khu vực khai thác và các lò cụt hoạt động trung bình trong năm.
Ghi chú:
1. Nếu nguyên nhân dẫn đến sự cố tích tụ khí toàn phần do dừng quạt chính và quạt cục bộ bởi mất điện hoặc lý do khác thì số lượng trường hợp xảy ra tích tụ khí được lấy bằng số lượng trường hợp xảy ra trong các lò.
2. Sự tích tụ khí của các khu vực khai thác gồm lò chợ với các lò chuẩn bị liền gương được tính là một trường hợp.
Bảng PIII.B3
BIỆN PHÁP LÀM GIẢM TÍCH TỤ KHÍ BẢO ĐẢM AN TOÀN
Cơ quan quản lý mỏ có thẩm quyền…………………………….
Đơn vị (mỏ):……………………………………………………………
Vỉa: ……………………………………………………………………
Khu vực khai thác: ……………………………………………………
Ngày … tháng … năm ……….………………………………….…….
Tên lò, phân xưởng......................................................... ......................
1. Cắt điện vào các thiết bị và cáp điện..............
( Tên các lò nằm trên luồng gió thải khi làm giảm tích tụ khí)
...............................................................................................................
2. Đưa người ra từ:
(Tên các lò nằm trên luồng gió thải khi làm giảm tích tụ khí)
3. Đưa người ra vị trí có luồng gió sạch và đặt biển “Cấm vào” các vị trí được xác định trên sơ đồ thông gió khu vực: ……………………...
4. Thực hiện làm giảm tích tụ khí:.........................................................
a) Phương pháp làm giảm tích tụ khí:………………………………….
b) Trình tự làm giảm tích tụ khí:……………………………………….
5. Tiến hành kiểm tra liên tục hàm lượng khí Mêtan ở luồng gió thải ra từ của lò làm giảm tích tụ khí bằng máy đo tự động xách tay.
(Tên, vị trí đặt các máy đo tự động xách tay và các kết quả kiểm tra)
6. Thông báo cho bộ phận điều hành chỉ huy sản xuất mỏ về kết quả làm giảm tích tụ khí khi bắt đầu và kết thúc.
Quản đốc Phân xưởng thông gió (Ký và ghi họ tên)
Quản đốc Phân xưởng khai thác (Ký và ghi họ tên)
Giám đốc điều hành mỏ
(Ký tên, đóng dấu)
CUNG CẤP ĐIỆN VÀ SỬ DỤNG THIẾT BỊ ĐIỆN
1. Hướng dẫn này áp dụng để thiết kế cung cấp điện và sử dụng thiết bị điện khi khai thác các vỉa dốc đứng ở mỏ than hầm lò có nguy cơ phụt than, đất đá và khí bất ngờ.
2. Thiết kế cung cấp điện cho khu khai thác, lò chuẩn bị ở vỉa nêu ở khoản 1 phải được Giám đốc điều hành mỏ phê duyệt.
3. Bố trí các thiết bị cung cấp điện cho mỏ hầm lò phải tuân theo quy định của sơ đồ cung cấp điện mỏ hầm lò.
4. Phó Quản đốc cơ điện hoặc người được uỷ quyền khu vực vỉa dốc đứng có nguy cơ phụt than, đất đá và khí bất ngờ phải là người có kiến thức chuyên môn về cơ điện mỏ và có thời gian làm việc ít nhất là 1 năm ở mỏ hầm lò có khí Mêtan (CH4) .
Cho phép sử dụng thiết bị điện có cấu tạo ExdI không có hệ thống tự động cắt nhanh trong các trường hợp sau:
1. Trong các lò có luồng gió sạch đi qua những vỉa dốc đứng có nguy hiểm về phụt than, đất đá và khí bất ngờ khai thác không có trụ bảo vệ, các lò đồng thời có luồng gió thải đi ra từ các vỉa dốc có nguy hiểm hoặc không có nguy hiểm phụt than, đất đá và khí bất ngờ. Trong các trường hợp này thiết điện và cáp điện phải đặt cách ít nhất 150m kể từ gương lò chuẩn bị và ít nhất 50m kể từ gương lò khai thác có nguy hiểm về phụt than, đất đá và khí bất ngờ, khi khai thác không có trụ bảo vệ.
Nếu thiết bị điện, cáp điện đặt trong các cúp hoặc nếu có các cơ cấu bảo vệ thiết bị và cáp điện tránh sự va đập cơ học do phụt than, đất đá và khí bất ngờ, nếu lò chuyển hướng một góc 450 thì khoảng cách từ gương lò cụt tới thiết bị điện có thể giảm tới 50m.
2. Ở các lò đi trong đất đá, lò khai thác và lò chuẩn bị ở các vỉa không nguy hiểm về phụt than, đất đá và khí bất ngờ và trong các mỏ hầm lò có nguy hiểm về phụt than, đất đá và khí bất ngờ.
3. Trong các gương lò chuẩn bị của lò bằng và lò nghiêng để mở các vỉa dốc đứng không có trụ bảo vệ, nguy hiểm về phụt than, đất đá và khí bất ngờ phải cắt điện trong quy trình đào lò trước và sau khi gặp vỉa một đoạn có chiều dài không nhỏ hơn 4 mét. Các lò này phải chống bằng vì chống cố định.
Để tránh chấn động do nổ mìn, các thiết bị điện, cáp điện phải đặt ở vị trí có khoảng cách ghi trong khoản 1 mục B trên đây. Thời điểm có chấn động do nổ mìn tới các lò có khí Mêtan, cần phải cắt điện đối với các lò đó. Chỉ đóng điện cho các lò đó sau khi đã kiểm tra hàm lượng khí Mêtan ở dưới mức quy định của Quy phạm này.
4. Khi đào hoặc đào sâu thêm các giếng đứng ở khoảng cách trước khi gặp vỉa 4m và sau vỉa 4m và trong thời gian đào trong vỉa (vỉa có nguy hiểm về phụt than, đất đá và khí bất ngờ), thì thiết bị điện, cáp điện phải đặt trên sàn để ở khu vực vì chống cố định có khoảng cách tối thiểu 12m kể từ gương giếng đang hoạt động. Trong thời gian nổ mìn phải cắt điện.
5. Trong các lò chợ của các vỉa có nguy cơ phụt than, đất đá và khí bất ngờ, tiến hành khai thác triệt để không có trụ bảo vệ bằng các dải rộng theo độ dốc, sử dụng giàn chống liên hợp hoặc các phương tiện tương tự khác.
1. Cung cấp điện cho các trạm điện phân phối di động, đặt ngầm trong các lò có luồng không khí thải phải được thực hiện riêng biệt từ các lưới điện trên mặt bằng mỏ có bảo vệ dòng điện rò ở lưới điện áp 6kV.
2. Cắt điện trạm ngầm 6kV khu vực và trạm điện ngầm di động phải được thực hiện bằng các khí cụ có các bộ bảo vệ cắt ngắn mạch tức thời.
3. Lò chợ khấu vét theo phương không được sử dụng cáp có phích cắm cũng như nối cáp bằng những múp nối không chuyên dùng cho mỏ hầm lò.
4. Khi di chuyển cáp điện trong lò chợ khấu vét theo phương khi các máy khai thác làm việc, phải thực hiện bằng thiết bị quấn cáp tự động hoặc thiết bị khác để đảm bảo cáp liên tục được quấn khi máy chuyển động.
5. Trong sơ đồ cung cấp điện phải trang bị thiết bị cắt điện từ xa đối với trạm phân phối di động.
6. Trong sơ đồ cung cấp điện cho máy khai thác ở lò chợ và máy liên hợp đào lò ở lò chuẩn bị phải có nút cắt từ xa đặt ngay trên bảng điều khiển máy. Khi có sự cố người điều khiển máy sẽ sử dụng nút cắt này cắt điện các trạm điện 0,4 kV (0,69 kV) cung cấp điện cho máy.
7. Trên các máy đào lò liên hợp và máy tải đất đá phải có nguồn cung cấp điện an toàn tia lửa cho các đèn pha chiếu sáng. Trong trường hợp không có nguồn điện theo quy định này thì Tổng Giám đốc Tổng công ty, Giám đốc Công ty quy định thời hạn phải trang bị nguồn điện theo quy định .
1. Thiết bị điện của dàn chống tự hành phải có cấu tạo ExdI theo thiết kế phải được kiểm định theo quy định và cơ quan lý mỏ có thẩm quyền phê duyệt.
Nếu dàn chống tự hành có bộ truyền động điện, thì bộ truyền động này phải đặt cách phỗng rót than ít nhất 10m trong luồng không khí sạch đi từ dưới lên trên. Phần không gian còn lại dưới vì chống và các lò thông gió khu vực phải sử dụng thiết bị điện có cấu tạo ExdsI hoặc ExdI có hệ thống tự động cắt nhanh.
Cho phép sử dụng dàn chống có hai bộ truyền động điện, cáp điện đặt theo chiều dài của dàn chống. Các thiết bị điện của dàn chống này và các thiết bị điện khác phải có cấu tạo ExdI khi có lò thông gió đầu từ lúc bắt đầu đến khi kết thúc lò chợ, có biện pháp loại trừ phụt than, đất đá và khí bất ngờ suốt chiều dài lò chợ.
Cấm đặt cáp điện, thiết bị điện có cấu tạo ExdI mà không có hệ thống tự động cắt nhanh ở lò vận chuyển dọc vỉa kể từ phía phễu tháo than về phía lò cụt.
2. Các bộ cảm biến kiểm tra khí Mêtan phải được đặt cạnh các thiết bị điện dàn chống với khoảng cách tối thiểu là 30cm kể từ xà đỡ trên của vì chống và được chỉnh định để cắt điện khi hàm lượng khí Mêtan vượt quá 1%. Tín hiệu đo lường từ xa của các bộ cảm biến này phải được truyền về bộ phận điều hành và chỉ huy sản xuất mỏ.
3. Cáp điện cấp điện cho bộ dàn chống phải được treo cao phù hợp với chiều cao lên xuống của vì chống. Đoạn cáp dự phòng cấp điện cho vì chống không được dài hơn 10m.
Cáp điện trong lò chợ, đặc biệt là ở những vị trí đấu vào thiết bị điện phải được bảo vệ tránh các hư hỏng do sự va đập cơ khí của máy.
4. Mọi người làm việc trong lò chợ có sử dụng bộ dàn chống phải mang đèn ắc quy cá nhân và máy đo hàm lượng khí Mêtan.
Theo Điều 94 Quy chuẩn này
1. Chỉ đưa thiết bị điện mới lắp đặt vào vận hành để thông gió các đường lò cụt khi đã được Hội đồng nghiệm thu do Giám đốc điều hành mỏ làm Chủ tịch.
2. Vị trí lắp đặt và đấu nối thiết bị điện trong lò cụt được tiến hành theo các sơ đồ mẫu (Hình PIV.H1; PIV.H2; PIV.H3). Sơ đồ lắp đặt các thiết bị điện của quạt cục bộ dự phòng trong đường lò cụt tiến hành theo sơ đồ mẫu (Hình PIV.H4).
Lắp đặt các thiết bị điện cho quạt cục bộ làm việc và dự phòng phải từ hai trạm biến áp riêng biệt. Lưới điện của quạt gió dự phòng cần phải tách riêng với các thiết bị điện khác nhờ khoá liên động.
3. Cho phép đặt trạm điện di động phòng nổ trong các lò được thông gió bằng quạt cục bộ với điều kiện sử dụng thiết bị tự động kiểm tra khí và kiểm tra lưu lượng của quạt gió. Thiết bị bảo vệ và kiểm tra này phải tự động tác động lên máy cắt của trạm điện đặt ở lò có luồng gió sạch. Mạng điện có điện áp lớn hơn 1140V, cung cấp từ trạm điện ngầm di động phải đặt rơle chống rò điện.
4. Cụm thiết bị đấu vào mạng điện trước lò cụt phải đặt trong lò có luồng gió sạch, cách luồng gió thải có chứa khí cháy nổ ít nhất là 10m và phải phù hợp với những quy định về an toàn thông gió lò cụt. Cho phép đặt cụm thiết bị (trừ máy cắt điện cao thế) trong lò có luồng gió thải nhưng phải phù hợp với quy định tại khoản 8 Điều 44 Quy chuẩn này. Trong trường hợp này, bộ cảm biến kiểm tra hàm lượng khí Mêtan đặt ở cạnh quạt gió cục bộ phải phát tín hiệu khi hàm lượng khí Mêtan tới 0,5% và cắt điện cụm quạt cục bộ khi hàm lượng khí Mêtan tới 1%. Trong lò cụt trạm phân phối phải đặt cách xa gương lò tối thiểu là 20m.
5. Để đảm bảo an toàn, các thiết bị điện (khởi động từ, Automat, máy cắt cao thế, cụm công tắc trong tổ hợp phân phối) thuộc các cụm thiết bị nêu trên phải có rơle rò điện liên động, bảo vệ không và mạch điều khiển từ xa an toàn tia lửa.
Cho phép sử dụng các tủ cao thế có mạch điều khiển an toàn tia lửa trong cụm thiết bị khi thoả mãn các điều kiện ở khoản 6 dưới đây.
6. Khi sử dụng các thiết bị kiểm tra lưu lượng, hàm lượng khí Mêtan cắt hoặc đóng điện cụm thiết bị nhờ mạch điều khiển an toàn tia lửa có thể thực hiện từ xa bằng các hộp nút bấm đặt ở các vị trí cách xa từ 20m đến 50m kể từ gương lò cụt hoặc từ Bộ phận điều hành và chỉ huy sản xuất mỏ theo lệnh truyền qua đường dây điện thoại được nối từ gương lò cụt tới Bộ phận điều hành và chỉ huy sản xuất mỏ.
Điều khiển từ xa cụm thiết bị phải thực hiện theo sơ đồ 3 dây.
Để đảm bảo an toàn, tại cụm thiết bị
máy cắt cao áp có mạch điều khiển an toàn tia lửa phải đặt điện thoại để
truyền, nhận thông tin từ trạm biến áp di động trong lò cụt. Khi đó, tay điều
khiển đóng, cắt máy cắt phải tháo bỏ, điều khiển máy cắt bằng hộp nút bấm đặt
bên cạnh nó.
Khi thực hiện điều khiển từ xa cụm thiết bị, phải thực hiện kiểm tra từ xa hàm lượng khí Mêtan trong lò cụt. Kết quả đo được ghi vào băng từ và sổ theo dõi khí Mêtan của Trực ban điều hành chỉ huy sản xuất mỏ. Trong sổ phải ghi rõ: Ngày, tháng và thời gian đóng, cắt cụm thiết bị, hàm lượng khí Mêtan trong luồng gió thải trước khi thực hiện lệnh, họ tên và chữ ký người phát lệnh và người thực hiện lệnh.
Điều khiển cụm thiết bị phải do người có chuyên môn và được giao trách nhiệm (cho phép làm kiêm nhiệm) có trình độ an toàn điện tương đương bậc III kỹ thuật điện trở lên với cấp điện áp 1140V và bậc IV kỹ thuật điện trở lên với cấp điện áp trên 1140V thực hiện hoặc theo quy định hiện hành về bậc chuyên môn.
Không cho phép đóng tự động cụm thiết bị trực tiếp bằng rơle của thiết bị kiểm tra tổn thất gió và hàm lượng khí Mêtan.
7. Để quạt gió cục bộ làm việc liên tục, khởi động từ của nó phải được nối với đầu vào Automat tổng của trạm phân phối khu vực nhờ Automat riêng không có bảo vệ không. Với mục đích trên các thiết bị sử dụng điện không liên quan với nhau về công nghệ phải được cấp điện từ các trạm phân phối riêng qua các Automat.

Hình PIV.H2 Sơ đồ cung cấp điện khi đặt trạm biến áp di động trong lò cụt
Khi sử dụng nhóm thiết bị và điều khiển quạt cục bộ bằng khởi động từ có tính năng dao cách ly liên động tách riêng biệt bảo vệ phòng nổ có thể không phải đặt Automat trước khởi động từ. Nếu nhóm khởi động từ này được bảo vệ bằng Automat đặt trong biến áp di động hoặc trạm phân phối trung tâm. Automat trước nhóm thiết bị có thể không cần đặt, nếu khoảng cách giữa Automat cuối cùng và Automat tổng của trạm phân phối khu vực không lớn hơn 20m.
8. Chỉ được phép dừng hoạt động quạt cục bộ để sửa chữa thiết bị điện khi có lệnh bằng văn bản của Giám đốc điều hành mỏ hoặc người được uỷ quyền. Trong trường hợp sự cố quạt cục bộ phải nhanh chóng thông báo cho bộ phận điều hành và chỉ huy sản xuất mỏ, cán bộ quản lý phân xưởng Thông gió, Giám đốc điều hành mỏ và ghi chép vào sổ theo dõi.
9. Cung cấp điện cho thiết bị đo tổn hao gió phải thực hiện từ khởi động từ của quạt gió và thiết bị kiểm tra hàm lượng khí Mêtan được cấp điện từ đầu vào Automat tổng.
Chiều dài cáp điện để thực hiện khoá liên động điện các cơ cấu thừa hành của nhóm thiết bị tối đa là 20m, nếu mạch liên động này không có bảo vệ ngắn mạch đường dây.

Hình PIV. H3 Sơ đồ cung cấp điện quạt gió trong lò cụt
10. Các bộ cảm biến đo hàm lượng khí Mêtan phải được chỉnh định phù hợp với điểm 2, mục III của Phụ lục này. Các cảm biến kiểm tra tốc độ gió phải đặt trước miệng ống dẫn gió sạch, cách gương lò từ 10 đến 15m và phải được bảo vệ chống va đập khi nổ mìn. Nếu đào lò có sử dụng mìn mà không thể bảo vệ cảm biến khỏi va chạm cơ học thì có thể đặt cảm biến này ở khoảng cách tối đa là 30m tính từ gương lò.
Cảm biến và cơ cấu thừa hành của thiết bị đo hàm lượng khí Mêtan và đo lưu lượng gió phải đấu nối với nhau bằng cáp theo chỉ dẫn của nhà chế tạo.
11. Thiết bị kiểm tra lưu lượng gió và hàm lượng khí Mêtan phải làm việc liên tục. Khi chế độ thông gió của lò cụt không bình thường hoặc khi hàm lượng khí Mêtan ở vị trí kiểm tra cao hơn hàm lượng quy định thì thiết bị này phải tự động phát tín hiệu và tác động liên động cắt điện các thiết bị trong lò cụt.
Cụm thiết bị phải được tự động cắt điện khi khởi động từ của quạt cục bộ cắt điện; Vì vậy, giữa chúng phải có khoá liên động.
12. Khi phát hiện các thiết bị đo hàm lượng khí Mêtan, lưu lượng gió, đường cáp điện nối với thiết bị này bị hỏng hoặc phát hiện thấy các thông số của chúng bị thay đổi thì phải cho các thiết bị này ngừng làm việc và phải tiến hành khắc phục ngay các hư hỏng trên. Nếu không khắc phục được phải thông báo ngay cho Bộ phận điều hành và chỉ huy sản xuất mỏ, cán bộ quản lý Phân xưởng thông gió, Quản đốc phân xưởng khu vực có khí, ghi lại tất cả các diễn biến xảy ra.
|
Chiều dài cáp để cung cấp điện cho
thiết bị kiểm tra lưu lượng gió, các phương tiện tự động hoá và các thiết bị
đặt riêng khác từ nguồn điện không an toàn tia lửa có điện áp 42V nằm trong các
khởi động từ, trạm điều khiển không được dài quá 20m. Không cho phép sử dụng
múp nối 3 ngả và các phương tiện tương tự có điện áp định mức 42V để đấu nối
các thiết bị điện có cấp điện áp cao hơn.
14. Khi chế độ thông gió lò cụt bị vi phạm hoặc có khí tích tụ ở một số vị trí của lò cụt, các thiết bị điện ở lò cụt đó phải được cắt điện bằng các khởi động từ hoặc Automat của thiết bị, hoặc Automat đặt trước nó và treo biển báo "Cấm đóng điện - đường lò có khí". Chỉ tháo biển báo và đóng điện cho lò cụt trở lại sau khi đã khôi phục chế độ thông gió bình thường, kiểm tra thành phần không khí dưới mức quy định của quy phạm, kiểm tra tình trạng thiết bị.
Theo Điều 94 Quy chuẩn này
1. Lắp đặt và vận hành thiết bị điện mỏ có cấu tạo thông thường và thiết bị thông dụng công nghiệp trong mỏ phải thực hiện theo thiết kế phù hợp với yêu cầu phòng chống cháy nổ được Giám đốc điều hành mỏ phê duyệt. Thiết kế phải có:
a) Liệt kê các biện pháp đảm bảo an toàn khi vận hành thiết bị điện;
b) Sơ đồ cung cấp điện của thiết bị điện;
c) Sơ đồ thông gió, vị trí đặt thiết bị điện, thiết bị thông gió, bộ cảm biến kiểm tra hàm lượng khí Mêtan;
d) Liệt kê thiết bị điện và các đặc tính kỹ thuật của chúng.
2. Đối với mỏ xếp loại III trở lên theo khí Mêtan, hàng ca phải kiểm tra hàm lượng khí Mêtan ở những nơi đặt thiết bị điện; Ngoài việc kiểm tra trên phải đặt bộ cảm biến cố định để liên tục kiểm tra hàm lượng khí Mêtan.
3. Thiết bị điện phải được cắt điện khi tại vị trí đặt chúng phát hiện hàm lượng khí Mêtan vượt quá 0,5%. Chỉ được đóng điện trở lại khi ở chế độ thông gió bình thường và kết quả kiểm tra hàm lượng khí Mêtan tại các vị trí đặt thiết bị điện trên suốt chiều dài không nhỏ hơn 20m của tất cả các lò gần đó dưới mức quy định của Quy chuẩn này.
4. Ở tất cả các vị trí đặt thiết bị điện, thiết bị thông gió phải treo bảng hướng dẫn tóm tắt vận hành thiết bị điện.
Theo Điều 99 Quy chuẩn này
1. Tính toán dòng điện ngắn mạch nhằm mục đích xác định giá trị nhỏ nhất của dòng ngắn mạch hai pha để lựa chọn giá trị đặt của thiết bị bảo vệ. Xác định dòng điện ngắn mạch ba pha cực đại để kiểm tra khả năng tác động của các thiết bị đóng cắt điện.
Dòng điện ngắn mạch hai pha nhỏ nhất (I (2)nm min) tính toán tại điểm xa nhất của mạng điện tính từ biến áp được xác định với các thông số tính toán của mạng cung cấp điện cao áp, của các máy biến áp và nhiệt độ đốt nóng lõi dây dẫn tới 650C, các thông số điện trở của tiếp điểm, các phần tử của thiết bị chuyển mạch và điện trở vị trí ngắn mạch.
Dòng điện ngắn mạch hai pha nhỏ nhất tính toán I (2)nm min phụ thuộc vào chiều dài cáp và các thông số mạng.
Đối với các trị số trung gian công suất ngắn mạch và chiều dài cáp không liệt kê trong các bảng, dòng điện ngắn mạch có thể xác định bằng phương pháp nội suy tuyến tính.
Dòng điện ngắn mạch hai pha có thể được xác định theo công thức:
0,95 Uđm . 103
I(2)nm min
= (1)
2 Ö (Rct + Rba +
Rđd L đd)2 + (xct + x ba +
xđd Lđd )2
Trong đó:
Uđm - là trị số điện áp định mức của mạng điện có cấp điện áp là 0,133; 0,23; 0,4; 0,69 và 1,2 kV;
Rct - Điện trở thiết bị phân phối cao thế: W;
Rba - Điện trở của máy biến áp đã quy đổi về phía hạ áp: W;
Rđd - Điện trở của đường dây cung cấp điện có ngắn mạch: W/km;
xct - Điện kháng của thiết bị phân phối cao thế: W;
xba - Điện kháng của biến áp đã quy đổi về phía hạ áp: W;
xđd - Điện kháng của đường dây cung cấp điện có ngắn mạch: W/km;
Lđd - Chiều dài đường dây cung cấp điện: m;
Khi xác định dòng điện tính toán Inm min cho phép:
- Không tính tới điện trở mạng phân phối khi công suất của trạm biến áp khu vực tới 400 KVA, nghĩa là xct = 0 và Rct = 0;
- Khi công suất ngắn mạch Snm > 50 MVA thì điện trở trong mạng phân phối lấy bằng 0, nghĩa là Rct = 0;
Tổng trở, điện trở và điện kháng của mạng phân phối cao áp khi công suất ngắn mạch Snm £ 50 MVA được xác định theo công thức
Zct = U2 đm/Snm; Rct = U2 đm (1,1/Snm - 0,02);
Xct =
;
(2)
Trong đó:
Snm Công suất ngắn mạch trên đầu vào của trạm phân phối khu vực và trên thanh cái trạm phân phối ngầm di động 6kV gần nhất (MVA).
Điện trở và điện kháng của máy biến áp được xác định theo công thức:
xba = 10 . Unm . U2đm /Sba;
rba = Pnm .U 2đm/S2ba; (3)
Trong đó:
Unm - Điện áp ngắn mạch, %;
Sba - Công suất định mức của biến áp, kVA;
Pnm - Công suất ngắn mạch của biến áp, kVA;
Điện trở và điện kháng của đường dây cáp ở nhiệt độ 650C được xác định theo tài liệu kỹ thuật của cáp.
Đối với cáp lõi đồng có tiết diện 50mm2 ở nhiệt độ 650C có Rđd = 0,423W/ km ; xđd = 0,075 W/km.
Tổng điện trở vị trí tiếp xúc, vị trí ngắn mạch lấy bằng 0,005W cho một khí cụ trong mạng trong đó kể cả điểm ngắn mạch.
Dòng điện ngắn mạch tính toán nhỏ nhất tại điểm xa nhất kể từ điểm đi ra của khởi hành tới thiết bị đấu nối có mạch an toàn tia lửa điện áp đến 42V được xác định theo công thức
Uđm
Inm min
=
(4)
rba + 2 rđd
Trong đó
Uđm - Điện áp định mức của cuộn dây thứ cấp biến áp V;
rđd - Điện trở một lõi cáp: W (lấy bằng 0,008; 0,0033 và 0,002 : W/m đối với các lõi cáp có tiết diện tương ứng là 2,5; 4; 10mm2);
rba - Điện trở biến áp đã quy đổi về cuộn thứ cấp biến áp: W;
2. Chiều dài quy đổi Lđd của đường cáp có chú ý tới điện trở tính toán của vị trí tiếp xúc, các phần tử thiết bị và điện trở quá độ tại vị trí ngắn mạch, xác định bằng công thức
Lđd = lđd1 . kđd1 + lđd2 . kđd2 + ...+ lđdn kđdn + (k + 1) l0; (5)
Trong đó
lđd1 ... lđdn - chiều dài thực tế của các đoạn cáp có tiết diện khác nhau: m;
kđd1 ... kđdn- các hệ số quy đổi của các đường cáp có tiết diện khác nhau;
k - Số thiết bị đóng cắt đấu nối tiếp trong mạng điện ngắn mạch, trừ áp tô mát của trạm biến áp di động;
l0 = 10m - chiều dài quy đổi của đường cáp tương đương với điện trở quá độ tại điểm ngắn mạch và các phần tử của thiết bị đóng cắt.
Khi kiểm tra trị số dòng điện đặt của thiết bị bảo vệ các đường cáp, thiết bị điện của máy mỏ có nhiều động cơ truyền động, chiều dài quy đổi của cáp Lđd tính theo công thức (5) thêm vào đoạn cáp có chiều dài quy đổi tiết diện một lõi 50mm2 có tác dụng làm hạn chế dòng điện sẽ tương đương như việc đấu vào mạch bảo vệ của các phần tử lắp bên trong máy. Trị số này do nhà chế tạo thiết bị quy định gửi kèm theo máy khi xuất xưởng.
Khi xác định I(2)nm min trong các mạng điện chiếu sáng để tính tới điện trở của các mối tiếp xúc khi đó phải thêm vào Lđd trị số 2n; n là số đèn và múp nối 3 ngả trong mạng điện chiếu sáng bị ngắn mạch.
Hệ số quy đổi kđd tiết diện cáp để xác định dòng điện ngắn mạch hai pha nhỏ nhất tính toán I(2)nm min cho trong Bảng PIV.B1
Bảng PIV.B1 Hệ số quy đổi Kđd tiết diện cáp để xác định I(2)nm min
|
Tiết diện lõi dẫn điện của cáp mm2 |
Hệ số quy đổi kđd |
Tiết diện lõi dẫn điện của cáp mm2 |
Hệ số quy đổi kđd |
|
Đối với mạng điện áp 380 ¸ 1140 V (Tiết diện quy đổi về 50mm2) |
|||
|
4 |
12,3 |
35 |
1,41 |
|
6 |
8,22 |
50 |
1,00 |
|
10 |
4,92 |
70 |
0,72 |
|
16 |
3,06 |
95 |
0,54 |
|
25 |
1,97 |
120 |
0,43 |
|
Đối với mạng điện áp 127 ¸ 220V (Tiết diện quy đổi về 4m2) |
|||
|
2,5 |
1,6 |
6 |
0,67 |
|
4,0 |
1,0 |
10 |
0,40 |
3. Dòng điện cực đại ngắn mạch 3 pha tại đầu ra của thiết bị có thể tính qua giá trị dòng điện ngắn mạch 2 pha nhỏ nhất theo công thức
I(3)nm max » 1,6 I(2)nm min (6)
1. Trị số dòng điện đặt tác động của rơle trong áp tô mát, khởi động từ, trạm điều khiển...được xác định theo công thức
a) Để bảo vệ đường dây
Iđ ³ I đm kđ + å Iđm lv (7)
Trong đó
Iđ - Dòng điện đặt tác động của rơle (A);
Iđm kđ - Dòng điện khởi động định mức của động cơ điện có công suất lớn nhất (A);
å Iđm lv - Tổng dòng điện định mức của tất cả thiết bị còn lại (A).
b) Để bảo vệ đường cáp nhánh cung cấp điện cho một nhóm thiết bị có truyền động bằng động cơ rô to lồng sóc làm việc đồng thời
Iđ ³ å Iđm lv. (8)
Để bảo vệ đường cáp chính có động cơ không đồng bộ rô to lồng sóc công suất lớn (nếu dòng điện khởi động lớn hơn 600 ÷ 700 A) cho phép chọn trị số dòng điện tác động của rơle tuỳ thuộc trị số dòng điện khởi động thực tế của động cơ.
Trị số gần đúng dòng điện khởi động của động cơ được xác định như sau
- Đối với động cơ có rôto lồng sóc
Ikđ = Ilv đm . (6 ÷ 7). (9)
- Đối với động cơ dây quấn
Ikđ = Ilv đm . 1,5. (10)
Trong đó
Ikđ - Dòng điện khởi động của động cơ (A);
Ilv đm - Dòng điện làm việc định mức của động cơ (A).
c) Để bảo vệ đường cáp nhánh chiếu sáng
- Bằng đèn sợi đốt
I đ ³ 3 Iđm lv ; (11)
- Bằng đèn huỳnh quang
I đ ³ 1,25 Iđm lv. (12)
2. Dòng điện đặt tác động của rơle được kiểm tra theo dòng điện ngắn mạch tính toán 2 pha nhỏ nhất. Khi đó tỷ số giữa dòng điện ngắn mạch tính toán 2 pha nhỏ nhất và dòng điện tác động của rơle xác định theo công thức
I (2) nm min
³ k n ;
(13)
I đ
k n = 1,5 - Hệ số độ nhạy bảo vệ.
Trong các trường hợp riêng khi được phép của cơ quan quản lý mỏ có thẩm quyền, đối với các đường cáp chính hoặc nhánh là cáp chì bọc thép hoặc cáp có màn chắn thì hệ số độ nhạy kn giảm tới 1,25.
1. Dòng điện định mức của dây chảy cầu chì xác định theo công thức
a) Để bảo vệ đường cáp chính
Iđm kđ
Icc
³ +
å Iđm lv.
(14)
1,6 ¸ 2,5
Trong đó
Icc - Dòng điện định mức của dây chảy (A);
1,6 ¸ 2,5 - Hệ số đảm bảo cho dây chảy không nóng chảy (đứt) khi khởi động động cơ rô to lồng sóc.
Khi điều kiện khởi động động cơ bình thường (số lần khởi động ít, thời gian khởi động ngắn), hệ số trên lấy bằng 2,5.
Khi điều kiện khởi động động cơ nặng nề (số lần khởi động nhiều, thời gian khởi động kéo dài), hệ số trên lấy từ 1,6 ¸ 2.
Nếu giảm quá mức dòng định mức của dây chảy, khi động cơ khởi động dây chảy đứt (nóng chảy) sẽ là nguyên nhân gây cháy động cơ vì động cơ làm việc ở chế độ mất pha;
b) Để bảo vệ đường cáp nhánh
- Phụ tải là động cơ rô to lồng sóc
Iđm kđ
I cc ³ (A);
(15)
1,6 ¸ 2,5
- Phụ tải là thiết bị chiếu sáng
I cc ³ Iđm kđ (A). (16)
Đối với các thiết bị dòng điện định mức của dây chảy gần bằng dòng điện tính toán. Cho phép nối song song trong một ống bảo vệ 2 dây chảy có dòng điện định mức bằng nhau hoặc khác nhau tới 30 đến 35 %. Khi đó tổng dòng điện của 2 dây chảy không được vượt quá giá trị tính toán;
c) Để bảo vệ mạch an toàn tia lửa điện áp tới 42V đi ra từ các thiết bị (khởi động từ, trạm điều khiển …) và cung cấp điện cho các phụ tải ngoài (thiết bị tự động hoá, chiếu sáng cục bộ ...) phải phù hợp với trị số của dây chảy cho sẵn trong các chỉ dẫn vận hành thiết bị. Để bảo vệ các mạch điện này cũng có thể thực hiện bằng áptômát có kích thước nhỏ đặt trong các thiết bị.
2. Dây chảy sau khi được chọn phải được kiểm tra theo dòng điện ngắn mạch hai pha tính toán nhỏ nhất, tiết diện dây cáp nhỏ nhất và phải thoả mãn khi phụ tải lâu dài, lớn nhất.
Tỷ số giữa dòng điện ngắn mạch 2 pha tính toán nhỏ nhất với dòng điện định mức của dây chảy phải thoả mãn với điều kiện
I(2)nm min
³ 4 ¸ 7 (17)
Icc
Khi tỷ số này bằng 4, cho phép sử dụng dây chảy có dòng điện định mức từ 160A đến 200A trong mạng 380v đến 1140V; còn trong mạng điện áp 127v đến 220V không phụ thuộc vào độ lớn dòng điện dây chảy.
3. Dây chảy để bảo vệ mạch an toàn tia lửa điện áp tới 42V cần kiểm tra theo điều kiện
I(2)nm min
³
5 (18)
I cc
1. Phải đặt thiết bị bảo vệ ở phía cuộn dây sơ cấp để bảo vệ cuộn dây thứ cấp máy biến áp và phần mạch điện kể từ cọc đấu cuộn sơ cấp đến các thiết bị được bảo vệ.
Thực hiện việc bảo vệ nêu trên trong mạng 1140V; 660V; 230V; 130V bằng rơle cực đại hoặc bằng dây chảy. Chọn và kiểm tra trị số tác động của rơle theo công thức
a) Đối với các máy biến áp có sơ đồ đấu cuộn sơ cấp và thứ cấp giống nhau nối (D/D, Y/Y)
I(2)nm min
³
1,5 (19)
k ba I đ
Trong đó
I(2nm min - Dòng điện tính toán ngắn mạch 2 pha phía cuộn thứ cấp của biến áp (A);
Iđ - Trị số dòng điện tác động của rơle phía cuộn sơ cấp của máy biến áp (A);
k ba - Hệ số biến áp;
1,5 - Hệ số độ nhạy bảo vệ.
b) Đối với các máy biến áp có sơ đồ đấu cuộn sơ cấp và cuộn thứ cấp khác nhau (D/Y, Y/D)
I(2)nm min
³
1,5; (20)
k
ba I đ ![]()
Việc chọn và kiểm tra trị số dòng tác động của rơle để bảo vệ mạng phía thứ cấp máy biến áp điện áp 10 - 3/1,2 - 0,4 kV trong các trạm phân phối trọn bộ phải thực hiện theo quy trình hiện hành.
2. Trị số dòng đặt tác động của rơle cực đại phía sơ cấp để bảo vệ cuộn thứ cấp của máy biến áp chiếu sáng dùng bóng sợi đốt và huỳnh quang xác định theo công thức
a) Nếu sử dụng bóng sợi đốt
3 I đm lv
Iđ = (A);
(21)
kba
b) Nếu sử dụng bóng huỳnh quang
1,25 Iđm lv
Iđ
³ (A).
k ba
3. Dòng định mức của dây chảy, đặt trong thiết bị phía cuộn sơ cấp của biến áp chiếu sáng xác định theo công thức
(1,2 ¸ 1,4) I đm lv
Icc ³ (A).
(22)
kba
Sử dụng dây chảy có trị số tính toán gần đúng với dòng điện định mức.
Tỷ số dòng tính toán ngắn mạch 2 pha nhỏ nhất đối với trị số dòng dây chảy định mức phải thoả mãn các điều kiện
a) Đối với các biến áp có sơ đồ đấu dây cuộn sơ cấp và cuộn thứ cấp như nhau
I(2)nm min
³ 4 (23)
k ba I cc
b) Đối với các biến áp có sơ đồ dây cuộn sơ cấp và cuộn thứ cấp khác nhau
I(2)nm min
³ 4 (24)
k ba Icc ![]()
Trong đó: I(2)nm min - Dòng điện tính toán ngắn mạch 2 pha nhỏ nhất. Trị số này được xác định đối với trường hợp ngắn mạch trên các cọc đấu vào thiết bị bảo vệ sau cuộn thứ cấp A.
1. Để thiết bị bảo vệ tác động cắt mạch điện chính xác khi có dòng điện ngắn mạch cực đại xuất hiện trong vùng phải bảo vệ, phải thoả mãn điều kiện
I0 > 1,2 I(3)nm max. (25)
Trong đó:
I0 - Trị số giới hạn dòng điện cắt của thiết bị bảo vệ (A);
I(3)nm max - Dòng điện điện tính toán ngắn mạch ba pha cực đại (A).
Nếu không thoả mãn điều kiện của công thức (25) thì trong phạm vi cung cấp điện cho thiết bị có bảo vệ khác đủ khả năng cắt đúng phải thoả mãn điều kiện
I0
I đ £ = 0,55 I0
(26)
1,2 k ba
Trong đó
Iđ -Trị số dòng đặt tác động của rơle cực đại đã thoả mãn điều kiện của công thức (25) (A).
Nếu điều kiện (26) không thực hiện được thì phải đặt trước thiết bị được kiểm tra một thiết bị phụ thoả mãn các điều kiện (25) và (26).
Yêu cầu về kiểm tra thiết bị theo giới hạn dòng điện cắt không áp dụng cho áp tô mát đặt trong trạm biến áp di động và các bộ khởi động.
V. HƯỚNG DẪN VỀ LẬP, KIỂM TRA VÀ ĐO ĐIỆN TRỞ TIẾP ĐẤT
Theo Điều 102 Quy chuẩn này.
A.YÊU CẦU CHUNG1. Tiếp đất cho các thiết bị bằng vật tiếp đất và dây tiếp đất.
2. Tiếp đất chính là một hệ thống liên hoàn bằng cách nối các vật tiếp đất làm từ thép dẹt có tiết diện không nhỏ hơn 100mm2. Hệ thống này đặt ở gần hầm đặt thiết bị điện của trạm điện ngầm trung tâm.
3. Tiếp đất cục bộ phải được lập ở các điểm, trạm sau:
a) Trạm biến áp, gian (hầm) đặt thiết bị điện. Trừ gian đặt máy gần giếng, trạm biến áp ngầm trung tâm có các tiếp đất cục bộ đã nối với hệ thống tiếp đất chính;
b) Trạm phân phối cố định hoặc di động, trừ các trạm phân phối đặt trên toa goòng di chuyển thường xuyên trên đường ray;
c) Thiết bị phân phối, máy cắt đặt riêng lẻ;
d) Múp nối cáp vỏ chì bọc thép. Ở nơi không có rãnh nước, đất đá quá cứng, xa nguồn cung cấp điện có thể không làm tiếp đất tại vị trí nhưng phải có cầu nối từ vỏ thép của múp nối sang vỏ chì của cáp;
e) Các thiết bị đặt riêng lẻ.
4. Khi đặt một vật tiếp đất cho một nhóm các công trình cần tiếp đất phải sử dụng các dây tiếp đất và dây nối với vật tiếp đất bằng thép hoặc đồng có tiết diện nhỏ nhất tương ứng là 50mm2, 25mm2. Dây tiếp đất nối vật tiếp đất tại vị trí cũng phải theo quy định trên.
5. Mỗi công trình phải được nối với hệ thống tiếp đất hoặc cọc tiếp đất nhờ một nhánh riêng bằng thép tiết diện không dưới 50mm2 hoặc bằng đồng tiết diện không dưới 25mm2. Đối với thiết bị thông tin liên lạc dây nối đất với thiết bị có thể bằng thép hoặc đồng có tiết diện tương ứng không nhỏ hơn 12mm2 và 6mm2.
Tiếp đất cần được thực hiện sao cho khi tách riêng từng thiết bị và máy khỏi hệ thống tiếp đất sẽ không ảnh hưởng tới tiếp đất của các thiết bị khác.
Cấm đấu nối tiếp vỏ các thiết bị, máy, công trình phải tiếp đất với hệ thống tiếp đất hoặc vật tiếp đất của các thiết bị khác, trừ các múp nối cáp và bóng đèn của mạng chiếu sáng cố định.

1- Bulông; 2 – Dây tiếp đất; 3 - Mạch tiếp đất chung; 4 – Đai ốc; 5 – Vòng đệm
Hình PIV.H6 Sơ đồ nối dây tiếp đất bằng thép dẹt, sử dụng bulông và đai ốc

1- Bulông; 2- Dây tiếp đất; 3- Mạch tiếp đất chung; 4- Đai ốc; 5- Vòng đệm; 6- Đầu cốt
Hình PIV.H7- Sơ đồ nối dây tiếp đất bằng thép tròn với mạng tiếp đất có sử dụng đầu cốt bulông, đai ốc
6. Để nối tiếp đất cục bộ với tiếp đất chính phải sử dụng dây thép, đồng và vỏ chì của cáp điện bọc thép và dây dẫn khác.
Ngoài việc phải đấu tiếp đất cục bộ cho các máy, thiết bị điện, các múp nối của cáp điện vỏ chì thì tại múp nối của cáp chì phải đặt cầu nối bằng thép tiết diện 50mm2 hoặc đồng tiết diện 25mm2 để hệ thống tiếp đất thành mạch tiếp đất liên tục (Hình PIV.H5).
|
Hình PIV.H8- Sơ đồ nối dây tiếp đất bằng phương pháp bản sắt dẹt và bulông đai ốc
1- Giá đỡ dây tiếp đất bằng thép dẹt; 2- Thanh thép dẹt; 3- Giá đỡ dây tiếp đất bằng thép tròn; 4- Dây thép tròn
Khi sử dụng cáp điện vỏ cao su, lõi tiếp đất phải nối với nhau thành một mạch liền.
7. Để hệ thống tiếp đất có độ bền cao về cơ khí, tiếp xúc tốt về điện, dây tiếp đất phải thoả mãn các yêu cầu sau
a) Vị trí tiếp xúc giữa vật tiếp đất và dây tiếp đất phải thực hiện bằng hàn. Công việc hàn phải tiến hành trên mặt đất;
b) Nối các dây tiếp đất với vỏ máy, thiết bị điện và với các cấu trúc khác mà trong quá trình vận hành cần di chuyển hoặc thay thế phải được thực hiện bằng đầu cốt (bulông, đai ốc...) tại vị trí cố định cho mục đích này, đã quy định trước trên vỏ thiết bị.

Hình PIV.H9 (a) Sơ đồ đỡ dây tiếp đất trong gian đặt máy tường bêtông
a) Dây tiếp đất bằng thép dẹt; b) Dây tiếp đất bằng thép tròn

Hình PIV.H9 (b)- Sơ đồ xiết chặt dây tiếp đất trung gian với vì chống bê tông
1- Giá đỡ bằng thép; 2- Vấu nối; 3- Thanh xiết chặt dây; 4- Dây tiếp đất
c) Cách nối dây tiếp đất với nhau hoặc hoặc với mạch tiếp đất chung nêu trên Hình PIV.H6; PIV.H7; PIV.H8.
d) Đỡ và giữ dây tiếp đất trong lò chống bằng vì chống khác nhau nêu trên Hình PIV.H9 và PIV.H10.
8. Nối dây tiếp đất bằng bulông phải đáp ứng các yêu cầu sau
a) Phải sử dụng bulông lớn hơn hoặc bằng M8;
b) Các mặt tiếp xúc của dây tiếp đất phải lớn hơn diện tích của vòng đệm và phải được làm sạch trước khi đâu nối;
c) Phải có vòng đệm vênh hoặc đai ốc thứ hai tăng cường.
9. Dây tiếp đất, vị trí nối phải ở vị trí dễ kiểm tra, sửa chữa khi cần thiết.

Hình P IV.H10 - Sơ đồ đỡ dây tiếp đất trong lò chống bằng gỗ

Hình PIV.H11- Sơ đồ đặt vật tiếp đất trong lỗ khoan

Hình PIV.H12 - Sơ đồ đặt vật tiếp đất trong rãnh nước
1- Vật tiếp đất; 2- Dây tiếp đất; 3 – cát, đất sỏi mịn
1. Vật tiếp đất chính đặt trong giếng, bể chứa nước hoặc hố chuyên dùng phải chế tạo bằng thép tấm có diện tích không nhỏ hơn 0,75m2, chiều dày không nhỏ hơn 5mm, dài không nhỏ hơn 2,5m.
2. Hố nước để đặt tiếp đất chính phải có độ sâu hơn 3,5m được đậy chắc chắn, không cản trở hoạt động của thiết bị khác. Phải có biện pháp để bổ sung thêm nước cho hố. Chống giữ hố phải có kết cấu không làm cản trở nước tiếp xúc với đất đá mỏ.
Khi đặt hai vật tiếp đất chính, phải đặt chúng riêng biệt và nối chúng với nhau bằng thanh thép dẹt có tiết diện lớn hơn 100mm2.
3. Vật tiếp đất đặt trong rãnh thoát nước phải chế tạo bằng thép tấm diện tích không nhỏ hơn 0,6m2, chiều dày không nhỏ hơn 3mm, chiều dài không dưới 2,5m. Vật tiếp đất đặt nằm ngang ở vị trí sâu nhất của rãnh nước trên lớp cát chiều dày không dưới 50mm, phía trên vật tiếp đất cũng phủ lớp cát hoặc sạn vụn dày 150mm
Đối với lò không có rãnh thoát nước, vật tiếp đất phải chế tạo bằng ống thép đường kính không nhỏ hơn 30mm, chiều dài không nhỏ 1,5m.

Hình PIV.H13 - Sơ đồ tiếp đất các trạm biến áp di động.
1- Vỏ kim loại của cáp; 2- Đai; 3- Các cực nối tiếp đất phía ngoài;
4- Lõi tiếp đất của cáp mềm; 5- Cực nối tiếp đất phía trong;
6- Vật tiếp đất phụ của rơ le rò điện; 7- Dây tiếp đất cục bộ;
8- Vật tiếp đất cục bộ; 9- Cầu nối.

Hình PIV.H14 Sơ đồ đấu tiếp đất các máy biến áp.
1- Vỏ kim loại của cáp. 2- Cực nối tiếp đất; 3- Đai;
4- Cầu nối; 5- Dây tiếp đất; 6- Vật tiếp đất cục bộ.
Trên thành ống phải khoan tối thiểu 20 lỗ có đường kính tối thiểu 5mm. Vật tiếp đất ống đặt trong lỗ khoan thẳng đứng hoặc nghiêng đến 300, sâu tối thiểu là 1,4m.
Khi cần thiết có thể sử dụng một vài vật tiếp đất ống như trên, cũng có thể làm giảm điện trở tiếp đất của vật tiếp đất bằng cách đổ đầy chất ẩm ướt (cát, tro...) vào khoảng trống giữa thành ngoài vật tiếp đất ống và thành lỗ khoan. Chất đổ đầy phải được làm ẩm ướt định kỳ.
4. Khi cấp điện cho mỏ bằng cách đặt cáp theo hố khoan, vật tiếp đất chính phải đặt trên mặt bằng hoặc trong bể chứa nước của mỏ. Khi đó phải có ít nhất hai vật tiếp đất chính dự phòng cho nhau. Nếu lỗ khoan được chống giữ bằng ống, thì ống đó được sử dụng như là vật tiếp đất chính.
1. Vỏ kim loại thiết bị điện, cáp điện (xoay chiều, một chiều) và các kết cấu khác của trạm (biến áp, phân phối, biến đổi điện) phải được tiếp đất bằng cách nối tất cả chúng (không phân biệt loại dòng điện) với vật tiếp đất cục bộ (tiếp đất của trạm) và với hệ thống tiếp đất chung của mỏ. Tiếp chung của trạm điện biến đổi (trạm kéo của tàu điện tiếp xúc) phải nối với hệ thống ray là dây dẫn ngược chiều của mạng điện tiếp xúc hoặc với ray cực âm của nguồn điện một chiều.
2. Cách đấu nối vỏ thiết bị với vật tiếp đất cục bộ và với mạch tiếp đất chung của mỏ nêu trong Hình PIV.H13; PIV.H14 và PIV.H15.

3. Đối với băng tải, máng cào, cơ cấu chuyển tải than...có kết cấu kim loại lắp ghép trực tiếp với thiết bị điện, thì chỉ phải làm tiếp đất cho thiết bị điện.
4. Tiếp đất vỏ thiết bị điện, cáp điện và giàn đỡ cáp điện một chiều, thuộc lưới tiếp xúc bằng cách nối chúng với đường ray dùng làm cực âm của lưới tiếp xúc kể trên.
Cũng tương tự khi làm tiếp đất cho vỏ thiết bị điện xoay chiều có liên kết kim loại với đường ray dẫn điện của lưới tiếp xúc (bộ truyền động ghi truyền động bằng động cơ xoay chiều) khi đó không cho phép nối tiếp đất cục bộ của thiết bị vào mạng tiếp đất chung. Khi sử dụng thiết bị nói trên và cáp chì có băng kim loại thì phải tiến hành cách điện vỏ của thiết bị đó, băng kim loại của vỏ cáp với đường ray của lưới tiếp xúc. Tiếp đất cục bộ vỏ kim loại của cáp, giàn kim loại đỡ cáp phía nguồn cấp điện phải được nối với hệ thống tiếp đất chung của mỏ.
5. Cấm nối ống nước, đường ray không dẫn điện, các vật và kết cấu kim loại khác với ray dẫn điện của lưới tiếp xúc.
1. Nối dây dẫn tiếp đất với múp nối cáp bằng cực nối trên vỏ của múp nối, với vỏ kim loại của cáp bằng đai kẹp (Hình PIV.H15)
2. Để tiếp đất cho cáp điện vỏ chì bọc băng thép, phải rạch vỏ chì dọc theo cáp về 2 phía uốn cong 1800 kẹp vỏ chì vào băng thép bằng đai thép của vỏ cáp. Trước đó phải làm sạch vị trí chì và băng thép tiếp giáp nhau. Đai kẹp chặt cũng phải được làm sạch (Hình P.IV.H18)
3. Sau khi đổ nhựa cáp vào múp nối cáp, kẹp đai thép có chiều rộng không dưới 25mm trên hai nửa vỏ chì của cáp. Dây tiếp đất được đấu vào đai này. Các đai nằm ở 2 phía của múp nối và vỏ múp nối phải được nối với nhau bằng cầu nối bằng thép tiết diện không nhỏ hơn 50mm2 hoặc đồng với tiết diện không nhỏ hơn 25mm2.
Đối với các múp nối cáp chiếu sáng, các múp nối cáp kiểm tra và các máy điện thoại cho phép đoạn cầu nối bằng thép tiết diện 12mm2 và bằng đồng tiết diện 6mm2.



|
Hình PIV.H17 - Đai thép dùng để nối dây tiếp đất với vỏ chì và băng thép cáp điện |
Hình PIV.H18 - Cách tẻ cáp và rạch vỏ chì của cáp |
4. Nối dây tiếp đất với múp nối và với vỏ cáp được nêu ở Hình PIV.h19; nối dây tiếp đất tới múp chiếu sáng và tới vỏ cáp được nêu ở Hình PIV.H20.
|
Hình PIV.H19 - Sơ đồ đấu dây tiếp đất cho múp nối cáp. 1- Vỏ chì; 2 – lớp đay có tẩm hắc ín bảo vệ băng thép của cáp; 3- băng thép; 4 – cầu nối |

Hình PIV.H20 - Sơ đồ đấu tiếp đất cho múp chiếu sáng (múp nối 3 ngả)
1- Vỏ chì; 2- Lớp đay; 3- Vỏ bọc thép; 4- Cầu nối
Khi không có vật tiếp đất cục bộ cần phải đặt 2 đoạn nối với các đai riêng biệt đảm bảo nối các vỏ cáp với nhau và với vỏ của múp nối.
5. Tiếp đất cho cáp kiểm tra vỏ chì bọc kim loại (Hình PIV.H21) bằng cách nối vỏ chì của cáp với múp nối bằng đai tại vị trí cáp đi vào. Vỏ thép của cáp trước khi kẹp chặt phải được đánh sạch.
6. Tiếp đất cho cáp kiểm tra vỏ nhựa có thép bảo vệ bằng cách nối băng thép của cáp với vỏ của múp nối. Để nâng cao độ dẫn điện của hệ thống tiếp đất, trong trường hợp này cần phải sử dụng một hoặc một số lõi cáp (Hình PIV.H22) với tổng tiết diện không dưới 1mm2.
|
Hình PIV.H21 - Sơ đồ đấu tiếp đất cho cáp kiểm tra vỏ bọc chì. 1- Vỏ thép; 2- Đai; 3- Cầu nối; 4- Đai; 5- Vỏ chì.
|
Hình PIV.H22 - Sơ đồ tiếp đất cho cáp kiểm tra vỏ bọc nhựa. 1- Vỏ thép; 2-Đai kẹp; 3- Cầu nối; 4- Đai kẹp; 5- Vỏ nhựa của cáp; 6- Các lõi cáp sử dụng cho tiếp đất |
E. TIẾP ĐẤT CÁC THIẾT BỊ ĐIỆN DI ĐỘNG VÀ CẦM TAY.
1. Tiếp đất vỏ kim loại các thiết bị di động và cầm tay thực hiện bằng cách nối vỏ của chúng với hệ thống tiếp đất chung bằng lõi tiếp đất của cáp mềm. Lõi tiếp đất của cáp mềm nối với cọc đấu có sẵn trong khoang đấu của thiết bị khởi động.

Hình PIV.H23 - Sơ đồ tự động kiểm tra mạch tiếp đất của máy di động.
1- Máy biến áp của mạch điều khiển. 2- rơle trung gian; 3- Tiếp điểm duy trì; 4- Nút bấm “khởi động”; 5- Nút bấm “ngừng máy”; 6- Đi ốt điều khiển; 7- Điện trở bảo vệ không; 8- Cực nối tiếp đất.
2. Các máy di động, băng tải ở gương lò phải tự động kiểm tra liên tục mạch tiếp đất bằng cách sử dụng lõi tiếp đất trong sơ đồ điều khiển nêu ở Hình 4.5.19 hoặc một cơ cấu chuyên dùng khác.
Có thể không phải đặt cơ cấu tự động kiểm tra mạch tiếp đất nếu máy di động, băng tải ở gương lò có 2 bộ truyền động trở lên. Khi đó tiếp đất cho các động cơ của chúng được thực hiện ít nhất bằng 2 lõi tiếp đất của các cáp khác nhau.
Hình PIV.H24- Sơ đồ nối dây
tiếp đất với các đường ống
1-Đai; 2- Dây tiếp đất ; 3- Bulông; 4- Đai ốc; 5- Vòng đệm; 6- Đường ống
a) b)
c)
Hình PIV.H25- Tiếp đất các chi tiết kim loại của các ống thông gió mềm (không phải kim loại)
a. Kiểu M (vắt qua)
b. Kiểu TB (treo bằng dây xoắn kim loại)
c. Kiểu K (cuốn treo)
1. Tiếp đất đường ống kim loại bằng cách nối chúng với tiếp đất cục bộ của công trình điện. Trong trường hợp này dây tiếp đất nối với đường ống nhờ một đai thép xiết chặt bằng bulông và đai ốc (Hình PIV.H24).
Mặt tiếp xúc giữa đường ống và đai phải được làm sạch trước khi xiết chặt.
2. Tiếp đất ống thông gió và ống dẫn khí nén bằng kim loại trong lò, nơi không dùng điện bằng các vật tiếp đất cục bộ ở đầu và cuối đường ống.
3. Tiếp đất chi tiết kim loại (móc, vòng nút, đường xoắn, lò xo...) của ống thông gió mềm (khoảng cách mỗi đoạn tiếp đất không quá 25m) bằng cách treo chúng trên dây kim loại được tiếp đất ở hai đầu. Dây treo có đường kính ít nhất 5mm (Hình PIV.H25)
4. Khi ống thông gió mềm liền (không có đoạn nối) chiều dài trên 70m phải tạo các vòng kim loại như hình PIV.H24 để bắt dây tiếp đất.
5. Tiếp đất các ống dẫn khí song song, gần nhau hoặc giao nhau bằng cách sử dụng vật tiếp đất chung và các dây tiếp đất nhánh. Nếu ở khoảng cách không quá 100mm từ đường ống thông gió có kết cấu kim loại thì các kết cấu kim loại đó phải được nối với tiếp đất của các ống.
6. Điện trở của mạch tiếp đất chỉ để bảo vệ chống dòng tĩnh điện không quá 100W.
1. Đầu mỗi ca thợ trực cơ điện phải kiểm tra tình trạng bề ngoài tất cả cơ cấu của mạch tiếp đất: Sự toàn vẹn của mạch tiếp đất, dây tiếp đất, mối tiếp xúc... Chỉ cho thiết bị điện hoạt động nếu mạch tiếp đất không có sai sót. Sau mỗi lần sửa chữa thiết bị điện phải kiểm tra tiếp đất của thiết bị đó.
2. Ít nhất 3 tháng một lần phải kiểm tra hệ thống tiếp đất chung, đồng thời phải đo điện trở tiếp đất của mỗi vật tiếp đất và sự liền mạch của chúng với hệ thống tiếp đất chung.
Kết quả kiểm tra và đo phải ghi vào "Sổ ghi tình trạng thiết bị điện và tiếp đất".
3. Khi kiểm tra tiếp đất cần phải chú ý đến các nội dung sau đây:
+ Dây tiếp đất có bị đứt không;
+ Tình trạng các mối tiếp xúc (mức độ han gỉ của các bề mặt tiếp xúc, mức độ bắt chặt của đai ốc...)
+ Độ bền cơ khí của hệ thống tiếp đất phải được kiểm tra trước khi đo điện trở tiếp đất.
4. Ít nhất một lần trong 6 tháng phải kiểm tra (nếu cần phải sửa chữa) vật tiếp chính nằm trong giếng hoặc trong hầm nước.
5. Để đo điện trở mạng tiếp đất phải đặt hai vật tiếp đất phụ cách xa ít nhất 15m so với vật tiếp đất được kiểm tra và cách nhau không nhỏ hơn 15m.
Vật tiếp đất phụ làm bằng thép (có mạ đồng) đầu nhọn. Khi đo phải đóng vào vị trí ẩm ướt sâu 0,8m.
6. Đồng hồ đo điện trở tiếp đất phải có chức năng phù hợp với Điều 93 Quy chuẩn này.
7. Trong trường hợp một vật tiếp đất cục bộ đặt cho một nhóm thiết bị cần phải đo điện trở tiếp đất của từng thiết bị mà không tách nó ra khỏi tiếp đất chung thì dây đo của đồng hồ phải nối với vật tiếp đất để đo điện trở chung, sau đó dây đo của đồng hồ phải nối với cực nối tiếp đất của từng thiết bị. Trong trường hợp kết quả đo có sai lệch, sau khi kiểm tra các vị trí đấu nối và phải đo lại.
Trong "Sổ ghi tình trạng thiết bị điện và tiếp đất" phải có phần ghi rõ số lượng thiết bị điện đấu tới một vật tiếp đất.
Theo Điều 106 Quy chuẩn này
Kiểm tra hàng ca phải được tiến hành vào đầu mỗi ca do những người làm việc ở thiết bị đó thực hiện (người vận hành máy, thợ cơ điện thường trực).
Kiểm tra hàng tuần do Phụ trách cơ điện khu vực của công trường (hoặc người được thay thế) thực hiện. Kiểm tra hàng ca, hàng tuần không phải mở thiết bị nếu không hư hỏng. Kiểm tra, sửa chữa hoặc kiểm tra dự phòng theo tài liệu hướng dẫn sử dụng của nhà chế tạo có mở nắp thiết bị phải có sự giám sát của Thanh tra an toàn hoặc Bộ phận kỹ thuật an toàn mỏ.
Nội dung công việc kiểm tra hàng ngày, hàng tuần:
1. Kiểm tra vị trí đặt thiết bị: Thiết bị phải đặt ở nơi có vì chống vững chắc không thể sụt đổ, không dột nước hoặc được che dột, không bị hư hỏng do công tác vận tải gây ra và được lắp đặt đúng theo thiết kế.
2. Làm sạch vỏ các thiết bị khỏi bụi than, phoi gỗ, tạp chất, chất cháy...
3. Tình trạng vỏ: Nứt, lỗ thủng, kính che, các hư hỏng khác. Khi kiểm tra động cơ điện phải kiểm tra quạt gió, vỏ, tình trạng xiết chặt.
4. Kiểm tra đai ốc và tình trạng xiết chặt, các gioăng, nút vị trí cáp ra, vào đảm bảo độ kín khít của thiết bị điện mỏ. Cấm vận hành thiết bị điện khi thiếu bulông hoặc bulông xiết chưa chặt.
5. Các lỗ đường vào của phễu cáp không sử dụng phải bịt kín bằng nút thép hoặc sợi gai đảm bảo an toàn về nổ.

Hình PIV.H26: Bịt kín lỗ cáp không sử dụng
|
1 - Nút bịt kín 2 - Gioăng bịt kín |
3 - Mặt bích bịt kín 4 - Mặt kẹp chặt |
6. Kiểm tra các cơ cấu trợ lực mở nắp của thiết bị và các dụng cụ để đóng mở chúng.
7. Kiểm tra vị trí kẹp chì, biển ghi địa chỉ đóng điện, trị số dòng điện tác động rơle của bảo vệ dòng cực đại, dòng định mức của dây chảy cầu chì.
8. Dùng thước căn lá có chiều dày 0,1mm kiểm tra khe hở mặt phẳng mặt tiếp giáp trong và ngoài của vỏ thiết bị khi các bulông xiết chặt bình thường.
Đo ít nhất 4 điểm đều trên chu vi của mặt phẳng tiếp xúc. Tiếp xúc được đánh giá là đạt tiêu chuẩn nếu căn lá không lọt vào trong khe hở.
9. Đối với thiết bị có chứa cát thạch anh: Kiểm tra chiều cao của lớp cát thạch anh bằng cách quan sát qua lỗ kính kiểm tra. Chiều cao tối thiểu của cát thạch anh phải ở mép trên của lỗ quan sát. Nếu lớp cát thạch anh không đủ chiều cao, phải bổ sung cho đủ.
Chỉ cho thiết bị vận hành khi chiều cao lớp cát thạch anh đủ chiều cao quy định.
|
|||
|
|||
a - Kiểu phẳng; b - Kiểu bậc; c – Kiểu dích dắc (nhiều bậc)
Hình PIV.H27. Phương pháp kiểm tra chiều rộng khe hở của vị trí nối mặt bích
Công việc kiểm tra từng quý do thợ cơ điện của công trường tiến hành dưới sự giám sát của Phụ trách cơ điện công trường hoặc người được uỷ quyền do Giám đốc điều hành mỏ quyết định.
Kiểm tra từng quý, khi cần thiết phải mở nắp vỏ, hộp đầu vào để kiểm tra, sửa chữa. Việc mở nắp thiết bị để kiểm tra, sửa chữa phải tuân theo các biện pháp quy định tại “Quy định về an toàn khi tiến hành công việc ở các thiết bị điện trong hầm lò”. Khi kiểm tra hàng quý phải tiến hành các công việc của kiểm tra, sửa chữa hàng ngày và hàng tuần.
Trình tự tiến hành công việc kiểm tra hàng quý:
1. Các thiết bị được kiểm tra phải cắt điện khỏi mạng, khoá lại bằng khoá tại cầu dao trước nó gần nhất và treo biển: “Cấm đóng điện - có người làm việc”;
2. Đo kiểm tra hàm lượng khí Mêtan và lưu lượng gió tại vị trí đặt thiết bị và xung quanh nó. Báo cáo cấp trên có thẩm quyền về hàm lượng khí Mêtan và lưu lượng gió. Nếu được phép tiếp tục công việc và cho phép mở nắp thiết bị điện thì tiến hành các bước tiếp theo;
3. Kiểm tra tình trạng, dấu hiệu ghi cấp phòng nổ của thiết bị gắn ở vỏ thiết bị; Kiểm tra vòng bảo vệ đầu các bulông đai ốc.
Đối với các thiết bị đang vận hành không có dấu hiệu ghi cấp phòng nổ hoặc hỏng một trong các vòng bảo vệ êcu, bulông bắt giữ thì chỉ cho thiết bị làm việc trong thời gian ngắn với điều kiện là các phần an toàn nổ khác của thiết bị không bị hư hỏng. Chỉ được thực hiện công việc trên khi có sự đồng ý của Phó giám đốc cơ điện mỏ và phải ghi tình trạng thiết bị, thời hạn khắc phục vào "Sổ chi tiết tình trạng thiết bị điện và tiếp đất";
4. Khi thiết bị đã được mở nắp, Phải thực hiện:
a) Kiểm tra phần mang điện đã được cắt điện. Tháo nắp làm sạch mặt trong của vỏ chụp an toàn nổ và các phần điện lắp trong nó (làm sạch bụi, làm khô nếu bị ẩm);
b) Tháo nắp đầu vào hộp đấu cáp của động cơ. Nếu là động cơ dây cuốn phải tháo thêm nắp của vành tiếp xúc, chổi than;
c) Mở nắp kiểm tra, bổ sung cát thạch anh bị thiếu cho thiết bị (nếu thiết bị được bảo vệ bằng cát thạch anh). Khi mức cát thạch anh còn đủ, không phải bổ sung thì công việc kiểm tra được tiến hành qua lỗ kính kiểm tra.
5. Kiểm tra bề mặt tiếp giáp của mối ghép mặt vỏ chống nổ, làm sạch han gỉ, dầu mỡ, bụi. Quan sát kỹ tình trạng bề mặt và mép của các mối ghép.
Cấm vận hành thiết bị điện có vỏ chống nổ bị mòn, biến dạng, xây xát, sứt mẻ và các hư hỏng khác quy định trong các Tiêu chuẩn Việt Nam.
Để bảo vệ các mặt tiếp giáp của mối ghép vỏ chống nổ của thiết bị khỏi bị han gỉ, bụi, ẩm, mốc phải bôi lên bề mặt mối ghép chống nổ một lớp mỡ mỏng chống gỉ (mỡ không có axít và các chất ăn mòn).
Bôi mỡ theo trình tự sau:
- Dùng khăn sạch lau lớp mỡ cũ;
- Làm sạch các vết han gỉ bề mặt tiếp giáp mối ghép vỏ chống nổ của thiết bị bằng giấy nhám sau đó dùng khăn khô lau sạch;
- Kiểm tra bề mặt tiếp giáp mối ghép vỏ chống nổ: Không có vết dầu mỡ, han gỉ, không bám các sợi giẻ lau và các dạng bẩn khác;
- Dùng chổi sơn quét một lớp mỡ mỏng đều trên mặt tiếp giáp của mối ghép chống nổ;
- Dùng khăn lau sạch hết mỡ thừa ở các mặt ngoài và mặt trong của thiết bị điện sao cho mỡ chỉ có trên bề mặt tiếp giáp mối ghép vỏ chống nổ.
6. Nếu trong cấu trúc vỏ chống nổ có các gioăng bằng chất mềm thì cần phải kiểm tra xem các gioăng đó có hay không, trạng thái của chúng ra sao, có bị nhàu, đứt không; nếu có các hư hỏng phải thay gioăng mới. Nếu thiết bị đổ đầy cát thạch anh, việc kiểm tra cũng tiến hành tương tự như trên.
|
|
Hình PIV.H28 Bố trí các chi tiết làm kín trước lúc xiết chặt bulông, đai ốc. 1. Vòng gioăng; 2. Cáp điện; 3. Thanh kẹp. 4. Mặt bích bít kín. 5. Vỏ thiết bị;
|
D2 ¸ d £ 2mm.
D1 ¸ D2 £ 1mm khi đường kính ngoài của gioăng dưới 20mm;
D1 ¸ D2 £ 2mm khi đường kính ngoài của gioăng từ 20 ¸ 60 mm;
D1 ¸ D2 £ 3mm khi đường kính ngoài của gioăng lớn hơn 60mm;
7. Mở tất cả các mặt bích bịt kín, đai ốc ở phễu cáp vào đang sử dụng và chưa sử dụng; kiểm tra sự kín khít giữa cổ cáp và phễu cáp của thiết bị.
Kiểm tra kích thước của gioăng cao su có phù hợp với đường kính của các cáp, và kích thước gioăng có phù hợp với đường kính của phễu cáp không.
Để đảm bảo kín phải sử dụng các vòng gioăng có kích thước ghi trong Hình IV.VI.3.
Cấm bịt kín khe hở giữa cổ cáp và phễu cáp bằng băng, cao su dán, vỏ cáp mềm...
Gioăng cao su phải đảm bảo không bị nứt, đàn hồi tốt. Ở phễu cáp có đổ bitum cách điện. Phải kiểm tra khả năng cách điện của bitum. Nếu có vết nứt ở khối bitum khi đông cứng hoặc thấy các hư hỏng khác phải đổ lại bitum cách điện đó;
8. Kiểm tra mức độ kẹp chặt các lõi cáp vào các cọc đấu. Không cho phép đấu các lõi cáp mà không có vòng đệm vênh bằng đồng thau (hoặc vòng đệm vênh tương ứng).
Khi phát hiện thấy nứt hoặc hư hỏng khác ở các ống cách điện của các cực đấu nối phải thay ngay ống cách điện cực đấu nối đó;
9. Kiểm tra trạng thái đi dây phía trong: Vặn chặt lại các đai ốc và bulông xiết chặt ở các cọc đấu dây: Kiểm tra trạng thái cách điện của các dây nối, bọc lại hoặc thay các dây hỏng cách điện.
10. Kiểm tra sự hoàn hảo cơ cấu khoá liên động đóng mở nắp vỏ thiết bị với cầu dao đóng cắt điện.
11. Trường hợp bảng điện không phải tháo (ví dụ khi cầu dao được lắp đặt ở khoang riêng), việc đo khe hở giữa tiếp điểm động và tiếp điểm tĩnh được tiến hành khi cầu dao ở vị trí "cắt". Cho phép cầu dao tiếp tục làm việc nếu khe hở đó không nhỏ hơn trị số ghi trong quy trình vận hành thiết bị đó.
12. Tiến hành kiểm tra rơle bảo vệ dòng điện cực đại với mục đích phát hiện các chi tiết hư hỏng của rơle, chi tiết truyền động, vị trí kẹp chì.
Kiểm tra trạng thái các dây chảy cầu chì và trị số dòng điện tác động rơle bảo vệ dòng điện cực đại theo tính toán.
Trên bảng điều khiển, bảo vệ của máy xúc than và máy xúc đất đá, phải kiểm tra kẹp chì các chi tiết phải kẹp chì, ghi ngày tháng kiểm định.
13. Lỗ kính kiểm tra phải có đầy đủ các vít, đai ốc xiết chặt. Nếu kính được lắp trên khung giá bằng keo dán thì phải kiểm tra sự gắn chặt nó vào khung.
Nếu gioăng hỏng phải tháo khung thay các phần bị hỏng hoặc thay cả khung có gắn kính trên đó.
14. Các mối ghép bằng ren phải vặn tới vòng ren cuối cùng, phải có ít nhất 5 vòng ren nếu là mối ghép kim loại, 7 vòng ren nếu là mối ghép nhựa. Mối ghép ren phải có chi tiết khoá ngăn chặn sự tự nới lỏng.
15. Nếu phía trong vỏ an toàn nổ của vỏ thiết bị có trang bị bộ bảo vệ quá tải thì phải xem xét mức độ bắt chặt, tình trạng kỹ thuật và thay thế chi tiết hỏng.
16. Khi kiểm tra phát hiện các thiếu sót, hỏng hóc mà không thể khắc phục thì phải thay thế chi tiết mới, cụm mới ...
17. Sau khi thiết bị được lắp trở lại, phải kiểm tra trị số khe hở mối ghép theo Khoản 8 trên đây.
18. Các kết quả kiểm tra hàng quý phải ghi vào sổ theo dõi "Sổ ghi tình trạng thiết bị điện và tiếp đất".
19. Kiểm tra, tháo lắp các khoan điện cầm tay được tiến hành ở Phân xưởng cơ điện mỏ 1 lần trong tháng. Sau khi xem xét lắp ráp lại phải kẹp chì (đổ keo) các mặt bích và các đai ốc đã bắt chặt.
Ít nhất 1 lần trong 3 tháng phải cắt bỏ 0,5m cáp phần nối vào búa khoan, đấu trở lại, không phụ thuộc vào trạng thái cáp.
Sau khi xem xét các khoan điện cầm tay, phải tiến hành cặp chì (hoặc đổ keo) các đai ốc xiết chặt ở các mặt bích và nắp của công tắc đóng điện.
Các thiết bị điện phòng nổ (xem bảng danh mục dưới) dùng trong mỏ hầm lò có khí và bụi nổ phải được kiểm định tính năng phòng nổ theo quy định: Trước khi xuất xưởng, sau khi sửa chữa lớn và trước khi đưa vào sử dụng. Thời hạn kiểm định các thiết bị điện đang sử dụng theo quy định của nhà máy chế tạo, nhưng không quá 3 năm giữa 2 kỳ kiểm định; Nội dung kiểm định theo TCVN 7079 -17:2003 “Thiết bị điện dùng trong mỏ hầm lò - Phần 17: Kiểm tra vf bảo dưỡng thiết bị”
Danh mục các thiết bị điện phòng nổ sử dụng trong hầm lò phải kiểm định tính phòng nổ
|
TT |
Tên thiết bị |
Ghi chú |
|
1 |
2 |
3 |
|
1 |
Động cơ các loại |
Sử dụng trong hầm lò có khí và bụi nổ |
|
2 |
Máy biến áp các loại 6/0,4kV; 6/0,69kV; 6/1,14 kV; 380/127 V; 380/36, 24, 18, 12 V |
Sử dụng trong hầm lò có khí và bụi nổ |
|
3 |
Thiết bị phân phối |
Sử dụng trong hầm lò có khí và bụi nổ |
|
4 |
Thiết bị khởi động, điều khiển và bảo vệ |
Sử dụng trong hầm lò có khí và bụi nổ |
|
5 |
Thiết bị đo lường và tự động hoá |
Sử dụng trong hầm lò có khí và bụi nổ |
|
6 |
Máy bắn mìn |
Sử dụng trong hầm lò có khí và bụi nổ |
|
7 |
Thiết bị tín hiệu, thiết bị thông tin |
Sử dụng trong hầm lò có khí và bụi nổ |
|
8 |
Đèn chiếu sáng cá nhân và đèn dùng điện lưới. |
Sử dụng trong hầm lò có khí và bụi nổ |
|
9 |
Thiết bị vận tải mỏ |
Sử dụng trong hầm lò có khí và bụi nổ (Trừ tàu điện cần vẹt) |
|
10 |
Các máy điện và thiết bị điện cầm tay |
Sử dụng trong hầm lò có khí và bụi nổ |
|
11 |
Cáp điện |
Sử dụng trong hầm lò có khí và bụi nổ |
|
12 |
Thiết bị thuỷ lực |
Sử dụng trong hầm lò có khí và bụi nổ |
|
13 |
Thiết bị trục tải mỏ |
Dùng trong mỏ |
Theo Điều 106 Quy chuẩn này
1. Hướng dẫn quy định trình tự và yêu cầu an toàn khi tiến hành các công việc lắp đặt, hiệu chỉnh, thử nghiệm, sửa chữa, kiểm tra, tháo dỡ các thiết bị và công trình điện trong các các hầm lò than và diệp thạch.
Ngoài nội dung hướng dẫn này khi tiến hành công việc về thiết bị điện phải thực hiện theo quy định tại Điều 93 Quy chuẩn này và các quy định hiện hành của Nhà nước.
2. Theo các điều kiện an toàn điện, các thiết bị điện hầm lò được chia ra: Các thiết bị có điện áp từ 1140V trở xuống và các thiết bị có điện áp trên mức 1140V.
3. Các công việc liên quan tới thiết bị điện phải tiến hành theo phiếu công tác, lệnh công tác phù hợp với tài liệu kỹ thuật và an toàn. Công việc chỉ được thực hiện sau khi đã cắt điện. Có thể tiến hành một số công việc đặc biệt khi không cắt điện với điều kiện: Có biện pháp kỹ thuật, công nghệ và an toàn cho các công việc này đã được cấp có thẩm quyền phê duyệt; người chỉ huy trực tiếp và thực hiện công việc đã được huấn luyện và thực hiện thành thạo, đã được Giám đốc mỏ quyết định cho phép làm các công việc này bằng văn bản.
4. Chỉ những người có nghề cơ điện mỏ và đã qua huấn luyện đạt kiến thức về kỹ thuật an toàn được quy định tại Bảng IV.VII.1 của Phụ lục này mới được làm các công việc liên quan tới thiết bị điện hầm lò.
1. Trước khi bắt đầu công việc và sau khi đã cắt điện phải
a) Áp dụng các biện pháp để tránh có điện trở lại vị trí làm việc do nhầm lẫn, sai sót hoặc thiết bị cắt mạch tự đóng trở lại;
b) Treo biển "cấm đóng điện - có người làm việc" ở tay truyền động của máy cắt mạch có thể đóng điện cho khu vực làm việc. Lập rào chắn khi cần thiết;
c) Kiểm tra bằng bút thử điện về sự không có điện trên các phần mang điện đã được cắt điện;
d) Đấu dây tiếp đất di động cho các phần đã được cắt điện kể cả cáp điện điện áp quá 1140V. Nếu công việc được tiến hành ở đường cáp sơ đồ cung cấp điện mạch vòng thì đường cáp phải được tiếp đất ở hai phía.
2. Việc cắt điện phải thực hiện sao cho phần đã cắt điện dành cho công việc phải được tách ra, cách ly khỏi các phần đang có điện về mọi phía. Khi đó về mỗi phía phải cắt điện bằng cầu dao hoặc kéo phần má động của tủ phân phối trọn bộ ra nhằm cắt hoàn toàn các phần nối điện, thiết bị điện với thanh cái... Đối với các thiết bị điện điện áp đến 1140V, cắt điện thực hiện bằng máy cắt tự động có bộ truyền động bằng tay.
3. Để ngăn ngừa đóng nhầm các thiết bị đã cắt điện vào mạch đang có điện, tay truyền động đóng cắt điện các thiết bị trên phải đặt và hãm chặt ở vị trí "Cắt điện" bằng các khoá hoặc chốt hãm. Các chìa khoá hoặc cờ lê mở khoá hoặc chốt hãm phải do người chỉ huy công việc giữ.
4. Việc kiểm tra không có điện áp phải được tiến hành bằng dụng cụ đo điện ở điện áp dưới 660V, giữa các pha và giữa mỗi pha với đất, còn ở các thiết bị điện áp 1140V và cao hơn phải kiểm tra điện áp từng pha đối với đất. Khi đo phải đeo găng cách điện.
5. Để tiếp đất cho các phần mang điện phải sử dụng các dây tiếp đất di động chuyên dụng có các đầu kẹp và chi tiết để đấu nối với thiết bị điện. Cho phép sử dụng dây tiếp đất di động cho từng pha.
Đặt tiếp đất di động có thể tiến hành nhờ sào có tay cầm cách điện đảm bảo điện áp tới 10kV.
6. Phải cắt điện và tiếp đất bằng cách nối vào đường ray cả hai phía phần dây của mạng điện tàu điện mà trên đó sẽ tiến hành công việc. Tại cầu dao cắt phân đoạn phải treo biển: "Cấm đóng điện - có người làm việc".
Phải cắt điện dây tiếp xúc của tàu điện trong lò nếu ở trong lò đó có tiến hành các công việc như: Lắp đặt thiết bị cũng như khi vận chuyển vật liệu có kích thước dài; thay và sửa chữa các dây tiếp xúc bị đứt, các dây treo; thay và treo bộ cảm biến và dây của nó; đo điện trở cách điện của dây tiếp xúc; đặt và kéo dây tiếp xúc; thay các đường ray; đặt cáp và sửa chữa đèn chiếu sáng. Khi đóng cắt cầu dao phân đoạn của mạng điện lưới tiếp xúc phải sử dụng găng tay cách điện.
7. Công việc kiểm tra sửa chữa tàu điện chỉ được tiến hành khi đã hạ cần tiếp điện khỏi dây tiếp xúc và khoá chặt, cắt và khoá cầu dao tự động. Phải đeo găng tay cách điện khi thay các bộ phận của cần tiếp điện.
1. Để đảm bảo an toàn khi tiến hành công việc có liên quan tới thiết bị điện hầm lò phải áp dụng các biện pháp tổ chức sau đây
a) Lập phiếu công tác hoặc lệnh công tác;
b) Tiến hành công việc;
c) Giám sát công việc;
d) Lập phiếu dừng, chuyển vị trí công tác, kết thúc công tác.
2. Phiếu công tác là bản ghi nội dung thứ tự tiến hành công việc và các biện pháp đảm bảo an toàn trên một phiếu đã in sẵn theo quy định.
3. Những quy định chính của phiếu công tác
a) Phải cắt điện khi tiến hành lắp đặt, hiệu chỉnh, thử nghiệm, sửa chữa, kiểm tra và tháo rỡ thiết bị điện điện áp 1140V và cao hơn (trừ các công việc tiến hành ở thiết bị điện điện áp đến 1140V theo quy định của hướng dẫn vận hành;
b) Một số công việc tiến hành ở thiết bị điện mà có thể không cần cắt điện thiết bị đó
- Kiểm tra pha của máy biến áp;
- Hiệu chỉnh dòng tác động của bảo vệ cực đại bằng dụng cụ;
- Hiệu chỉnh tín hiệu bảo vệ, điều khiển, tự động;
- Các công việc tiến hành theo phiếu công tác phải do ít nhất 2 người trở lên thực hiện.
4. Lệnh công tác là lệnh ghi trong sổ nhật lệnh sản xuất có các nội dung công việc phải thực hiện. Người viết lệnh là Phó Giám đốc cơ điện mỏ hoặc Phó Quản đốc cơ điện khu vực hoặc người được Phó Giám đốc cơ điện mỏ uỷ quyền.
5. Những nội dung chính của lệnh công tác bao gồm
a) Các công việc phát sinh ngoài kế hoạch dự kiến, kéo dài không quá một ca khi sửa chữa thiết bị điện có cắt điện ở mạng có điện áp đến 1140V. Các công việc trên không ghi trong liệt kê hướng dẫn vận hành;
b) Các trường hợp đặc biệt (sự cố) cần nhanh chóng không trì hoãn khoanh vùng khắc phục các sự cố có liên quan tới tình trạng đường lò, mạng điện, thiết bị điện, ngăn chặn nguy cơ cháy nổ, thông gió đình trệ, ngập nước nguy hiểm cho con người và thiệt hại lớn về kinh tế.
Thực hiện công việc theo lệnh công tác phải do ít nhất 2 người thực hiện. Trong một số trường hợp cá biệt khi có sự đồng ý của người ra lệnh có thể do một người tiến hành công việc.
6. Các công việc hàng ngày liên quan tới thiết bị điện có điện áp đến 1140V phải được ghi trong sổ nhật lệnh công việc của công trường có kèm theo các biện pháp kỹ thuật an toàn. Tuỳ thuộc vào tình hình thực tế, Phó Giám đốc cơ điện mỏ hoặc người được uỷ quyền có thể bổ sung các công việc cần làm trong ngày - công việc bổ sung này trước khi thực hiện cần có ý kiến trao đổi với người giám sát kỹ thuật an toàn khu vực.
7. Người có quyền đưa ra và rút lại lệnh công tác đối với mạng điện trên 1140V là kỹ sư chuyên ngành về điện đã được giao trách nhiệm làm việc đó, phải có trình độ an toàn điện tương đương bậc V kỹ thuật điện hoặc trình độ chuyên môn tương đương theo quy định hiện hành. Đối với các công việc liên quan tới mạng điện có điện áp đến 1140V phải có trình độ an toàn điện tương đương bậc IV kỹ thuật điện hoặc trình độ chuyên môn theo quy định hiện hành.
8. Người nhận lệnh công tác để kiểm tra, sửa chữa mạng điện, thiết bị điện điện áp trên 1140 V phải có trình độ an toàn điện không thấp hơn bậc IV kỹ thuật điện, nếu công việc tiến hành đối với mạng điện có điện áp đến 1140V phải đạt trình độ an toàn điện không thấp hơn bậc III kỹ thuật điện hoặc trình độ chuyên môn tương đương theo quy định hiện hành. Khi công việc do một đội tiến hành, phải cử một người trong số đó để nhận lệnh.
9. Người chỉ huy công việc phải được ghi rõ trong phiếu công tác. Không nhất thiết phải cử chỉ huy công việc khi tiến hành công việc ở các mạng điện và thiết bị điện điện áp đến 1140V, trừ các công việc ghi ở khoản 3 mục này. Người chỉ huy công việc phải có trình độ an toàn điện tương đương bậc V kỹ thuật điện hoặc trình độ chuyên môn theo quy định hiện hành.
10. Người thực hiện công việc ở mạng điện, thiết bị điện trên 1140V phải có trình độ an toàn tương đương bậc IV kỹ thuật điện, ở các mạng điện và thiết bị điện điện áp đến 1140V phải có trình độ an toàn điện tương đương bậc III kỹ thuật điện. Khi tiến hành các công việc nêu trong khoản 3 mục này lần lượt phải đạt trình độ an toàn điện tương đương bậc IV và bậc V kỹ thuật điện hoặc trình độ chuyên môn theo quy định hiện hành.
Danh sách những người có thể cử làm lãnh đạo, chỉ huy công việc theo phiếu và lệnh công tác phải được Giám đốc điều hành mỏ quyết định bằng văn bản. Bản danh sách này cần hạn chế sự thay đổi.
11. Người giám sát an toàn được chỉ định là người có trình độ an toàn điện tương đương bậc IV kỹ thuật điện hoặc trình độ chuyên môn theo quy định hiện hành. Người này có nhiệm vụ theo dõi, cảnh giới sự làm việc của những người khác không có chuyên môn về điện khi họ thực hiện các công việc ở khu vực có mạng điện và thiết bị điện cũng như trong lò có dây tiếp xúc của tàu điện cần vẹt, nơi mà các công việc nguy hiểm có thể làm hỏng thiết bị điện, mạng điện.
12. Cho phép một người được kiêm nhiệm các công việc sau:
a) Viết phiếu công tác, lệnh công tác và lãnh đạo công việc;
b) Viết phiếu công tác, lệnh công tác và chỉ huy công việc;
c) Người lãnh đạo công việc và chỉ huy công việc;
d) Người lãnh đạo công việc và người cho phép;
e) Người cho phép và thành viên của đội công tác;
g) Người cho phép và chỉ huy công việc (đối với thiết bị điện, mạng điện điện áp đến 1140V).
Người nêu ở khoản 12 này phải có bậc thợ cao nhất trong nhóm khi tiến hành công việc.
13. Phiếu công tác phải đưa trực tiếp cho đội công tác trước khi tới vị trí làm việc hoặc trước khi bắt đầu công việc chuẩn bị ở vị trí làm việc.
Phiếu công tác phải được viết thành 2 bản: Một bản do những người thực hiện công việc giữ, một bản được lưu ở Phòng Cơ điện mỏ.
Phiếu công tác có thể chỉ viết một bản với điều kiện là nội dung và biện pháp an toàn của công việc phải ghi vào "Sổ nhật lệnh sản xuất". Trong bất kể trường hợp nào phiếu công tác phải được giao trực tiếp cho người thực hiện công việc.
Thời hạn có giá trị của phiếu công tác là một ngày - đêm. Cho phép gia hạn phiếu công tác từng ngày một song toàn bộ thời gian không quá năm ngày - đêm. Việc kéo dài thời hạn do người viết phiếu công tác (hoặc người được uỷ nhiệm) quyết định.
Phải ghi vào sổ nhật lệnh của công trường: Ngày, tháng, thời hạn phát phiếu và thời hạn hết giá trị của phiếu công tác; địa điểm làm việc, số phiếu, tên người thực hiện công việc (hoặc người giám sát) và người viết phiếu.
14. Có thể ra lệnh bằng miệng ngắn gọn, rõ ràng trực tiếp hoặc qua các phương tiện liên lạc với người thực hiện công việc sau khi đã ghi nội dung của lệnh vào sổ nhật lệnh của công trường.
Sổ công tác điều hành sản xuất phải đặt tại Bộ phận điều hành và chỉ huy sản xuất mỏ, (công trường, phân xưởng, phòng) nơi có người được quyền ra lệnh.
Trong sổ công tác điều hành sản xuất của phòng Bộ phận điều hành và chỉ huy sản xuất mỏ, có ghi các lệnh đưa ra trong 1 ca (khi không có người ra lệnh ở các công trường, phân xưởng, phòng ban). Các lệnh này phải được đưa ra vào đầu mỗi ca trước khi người vào mỏ làm việc và phải được ghi vào sổ nhận lệnh của công trường, xưởng hoặc phòng ban.
15. Sau khi hoàn thành công việc, người thực hiện công việc phải kiểm tra tình trạng tiếp đất của thiết bị điện, đưa mọi người ra khỏi vị trí làm việc, tháo dỡ rào chắn tạm thời, cất biển treo, tháo dỡ tiếp đất di động khi làm việc, kiểm tra bảo vệ an toàn nổ và kẹp chì thiết bị điện.
16. Kết thúc công việc, người thực hiện công việc, người giám sát kiểm tra, người chỉ huy công việc phải ký vào phiếu.
Người tiến hành công việc phải trả phiếu công tác cho người viết phiếu, có thể trả chậm sau một ngày. Người viết phiếu phải nhận và ký xác nhận sau khi đã kiểm tra theo các quy định đã đề ra.
17. Sau khi lập thủ tục kết thúc công việc và kiểm tra các phương tiện bảo vệ dòng cực đại, bảo vệ điện dò, các thiết bị kiểm tra gió, khí Mêtan có sự chứng kiến của người viết phiếu, kết luận rằng không còn có sai sót gì nữa, có lệnh của Phó Giám đốc cơ điện mỏ hoặc người được uỷ quyền (hoặc Phó Quản đốc cơ điện công trường) thì người thực hiện công việc mới được đóng điện trở lại.
1. Phải kiểm tra hàm lượng khí Mêtan bằng thiết bị cầm tay tại các vị trí sẽ thực hiện công việc ở lò có khí Mêtan. Ở mỏ xếp loại II theo khí Mêtan cũng như tất cả các lò của mỏ xếp loại III và cao hơn theo khí Mêtan phải kiểm tra hàm lượng khí Mêtan bằng dụng cụ tự động cầm tay.
2. Kiểm tra hàm lượng khí Mêtan phải thực hiện trước khi mở vỏ thiết bị điện, trước lúc đặt tiếp đất, trước khi đóng điện và trong suốt thời gian thực hiện công việc.
Định kỳ phải kiểm tra hàm lượng khí Mêtan bằng các thiết bị cầm tay theo quy định của Quy chuẩn này.
Kiểm tra hàm lượng khí Mêtan không nhất thiết phải thực hiện đối với các lò vận tải bằng tàu điện cần vẹt.
3. Trong các hầm lò có khí Mêtan, việc mở vỏ thiết bị điện để thực hiện công việc hàng ngày phải được sự đồng ý và chứng kiến của Phó quản đốc cơ điện công trường. Khi tiến hành các công việc trên trong các lò cụt có thông gió cục bộ ở các mỏ có khí Mêtan, Phó quản đốc cơ điện công trường phải báo cáo với phòng Chỉ huy sản xuất mỏ. Trước khi mở vỏ phải áp dụng các biện pháp an toàn. Sau khi kết thúc công việc phải báo cáo kết quả công việc với phòng Chỉ huy sản xuất mỏ. Trực chỉ huy sản xuất mỏ phải ghi chép các việc trên vào sổ công tác chỉ huy sản xuất mỏ.
4. Chỉ cho phép bắt đầu công việc khi hàm lượng khí Mêtan ở vị trí làm việc không vượt quá tiêu chuẩn quy định tại Điều 51 Quy chuẩn này.
Khi hàm lượng khí Mêtan vượt quá các tiểu chuẩn, tất cả các công việc đang thực hiện phải ngừng ngay, phải đậy nắp vỏ thiết bị điện. Các sơ đồ thử nghiệm phải cắt khỏi mạng điện. Báo cáo ngay cho Quản đốc công trường và Chỉ huy sản xuất mỏ về sự thoát khí, các biện pháp đã áp dụng. Khi hàm lượng khí Mêtan giảm dưới tiêu chuẩn cho phép, phải có lệnh của Quản đốc công trường hoặc Chỉ huy sản xuất mỏ mới được tiếp tục công việc trở lại.
5. Phải cắt điện các thiết bị cung cấp điện cho lò cụt có hàm lượng khí Mêtan vượt quá tiêu chuẩn cho phép và đang áp dụng các biện pháp làm giảm hàm lượng khí Mêtan. Tại vị trí cầu dao phải treo biển "Cấm đóng điện - lò có khí CH4 nguy hiểm ".
Phụ lục IV.1
NỘI DUNG HUẤN LUYỆN AN TOÀN ĐIỆN VÀ PHÒNG CHỐNG CHÁY NỔ MỎ TRONG CÔNG TÁC CƠ ĐIỆN - VẬN TẢI
1. Nội dung huấn luyện an toàn điện và phòng chống cháy nổ mỏ trong công tác cơ điện - vận tải mỏ được áp dụng cho các đối tượng sau:
a) Người thực hiện các công việc về lắp đặt, thử nghiệm, sửa chữa, kiểm tra, tháo dỡ, phục vụ, quản lý thiết bị điện, mạng điện;
b) Người vận hành, phục vụ các máy móc công cụ có sử dụng năng lượng điện và dụng cụ điện cầm tay;
c) Kỹ sư, kỹ thuật viên, an toàn viên tiến hành các công việc có liên quan tới thiết bị điện, mạng điện.
2. Người sẽ được cấp giấy chứng nhận an toàn điện và phòng chống cháy nổ mỏ trong công tác cơ điện - vận tải mỏ phải học tập và kiểm tra đạt kết quả tốt những nội dung cơ bản sau đây:
2.1. Kỹ thuật điện;
2.2. Kỹ thuật an toàn điện;
2.3. Tập tiêu chuẩn Việt Nam TCVN: 7079 về thiết bị điện phòng nổ;
2.4. Các quy định của Quy chuẩn kỹ thuật an toàn này:
a) Quy định về an toàn khi ra vào lò;
b) Tiêu chuẩn an toàn cho phép của bầu không khí mỏ;
c) Các dấu hiệu, ký hiệu quy định các đường lò không được vào;
d) Hiểu biết về sự nguy hiểm của khí độc và khí cháy nổ trong bầu không khí mỏ;
e) Quy định về thông gió, đo khí;
g) Các nguyên nhân cháy nổ mỏ và các biện pháp đề phòng;
h) Giới hạn hàm lượng khí cháy nổ, bụi cháy nổ cho phép và không cho phép thực hiện vận hành, kiểm tra, bảo dưỡng, sửa chữa thiết bị điện tại các vị trí trong hầm lò;
i) Tổ chức và thực hiện an toàn các công việc trong công tác cơ điện - vận tải mỏ;
k) Quy trình, nội quy an toàn để thực hiện công việc cơ điện - vận tải mỏ;
l) Kiểm tra về an toàn phòng nổ của thiết bị điện, cáp điện;
2.5. Sử dụng phương tiện, dụng cụ đo khí, cấp cứu.
2.6. Sử dụng bảo hộ lao động và trang bị, phương tiện kỹ thuật an toàn điện;
2.7. Cứu chữa nạn nhân khi bị điện giật;
2.8. Nội dung bài kiểm tra, sát hạch về kỹ thuật an toàn điện định kỳ đối với các bậc thợ xem bảng PIV.B1:
a) Cán bộ kỹ thuật cơ điện, vận tải, Quản đốc phân xưởng cơ điện lò, Phó quản đốc cơ điện, vận tải lò phải đạt trình độ về an toàn điện thấp nhất tương đương bậc V kỹ thuật điện;
b) Cán bộ kỹ thuật, chánh phó quản đốc không phải chuyên môn ngành cơ điện mỏ hầm lò phải đạt trình độ an toàn điện tương đương bậc III kỹ thuật điện;
c) Giám sát viên an toàn chuyên nhành cơ điện, vận tải phải đạt trình độ an toàn điện tương đương bậc IV kỹ thuật điện;
d) Giám sát viên an toàn không phải chuyên môn ngành cơ điện, vận tải mỏ phải đạt trình độ an toàn điện tương đương bậc III kỹ thuật điện;
3. Kiểm tra trình độ kỹ thuật an toàn điện và phòng chống cháy nỏ mỏ trong công tác cơ điện vận tải mỏ để xét nâng bậc, nâng lương do Hội đồng kỹ thuật chuyên môn (có thành phần không dưới 3 người) được thành lập Quyết định của giám đốc điều hành mỏ sát hạch;
4. Đối với Phó Giám đốc cơ điện mỏ; Trưởng, Phó phòng cơ điện mỏ, Quản đốc, Phó Quản đốc phân xưởng; Phó Giám đốc, Trưởng phòng kỹ thuật các nhà máy cơ khí mỏ, nhà máy sửa chữa thiết bị mỏ; Giám đốc, Phó Giám đốc các Trung tâm hiệu chỉnh, thí nghiệm điện mỏ phải được Hội đồng của cơ quan quản lý mỏ có thẩm quyền sát hạch.
5 Đối với kỹ sư, kỹ thuật viên, công nhân nghề điện làm các công việc có liên quan tới mạng điện, thiết bị điện; các kỹ sư, kỹ thuật viên không phải nghề điện làm việc ở mỏ phải học tập và sát hạch bởi Hội đồng kỹ thuật chuyên môn do Phó Giám đốc cơ điện mỏ đứng đầu.
6. Chứng chỉ an toàn điện và phòng chống cháy nổ mỏ trong công tác cơ điện vận tải mỏ do người được cấp giữ hoặc người điều hành công việc giữ. Cho phép giữ, bảo quản chứng chỉ trên mặt bằng mỏ.
Bảng PIV.B1
Kiến thức về an toàn điện cần phải có đối với các bậc thợ, kỹ thuật viên cơ điện, Quản đốc, Phó quản đốc cơ điện, vận tải
|
Bậc I |
Bậc II |
Bậc III, bậc IV |
Bậc V |
Bậc VI, bậc VII |
|
Có khái niệm cơ bản về nguy hiểm điện và cháy nổ mỏ và các biện pháp an toàn khi làm việc ở các thiết bị điện, mạng điện hầm lò cũng như công tác phòng chống cháy nổ mỏ. Có làm quen với các biện pháp cấp cứu trước khi có y, bác sĩ |
Có khái niệm cơ bản về thiết bị điện mạng điện hầm lò và phòng chống cháy nổ mỏ trong công tác cơ điện vận tải mỏ. Biết các biện pháp cơ bản về an toàn khi làm việc với các thiết bị điện, mạng điện hầm lò. |
Hiểu biết cơ bản về kỹ thuật điện hầm lò và phòng chống cháy nổ mỏ trong công tác cơ điện vận tải mỏ. Có thể tiến hành giám sát những người làm việc có liên quan tới các thiết bị điện, mạng điện hầm lò. |
Nắm vững về kỹ thuật điện hầm lò và phòng chống cháy nổ mỏ trong công tác cơ điện vận tải mỏ. Có thể tiến hành giám sát những người làm việc có liên quan tới các thiết bị điện, mạng điện hầm lò. |
Ngoài yêu cầu của Bậc V phải có hiểu biết cơ bản về các quy định khác tại Quy chuẩn này. Có khả năng hướng dẫn người lao động khác về an toàn và cấp cứu. |
|
Hiểu biết kỹ thuật điện mỏ không thấp hơn chương trình trung cấp cơ điện mỏ. Biết rõ cấu tạo thiết bị điện, mạng điện hầm lò, sơ đồ cung cấp điện để có thể cắt điện khi cần thiết và kiểm tra việc thực hiện các biện pháp kỹ thuật an toàn điện. Biết tổ chức công việc và kiểm tra các các công việc để đảm bảo an toàn. |
||||
|
Hiểu, biết máy móc, thiết bị điện phục vụ công trình điện hầm lò. |
||||
|
F Hiểu, biết rõ những nguy hiểm do điện, cháy, nổ môi trường khí Mêtan và bụi than. |
||||
|
F Hiểu và biết áp dụng vào thực tế quy chuẩn kỹ thuật điện, quy chuẩn kỹ thuật an toàn mỏ, quy chuẩn an toàn về điện, sử dụng quy chuẩn này với khối lượng đủ để làm việc - nắm vững chức năng và nhiệm vụ về bảo hộ lao động khi làm việc. F Biết sử dụng các trang bị phương tiện an toàn có trong các thiết bị điện, mạng điện hầm lò, các đồng hồ và thiết bị cầm tay kiểm tra hàm lượng khí Mêtan và các phương tiện chữa cháy. F Biết cấp cứu nạn nhân bị điện giật trước khi có Y, Bác sĩ đến. Biết phương pháp hô hấp nhân tạo và xoa bóp tim. |
||||
Phụ lục IV.2a
PHIẾU CÔNG TÁC
Phiếu số:..........
(Phiếu làm việc an toàn với thiết bị điện mạng cung cấp điện hầm lò)
Phiếu công tác cấp vào Ca…, ngày…, tháng…, năm…
Đơn vị (Công ty, xí nghiệp):…………………………………………..
Công trường (phân xưởng): …………………………………………..
1. Cấp cho:
1.1. Người lãnh đạo công việc (nếu có): .......................Bậc thợ...../7.
1.2. Người chỉ huy trực tiếp: ......................................... Bậc thợ..../7.
1.3. Người giám sát an toàn:…………………………….. Bậc thợ…/7.
1.4. Nhân viên đơn vị công tác gồm:
|
TT |
Họ và tên |
Bậc |
TT |
Họ và tên |
Bậc |
|
1 |
|
/7 |
6 |
|
/7 |
|
2 |
|
/7 |
7 |
|
/7 |
|
3 |
|
/7 |
8 |
|
/7 |
|
4 |
|
/7 |
9 |
|
/7 |
|
5 |
|
/7 |
10 |
|
/7 |
1.5. Địa điểm công tác:............................................................................
.............................................................................................. .................
1.6. Nội dung công tác:...................................................... ....................
…………..................................................................................................
1.7. Thời gian:
- Bắt đầu công việc (theo kế hoạch):....giờ ....phút, ngày.... tháng.... năm.....
- Kết thúc công việc (theo kế hoạch):…giờ ....phút, ngày....tháng...... năm...
1.8. Điều kiện tiến hành công việc (đo kiểm tra hàm lượng khí Mêtan tại vị trí làm việc, ghi rõ cắt điện một phần hay hoàn toàn thiết bị, đường dây, đoạn đường dây, đặt tiếp đất, đặt rào chắn, treo biển báo và các điều kiện an toàn khác):
………………………..………….........................................................................................................................................................................................................
Người cấp phiếu (ký và ghi họ tên):
…………………………………………………………………………………………..
2. Thủ tục cho phép công tác:
2.1. Đã đo kiểm tra hàm lượng khí Mêtan:
- Vị trí đo: ……………………………………………………………………………..
- Hàm lượng khí Mêtan đo được: ………………………………………………….
2.2. Những thiết bị, đường dây, đoạn đường dây đã cắt điện (ghi rõ tên thiết bị, đường dây, vị trí đặt)…………………………………..................................................
………………………………………………………………………............................
2.3. Đã tiếp đất tại các vị trí: …………………………………………………………………...................................
2.4. Đã làm rào chắn và treo biển báo tại: ……………………………………………………….................................................
2.5. Phạm vi được phép làm việc: ……………………………………....................
2.6. Đã thực hiện các điều kiện đặc biệt, cảnh báo, chỉ dẫn cần thiết khác như:
........……..……….................................................................................................
2.7. Kết luận của người cho phép:
- Cho phép đơn vị công tác bắt đầu làm việc từ...giờ...phút, ngày...tháng ...năm...
- Không cho phép đơn vị công tác làm việc từ...giờ...phút, ngày...tháng...năm ...với lý do:
........……..……….................................................................................................
Người cho phép (ký và ghi họ tên): …..………............................................................................................................
3. Tiếp nhận nơi làm việc:
3.1. Đã kiểm tra những biện pháp an toàn tại hiện trường: …..………............................................................................................................
3.2. Đã làm thêm các biện pháp an toàn và tiếp đất tại: …………………………………………………………………………………………..
Bắt đầu tiến hành công việc lúc ...giờ ... phút, ngày ... tháng ... năm ....
Người lãnh đạo công việc (ghi rõ họ tên và ký - nếu có):
……………………………………….....................................................................
Người chỉ huy trực tiếp (ghi rõ họ tên và ký) :
…………………………………………………………………………………………..
Người giám sát an toàn điện (ghi họ tên và ký - nếu có):
………………………………………………………………………………………….
4. Thay đổi nhân viên đơn vị công tác:
|
TT |
Họ, tên |
Bậc |
Thời gian (giờ, ngày, tháng) |
Ký hoặc ghi tên người ra lệnh thay đổi nhân viên |
|
|
Bổ sung |
Rút khỏi |
||||
|
|
|
/7 |
|
|
|
|
|
|
/7 |
|
|
|
5. Cho phép làm việc và kết thúc công tác hàng ngày, di chuyển nơi làm việc:
|
TT |
Địa điểm công tác |
Thời gian (giờ, ngày, tháng) |
Người chỉ huy trực tiếp (ký hoặc ghi tên) |
Người cho phép (ký hoặc ghi tên) |
|
|
Bắt đầu |
Kết thúc |
||||
|
1 |
2 |
3 |
4 |
5 |
6 |
|
|
|
|
|
|
|
|
|
|
|
|
|
|
6. Kết thúc công tác:
6.1. Toàn bộ công tác đã kết thúc, dụng cụ đã thu dọn, người, tiếp đất và biện pháp an toàn do đơn vị công tác làm đã rút hết bảo đảm an toàn đóng điện. Người chỉ huy trực tiếp đơn vị công tác trả lại nơi làm việc cho ông (bà)…chức vụ đại diện đơn vị quản lý vận hành…lúc...giờ...ngày...tháng...năm...
Người chỉ huy trực tiếp (ký, ghi họ tên):
…………………………………………………………………………………………..
Người lãnh đạo công việc (ký-nếu có): ………………………………………………………………………………………….
6.2. Đã tiếp nhận và kiểm tra nơi làm việc, phiếu công tác đã khoá lúc…giờ… phút…ngày…tháng…năm…
Người cho phép (ký và ghi họ tên):
………………………………………………………………………………………….
Đã kiểm tra hoàn thành phiếu ngày...tháng...năm...
Người cấp phiếu (ký, ghi họ tên)
Hướng dẫn ghi phiếu
1. Cấm sửa chữa và gạch xoá trong phiếu.
2. Các dòng không ghi và các cột không ghi phải gạch bỏ đi.
3. Tại khoản 2.6 của Phiếu công tác này, khi cần thiết ghi bổ sung các nội dung sau: Các phần đang còn mang điện, dây tiếp xúc; trình tự công việc (các thao tác riêng lẻ). Các công việc trên phải được giám sát liên tục của người chỉ huy công việc; cho phép tạm thời tháo tiếp đất; họ và tên người chịu trách nhiệm an toàn đối với công việc vận tải dưới hầm lò; thông báo cho ai khi kết thúc công việc; ghi chép các thông số đo tiếp đất, thử nghiệm và hiệu chỉnh thiết bị, cơ cấu bảo vệ điện; họ và tên người đồng ý cho thử nghiệm và hiệu chỉnh thiết bị, cơ cấu bảo vệ điện và đóng điện cũng như các vấn đề khác cần xem xét của phiếu và ghi chép các quyết định. Họ và tên người chịu trách nhiệm an toàn của các phương tiện nâng cẩu, trục tải và vận tải; báo cho ai khi công việc kết thúc hoàn toàn; các ghi chép về đo điện trở cách điện, về thử nghiệm các thiết bị bảo vệ và thiết bị điện; họ và tên người có quyền hạn ra lệnh đóng điện và thử thiết bị điện. Các điều khác về xem xét. Người viết phiếu phải viết các nội dung này.
4. Tại khoản 2.7 của phiếu công tác này, phải ghi rõ việc cho phép hay không cho phép. Nếu cho phép thì gạch bỏ phần không cho phép và ngược lại.
5. Quyết định của Giám đốc điều hành mỏ và thoả thuận của Phụ trách thông gió, An toàn, Đo khí khi thực hiện các công việc đặc biệt, các công việc vào ngày lễ, ngày nghỉ toàn mỏ phải được ghi trong các phiếu.
Mẫu phiếu 01
Phụ lục IV.2b
PHIẾU THAO TÁC
(Dùng để ra lệnh cho các thao tác trên hệ thống điện có 2 hay nhiều đơn vị cùng tham gia)
Phiếu số: ...ngày...tháng...năm...
Tờ số.../quyển số...
Đơn vị (Công ty, xí nghiệp):.............................................................................
Công trường (phân xưởng):……………………………………………………….
Tên phiếu thao tác:
Người viết phiếu:...............................Chức vụ:...............................................
Người duyệt phiếu (nếu có).............................Chức vụ:.................................
Người ra lệnh:.....................................Chức vụ:..............................................
Mục đích thao tác:...........................................................................................
Thời gian dự kiến: Bắt đầu.......................ngày.....tháng......năm...................
Kết thúc.....................ngày......tháng......năm..................
Đơn vị xin thao tác: .......................................................................................
Điều kiện cần thiết để đảm bảo kỹ thuật và an toàn khi làm việc:................
.......................................................................................................................
Lưu ý:....................................................................................................
Sơ đồ:
Trình tự thao tác:
|
Số TT |
Đơn vị |
Nội dung công việc |
Người ra lệnh |
Thời gian |
|
|||||
|
Bắt đầu |
Kết thúc |
|
||||||||
|
1 |
2 |
3 |
4 |
5 |
6 |
7 |
8 |
|
||
|
|
|
|
|
|
|
|
|
|
||
|
Ngày...tháng...năm... Người viết phiếu (Ký, ghi rõ họ và tên) |
|
Ngày...tháng...năm... Người kiểm tra phiếu (Ký, ghi rõ họ và tên) |
||||||||
|
Người ra lệnh (Ký, ghi rõ họ và tên) |
Người giám sát (Ký, ghi rõ họ và tên) |
Người thao tác (Ký, ghi rõ họ và tên) |
||||||||
Đã thao tác xong theo trình tự trên lúc... giờ... phút, ngày...tháng… năm...
Đã báo cáo cho Ông (Bà)....chức vụ...lúc...giờ...phút, ngày… tháng… năm...
PHIẾU THAO TÁC
Mẫu phiếu 02b
(Dùng cho các thao tác mà tại nơi ra lệnh có bộ phận trực thao tác, các nơi có Fax hoặc chuyển trực tiếp cho người đi thao tác)
Phiếu số: ....ngày...tháng...năm....
Tờ số.../quyển số...
Đơn vị (Công ty, xí nghiệp):.........................................................................
Công trường (phân xưởng): ……………………………………………………
Nhiệm vụ thao tác:……………………………………………………………….
|
Người viết phiếu................................ Người kiểm tra phiếu (nếu có)…………. Người ra lệnh..................................... Người giám sát.................................. Người thao tác................................... |
Chức vụ:............................................. Chức vụ.............................................. Chức vụ.............................................. Bậc………......................................... Bậc……….......................................... |
Thời gian ra lệnh bắt đầu thao tác:..giờ...phút..., ngày...tháng...năm...
Lưu ý:...................................................................................................................
Trình tự thao tác:
|
Số TT |
Trình tự các thao tác |
Đánh dấu đã thực hiện (x) |
||
|
1 |
|
|
||
|
|
|
|
||
|
Ngày...tháng...năm... Người viết phiếu (Ký tên, ghi rõ họ và tên) |
|
Ngày...tháng...năm... Người kiểm tra phiếu (Ký tên, ghi rõ họ và tên) |
||
|
Người ra lệnh (Ký tên, ghi rõ họ và tên) |
Người giám sát (Ký tên, ghi rõ họ và tên) |
Người thao tác (Ký tên, ghi rõ họ và tên) |
||
Đã thao tác xong theo trình tự trên lúc... giờ... phút, ngày...tháng… năm...
Đã báo cáo cho Ông (Bà)....chức vụ...lúc...giờ...phút, ngày… tháng… năm...
PHIẾU THAO TÁC
Mẫu phiếu 02c
(Dùng cho các nơi nhận lệnh thao tác được FAX hoặc đọc từ 01 hoặc nhận lệnh qua điện thoại bằng phiếu 02B)
Phiếu số: ...ngày...tháng...năm...
Tờ số.../quyển số...
Đơn vị (Công ty, xí nghiệp):...................................................................
Công trường (phân xưởng): ………………………………………………
Nhiệm vụ thao tác:
|
Người viết phiếu.................... Người kiểm tra phiếu (nếu có)… Người ra lệnh......................... Người giám sát....................... Người thao tác....................... |
Chức vụ:..................... Chức vụ...................... Chức vụ...................... Bậc………................. Bậc……….................. |
Đơn vị:.................... Đơn vị:.....................
|
Thời gian bắt đầu nhận lệnh:..giờ...phút..., ngày....tháng...năm...
Lưu ý:..................................................................................................
Trình tự thao tác:…………………………………………………………
|
Số TT |
Trình tự các động tác |
Đánh dấu đã thực hiện (x) |
|
1 |
|
|
|
|
|
|
Thời gian bắt đầu thao tác:..giờ...phút, ngày...tháng...năm...
Thời gian kết thúc thao tác:..giờ...phút, ngày...tháng...năm...
|
Người nhận lệnh (Ký tên, ghi rõ họ và tên) |
Người giám sát (Ký tên, ghi rõ họ và tên)
|
Người thao tác (Ký tên, ghi rõ họ và tên) |
|
Người kiểm tra phiếu (nếu có) (Ký tên, ghi rõ họ và tên) |
|
|
Đã thao tác xong theo trình tự trên lúc...giờ...phút, ngày... tháng...năm...
Đã báo cáo cho Ông (Bà)...chức vụ... lúc...giờ...phút, ngày... háng...năm...
Người báo:...........................chức vụ............................................................
Phụ lục IV.3
SỔ NHẬT LỆNH SẢN XUẤT
(Về an toàn khi làm việc với các thiết bị điện, mạng điện hầm lò)
Đơn vị (Công ty, xí nghiệp):……………………………………………………
Công trường :……………………………………………………………………
Bắt đầu:…………………………………………………………………………..
Kết thúc: ………………………………………………………………..............
|
Ngày tháng và thời gian bắt đầu, kết thúc công việc |
Tên gọi công trình điện và lò |
Nội dung công việc, các biện pháp kỹ thuật an toàn cắt điện và đề phòng đóng điện trở lại, lập rào chắn, đo hàm lượng khí Mêtan, kiểm tra không có điện, tiếp đất: (Số phiếu, ngày, thời gian hết hạn phiếu) |
Tên gọi, chức vụ và bậc kỹ thuật điện của người cho phép, người lãnh đạo, người chỉ huy công việc, người giám sát và thành viên đội |
Họ tên chữ ký của người ra lệnh (người viết phiếu) |
|
1 |
2 |
3 |
4 |
5 |
|
|
|
|
|
|
|
|
|
|
|
|
Phụ lục IV.4
LIỆT KÊ CÁC CÔNG VIỆC TIẾN HÀNH Ở ĐIỆN ÁP DƯỚI 1140V TRONG VẬN HÀNH THƯỜNG XUYÊN.
1. Đấu nối các cáp, trừ việc đấu điện vào máy khoan điện cầm tay.
2. Thay các bảng điện kiểu giắc cắm của các cụm điều khiển, bảo vệ và cung cấp điện; các cuộn dây của máy cắt tự động và các khởi động từ, các đồng hồ chỉ báo, các máy biến áp, các rơle, cầu chì, đèn tín hiệu, các tiếp điểm (làm sạch hiệu chỉnh chúng) vặn chặt mối tiếp xúc... trong các khoang của các bộ chuyển mạch và thiết bị tự động hoá.
3. Tiến hành như trên và kiểm tra tủ hạ áp của trạm biến áp di động. Trong trường hợp này, khi tiến hành thực hiện công việc phải có hai người trở lên.
4. Đặt trị số dòng điện tác động của bảo vệ cực đại và kiểm tra bằng phương pháp gián tiếp.
5. Kiểm tra, làm sạch, xiết chặt mối tiếp xúc, thay các dây tiếp đất của mạng tiếp đất.
6. Thay các cực đấu nối, gioăng, nút của cơ cấu làm kín.
7. Xác định dòng điện rò ra đất không dùng megômmet,
8. Thay các bóng đèn ở mạng chiếu sáng và tín hiệu.
9. Thay chổi than, tra dầu mỡ cho các gối đỡ trục động cơ điện, lập các rào chắn, kiểm tra các cơ cấu liên động.
10. Thay các bộ cảm biến, các cầu dao đường dây, khoá ngắt cuối, các hộp nút bấm, các còi.
11. Làm sạch, đổ thêm chất điện dịch, kiểm tra điện trở cách điện, nạp điện cho các ắc-quy tàu điện.
12. Sửa chữa phần điện của tầu điện cần vẹt.
13. Treo cáp trong các lò (thực hiện khi cắt điện).
14. Làm sạch thiết bị điện (bụi than, ẩm ướt và chất bẩn khác).
15. Treo biển ký hiệu trên thiết bị điện (thực hiện khi cắt điện).
Theo Điều 109 Quy phạm này
1. Kiểm tra, thí nghiệm và đặt trị số tác động bảo vệ dòng điện cực đại của các thiết bị điện mỏ được tiến hành trước khi đưa chúng vào vận hành. Trong quá trình vận hành phải kiểm tra, thí nghiệm và hiệu chỉnh ít nhất một lần trong sáu tháng đối với các thiết bị điện điện áp đến 1140V và không dưới một lần trong một năm đối với các thiết bị điện điện áp trên 1140V.
2. Kiểm tra trị số tác động của các thiết bị bảo vệ điện trong hầm lò có nguy hiểm về khí cháy nổ hàng ngày được thực hiện bằng các cơ cấu thử được thiết kế trên máy.
3. Các dụng cụ để kiểm tra trị số tác động của các thiết bị bảo vệ điện trong hầm lò có nguy hiểm về khí cháy nổ phải có cấu tạo an toàn phòng nổ.
Khi đã cắt điện trạm phân phối trọn bộ, không còn nguồn điện khác cấp cho phương tiện kiểm tra, thí nghiệm thì rơle dòng điện cực đại của trạm phân phối đó phải thay ít nhất một lần trong một năm bằng rơle khác đã kiểm nghiệm. Việc kiểm tra trên do đội chuyên môn thực hiện theo phiếu công tác.
4. Kiểm tra bảo vệ dòng điện cực đại thiết bị điện mỏ có thể tiến hành cùng với thời gian hiệu chỉnh thiết bị điện nhưng phải phù hợp với “Quy định về xem xét, kiểm tra và kiểm định thiết bị điện an toàn nổ sử dụng trong hầm lò than”.
5. Trước khi vận hành phải kiểm tra khả năng của thiết bị bảo vệ bằng nút “kiểm tra”. Lịch kiểm tra, trình tự kiểm tra tuân theo hướng dẫn của nhà máy chế tạo gửi kèm theo thiết bị khi xuất xưởng.
6. Các kết quả kiểm tra phải lập biên bản theo quy định hoặc ghi vào sổ vận hành theo mẫu và được lưu giữ theo quy định hiện hành.
7. Thiết bị bảo vệ tác động quá ±15% trị số quy định phải được loại bỏ.
HƯỚNG DẪN PHÒNG CHỐNG CHÁY NỔ, SỬ DỤNG NGỌN LỬA TRẦN TRONG HẦM LÒ VÀ CÁC CÔNG TRÌNH NGOÀI MẶT BẰNG MỎ
1. Thiết kế xây dựng hoặc cải tạo mỏ phải có phần nêu nội dung công tác phòng chống cháy nổ. Đối với những mỏ đang hoạt động, phải luôn điều chỉnh thiết kế phòng chống cháy nổ cho phù hợp với điều kiện thực tế.
2. Thiết kế phòng chống cháy nổ do cơ quan tư vấn có chức năng lập. Việc điều chỉnh thiết kế phòng chống cháy nổ phù hợp với điều kiện thực tế phải có sự thoả thuận của Đơn vị CH - CN chuyên trách, Cơ quan phòng cháy, chữa cháy có thẩm quyền và phải được Giám đốc điều hành mỏ hoặc cơ quan quản lý mỏ có thẩm quyền phê duyệt. Trong thiết kế phải thể hiện cấp nguy hiểm về cháy, nổ mỏ; Sơ đồ và trang thiết bị, phương tiện phòng chống cháy nổ.
3. Trong quá trình hoạt động, hàng năm Giám đốc điều hành mỏ có nhiệm vụ bổ sung kịp thời các kế hoạch phòng chống cháy nổ và có sự thoả thuận của đơn vị CH - CN chuyên trách hoặc cơ quan phòng cháy, chữa cháy có thẩm quyền.
4. Giám đốc điều hành mỏ là người chịu trách nhiệm chính về tình trạng phòng chống cháy nổ trong hầm lò và các công trình, thiết bị ngoài mặt bằng mỏ.
1. Các công trình của mỏ như: Tháp giếng, rãnh gió, phỗng gió, nhà trên giếng, nhà của trạm quạt gió đều phải làm bằng vật liệu không cháy.
2. Ống chữa cháy, công trình chứa nước, trạm bơm, lưu lượng nước chữa cháy phải phù hợp với tiêu chuẩn xây dựng mỏ.
Trong hầm lò nước có tính axít thì các đường ống, trạm bơm và các phương tiện, dụng cụ bằng kim loại dùng để dập cháy phải chống được sự ăn mòn của axít.
3. Các bể chứa nước phòng chống cháy trên các mặt bằng công nghiệp mỏ phải luôn chứa đầy nước. Lượng chứa nước của bể phải đảm bảo sao cho khi đưa vào lò liên tục để dập cháy trong thời gian tối thiểu là 3 giờ và phù hợp với phương án phòng chống cháy nổ.
Ở mỏ khai thác bằng sức nước, bể chứa nước phòng chống cháy dự phòng phải có đường ống nối với đường ống dẫn nước dập cháy qua hệ thống van.
Ít nhất phải có 2 nguồn cấp nước cho bể chứa nước phòng chống cháy. Mỗi nguồn nước phải đảm bảo lưu lượng cấp tối thiểu là 11l/s (40m3/h) và phù hợp với phương án phòng chống cháy nổ.
Trường hợp chỉ có một nguồn cấp nước cho bể chứa nước phòng chống cháy, thì dung tích của bể chứa nước phải được xác định theo lượng nước tính toán đưa xuống mỏ liên tục để dập cháy trong thời gian tối thiểu là 6 giờ.
Bể nước phòng chống cháy phải được đặt ở nơi đảm bảo điều kiện thuận lợi cho các phương tiện vào lấy nước bằng bơm có động cơ để dập cháy các công trình trên mặt bằng mỏ.
Để phòng chống cháy cho giếng thông gió, chống bằng gỗ ở xa sân công nghiệp, việc cấp nước phải được thực hiện bằng các đường ống chuyên dùng (ống phải có lưu lượng nước đủ để dập cháy trong giếng), các bể chứa nước phòng chống cháy phải có dung tích theo đúng phương án phóng cháy nổ đã thoả thuận, phê duyệt. Khoảng cách từ bể chứa nước tới miệng giếng tối đa là 50m. Việc cấp nước cho bể chứa có thể thực hiện từ đường ống hoặc từ xe chở nước, có thể dùng nước công nghiệp đã được làm lắng, trong để cấp nước cho bể chứa.
4. Sau khi đã sử dụng nước để dập cháy, phải bổ sung ngay đủ nước vào bể chứa dự trữ theo mức quy định. Cấm sử dụng nước dự trữ để sử dụng vào mục đích khác.
5. Trạm bơm đặt cạnh bể chứa nước phòng chống cháy phải có độ chắc chắn. Các bơm làm việc và dự phòng phải được đảm bảo cấp điện liên tục từ hai nguồn điện độc lập.
6. Lưu lượng của bơm phòng chống cháy phải phù hợp với lưu lượng nước tính toán để dập cháy theo đúng quy định trong phương án phòng cháy nổ đã được phê duyệt.
7. Để thuận lợi bể chứa nước phòng chống cháy, có thể sử dụng hầm thu nước của trạm thoát nước chính của mỏ (các tầng khai thác) và phải được Giám đốc điều hành mỏ phê duyệt và thoả thuận trong phương án phòng chống cháy nổ. Nếu thiết kế sử dụng hệ thống bơm của trạm thoát nước mỏ cấp nước vào hệ thống ống nước phòng chống cháy, thì đặc tính thuỷ lực của nó phải phù hợp với đặc tính thuỷ lực của hệ thống đường ống nước phòng chống cháy.
8. Khi kết thúc đào giếng, phải đưa bể chứa nước phòng chống cháy trên mặt bằng mỏ vào làm việc.
9. Đường ống đưa nước từ bể chứa nước phòng chống cháy đến giếng mỏ, các toà nhà và các công trình xây dựng phải có đường kính tối thiểu là 100mm và phù hợp với tính toán của phương án phòng chống cháy nổ đã được phê duyệt.
10. Để phòng chống cháy cho miệng giếng nằm trong các công trình trên mỏ, phải đặt tối thiểu 03 họng nước phòng chống cháy có đường kính tối thiểu là 70mm và phù hợp với tính toán của phương án phòng chống cháy nổ đã được phê duyệt. Việc cấp nước cho các họng nước này có thể từ các nguồn khai thác không phải từ các bể nước phòng chống cháy.
11. Quanh các cổ giếng và phỗng gió phải đặt các đường ống vòng với các thiết bị phun nước. Các đường ống vòng trong miệng giếng phải nối trực tiếp với đường ống phòng chống cháy trên mặt bằng mỏ. Các van để cấp nước vào đường ống vòng phải đặt ngoài mái che miệng giếng. Đường ống vòng phải đảm bảo lưu lượng nước để phun theo thiết kế.
Khi giếng chống bằng cột chống không cháy, lưu lượng nước phải đảm bảo 2m3/h (0,55 l/s) trên 1m2 tiết diện ngang.
Khi giếng chống bằng cột chống có khả năng cháy, lưu lượng nước không nhỏ hơn 6m3/h (1,66l/s) trên một m2 tiết diện ngang.
Đường ống vòng chưa nạp nước trong miệng phỗng gió phải có đầu ra lên mặt bằng mỏ, phía cuối của ống phải có đầu nối.
Có thể không cần đặt đường ống vòng trong cổ giếng đứng, giếng nghiêng thông gió và phỗng gió khi chúng được chống bằng vật liệu không cháy và không có nhà trên mỏ, không có trạm máy nâng, không có cáp điện đặt dọc theo giếng, hầm trạm và không có thang làm bằng gỗ.
12. Tháp giếng mỏ phải được trang bị đường ống vòng chưa nạp nước dùng để cấp nước cho thiết bị phun nước tháp giếng. Nước phun phải phủ kín diện tích giếng trong thời gian cháy. Lưu lượng nước để dập cháy tối thiểu là 25m3/h (0,7l/s).
13. Nhà tháp giếng phải được trang bị đường ống phòng chống cháy bên trong phù hợp với yêu cầu của quy định hiện hành.
Các thiết bị có dầu (trạm cấp dầu mỡ, trạm biến áp ngầm, thiết bị phân phối điện ...) là những thiết bị nguy hiểm về cháy phải được trang bị thiết bị phòng chống cháy tự động. Cho phép thay thế thiết bị phòng chống cháy trọn bộ tự động của gian tháp giếng bằng 05 thiết bị tạo bọt dập cháy và phù hợp với tính toán của phương án phòng chống cháy nổ đã thoả thuận, phê duyệt.
1. Để dập cháy và bụi trong hầm lò, nhất thiết phải lắp đặt các hệ thống ống nước liên hoàn. Hệ thống ống nước phải luôn luôn nạp đầy nước có áp lực. Các thông số của hệ thống ống phải dựa trên các thông số tính toán thuỷ lực và kinh tế kỹ thuật.
2. Trong thiết kế dập cháy và bụi mỏ phải có phương án dự phòng huy động tất cả các đường ống dẫn nước trong mỏ tham gia.
Cấm dùng đường ống dẫn hơi để dẫn nước trong thời gian dập cháy mỏ.
Phải trang bị thiết bị cố định để đóng mở van giảm áp trong trường hợp triệt tiêu áp suất dư thừa trong ống. Các đường ống dự phòng có thể không đặt các van này.
Trong các lò cụt chiều dài 500m trở lên ở các mỏ xếp loại III và lớn hơn theo khí Mêtan, hệ thống ống nước dập cháy phải được lắp đặt phải phù hợp với hộ chiếu đào, chống lò và không được sử dụng vào mục đích khác trong thời gian đào lò. Đường ống nước dập cháy phải đặt bên hông lò gần gương để sử dụng khi xuất hiện cháy.
3. Cung cấp nước xuống mỏ theo hai đường ống chính - một đường làm việc, một đường dự phòng. Đối với các mỏ xây dựng lại (cải tạo) nước tự chảy theo đường ống từ các bể chứa vào hầm lò qua các van. Có thể sử dụng các đường ống bơm thoát nước mỏ làm đường ống dự phòng.
Cấp nước cho tầng công tác có hai lò trở lên, đường ống nước lắp đặt trong các lò khác nhau phải được nối vòng với nhau.
4. Hệ thống ống nước dập cháy trong hầm lò gồm đường ống chính và khu vực, không phụ thuộc vào các tính toán lưu lượng qua nó, đường kính ống tối thiểu là 100mm.
5. Các đường ống nước dập cháy chính được lắp đặt trong giếng nghiêng, giếng đứng, sân giếng, các lò bằng, các lò thoát nước dọc vỉa khu vực, lò nghiêng xuyên vỉa và lò thượng.
6. Các đường ống nước dập cháy khu vực được lắp đặt như sau:
a) Theo giếng nghiêng, lò thượng và lò nối giữa chúng, trừ các đường lò nghiêng có đặt các đường ống chính;
b) Theo lò dọc vỉa băng tải, thông gió, vận tải và trung gian;
c) Khi có hai lò nghiêng song song trở lên đường ống nước dập cháy có thể đặt theo một trong các lò trên. Trong trường hợp này các ống nhánh có các van nối với đường ống chính hoặc đường ống khu vực qua lò nối hoặc lỗ khoan trong đường lò song song.
7. Phải đặt van nước tại các đầu cuối của các đường ống nước dập cháy cách gương lò chuẩn bị tối đa 40m. Cạnh đó đặt hòm đựng 02 cuộn ống mềm dẫn nước và vòi. Áp lực nước ở đầu ra từ van phải đạt từ 0,6 đến 1,5 MPa. Trong các đường ống dẫn nước khu vực có áp suất vượt 1,5 MPa trước van phải đặt thiết bị giảm áp.
8. Các thông số của đường ống dẫn nước dập cháy chính đặt dọc theo giếng và lò từ sân giếng tới lò xuyên vỉa đến điểm phân nhánh đường ống dẫn nước trong lò chính được tính toán bằng tổng lưu lượng nước cần thiết trên các dàn nước để ngăn ngừa sự lan toả cháy dưới mỏ và dập cháy trực tiếp của toàn bộ tia nước từ một vòi phun có đường kính 19mm (lưu lượng nước trên một vòi 30m3/h hoặc 8,3l/s) và lưu lượng nước cần thiết cho công nghệ (một nửa lưu lượng nước tính toán).
9. Các thông số của một đường ống dẫn nước dập cháy chính lắp đặt theo đường vận tải dọc vỉa chính, khu vực và lò thượng được tính toán theo lưu lượng nước cần thiết trên toàn bộ tia nước từ một vòi phun nước (không tính tới lưu lượng nước dùng cho công nghệ). Khi đó toàn bộ lưu lượng nước dập cháy không phụ thuộc vào giá trị tính toán, nhưng tối thiểu là 80m3/h (22l/s).
Các thông số của đường ống nước dập cháy được tính toán theo lưu lượng nước cần thiết trên thiết bị tạo màn nước dập cháy, thêm vào đó một lưu lượng nước tối thiểu là 50m3/h (13,9l/s).
10. Lưu lượng nước trên các dàn nước để hạn chế sự lan truyền cháy trong các lò khu vực chống bằng gỗ, được tính toán theo tiết diện ngang và tốc độ gió trong đường lò nêu trong bảng dưới đây:
|
Tốc độ gió, m/s |
1 |
2 |
3 |
4 |
5 và lớn hơn |
|
Lưu lượng nước trên 1m2 tiết diện ngang, m3/h |
5 |
5,5 |
6,3 |
7,1 |
8,0 |
11. Lưu lượng nước trên các dàn nước đặt trong các lò chống bằng vật liệu không cháy hoặc khó cháy tối thiểu là 50m3/h.
12. Trạm phòng chống cháy cố định hoạt động tự động phải đặt gần đầu dẫn động của các băng tải.
Trạm điện ngầm trung tâm và các hầm trạm khác, trong đó đặt thiết bị điện có chứa dầu phải đặt thiết bị tạo bọt dập cháy tự động hoặc dàn bụi trơ.
13. Đường ống nước dập cháy phải được lắp cùng một loại van nước phòng chống cháy ở các vị trí sau:
a) Cách nhau 50m trong lò băng tải, trên khoảng cách 10m về hai bên đầu dẫn động băng tải đặt bổ sung hai van nước phòng chống cháy. Gần các van nước đặt các hòm chuyên dùng trong đó bảo quản vòi phun nước có đường kính 19mm, đoạn đường ống mềm đường kính 60mm dài 20m và hai đầu nối với đường ống dập cháy chính;
b) Trên khoảng cách 10m về hai phía của tất cả các hầm trạm. Gần van nước dập cháy phải đặt hòm chuyên dùng chứa một ống mềm dập cháy dài 20m và một vòi phun nước;
c) Cách nhau một khoảng 200m ở tất cả các vị trí lò giao nhau, lò nhánh, các giếng nghiêng và lò nối (không đặt van nước dập cháy từ đường ống dẫn nước trong giếng đứng);
d) Cách nhau một khoảng 100m trong các lò nghiêng không có vị trí giao nhau và lò nhánh;
e) Cách nhau 100m trong sân giếng, ở đó không có các hầm trạm;
g) Ở mỗi một phía của giếng cạnh vị trí tiếp giáp với sân giếng;
h) Cạnh máng rót than của lò chợ về phía luồng gió sạch;
i) Ngay sau lối rẽ vào lò cụt và cách nhau 50m trong các lò cụt chiều dài lớn hơn 500m. Cạnh van nước dập cháy đặt hòm chứa hai cuộn dây mềm phòng cháy, dập cháy, mỗi cuộn dài 20m và vòi phun nước.
14. Ống nối có van nước phòng cháy, dập cháy phải đặt dọc theo lò và song song với hướng chuyển động của luồng gió.
15. Để tách riêng đường ống nước phòng cháy, dập cháy khu vực hoặc cấp toàn bộ nước cho một khu vực cháy, trên đường ống nước phòng cháy, dập cháy phải đặt các van ở những vị trí sau:
a) Sau vị trí rẽ của tất cả các đường ống nhánh;
b) Cách nhau 400m trên các đường ống không phân nhánh.
16. Đường ống nước dập cháy phải được trang bị các thiết bị phân phối và điều khiển áp lực, chúng phải được vẽ đánh số thứ tự trên sơ đồ đường ống, chỉ dẫn sử dụng.
17. Đường ống nước dập cháy trong hầm lò phải được sơn đỏ và bảo vệ chống han rỉ, ăn mòn và dòng điện lạc. Có thể sơn đỏ toàn bộ đường ống hoặc sơn mầu đỏ cách đoạn từ 150m đến 200m, chiều rộng 50mm.
18. Việc cắt rời đường ống nước dập cháy nhánh trong hầm lò phải có lệnh của Giám đốc điều hành mỏ. Phải báo cáo về bộ phận điều hành và chỉ huy sản xuất mỏ khi cắt, di chuyển đường ống nước dập cháy.
Các vị trí phải được bố trí phương tiện phòng chống cháy, sơ cứu ban đầu theo Bảng PV.B1
1. Việc trang bị số lượng phương tiện thiết bị phòng chống cháy, sơ cứu ban đầu tại các điểm thuộc Bảng PV.B1 và các điểm khác phải được tính toán đảm bảo yêu cầu của công tác sơ cứu, phù hợp với phương án phòng chống cháy nổ được đơn vị CH - CN chuyên trách và cơ quan phòng chống cháy có thẩm quyền thoả thuận, phê duyệt.
Bảng PV.B1 Vị trí lắp đặt các phương tiện dập cháy
|
Vị trí bố trí |
Phương tiện, thiết bị dập cháy (Bình bọt, cát, bụi trơ, xẻng…) |
|
1. Nhà trên mỏ |
x |
|
2. Tháp giếng |
x |
|
3. Sân giếng |
x |
|
4. Sàn tiếp nhận trên, dưới của giếng, phỗng gió, lò nghiêng, lò thượng và vị trí giao nhau lò vận tải dọc vỉa phân tầng và trung gian |
x |
|
5. Trạm điện ngầm trung tâm |
x |
|
6. Trạm chỉnh lưu và buồng nạp ắc-quy tàu |
x |
|
7. Ga ra tàu điện |
x |
|
8. Hầm sửa chữa dưới mỏ |
x |
|
9. Hầm để dụng cụ dưới mỏ và trạm nghỉ |
x |
|
10. Hầm đặt biến thế khu vực, trạm phân phối điện, trạm bơm thoát nước |
x |
|
11. Kho vật liệu nổ |
x |
|
12. Hầm tời trục |
x |
|
13. Trạm bơm dầu mỡ cố định cho các máy khai thác và cột chống |
x |
|
14. Hầm có các thiết bị cơ điện |
x |
|
15. Các thiết bị điện cơ có các múp nối thuỷ lực có dầu mỡ |
x |
|
16. Các đường lò đặt băng tải: a) Đầu dẫn động và kéo (ngoại trừ được trang bị bằng múp nối thuỷ lực có dầu); b) Trạm phân phối; 17. Cách đều 100m dọc theo băng tải. |
x |
|
18. Vị trí tiếp giáp thượng thông gió với lò chợ; |
x |
|
19. Trạm chất tải lò chợ (1) |
x |
|
20. Gương của các lò chuẩn bị (2) |
x |
|
21. Cách đều nhau một đoạn 300m tại các lò chống bằng vật liệu cháy được |
x |
|
22. Cách đều nhau một đoạn 50m tại các lò cụt chiều dài 500m |
x |
|
23. Trạm điện ngầm di động |
x |
|
24. Hầm trạm chứa khí |
x |
|
25. Máy đào lò liên hợp, máy bốc đất đá |
x |
|
26. Trạm bơm dầu di động của máy khấu than liên hợp |
x |
(1) Thiết bị cần phải trang bị trên khoảng cách từ 3m đến 5m từ luồng gió sạch tới
(2) Không quá 20m từ vị trí làm việc.
2. Đối với các hầm trạm, trong đó không có người trực thường xuyên, các phương tiện phòng cháy, đập cháy phải đặt ở bên ngoài trạm về hướng luồng gió sạch tới, nhưng không xa hơn 10m từ cửa vào trạm.
Đối với hầm trạm có người trực thường xuyên, phương tiện phòng chống cháy treo gần vị trí người trực. Khi bảo quản các phương tiện phòng chống cháy trong các hòm chuyên dụng, trên nắp phải ghi các dấu hiệu báo “Bình dập cháy”, “Cát dập cháy”, “Bụi trơ để dập lửa”...
Các bình dập cháy, thùng cát, sào dập cháy cần phải sơn màu đỏ hoàn toàn hoặc để cách đoạn với chiều rộng dải sơn tối thiểu là 50mm.
3. Để cách ly, hạn chế cháy, trong các lò phải đặt các cửa bằng vật liệu không cháy. Về hai phía của cửa lò với chiều dài tối thiểu là 5m phải được chống giữ bằng vật liệu không cháy. Cửa chống cháy phải đóng được bằng sức của một người, cửa phải đóng kín tiết diện lò, có chốt mở được về hai phía. Để đóng, mở cửa chống cháy trong lò nghiêng lớn hơn 350, cũng như các lò có sự chênh áp lớn phải có các phương pháp mở đặc biệt (cửa sổ, tay đòn, tời...).
Thiết bị để mở cửa chống cháy đặt trong các đường lò nghiêng và đứng, được đưa vào các đường lò bằng theo hướng luồng gió sạch, đặt tại các vị trí quy định trong kế hoạch ƯCSC - TKCN. Trong toà nhà trên mỏ các thiết bị này phải được lắp đặt ngoài vùng khói và cháy lan toả.
4. Ở phần trên và dưới của thượng chính dùng cho người đi lại và thoát hiểm phải xây dựng các vòm cuốn có chiều dày tối thiểu là 0,4m và ngàm sâu vào toàn bộ chu vi của lò. Lắp đặt cửa chống cháy hay cửa gió vào vòm cuốn đó.
5. Ở cổ phỗng gió, lò vận tải chính có luồng gió sạch đi qua, các giếng đứng (trừ các giếng có trang bị máy nâng nhiều cáp) phải trang bị cửa đảo chiều gió. Cổ giếng nghiêng và lò bằng phải có cửa chống cháy.
Trong lò nghiêng đặt băng tải, cửa chống cháy phải đóng được mà không cần tháo băng tải. Làm kín các khe hở tiếp giáp giữa cửa với lò bằng vật liệu cát, đất sét. Tại vị trí các cửa phải có cát, đất sét dự phòng.
6. Ở lò bằng gần giếng và phỗng gió có luồng gió sạch đi qua, phải đặt các cổng gió. Cổng gió phải được đóng theo chiều thuận với luồng gió tính từ quạt gió. Vị trí đặt quạt gió phải được xác định trong bản thiết kế riêng. Khoảng cách giữa các cửa gió của cổng gió tối thiểu là 10m.
7. Cửa chống cháy trong các lò được chống bằng gỗ phải được làm bằng các vật liệu không cháy hoặc khó cháy, chiều dày cửa tối thiểu là 40mm.
8. Hầm trạm phải có cửa chống cháy, cửa này phải có khoá và cửa sổ gió làm bằng sắt. Cửa chống cháy phải đặt ở khoảng cách tối thiểu là 3m tính từ vị trí tiếp giáp với lò, có thể đặt cửa đóng mở tự động khi có cháy. Cửa phải mở ra ngoài và không làm cản trở việc đi lại, vận chuyển trong lò. Tại vị trí đặt đầu dẫn động máng cào, tời, quang lật và máy đẩy goòng, các hầm trạm không chứa vật dễ cháy (trạm y tế, phòng đợi, trạm điều khiển...) không cần làm cửa chống cháy.
9. Nền các hầm trạm, khoang chứa có bảo quản và đổ rót dầu, mỡ cũng như đặt thiết bị có chứa dầu phải làm bằng vật liệu không cháy và phải rải cát để làm sạch dầu mỡ. Vật liệu dùng để lau chùi sau khi sử dụng phải được bỏ vào thùng sắt và đưa lên mặt bằng mỏ.
10. Việc bôi trơn goòng trong các đường lò phải được thực hiện tại các vị trí dành riêng để tra dầu, mỡ hoặc tại các hầm trạm có phương tiện phòng chống cháy.
11. Trong các lò vận chuyển bằng băng tải hoặc tời phải áp dụng phương pháp loại trừ cọ xát của băng tải và cáp vào vì chống.
1. Các đường lò, tuỳ theo chức năng của nó, được chống bằng các vì chống không cháy có cấp chịu lửa không thấp hơn theo yêu cầu tối thiểu quy định tại Bảng PV.B2.
Bảng PV.B2 Quy định cấp chịu lửa đối với vì chống lò
|
Các đường lò hoặc các khu vực |
Cấp chịu lửa của vật liệu chống |
Nhóm vì chống cháy được |
Vật liệu làm cột chống |
|
|
Cột, xà |
Thanh giằng |
|||
|
1. Tất cả các giếng đứng, nghiêng, rãnh gió, lò nối cũng như cổ phỗng gió dùng để đưa gió sạch vào mỏ trong khoảng cách 10m kể từ mặt bằng mỏ: - Giếng. - Vị trí tiếp giáp của các giếng đứng, nghiêng, lò nối và phỗng gió dùng để đưa không khí sạch vào mỏ với các lò bằng gần sân giếng. - Vị trí tiếp giáp lò nghiêng, thượng và lối đi với các lò trên chiều dài tối thiểu là 10m về tất cả các hướng(1). - Cổ phỗng gió có trang bị quạt hút trên chiều dài tối thiểu là 5m tính từ ngoài mặt bằng. |
Cao |
Không cháy |
- |
Bê tông nguyên khối hoặc bê tông cốt thép, vì chống bằng đá; vì chống hỗn hợp - tường đá (bê tông), nắp dầm kim loại với vòm bê tông; bê tông cốt thép hoặc kim loại, vì chiubin. |
|
2. Các giếng nghiêng và lò nối dùng để đưa không khí sạch vào mỏ. Các lò nối gần sân ga giếng. |
|
|
|
Cột bê tông cốt thép, các xà bê tông cốt thép hoặc thép; thép hình với giằng bê tông cốt thép hoặc kim loại; bê tông cốt thép lắp ghép; bê tông; vì chống neo và vì neo với xà bằng kim loại đối với lò đi trong đất đá, vì neo với xà kim loại, phun bê tông đối với lò đi trong than với gương lò hỗn hợp. |
|
- Lò xuyên vỉa chính, lò cái dọc vỉa chính và lò cái dọc vỉa khu vực, lò sân ga giếng đối với mỏ đang thiết kế. |
|
|
|
|
|
- Hầm trạm đặt máy (có thời gian phục vụ từ 1 năm trở lên), hầm trạm đặt trạm biến thế và thiết bị phân phối cao thế trong đó có đặt cầu dao đổ đầy dầu, trạm điện trung tâm, trạm chỉnh lưu và kho vật liệu nổ có thời gian phục vụ 1 năm trở lên. |
|
|
|
|
|
- Đoạn lò đặt đầu dẫn động băng tải, trạm kéo đường một ray và đặt trên nền lò. |
|
|
|
|
|
- Hầm trạm để bảo quản và phân phối nhiên liệu, vật liệu, trạm khí nén và thiết bị thuỷ lực có đổ dầu. |
|
|
|
|
|
- Đoạn lò nối liền với các hầm trạm đã liệt kê trên và các nơi đặt thiết bị trên chiều dài tối thiểu là 5m về tất cả các phía (2). - Rãnh gió của giếng chính và giếng phụ, phỗng gió, lò nối với chiều dài 10m về cả hai phía. Lò nối giữa lò nghiêng song song, lò bằng vận chuyển chính một mức trong đó có có đặt tường làm bằng vật liệu không cháy. |
|
|
|
|
|
3. Các lò đặt băng tải, trừ các lò nối với gương khấu tồn tại dưới 2 năm, các lò nghiêng xây dưng cơ bản, thượng và các lối đi gần đó, các giếng nghiêng thông gió, các đường lò nghiêng, các giếng mù. |
Trung bình |
Không cháy |
Khó cháy |
Thép định hình chuyên dùng với tấm chắn vải thuỷ tinh hay các thanh giằng gỗ được tẩm thấm chất chống cháy và vì chống neo. |
|
4. Hầm trạm đặt thiết bị điện thời hạn phục vụ đến 1 năm, không có thiết bị điện chứa dầu hoặc có thiết bị điện cấp phòng nổ ExdI có đổ dầu ở các cụm chi tiết riêng (3) |
Bình thường |
Khó cháy |
Khó cháy |
Vì chống gỗ có tẩm chất chống cháy. |
(1). Vì chống của các lò nối với lò nghiêng ở trên có thể có cấp chịu lửa thấp hơn - phù hợp với mục 2 Bảng PV5.B2, nếu tất cả các lò nối (nghiêng, bằng) được chống bằng các cột chống này trên chiều dài tối thiểu 100m tính từ lò nối và không có các khoảng rỗng sau vì chống được chèn bằng vật liệu cháy được.
(2). Đoạn lò đặt các đầu dẫn động băng tải và các thiết bị đặt ở ngoài hầm trạm chuyên dùng có cụm chi tiết dễ cháy: Múp nối thuỷ lực, động cơ điện, cụm phân phối điện, tang dẫn động, trạm cấp dầu mỡ, đầu dẫn động thuỷ lực...phải chống bằng vật liệu không cháy. Chiều dài đoạn lò phải chống phụ thuộc vào các cụm thiết bị đã nêu trên và tăng thêm 5m về mỗi phía phù hợp với yêu cầu đã nêu ở trên.
(3). Trong các vùng có hang castơ có thể sử dụng các cột chống gỗ và kim loại hình tròn với các giằng gỗ.
2. Khoảng rỗng sau vì chống không cháy phải chèn bằng các vật liệu không cháy hoặc khó cháy.
3. Tường chắn trong các lò nối giữa các lò nghiêng với nhau, cột chống trong khu vực lò dưới cầu gió loại “cầu lật” phải được làm bằng vật liệu không cháy.
1. Mỏ hầm lò phải có xe cứu hoả, kho thiết bị, vật tư, vật liệu dập cháy ngoài mặt bằng mỏ được đặt nối với đường ray tới giếng mỏ.
2. Kho dập cháy phải được trang bị đầy đủ số lượng thiết bị, vật tư, vật liệu quy định tại Bảng PV.B3 của Phụ lục này.
Bảng PV.B3 Quy định về phương tiện, thiết bị vật tư và vật liệu trong kho dập cháy
|
Tên gọi |
Kho ngoài mặt bằng |
Kho trung tâm trong hầm lò |
Xe chữa cháy |
|
Cát, m3 |
10 |
3 |
- |
|
Đất sét, m3 |
10 |
3 |
- |
|
Bê tông hoặc bê tông nhẹ, T |
1200 |
600 |
- |
|
Xi măng khô trong túi ni lông, T |
5 |
- |
- |
|
Xô sắt, cái |
5 |
5 |
1 |
|
Đinh dài 100 ¸ 150mm, kg |
20 |
- |
- |
|
Ống mềm dập cháy (ống cao su mềm), m |
100 |
- |
200 |
|
Vòi phun nước dập cháy, cái |
- |
- |
3 |
|
Ống hút mềm dập cháy, m |
- |
- |
- |
|
Bình bọt xách tay, cái |
50 |
- |
20 |
|
Bình bọt chữa cháy xách tay, cái |
50 |
- |
- |
|
Thiết bị tạo bột chữa cháy di động, cái |
- |
- |
1 (1) |
|
Thiết bị trộn bột chữa cháy, cái |
- |
- |
1 (1) |
|
Bọt dập cháy tạo màng mỏng, T |
- |
- |
2-3 (1) |
|
Bơm điện không phải mồi, cái |
- |
- |
- |
|
Máy phun bọt, cái |
- |
- |
1 (1) |
|
Thiết bị tạo bọt năng suất cao, cái |
- |
- |
- |
|
Bơm có động cơ, cái |
- |
- |
- |
|
Dung dịch nước của chất tạo bọt, m3 |
- |
- |
- |
|
Chất tạo bọt, m3 |
- |
- |
2-3 (1) |
(1). Thời hạn trang bị được xác định bằng biểu đồ có sự thoả thuận của đơn vị CH - CN chuyên trách.
Cấm sử dụng vật liệu vật tư dùng để dập cháy trong kho vào công việc khác. Vật tư, vật liệu lấy từ kho dùng cho việc dập cháy sau khi đã sử dụng phải được bổ sung đủ sau một ngày - đêm.
Kho dập cháy trong hầm lò cũng như ở ngoài mặt bằng phải có cửa và khoá được kẹp chì. Chìa khoá kho (dưới mỏ và ngoài mặt bằng) do Bộ phận điều hành chỉ huy sản xuất mỏ giữ. Trường hợp khoá cửa kho hỏng, khi có sự cố có thể phá khoá để vào kho.
3. Những người có trách nhiệm và đơn vị CH - CN chuyên trách phải kiểm tra độ hoàn hảo của các phương tiện, thiết bị dập cháy, kiểm tra tình trạng đường ống nước dập cháy và nước trong ống.
Theo Điều 112 của Quy chuẩn này
1. Công việc có sử dụng ngọn lửa trần ở các mỏ đang hoạt động chỉ được tiến hành trong các ngày nghỉ và các ca sửa chữa. Trong các ngày và ca làm việc, công việc có ngọn lửa trần trong hầm lò chỉ được tiến hành để xử lý sự cố hoặc khi Giám đốc điều hành mỏ cho phép. Các công việc có ngọn lửa trần trong mọi trường hợp phải được thực hiện phù hợp với các biện pháp đặc biệt (Phụ lục V.1) lập cho từng vị trí, từng khu vực riêng biệt được Giám đốc điều hành mỏ phê duyệt có sự thoả thuận của đơn vị CH - CN chuyên trách hoặc Cơ quan phòng cháy, chữa cháy.
Thực hiện các công việc có ngọn lửa trần ở khu vực do nhà thầu đang xây dựng có chung hệ thống thông gió với mỏ đang sản xuất do Giám đốc điều hành mỏ ký duyệt các biện pháp an toàn. Các biện pháp an toàn này do Phó giám đốc cơ điện mỏ thiết lập.
Phó giám đốc cơ điện mỏ hoặc Phó Giám đốc đơn vị xây dựng mỏ phải đưa ra bản phân công thực hiện công việc (Phụ lục V.2) có sự thoả thuận với Quản đốc phân xưởng thông gió - đo khí. Trong bản phân công phải chỉ rõ nội dung công việc, địa điểm, thời gian, tính chất, khối lượng cắt hoặc hàn kim loại, biện pháp an toàn, tên và nhiệm vụ của người thực hiện công việc.
Bản phân công nhiệm vụ thực hiện công việc có ngọn lửa trần chỉ được đưa ra riêng cho từng ca dựa theo sổ phân công nhiệm vụ mẫu. Sổ ghi bản phân công nhiệm vụ thực hiện công việc có ngọn lửa trần phải được lưu giữ trong thời gian 1 năm.
Danh sách các cá nhân có quyền hạn phân công nhiệm vụ thực hiện các công việc có ngọn lửa trần (Phó giám đốc cơ điện mỏ, Quản đốc phân xưởng ...) phải được Giám đốc điều hành mỏ duyệt (ký tên và đóng dấu).
2. Trước khi tiến hành công việc, Phó giám đốc cơ điện mỏ hoặc Phụ trách cơ điện công trường phải chỉ đạo trực tiếp đại diện phân xưởng thông gió-đo khí tiến hành kiểm tra hàm lượng khí CH4, CO tại nơi thực hiện công việc ngọn lửa trần. Chỉ sau khi có kết quả kiểm tra hàm lượng khí CH4, CO đảm bảo an toàn theo quy định mới cho phép thực hiện công việc.
Để thực hiện chỉ đạo, kiểm soát công việc có ngọn lửa trần, người chịu trách nhiệm phân công nhiệm vụ phải có mặt tại vị trí thực hiện công việc và chịu trách nhiệm chính về diễn biến, kết quả công việc.
Trước khi tiến hành công việc ngọn lửa trần trong giếng chính và phỗng gió, Phó giám đốc cơ điện mỏ hoặc Phụ trách cơ điện công trường phải có mặt tại vị trí tiến hành công việc để kiểm tra các biện pháp kỹ thuật an toàn, sau đó mới cho tiến hành công việc. Đại diện phân xưởng thông gió - đo khí phải có mặt tại sân giếng hoặc tại đường lò bằng gần giếng nhất để tiến hành theo dõi khí CH4 và khí CO.
Nơi tiến hành công việc có ngọn lửa trần phải đảm bảo có phương tiện truyền tín hiệu dừng công việc khi cần thiết.
Trực tiếp chỉ đạo thực hiện công việc có ngọn lửa trần ở các mỏ có chung một hệ thống thông gió là Phó giám đốc cơ điện mỏ, Phụ trách cơ điện của đơn vị nhận thầu nếu công việc này thuộc về các đơn vị đó. Việc kiểm tra các biện pháp kỹ thuật an toàn do người của Phân xưởng thông gió - đo khí thực hiện. Trong mọi trường hợp người chịu trách nhiệm cao nhất là Giám đốc điều hành mỏ.
3. Cấm sử dụng hàn hơi axêtylen, prôpan và các chất hyđrôcacbon cháy; Phải sử dụng phương án hàn điện để thực hiện các công việc có ngọn lửa trần trong hầm lò và phỗng gió. Trường hợp không sử dụng hàn điện thì phải sử dụng mỏ hàn, cắt bằng dầu hoả với loại dầu hoả thích hợp. Mỗi lần sử dụng phương pháp hàn, cắt bằng dầu hoả phải có biện pháp kỹ thuật an toàn được phép của Giám đốc điều hành mỏ phê duyệt.
3.1. Khi sử dụng mỏ hàn, cắt bằng dầu hoả phải bổ sung các biện pháp sau:
a) Mỏ hàn, cắt dầu hoả phải được trang bị:
- Khoá liên động để đóng van cửa ra của dầu khi nổ ống;
- Van phòng ngừa chống sự xuất hiện tạt lại của ngọn lửa vào ống ôxy;
- Ống cao su chuyên dùng dẫn hơi hàn, cắt kim loại có đường kính trong để dẫn dầu hoả là 6,3mm, để dẫn ôxy là 9mm và dài từ 10 đến 12m. ống phải nguyên vẹn, không nối, không có vết nứt, vết cắt ở vỏ ống. Vị trí nối giữa ống mềm với thùng dầu và mỏ cắt phải có 2 kẹp;
b) Mức dầu hoả trong thùng phải luôn luôn thấp hơn 3/4 thể tích. Việc đổ dầu vào thùng phải tiến hành trên mặt bằng mỏ khi có mặt người chịu trách nhiệm về công việc có ngọn lửa trần;
c) Áp kế thùng chứa dầu hoả phải có nắp bảo vệ bằng kim loại để tránh va đập cơ khí;
d) Thùng và ống dẫn dầu hoả phải được thử độ bền thuỷ lực với áp lực 1MPa theo chế độ 6 tháng 1 lần. Kết quả phải được ghi vào sổ theo dõi. Kiểm tra tình trạng van ngược phải được tiến hành trước mỗi lần đưa vào làm việc;
e) Khi làm việc, thùng có chứa dầu phải đặt cách xa nguồn lửa với khoảng cách tối thiểu là 5m hoặc phải đặt trước thùng chứa dầu một tấm chắn bằng vật liệu không cháy;
g) Chỉ những người có chuyên môn và được Giám đốc điều hành mỏ quyết định giao nhiệm vụ mới được bảo quản và sử dụng thiết bị hàn, cắt bằng dầu hoả;
h) Trước khi đưa vào làm việc, mỗi tổ hợp thiết bị phải được đánh số, đăng ký trong sổ và kiểm tra.
3.2. Khi tiến hành công việc bằng mỏ hàn, cắt bằng dầu hoả, cấm:
a) Áp lực không khí trong thùng nhiên liệu vượt quá áp lực làm việc của Ôxy trong mỏ cắt;
b) Nung nóng mỏ cắt tới màu đồng thau, cũng như treo mỏ cắt theo phương đứng, quay đầu lên trên trong thời gian làm việc;
c) Kẹp, vặn xoắn hoặc làm ướt ống mềm dẫn ôxy và nhiên liệu;
d) Sử dụng ống dẫn ôxy để dẫn dầu.
4. Chỉ người có Giấy chứng nhận chuyên môn được Giám đốc điều hành mỏ quyết định giao nhiệm vụ (Phụ lục V.3) thực hiện các công việc có ngọn lửa trần mới được phép thực hiện các công việc có ngọn lửa trần trong hầm lò và nhà ngoài mặt bằng mỏ.
Việc kiểm tra sát hạch về an toàn đối với thợ hàn điện và hàn, cắt bằng dầu hoả thực hiện các công việc có ngọn lửa trần trong hầm lò được tiến hành một năm một lần.
5. Tất cả các vật liệu dễ bắt cháy (dầu, mỡ, sợi tơ, vật liệu lau chùi, vỏ bào, gỗ vụn...) phải thu dọn trước khi tiến hành công việc trên khoảng cách về các phía tối thiểu là 20m từ vị trí tiến hành công việc.
6. Khi thực hiện các công việc có ngọn lửa trần trong các lò bằng và nghiêng, phải thực hiện các quy định sau:
a) Dưới chi tiết hàn phải lót 1 tấm thép kích thước tối thiểu 1000mm x 1000mm, chiều dày tối thiểu 1mm, sau đó phủ lên đó một lớp cát hoặc bụi trơ dày từ 30mm đến 50mm. Các cột chống gỗ hoặc vật liệu cháy được, khung giếng và các công trình xây dựng khác nằm trên khoảng cách 2 mét từ vị trí tiến hành công việc có ngọn lửa trần phải được bảo vệ bằng tấm chắn kim loại;
b) Khi hàn, cắt các ray gần các tà vẹt gỗ, trên tà vẹt gỗ phải được che phủ tấm sắt kích thước tối thiểu là 250mm x 500mm. Trên tấm thép phải được phủ một lớp cát dày từ 30mm đến 50mm;
c) Trước khi thực hiện công việc có ngọn lửa trần trên các thùng chứa, đường ống trong đó có các chất lỏng và hơi có thể bốc cháy, phải rửa các thùng hoặc các đường ống này bằng các dung dịch kiềm, thông gió và phân tích môi trường khí ở trong đó. Các thùng, đường ống hàn, cắt phải cách ly với các đường ống khác bằng các tấm chắn. Công việc có ngọn lửa chỉ được tiến hành sau khi đã mở hết các nắp đậy, cửa, nút và các van...
7. Trong quá trình hàn, cắt các mẩu thừa của que hàn phải được thu gom bỏ vào hòm sắt đặt tại vị trí hàn, cắt.
8. Ở vị trí tiến hành công việc có ngọn lửa trần phải có tối thiểu hai bình chữa cháy, ống mềm chống cháy có vòi phun nước được nối với van nước chống cháy của đường ống gần nhất, hoặc goòng (thùng) chứa nước dự trữ tối thiểu 1m3 và 2 thùng cát và bụi trơ.
9. Trước khi bắt đầu công việc, nóc, hông lò phải được phun nước trong khoảng 10m về hai phía kể từ vị trí tiến hành công việc. Sau khi kết thúc công việc phải phun nước lại.
10. Cấm thực hiện các công việc có ngọn lửa trần tại:
a) Vị trí lò sẽ tiến hành công việc có các vật liệu dễ cháy hoặc trong khi tiến hành công việc có người đang làm các công việc khác;
b) Trong ga ra tàu điện ắc-quy, tại thời điểm các bình ắc quy đang nạp điện và 30 phút sau khi nạp;
c) Trong các đường lò nghiêng và đứng chống bằng gỗ có lối lên mặt bằng mỏ, trừ trường hợp đặc biệt khi được phép của cơ quan quản lý có thẩm quyền và đã bổ sung các biện pháp an toàn thì yêu cầu này không phải thực hiện.
11. Trong các lò đứng và nghiêng có lối lên mặt bằng mỏ được chống bằng các vật liệu không cháy, những bậc thang, khung làm bằng gỗ (đường dẫn hoặc thanh giằng), khi thực hiện các công việc có ngọn lửa trần phải đặt các sàn kim loại để bảo vệ, trên đó phủ lớp cát dày từ 60mm đến 80mm và các thiết bị khác để không cho xỉ hàn rơi lên những phần gỗ.
12. Lực lượng CH - CN phải liên tục túc trực tại vị trí tiến hành công việc có ngọn lửa trần và kéo dài thêm ít nhất 2h kể từ khi kết thúc công việc, đồng thời có trách nhiệm kiểm tra lại toàn bộ khu vực để đảm bảo an toàn, ghi kết quả vào bản phân công việc và trình người chỉ huy công việc có ngọn lửa trần.
13. Phó giám đốc cơ điện mỏ hoặc Quản đốc phân xưởng, những người chỉ huy công việc có ngọn lửa trần có trách nhiệm báo cáo Giám đốc điều hnàh mỏ, ghi chép lại toàn bộ kết quả thực hiện, thời gian thực hiện, thời gian bắt đầu, kết thúc công việc cũng như các kết quả kiểm tra xem xét sau khi kết thúc công việc vào sổ của bộ phận điều hành và chỉ huy sản xuất mỏ.
14. Trong hầm lò phải có kho bảo quản thiết bị hàn (trừ các thiết bị hàn ở trên mặt đất). Cử người có trách nhiệm sửa chữa, thử nghiệm, bảo quản và nhập xuất thiết bị dụng cụ mỗi khi có lệnh.
Chỉ giao thiết bị cho người đã có phiếu phân công việc với ngọn lửa trần. Số người này đã có trong danh sách trước đó. Sau khi kết thúc công việc, thiết bị phải được chuyển về bảo quản tại kho.
Phó giám đốc cơ điện mỏ chịu trách nhiệm:
a) Tổ chức bảo quản và đưa thiết bị hàn cắt bằng điện và dầu vào làm việc;
b) Một năm một lần, phải thống kê thiết bị hàn cắt điện, dầu và lập hồ sơ quản lý chúng.
1. Cho phép thực hiện các công việc có ngọn lửa trần trong mỏ nguy hiểm về khí và bụi nổ ở các giếng được chống bằng cột chống không cháy, sân giếng, các hầm trạm gần giếng, lò xuyên vỉa chính và lò bằng vận tải dùng tàu điện cần vẹt có luồng gió sạch đi qua.
2. Trước khi tiến hành công việc có ngọn lửa trần ở những lò nêu ở khoản 1 mục này phải:
a) Làm sạch bụi và làm ướt trên chiều dài 10m về cả hai phía của đường lò;
b) Kiểm tra hàm lượng khí Mêtan. Cấm thực hiện mọi công việc có ngọn lửa trần khi phát hiện có khí Mêtan.
3. Trường hợp đặc biệt, khi có lệnh bằng văn bản của Giám đốc điều hành mỏ cho phép tiến hành công việc có ngọn lửa trần trong giếng mỏ có luồng gió sạch đi qua, khi đó:
a) Phải có nhật lệnh riêng cho từng công việc có ngọn lửa trần;
b) Tất cả bụi than trong giếng và trong sân giếng có chiều dài 50m tính từ giếng phải được rửa hoặc rải bụi trơ;
c) Hàm lượng khí CH4 trong luồng gió đi qua giếng (đo bằng dụng cụ tác động liên tục ở các công trình xây dựng gần sân giếng với giếng, vị trí thực hiện công việc có ngọn lửa trần) không vượt quá 0,5%;
d) Phó giám đốc cơ điện mỏ hoặc người được uỷ quyền phải có mặt liên tục tại hiện trường để chỉ huy công việc.
1. Chỉ cho phép tiến hành các công việc có ngọn lửa trần trong mỏ nguy hiểm phụt than và khí bất ngờ trong giếng, sân giếng, hầm trạm gần giếng chống bằng vật liệu không cháy và có luồng gió sạch đi qua.
2. Trong thời gian tiến hành công việc có ngọn lửa trần, cấm mọi công việc đào lò, khai thác than, nổ mìn để phòng ngừa phụt than và khí bất ngờ. Các công việc này chỉ được khôi phục sau khi kết thúc công việc hàn cắt và có lệnh của Giám đốc điều hành mỏ. Các công việc có ngọn lửa trần chỉ được tiến hành sau khi nổ mìn 4 giờ.
3. Trong các mỏ có vỉa nguy hiểm về phụt than và khí bất ngờ, khi đào tới vị trí cách các vỉa đó 10m, nếu tiến hành các công việc có ngọn lửa trần thì phải thực hiện các biện pháp an toàn đặc biệt được Giám đốc điều hành mỏ phê duyệt.
4. Các công việc có ngọn lửa trần trong các giếng đứng có luồng gió thải đi qua phải được thực hiện theo trình tự ghi trong khoản 3 mục II.2 của Phụ lục này và phải kiểm tra các điều kiện sau:
a) Công việc có ngọn lửa trần được tiến hành khi hoàn toàn không có người trong các lò (trừ người trực trạm bơm thoát nước, người trực trạm nạp, thông gió cục bộ);
b) Chỉ huy công việc này phải là Giám đốc điều hành mỏ hoặc người được uỷ quyền.
1. Khi tiến hành các công việc có ngọn lửa trần trong các công trình ngoài mặt bằng mỏ, phải lập các yêu cầu chung quy định trong các khoản từ 1 đến 8 và từ 12 đến 16 mục II.1 của Phụ lục này, khi đó cho phép sử dụng hàn điện, hàn cắt bằng dầu và axetylen. Cấm điều chế axêtylen dưới hầm lò. Vị trí tiến hành công việc có ngọn lửa trần phải được chắn bằng tấm kim loại và làm ướt bằng nước trước và sau khi tiến hành công việc.
2. Chỉ cho phép thực hiện các công việc có ngọn lửa trần trên tháp, sàn puli và gần miệng giếng sau khi thực hiện các biện pháp bổ sung sau:
a) Kiểm tra độ hoàn hảo của thiết bị phun nước trong cổ giếng và trên tháp giếng bằng cách phun nước thử;
b) Đóng cửa chống cháy giếng và phủ lên đó một lớp cát hoặc bụi trơ dày từ 30mm đến 60mm;
c) Làm sạch dầu mỡ ở các cụm chi tiết hàn và các kết cấu gần đó đồng thời che chắn chúng bằng các vật liệu không cháy;
d) Đặt cạnh vị trí tiến hành công việc hàn, cắt tối thiểu 4 bình chữa cháy, 2 xô cát, ống mềm chữa cháy có vòi phun nước được nối với hệ thống ống đầy nước (gần vị trí làm việc) có áp lực không nhỏ hơn 0,4 MPa.
1. Các công việc có ngọn lửa trần được tiến hành phải theo kế hoạch được cơ quan quản lý mỏ có thẩm quyền phê duyệt, trong đó phải chỉ rõ vị trí, nội dung công việc và thời gian tiến hành. Nghiêm cấm việc thực hiện các công việc có ngọn lửa trần không có trong bản kế hoạch. Trường hợp xử lý sự cố, cơ quan quản lý mỏ có thẩm quyền giải quyết cho từng trường hợp cụ thể và thông báo cho đơn vị CH - CN chuyên trách hoặc cơ quan phòng cháy, chữa cháy gần nhất. Khi đó phải sửa lại bản kế hoạch các công việc có ngọn lửa trần.
2. Việc thực hiện các công việc có ngọn lửa trần phải theo kế hoạch và phù hợp với các biện pháp đặc biệt (xem Phụ lục V.1) lập cho mỗi vị trí đã được Giám đốc điều hành mỏ duyệt có sự thoả thuận với đơn vị CH - CN chuyên trách.
Ở mỏ đang cải tạo có chung hệ thống thông gió, các biện pháp đảm bảo an toàn cho các công việc có ngọn lửa trần của công trường xây dựng, cải tạo mỏ hoặc các đội nhận thầu do Quản đốc công trường (nếu đơn vị không có Phó giám đốc cơ điện mỏ) lập và Giám đốc điều hành mỏ duyệt.
Quản đốc hoặc Phụ trách cơ điện công trường sau khi nhận các biện pháp an toàn đã được duyệt, chuyển bản phân công việc có ngọn lửa trần tới Quản đốc phân xưởng thông gió-đo khí, trong đó chỉ rõ địa điểm, thời gian, tính chất và khối lượng hàn, cắt kim loại, biện pháp an toàn, tên và nhiệm vụ người thực hiện công việc có ngọn lửa trần.
Bản phân công nhiệm vụ phải được ghi vào sổ theo dõi của công trường, phân xưởng. Quyển sổ này phải được bảo quản 1 năm.
Tờ phân công nhiệm vụ được ghi theo ca là chứng từ cơ bản để nhận thiết bị và tiến hành các công việc hoặc để gửi, trả thiết bị hàn cắt vào nơi bảo quản.
Phụ trách cơ điện công trường là người chịu trách nhiệm tổ chức bảo quản và cấp thiết bị hàn. Cấp phát, nhận trả thiết bị phải được ghi và ký nhận vào sổ theo dõi (xem mẫu sổ thống kê cấp, nhận và bảo quản thiết bị hàn).
3. Các công việc có ngọn lửa trần được tiến hành dưới sự chỉ huy trực tiếp của những người có giấy chứng nhận do Giám đốc điều hành mỏ cấp. Phải phân công những người đã theo học lớp cấp cứu, biết sử dụng máy thở có mang theo máy thở và kỹ thuật viên Phân xưởng thông gió - đo khí liên tục đo kiểm tra hàm lượng khí Mêtan (CH4) và Oxitcacbon (CO) trong bầu không khí mỏ. Những người kể trên phải có mặt trực tiếp tại vị trí kiểm tra việc thực hiện các biện pháp kỹ thuật an toàn, đánh dấu vào bản phân công nhiệm vụ những biện pháp kỹ thuật an toàn đã được thực hiện và chỉ khi đã thực hiện hết các công việc về kỹ thuật an toàn mới quyết định cho thực hiện công việc.
Khi thực hiện các công việc có ngọn lửa trần trong giếng đứng và phỗng gió, người chỉ huy công việc phải có mặt tại vị trí tiến hành công việc và sau khi đã kiểm tra kỹ việc thực hiện các biện pháp kỹ thuật an toàn mới quyết định cho tiến hành công việc.
Người của Phân xưởng thông gió - đo khí và lực lượng CH - CN chuyên trách hoặc bán chuyên trách phải có mặt tại lò bằng gần sân giếng để tiến hành đo kiểm tra hàm lượng khí Mêtan và Oxitcacbon.
4. Biện pháp an toàn cho các công việc có ngọn lửa trần hàng ngày của đội lắp máy do Đội trưởng đội lắp máy lập, Giám đốc mỏ đang xây dựng duyệt. Khi thực hiện các công việc đó có thể uỷ quyền chỉ huy trực tiếp cho trực ca. Kiểm tra và chỉ huy chung về an toàn trong trường hợp này là Quản đốc đội lắp máy hoặc người được uỷ quyền.
5. Ở các mỏ đang xây dựng hoặc cải tạo, khi chưa có thông gió nhờ hạ áp chung của mỏ và có lối ra thứ hai, trước khi tiến hành các công việc có ngọn lửa trần phải đưa tất cả mọi người (trừ những người làm công tác an toàn như trực quạt gió cục bộ, thoát nước...) ra khỏi các lò có luồng gió thải đi qua, đồng thời phải tiến hành làm ướt các lò đó.
CÁC BIỆN PHÁP ĐẢM BẢO AN TOÀN THỰC HIỆN CÔNG VIỆC CÓ NGỌN LỬA TRẦN
(Văn bản này được lưu giữ 1 năm)
1. Cơ quan quản lý mỏ có thẩm quyền:.....................................
2. Mỏ:....................................................................
3. Chỉ huy công việc: (Họ, tên, chức danh, chữ ký) ………
4. Đại diện An toàn mỏ: (Họ, tên, chức danh, chữ ký)……………….….
5. Đại diện Phân xưởng thông gió - đo khí: (Họ, tên, chức danh, chữ ký):...
6. Đại diện đơn vị CH - CN chuyên trách: (Họ, tên, chức danh, chữ ký):................
7. Thợ hàn, cắt: (Họ, tên, bậc thợ, chữ ký)..................................................
8. Vị trí thực hiện công việc có ngọn lửa trần:...........................
a) Bắt đầu vào:........giờ ......ca.......ngày.......tháng......năm.......................
b) Kết thúc công việc vào: .....giờ ......ca.......ngày.......tháng......năm.....
9. Nội dung công việc có ngọn lửa trần:
a) Hàn, cắt, sửa chữa thiết bị .................
b) Phương tiện thực hiện (chỉ rõ loại thiết bị, số lượng, đơn vị tính)
10. Thực hiện công việc có ngọn lửa trần theo bản giao nhiệm vụ của Phó giám đốc cơ điện mỏ Ông: …. hoặc người được uỷ quyền Ông: ................. , có sự thoả thuận của đơn vị CH - CN chuyên trách.
11. Trong toàn bộ thời gian tiến hành công việc có ngọn lửa trần, tại vị trí làm việc có:
a) Người chỉ huy thực hiện công việc có ngọn lửa trần (chức vụ, họ và tên).........
b) Công việc có ngọn lửa trần được tiến hành với sự có mặt người của đơn vị CH - CN chuyên trách (họ, tên, chức vụ)................................................
12. Biện pháp kỹ thuật an toàn
|
Liệt kê các biện pháp |
Chịu trách nhiệm (Chức vụ, họ và tên, chữ ký) |
|
1. Trước lúc bắt đầu công việc có ngọn lửa trần: - Xem xét vị trí tiến hành công việc, thu dọn tất cả các vật liệu dễ cháy (dầu mỡ, làm sạch các vật liệu….) trên khoảng cách không nhỏ hơn 20m từ vị trí có ngọn lửa trần; - Làm ướt nền, hông và nóc lò bằng nước trên chiều dài tối thiểu 10m về tất cả các hướng từ vị trí tiến hành công việc có ngọn lửa trần; - Tiến hành đo hàm lượng khí cháy và độc tại vị trí làm việc; - Khi không có hàm lượng khí cháy và độc hại vượt giới hạn, cho phép tiến hành công việc; - Số lượng bình cứu hoả đặt tại vị trí tiến hành công việc (cái); - Thùng (xô) cát hoặc bụi trơ (cái); - Ống mềm chống cháy có vòi phun nước được nối với đường ống nước (cái); - Người ra khỏi các đường lò (từ các lò có nguy hiểm về khí cháy, độc); - Kiểm tra sự làm việc hoàn hảo của thiết bị hàn, cắt điện, dầu và thiết bị bảo vệ chúng ... 2. Khi tiến hành các công việc có ngọn lửa trần: - Cách ly các chi tiết gia công với yếu tố gây cháy bằng các tấm chắn (tấm sắt, lớp cát). Bỏ các đầu thừa của que hàn vào thùng sắt; - Phải để thùng chứa dầu cách nguồn sinh lửa trên khoảng cách tối thiểu là 5m; - 30 phút 1 lần kiểm tra hàm lượng khí cháy và độc trong bầu không khí tại vị trí tiến hành công việc. Trong trường hợp vượt quá hàm lượng phải dừng ngay công việc, mọi người lập tức phải ra khỏi vùng nguy hiểm. 3. Sau khi kết thúc công việc có ngọn lửa trần: - Làm ướt nền, hông, nóc lò bằng nước trên chiều dài không nhỏ hơn 10m về tất cả mọi phía kể từ vị trí tiến hành công việc; - Thành viên lực lượng CH - CN chuyên trách trực tại vị trí tiến hành công việc tối thiểu 2 giờ kể từ sau khi kết thúc công việc đẻ xem xét kiểm tra (vị trí tiến hành công việc) và báo cáo bộ phận điều hành và chỉ huy sản xuất mỏ. Chỉ được phép kết thúc công việc trực khi được sự cho phép của bộ phận điều hành và chỉ huy sản xuất mỏ. |
|
13. Các phương pháp an toàn đặc biệt bổ sung (nếu có, không làm thay đổi các công việc đã được thoả thuận và phê duyệt):................................
Ghi chú: Các biện pháp an toàn thực hiện công việc có ngọn lửa trần của các công trường xây dựng mỏ hoặc các đội thầu khoán (tại các mỏ đang cải tạo có chung hệ thống thông gió) do Quản đốc công trường lập và được Giám đốc điều hành mỏ duyệt.
Ngày tháng năm…
|
Đại diện đơn vị CH-CN chuyên trách Thoả thuận (Ký, ghi rõ họ và tên)
|
Giám đốc điều hành mỏ (Ký, đóng dấu, ghi rõ họ và tên) |
BẢN PHÂN CÔNG THỰC HIỆN CÔNG VIỆC CÓ NGỌN LỬA TRẦN
Cơ quan quản lý mỏ có thẩm quyền........................................................
Mỏ:..........................................................................................................
Họ, tên người chỉ huy công việc……………………………
Họ, tên người thực hiện công việc......................................................
Giấy chứng nhận số.....được thực hiện công việc có ngọn lửa trần loại............. ngày.....tháng .... năm.....
Bắt đầu tiến hành công việc từ.......giờ….. đến.............giờ………..
1. Vị trí tiến hành công việc….............................................................
2. Tính chất công việc…......................................................................
3. Người chịu trách nhiệm về an toàn…..............................................
4. Thiết bị hàn (cắt) loại…...................................................................
5. Công việc tiến hành theo biện pháp từ ngày......tháng.......năm.........
|
Công việc thực hiện |
Đánh dấu vào phần thực hiện |
|
1. Trước lúc tiến hành công việc kiểm tra: - Công việc thu dọn vật liệu dễ cháy, che chắn các kết cấu bằng vật liệu không cháy tại vị trí tiến hành công việc; - Hàm lượng khí Mêtan và khí cháy để đảm bảo không vượt giới hạn cho phép; - Thu dọn bụi than, làm ướt vị trí làm việc; - Số lượng và chất lượng các phương tiện chống cháy; thiết bị hàn, cắt. |
Người chỉ huy công việc có ngọn lửa trần (ký, ghi rõ họ và tên) |
|
2. Khi tiến hành công việc: Các phần thừa của các que hàn phải bỏ vào trong hòm sắt; trong trường hợp cháy hoặc hàm lượng khí Mêtan tăng thì lập tức dừng ngay công việc, báo cáo bộ phận điều hành chỉ huy sản xuất mỏ và người chỉ huy công việc có ngọn lửa trần. |
Người chỉ huy công việc có ngọn lửa trần (ký, ghi rõ họ và tên) |
|
3. Kết thúc công việc: Kiểm tra an toàn vị trí làm việc và tưới nước. |
Người kiểm tra an toàn (ký, ghi rõ họ và tên) |
Người phân công nhiệm vụ ký:………………………………………...
Phụ trách Phân xưởng thông gió - đo khí ký:…………………………
Chỉ huy công việc có ngọn lửa trần ký:……………………………………..
Người nhận nhiệm vụ ký:……………………………………………...
Ghi chú:
- Bản phân công nhiệm vụ thực hiện công việc có ngọn lửa trần của công trường (đơn vị nhận thầu khoán) ở các mỏ đang sửa chữa có hệ thống thông gió chung có thể do Phó giám đốc cơ điện mỏ thực hiện;.
- Bản phân công nhiệm vụ thực hiện công việc có ngọn lửa trần ở các mỏ đang xây dựng do Quản đốc đơn vị nhận thầu khoán hoặc người được uỷ quyền thực hiện;
- Bản phân công nhiệm vụ thực hiện công việc có ngọn lửa trần của những đơn vị nhận thầu lắp đặt do Quản đốc công trường thực hiện và chỉ huy chung toàn bộ công việc trên.
MẪU GIẤY CHỨNG NHẬN THỰC HIỆN CÔNG VIỆC CÓ NGỌN LỬA TRẦN
(Dùng để gia hạn)
|
CỘNG HOÀ XÃ HỘI CHỦ NGHĨA VIỆT NAM Độc lập - Tự do - Hạnh phúc ----------------------
GIẤY CHỨNG NHẬN
THỰC HIỆN CÔNG VIỆC CÓ NGỌN LỬA TRẦN
Họ và tên:……………….. Năm sinh:……………….. (Ảnh) Quê quán:……………….. Nghề nghiệp:…………… Đơn vị công tác:………..
Số:…… Theo Quyết định số…./QĐ- ngày/tháng/năm
Giấy chứng nhận có giá trị 01 năm từ ngày/tháng/năm đến ngày/ttháng năm
|
Đã học lớp huấn luyện kỹ thuật an toàn thực hiện công việc có ngọn lửa trần Do: Công ty (mỏ)…………………. mở từ ngày/tháng/năm đến ngày/tháng/năm Đã được kiểm tra, sát hạch đạt kết quả loại: …….,ngày….tháng….năm…
Giám đốc điều hành mỏ (ký, ghi rõ họ tên và đóng dấu)
Đã tham gia huấn luyện kỹ thuật an toàn thực hiện công việc có ngọn lửa trần bổ sung do Công ty (mỏ)…………………….mở.
Đạt kết quả loại:………. Được phép thực hiện công việc có ngọn lửa trần
……ngày….tháng….năm 20… |
HƯỚNG DẪN VỀ LẬP PHƯƠNG ÁN ỨNG CỨU SỰ CỐ - TÌM KIẾM CỨU NẠN (ƯCSC – TKCN)
1. Hàng quý, mỏ hầm lò phải lập kế hoạch ƯCSC - TKCN có sự thoả thuận của đơn vị CH - CN chuyên trách và phải được Giám đốc điều hành mỏ phê duyệt trước 15 ngày quý đó.
2. Kế hoạch ƯCSC - TKCN phải dự kiến những biện pháp sẽ được thực hiện ngay khi phát hiện ra sự cố và phải đảm bảo:
a) Các biện pháp cứu hộ - cứu nạn;
b) Xử lý, ngăn chặn kịp thời và phòng ngừa sự phát triển của sự cố.
3. Trước khi lập kế hoạch ƯCSC - TKCN phải kiểm tra:
a) Sự đảm bảo về các phương tiện phòng chống cháy và tình trạng của chúng;
b) Tình trạng của các thiết bị thông gió, đặc biệt bộ phận đảo chiều của thiết bị thông gió chính phải làm việc tốt, khả năng thực hiện các chế độ thông gió được dự kiến theo kế hoạch;
c) Sự ổn định của các luồng gió trong hầm lò khi có hiện tượng giảm áp do nhiệt từ đám cháy, các biện pháp ngăn chặn các luồng gió tự đảo chiều và bảo đảm chế độ thông gió an toàn ổn định;
d) Các lối thoát hiểm;
e) Thời gian người di chuyển trong hầm lò tại các điểm xảy ra sự cố phù hợp với thời gian tác dụng bảo vệ của bình tự cứu hiện đang được sử dụng tại mỏ;
g) Số lượng, tình trạng và việc trang bị các bình tự cứu cho người lao động (nơi bảo quản các thiết bị cấp cứu, điểm bố trí các thiết bị tự cứu dự phòng, …);
h) Phân công phạm vi trách nhiệm đối với các thành viên lực lượng CH - CN và các điểm liên lạc của họ trong mỏ;
i) Số lượng, tình trạng của các thiết bị thông tin trong kế hoạch ƯCSC – TKCN.
4. Ngoài các nội dung tại khoản 3 nêu trên, phải:
a) Dự báo về tình trạng khí độc tại các khu vực hầm lò khi dừng quạt gió hoặc hệ thống thông gió bị vi phạm;
b) Thời gian khí tích tụ đến giới hạn cho phép trong các gương lò cụt khi dừng quạt gió. Dự báo các vùng có khả năng đảo chiều luồng gió khi xuất hiện đám cháy để có kế hoạch thích hợp cứu người và loại trừ sự cố . Xác định các vùng nguy hiểm về phụt khí bất ngờ, bục nước, bùn, sét.
Các nội dung kiểm tra trên đây phải được ghi thành văn bản, Giám đốc điều hành mỏ duyệt và phổ biến cho tất cả những người liên quan có trách nhiệm thực hiện.
5. Phương án ƯCSC - TKCN được lập phải phù hợp với tình trạng của khu khai thác trong thời điểm tương ứng. Các phương tiện kỹ thuật và vật chất được dự kiến trong phương án để thực hiện các biện pháp cứu người và xử lý sự cố phải ở trong tình trạng tốt và đủ về số lượng. Những người có trách nhiệm thực hiện các biện pháp phải biết cách sử dụng chúng một cách thành thạo. Các đơn vị trong cùng một hệ thống thông gió mỏ (các đơn vị khai thác, xây dựng mỏ và cải tạo mỏ) phải lập chung một kế hoạch ƯCSC - TKCN thống nhất.
Giám đốc điều hành mỏ và Giám đốc đơn vị CH - CN chuyên trách chịu trách nhiệm về việc xây dựng phương án ƯCSC - TKCN và phương đó phải phù hợp với thực tế hoạt động sản xuất của mỏ.
6. Khi đưa vào khai thác các khu vực hầm lò mới hoặc loại bỏ các khu vực hầm lò cũ, nếu làm thay đổi hệ thống thông gió, trong vòng một ngày - đêm Giám đốc điều hành mỏ phải đưa vào phương án ƯCSC - TKCN những sửa đổi và bổ sung, đồng thời thông báo, thống nhất với đơn vị CH - CN chuyên trách. Trường hợp những thay đổi cần thiết chưa được đưa vào phương án hoặc phát hiện ra những vấn đề của phương án không phù hợp với thực trạng của mỏ, Giám đốc đơn vị CH - CN chuyên trách có quyền không đồng ý với phương án đó và kiến nghị sửa đổi; Trường hợp không thống nhất, đơn vị CH - CN chuyên trách có quyền báo cáo lên cơ quan quản lý mỏ có thẩm quyền về những ý kiến không thống nhất của mình.
7. Phương án ƯCSC - TKCN phải bao gồm:
a) Phần hành động, được lập theo Mẫu sổ 01 Phụ lục này;
b) Danh sách các cá nhân và cơ quan phải được thông báo ngay về sự cố theo Mẫu sổ 03 Phụ lục này;
c) Các hoạt động của người lao động trong hầm lò khi xảy ra sự cố theo Mẫu sổ 04 Phụ lục này;
d) Các khuyến nghị về việc khắc phục hậu quả sự cố chưa có trong kế hoạch (đứt cáp thùng cũi, cháy do điện…) theo Mẫu sổ 05 Phụ lục này;
8. Phần hành động của phương án ƯCSC - TKCN bao gồm các nội dung sau:
a) Sơ đồ thông gió mỏ được lập theo những yêu cầu của “Quy định về lập kế hoạch thông gió”. Trên sơ đồ thông gió ghi thêm thời gian tích tụ khí trong các gương lò cụt đến giới hạn hàm lượng cho phép, các điểm liên lạc, sơ đồ các ống dẫn tháo khí có chỉ dẫn nơi đặt van và các thiết bị đo kiểm tra (nếu ở mỏ có hệ thống tháo khí);
b) Sơ đồ các khu khai thác có ghi các phương tiện chữa cháy, các phương tiện thông tin về sự cố (bình chữa cháy, họng nước, điện thoại, bộ đàm); Các phương tiện cấp cứu người khi có sự cố, sơ đồ cấp nước từ hệ thống nước cấp nước chung, các bể chứa và các nguồn khác;
c) Bản sơ đồ thu nhỏ hầm lò (chỉ dùng bản lưu trữ ở đơn vị CH - CN chuyên trách) có đánh dấu hướng chuyển động của không khí, nơi đặt điện thoại và các số điện thoại của Bộ phận điều hành và chỉ huy sản xuất mỏ; độ dài và góc nghiêng của các đường lò chính;
c) Biên bản kết quả kiểm tra mức độ chuẩn bị của mỏ để xử lý sự cố, thực hiện theo khoản 4 mục A của Phụ lục này.
9. Để thuận tiện cho việc sử dụng phương án ƯCSC - TKCN , mỗi hầm lò (mỗi nhóm hầm lò, mỗi công trình ngoài mặt bằng mỏ) mang một số hiệu xác định (vị trí) được ghi trên sơ đồ thông gió (sơ đồ các đường lò). Các vị trí được đánh số theo hướng chuyển động của luồng gió, bắt đầu từ ngoài mặt bằng mỏ. Các hầm lò trong cùng một vị trí được đánh dấu cùng một màu theo sơ đồ thông gió.
Trong phần hành động của phương án ƯCSC - TKCN, các vị trí được sắp xếp theo theo thứ tự tăng dần. Số của mỗi vị trí phải trùng với số trong các trang của phần hành động. Phương án ƯCSC - TKCN phải có tờ bìa có các chữ ký của người lập, Giám đốc điều hành mỏ, Giám đốc đơn vị CH - CN chuyên trách và xác nhận của cơ quan quản lý mỏ có thẩm quyền.
10. Phương án ƯCSC - TKCN cùng với các Phụ lục tương ứng phải được lưu giữ tại Bộ phận điều hành và chỉ huy sản xuất mỏ, đơn vị CH - CN chuyên trách và Phụ trách thông gió mỏ.
Quản đốc các phân xưởng phải có bản quy tắc hành động của người lao động khi xảy ra sự cố. Trong bản phương án ƯCSC - TKCN lưu giữ tại Bộ phận điều hành và chỉ huy sản xuất mỏ giữ, phải có giấy phép đặc biệt cho phép người vào mỏ trong thời gian xảy ra sự cố. Tại trạm điện thoại của mỏ, phải có danh sách những người và cơ quan cần thông báo khi sự cố xảy ra.
11. Giám đốc điều hành mỏ phải tổ chức nghiên cứu và phổ biến kế hoạch ƯCSC - TKCN cho những người có liên quan trước khi phương án có hiệu lực. Các nhân viên kỹ thuật cũng phải tìm hiểu về “Trách nhiệm của những người có nhiệm vụ liên quan tham gia vào công tác ƯCSC - TKCN ”. Mỗi quý một lần hoặc khi có sự điều chỉnh phần hành động của phương án ƯCSC - TKCN liên quan đến khu vực đó, Quản đốc phân xưởng phải phổ biến cho người lao động về các quy tắc hành động khi xảy ra sự cố và các lối thoát hiểm khi người lao động vào hầm lò làm việc.
Sau khi đã được giới thiệu về các quy tắc hành động khi xảy ra sự cố và các lối thoát hiểm, người lao động ký xác nhận vào “Sổ chỉ dẫn an toàn lao động ”.
1. Các mục của phần hành động được lập cho các trường hợp:
a) Cháy: Cho tất cả các công trình trong hầm lò, các công trình và nhà ngoài mặt bằng mỏ, các khu vực mà khi cháy các vật cháy có thể xâm nhập vào hầm lò, nhà có thang máy, nhà để máy nén khí, nhà để máy bơm chân không;
b) Nổ: Cho tất cả các công trình trong hầm lò có khí nổ (buồng lật goòng, buồng chất than, kho than dạng “ủ”, gương lò chợ và lò cụt khi tiến hành nổ mìn, các lò có than chuyển động tự chảy…), các nhà của trạm bơm chân không và nén khí và các kho vật liệu nổ;
c) Phụt than, đất đá và khí bất ngờ: Cho tất cả các gương lò chợ và gương lò chuẩn bị;
d) Bục nước: Cho tất cả các lò và vùng có nguy cơ bị bục nước, bùn, sét;
e) Sập lò than và đá: Lập cho tất cả các hầm lò của mỏ.
2. Phương án ƯCSC - TKCN có thể lập chung cho vài mỏ với điều kiện sau:
a) Các mỏ có chung hệ thống thông gió;
b) Các thành viên lực lượng CH - CN chuyên trách cùng tham gia vào việc ƯCSC - TKCN và trong thời gian tối đa 30 phút họ tới được một mỏ bất kỳ bị sự cố;
3. Đối với lò cụt không nối tiếp với gương lò chợ có độ thoát khí cao, phải lập một mục riêng cho trường hợp cháy, nổ.
4. Tuỳ theo đặc điểm và nơi xảy ra sự cố, mức độ nguy hiểm khi nó phát triển, trong các mục của phương án phải tính đến các biện pháp chính sau đây về công tác cứu người, loại trừ sự cố và ngăn ngừa sự cố phát triển theo trình tự sau:
a) Ngay lập tức gọi cho đơn vị CH - CN chuyên trách khi xảy ra bất kỳ sự cố nào và mức độ ra sao. Yêu cầu rõ số lượng các bộ phận và phương tiện kỹ thuật đặc biệt của lực lượng CH - CN chuyên trách phải có mặt tại mỏ theo tín hiệu “Báo động”. Nếu có cháy tại các nhà và công trình ngoài mặt bằng mỏ, tại các lò giếng, phỗng gió và các hầm lò khác có lối lên trên mặt đất, phải gọi thêm Đội phòng cháy, chữa cháy địa phương;
b) Cho quạt làm việc ở chế độ sự cố, đảm bảo cho người thoát hiểm theo các đường lò không có khí nổ, khí độc, không bị sập và những trở ngại khác. Chế độ thông gió sự cố phải tính đến:
- Khi có nổ hoặc phụt than, đất đá và khí bất ngờ thì hướng của luồng gió vẫn giữ như trước khi có sự cố, các phương pháp tăng cường cung cấp không khí cho khu vực bị sự cố;
- Khi cháy nhà, công trình ngoài mặt bằng mỏ, giếng hoặc sân giếng có luồng gió vào, sự đảo chiều của luồng gió. Khi mở rộng vùng đảo chiều gió ra các lò chính khác của mỏ, nơi có luồng gió đến, phải xem xét khả năng thực hiện dập cháy trong điều kiện kỹ thuật cụ thể;
- Khi cháy ở rãnh gió của giếng có luồng gió thải, cháy nhà, công trình trên miệng các giếng đó (khi thông gió hút), phải đảm bảo quạt làm việc bình thường ở lò thông gió chính của giếng bị sự cố. Việc đảo chiều gió các quạt còn lại của lò thông gió chính (nếu có) nhằm đảm bảo luồng gió hút ổn định theo giếng bị sự cố khi quạt dừng đột ngột;
- Khi cháy trong nhà và rãnh gió (khi thông gió hút) phải đảo chiều quạt không bị sự cố, sau đó tắt quạt bị sự cố, đóng rãnh gió bằng cửa chắn, mở các cửa cách ly trong nhà trên mỏ. Nếu thông gió đẩy, dừng quạt bị sự cố lại, quạt kia làm việc ở chế độ bình thường;
- Đối với các lò nghiêng được thông gió từ trên xuống, để ngăn chặn sự đảo chiều của luồng gió do cháy gây ra giảm áp, phải dự tính đến các biện pháp tăng sức cản trong các lò song song và trong các lò nối giữa chúng; Khi không thể tạo ra sự thông gió từ trên xuống ổn định, phải tính tới việc đảo chiều gió cục bộ hoặc toàn mỏ;
- Đối với các lò nghiêng được thông gió từ dưới lên, để ngăn chặn sự sai lệch chế độ thông gió trong các lò song song, sự thay đổi chiều gió và sự xâm nhập của các sản phẩm cháy có trong luồng không khi mới, phải dự kiến các biện pháp giảm mức độ ảnh hưởng của sự giảm áp do nhiệt (đóng các cửa phòng cháy dẫn đến nguồn cháy…);
- Khi cháy trong gương lò cụt có khí nổ, phải giữ chế độ thông gió bình thường như trước khi cháy;
- Nếu cháy trong các lò khác, phải giữ chế độ làm việc bình thường của các quạt trong hệ thống thông gió chính.
- Tuỳ thuộc vào loại và vị trí nơi xảy ra sự cố, khí thải..., có thể giảm hoặc tăng lượng gió, dừng quạt, làm ngắn đường đi của khí thải hoặc đảo chiều cục bộ luồng gió.
c) Chế độ cung cấp năng lượng khi xảy ra sự cố
- Khi có nổ phải dừng ngay việc cung cấp điện cho toàn mỏ;
- Khi cháy, phụt than hoặc khí bất ngờ trong các khu vực riêng biệt, dừng cấp điện cho các khu vực đó và các lò có luồng gió đi ra từ khu vực cháy;
- Khi cháy các công trình của giếng (phỗng gió) có luồng khí thải đi ra, các công trình khác ngoài mặt bằng mỏ, trong các hầm được thông gió riêng biệt (gara điện, nhà kho vật liệu nổ…) thì chỉ dừng cung cấp điện tại những vị trí đó;
- Khi cháy ở những lò có luồng khí thải, chỉ cắt điện tại những lò đó;
- Khi có cháy trong lò cụt nguy hiểm về nổ khí Mêtan, cắt điện trong lò bị sự cố, nhưng vẫn phải cung cấp điện cho quạt thông gió cục bộ của lò đó;
- Nếu trong lò có sử dụng năng lượng khí nén, phải đảm bảo sao cho khí nén được cấp tới mỏ khi có nổ, phụt than hoặc khí bất ngờ, sập lò, cũng như khi có cháy trong các lò cụt nguy hiểm về khí Mêtan;
d) Việc thông báo và đưa người thoát hiểm khỏi khu vực sự cố phải dựa vào những quy định sau:
- Mọi người làm việc tại mỏ phải được thông báo về sự cố xảy ra, trong đó chỉ rõ phương pháp thông báo (các tín hiệu bằng âm thanh, ánh sáng, điện thoại…). Trước tiên thông báo cho những người ở khu vực sự cố và có nguy cơ sự cố;
- Khi có nổ khí hoặc bụi than, trong trường hợp đảo chiều các quạt của hệ thông gió chính, cũng như khi có cháy trong hầm lò chỉ có hai lối lên mặt đất, phải dự tính đến việc đưa tất cả mọi người thoát hiểm khỏi mỏ;
- Khi có cháy trong hầm lò có hơn hai lối dự phòng lên mặt đất, nếu vẫn duy trì chế độ thông gió bình thường, cần dự tính đến việc đưa người thoát hiểm từ các lò và khu vực, nơi có các sản phẩm cháy và từ những khu vực bị đe doạ mất an toàn (Khu vực được coi là bị đe doạ nếu do sự cố nó có thể bị tích khí hoặc không có lối ra thứ hai).
- Đối với trường hợp sự cố có tính chất cục bộ, chỉ tiến hành đưa người thoát hiểm từ các khu vực bị sự cố và bị đe doạ.
- Để đẩy nhanh việc đưa người thoát hiểm khỏi khu vực bị sự cố, phải sử dụng các loại phương tiện có thể vận chuyển người đến nơi an toàn và đồng thời đưa lực lượng CH - CN và các nhân viên y tế tới nơi xảy ra sự cố;
- Khi có khí tích tụ ở các lối thoát chính (ví dụ giếng thùng cũi), phải chỉ ra trình tự chuẩn bị các lối thoát dự phòng để đưa người ra và đưa lực lượng CH - CN vào lò;
5. Nhiệm vụ của lực lượng CH - CN chuyên trách đến trợ giúp do Giám đốc điều hành mỏ của nơi xảy ra sự cố phân công. Trong nhiệm vụ phải nêu các khu vực và lò mà từ đó các thành viên lực lượng CH - CN được huy động cùng với các trang thiết bị CH - CN. Hướng di chuyển tới vùng bị sự cố phải đi từ hướng luồng gió sạch.
6. Các biện pháp ƯCSC - TKCN trong giai đoạn đầu được dự kiến:
a) Đảm bảo việc cấp nước tới nơi có cháy (chạy máy bơm, ngắt các ống dẫn song song …);
b) Sử dụng các thiết bị dập cháy cố
định (họng nước, trạm bơm …);
c) Đưa đoàn xe cứu hoả tới nơi có cháy;
d) Sử dụng các máy bơm và ống bơm hiện có; ngăn không để các trạm bơm chính bị ngập nước, bùn bất ngờ …
Hình PVI.H1 Sơ đồ mẫu các hầm lò mỏ
e) Các biện pháp đề phòng sự phát triển của sự cố:
g) Đóng các nắp phòng cháy và cửa trong các hầm lò;
h) Mở các màn nước, máy phun nước trên đường lò mà sự cố có khả năng phát triển.
7. Phương án ƯCSC - TKCN phải đề ra:
a) Các phương tiện để vận chuyển thiết bị kỹ thuật dập cháy bằng bột và bọt tới nơi sự cố;
b) Phương án sơ tán các phương tiện gây nổ và các vật liệu dễ nổ ra khỏi các kho vật liệu nổ khi có cháy tại đó;
c) Biện pháp đề phòng các cáp và phụ kiện của thùng nâng bị rơ rão do cháy;
d) Biện pháp đề phòng việc dừng thông gió do hầm lò bị sập và ngập nước do dùng nước để dập cháy …
8. Nhiệm vụ của lực lượng CH - CN chuyên trách và lực lượng phòng cháy, chữa cháy:
a) Những người đầu tiên của lực lượng CH - CN chuyên trách phải tập trung vào việc cứu người loại trừ sự cố trong hầm lò;
b) Lực lượng chữa cháy tập trung vào công tác loại trừ sự cố cháy nhà, các công trình ngoài mặt bằng mỏ, các lò có lối lên mặt đất;
c) Trường hợp mỏ ở xa đơn vị CH - CN chuyên trách, mỏ phải tập hợp lực lượng CH - CN bán chuyên trách của mỏ, tổ chức thành các đội và giao nhiệm vụ cứu người và loại trừ sự cố …
Trong phần hành động phải nêu rõ nhiệm vụ và biện pháp thực hiện cho từng cán bộ kỹ thuật phụ trách các khu vực của mỏ.
MẪU VÀ SƠ ĐỒ MẪU LẬP PHẦN HÀNH ĐỘNG CỦA PHƯƠNG ÁN ỨNG CỨU SỰ CỐ - TÌM KIẾM CỨU NẠN
(phù hợp với sơ đồ mẫu các lò của mỏ trên Hình PVI.H1)
|
Số |
Các biện pháp cứu người và loại trừ sự cố |
Người chịu trách nhiệm thực hiện; người thực hiện. |
|
Điểm xảy ra và giả định sự cố 1: Cháy tại nhà giếng thùng cũi |
||
|
1 |
Gọi Đội 2 của đơn vị CH - CN chuyên trách và bộ phận chữa cháy. |
- Bộ phận điều hành và chỉ huy sản xuất mỏ; Người trực điện thoại. - Trưởng lực lượng CH - CN chuyên trách; Người trực điện thoại. |
|
2 |
Đảo chiều của quạt tại hệ thông gió chính của giếng skip. |
- Phó giám đốc cơ điện mỏ. - Cán bộ trực điều hành và chỉ huy sản xuất mỏ. |
|
3 |
Cắt điện tại nhà giếng thùng cũi (ngăn 2 của phân trạm mặt đất) và cánh panen của mỏ (lối vào số 2 của phân trạm). |
- Phó giám đốc cơ điện mỏ. - Người trực phân trạm điện. |
|
4 |
Cắt điện tại lò thượng cánh Đông sau khi đã đưa hết người ra lò dọc vỉa thông gió chính. |
- Phó giám đốc cơ điện mỏ. - Người trực phân trạm mặt đất. |
|
5 |
Bằng hệ thống thông tin sô 3 và điện thoại thông báo về sự cố và đưa mọi người thoát ra khỏi hầm lò và nhà ngoài mặt bằng mỏ. |
- Người trực phân trạm mặt đất. - Trực thông tin khu vực, nhân viên lực lượng cứu hộ cứu nạn chuyên trách. |
|
6 |
Chuẩn bị máy nâng thùng kíp để đưa người lên và đưa lực lượng CH-CN chuyên trách xuống; kiểm tra sự có mặt của thợ trục tải và người điều khiển máy nâng, các thang cấp cứu và thắt lưng an toàn. |
- Phó giám đốc cơ điện mỏ. - Cán bộ cơ điện phụ trách máy nâng , thợ cơ điện và thợ điều khiển máy nâng. |
|
7 |
Chuẩn bị phương tiện vận tải để chuẩn bị đưa người thoát ra theo lò thượng Cánh Đông. |
- Đội trưởng Đội vận tải. - Thợ điều khiển các phương tiện vận tải. |
|
8 |
Đưa lực lượng CH - CN chuyên trách cùng bình thở, bình chữa cháy vào hầm lò để đưa người ra và dập cháy. |
- Trưởng lực lượng CH - CN chuyên trách. - Các thành viện lực lượng CH - CN chuyên trách. |
|
9 |
Đảm bảo việc cấp nước cho nhà giếng thùng củi và sân giếng, mở bơm chữa cháy mặt đất. |
- Phó giám đốc cơ điện mỏ. - Thợ trực máy bơm. |
|
10 |
Mở màn nước tại khu vực dưới miệng giếng thùng cũi. |
- Phó giám đốc cơ điện mỏ. - Thợ cơ điện trực máy bơm. |
|
11 |
Đặt thùng cũi trên các vấu tại các khu vực sàn tiếp nhận dưới, đóng nắp cửa phòng cháy ở miệng giếng thùng cũi. |
- Phó giám đốc cơ điện mỏ. - Thợ điều khiển máy nâng, thợ cơ điện máy nâng. |
|
12 |
Điều động : a) Bộ phận CH - CN chuyên trách số 1 phụ trách công tác dập cháy khu vực từ nhà giếng thùng cũi đến nơi có cháy. Bộ phận này phải kiểm tra việc đóng nắp cửa chống cháy trong giếng thùng cũi, mở màn nước tại khu vực dưới puly và trong giếng; b) Bộ phận CH - CN chuyên trách số 2 vào mỏ theo giếng kip, lò xuyên vỉa băng tải, lò dọc băng tải tới giếng thùng cũi để dập những vật liệu cháy rơi xuống giếng; c) Các bộ phận khác của lực lượng CH-CN chuyên trách thực hiện công tác cứu người tuỳ theo hoàn cảnh và theo ý kiến của người chỉ huy. d) Đội chữa cháy tới nơi có cháy để chữa cháy. |
- Giám đốc điều hành mỏ hoặc người được uỷ quyền. - Đội trưởng bộ phận chữa cháy. - Trưởng lực lượng CH - CN chuyên trách. |
|
Điểm xảy ra và giả định sự cố 17: Cháy khu vực lò chợ số 12, lò dọc vỉa vận chuyển và lò song song |
||
|
1 |
Gọi đội CH-CN chuyên trách số 2 đảm bảo sự có mặt của 6 tổ cùng với với phương tiện kỹ thuật dập cháy bằng nước, bọt và thiết bị cứu hộ, cứu nạn. |
- Bộ phận điều hành và chỉ huy sản xuất mỏ. - Người trực điện thoại. |
|
2 |
Đảm bảo quạt gió chính tại giếng thùng Skip làm việc bình thường. Nếu có nổ: Tăng công suất quạt gió chính tại giếng thùng Skip bằng cách mở hết cỡ các cánh định hướng. |
- Phó giám đốc cơ điện mỏ. - Thợ cơ điện tại trạm quạt gió. |
|
3 |
Cắt điện: Vào khu vực khai thác lò chợ số 12 của mỏ khi có cháy và toàn bộ các khu vực hầm lò khi xảy ra nổ. |
- Giám đốc điều hành mỏ hoặc Bộ phận điều hành và chỉ huy sản xuất. - Phó Giám đốc cơ điện mỏ, trực điện các khu vực. |
|
4 |
Bằng hệ thống thông tin số 3 và điện thoại thông báo về sự cố; Đưa mọi người thoát ra khỏi mỏ và nhà trên mỏ. |
- Người trực trạm trên mặt đất. - Trực thông tin khu vực, nhân viên Đội cấp cứu mỏ. |
|
5 |
Đưa lực lượng CH - CN chuyên trách đến lò chợ số 12 có mang theo bình thở và các phương tiện cứu hộ, cứu nạn đến lò chợ số 12 để ƯCSC - TKCN. |
- Trưỏng lực lượng CH – CN chuyên trách. - Các thành viên lực lượng CH - CN chuyên trách. |
|
6 |
Đảm bảo cung cấp nước đến các lò vận tải dọc vỉa, lò thông gió của khu vực lò chợ vỉa 12. |
- Phó Giám đốc cơ điện mỏ. - Công nhân trực cơ điện, trực máy bơm. |
|
7 |
Đưa các phương tiện chữa cháy đến lò dọc vỉa vận chuyển của vỉa 12. |
Đội trường Đội chữa cháy. Thợ vận hành tàu điện. |
|
8 |
Điều động: Đội số 1 lực lượng CH - CN chuyên trách: Theo giếng thùng cũi, lò xuyên vỉa vận chuyển chính, lò dọc vỉa đến khu vực lò chợ số 12 khảo sát các đường lò của khu vực cháy theo hướng của luồng gió đi ra và để đưa người thoát ra mặt đất. Đội số 2 lực lượng CH - CN chuyên trách: Theo giếng thùng cũi, lò xuyên vỉa vận chuyển chính, lò dọc vỉa đến khu vực lò chợ số 12, đến vị trí xảy ra cháy và dập. Các bộ phận thực hiện việc cứu người tuỳ theo hoàn cảnh và theo lệnh của người chỉ huy công tác ƯCSC - TKCN của mỏ. |
- Trưởng lực lượng CH - CN chuyên trách. - Bộ phận điều hành và chỉ huy sản xuất mỏ, Đội trưởng Đội 1, Đội trưởng Đội số 2 lực lượng CH - CN chuyên trách. |
TRÁCH NHIỆM VÀ TRÌNH TỰ CÔNG VIỆC CỦA NHỮNG NGƯỜI THAM GIA CÔNG TÁC ỨNG CỨU SỰ CỐ - TÌM KIẾM CỨU NẠN
Giám đốc điều hành mỏ là người chịu trách nhiệm cao nhất và là người chỉ huy công tác ƯCSC - TKCN:
1. Ngay lập tức triển khai các biện pháp đã được dự kiến trong phần hành động của phương án ƯCSC - TKCN và kiểm tra việc thực hiện.
Khi thực hiện công tác ƯCSC - TKCN, chỉ có mệnh lệnh của người chỉ huy công tác ƯCSC - TKCN mới được coi là bắt buộc.
2. Có mặt thường trực tại địa điểm chỉ huy ƯCSC - TKCN cho tới khi thực hiện hoàn toàn các biện pháp được dự kiến trong phương án ƯCSC - TKCN.
3. Kiểm tra việc gọi đơn vị CH - CN chuyên trách, Đội phòng cháy, chữa cháy.
4. Xác định rõ số người lao động đang gặp sự cố, vị trí của họ trong lò.
5. Chỉ đạo các đơn vị, cá nhân tham gia cứu người gặp sự cố trong mỏ và ƯCSC - TKCN.
6. Trường hợp mỏ có sự cố nối với mỏ bên cạnh bằng các đường lò, ngay lập tức phải báo cho Giám đốc điều hành mỏ hoặc Bộ phận điều hành chỉ huy sản xuất mỏ bên cạnh về sự cố.
7. Cùng với Trưởng lực lượng CH - CN chuyên trách làm rõ thêm kế hoạch hành động công tác cứu người và ƯCSC - TKCN, sau đó trao cho Trưởng lực lượng CH - CN chuyên trách văn bản nhiệm vụ cứu người và ƯCSC - TKCN.
Trường hợp có sự không nhất trí giữa hai người, các quyết định của Giám đốc điều hành mỏ là bắt buộc thực hiện nếu nó không trái với những quy định của Quy chế tổ chức hoạt động của của đơn vị cấp cứu mỏ. Khi đó Trưởng lực lượng CH - CN chuyên trách ghi ý kiến của mình vào sổ theo dõi công tác ƯCSC - TKCN.
8. Giao cho một người thuộc lực lượng CH - CN chuyên trách ghi sổ theo dõi công tác ƯCSC - TKCN (theo mẫu trong Quy định về tổ chức và hoạt động của CH - CN chuyên trách).
9. Nhận thông tin về công tác cứu hộ, cứu nạn và kiểm tra hoạt động của các nhân viên hành chính - kỹ thuật theo kế hoạch hành động cứu người và ƯCSC - TKCN.
10. Chỉ định người chịu trách nhiệm vào các vị trí:
a) Tại các máy điện thoại trong sân giếng, trong các nhà ngoài mặt bằng mỏ để liên lạc với nơi có sự cố;
b) Tại giếng để kiểm tra giấy phép của những người vào hầm lò.
11. Lập sơ đồ công việc của các kỹ thuật viên và người lao động mỏ nếu sự cố kéo dài:
a) Giám đốc điều hành mỏ có thể đề nghị Lãnh đạo cơ quan quản lý mỏ có thẩm quyền thành lập Hội đồng tư vấn về công tác ƯCSC - TKCN. Tuy nhiên, điều đó không thay thế được trách nhiệm cao nhất của người chỉ huy công tác ƯCSC - TKCN trực tiếp tại nơi xảy ra sự cố để đưa ra các quyết định đúng đắn và kịp thời đối với việc cứu người và ƯCSC - TKCN;
b) Trong thời gian tiến hành ƯCSC - TKCN, tại trụ sở chỉ huy chỉ bao gồm những người liên quan trực tiếp đến công tác ƯCSC - TKCN để làm nhiệm vụ.
Trong khoảng thời gian từ lúc nhận được thông tin về sự cố cho đến khi có mặt Giám đốc điều hành mỏ, Trưởng bộ phận điều hành và chỉ huy sản xuất mỏ thực hiện nhiệm vụ của người chỉ huy công tác ƯCSC - TKCN.
Vị trí của chỉ huy công tác ƯCSC - TKCN trong trường hợp này đặt tại nơi làm việc của của Bộ phận điều hành chỉ huy sản xuất mỏ.
Sau khi Giám đốc điều hành mỏ tới vị trí chỉ huy công tác ƯCSC - TKCN, Bộ phận điều hành và chỉ huy sản xuất mỏ thông báo về tình hình công tác ƯCSC - TKCN và chịu sự lãnh đạo của Giám đốc điều hành mỏ.
1. Trực tiếp chỉ huy công tác cứu hộ, cứu nạn phù hợp với phương án ƯCSC - TKCN, Quy định về tổ chức và hoạt động của lực lượng cứu hộ, cứu nạn chuyên trách; Thực hiện các nhiệm vụ do người chỉ huy công tác ƯCSC - TKCN giao cho; Lập kế hoạch và tổ chức công tác ƯCSC - TKCN và chịu trách nhiệm về việc thực hiện chúng.
2. Thông báo một cách có hệ thống cho người chỉ huy công tác ƯCSC - TKCN biết về các hoạt động của các Đội của lực lượng CH - CN chuyên trách.
3. Sau khi đến mỏ, chịu sự chỉ huy của người chỉ huy công tác ƯCSC - TKCN của mỏ.
4. Chịu trách nhiệm:
a) Các hoạt động của lực lượng cứu hộ, cứu nạn chuyên trách trong hầm lò để cứu người và ƯCSC - TKCN;
b) Tham gia trực tiếp vào việc thực hiện các công tác ƯCSC - TKCN;
c) Tham gia vào việc phân công lực lượng cứu hộ, cứu nạn chuyên trách theo ca trực;
d) Tổ chức và bố trí các thành viên lực lượng cứu hộ, cứu nạn chuyên trách theo vị trí làm việc;
e) Cập nhật công việc của lực lượng cứu hộ, cứu nạn chuyên trách;
g) Chuẩn bị nguồn lực lượng cứu hộ, cứu nạn chuyên trách và phương tiện kỹ thuật dự phòng, đảm bảo cho việc cấp cứu mỏ được liên tục.
Các hoạt động của đơn vị phòng cháy, chữa cháy tại mỏ được thực hiện theo các quy định hiện hành của Nhà nước về phòng cháy chữa cháy và các quy định sau:
1. Sau khi có mặt tại mỏ, Đội trưởng Đội phòng cháy chữa cháy thuộc quyền điều khiển của chỉ huy công tác ƯCSC - TKCN, tham gia vào công việc dập cháy theo sự phân công;
2. Tổ chức công việc chữa cháy theo phương án ƯCSC - TKCN và những nhiệm vụ do người chỉ huy công tác ƯCSC - TKCN giao cho;
3. Thông báo một cách có hệ thống cho người chỉ huy công tác ƯCSC - TKCN về hoạt động của đơn vị chữa cháy. Sử dụng những lực lượng và phương tiện bổ sung của đơn vị chữa cháy để thực hiện các nhiệm vụ ƯCSC - TKCN.
1. Giúp đỡ công tác ƯCSC - TKCN, không làm thay công việc của người chỉ huy công tác ƯCSC - TKCN trong thời gian sự cố xảy ra.
2. Có các biện pháp để giúp mỏ những trang bị, vật liệu và các phương tiện vận chuyển cần cho công tác ƯCSC - TKCN từ các nguồn khác theo khả năng huy động của mình, hoặc đưa thẳng từ kho nội bộ và chịu trách nhiệm về việc thực hiện kịp thời các biện pháp đó.
3. Triệu tập các chuyên gia đến mỏ, tổ chức công việc của nhóm chuyên gia và thành lập hội đồng tư vấn về ƯCSC - TKCN. Thủ trưởng cơ quan quản lý cấp trên có thẩm quyền có quyền ra lệnh bằng văn bản để bãi chức của người chỉ huy công tác ƯCSC - TKCN và nhận công tác đó hoặc uỷ quyền cho người khác.
1. Sau khi nhận được thông báo về sự cố, ngay lập tức có mặt tại mỏ và thông báo sự có mặt của mình cho người chỉ huy công tác ƯCSC - TKCN.
2. Là người có quyền thay thế Giám đốc điều hành mỏ chỉ huy công tác ƯCSC - TKCN khi được uỷ quyền.
3. Chỉ đạo việc ngăn chặn những người không có giấy phép vào hầm lò, tổ chức cấp giấy phép đặc biệt và theo dõi việc cho người vào hầm lò theo các giấy phép đó.
4. Tổ chức và ưu tiên hàng đầu cho lực lượng cứu hộ, cứu nạn chuyên trách mỏ kịp thời vào hầm lò để ƯCSC - TKCN
5. Tổ chức đưa tất cả những người không có nhiệm vụ ra khỏi hầm lò.
6. Tổ chức thống kê tất cả những người ra khỏi hầm lò, đặc biệt những người ra từ khu vực có sự cố.
7. Tổ chức tiếp nhận các lực lượng cứu hộ, cứu nạn chuyên trách đến hỗ trợ và cử lực lượng cứu hộ, cứu nạn bán chuyên trách của mỏ để hỗ trợ đơn vị khác khi có yêu cầu.
Ghi chú: Trường hợp cần thiết, tổ chức đưa người vừa ra từ khu vực sự cố đến vị trí người chỉ huy công tác ƯCSC - TKCN để họ báo cáo tình trạng trong hầm lò.
1. Sau khi nhận được thông báo về sự cố, ngay lập tức phải có mặt tại mỏ và thông báo về sự có mặt của mình cho người chỉ huy công tác ƯCSC - TKCN.
2. Tổ chức công tác cấp cứu những người gặp sự cố.
3. Thống kê số người còn lại ở trong hầm lò.
4. Khi cần thiết, huy động vào công tác ƯCSC - TKCN người lao động và nhân viên kỹ thuật có kinh nghiệm của mỏ, cũng như đảm bảo có người thường trực để thực hiện những nhiệm vụ khẩn cấp.
5. Thông báo cho các đơn vị liên quan về tính chất của sự cố và công tác ƯCSC - TKCN.
6. Tổ chức và thực hiện các biện pháp liên quan đến sự cố xảy ra ở mỏ.
1. Chỉ huy công tác vận tải đảm bảo cung cấp kịp thời vật liệu, trang thiết bị và phương tiện để ƯCSC - TKCN.
2. Tổ chức việc ăn uống cho những người làm công tác ƯCSC - TKCN, chuẩn bị nơi nghỉ, bố trí phòng đặt máy phân tích khí, trang bị bình tự cứu và các công việc phục vụ khác.
3. Đảm bảo phục vụ liên tục của các kho vật liệu, gỗ và chuẩn bị các vật liệu cần thiết khác cho công tác ƯCSC - TKCN.
1. Ngay lập tức có mặt tại mỏ và thông báo về điều đó cho người chỉ huy công tác ƯCSC - TKCN.
2. Theo lệnh của người chỉ huy ƯCSC - TKCN cố thực hiện việc thay đổi chế độ thông gió.
3. Theo dõi sự làm việc của các quạt và báo cáo kết quả cho người chỉ huy công tác ƯCSC - TKCN.
4. Xác định các yêu cầu và kiểm tra các vật liệu hiện có cần thiết cho việc sửa chữa thiết bị thông gió.
5. Thông báo cho người chỉ huy công tác ƯCSC - TKCN về tất cả các hoạt động của mình và những thông tin có được về sự cố.
1. Ngay lập tức có mặt tại mỏ và thông báo về sự có mặt của mình cho người chỉ huy công tác ƯCSC - TKCN.
2. Tổ chức và duy trì liên tục các ca trực cơ điện để thực hiện các công tác ƯCSC - TKCN.
3. Theo lệnh của người chỉ huy ƯCSC - TKCN chỉ đạo thực hiện cắt hay đóng điện, khí ép.
4. Đảm bảo sự hoạt động liên tục của hệ thống dẫn khí, nước vào nơi có sự cố.
5. Thông báo với các trạm cấp điện cho mỏ biết về sự cố và nhu cầu về cung cấp điện liên tục.
6. Đảm bảo sự làm việc liên tục của các thiết bị cơ điện mỏ (các máy nâng hạ, máy bơm, quạt, máy nén khí …).
7. Đảm bảo độ tin cậy của thiết bị điện thoại và thiết lập liên lạc với khu vực bị sự cố.
8. Báo cáo với người chỉ huy ƯCSC - TKCN về tất cả các hoạt động của mình.
1. Ngay lập tức, trực tiếp hoặc qua các nhân viên của mình (trong trường hợp không thể rời khu vực), thông báo cho người chỉ huy công tác ƯCSC - TKCN biết về vị trí của mình; Nếu đang ở trên mặt đất, ngay lập tức tới vị trí lãnh đạo công tác ƯCSC - TKCN và hoạt động theo chỉ thị của người chỉ huy ƯCSC - TKCN.
2. Chỉ đạo lực lượng cứu hộ, cứu nạn bán chuyên trách của mỏ phối hợp với lực lượng cứu hộ, cứu nạn chuyên trách thực hiện các biện pháp đưa người ra khỏi vùng sự cố và ƯCSC - TKCN.
XII. NHÂN VIÊN TRỰC CA SẢN XUẤT
1. Nếu đang ở trong hầm lò thì hướng dẫn lực lượng cứu hộ, cứu nạn chuyên trách tại khu vực bị sự cố để cứu người và ƯCSC - TKCN, thực hiện tại vị trí các biện pháp cứu và đưa người ra khỏi khu vực và ƯCSC - TKCN, thông báo về sự cố xảy ra cho chỉ huy công tác ƯCSC - TKCN, Bộ phận điều hành và chỉ huy sản xuất mỏ.
2. Nếu đang ở trên mặt đất khi biết về sự cố, ngay lập tức tới vị trí của người chỉ huy ƯCSC - TKCN để nhận nhiệm vụ.
1. Xác định số người chưa trả đèn và thông báo ngay cho người chỉ huy công tác ƯCSC - TKCN.
2. Nhận đèn và thiết bị cấp cứu từ những người ra khỏi mỏ, đặc biệt chú ý đến những đèn phát hiện bị hỏng hoặc bình tự cứu đã bị mở.
3. Đảm bảo đèn chỉ được trao cho những người vào hầm lò có giấy phép đặc biệt.
Khi biết hoặc nhận được thông báo về sự cố:
1. Phải lập tức gửi nhân viên y tế tới khu vực có sự cố cùng với các thiết bị, dụng cụ y tế và thuốc men;
2. Tổ chức trực y tế, trong trường hợp cần thiết đưa người tới nơi có sự cố để chỉ huy công tác cấp cứu người bị nạn; đưa người bị nạn vào bệnh viện, tổ chức cho nhân viên y tế trực liên tục trong thời gian cấp cứu mỏ.
Khi nhận được tin về sự cố:
1. Ngay lập tức gọi cho đơn vị CH - CN chuyên trách. Dừng các cuộc gọi cho những người không có quan hệ trực tiếp với sự cố xảy ra, gọi cho Giám đốc điều hành mỏ những người có liên quan theo danh sách quy định tạị Mẫu sổ 03.
Ghi chú: Trường hợp ngoài trạm của mỏ còn có trạm điện thoại trung tâm, nhân viên điện thoại mỏ phải ngay lập tức thông báo về sự cố cho trạm điện thoại trung tâm sau khi đã gọi cho đơn vị CH - CN chuyên trách.
2. Không tiến hành nối liên lạc cho bất kỳ thuê bao nào ngoài những người có liên quan đến công tác ƯCSC - TKCN;
XVI. QUẢN ĐỐC PHÂN XƯỞNG CƠ ĐIỆN
Sau khi được biết về sự cố, ngay lập tức tới mỏ và thực hiện các chỉ thị của người chỉ huy ƯCSC - TKCN.
DANH SÁCH NHỮNG NGƯỜI CÓ TRÁCH NHIỆM VÀ CÁC CƠ QUAN CẦN THÔNG BÁO NGAY VỀ SỰ CỐ
|
Cơ quan hoặc người có chức vụ |
Họ và tên |
Số điện thoại |
Địa chỉ |
|||
|
Cq |
Nr |
DĐ |
Cq |
Nr |
||
|
1. Bộ phận điều hành và chỉ huy sản xuất mỏ 2. Đơn vị CH - CN chuyên trách 4. Quản đốc phân xưởng bị sự cố 6. Đơn vị phòng cháy, chữa cháy 7. Giám đốc điều hành mỏ 8. Các Phó Giám đốc điều hành mỏ 9. Quản đốc phân xưởng thông gió mỏ 11. Các Trưởng phòng Cơ điện, An toàn, Kỹ thuật mỏ và các Trưởng phòng khác có liên quan. 12. Thủ trưởng cơ quan quản lý mỏ có thẩm quyền 13. Trưởng trạm y tế 14. Các Quản đốc các phân xưởng có liên quan. 15. Cán bộ Phụ trách an toàn khu vực 16. Trưởng phòng an toàn mỏ 17. Trạm y tế của mỏ 18. Y tế địa phương 19. Công đoàn mỏ 20. Đảng uỷ mỏ 21. Công an địa phương nơi gần nhất 22. Thanh tra an toàn lao động địa phương 23. Cục Kỹ thuật an toàn và Môi trường công nghiệp Bộ Công Thương 24. Công đoàn lao động địa phương |
|
|
|
|
|
|
Giám đốc điều hành mỏ
(ký, đóng dấu và ghi rõ họ tên)
QUY TẮC HÀNH ĐỘNG CỦA CÁN BỘ CÔNG NHÂN VIÊN MỎ KHI CÓ SỰ CỐ
1. Các nhân viên của mỏ phải biết rõ các quy tắc hành động trong tình huống có sự cố, nơi để các phương tiện bảo vệ ƯCSC - TKCN và thiết bị tự cứu, biết cách sử dụng chúng.
Khi vạch phương án ƯCSC - TKCN, phải chỉ cụ thể nơi có đặt những điểm đổi sang bình tự cứu dự trữ, các điểm cấp cứu mỏ di động, thiết bị phải đảm bảo chất lượng để sử dụng khi có sự cố.
2. Những người đang ở trong hầm lò nếu nhận thấy có dấu hiệu sự cố, có trách nhiệm ngay lập tức thông báo cho Bộ phận điều hành và chỉ huy sản xuất mỏ hoặc Quản đốc trực ca.
3. Tất cả người lao động của mỏ phải nắm thật vững các quy tắc sau đây về các hành động của mình khi có sự cố:
3.1 Cháy, nổ khí hoặc bụi than;
3.1.1. Khi phát hiện thấy có khói phía đối diện phải đeo ngay bình tự cứu và đi tới lò gần nhất có luồng không khí sạch, tới lối ra dự phòng. Biết được sự thay đổi hướng của luồng gió ở các lò chính do đảo chiều gió khi đám cháy xảy ra, trong trường hợp đó cần tiếp tục đi về hướng đón đầu luồng gió sạch đã đảo chiều mà không cởi bỏ bình tự cứu cho tới tận giếng (giếng thăm dò, lò nối vỉa);
3.1.2. Khi phát hiện ra đám cháy từ phía luồng gió sạch cần phải đeo bình tự cứu và chữa cháy bằng những phương tiện chữa cháy đầu tiên. Nếu cháy các thiết bị điện, cáp điện, cần phải cắt mạch các thiết bị gặp sự cố;
3.1.3. Nếu có cháy trong gương lò cụt cần phải đeo bình tự cứu và chữa cháy bằng mọi phương tiện. Nếu không thể chữa cháy bằng những phương tiện đang có, phải ra khỏi lò cụt tới nơi có luồng gió sạch và cắt điện cung cấp cho các thiết bị. Nếu cháy trong lò cụt có khí, bụi nổ thì quạt thông gió cục bộ phải để ở chế độ làm việc bình thường;
3.1.4. Khi có cháy trong lò cụt cách gương một khoảng mà trong đó có người, phải lập tức đeo bình tự cứu, mang các phương tiện chữa cháy và bằng mọi cách có thể vượt qua đám cháy đi đến vị trí có lối ra khỏi lò độc đạo và tiến hành chữa cháy. Khi không thể đi qua nguồn cháy và dập tắt nó, phải đi ra cách nguồn cháy, dùng các vật liệu sẵn có để cách ly với đám cháy (ống dẫn thông gió, các tấm ván, quần áo bảo hộ…). Ngay khi việc cấp không khí theo các ống thông gió ngừng lại, phải đặt 2 đến 3 tường chắn càng gần nguồn cháy càng tốt, đi xa về phía gương lò, đợi nhân viên cấp cứu mỏ đến, trong lúc đó sử dụng các phương tiện đảm bảo sự sống: không khí nén, bình thở của các điểm quy định trong kế hoạch ƯCSC - TKCN.
3.2. Phụt than và khí bất ngờ
3.2.1. Ngay lập tức đeo bình tự cứu cách ly, bằng đường ngắn nhất đi ra nơi có khí sạch và cắt điện tại các thiết bị ở vùng có phụt than và khí;
3.2.2. Nếu do sự cố các đường ra bị bịt, phải đeo các bình tự cứu, bình thở của các điểm trực cấp cứu và đợi nhân viên cấp cứu mỏ đến;
3.2.3. Để ngăn ngừa nổ, cấm không được dùng công tắc chuyển mạch của đèn ắc-quy (nếu mất ánh sáng, không được bật công tắc đèn).
3.3. Sập lò
3.3.1. Những người trong vùng bị sập lò phải thực hiện các biện pháp để cứu những người bị vùi dưới đống sập, xác định tính chất vụ sập và khả năng an toàn khi đi ra qua phần vòm của lò. Nếu không thể ra, phải tiến hành cũng cố chống giữ và dọn đống sập. Trong trường hợp không thể thoát ra được, phải đợi lực lượng CH - CN đến. Trong thời gian đó đánh tín hiệu vào các vật kim loại (vật cứng) theo các mã hiệu:
a) Khi có sập trong các lò chuẩn bị: Đập thưa theo số người có sau đống sập;
b) Khi có sập trong lò chợ khai thác: những tiếng đập đầu tiên là số vì chống của lò chợ tại vị trí có người, còn sau đó đập thưa là số người có trong vị trí sập.
3.3.2. Trong trường hợp những người bị sập đang ở trong phần cụt của lò, cần phải cắt ống dẫn và đặt tường chắn cách đống sập 5 đến 10 mét để ngăn ngừa khí Mêtan.
3.4. Ngập nước, bùn
Khi có ngập nước, bùn phải mang bình tự cứu và đi theo các lò gần nhất ra vị trí cao hơn hoặc theo hướng chảy của nước bùn để tới giếng.
3.5. Tích tụ khí
Phải đeo bình tự cứu, ra khỏi lò bị tích khí, cắt điện và đặt ký hiệu cấm vào lò đó (gạch chéo tại lò hoặc đặt hai cây gỗ chéo với tiết diện lò).
4. Khi lập phwơng án ƯCSC - TKCN phải đưa ra quy tắc hành động của lực lượng CH - CN từng khu vực, dựa vào điều kiện cụ thể của mỏ.
HƯỚNG DẪN CÔNG TÁC KHẮC PHỤC HẬU QUẢ CÁC TÌNH HUỐNG SỰ CỐ
Ngoài các tình huống dự kiến trong phương án ƯCSC - TKCN, có thể xảy ra những sự cố (tích tụ khí, quạt gió chính dừng đột ngột, mất điện toàn mỏ, thùng cũi máy nâng đang có người bị kẹt trong giếng, bị điện giật) mà việc khắc phục nó cũng đòi hỏi những hành động nhanh, chính xác.
1. Dừng tất cả các công việc và mọi người ra khỏi lò bị tích tụ khí đến nơi an toàn. Cấm mọi sự di chuyển của người và phương theo các hầm lò liền kề với luồng gió thải.
2. Cắt điện trong lò có luồng gió thải đi qua vùng tích tụ khí.
3. Bố trí lưc lượng CH - CN bán chuyên trách của mỏ ở những nơi an toàn để ngăn người vào khu vực lò tích tụ khí và nơi có thiết bị đóng cắt mạch điện.
4. Thông báo cho Giám đốc điều hành mỏ, Bộ phận điều hành chỉ huy sản xuất mỏ và Quản đốc phân xưởng - nơi có lò bị tích tụ khí.
5. Tiến hành việc giảm tích tụ khí theo “Quy định làm giảm tích tụ khí. Điều tra, thống kê và phòng ngừa tích tụ khí trong các lò”.
6. Khi không có khả năng thông gió các lò bị tích tụ khí, những công việc này sẽ do lực lượng CH - CN bán chuyên trách của mỏ thực hiện dựa vào các biện pháp đã được dự kiến theo trình tự quy định.
1. Ở các mỏ có khí, bụi nổ:
1.1. Ghi thời gian quạt dừng;
1.2. Dừng tất cả công việc và mọi người phải ra vị trí có luồng khí sạch, cắt điện ở các thiết bị dùng điện;
1.3. Thông báo cho Giám đốc điều hành mỏ, Bộ phận điều hành chỉ huy sản xuất mỏ, Phó Giám đốc cơ điện mỏ; Đưa các thợ trực cơ điện của khu vực đến trạm quạt thông gió chính;
1.4. Trong vòng 30 phút sau khi quạt dừng đột ngột phải đưa tất cả mọi người ra nơi có luồng gió sạch; nếu có hỏng hóc cần nhiều thời gian để sửa chữa, mọi người phải thoát lên mặt đất, trừ cán bộ trực ca thông gió, thợ trục tải, thợ máy hệ thoát nước trung tâm và thợ cơ điện đang trực thùng cũi được giữ tại nơi họ làm việc;
1.5. Cho quạt dự phòng làm việc, tìm nguyên nhân quạt chính dừng. Nếu không thể sửa chữa quạt chính làm việc, phải gọi lực lượng CH - CN của mỏ;
1.6. Phải đảm bảo hệ thống thoát nước trung tâm làm việc ổn định;
1.7. Khi cần thiết mở cửa gió tại giếng thùng skip để thông gió toàn bộ lò và các buồng của sân giếng bằng thông gió tự nhiên;
1.8. Sau khi đã lập chế độ thông gió bình thường, bộ phận đo khí tiến hành đo hàm lượng khí mỏ tại những nơi sản xuất, những nơi đặt máy. Trong tất cả các hầm lò lân cận, đối với thiết bị điện phải đo hàm lượng khí ở khoảng cách 20m cách nơi đặt chúng, khởi động quạt cục bộ, thông gió các gương lò cụt;
1.9. Tiếp tục làm việc lại, đóng điện cho các thiết bị điện và quạt gió cục bộ sau khi có thông tin của bộ phận đo khí về hàm lượng không khí mỏ và được phép của người lãnh đạo công tác ƯCSC - TKCN. Khi phát hiện ra có tích tụ khí, thực hiện theo quy định đối với các lò có tích tụ khí.
2. Ở mỏ không có khí nổ:
2.1. Ghi thời gian quạt dừng;
2.2. Ngừng các công việc ở lò cụt, mọi người ra nơi có luồng gió sạch, cắt điện các thiết bị điện;
Thông báo cho Giám đốc điều hành mỏ, Bộ phận điều hành chỉ huy sản xuất mỏ, Phó Giám đốc cơ điện mỏ, các thợ trực cơ điện của khu vực đến trạm quạt thông gió chính;
2.3. Cho quạt dự phòng làm việc, làm rõ nguyên nhân quạt gió chính dừng. Khi không thể khởi động quạt dự phòng, phải gọi lực lượng CH – CN bán chuyên trách của mỏ;
2.4. Chỉ khôi phục lại công việc sau khi:
2.4.1. Kiểm tra lò chợ, lò cụt, lò khai thác;
2.4.2. Đóng điện cho thiết bị điện, quạt gió cục bộ;
2.4.3. Đo hàm lượng các thành phần không khí mỏ và thông báo kết quả đo cho chỉ huy công tác ƯCSC - TKCN;
2.4.4. Có lệnh cho phép của người chỉ huy ƯCSC - TKCN.
Nếu phát hiện lò có tích tụ khí, thực hiện theo quy định đối với lò có tích tụ khí.
2.5. Phải đảm bảo hệ thoát nước trung tâm làm việc ổn định.
1. Ghi thời gian mất điện.
2. Thông báo cho Giám đốc điều hành mỏ, Bộ phận điều hành chỉ huy sản xuất mỏ, Phó Giám đốc cơ điện mỏ.
3. Dừng các hoạt động trong mỏ, cắt điện vào các máy và mọi người phải tới nơi có luồng gió sạch.
4. Tìm nguyên nhân và ước tính thời gian sẽ mất điện, trên cơ sở đó có quyết định đưa người ra mặt đất theo khoang cầu thang của giếng.
5. Nếu giếng không có các khoang cầu thang, phải mở lỗ cửa gió trên miệng giếng thùng skip để đảm bảo thông gió tự nhiên.
6. Khi lò có nguy cơ bị ngập nước do dòng chảy từ ngoài vào, đóng các cửa sự cố hầm nước trung tâm.
1. Tìm nguyên nhân gây kẹt thùng cũi, đứt cáp.
2. Thông báo sự cố cho Đội cấp cứu mỏ, Giám đốc điều hành mỏ, Bộ phận điều hành và chỉ huy sản xuất mỏ, Phó Giám đốc cơ điện mỏ, thợ cơ điện tới nhà trục tải bị sự cố.
3. Nếu có thể, tháo các liên kết thùng cũi bị kẹt với tang của máy nâng, đưa cũi không bị kẹt lên mặt bằng cốt “không”, bổ sung thêm đai đỡ tăng cường, các vật liệu để tạo một giá đỡ tạm thời, thả các thợ điện đang trực theo cũi không bị kẹt xuống cũi gặp sự cố, cố định cũi gặp sự cố, dựng giá đỡ tạm thời để đưa người ra mặt đất theo khoang cầu thang của giếng hoặc bằng cũi không bị sự cố dưới sự chỉ huy của cán bộ phụ trách máy nâng.
4. Lực lượng CH - CN bán chuyên trách của mỏ phải đảm bảo liên lạc với những người trong thùng cũi bị kẹt bằng các thiết bị liên lạc có dây dẫn hoặc liên lạc không dây.
5. Nếu sự cố xảy ra vào mùa Đông phải cấp áo ấm cho người trong cũi bị kẹt.
1. Cắt điện tại khu vực.
2. Gọi lực lượng CH - CN bán chuyên trách của mỏ, dự tính đủ người để cấp cứu cho số người bị nạn.
3. Những người sau đây cần nhanh chóng đến nơi có người bị nạn:
a) Lực lượng CH - CN bán chuyên trách của mỏ, các cán bộ an toàn mỏ từ các nơi làm việc gần nhất để giúp cấp cứu trước khi có cán bộ ý tế đến;
b) Nhân viên y tế trực của trạm y tế khu vực và của mỏ.
4. Yêu cầu nhân viên hồi sức của đơn vị CH - CN chuyên trách tới nơi người bị nạn; Nếu nhân viên này không đến kịp thì gọi cấp cứu của y tế địa phương.
5. Phân công các Đội viên lực lượng CH - CN bán chuyên trách của mỏ thường trực tại những điểm cạnh các thiết bị khởi động bằng điện để ngăn ngừa việc đóng điện và không cho bất cứ một ai đến gần cho tới khi những người có trách nhiệm tới.
6. Đảm bảo việc chuẩn bị các thiết bị chở người sẵn có như: Goòng chở người, băng chuyền, đường cáp treo... nhanh chóng đưa lực lượng CH - CN chuyên trách và nhóm hồi sức cấp cứu đến nơi xảy ra sự cố. Sau đó đưa họ cùng với các nạn nhân ra ngoài mặt đất.
Những người sau đây phải đến vị trí xảy ra sự cố cứu người bị nạn:
1. Lực lượng CH - CN bán chuyên trách của mỏ (trước khi có nhân viên y tế tới)
a) Thành viên lực lượng CH - CN bán chuyên trách của mỏ và người phụ trách an toàn từ các điểm làm việc gần nhất nơi xảy ra sự cố;
b) Cán bộ Y tế trực của trạm y tế khu vực.
2. Nhóm hồi sức cấp cứu của đơn vị CH - CN chuyên trách, hoặc Cấp cứu y tế địa phương;
3. Thông báo về sự cố cho Giám đốc điều hành mỏ, Bộ phận điều hành chỉ huy sản xuất mỏ và Quản đốc phân xưởng;
4. Đảm bảo việc chuẩn bị các thiết bị chở người: Các goòng chở người, băng chuyền, đường cáp treo... nhanh chóng đưa các phân đội và nhân viên hồi sức cấp cứu đến vị trí xảy ra sự cố, sau đó đưa họ cùng với các nạn nhân trở ra mặt đất;
5. Tuỳ thuộc vào đặc điểm cụ thể về địa chất và kỹ thuật của mỏ mà có thể có những sự cố khác cần bổ sung vào khuyến nghị này.
CÁC MẪU SỔ GHI CHÉP PHỤC VỤ CÔNG TÁC QUẢN LÝ KỸ THUẬT AN TOÀN
SỔ KIỂM TRA TOA XE CHỞ NGƯỜI
Bộ phận, công trường, Phân xưởng:………………
Đơn vị:
Bắt đầu ghi sổ từ ngày…..tháng…..năm…
Kết thúc ghi sổ vào ngày….tháng…..năm…
Phần I
|
TT |
Các hạng mục kiểm tra |
Tháng, năm Ngày |
|||
|
1 |
2 |
n |
31 |
||
|
1 |
2 |
3 |
|||
|
1 |
Toa xe: a) Xem xét các toa xe; b) Cơ cấu nối móc; c) Thiết bị tín hiệu; d) Hệ trục; e) Bánh goòng; g) Hệ thống phanh… |
|
|
|
|
|
2 |
Kết luận cho phép vận chuyển |
|
|
|
|
|
3 |
Chữ ký của người kiểm tra |
|
|
|
|
Phần II
|
Ngày, tháng |
Ghi các hỏng hóc của các cơ cấu hoặc các thiết bị |
Phương pháp khắc phục các bộ phận hư hỏng, thời gian thực hiện. Họ, tên người thực hiện |
Đánh giá về thực hiện khắc phục hư hỏng. Chữ kỹ của người thực hiện và phụ trách cơ điện mỏ |
|
1 |
2 |
3 |
4 |
|
|
|
|
|
|
|
|
|
|
SỔ KIỂM TRA THIẾT BỊ TRỤC TẢI MỎ.
Bộ phận, công trường, Phân xưởng:………………..
Đơn vị:…………………………
Bắt đầu ghi sổ từ ngày …..tháng……năm…
Kết thúc ghi sổ vào ngày…..tháng……năm…
Phần I
|
TT |
Các hạng mục kiểm tra |
Tháng, năm Ngày |
|||
|
1 |
2 |
n |
31 |
||
|
1 |
2 |
3 |
|||
|
1 |
Trục tải: a) Tang (puli dẫn động); b) Phanh (tổ hợp phanh); c) Truyền động máy; d) Bộ chỉ báo độ sâu. |
|
|
|
|
|
2 |
Thiết bị điện: a) Thiết bị điện phòng ngừa bảo vệ (hạn chế tốc độ, khoá ngắt cuối, đồng hồ tốc độ…); b) Động cơ trục tải, cụm biến đổi máy phát, động cơ; c) Thiết bị phận phối và chuyển mạch đảo chiều; d) Thiết bị điều khiển và bảng rơle điều khiển roto; e) Trạm điều khiển; g) Thiết bị tự động, tín hiệu và đo lường. |
|
|
|
|
|
3 |
Pu li: a) a) Ống lồng; b) b) Ổ đỡ (ổ bi), bạc; c) c)Nan hoa và vành; d) Tình trạng bôi trơn. |
|
|
|
|
|
4 |
Thùng nâng: a) Cơ cấu treo; b) Chốt và thiết bị hầm trạm chặn (cửa); c) Phanh dù; d) Thiết bị dẫn hướng; |
|
|
|
|
|
5 |
Cam hãm, cam đỡ |
|
|
|
|
|
6 |
Sàn rung |
|
|
|
|
|
7 |
Thiết bị dỡ tải |
|
|
|
|
|
8 |
Dẫn hướng |
|
|
|
|
|
9 |
Thiết bị chất tải |
|
|
|
|
|
10 |
Các chốt hãm |
|
|
|
|
|
11 |
Thiết bị giảm sóc của trục tải nhiều cáp |
|
|
|
|
|
12 |
Đường lò và các chi tiết thuộc dẫn hướng |
|
|
|
|
|
13 |
Con lăn đỡ và trượt |
|
|
|
|
|
14 |
Cơ cấu treo |
|
|
|
|
|
15 |
Cơ cấu giằng: a) Giằng puli; b) Giá đỡ. |
|
|
|
|
|
16 |
Chữ ký của người tiến hành kiểm tra |
|
|
|
|
Nhận xét của Phó giám đốc cơ điện mỏ:………………………….
Phần II
|
Ngày, tháng |
Ghi các hỏng hóc của các cơ cấu hoặc các thiết bị |
Phương pháp khắc phục các bộ phận hư hỏng, thời gian thực hiện. Họ, tên người thực hiện |
Đánh giá về thực hiện khắc phục hư hỏng. Chữ kỹ của người thực hiện và phụ trách cơ điện mỏ |
|
1 |
2 |
3 |
4 |
|
|
|
|
|
|
|
|
|
|
Hướng dẫn ghi sổ
Phần I: Ghi chép tình trạng của các chi tiết của trạm trục tải, toa xe chở người sau khi kiểm tra.
Cột 3 do Phó giám đốc cơ điện mỏ hoặc người được phân công chuyên trách về trục tải có trách nhiệm xem xét, kiểm tra trục tải ghi. Ghi thứ tự theo từng ngày, tháng; trong cột ghi ký hiệu:
“T” - Chỉ chi tiết, cụm chi tiết còn tốt;
“H” - Chỉ chi tiết, cụm chi tiết hỏng;
“CKT” - Chỉ chi tiết, cụm chi tiết chưa được kiểm tra.
Đối với đường cáp treo chở người được ghi vào các mục 1, 2, 12, 13, 14, 15 và 16.
Phần II: Ghi các hỏng hóc(chi tiết hỏng, mức độ hỏng hóc và phương pháp khắc phục chúng).
Người tiến hành kiểm tra (thợ trực cơ điện trục tải) ghi vào cột 2 tính chất và mức độ hỏng của các bộ phận và đánh dấu ký hiệu “H” vào phần I.
Trong cột 3, Phó giám đốc cơ điện mỏ ghi phương án khắc phục chi tiết, bộ phận hỏng và người chịu trách nhiệm thực hiện các phương án khắc phục.
Ghi chú:
a) Mỗi thiết bị trục tải mỏ phải có một quyển sổ riêng;
b) Người chịu nhiệm về các sổ này là Phó giám đốc cơ điện mỏ;
c) Sổ phải được đánh số trang và đóng dấu giáp lai của mỏ.
--------------------------------
SỔ GIAO NHẬN CA TRỤC TẢI MỎ
Đơn vị:
Vị trí, khu vực:
Trục tải:
Bắt đầu ghi sổ từ ngày….. tháng…….năm
Kết thúc ghi sổ vào ngày tháng năm
|
Mẫu sổ giao nhận ca |
|||||||||||
|
Ngày/ tháng |
Giờ giao nhận ca |
Tên người vận hành nhận ca |
Phg tiện dập cháy |
Vệ sinh công nghiệp nhà máy |
Tình trạng các chi tiết trục tải |
||||||
|
Thiết bị phanh |
Tr. nén khí |
Bộ hạn chế tốc độ bảo vệ chùng cáp |
Các thiết bị liên động |
Các khoá ngắt |
Bộ chỉ báo độ sâu, tốc độ kế |
||||||
|
Công tác |
Dự phòng |
||||||||||
|
1 |
2 |
3 |
4 |
5 |
6 |
7 |
8 |
9 |
10 |
11 |
12 |
|
|
|
|
|
|
|
|
|
|
|
|
|
|
|
|
|
|
|
|
|
|
|
|
|
|
|
Thiết bị tín hiệu và đồng hồ đo lường |
Tình trạng động cơ và thiết bị khởi động |
Tang và ống lồng |
Ổ đỡ |
Tình trạng bôi trơn |
Thiết bị tự động hoá |
Chữ ký người nhận ca, giao ca |
Nhận xét |
|
|
Trong ổ đỡ |
Trong hộp giảm tốc |
|||||||
|
13 |
14 |
15 |
16 |
17 |
18 |
19 |
20 |
21 |
|
|
|
|
|
|
|
|
|
|
|
|
|
|
|
|
|
|
|
|
Hướng dẫn ghi sổ
Sổ ghi chép tình trạng thiết bị trục tải kiểm tra trong ca và khi giao nhận ca của người vận hành máy.
Cột 4 ghi tình trạng và số lượng hiện có của thiết bị PCCC. Người vận hành ghi “đủ” hoặc “thiếu”.
Cột 5 ghi nội dung về vệ sinh công nghiệp nhà máy. Người vận hành ghi “sạch” hoặc “bẩn”.
Trong cột 6 - 19 ghi tình trạng các chi tiết của trục tải. Người vận hành ghi các ký hiệu “T” hoặc “H”.
Các phần tử tự động của trục tải phải được thợ cơ điện và thợ máy kiểm tra theo hướng dẫn.
Trong cột 21, Người vận hành máy ghi tình trạng các chi tiết của trục tải chưa được ghi vào các mục từ 6 đến 19. Người kiểm tra (Phó giám đốc cơ điện mỏ hoặc người được uỷ quyền) ký, nhận xét, đánh giá, đề nghị tại thời điểm kiểm tra trục tải.
SỔ KIỂM TRA CÁP VÀ TIÊU HAO CÁP
Đơn vị:
Bộ phận:
Trục tải:
Bắt đầu ghi sổ từ ngày tháng năm
Kết thúc ghi sổ từ ngày tháng năm
Phần I: Ghi các kết quả kiểm tra cáp
|
Cáp trái (đầu, kéo) |
|||||||||||
|
Ngày tháng
|
Tổng số sợi con của cáp bị đứt |
Số sợi con đứt trên một bước bện của cáp |
Khoảng cách lớn nhất của đoạn cáp hỏng tới đuôi cáp (m) |
Độ dãn dài của cáp |
Đường kính cáp (mm)
|
Khoảng cách của đoạn lắp từ vị trí giảm đường kính tới đầu cáp kẹp vào thiết bị treo |
Kết quả đo sự phân bố tải trọng giữa các cáp không tải của trục tải nhiều cáp |
Chữ ký của người kiểm tra |
Chữ ký của Phụ trách cơ điện mỏ |
Ghi Chú |
|
|
Định mức |
Nhỏ nhất |
||||||||||
|
1 |
2 |
3 |
4 |
5 |
6 |
7 |
8 |
9 |
10 |
11 |
12 |
|
|
|
|
|
|
|
|
|
|
|
|
|
|
|
|
|
|
|
|
|
|
|
|
|
|
|
Cáp phải (đuôi, kéo) |
|||||||||||
|
Ngày tháng
|
Tổng Số sợi con của cáp đứt, hỏng |
Số sợi con đứt trên một bước bện của cáp |
Kh.cách lớn nhất của đoạn cáp hỏng tới đuôi cáp (m) |
Độ dãn dài của cáp |
Đường kính cáp (mm) |
Khoảng cách của đoạn lắp từ vị trí giảm đường kính tới đầu cáp kẹp vào thiết bị treo |
Kết quả đo sự phân bố tải trọng giữa các cáp không tải của trục tải nhiều cáp |
Chữ ký của người kiểm tra |
Chữ ký của Ph giám đốc cơ điện mỏ |
Ghi chú |
|
|
Định mức |
Nhỏ nhất |
||||||||||
|
1 |
2 |
3 |
4 |
5 |
6 |
7 |
8 |
9 |
10 |
11 |
12 |
Phần II: Tiêu hao cáp
|
Số |
Ngày tháng năm nhận và chuẩn bị cáp |
Nhà máy chế tạo |
Số cáp của nhà chế tạo |
Tiêu chuẩn |
Cấu tạo và bước bệncủa cáp |
Đường kính cáp do nhà chế tạo cấp |
Ngày tháng năm treo cáp |
|
1 |
2 |
3 |
4 |
5 |
6 |
7 |
8 |
|
|
|
|
|
|
|
|
|
|
|
|
|
|
|
|
|
|
|
Số chứng nhận và ngày tháng năm thử cáp |
Nơi treo cáp (trái hoặc phải) |
Số chứng nhận và ngày tháng năm thử cáp tiếp theo |
Ngày tháng năm tháo cáp |
Thời gian bảo quản cáp tới ngày treo cáp |
Thời gian sử dụng của cáp |
Chữ ký của Ph. Giám đốc cơ điện mỏ |
|
9 |
10 |
11 |
12 |
13 |
14 |
15 |
|
|
|
|
|
|
|
|
|
|
|
|
|
|
|
|
Hướng dẫn ghi sổ
Mỗi thiết bị trục tải phải có sổ riêng, trong đó ghi kết quả kiểm tra cáp hàng ca, ngày, tuần; ghi kết quả tiêu hao cáp.
Phần I. Ghi kết quả kiểm tra cáp
Trang bên trái sổ dùng để cho cáp trái, cáp đầu của trục tải với puli ma sát khi đường cáp chở người. Những cột không ghi thì gạch chéo.
Trang bên phải sổ dùng để cho cáp phải, cáp đuôi của trục tải với puli ma sát khi đường cáp chở người. Những cột không ghi thì gạch chéo.
Cáp đầu của trục tải nhiều cáp và trục tải tang cân bằng được ghi vào sổ riêng.
Kết quả kiểm tra hàng ngày được ghi vào các cột 1, 3, 5 và 10; hàng tuần ghi vào các cột 1, 2, 3, 5, 6, 7, 8, 9 và 10; hàng tháng ghi vào cột 4.
Trong cột 12 Phó giám đốc cơ điện mỏ hoặc người được uỷ quyền ghi nhận xét về tất cả tình trạng cáp (độ han rỉ, dấu hiệu biến dạng của cáp, các sợi con bị đứt...)
Kết quả kiểm tra cáp hàng tháng phải ghi tất cả các cột trong sổ. Trong cột 4 ghi khoảng cách từ cuối cáp gần cơ cấu treo tới vị trí có số lượng sợi con đứt nhiều nhất trên một bước bện của cáp. Khoảng cách này có thể được thay đổi phụ thuộc vào vị trí xuất hiện sợi con đứt lớn nhất trên một bước bện. Nếu vị trí này nằm trên đoạn đặc biệt của cáp (vòng chuyển tiếp, kẹp cáp…) thì vị trí đó phải đánh dấu.
Kiểm tra độ mòn hoặc sự dãn dài của các sợi cáp riêng lẻ phải thực hiện định kỳ. Kết quả kiểm tra phải ghi vào sổ và theo dõi chặt chẽ.
Cột 5 ghi độ dãn dài của cáp xuất hiện trong quá trình cáp làm việc, đặc biệt chu kỳ đầu tiên kể từ khi treo cáp. Khi cắt các phần cáp phải ghi vào cột 5 số lượng mét cắt.
Trường hợp cáp quá căng, phải tiến hành kiểm tra ngay và phải ghi vào tất cả các cột cần thiết. Trong cột 5 ghi độ dãn dài chung của cáp. Cột 11 Phó giám đốc cơ điện mỏ phải ghi “Kiểm tra sau khi cáp quá căng”.
Kết quả kiểm tra đường kính cáp chở người hàng ngày ghi ở cột 1, 2, 4 và 10; kiểm tra hàng tháng ghi ở các cột 1, 2, 3, 4, 6, 7, 8 và 11. Khi đó cột 4 ghi đoạn hỏng lớn nhất theo số thứ tự treo.
Khi thay cáp phải đánh dấu vào cột thay cáp. Bên dưới ghi thông số cáp mới treo (cấu tạo, bước bện, đường kính cáp và lần thử cáp tiếp theo) của đơn vị thử cáp.
Phần II. Dùng để thống kê lượng tiêu hao và thời gian phục vụ của cáp.
Cột 6 ghi ngắn gọn cấu tạo và bước bện cáp. Ví dụ: Cáp có 6 dảnh, mỗi dảnh có 36 sợi con, loại 7668-80 xoắn phải ký hiệu KP 6 x 36 + 1 0.C.LK.
Phó giám đốc cơ điện mỏ có trách nhiệm chỉ đạo, kiểm tra việc ghi đúng, đủ vào sổ theo dõi này. Sổ phải đánh số, trang, đóng dấu giáp lai và bảo quản tốt.
SỔ GHI TÌNH TRẠNG THIẾT BỊ ĐIỆN VÀ TIẾP ĐẤT
Đơn vị:
Bộ phận, công trường:……………………
Bắt đầu ghi sổ từ ngày …. tháng…..năm…
Kết thúc ghi sổ vào ngày …..tháng……năm…
|
Ngày tháng năm kiểm tra |
Tên và vị trí đặt thiết bị kiểm tra |
Kết quả kiểm tra và đo so với thông số chế tạo của thiết bị (hỏng và tính chất hỏng) |
Các phương pháp khắc phục |
Họ, tên chữ ký người kiểm tra |
Lệnh của Phó giám đốc cơ điện mỏ về khắc phục hỏng hóc và các chỉ dẫn cho người thực hiện các công việc đó |
Ghi chép việc khắc phục các hỏng hóc và chữ ký của người tiến hành khắc phục sự cố |
|
1 |
2 |
3 |
4 |
5 |
6 |
7 |
|
|
|
|
|
|
|
|
|
|
|
|
|
|
|
|
Hướng dẫn ghi sổ
1. Sổ dùng để ghi kết quả kiểm tra, đo điện trở tiếp đất các thiết bị điện, các công trình không phải là thiết bị điện nhưng phải làm tiếp địa theo quy định của Quy chuẩn này.
2. Cột 2 ghi chung tên, vị trí các công trình và thiết bị điện, các lò trong đó đặt các thiết bị, ví dụ: Trạm phân phối 400V (PPP - 0,4) lò chợ số 2 cánh Tây mức -50m; thiết bị điện của máy liên hợp G - 68 lò chợ cánh Đông số 3 công trường 4.
3. Cột 3 được ghi những đánh giá tình trạng chung của thiết bị điện và tiếp đất, điện trở chuyển tiếp của tiếp đất, thời gian cắt mạch khỏi dòng điện rò nhân tạo xuống “đất”, cũng như tính chất hư hỏng (trong đó có sự giảm điện trở cách điện dưới định mức).
4. Sổ này phải do Phó giám đốc cơ điện mỏ lưu giữ.
SỔ THEO DÕI CHÁY VÀ KIỂM TRA TÌNH TRẠNG CÁC TƯỜNG CÁCH LY
Đơn vị:
Bộ phận, công trường:
Bắt đầu ghi sổ từ ngày …… tháng……năm
Kết thúc ghi sổ vào ngày…..tháng……năm
|
Ngày tháng năm |
Tình trạng các tường chắn |
Thành phần không khí |
|
|||||||||
|
Số thứ tự tường chắn |
Vị trí đặt tường chắn |
Tình trạng tường chắn |
Những sửa chữa đã được tiến hành |
Nhiệt độ không khí sau tường chắn |
Lưu lượng nước qua tường chắn m3/h |
CO2 |
CH4 |
CO |
O2 |
H2 |
Ghi chú |
|
|
1 |
2 |
3 |
4 |
5 |
6 |
7 |
8 |
9 |
10 |
11 |
12 |
13 |
|
|
|
|
|
|
|
|
|
|
|
|
|
|
|
|
|
|
|
|
|
|
|
|
|
|
|
|
Hướng dẫn ghi sổ
Sổ dùng để ghi kết quả kiểm tra tình trạng của các lò và tường chắn cách ly do các đơn vị chuyên trách của mỏ và người của đơn vị CH - CN chuyên trách thực hiện. Kết quả kiểm tra được ghi vào sổ.
Việc kiểm tra các tường chắn cách ly đoạn lò đang cháy phải được thực hiện hàng ngày. Trong trường hợp đặc biệt: khi có cháy khẩn cấp trong hầm lò; khi các tường chắn hỏng hoặc có sự dao động lớn thành phần bầu không khí sau tường chắn phải kiểm tra ít nhất một lần trong một ca.
Kiểm tra các tường chắn cách ly khoảng không các lò đã bỏ với các đường lò đang hoạt động phải được thực hiện ít nhất một lần trong tuần.
Kiểm tra thành phần không khí phải do người của đơn vị CH - CN chuyên trách thực hiện; địa điểm, số lượng và thời gian kiểm tra do Giám đốc điều hành mỏ quyết định có sự thoả thuận của đơn vị CH - CN chuyên trách. Khi có sự thay đổi lớn nhiệt độ hoặc thành phần không khí trên đoạn đường lò cháy phải kiểm tra theo chế độ hàng ngày.
Ở cuối sổ phải để trang ghi thông số kỹ thuật các tường chắn theo bảng sau:
|
STT |
Số tường chắn |
Vị trí đặt tường chắn |
Vật liệu làm tường chắn |
Kích thước tường chắn |
Kích thước lỗ mở |
Thời gian đặt tường chắn |
Ghi chú |
|
1 |
2 |
3 |
4 |
5 |
6 |
7 |
8 |
|
|
|
|
|
|
|
|
|
|
|
|
|
|
|
|
|
|
SỔ KIỂM TRA VÀ GHI CHÉP SỰ LÀM VIỆC CỦA TRẠM BƠM THOÁT NƯỚC
Đơn vị:
Bộ phận, công trường:
Vị trí đặt thiết bị trạm bơm:
Bắt đầu ghi sổ từ ngày……tháng……năm…
Kết thúc ghi sổ vào ngày……tháng…..năm…
|
Ngày tháng năm |
Số tổ hợp bơm |
Thời gian mở và ngừng bơm |
Các chỉ số, thông số kỹ thuật trạm bơm khi làm việc |
Đặc điểm xuất hiện hỏng hóc và các biện pháp khắc phục, chữ ký |
Ngày, tháng, năm kiểm tra trạm bơm thoát nước và các biện pháp khắc phục hỏng hóc, chữ ký của người kiểm tra |
|||
|
Áp kế |
Chân không kế |
Lưu lượng kế |
Ampe kế |
|||||
|
1 |
2 |
3 |
4 |
5 |
6 |
7 |
8 |
9 |
|
|
|
|
|
|
|
|
|
|
|
|
|
|
|
|
|
|
|
|
|
Số tổ hợp bơm |
Bơm |
Động cơ |
||||
|
Loại |
Số chế tạo và ngày, tháng, năm xuất xưởng |
Ngày đưa vào vận hành và tháo dỡ |
Loại |
Số chế tạo và ngày, tháng, năm xuất xưởng |
Ngày đưa vào vận hành và tháo dỡ |
|
|
1 |
2 |
3 |
4 |
5 |
6 |
7 |
|
|
|
|
|
|
|
|
|
|
|
|
|
|
|
|
Ghi chú: Mỗi một trạm bơm phải có một sổ, sổ phải được bảo quản tại trạm bơm.
SỔ NHẬT LỆNH SẢN XUẤT
Sổ nhật lệnh sản xuất phải đảm bảo thể hiện khối lượng, trình tự công việc, các biện pháp an toàn cần thực hiện trong ngày, gồm các nội dung sau:
1. Mô tả, diễn giải những nội dung thiết kế, bản vẽ, hộ chiếu, công tác đào chống lò…và những công việc khác cần thực hiện.
2. Bố trí trang thiết bị, phương tiện và vật liệu.
3. Bố trí lao động và tổ chức sản xuất.
4. Các yêu cầu và biện pháp đảm bảo an toàn.
5. Phải có đầy đủ chữ ký của người ra lệnh và người nhận lệnh.
Ghi chú: Mỗi công trường, phân xưởng phải có đủ sổ nhật lệnh, ca lệnh và sổ giao nhận ca. Sổ nhật lệnh do Quản đốc hoặc người được uỷ quyền ghi trước mỗi ngày bắt đầu làm việc. Sổ ca lệnh do các Phó quản đốc phụ trách ca ghi trước khi vào ca sản xuất; sổ giao nhận ca do các trưởng ca dùng để ghi nội dung giao và nhận ca sản xuất trong hàng ngày. Sổ được đóng dấu giáp lai và bảo quản tại công trường (phân xưởng).
SỔ GIAO NHẬN CA
Sổ giao nhận ca phải đảm bảo các nội dung:
1. Hiện trạng vị trí sản xuất trước ca (tình trạng đường lò, khí, nước, gió, trang thiết bị ...).
2. Khối lượng công việc cần thực hiện trong ca tiếp theo (căn cứ vào hiện trạng của ca trước, nhật lệnh, ca lệnh của Quản đốc, Phó quản đốc).
3. Bố trí trang thiết bị, vật liệu....
4. Phân công lao động (cụ thể ở từng vị trí, từng người) và tổ chức sản xuất, các yêu cầu và biện pháp đảm bảo an toàn.
5. Phải có đầy đủ chữ ký của người giao, nhận ca; người ra lệnh và người thực hiện trong ca.
SỔ THEO DÕI THÔNG GIÓ
Đơn vị:
Loại mỏ (xếp theo khí Mêtan):
Độ thoát khí Mêtan tương đối (m3/Tấn ngày - đêm) và độ chứa khí Mêtan tự nhiên của vỉa than (m3/Tấn. khối cháy)
Bắt đầu ghi sổ từ ngày…. tháng …..năm…
Kết thúc ghi sổ vào ngày….. tháng….. năm…
Phần 1: Chế độ làm việc của quạt gió.
1. Trạm quạt gió số:……………..
2. Địa điểm đặt quạt:……………
3. Loại quạt gió:………………
4. Đường kính bánh công tác, mm:…………….
5. Tần số quay bánh công tác, vòng/ phút:………….
6. Góc đặt cánh quạt, độ:………..
7. Góc đặt cánh của thiết bị dẫn hướng, độ:…………..
8. Chỉ tiêu thông gió phức tạp của mỏ - chỉ số khởi động nr, kW.S/m3: ..…
|
Ngày, tháng, năm |
Lưu lượng của quạt m3/phút |
Hạ áp (máy nén) daPa |
Sức cản khí động học N.S2/m6 (km) |
Ý kiến của Giám đốc mỏ |
Chữ ký của người thực hiện |
|
1 |
2 |
3 |
4 |
5 |
6 |
|
|
|
|
|
|
|
|
|
|
|
|
|
|
Phần 2. Đặc tính mạng thông gió và phân phối gió trong các đường lò.
|
Ngày tháng đo và kiểm tra thành phần không khí mỏ |
Luồng gió vào |
Luồng gió ra |
|||||||
|
Vị trí đo |
Tiết diện ngang đường lò ở vị trí đo, (m2) |
Tốc độ gió, (m/s) |
Lưu lượng gió, m3/ph |
Nhiệt độ không khí mỏ và độ ẩm tương đối, % |
Vị trí đo và kiểm tra thành phần không khí mỏ |
Tiết diện ở vị trí đo, (m2) |
Tốc độ luồng gió, (m/s) |
Lưu lượng gió, m3/ph |
|
|
1 |
2 |
3 |
4 |
5 |
6 |
7 |
8 |
9 |
10 |
|
|
|
|
|
|
|
|
|
|
|
|
|
|
|
|
|
|
|
|
|
|
|
Thành phần không khí mỏ, % |
Nhiệt độ không khí mỏ và độ ẩm tương đối, % |
Xác nhận của Quản đốc phân xưởng thông gió |
|||
|
CH4 |
CO2 |
O2 |
CO |
||
|
11 |
12 |
13 |
14 |
15 |
16 |
|
|
|
|
|
|
|
|
|
|
|
|
|
|
|
|
|
|
|
|
|
Phần 3. Đặc tính thông gió các lò cụt và quy định thời gian thông gió sau nổ mìn.
|
Tên lò |
Thời gian ấn định kiểm tra và đo lưu lượng khí; thời gian đo thành phần khí sau nổ mìn |
Tiết diện đường lò, (m2) |
Chiều dài đường lò cụt, (m) |
Số lượng thuốc nổ đồng thời, kg (tử số là lượng thuốc bắn trong than, mẫu số là lượng thuốc bắn trong đá) |
Lưu lượng gió, m3/phút |
||
|
Đưa vào gương lò đào |
Gió thải từ các gương lò cụt |
Lượng gió đưa đến vị trí đặt trạm quạt gió |
|||||
|
1 |
2 |
3 |
4 |
5 |
6 |
7 |
8 |
|
|
|
|
|
|
|
|
|
|
|
|
|
|
|
|
|
|
|
Thông gió cục bộ, m3/phút |
Hàm lượng, % |
Độ tập trung khí CO và N2O5 tính quy đổi theo CO, % |
Thời gian thông gió lò tính đến khi người lao động được phép vào lò sau khi nổ mìn, phút |
Ý kiến của Phó giám đốc kỹ thuật và chữ ký của Quản đốc phân xưởng |
||||
|
|
CH4 |
CO2 |
O2 |
CO |
N2O5 |
|
|
|
|
9 |
10 |
11 |
12 |
13 |
14 |
15 |
16 |
17 |
|
|
|
|
|
|
|
|
|
|
|
|
|
|
|
|
|
|
|
|
Hướng dẫn ghi sổ:
Phần1. Đối với mỗi trạm quạt, sổ phải có những trang riêng để ghi chép về quạt dự phòng nếu như nó là loại khác và thông số làm việc khác quạt chính.
Ít nhất một lần trong tháng, phải đo lưu lượng và hạ áp của từng quạt và ghi vào cột 2 và 3. Khi có máy tự ghi lưu lượng thì trong sổ ghi phải ghi kết quả đã có. Trường hợp đo lưu lượng trực tiếp của quạt thì có thể một quý đo một lần.
Với lưu lượng quạt gió cho trước Q (m3/phút) và áp suất cột nước h (MPa) tính toán sức cản khí động học R (km) cho mỗi quạt gió theo công thức:
R = 3670 h/Q2
Giá trị sức cản khí động học ghi vào cột 4.
Nếu chế độ làm việc của quạt gió bình thường thì Giám đốc điều hành mỏ ghi vào cột 5, nếu thấy cần phải thay đổi chế độ công tác của quạt gió hoặc thay đổi sức cản khí động học của mỏ thì phải lệnh cho Phó giám đốc cơ điện mỏ thực hiện và ghi vào cột 5..
Giá trị của nr là chỉ số thông gió phức tạp của mỏ, phải xác định một lần trong một năm, tính toán theo công thức:
SQ.h
nr =
100 (SQkt + SQhc + SQlc + Sht )
Trong đó:
nr - Công suất riêng để truyền 1m3 không khí sạch, KW.s/m3
Q - Lưu lượng thực tế của quạt gió, m3/phút
h - Hạ áp thực tế của quạt gió, daPa.
SQkt - Tổng lưu lượng gió chi phí cho các gương khấu, m3/phút.
SQhc - Tổng lưu lượng gió để duy trì hoạt động của các đường lò hiện có, m3/phút.
SQlc - Tổng lượng gió cung cấp cho các lò cụt, m3/phút.
SQht - Tổng lượng gió chi phí thông gió cho các hầm trạm, m3/phút.
Thông gió nối tiếp trong các nhóm lò bằng một luồng gió thì lượng gió đó được tính một lần (đối với đường lò có có lượng gió yêu cầu lớn nhất)
Mỏ thông gió đơn giản, giá trị của nr nhỏ hơn 2,5.
Mỏ thông gió mức trung bình thì giá trị nr = 2,5 đến 5.
Mỏ thông gió phức tạp, giá trị nr > 5.
Ghi chú: 1 km = 0,981 daPa, s2/m6.
Phần 2:
Lượng gió vào, ra cho mỏ, cho từng tầng, vỉa, cánh, khu khai thác, lò chợ, lò cụt, hầm trạm và các lò đang hoạt động khác (cột 5; cột 10).
Hàm lượng không khí mỏ (cột 11 đến cột 13) khi khai thác ở các vỉa than không có tính tự cháy và cột 11 đến cột 14) đối với các vỉa than có tính tự cháy.
Kết quả đo các thông số ở luồng gió vào và luồng gió ra cần phải viết theo trình tự sau:
Trước tiên cho toàn bộ mỏ, sau đó đến các luồng gió cho tầng, vỉa, cánh, khu vực khai thác, lò chợ, lò cụt và hầm trạm.
Lượng gió chung đưa vào mỏ (cho tầng, vỉa, cánh, khu vực khai thác và hầm trạm) và lượng gió thải từ chúng (tầng, vỉa...) phải viết vào các phần tương ứng của cột 5,10 và phải viết vào một dòng.
Cột 5 và 10 ghi lượng gió cấp cho tầng, vỉa, cánh, khu vực khai thác, lò chợ, lò độc đạo và hầm trạm. Cột 6, cột 11 đến cột 15 ghi thành phần không khí, nhiệt độ, độ ẩm và về chất lượng thông gió.
Đối với mỏ xếp loại III theo khí Mêtan, siêu hạng và mỏ nguy hiểm về phụt khí, đo lưu lượng gió tương ứng từ 2 đến 3 lần trong một tháng, đo thành phần khí mỏ một lần trong tháng. Do đó, việc đo một hoặc hai lần trong tháng ở những mỏ đó chỉ phụ thuộc vào lưu lượng gió.
Đối với lò chợ, lò cụt cũng như khu vực khai thác, cột 11, 12,13 ghi dưới dạng phân số:
Tử số là thành phần khí đưa vào, mẫu số là thành phần khí ở luồng gió thải ra.
Cột 6 và 15 ghi dưới dạng phân số: Tử số là nhiệt độ, mẫu số là độ ẩm tương ứng.
Cột 16: Ghi các ý kiến của Giám đốc điều hành mỏ hoặc Quản đốc phân xưởng thông gió, ghi tăng hay giảm lượng gió của mỏ.
Cột 11 ghi thành phần khí Mêtan trong trạm nạp ắc quy: Tử số là thành phần khí Mêtan, mẫu số là thành phần khí H2.
Cột 5 và 10 xác định độ rò gió và so sánh với định mức theo các quy định hiện hành về thông gió đối với một mỏ đang hoạt động.
Lượng rò gió trong tuyệt đối với một mỏ khi tính toán gió cung cấp cho một tầng công tác, 1 vỉa, 1 cánh xác định theo công thức:
Qtd = Qc - SQkt - SQhc - SQlc - SQht
Hệ số tính toán độ rò gió tuyệt đối trong theo công thức:
100 Qtd
Kntđ = -----------
Qc
Trong đó: Qc = Lưu lượng gió yêu cầu chung cho mỏ, m3/phút
Lượng rò gió tuyệt đối ngoài đối cho toàn một mỏ cũng như của mỗi trạm quạt được xác định theo công thức:
Qntd = Qd - Qt
Hệ số tính toán độ rò gió tuyệt đối ngoài:
100 Qttd
Kn = --------------
Trong đó:
Qd- Lưu lượng đẩy của quạt gió, m3/phút
Qt - Lượng gió đi ra khỏi mỏ theo giếng, m3/phút
Biểu thức trên đây cho phép đánh giá độ kín khít của các công trình, thiết bị thông gió của mỏ.
Phần 3: Ghi kết quả đo thành phần không khí, lưu lượng gió trong các lò cụt, thời gian thông gió khi nổ mìn.
Việc đo thành phần và lưu lượng không khí phải thực hiện theo Phụ lục III của Quy chuẩn này.
Đối với các lò phải đo thành phần không khí sau nổ mìn chia làm 3 nhóm: Lò bằng, lò nghiêng và lò thượng. Mỗi nhóm ghi một số đặc điểm của chúng: Tiết diện lò, chiều dài lò và số gương, thuốc nổ đồng thời tiến hành nổ mìn. Khi đó tỷ lệ giữa diện tích tiết diện lò, số thuốc nổ đồng thời và chiều dài lò kể từ vị trí gió vào không vượt quá theo tỷ lệ tương ứng 1,3; 1,4; 1,3. Khi phân các lò ra thành các nhóm cần lưu ý rằng lượng khí độc thải ra khi nổ 1 kg thuốc nổ trong than sẽ nhiều hơn 2,5 lần nổ trong đá, có nghĩa là chi phí gió khi nổ 1 kg thuốc nổ trong than bằng chi phí gió khi nổ 2,5 kg thuốc nổ trong đá.
Ngày, tháng đo lưu lượng gió và kiểm tra thành phần khí ghi vào cột 2 dưới dạng phân số: Tử số là ngày đo, mẫu số là ngày kiểm tra.
Cột 5 ghi dưới dạng phân số liên quan giữa lượng thuốc nổ tối đa, các gương lò nổ đồng thời cho mỗi lần nổ trong than (tử số) và nổ trong đá (mẫu số) theo hộ chiếu khoan bắn mìn.
Cột 10,11,12 ghi kết quả đo thành phần không khí để đánh giá độ chứa khí của đường lò. Ngoài ra cột 11,12,13 và 14 ghi kết quả đo thành phần không khí sau nổ mìn trong các đường lò có điều kiện thông gió kém nhất. Để tiện việc theo dõi, cần dành lại một số dòng để ghi kết quả đo.
Các lò có điều kiện thông gió kém nhất ghép vào một nhóm căn cứ vào thời gian kiểm tra thành phần khí mỏ T, xác định theo công thức tính T tại Phụ lục III của Quy chuẩn này.
Nếu T có giá trị lớn thì lò có điều kiện thông gió kém. Đối với những lò kể trên phải kiểm tra thành phần khí mỏ sau khi nổ mìn để xác định thời gian thông gió. Việc kiểm tra này phải thực hiện theo chế độ một lần trong một tháng.
Việc kiểm tra lưu lượng gió tiến hành không chậm hơn 02 ngày sau khi kiểm tra thành phần khí mỏ. Nếu nổ mìn ở nhiều địa điểm thì chọn nơi sinh ra khí độc (sản phẩm khí sinh ra do nổ mìn) lớn nhất để kiểm tra.
Từ những số liệu về thành phần khí ở những lò có điều kiện thông gió kém ở cột 11 đến cột 14, chỉ ghi số liệu của khí CO và N2O5 ứng với thời gian thông gió ít nhất, tổng lượng khí độc sinh ra tính theo khí CO không được vượt quá 0,008%.
Số đo về tích tụ khí CO ghi vào cột 15; cột 16 ghi thời gian ngắn nhất để khí sinh ra do nổ mìn bị làm loãng đạt được số liệu ghi ở cột 15.
Đồng thời cũng tiến hành đo đạc đối với các lò khác như trình tự trên.
SỔ KIỂM TRA QUẠT GIÓ VÀ KIỂM TRA ĐẢO CHIỀU GIÓ
Cơ quan quản lý mỏ có thẩm quyền:………………………….
Đơn vị: …………………………………
Vị trí đặt quạt:………………………………..
Bắt đầu ghi sổ từ ngày ….tháng……năm…
Kết thúc ghi sổ từ ngày tháng năm…
Sổ xem xét trạm quạt gió
|
Ngày tháng năm kiểm tra |
Các hư hỏng phát hiện khi xem xét trạm quạt gió |
Chữ ký người tiến hành xem xét |
Các biện pháp khắc phục hỏng hóc |
Chữ ký của người khắc phục hỏng hóc, ngày tháng kết thúc công việc |
Nhận xét của Phó giám đốc cơ điện mỏ |
|
1 |
2 |
3 |
4 |
5 |
6 |
|
|
|
|
|
|
|
|
|
|
|
|
|
|
Kiểm tra cơ cấu đảo chiều, chuyển mạch, làm kín và đảo chiều gió
|
Ngày tháng kiểm tra |
Các hư hỏng phát hiện khi kiểm tra thiết bị chuyển mạch, làm kín gió và rãnh gió |
Các phương pháp khắc phục các hư hỏng được phát hiện |
Thời gian chuyển quạt gió sang làm việc ở chế độ đảo chiều (phút) |
||||
|
1 |
2 |
3 |
4 |
||||
|
|
|
|
|
||||
|
|
|
|
|
||||
|
Thời gian thay đổi hướng của luồng gió (phút) |
Lưu lượng gió vào mỏ sau khi đảo chiều luồng gió |
Chữ ký của người kiểm tra |
Chỉ thị của Giám đốc điều hành mỏ |
||||
|
m3/s |
% so với lưu lượng gió định mức |
||||||
|
5 |
6 |
7 |
8 |
9 |
|||
|
|
|
|
|
|
|||
|
|
|
|
|
|
|||
Hướng dẫn ghi sổ:
Mỗi một tổ hợp thiết bị quạt gió phải ghi riêng vào một trang của sổ. Sổ phải in, từng trang phải được đánh số và đóng thành quyển có dấu giáp lai.
1. Xem xét kiểm tra trạm quạt gió.
Cột 2 ghi các hư hỏng được phát hiện khi kiểm tra quạt gió, động cơ, dụng cụ đo kiểm tra, cơ cấu đảo chiều và chuyển mạch, thiết bị khởi động và điều khiển, các thiết bị điều khiển từ xa và tự động, rãnh gió, nền móng và nhà trạm.
Các nhận xét về trạm quạt của Phó giám đốc cơ điện mỏ sau khi sửa chữa ghi vào cột 6.
2. Kiểm tra cơ cấu đảo chiều gió, cơ cấu chuyển mạch, làm kín và đảo chiều gió.
Cột 1 đến cột 4 ghi khi kiểm tra cơ cấu đảo chiều gió, cơ cấu chuyển mạch, làm kín và đảo chiều gió.
Cột 4 ghi thời gian dừng quạt và chuyển mạch cơ cấu đảo chiều gió.
Cột 5 đến cột 7 để ghi chép khi kiểm tra đảo chiều gió.
SỔ THEO DÕI HOẠT ĐỘNG CỦA TRẠM QUẠT GIÓ
Cơ quan quản lý mỏ có thẩm quyền:………………………
Đơn vị: ……………………….
Vị trí đặt quạt:……………………………
Bắt đầu ghi sổ từ ngày……tháng…….năm:
Kết thúc ghi sổ từ ngày ……tháng…..năm:
Loại quạt và tổ hợp thiết bị thông gió:
|
Ngày tháng |
Thời gian giờ, phút |
Sổ tổ hợp thiết bị thông gió |
Chỉ báo của đồng hồ đo lường |
Nhiệt độ gối trục |
|
|
Áp suất daPa (mmHg) |
Lưu lượng m3/h |
||||
|
1 |
2 |
3 |
4 |
5 |
6 |
|
|
|
|
|
|
|
|
|
|
|
|
|
|
|
Dừng quạt |
Các nhận xét về hư hỏng của tổ hợp thiết bị quạt gió (ổ đỡ, động cơ …) |
Chữ ký của người vận hành máy hoặc người trực trạm điều khiển từ xa và kiểm tra sự làm việc của trạm quạt gió |
Chữ ký của người vận hành máy khi giao nhận ca |
Nhận xét của phân xưởng thông gió |
|
|
Thời gian dừng |
Nguyên nhân |
||||
|
7 |
8 |
9 |
10 |
11 |
12 |
|
|
|
|
|
|
|
|
|
|
|
|
|
|
Hướng dẫn ghi sổ
Sổ dùng cho người người vận hành trạm quạt, người điều khiển trạm quạt từ xa hoặc người kiểm tra trạm quạt gió.
Cứ sau 2 giờ người vận hành phải ghi các chỉ số đo của đồng hồ đo lường vào các cột 4 đến cột 6. Ghi các tình trạng của trạm quạt vào cột 9.
Đối với trạm quạt gió tự động cột 4 đến cột 6 chỉ được ghi các tín hiệu sai lệch chế độ làm việc của trạm quạt so với các thông số cho trước. Cột 2 ghi thời gian trạm quạt vào làm việc.
Cột 4 và 5 đối với những trạm quạt có dụng cụ tự ghi thì không cần ghi.
Người vận hành hoặc người điều khiển trạm quạt từ xa, vào đầu mỗi ca phải ghi ngày, tháng, thời gian trên biểu đồ của dụng cụ tự ghi.
SỔ ĐO KHÍ MÊTAN VÀ THEO DÕI SỰ TÍCH TỤ KHÍ
Cơ quan quản lý mỏ có thẩm quyền:………………………..
Đơn vị: ………………………..
Mỏ xếp loại theo khí Mêtan: ……………………………
Bắt đầu ghi sổ từ ngày……. tháng ……năm…..
Kết thúc ghi sổ từ ngày……tháng…… năm…..
Các kết quả đo hàm lượng khí Mêtan
Tên công trường:
Ngày, tháng, năm…
Biểu 1. Kết quả đo hàm lượng khí Mêtan
|
Tên lò |
Các kết quả đo hàm lượng khí Mêtan, %
|
Số trường hợp hàm lượng CH4 vượt giới hạn cho phép trong tháng |
Chữ ký người ghi chép của công trường theo ca |
Chữ ký của Phó Giám đốc kỹ thuật mỏ |
Nhận xét |
|||||||||
|
Ngày trong tháng
|
||||||||||||||
|
1 |
2 |
.... |
31 |
|||||||||||
|
Ca |
||||||||||||||
|
I |
II |
III |
I |
II |
III |
... |
I |
II |
III |
|||||
|
1 |
2 |
3 |
4 |
5 |
6 |
7 |
8 |
9 |
10 |
11 |
12 |
13 |
14 |
15 |
|
|
|
|
|
|
|
|
|
|
|
|
|
|
|
|
|
|
|
|
|
|
|
|
|
|
|
|
|
|
|
|
|
|
|
|
|
|
|
|
|
|
|
|
|
|
|
|
Biểu 2. Theo dõi sự tích tụ khí
|
Ngày và thời gian phát hiện tích tụ khí, giờ,phút |
Tên vỉa, khu vực lò |
Hàm lượng khí Mêtan tại vị trí tích tụ khí |
Nguyên nhân tích tụ khí. Dạng tích tụ khí (do công nghệ, sự cố) |
Thời gian tích tụ khí kéo dài giờ, phút. |
Sự tổn thất do sự tích tụ khí |
Ghi chép của người chịu trách nhiệm |
Các biện pháp phòng ngừa sự tích tụ khí |
Chữ ký của Phụ trách thông gió mỏ. |
Chữ ký của Giám đốc mỏ |
|||
|
Vị trí đo |
Hàm lượng cao nhất |
Đào lò, m |
Khai thác, T |
Xử lý sự tích tụ khí |
Theo dõi |
|||||||
|
1 |
2 |
3 |
4 |
5 |
6 |
7 |
8 |
9 |
10 |
11 |
12 |
13 |
|
|
|
|
|
|
|
|
|
|
|
|
|
|
Biểu 3. Theo dõi sự phụt khí
|
Phụt khí lần thứ, Ngày, tháng phát hiện sự phụt khí |
Tên và ký hiệu vỉa |
Tên lò có phụt khí |
Vị trí xuất hiện phụt khí |
Hàm lượng khí Mêtan trong luồng gió thải dưới sự tác động của phụt khí, % |
Lưu lượng gió, m3/phút |
Lưu lượng phụt khí cực đại, m3/phút. |
Thời gian kéo dài sự phụt khí, ngày - đêm. |
Các công việc đang làm trong hầm lò trước lúc phụt khí Mêtan. |
Các công nghệ ở vị trí và gần vị trí phụt khí bị phá huỷ. |
Các phương pháp để sử lý sự phụt khí. |
Chứ ký của Phụ trách thông gió mỏ |
Chứ ký của GDDH mỏ |
|
1 |
2 |
3 |
4 |
5 |
6 |
7 |
8 |
9 |
10 |
11 |
12 |
13 |
|
|
|
|
|
|
|
|
|
|
|
|
|
|
Biểu 4. Thống kê hàm lượng khí CO vượt giới hạn cho phép
|
Tên lò và vị trí phát hiện hàm lượng khí cao vượt giới hạn cho phép |
Ngày và thời gian phát hiện hàm lượng khí cao vượt giới hạn cho phép |
Thời gian tiến hành đo |
Kết quả đo |
|
|||||||
|
Vị trí đo |
Lưu lượng khí m3/phút |
Hàm lượng khí |
Thời gian, trong đó phát hiện hàm lượng khí |
Sự suất hiện hàm lượng khí tăng cao |
Các biện pháp khắc pục |
Chữ ký của Phụ trách thong gió mỏ |
Chữ ký củaGĐĐH mỏ |
||||
|
1 |
2 |
3 |
4 |
5 |
6 |
7 |
8 |
9 |
10 |
11 |
|
|
|
|
|
|
|
|
|
|
|
|
|
|
|
|
|
|
|
|
|
|
|
|
|
|
|
Hướng dẫn ghi sổ
1. Sổ bao gồm bốn phần:
Biểu 1: Ghi kết quả đo hàm lượng khí Mêtan;
Biểu 2: Theo dõi sự tích tụ khí;
Biểu 3: Theo dõi sự phụt khí Mêtan;
Biểu 4: Thống kê hàm lượng khí CO2 cao vượt trị số cho phép.
Ở các mỏ không có khí, chỉ cần Biểu.4 và gọi là “Sổ thống kê hàm lượng khí CO2 cao vượt trị số cho phép”.
2. Quản đốc phân xưởng thông gió hoặc người được uỷ quyền chịu trách nhiệm ghi sổ.
3. Biểu 1 được ghi hàng ngày, từ các phiếu ghi kết quả đo khí tại các điểm đo trong hầm lò được đưa vào sổ:
- Luồng gió đi vào khu vực khấu;
- Luồng gió đi vào lò khai thác khi thông gió nối tiếp cho các lò chợ (đối với đường đi thứ 2 của luồng gió vào lò chợ);
- Luồng gió thải từ các lò khai thác của khu vực khấu khi không có thông tin của cảm biến tự động đo hàm lượng khí Mêtan.
Đối với luồng gió thải của lò khai thác trong một cột ghi ở dạng phân số: Tử số là giá trị cực đại, mẫu số là giá trị trung bình.
Cứ qua 10 ngày, không phụ thuộc vào ca đo khí, Quản đốc phân xưởng thông gió phải nghiên cứu hàm lượng khí trong lò theo phiếu ghi kết quả đo khí tại các điểm trong hầm lò và điền vào biểu thích hợp.
4. Biểu 2: Ghi sự thoát khí ở các lò.
Cột 2 ghi tên vỉa, khu vực, lò trong đó phát hiện có tích tụ khí Mêtan ở dạng tích tụ (điểm, thành lớp và toàn phần) tại nóc lò và hông lò sau vì chống, khoảng không gần gương lò, trên toàn bộ chiều dài lò chợ và lò dọc vỉa thông gió …
Cột 6 ghi thời gian trước đó vào thời điểm phát hiện sự tích tụ khí (được xác lập bằng cách theo dõi nguyên nhân tích tụ khí) tới khi khí thoát hoàn toàn.
Cột 11 được ghi các biện pháp phòng ngừa sự tích tụ khí với các chỉ dẫn về khối lượng, thời gian thực hiện các công việc và người chịu trách nhiệm thực hiện các công việc đó.
Cột 12 do Quản đốc phân xưởng thông gió và Quản đốc phân xưởng lò nơi mà có sự xuất hiện tích trụ khí kể trên ký.
5. Biểu 3: Ghi các trường hợp phụt khí Mêtan theo thứ tự các lần xuất hiện.
Đánh số thứ tự các lần phụt khí trên toàn mỏ trong bản kế hoạch khai thác mỏ, vị trí phụt khí phải đánh dấu bằng vòng tròn màu đỏ theo số thứ tự và ghi ngày, tháng, năm.
Các thông số mỗi lần phụt khí phải được ghi không chậm hơn một ngày kể từ khi xảy ra phụt khí và đưa ra các biện pháp bổ sung để đo được các thông số mới tiếp theo.
Cột 4 ghi các vị trí thoát khí Mêtan: Từ các vỉa than, đất đá, nóc hoặc nền lò.
Cột 5 và 6 ghi kết quả thông số đo hàm lượng khí Mêtan và lưu lượng gió bổ sung mỗi lần xuất hiện mới cho từng ngày đo sau đó. Vì vậy, phải đo đồng thời lưu lượng gió và hàm lượng khí Mêtan tại vị trí xác định trước.
Lưu lượng khí dưới tác động của sự phụt khí được xác định theo sự chênh lưu lượng khí tại vị trí trước và sau điểm phụt khí. Để thực hiện được việc trên phải xác định trước các điểm đo đồng thời hàm lượng khí Mêtan và lưu lượng gió. Lưu lượng khí phụt ra được xác định theo độ chênh của sự thoát khí trong các lò trước lúc xảy ra phụt khí và khi có phụt khí. Trường hợp thứ nhất lưu lượng khí được lấy theo kết quả đo gần nhất theo kế hoạch, trường hợp thứ hai xác định các kết quả đo trực tiếp lưu lượng khí và hàm lượng khí Mêtan.
6. Biểu.4 ghi tất cả các trường hợp hàm lượng khí CO2 tăng cao trong các lò của mỏ không có khí nổ. Việc ghi chép được tiến hành không chậm sau 1 ngày, tính từ thời điểm phát hiện trong lò có sự tăng cuả khí Cacbonic cùng với các biện pháp bổ sung để có được các thông số đo mới nhất. Cột 5 ghi các kết quả đo lưu lượng không khí vào lò nơi có xuất hiện hàm lượng khí Cacbonic tăng cao. Các kết quả đo hàm lượng khí Cacbonic được ghi ở cột 6.
SỔ KIỂM TRA GIẾNG MỎ
Cơ quan quản lý mỏ có thẩm quyền:…………………
Đơn vị: …………………………..
Bắt đầu ghi sổ từ ngày……..tháng ……năm…
Kết thúc ghi sổ từ ngày…..tháng……năm…
|
Ngày, tháng kiểm tra |
Tình trạng cột chống giếng và cốt giếng |
Thời gian phát hiện hỏng hóc |
Tính chất hỏng hóc |
Nguyên nhân hỏng hóc |
Chữ ký người kiểm tra giếng và người chịu trách nhiệm về tình trạng giếng |
Các biện pháp khắc phục hỏng hóc |
Thời gian dừng trục tải |
Chữ kỹ của Phụ trách cơ điện mỏ |
|
1 |
2 |
3 |
4 |
5 |
6 |
7 |
8 |
9 |
|
|
|
|
|
|
|
|
|
|
|
|
|
|
|
|
|
|
|
|
Hướng dẫn ghi sổ
Sổ ghi tất cả các nhận xét, các hỏng hóc của vì chống giếng, tháp giếng, dẫn hướng, đường dẫn hướng, đường ống nước, kẹp cáp và cáp điện làm ảnh hưởng tới hoạt động bình thường của trục tải.
Cột 8 ghi thời gian (giờ và phút) dừng trục tải để xử lý các hỏng hóc trong giếng.
Cột 9 dành cho Phó giám đốc cơ điện mỏ ghi sau khi xử lý các hỏng hóc trong giếng, phải ghi rõ thời gian và chữ ký.
Sổ phải in và đóng thành quyển, đóng dấu giáp lai.
Mẫu sổ 14
SỔ HUẤN LUYỆN AN TOÀN, VỆ SINH LAO ĐỘNG
Theo các Điều 7; 8; 14 của Quy phạm này
Mẫu số 14.1 (Dành cho người lao động/người sử dụng lao động/người làm công tác an toàn vệ sinh lao động ở cơ sở)
HUẤN LUYỆN VỀ ATLĐ, VSLĐ ĐỐI VỚI....................................(1)
1. Tên đơn vị tổ chức huấn luyện:……………………………………
2. Thời gian huấn luyện: Từ ngày......đến ngày.....tháng.......năm.......
3. Nội dung huấn luyện: …………………………………………….
4. Giáo viên huấn luyện (Tên, chức danh, bằng cấp chuyên môn):…
5. Người tổ chức lớp huấn luyện (Tên, chức danh, bằng cấp chuyên môn):…………………………………………………………………….
6. Danh sách các học viên:………………………………………….
|
Số TT |
Họ và tên |
Năm sinh |
Nghề nghiệp |
Nơi làm việc |
Hình thức huấn luyện |
Kết quả huấn luyện |
Chữ ký của người được huấn luyện |
|
|
Lần đầu |
Định kỳ |
|||||||
|
1 |
2 |
3 |
4 |
5 |
6 |
7 |
8 |
9 |
|
|
|
|
|
|
|
|
|
|
|
|
|
|
|
|
|
|
|
|
|
Giáo viên/đơn vị huấn luyện (Ký tên, đóng dấu) |
Giám đốc điều hànhmỏ (Ký tên, đóng dấu) |
Mẫu số 14.2 (Dành cho người ngoài cơ sở đến tham quan, liên hệ công việc, thực tập tại cơ sở)
HƯỚNG DẪN, PHỔ BIẾN VỀ ATLĐ, VSLĐ CHO NGƯỜI NGOÀI CƠ SỞ ĐẾN THAM QUAN, NGHIÊN CỨU, LIÊN HỆ CÔNG VIỆC, THỰC TẬP TẠI MỎ
1. Tên đơn vị hướng dẫn:…………………………………………………
2. Thời gian hướng dẫn:………………………………………………….
3. Nội dung hướng dẫn:………………………………………………….
4. Danh sách người được hướng dẫn:……………………………………
|
Số TT |
Họ và tên |
Năm sinh |
Nghề nghiệp |
Nơi làm việc |
Chữ ký của người được hướng dẫn |
Người hướng dẫn (Ký và ghi rõ họ tên) |
|
1 |
2 |
3 |
4 |
5 |
6 |
7 |
|
|
|
|
|
|
|
|
|
|
|
|
|
|
|
|
Giám đốc điều hành mỏ
(Ký tên, đóng dấu)
Ghi chú:
a) (1): Người lao động hoặc người sử dụng lao động hoặc người làm công tác bảo hộ lao động ở cơ sở.
b) Sổ theo dõi huấn luyện phải được đóng dấu giáp lai.
SỔ THỒNG KÊ, XUẤT NHẬP VÀ BẢO QUẢN THIẾT BỊ HÀN
Cơ quan quản lý mỏ có thẩm quyền……………………………..
Đơn vị: …………………………………………………………………..
Người có trách nhiệm thống kê và bảo quản thiết bị hàn: ………………
Bắt đầu ghi sổ từ ngày … tháng … năm….
Kết thúc ghi sổ từ ngày … tháng …
|
TT |
Loại thiết bị hàn |
Số |
Tình trạng thiết bị |
Họ và tên, chức vụ của người ra lệnh xuất thiết bị |
Xuất thiết bị |
Nhập thiết bị |
|||||
|
Nhà máy chế tạo |
Kê khai
|
Ngày, tháng, giờ |
Họ và tên người nhận |
Chữ ký của người nhận |
Ngày, tháng, giờ |
Họ và tên người nhập thiết bị |
Chữ ký người nhập thiết bị |
||||
|
1 |
2 |
3 |
4 |
5 |
6 |
7 |
8 |
9 |
10 |
11 |
12 |
|
|
|
|
|
|
|
|
|
|
|
|
|
|
|
|
|
|
|
|
|
|
|
|
|
|
----------------------------------------
BẢNG KÝ HIỆU CÁC THIỆT BỊ ĐIỆN MỎ CÓ MỨC BẢO VỆ NỔ CÁC CẤP THEO TIÊU CHUẨN QUỐC TẾ
|
Chủng loại thiết bị được chế tạo |
EC |
Nga |
CH. Séc |
Nam tư (cũ) |
Hung gari |
Ba lan |
Bun gari |
CHLB Đức |
Nh. Bản |
Thuỵ điển |
Bỉ |
Anh |
Pháp |
Italia |
Mỹ |
Canađa |
|
Ký hiệu chung của thiết bị phòng nổ |
||||||||||||||||
|
ExI |
P |
Ex |
S |
Rb |
Ex |
FLP |
ADF |
AD ADF |
UL |
CSA |
||||||
|
Có vỏ không xuyên nổ |
d |
B |
3 |
t |
n |
M |
D |
Xt |
- |
PE |
- |
|||||
|
Thổi dưới áp suất dư |
p |
P |
6 |
p |
t |
P |
F |
Xv |
- |
SI |
- |
|||||
|
Đổ đầy dầu |
o |
M |
5 |
O |
Xo |
- |
PE |
- |
||||||||
|
Đổ đầy thạch anh |
q |
K (K') |
I |
q |
k |
z |
p |
s |
s |
Xs |
- |
- |
- |
|||
|
Chế tạo đặc biệt |
s |
O |
8 |
n |
I |
s |
||||||||||
|
Đầy khí dưới áp suất dư |
6 |
c |
fu |
f |
||||||||||||
|
Có độ tin cậy tăng cường |
e |
P |
O |
s |
f |
w |
E |
Xh |
e |
- |
e |
SA |
- |
|||
|
An toàn tia lửa |
i |
U |
9 |
i |
Sz |
- |
i |
- |
- |
- |
- |
Í |
- |
- |
- |
- |